Property
Account |
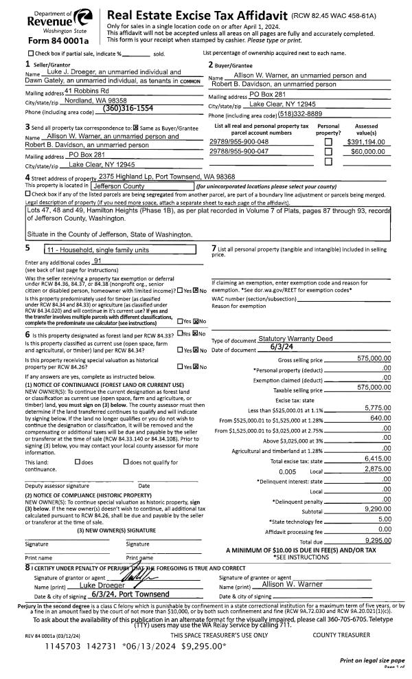
| Property ID: | 29789 | Abbreviated Legal Description: | HAMILTON HEIGHTS LOTS 48 & 49 BND TGTH THRU LLA#106056 |
| Parcel # / Geo ID: | 955900048 | Agent Code: | |
| Type: | Real | | |
| Tax Area: | 0110 - C-50F1E1H2 | Land Use Code | 11 |
| Open Space: | N | DFL | N |
| Historic Property: | N | Remodel Property: | N |
| Multi-Family Redevelopment: | N | | |
| Township: | 30N | Section: | 4 |
| Range: | 1W |
Location |
| Address: | 2375 HIGHLAND LOOP PORT TOWNSEND, WA 98368 | Mapsco: | 056/016 |
| Neighborhood: | S 1/2 S4-30-1W INC HAMILTON HEIGHTS & PHOENIX | Map ID: | |
| Neighborhood CD: | 6100 |
Owner |
| Name: | ROBERT DAVIDSON | Owner ID: | 105638 |
| Mailing Address: | ALLISON WARNER PO BOX 281 LAKE CLEAR, NY 12945-0281 | % Ownership: | 100.0000000000% |
| | | Exemptions: | |
Pay Tax Due
There is currently No Amount Due on this property.
Taxes and Assessment Details
Property Tax Information as of
03/11/2026
Click on "Statement Details" to expand or collapse a tax statement.
* Please enter a valid date ** Please enter a valid date *
Statement Details |
| | TOTAL: | $0.00 | $0.00 | $0.00 | $0.00 | $0.00 | $0.00 |
|
| | $0.00 | $0.00 | $0.00 | $0.00 | $0.00 | $0.00 |
Values
| (+) Improvement Homesite Value: | + | $0 | |
| (+) Improvement Non-Homesite Value: | + | $415,120 | |
| (+) Land Homesite Value: | + | $0 | |
| (+) Land Non-Homesite Value: | + | $127,500 | |
| (+) Curr Use (HS): | + | $0 | $0 |
| (+) Curr Use (NHS): | + | $0 | $0 |
| | | -------------------------- | |
| (=) Market Value: | = | $542,620 | |
| (–) Productivity Loss: | – | $0 | |
| | | -------------------------- | |
| (=) Subtotal: | = | $542,620 | |
| (+) Senior Appraised Value: | + | $0 | |
| (+) Non-Senior Appraised Value: | + | $542,620 | |
| | | -------------------------- | |
| (=) Total Appraised Value: | = | $542,620 | |
| (–) Senior Exemption Loss: | – | $0 | |
| (–) Exemption Loss: | – | $0 | |
| | | -------------------------- | |
| (=) Taxable Value: | = | $542,620 | |
Taxing Jurisdiction
| Owner: | ROBERT DAVIDSON | | |
| % Ownership: | 100.0000000000% | | |
| Total Value: | N/A | | |
| Tax Area: | 0110 - C-50F1E1H2 |
| CE | COUNTY CURRENT EXPENSE | N/A | N/A | N/A | N/A | | |
| CNTYDD | DEVELOPMENTAL DISABILITIES | N/A | N/A | N/A | N/A | | |
| CNTYVET | VETERANS RELIEF | N/A | N/A | N/A | N/A | | |
| MENTAL | MENTAL HEALTH | N/A | N/A | N/A | N/A | | |
| PTGEN | CITY OF PT GENERAL | N/A | N/A | N/A | N/A | | |
| PTLLL | CITY OF PT - LIBRARY LID LIFT | N/A | N/A | N/A | N/A | | |
| PTMVBOND | CITY OF PT MV BOND | N/A | N/A | N/A | N/A | | |
| HOSP2CASH | HOSP DIST #2 GENERAL | N/A | N/A | N/A | N/A | | |
| SCH50BOND | SCHOOL DIST #50 BOND 2016 | N/A | N/A | N/A | N/A | | |
| SCH50CP | SCHOOL DIST #50 CAP PROJ | N/A | N/A | N/A | N/A | | |
| SCH50MO | SCHOOL DIST #50 EP & O | N/A | N/A | N/A | N/A | | |
| CONSERVE | CONSERVATION FUTURES | N/A | N/A | N/A | N/A | | |
| EMS1 | FIRE DIST #1 EMS | N/A | N/A | N/A | N/A | | |
| FD1 | FIRE DIST #1 GENERAL | N/A | N/A | N/A | N/A | | |
| PORTPT | PORT OF PT GENERAL | N/A | N/A | N/A | N/A | | |
| PORTPTIDD | PORT OF PT IDD 2019 | N/A | N/A | N/A | N/A | | |
| PUD1 | PUD #1 GENERAL | N/A | N/A | N/A | N/A | | |
| STATE | STATE SCHOOL PART 1 | N/A | N/A | N/A | N/A | | |
| STATE2 | STATE SCHOOL PART 2 | N/A | N/A | N/A | N/A | | |
| | Total Tax Rate: | N/A | | | | | |
| | | | | Taxes w/Current Exemptions: | N/A | | |
| | | | | Taxes w/o Exemptions: | N/A | | |
Improvement / Building
| Improvement #1: | Manufactured Home | State Code: | 11 | 1749.0 sqft | Value: | $415,120 |
| Bathrooms (#): | 2 (FULL) | Bedrooms (#): | 3 | | Exterior Wall: | SI/ST | Fireplace: | WD ST-GOOD | | Floor Construction: | FRAME | Foundation: | CONBL | | Heating/Cooling: | F/A | Roof Cover: | COMP |
|
| | Type | Description | Class CD | Sub Class CD | Year Built | Area |
| | MA | Main Area | 5- | MFH | 1998 | 1749.0 |
| | MPATIO | MH Patio | 5 | * | 1998 | 380.0 |
| | MWPOR | MH Wood Porch | 5 | * | 1998 | 301.0 |
| | MDECK | MH Deck | 5 | * | 1998 | 216.0 |
| | MATT | MH Attached Garage | 4 | MDBL | 1998 | 768.0 |
| | ADDN | Addition (Table Not Dep) | 3 | * | 1998 | 256.0 |
| | CONCD | Concrete Drive | 5 | * | 1998 | 1200.0 |
Sketch
Property Image
Land
| 1 | 6100-1175L | Hamilton Heights/Phoenix/Parkview | 0.0000 | 0.00 | 0.00 | 0.00 | 1.00 | $32,500 | $0 |
| 2 | 6100-1175L | Hamilton Heights/Phoenix/Parkview | 0.0000 | 0.00 | 0.00 | 0.00 | 1.00 | $95,000 | $0 |
Roll Value History
| 2026 | N/A | N/A | N/A | N/A | N/A |
| 2025 | $415,120 | $127,500 | $0 | $542,620 | $542,620 |
| 2024 | $357,511 | $126,000 | $0 | $483,511 | $483,511 |
| 2023 | $276,194 | $115,000 | $0 | $391,194 | $391,194 |
| 2022 | $276,193 | $110,000 | $0 | $386,193 | $386,193 |
Deed and Sales History
| 1 | 06/03/2024 | SWD | Statutory Warranty Deed | LUKE J DROEGER | ROBERT DAVIDSON | | | $575,000.00 | 142731 | |
|   | |
| 2 | 09/13/2019 | SWD | Statutory Warranty Deed | LINDA L GATELY LIVING TRUST | LUKE J DROEGER | | | $185,000.00 | 133148 | |
|   | |
| 3 | 05/21/2019 | QCD | Quit Claim Deed | ALLEN P WIEGAND TRUSTEE | LINDA L GATELY LIVING TRUST | | | | 132370 | |
| 4 | 04/24/2008 | QCD | Quit Claim Deed | WIEGAND, ALLEN P/INGRID W | WIEGAND, ALLEN P/INGRID W LIVI | | | $0.00 | 111177 | 0 |
| 5 | 02/17/2006 | BLA | Boundary Line Adjustment | HAMILTON HEIGHTS LLC | WIEGAND, ALLEN/INGRID | 0 | 0 | $0.00 | 106056 | 0 |
| 6 | 10/12/1998 | SWD | Statutory Warranty Deed | HAMILTON HEIGHTS LLC | WIEGAND, ALLEN/INGRID | 0 | 0 | $215,458.00 | 85475 | 0 |
Payout Agreement
| No payout information available.. |