Property
Account |
| Property ID: | 29823 | Abbreviated Legal Description: | HAMILTON HEIGHTS PUD PHASE 2 LOT 88 |
| Parcel # / Geo ID: | 955900088 | Agent Code: | |
| Type: | Real | | |
| Tax Area: | 0110 - C-50F1E1H2 | Land Use Code | 11 |
| Open Space: | N | DFL | N |
| Historic Property: | N | Remodel Property: | N |
| Multi-Family Redevelopment: | N | | |
| Township: | 30N | Section: | 4 |
| Range: | 1W |
Location |
| Address: | 2620 ST HELENS PL PORT TOWNSEND, WA 98368 | Mapsco: | 057/016 |
| Neighborhood: | S 1/2 S4-30-1W INC HAMILTON HEIGHTS & PHOENIX | Map ID: | |
| Neighborhood CD: | 6100 |
Owner |
| Name: | CHARLES A & SUZANNE A WATSON | Owner ID: | 105464 |
| Mailing Address: | 2620 ST HELENS PL PORT TOWNSEND, WA 98368 | % Ownership: | 100.0000000000% |
| | | Exemptions: | |
Pay Tax Due
There is currently No Amount Due on this property.
Taxes and Assessment Details
Property Tax Information as of
03/12/2026
Click on "Statement Details" to expand or collapse a tax statement.
* Please enter a valid date ** Please enter a valid date *
Statement Details |
| | TOTAL: | $0.00 | $0.00 | $0.00 | $0.00 | $0.00 | $0.00 |
|
| | $0.00 | $0.00 | $0.00 | $0.00 | $0.00 | $0.00 |
Values
| (+) Improvement Homesite Value: | + | $0 | |
| (+) Improvement Non-Homesite Value: | + | $359,634 | |
| (+) Land Homesite Value: | + | $0 | |
| (+) Land Non-Homesite Value: | + | $95,000 | |
| (+) Curr Use (HS): | + | $0 | $0 |
| (+) Curr Use (NHS): | + | $0 | $0 |
| | | -------------------------- | |
| (=) Market Value: | = | $454,634 | |
| (–) Productivity Loss: | – | $0 | |
| | | -------------------------- | |
| (=) Subtotal: | = | $454,634 | |
| (+) Senior Appraised Value: | + | $0 | |
| (+) Non-Senior Appraised Value: | + | $454,634 | |
| | | -------------------------- | |
| (=) Total Appraised Value: | = | $454,634 | |
| (–) Senior Exemption Loss: | – | $0 | |
| (–) Exemption Loss: | – | $0 | |
| | | -------------------------- | |
| (=) Taxable Value: | = | $454,634 | |
Taxing Jurisdiction
| Owner: | CHARLES A & SUZANNE A WATSON | | |
| % Ownership: | 100.0000000000% | | |
| Total Value: | $454,634 | | |
| Tax Area: | 0110 - C-50F1E1H2 |
| CE | COUNTY CURRENT EXPENSE | 0.9034619479 | $454,634 | $454,634 | $410.74 | | |
| CNTYDD | DEVELOPMENTAL DISABILITIES | 0.0052121823 | $454,634 | $454,634 | $2.37 | | |
| CNTYVET | VETERANS RELIEF | 0.0052777810 | $454,634 | $454,634 | $2.40 | | |
| MENTAL | MENTAL HEALTH | 0.0052121823 | $454,634 | $454,634 | $2.37 | | |
| PTGEN | CITY OF PT GENERAL | 0.8551967795 | $454,634 | $454,634 | $388.80 | | |
| PTLLL | CITY OF PT - LIBRARY LID LIFT | 0.4010114288 | $454,634 | $454,634 | $182.31 | | |
| PTMVBOND | CITY OF PT MV BOND | 0.0484717981 | $454,634 | $454,634 | $22.04 | | |
| HOSP2CASH | HOSP DIST #2 GENERAL | 0.0536075306 | $454,634 | $454,634 | $24.37 | | |
| SCH50BOND | SCHOOL DIST #50 BOND 2016 | 0.5377451389 | $454,634 | $454,634 | $244.48 | | |
| SCH50CP | SCHOOL DIST #50 CAP PROJ | 0.4573475088 | $454,634 | $454,634 | $207.93 | | |
| SCH50MO | SCHOOL DIST #50 EP & O | 0.8262822886 | $454,634 | $454,634 | $375.66 | | |
| CONSERVE | CONSERVATION FUTURES | 0.0275621078 | $454,634 | $454,634 | $12.53 | | |
| EMS1 | FIRE DIST #1 EMS | 0.4679948282 | $454,634 | $454,634 | $212.77 | | |
| FD1 | FIRE DIST #1 GENERAL | 1.2171942929 | $454,634 | $454,634 | $553.38 | | |
| PORTPT | PORT OF PT GENERAL | 0.1134941229 | $454,634 | $454,634 | $51.60 | | |
| PORTPTIDD | PORT OF PT IDD 2019 | 0.2577346692 | $454,634 | $454,634 | $117.17 | | |
| PUD1 | PUD #1 GENERAL | 0.0597888892 | $454,634 | $454,634 | $27.18 | | |
| STATE | STATE SCHOOL PART 1 | 1.4940692947 | $454,634 | $454,634 | $679.25 | | |
| STATE2 | STATE SCHOOL PART 2 | 0.8050170049 | $454,634 | $454,634 | $365.99 | | |
| | Total Tax Rate: | 8.5416817766 | | | | | |
| | | | | Taxes w/Current Exemptions: | $3,883.34 | | |
| | | | | Taxes w/o Exemptions: | $3,883.34 | | |
Improvement / Building
| Improvement #1: | Residential Bldg | State Code: | 11 | 1388.0 sqft | Value: | $359,634 |
| Bathrooms (#): | 2 (FULL) | Bedrooms (#): | 3 | | Exterior Wall: | SI/ST | Floor Construction: | FRAME | | Foundation: | CONPR | Heating/Cooling: | ELBB | | Roof Cover: | COMP |   |   |
|
| | Type | Description | Class CD | Sub Class CD | Year Built | Area |
| | MA | Main Area | 4+ | 2S | 2005 | 640.0 |
| | MA2 | Second Floor Main Area | 4+ | 2S | 2005 | 748.0 |
| | HWPOR | House Wood Porch | 4 | * | 2005 | 100.0 |
| | GATT | House Attached Garage | 4 | * | 2005 | 440.0 |
| | CONCD | Concrete Drive | 4 | * | 2005 | 650.0 |
| | PATIO | House Patio | 4 | * | 2005 | 388.0 |
Sketch
Property Image
Land
| 1 | 6100-1175L | Hamilton Heights/Phoenix/Parkview | 0.0000 | 0.00 | 0.00 | 0.00 | 1.00 | $95,000 | $0 |
Roll Value History
| 2026 | N/A | N/A | N/A | N/A | N/A |
| 2025 | $359,634 | $95,000 | $0 | $454,634 | $454,634 |
| 2024 | $337,004 | $94,500 | $0 | $431,504 | $431,504 |
| 2023 | $322,352 | $85,000 | $0 | $407,352 | $407,352 |
| 2022 | $322,352 | $80,000 | $0 | $402,352 | $402,352 |
Deed and Sales History
| 1 | 08/20/2021 | SWD | Statutory Warranty Deed | IAN D MEIS | CHARLES A & SUZANNE A WATSON | | | $450,000.00 | 137460 | |
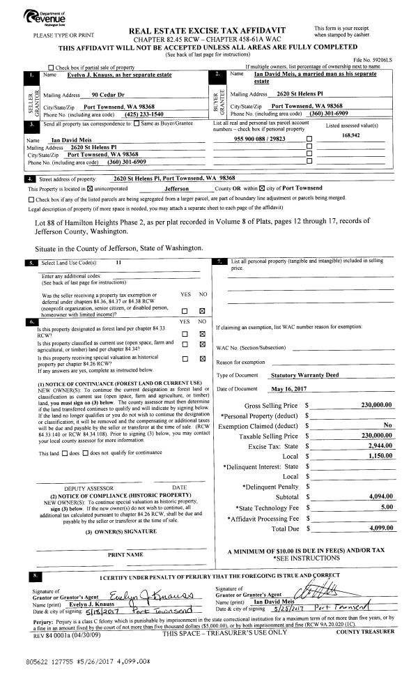
| 2 | 05/16/2017 | SWD | Statutory Warranty Deed | EVELYN JEAN KNAUSS | IAN D MEIS | | | $230,000.00 | 127755 | |
| 3 | 05/16/2017 | QCD | Quit Claim Deed | | | | | | 127755 | |
| 4 | 12/08/2014 | SPWD | Special Warranty Deed | SECRETARY OF HOUSING & | EVELYN JEAN KNAUSS | | | $151,851.00 | 122394 | |
| 5 | 06/25/2014 | SPWD | Special Warranty Deed | FREEDOM MORTGAGE CORPORATION | SECRETARY OF HOUSING & | | | | 121513 | |
| 6 | 10/22/2013 | TRED | Trustee Deed | KAREN L GIBBON P S | FREEDOM MORTGAGE CORPORATION | | | | 120163 | |
| 7 | 12/20/2004 | SWD | Statutory Warranty Deed | KITSAP COUNTY CONSOLIDATE | JESIONOWSKI, KAREN | 0 | 0 | $0.00 | 102380 | 0 |
Payout Agreement
| No payout information available.. |