Property
Account |
| Property ID: | 29874 | Abbreviated Legal Description: | HAMILTON'S 5AC TRACTS LOT 13 (E OF HWY) LS R/W & TAX 51 |
| Parcel # / Geo ID: | 956100038 | Agent Code: | |
| Type: | Real | | |
| Tax Area: | 0324 - 1-48F2E2H2C2L1Z3 | Land Use Code | 11 |
| Open Space: | N | DFL | N |
| Historic Property: | N | Remodel Property: | N |
| Multi-Family Redevelopment: | N | | |
| Township: | 27N | Section: | 13 |
| Range: | 2W |
Location |
| Address: | 31 E COLUMBIA ST QUILCENE, WA 98376 | Mapsco: | 104/040 |
| Neighborhood: | S13 T27N R2W & HAMILTON 5 ACRE TRACTS & ACKERMAN S.P. | Map ID: | |
| Neighborhood CD: | 2530 |
Owner |
| Name: | MICHAEL J & BRENDA J SPEARS | Owner ID: | 27873 |
| Mailing Address: | 293774 US HIGHWAY 101 QUILCENE, WA 98376-9548 | % Ownership: | 100.0000000000% |
| | | Exemptions: | |
Pay Tax Due
Select the appropriate checkbox next to the year to be paid. Multiple years may be selected.
*Convenience Fee not included
Taxes and Assessment Details
Property Tax Information as of
03/10/2026
Click on "Statement Details" to expand or collapse a tax statement.
* Please enter a valid date ** Please enter a valid date *
Statement Details |
| 2026 | 19184 | STATE - STATE LEVY (SCHOOL) | $551.29 | $551.28 | $0.00 | $0.00 | $0.00 | $1102.57 |
| 2026 | 19184 | COUNTY - COUNTY LEVIES (CE, DD, VET, MH) | $220.41 | $220.40 | $0.00 | $0.00 | $0.00 | $440.81 |
| 2026 | 19184 | CONSERVE - CONSERVATION FUTURES | $6.61 | $6.61 | $0.00 | $0.00 | $0.00 | $13.22 |
| 2026 | 19184 | COROADS - COUNTY ROADS (ROADS, DIV TO CE) | $177.81 | $177.80 | $0.00 | $0.00 | $0.00 | $355.61 |
| 2026 | 19184 | PORTPT - PORT DISTRICT | $89.02 | $89.01 | $0.00 | $0.00 | $0.00 | $178.03 |
| 2026 | 19184 | PUD1 - PUD #1 | $14.34 | $14.33 | $0.00 | $0.00 | $0.00 | $28.67 |
| 2026 | 19184 | LIB1 - LIBRARY DIST #1 | $68.79 | $68.79 | $0.00 | $0.00 | $0.00 | $137.58 |
| 2026 | 19184 | HD2 - HOSP DIST #2 | $12.86 | $12.85 | $0.00 | $0.00 | $0.00 | $25.71 |
| 2026 | 19184 | SD48 - SCHOOL DIST #48 | $338.59 | $338.59 | $0.00 | $0.00 | $0.00 | $677.18 |
| 2026 | 19184 | FD2 - FIRE DISTRICT #2 | $181.04 | $181.04 | $0.00 | $0.00 | $0.00 | $362.08 |
| 2026 | 19184 | EMS2 - FIRE DIST #2 EMS | $101.95 | $101.95 | $0.00 | $0.00 | $0.00 | $203.90 |
| 2026 | 19184 | CEM2 - CEMETERY DIST #2 | $5.79 | $5.78 | $0.00 | $0.00 | $0.00 | $11.57 |
| 2026 | 19184 | FP - DNR Forest Fire Protection Assmt | $8.50 | $8.50 | $0.00 | $0.00 | $0.00 | $17.00 |
| 2026 | 19184 | FPLCA - DNR Landowner Contingency Assmt | $3.00 | $3.00 | $0.00 | $0.00 | $0.00 | $6.00 |
| 2026 | 19184 | JCCD - JC Conservation District | $2.60 | $2.60 | $0.00 | $0.00 | $0.00 | $5.20 |
| 2026 | 19184 | NWA - Noxious Weed Assessment | $3.20 | $3.20 | $0.00 | $0.00 | $0.00 | $6.40 |
| 2026 | 19184 | OSS - On Site Septic | $23.10 | $23.10 | $0.00 | $0.00 | $0.00 | $46.20 |
| 2026 | 19184 | WAT - Clean Water District | $13.00 | $13.00 | $0.00 | $0.00 | $0.00 | $26.00 |
| 2026 | 19184 | FP ADMIN - FP ADMIN | $0.50 | $0.00 | $0.00 | $0.00 | $0.00 | $0.50 |
| 2026 | 19184 | TOTAL: | $1822.40 | $1821.83 | $0.00 | $0.00 | $0.00 | $3644.23 |
|
| 2026 | 19184 | $1822.40 | $1821.83 | $0.00 | $0.00 | $0.00 | $3644.23 |
Statement Details |
| 2025 | 19244 | STATE - STATE LEVY (SCHOOL) | $373.95 | $373.93 | $0.00 | $0.00 | $747.88 | $0.00 |
| 2025 | 19244 | COUNTY - COUNTY LEVIES (CE, DD, VET, MH) | $147.05 | $147.04 | $0.00 | $0.00 | $294.09 | $0.00 |
| 2025 | 19244 | CONSERVE - CONSERVATION FUTURES | $4.41 | $4.41 | $0.00 | $0.00 | $8.82 | $0.00 |
| 2025 | 19244 | COROADS - COUNTY ROADS (ROADS, DIV TO CE) | $117.81 | $117.81 | $0.00 | $0.00 | $235.62 | $0.00 |
| 2025 | 19244 | PORTPT - PORT DISTRICT | $60.01 | $60.00 | $0.00 | $0.00 | $120.01 | $0.00 |
| 2025 | 19244 | PUD1 - PUD #1 | $9.62 | $9.62 | $0.00 | $0.00 | $19.24 | $0.00 |
| 2025 | 19244 | LIB1 - LIBRARY DIST #1 | $45.58 | $45.58 | $0.00 | $0.00 | $91.16 | $0.00 |
| 2025 | 19244 | HD2 - HOSP DIST #2 | $8.58 | $8.58 | $0.00 | $0.00 | $17.16 | $0.00 |
| 2025 | 19244 | SD48 - SCHOOL DIST #48 | $220.20 | $220.20 | $0.00 | $0.00 | $440.40 | $0.00 |
| 2025 | 19244 | FD2 - FIRE DISTRICT #2 | $121.58 | $121.58 | $0.00 | $0.00 | $243.16 | $0.00 |
| 2025 | 19244 | EMS2 - FIRE DIST #2 EMS | $68.46 | $68.45 | $0.00 | $0.00 | $136.91 | $0.00 |
| 2025 | 19244 | CEM2 - CEMETERY DIST #2 | $3.88 | $3.88 | $0.00 | $0.00 | $7.76 | $0.00 |
| 2025 | 19244 | FP - DNR Forest Fire Protection Assmt | $8.50 | $8.50 | $0.00 | $0.00 | $17.00 | $0.00 |
| 2025 | 19244 | FPLCA - DNR Landowner Contingency Assmt | $3.00 | $3.00 | $0.00 | $0.00 | $6.00 | $0.00 |
| 2025 | 19244 | JCCD - JC Conservation District | $2.60 | $2.60 | $0.00 | $0.00 | $5.20 | $0.00 |
| 2025 | 19244 | NWA - Noxious Weed Assessment | $2.30 | $2.30 | $0.00 | $0.00 | $4.60 | $0.00 |
| 2025 | 19244 | OSS - On Site Septic | $21.50 | $21.50 | $0.00 | $0.00 | $43.00 | $0.00 |
| 2025 | 19244 | WAT - Clean Water District | $13.00 | $13.00 | $0.00 | $0.00 | $26.00 | $0.00 |
| 2025 | 19244 | FP ADMIN - FP ADMIN | $0.50 | $0.00 | $0.00 | $0.00 | $0.50 | $0.00 |
| 2025 | 19244 | TOTAL: | $1232.53 | $1231.98 | $0.00 | $0.00 | $2464.51 | $0.00 |
|
| 2025 | 19244 | $1232.53 | $1231.98 | $0.00 | $0.00 | $2464.51 | $0.00 |
Statement Details |
| 2024 | 19281 | STATE - STATE LEVY (SCHOOL) | $338.66 | $338.66 | $0.00 | $0.00 | $677.32 | $0.00 |
| 2024 | 19281 | COUNTY - COUNTY LEVIES (CE, DD, VET, MH) | $144.92 | $144.92 | $0.00 | $0.00 | $289.84 | $0.00 |
| 2024 | 19281 | CONSERVE - CONSERVATION FUTURES | $4.35 | $4.34 | $0.00 | $0.00 | $8.69 | $0.00 |
| 2024 | 19281 | COROADS - COUNTY ROADS (ROADS, DIV TO CE) | $116.61 | $116.61 | $0.00 | $0.00 | $233.22 | $0.00 |
| 2024 | 19281 | PORTPT - PORT DISTRICT | $59.86 | $59.85 | $0.00 | $0.00 | $119.71 | $0.00 |
| 2024 | 19281 | PUD1 - PUD #1 | $9.52 | $9.52 | $0.00 | $0.00 | $19.04 | $0.00 |
| 2024 | 19281 | LIB1 - LIBRARY DIST #1 | $45.12 | $45.11 | $0.00 | $0.00 | $90.23 | $0.00 |
| 2024 | 19281 | HD2 - HOSP DIST #2 | $8.46 | $8.45 | $0.00 | $0.00 | $16.91 | $0.00 |
| 2024 | 19281 | SD48 - SCHOOL DIST #48 | $151.68 | $151.68 | $0.00 | $0.00 | $303.36 | $0.00 |
| 2024 | 19281 | FD2 - FIRE DISTRICT #2 | $120.48 | $120.47 | $0.00 | $0.00 | $240.95 | $0.00 |
| 2024 | 19281 | EMS2 - FIRE DIST #2 EMS | $67.82 | $67.82 | $0.00 | $0.00 | $135.64 | $0.00 |
| 2024 | 19281 | CEM2 - CEMETERY DIST #2 | $3.86 | $3.85 | $0.00 | $0.00 | $7.71 | $0.00 |
| 2024 | 19281 | JCCD - JC Conservation District | $2.60 | $2.60 | $0.00 | $0.00 | $5.20 | $0.00 |
| 2024 | 19281 | NWA - Noxious Weed Assessment | $2.30 | $2.30 | $0.00 | $0.00 | $4.60 | $0.00 |
| 2024 | 19281 | OSS - On Site Septic | $21.00 | $21.00 | $0.00 | $0.00 | $42.00 | $0.00 |
| 2024 | 19281 | WAT - Clean Water District | $12.50 | $12.50 | $0.00 | $0.00 | $25.00 | $0.00 |
| 2024 | 19281 | TOTAL: | $1109.74 | $1109.68 | $0.00 | $0.00 | $2219.42 | $0.00 |
|
| 2024 | 19281 | $1109.74 | $1109.68 | $0.00 | $0.00 | $2219.42 | $0.00 |
Statement Details |
| 2023 | 19318 | STATE - STATE LEVY (SCHOOL) | $311.00 | $311.00 | $0.00 | $0.00 | $622.00 | $0.00 |
| 2023 | 19318 | COUNTY - COUNTY LEVIES (CE, DD, VET, MH) | $135.71 | $135.71 | $0.00 | $0.00 | $271.42 | $0.00 |
| 2023 | 19318 | CONSERVE - CONSERVATION FUTURES | $4.07 | $4.07 | $0.00 | $0.00 | $8.14 | $0.00 |
| 2023 | 19318 | COROADS - COUNTY ROADS (ROADS, DIV TO CE) | $109.81 | $109.79 | $0.00 | $0.00 | $219.60 | $0.00 |
| 2023 | 19318 | PORTPT - PORT DISTRICT | $57.17 | $57.16 | $0.00 | $0.00 | $114.33 | $0.00 |
| 2023 | 19318 | PUD1 - PUD #1 | $9.00 | $8.99 | $0.00 | $0.00 | $17.99 | $0.00 |
| 2023 | 19318 | LIB1 - LIBRARY DIST #1 | $42.48 | $42.48 | $0.00 | $0.00 | $84.96 | $0.00 |
| 2023 | 19318 | HD2 - HOSP DIST #2 | $7.92 | $7.92 | $0.00 | $0.00 | $15.84 | $0.00 |
| 2023 | 19318 | SD48 - SCHOOL DIST #48 | $150.19 | $150.18 | $0.00 | $0.00 | $300.37 | $0.00 |
| 2023 | 19318 | FD2 - FIRE DISTRICT #2 | $117.80 | $117.80 | $0.00 | $0.00 | $235.60 | $0.00 |
| 2023 | 19318 | EMS2 - FIRE DIST #2 EMS | $66.06 | $66.05 | $0.00 | $0.00 | $132.11 | $0.00 |
| 2023 | 19318 | CEM2 - CEMETERY DIST #2 | $3.75 | $3.75 | $0.00 | $0.00 | $7.50 | $0.00 |
| 2023 | 19318 | JCCD - JC Conservation District | $2.60 | $2.60 | $0.00 | $0.00 | $5.20 | $0.00 |
| 2023 | 19318 | NWA - Noxious Weed Assessment | $2.30 | $2.30 | $0.00 | $0.00 | $4.60 | $0.00 |
| 2023 | 19318 | OSS - On Site Septic | $20.50 | $20.50 | $0.00 | $0.00 | $41.00 | $0.00 |
| 2023 | 19318 | WAT - Clean Water District | $12.00 | $12.00 | $0.00 | $0.00 | $24.00 | $0.00 |
| 2023 | 19318 | TOTAL: | $1052.36 | $1052.30 | $0.00 | $0.00 | $2104.66 | $0.00 |
|
| 2023 | 19318 | $1052.36 | $1052.30 | $0.00 | $0.00 | $2104.66 | $0.00 |
Values
| (+) Improvement Homesite Value: | + | $0 | |
| (+) Improvement Non-Homesite Value: | + | $388,276 | |
| (+) Land Homesite Value: | + | $0 | |
| (+) Land Non-Homesite Value: | + | $91,296 | |
| (+) Curr Use (HS): | + | $0 | $0 |
| (+) Curr Use (NHS): | + | $0 | $0 |
| | | -------------------------- | |
| (=) Market Value: | = | $479,572 | |
| (–) Productivity Loss: | – | $0 | |
| | | -------------------------- | |
| (=) Subtotal: | = | $479,572 | |
| (+) Senior Appraised Value: | + | $0 | |
| (+) Non-Senior Appraised Value: | + | $479,572 | |
| | | -------------------------- | |
| (=) Total Appraised Value: | = | $479,572 | |
| (–) Senior Exemption Loss: | – | $0 | |
| (–) Exemption Loss: | – | $0 | |
| | | -------------------------- | |
| (=) Taxable Value: | = | $479,572 | |
Taxing Jurisdiction
| Owner: | MICHAEL J & BRENDA J SPEARS | | |
| % Ownership: | 100.0000000000% | | |
| Total Value: | $479,572 | | |
| Tax Area: | 0324 - 1-48F2E2H2C2L1Z3 |
| CE | COUNTY CURRENT EXPENSE | 0.9034619479 | $479,572 | $479,572 | $433.28 | | |
| CNTYDD | DEVELOPMENTAL DISABILITIES | 0.0052121823 | $479,572 | $479,572 | $2.50 | | |
| CNTYVET | VETERANS RELIEF | 0.0052777810 | $479,572 | $479,572 | $2.53 | | |
| MENTAL | MENTAL HEALTH | 0.0052121823 | $479,572 | $479,572 | $2.50 | | |
| ROADS | COUNTY ROADS | 0.7415066410 | $479,572 | $479,572 | $355.61 | | |
| ROADSCU | COUNTY ROADS TO CUR EXP | 0.0000000000 | $479,572 | $479,572 | $0.00 | | |
| HOSP2CASH | HOSP DIST #2 GENERAL | 0.0536075306 | $479,572 | $479,572 | $25.71 | | |
| SCH48MO | SCHOOL DIST #48 EP & O | 1.4120478917 | $479,572 | $479,572 | $677.18 | | |
| CEM2 | CEMETERY DIST #2 GENERAL | 0.0241266154 | $479,572 | $479,572 | $11.57 | | |
| CONSERVE | CONSERVATION FUTURES | 0.0275621078 | $479,572 | $479,572 | $13.22 | | |
| FD2 | FIRE DIST #2 GENERAL | 0.7549976873 | $479,572 | $479,572 | $362.08 | | |
| LIB1 | LIBRARY DIST #1 GENERAL | 0.2868827388 | $479,572 | $479,572 | $137.58 | | |
| PORTPT | PORT OF PT GENERAL | 0.1134941229 | $479,572 | $479,572 | $54.43 | | |
| PORTPTIDD | PORT OF PT IDD 2019 | 0.2577346692 | $479,572 | $479,572 | $123.60 | | |
| PUD1 | PUD #1 GENERAL | 0.0597888892 | $479,572 | $479,572 | $28.67 | | |
| STATE | STATE SCHOOL PART 1 | 1.4940692947 | $479,572 | $479,572 | $716.51 | | |
| STATE2 | STATE SCHOOL PART 2 | 0.8050170049 | $479,572 | $479,572 | $386.06 | | |
| EMS2 | FIRE DIST #2 EMS | 0.4251727858 | $479,572 | $479,572 | $203.90 | | |
| | Total Tax Rate: | 7.3751720728 | | | | | |
| | | | | Taxes w/Current Exemptions: | $3,536.93 | | |
| | | | | Taxes w/o Exemptions: | $3,536.93 | | |
Improvement / Building
| Improvement #1: | Residential Bldg | State Code: | 11 | 1734.0 sqft | Value: | $388,276 |
| Bathrooms (#): | 1 (FULL) | Bedrooms (#): | 2 | | Exterior Wall: | SI/ST | Fireplace: | PROPS-GOOD | | Floor Construction: | FRAME | Foundation: | CONPR | | Heating/Cooling: | F/A | Inside Verify: | NO | | Roof Cover: | COMP |   |   |
|
| | Type | Description | Class CD | Sub Class CD | Year Built | Area |
| | MA | Main Area | 4 | 15SF | 1925 | 1158.0 |
| | MA2 | Second Floor Main Area | 4 | 15SF | 1925 | 576.0 |
| | PATIO | House Patio | 4 | * | 1925 | 802.0 |
| | HENCL | House Enclosure | 4 | * | 1925 | 72.0 |
| | HENCL | House Enclosure | 4 | * | 1925 | 204.0 |
| | BSMTU | House basement unfinished | 2 | * | 1925 | 960.0 |
| | HRPO | House Roof Patio | 4 | * | 1925 | 156.0 |
| | GDET | Detached Garage | 4 | * | 1925 | 1008.0 |
| | CARPTF | Carport W/Floor | 4 | * | 1925 | 400.0 |
| | HENCL | House Enclosure | 4 | * | 1925 | 156.0 |
Sketch
Property Image
Land
| 1 | 1571A | | 0.2700 | 11761.20 | 0.00 | 0.00 | 0.00 | $5,046 | $0 |
| 2 | 2530-1375S | | 1.0000 | 43560.00 | 0.00 | 0.00 | 1.00 | $86,250 | $0 |
Roll Value History
| 2026 | N/A | N/A | N/A | N/A | N/A |
| 2025 | $388,276 | $91,296 | $0 | $479,572 | $479,572 |
| 2024 | $226,996 | $84,876 | $0 | $311,872 | $311,872 |
| 2023 | $217,127 | $75,626 | $0 | $292,753 | $292,753 |
| 2022 | $197,388 | $66,823 | $0 | $264,211 | $264,211 |
Deed and Sales History
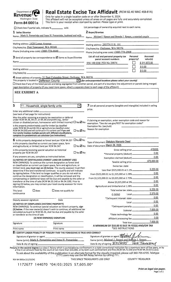
| 1 | 03/28/2025 | SWD | Statutory Warranty Deed | MARK S J POMERINKE | MICHAEL J & BRENDA J SPEARS | | | $475,000.00 | 144070 | |
Payout Agreement
| No payout information available.. |