Property
Account |
| Property ID: | 29904 | Abbreviated Legal Description: | JEFFERSON COUNTY AIRPORT CONDO HANGAR C-2 |
| Parcel # / Geo ID: | 956203002 | Agent Code: | |
| Type: | Real | | |
| Tax Area: | 0211 - 1-49F1E1H2L1 | Land Use Code | 43 |
| Open Space: | N | DFL | N |
| Historic Property: | N | Remodel Property: | N |
| Multi-Family Redevelopment: | N | | |
| Township: | 30N | Section: | 33 |
| Range: | 1W |
Location |
| Address: | | Mapsco: | 028/077 |
| Neighborhood: | CYCLE 4 CONDOMINIUMS - TRI-AREA | Map ID: | |
| Neighborhood CD: | 4900 |
Owner |
| Name: | JOHN J & BARBARA R SOMMER | Owner ID: | 97249 |
| Mailing Address: | 3020 35TH AVE W SEATTLE, WA 98199-2619 | % Ownership: | 100.0000000000% |
| | | Exemptions: | |
Pay Tax Due
Select the appropriate checkbox next to the year to be paid. Multiple years may be selected.
*Convenience Fee not included
Taxes and Assessment Details
Property Tax Information as of
03/10/2026
Click on "Statement Details" to expand or collapse a tax statement.
* Please enter a valid date ** Please enter a valid date *
Statement Details |
| 2026 | 19214 | STATE - STATE LEVY (SCHOOL) | $244.47 | $244.45 | $0.00 | $0.00 | $0.00 | $488.92 |
| 2026 | 19214 | COUNTY - COUNTY LEVIES (CE, DD, VET, MH) | $97.75 | $97.72 | $0.00 | $0.00 | $0.00 | $195.47 |
| 2026 | 19214 | CONSERVE - CONSERVATION FUTURES | $2.93 | $2.93 | $0.00 | $0.00 | $0.00 | $5.86 |
| 2026 | 19214 | COROADS - COUNTY ROADS (ROADS, DIV TO CE) | $78.85 | $78.84 | $0.00 | $0.00 | $0.00 | $157.69 |
| 2026 | 19214 | PORTPT - PORT DISTRICT | $39.48 | $39.47 | $0.00 | $0.00 | $0.00 | $78.95 |
| 2026 | 19214 | PUD1 - PUD #1 | $6.36 | $6.35 | $0.00 | $0.00 | $0.00 | $12.71 |
| 2026 | 19214 | LIB1 - LIBRARY DIST #1 | $30.51 | $30.50 | $0.00 | $0.00 | $0.00 | $61.01 |
| 2026 | 19214 | HD2 - HOSP DIST #2 | $5.70 | $5.70 | $0.00 | $0.00 | $0.00 | $11.40 |
| 2026 | 19214 | SD49 - SCHOOL DIST #49 | $134.57 | $134.56 | $0.00 | $0.00 | $0.00 | $269.13 |
| 2026 | 19214 | FD1 - FIRE DISTRICT #1 | $129.43 | $129.42 | $0.00 | $0.00 | $0.00 | $258.85 |
| 2026 | 19214 | EMS1 - FIRE DIST #1 EMS | $49.76 | $49.76 | $0.00 | $0.00 | $0.00 | $99.52 |
| 2026 | 19214 | JCCD - JC Conservation District | $2.53 | $2.53 | $0.00 | $0.00 | $0.00 | $5.06 |
| 2026 | 19214 | NWA - Noxious Weed Assessment | $2.98 | $2.97 | $0.00 | $0.00 | $0.00 | $5.95 |
| 2026 | 19214 | WAT - Clean Water District | $13.00 | $13.00 | $0.00 | $0.00 | $0.00 | $26.00 |
| 2026 | 19214 | TOTAL: | $838.32 | $838.20 | $0.00 | $0.00 | $0.00 | $1676.52 |
|
| 2026 | 19214 | $838.32 | $838.20 | $0.00 | $0.00 | $0.00 | $1676.52 |
Statement Details |
| 2025 | 19274 | STATE - STATE LEVY (SCHOOL) | $254.98 | $254.98 | $0.00 | $0.00 | $509.96 | $0.00 |
| 2025 | 19274 | COUNTY - COUNTY LEVIES (CE, DD, VET, MH) | $100.28 | $100.25 | $0.00 | $0.00 | $200.53 | $0.00 |
| 2025 | 19274 | CONSERVE - CONSERVATION FUTURES | $3.01 | $3.00 | $0.00 | $0.00 | $6.01 | $0.00 |
| 2025 | 19274 | COROADS - COUNTY ROADS (ROADS, DIV TO CE) | $80.33 | $80.33 | $0.00 | $0.00 | $160.66 | $0.00 |
| 2025 | 19274 | PORTPT - PORT DISTRICT | $40.92 | $40.91 | $0.00 | $0.00 | $81.83 | $0.00 |
| 2025 | 19274 | PUD1 - PUD #1 | $6.56 | $6.56 | $0.00 | $0.00 | $13.12 | $0.00 |
| 2025 | 19274 | LIB1 - LIBRARY DIST #1 | $31.08 | $31.08 | $0.00 | $0.00 | $62.16 | $0.00 |
| 2025 | 19274 | HD2 - HOSP DIST #2 | $5.85 | $5.85 | $0.00 | $0.00 | $11.70 | $0.00 |
| 2025 | 19274 | SD49 - SCHOOL DIST #49 | $136.66 | $136.65 | $0.00 | $0.00 | $273.31 | $0.00 |
| 2025 | 19274 | FD1 - FIRE DISTRICT #1 | $132.32 | $132.31 | $0.00 | $0.00 | $264.63 | $0.00 |
| 2025 | 19274 | EMS1 - FIRE DIST #1 EMS | $50.90 | $50.89 | $0.00 | $0.00 | $101.79 | $0.00 |
| 2025 | 19274 | JCCD - JC Conservation District | $2.53 | $2.53 | $0.00 | $0.00 | $5.06 | $0.00 |
| 2025 | 19274 | NWA - Noxious Weed Assessment | $2.15 | $2.15 | $0.00 | $0.00 | $4.30 | $0.00 |
| 2025 | 19274 | WAT - Clean Water District | $13.00 | $13.00 | $0.00 | $0.00 | $26.00 | $0.00 |
| 2025 | 19274 | TOTAL: | $860.57 | $860.49 | $0.00 | $0.00 | $1721.06 | $0.00 |
|
| 2025 | 19274 | $860.57 | $860.49 | $0.00 | $0.00 | $1721.06 | $0.00 |
Statement Details |
| 2024 | 19311 | STATE - STATE LEVY (SCHOOL) | $243.11 | $243.11 | $0.00 | $0.00 | $486.22 | $0.00 |
| 2024 | 19311 | COUNTY - COUNTY LEVIES (CE, DD, VET, MH) | $104.04 | $104.01 | $0.00 | $0.00 | $208.05 | $0.00 |
| 2024 | 19311 | CONSERVE - CONSERVATION FUTURES | $3.12 | $3.12 | $0.00 | $0.00 | $6.24 | $0.00 |
| 2024 | 19311 | COROADS - COUNTY ROADS (ROADS, DIV TO CE) | $83.71 | $83.70 | $0.00 | $0.00 | $167.41 | $0.00 |
| 2024 | 19311 | PORTPT - PORT DISTRICT | $42.98 | $42.96 | $0.00 | $0.00 | $85.94 | $0.00 |
| 2024 | 19311 | PUD1 - PUD #1 | $6.84 | $6.83 | $0.00 | $0.00 | $13.67 | $0.00 |
| 2024 | 19311 | LIB1 - LIBRARY DIST #1 | $32.39 | $32.38 | $0.00 | $0.00 | $64.77 | $0.00 |
| 2024 | 19311 | HD2 - HOSP DIST #2 | $6.07 | $6.07 | $0.00 | $0.00 | $12.14 | $0.00 |
| 2024 | 19311 | SD49 - SCHOOL DIST #49 | $108.56 | $108.56 | $0.00 | $0.00 | $217.12 | $0.00 |
| 2024 | 19311 | FD1 - FIRE DISTRICT #1 | $137.55 | $137.55 | $0.00 | $0.00 | $275.10 | $0.00 |
| 2024 | 19311 | EMS1 - FIRE DIST #1 EMS | $52.54 | $52.54 | $0.00 | $0.00 | $105.08 | $0.00 |
| 2024 | 19311 | JCCD - JC Conservation District | $2.53 | $2.53 | $0.00 | $0.00 | $5.06 | $0.00 |
| 2024 | 19311 | NWA - Noxious Weed Assessment | $2.15 | $2.15 | $0.00 | $0.00 | $4.30 | $0.00 |
| 2024 | 19311 | WAT - Clean Water District | $12.50 | $12.50 | $0.00 | $0.00 | $25.00 | $0.00 |
| 2024 | 19311 | TOTAL: | $838.09 | $838.01 | $0.00 | $0.00 | $1676.10 | $0.00 |
|
| 2024 | 19311 | $838.09 | $838.01 | $0.00 | $0.00 | $1676.10 | $0.00 |
Statement Details |
| 2023 | 19348 | STATE - STATE LEVY (SCHOOL) | $209.25 | $209.25 | $0.00 | $0.00 | $418.50 | $0.00 |
| 2023 | 19348 | COUNTY - COUNTY LEVIES (CE, DD, VET, MH) | $91.32 | $91.31 | $0.00 | $0.00 | $182.63 | $0.00 |
| 2023 | 19348 | CONSERVE - CONSERVATION FUTURES | $2.74 | $2.74 | $0.00 | $0.00 | $5.48 | $0.00 |
| 2023 | 19348 | COROADS - COUNTY ROADS (ROADS, DIV TO CE) | $73.88 | $73.87 | $0.00 | $0.00 | $147.75 | $0.00 |
| 2023 | 19348 | PORTPT - PORT DISTRICT | $38.47 | $38.46 | $0.00 | $0.00 | $76.93 | $0.00 |
| 2023 | 19348 | PUD1 - PUD #1 | $6.06 | $6.05 | $0.00 | $0.00 | $12.11 | $0.00 |
| 2023 | 19348 | LIB1 - LIBRARY DIST #1 | $28.58 | $28.58 | $0.00 | $0.00 | $57.16 | $0.00 |
| 2023 | 19348 | HD2 - HOSP DIST #2 | $5.33 | $5.32 | $0.00 | $0.00 | $10.65 | $0.00 |
| 2023 | 19348 | SD49 - SCHOOL DIST #49 | $97.82 | $97.81 | $0.00 | $0.00 | $195.63 | $0.00 |
| 2023 | 19348 | FD1 - FIRE DISTRICT #1 | $75.22 | $75.22 | $0.00 | $0.00 | $150.44 | $0.00 |
| 2023 | 19348 | EMS1 - FIRE DIST #1 EMS | $32.00 | $32.00 | $0.00 | $0.00 | $64.00 | $0.00 |
| 2023 | 19348 | JCCD - JC Conservation District | $2.53 | $2.53 | $0.00 | $0.00 | $5.06 | $0.00 |
| 2023 | 19348 | NWA - Noxious Weed Assessment | $2.15 | $2.15 | $0.00 | $0.00 | $4.30 | $0.00 |
| 2023 | 19348 | WAT - Clean Water District | $12.00 | $12.00 | $0.00 | $0.00 | $24.00 | $0.00 |
| 2023 | 19348 | TOTAL: | $677.35 | $677.29 | $0.00 | $0.00 | $1354.64 | $0.00 |
|
| 2023 | 19348 | $677.35 | $677.29 | $0.00 | $0.00 | $1354.64 | $0.00 |
Values
| (+) Improvement Homesite Value: | + | $0 | |
| (+) Improvement Non-Homesite Value: | + | $212,660 | |
| (+) Land Homesite Value: | + | $0 | |
| (+) Land Non-Homesite Value: | + | $0 | |
| (+) Curr Use (HS): | + | $0 | $0 |
| (+) Curr Use (NHS): | + | $0 | $0 |
| | | -------------------------- | |
| (=) Market Value: | = | $212,660 | |
| (–) Productivity Loss: | – | $0 | |
| | | -------------------------- | |
| (=) Subtotal: | = | $212,660 | |
| (+) Senior Appraised Value: | + | $0 | |
| (+) Non-Senior Appraised Value: | + | $212,660 | |
| | | -------------------------- | |
| (=) Total Appraised Value: | = | $212,660 | |
| (–) Senior Exemption Loss: | – | $0 | |
| (–) Exemption Loss: | – | $0 | |
| | | -------------------------- | |
| (=) Taxable Value: | = | $212,660 | |
Taxing Jurisdiction
| Owner: | JOHN J & BARBARA R SOMMER | | |
| % Ownership: | 100.0000000000% | | |
| Total Value: | $212,660 | | |
| Tax Area: | 0211 - 1-49F1E1H2L1 |
| CE | COUNTY CURRENT EXPENSE | 0.9034619479 | $212,660 | $212,660 | $192.13 | | |
| CNTYDD | DEVELOPMENTAL DISABILITIES | 0.0052121823 | $212,660 | $212,660 | $1.11 | | |
| CNTYVET | VETERANS RELIEF | 0.0052777810 | $212,660 | $212,660 | $1.12 | | |
| MENTAL | MENTAL HEALTH | 0.0052121823 | $212,660 | $212,660 | $1.11 | | |
| ROADS | COUNTY ROADS | 0.7415066410 | $212,660 | $212,660 | $157.69 | | |
| ROADSCU | COUNTY ROADS TO CUR EXP | 0.0000000000 | $212,660 | $212,660 | $0.00 | | |
| HOSP2CASH | HOSP DIST #2 GENERAL | 0.0536075306 | $212,660 | $212,660 | $11.40 | | |
| SCH49CP | SCHOOL DIST #49 CAP PROJ | 0.6279093905 | $212,660 | $212,660 | $133.53 | | |
| SCH49MO | SCHOOL DIST #49 EP & O | 0.6376483602 | $212,660 | $212,660 | $135.60 | | |
| CONSERVE | CONSERVATION FUTURES | 0.0275621078 | $212,660 | $212,660 | $5.86 | | |
| EMS1 | FIRE DIST #1 EMS | 0.4679948282 | $212,660 | $212,660 | $99.52 | | |
| FD1 | FIRE DIST #1 GENERAL | 1.2171942929 | $212,660 | $212,660 | $258.85 | | |
| LIB1 | LIBRARY DIST #1 GENERAL | 0.2868827388 | $212,660 | $212,660 | $61.01 | | |
| PORTPT | PORT OF PT GENERAL | 0.1134941229 | $212,660 | $212,660 | $24.14 | | |
| PORTPTIDD | PORT OF PT IDD 2019 | 0.2577346692 | $212,660 | $212,660 | $54.81 | | |
| PUD1 | PUD #1 GENERAL | 0.0597888892 | $212,660 | $212,660 | $12.71 | | |
| STATE | STATE SCHOOL PART 1 | 1.4940692947 | $212,660 | $212,660 | $317.73 | | |
| STATE2 | STATE SCHOOL PART 2 | 0.8050170049 | $212,660 | $212,660 | $171.19 | | |
| | Total Tax Rate: | 7.7095739644 | | | | | |
| | | | | Taxes w/Current Exemptions: | $1,639.51 | | |
| | | | | Taxes w/o Exemptions: | $1,639.51 | | |
Improvement / Building
| Improvement #1: | Commercial/Industrial/Government Bldg | State Code: | 43 | 3038.0 sqft | Value: | $212,660 |
| Exterior Wall: | METAL | Floor Construction: | CONCR | | Foundation: | CONPR | Interior Finish: | UNFIN | | Roof Cover: | METAL |   |   |
|
Sketch
Property Image
Land
No land segments exist for this property.
Roll Value History
| 2026 | N/A | N/A | N/A | N/A | N/A |
| 2025 | $212,660 | $0 | $0 | $212,660 | $212,660 |
| 2024 | $212,660 | $0 | $0 | $212,660 | $212,660 |
| 2023 | $210,154 | $0 | $0 | $210,154 | $210,154 |
| 2022 | $177,770 | $0 | $0 | $177,770 | $177,770 |
Deed and Sales History
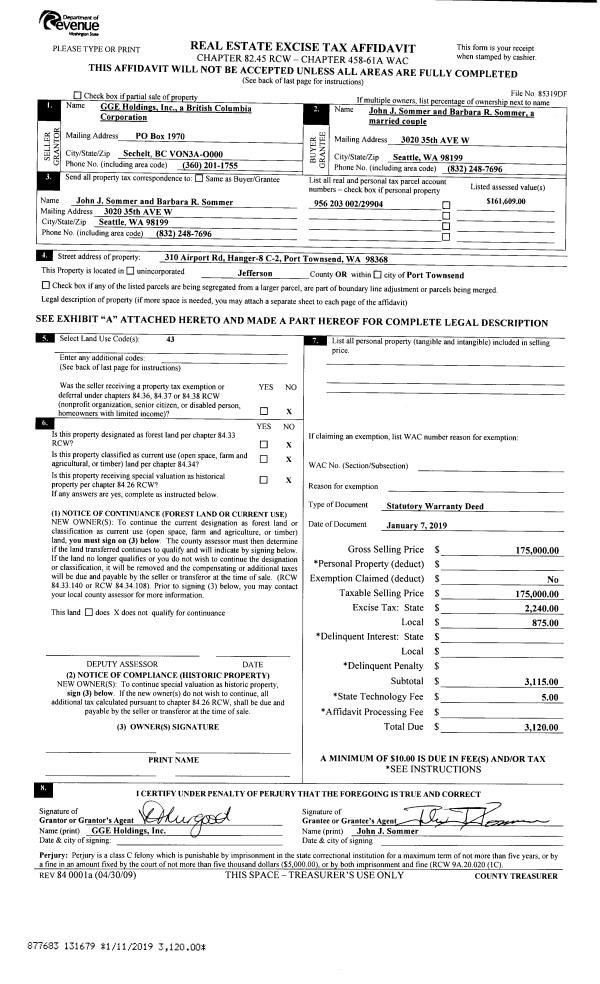
| 1 | 01/07/2019 | SWD | Statutory Warranty Deed | GGE HOLDINGS INC | JOHN J & BARBARA R SOMMER | | | $175,000.00 | 131679 | |
| 2 | 01/07/2019 | SWD | Statutory Warranty Deed | | | | | | 131731 | |
| 3 | 09/28/2016 | SWD | Statutory Warranty Deed | RICHARD L SMITH TRUSTEE | GGE HOLDINGS INC | | | $175,000.00 | 126338 | |
| 4 | 05/24/2009 | SWD | Statutory Warranty Deed | NW HANGARS LLC | SMITH-WAAG FAMILY TRUST | | | $190,000.00 | 112988 | 0 |
Payout Agreement
| No payout information available.. |