Property
Account |
| Property ID: | 30006 | Abbreviated Legal Description: | HARRISBURG BLK 8 LOTS 7 & 8 |
| Parcel # / Geo ID: | 956700803 | Agent Code: | |
| Type: | Real | | |
| Tax Area: | 0211 - 1-49F1E1H2L1 | Land Use Code | 11 |
| Open Space: | N | DFL | N |
| Historic Property: | N | Remodel Property: | N |
| Multi-Family Redevelopment: | N | | |
| Township: | 29N | Section: | 2 |
| Range: | 1W |
Location |
| Address: | 110 STEVENS ST PORT HADLOCK, WA 98339 | Mapsco: | 030/035 |
| Neighborhood: | CLEARVIEW; CORREIA; GARFIELD; HARRISBURG/HAR. CAL; HILLCREST | Map ID: | |
| Neighborhood CD: | 4211 |
Owner |
| Name: | ANTHONY VAUGHN | Owner ID: | 98250 |
| Mailing Address: | 11968 AIRPORT CUTOFF RD PORT TOWNSEND, WA 98368 | % Ownership: | 100.0000000000% |
| | | Exemptions: | |
Pay Tax Due
Select the appropriate checkbox next to the year to be paid. Multiple years may be selected.
*Convenience Fee not included
Taxes and Assessment Details
Property Tax Information as of
03/11/2026
Click on "Statement Details" to expand or collapse a tax statement.
* Please enter a valid date ** Please enter a valid date *
Statement Details |
| 2026 | 19316 | STATE - STATE LEVY (SCHOOL) | $138.93 | $138.92 | $0.00 | $0.00 | $0.00 | $277.85 |
| 2026 | 19316 | COUNTY - COUNTY LEVIES (CE, DD, VET, MH) | $55.55 | $55.53 | $0.00 | $0.00 | $0.00 | $111.08 |
| 2026 | 19316 | CONSERVE - CONSERVATION FUTURES | $1.67 | $1.66 | $0.00 | $0.00 | $0.00 | $3.33 |
| 2026 | 19316 | COROADS - COUNTY ROADS (ROADS, DIV TO CE) | $44.81 | $44.80 | $0.00 | $0.00 | $0.00 | $89.61 |
| 2026 | 19316 | PORTPT - PORT DISTRICT | $22.44 | $22.43 | $0.00 | $0.00 | $0.00 | $44.87 |
| 2026 | 19316 | PUD1 - PUD #1 | $3.62 | $3.61 | $0.00 | $0.00 | $0.00 | $7.23 |
| 2026 | 19316 | LIB1 - LIBRARY DIST #1 | $17.34 | $17.33 | $0.00 | $0.00 | $0.00 | $34.67 |
| 2026 | 19316 | HD2 - HOSP DIST #2 | $3.24 | $3.24 | $0.00 | $0.00 | $0.00 | $6.48 |
| 2026 | 19316 | SD49 - SCHOOL DIST #49 | $76.47 | $76.47 | $0.00 | $0.00 | $0.00 | $152.94 |
| 2026 | 19316 | FD1 - FIRE DISTRICT #1 | $73.55 | $73.55 | $0.00 | $0.00 | $0.00 | $147.10 |
| 2026 | 19316 | EMS1 - FIRE DIST #1 EMS | $28.28 | $28.28 | $0.00 | $0.00 | $0.00 | $56.56 |
| 2026 | 19316 | JCCD - JC Conservation District | $2.55 | $2.55 | $0.00 | $0.00 | $0.00 | $5.10 |
| 2026 | 19316 | NWA - Noxious Weed Assessment | $2.98 | $2.97 | $0.00 | $0.00 | $0.00 | $5.95 |
| 2026 | 19316 | OSS - On Site Septic | $23.10 | $23.10 | $0.00 | $0.00 | $0.00 | $46.20 |
| 2026 | 19316 | WAT - Clean Water District | $13.00 | $13.00 | $0.00 | $0.00 | $0.00 | $26.00 |
| 2026 | 19316 | TOTAL: | $507.53 | $507.44 | $0.00 | $0.00 | $0.00 | $1014.97 |
|
| 2026 | 19316 | $507.53 | $507.44 | $0.00 | $0.00 | $0.00 | $1014.97 |
Statement Details |
| 2025 | 19376 | STATE - STATE LEVY (SCHOOL) | $138.40 | $138.38 | $0.00 | $0.00 | $276.78 | $0.00 |
| 2025 | 19376 | COUNTY - COUNTY LEVIES (CE, DD, VET, MH) | $54.43 | $54.42 | $0.00 | $0.00 | $108.85 | $0.00 |
| 2025 | 19376 | CONSERVE - CONSERVATION FUTURES | $1.63 | $1.63 | $0.00 | $0.00 | $3.26 | $0.00 |
| 2025 | 19376 | COROADS - COUNTY ROADS (ROADS, DIV TO CE) | $43.61 | $43.59 | $0.00 | $0.00 | $87.20 | $0.00 |
| 2025 | 19376 | PORTPT - PORT DISTRICT | $22.21 | $22.20 | $0.00 | $0.00 | $44.41 | $0.00 |
| 2025 | 19376 | PUD1 - PUD #1 | $3.56 | $3.56 | $0.00 | $0.00 | $7.12 | $0.00 |
| 2025 | 19376 | LIB1 - LIBRARY DIST #1 | $16.87 | $16.87 | $0.00 | $0.00 | $33.74 | $0.00 |
| 2025 | 19376 | HD2 - HOSP DIST #2 | $3.18 | $3.17 | $0.00 | $0.00 | $6.35 | $0.00 |
| 2025 | 19376 | SD49 - SCHOOL DIST #49 | $74.17 | $74.17 | $0.00 | $0.00 | $148.34 | $0.00 |
| 2025 | 19376 | FD1 - FIRE DISTRICT #1 | $71.82 | $71.81 | $0.00 | $0.00 | $143.63 | $0.00 |
| 2025 | 19376 | EMS1 - FIRE DIST #1 EMS | $27.62 | $27.62 | $0.00 | $0.00 | $55.24 | $0.00 |
| 2025 | 19376 | JCCD - JC Conservation District | $2.55 | $2.55 | $0.00 | $0.00 | $5.10 | $0.00 |
| 2025 | 19376 | NWA - Noxious Weed Assessment | $2.15 | $2.15 | $0.00 | $0.00 | $4.30 | $0.00 |
| 2025 | 19376 | OSS - On Site Septic | $21.50 | $21.50 | $0.00 | $0.00 | $43.00 | $0.00 |
| 2025 | 19376 | WAT - Clean Water District | $13.00 | $13.00 | $0.00 | $0.00 | $26.00 | $0.00 |
| 2025 | 19376 | TOTAL: | $496.70 | $496.62 | $0.00 | $0.00 | $993.32 | $0.00 |
|
| 2025 | 19376 | $496.70 | $496.62 | $0.00 | $0.00 | $993.32 | $0.00 |
Statement Details |
| 2024 | 19413 | STATE - STATE LEVY (SCHOOL) | $121.46 | $121.45 | $0.00 | $0.00 | $242.91 | $0.00 |
| 2024 | 19413 | COUNTY - COUNTY LEVIES (CE, DD, VET, MH) | $51.99 | $51.96 | $0.00 | $0.00 | $103.95 | $0.00 |
| 2024 | 19413 | CONSERVE - CONSERVATION FUTURES | $1.56 | $1.56 | $0.00 | $0.00 | $3.12 | $0.00 |
| 2024 | 19413 | COROADS - COUNTY ROADS (ROADS, DIV TO CE) | $41.82 | $41.82 | $0.00 | $0.00 | $83.64 | $0.00 |
| 2024 | 19413 | PORTPT - PORT DISTRICT | $21.47 | $21.46 | $0.00 | $0.00 | $42.93 | $0.00 |
| 2024 | 19413 | PUD1 - PUD #1 | $3.42 | $3.41 | $0.00 | $0.00 | $6.83 | $0.00 |
| 2024 | 19413 | LIB1 - LIBRARY DIST #1 | $16.18 | $16.18 | $0.00 | $0.00 | $32.36 | $0.00 |
| 2024 | 19413 | HD2 - HOSP DIST #2 | $3.03 | $3.03 | $0.00 | $0.00 | $6.06 | $0.00 |
| 2024 | 19413 | SD49 - SCHOOL DIST #49 | $54.24 | $54.23 | $0.00 | $0.00 | $108.47 | $0.00 |
| 2024 | 19413 | FD1 - FIRE DISTRICT #1 | $68.72 | $68.72 | $0.00 | $0.00 | $137.44 | $0.00 |
| 2024 | 19413 | EMS1 - FIRE DIST #1 EMS | $26.25 | $26.25 | $0.00 | $0.00 | $52.50 | $0.00 |
| 2024 | 19413 | JCCD - JC Conservation District | $2.55 | $2.55 | $0.00 | $0.00 | $5.10 | $0.00 |
| 2024 | 19413 | NWA - Noxious Weed Assessment | $2.15 | $2.15 | $0.00 | $0.00 | $4.30 | $0.00 |
| 2024 | 19413 | OSS - On Site Septic | $21.00 | $21.00 | $0.00 | $0.00 | $42.00 | $0.00 |
| 2024 | 19413 | WAT - Clean Water District | $12.50 | $12.50 | $0.00 | $0.00 | $25.00 | $0.00 |
| 2024 | 19413 | TOTAL: | $448.34 | $448.27 | $0.00 | $0.00 | $896.61 | $0.00 |
|
| 2024 | 19413 | $448.34 | $448.27 | $0.00 | $0.00 | $896.61 | $0.00 |
Statement Details |
| 2023 | 19450 | STATE - STATE LEVY (SCHOOL) | $100.07 | $100.06 | $0.00 | $0.00 | $200.13 | $0.00 |
| 2023 | 19450 | COUNTY - COUNTY LEVIES (CE, DD, VET, MH) | $43.67 | $43.67 | $0.00 | $0.00 | $87.34 | $0.00 |
| 2023 | 19450 | CONSERVE - CONSERVATION FUTURES | $1.31 | $1.31 | $0.00 | $0.00 | $2.62 | $0.00 |
| 2023 | 19450 | COROADS - COUNTY ROADS (ROADS, DIV TO CE) | $35.33 | $35.32 | $0.00 | $0.00 | $70.65 | $0.00 |
| 2023 | 19450 | PORTPT - PORT DISTRICT | $18.39 | $18.39 | $0.00 | $0.00 | $36.78 | $0.00 |
| 2023 | 19450 | PUD1 - PUD #1 | $2.90 | $2.89 | $0.00 | $0.00 | $5.79 | $0.00 |
| 2023 | 19450 | LIB1 - LIBRARY DIST #1 | $13.67 | $13.67 | $0.00 | $0.00 | $27.34 | $0.00 |
| 2023 | 19450 | HD2 - HOSP DIST #2 | $2.55 | $2.54 | $0.00 | $0.00 | $5.09 | $0.00 |
| 2023 | 19450 | SD49 - SCHOOL DIST #49 | $46.78 | $46.77 | $0.00 | $0.00 | $93.55 | $0.00 |
| 2023 | 19450 | FD1 - FIRE DISTRICT #1 | $35.97 | $35.97 | $0.00 | $0.00 | $71.94 | $0.00 |
| 2023 | 19450 | EMS1 - FIRE DIST #1 EMS | $15.30 | $15.30 | $0.00 | $0.00 | $30.60 | $0.00 |
| 2023 | 19450 | JCCD - JC Conservation District | $2.55 | $2.55 | $0.00 | $0.00 | $5.10 | $0.00 |
| 2023 | 19450 | NWA - Noxious Weed Assessment | $2.15 | $2.15 | $0.00 | $0.00 | $4.30 | $0.00 |
| 2023 | 19450 | OSS - On Site Septic | $20.50 | $20.50 | $0.00 | $0.00 | $41.00 | $0.00 |
| 2023 | 19450 | WAT - Clean Water District | $12.00 | $12.00 | $0.00 | $0.00 | $24.00 | $0.00 |
| 2023 | 19450 | TOTAL: | $353.14 | $353.09 | $0.00 | $0.00 | $706.23 | $0.00 |
|
| 2023 | 19450 | $353.14 | $353.09 | $0.00 | $0.00 | $706.23 | $0.00 |
Values
| (+) Improvement Homesite Value: | + | $32,849 | |
| (+) Improvement Non-Homesite Value: | + | $0 | |
| (+) Land Homesite Value: | + | $88,000 | |
| (+) Land Non-Homesite Value: | + | $0 | |
| (+) Curr Use (HS): | + | $0 | $0 |
| (+) Curr Use (NHS): | + | $0 | $0 |
| | | -------------------------- | |
| (=) Market Value: | = | $120,849 | |
| (–) Productivity Loss: | – | $0 | |
| | | -------------------------- | |
| (=) Subtotal: | = | $120,849 | |
| (+) Senior Appraised Value: | + | $0 | |
| (+) Non-Senior Appraised Value: | + | $120,849 | |
| | | -------------------------- | |
| (=) Total Appraised Value: | = | $120,849 | |
| (–) Senior Exemption Loss: | – | $0 | |
| (–) Exemption Loss: | – | $0 | |
| | | -------------------------- | |
| (=) Taxable Value: | = | $120,849 | |
Taxing Jurisdiction
| Owner: | ANTHONY VAUGHN | | |
| % Ownership: | 100.0000000000% | | |
| Total Value: | $120,849 | | |
| Tax Area: | 0211 - 1-49F1E1H2L1 |
| CE | COUNTY CURRENT EXPENSE | 0.9034619479 | $120,849 | $120,849 | $109.18 | | |
| CNTYDD | DEVELOPMENTAL DISABILITIES | 0.0052121823 | $120,849 | $120,849 | $0.63 | | |
| CNTYVET | VETERANS RELIEF | 0.0052777810 | $120,849 | $120,849 | $0.64 | | |
| MENTAL | MENTAL HEALTH | 0.0052121823 | $120,849 | $120,849 | $0.63 | | |
| ROADS | COUNTY ROADS | 0.7415066410 | $120,849 | $120,849 | $89.61 | | |
| ROADSCU | COUNTY ROADS TO CUR EXP | 0.0000000000 | $120,849 | $120,849 | $0.00 | | |
| HOSP2CASH | HOSP DIST #2 GENERAL | 0.0536075306 | $120,849 | $120,849 | $6.48 | | |
| SCH49CP | SCHOOL DIST #49 CAP PROJ | 0.6279093905 | $120,849 | $120,849 | $75.88 | | |
| SCH49MO | SCHOOL DIST #49 EP & O | 0.6376483602 | $120,849 | $120,849 | $77.06 | | |
| CONSERVE | CONSERVATION FUTURES | 0.0275621078 | $120,849 | $120,849 | $3.33 | | |
| EMS1 | FIRE DIST #1 EMS | 0.4679948282 | $120,849 | $120,849 | $56.56 | | |
| FD1 | FIRE DIST #1 GENERAL | 1.2171942929 | $120,849 | $120,849 | $147.10 | | |
| LIB1 | LIBRARY DIST #1 GENERAL | 0.2868827388 | $120,849 | $120,849 | $34.67 | | |
| PORTPT | PORT OF PT GENERAL | 0.1134941229 | $120,849 | $120,849 | $13.72 | | |
| PORTPTIDD | PORT OF PT IDD 2019 | 0.2577346692 | $120,849 | $120,849 | $31.15 | | |
| PUD1 | PUD #1 GENERAL | 0.0597888892 | $120,849 | $120,849 | $7.23 | | |
| STATE | STATE SCHOOL PART 1 | 1.4940692947 | $120,849 | $120,849 | $180.56 | | |
| STATE2 | STATE SCHOOL PART 2 | 0.8050170049 | $120,849 | $120,849 | $97.29 | | |
| | Total Tax Rate: | 7.7095739644 | | | | | |
| | | | | Taxes w/Current Exemptions: | $931.72 | | |
| | | | | Taxes w/o Exemptions: | $931.72 | | |
Improvement / Building
| Improvement #1: | Manufactured Home | State Code: | 11 | 648.0 sqft | Value: | $32,849 |
| Bathrooms (#): | 1 (FULL) | Bedrooms (#): | 2 | | Exterior Wall: | METAL | Fireplace: | WD ST-AVG | | Floor Construction: | FRAME | Foundation: | PO&BL | | Heating/Cooling: | ELBB | Inside Verify: | YES-FIX | | Roof Cover: | METAL |   |   |
|
| | Type | Description | Class CD | Sub Class CD | Year Built | Area |
| | MA | Main Area | 3 | MSG | 1970 | 648.0 |
| | MDECK | MH Deck | 2 | * | 1970 | 220.0 |
| | ADDN | Addition (Table Not Dep) | 3 | * | 1970 | 320.0 |
| | MSKIRT_WD | MH Skirting - Wood | 2 | * | 1970 | 132.0 |
| | SHED | Shed (Table Not Dep) | 3 | * | 1970 | 200.0 |
Sketch
| No sketches available for this property. |
Property Image
Land
| 1 | 4211-1285S | | 0.0000 | 0.00 | 0.00 | 0.00 | 1.00 | $88,000 | $0 |
Roll Value History
| 2026 | N/A | N/A | N/A | N/A | N/A |
| 2025 | $32,849 | $88,000 | $0 | $120,849 | $120,849 |
| 2024 | $31,420 | $84,000 | $0 | $115,420 | $115,420 |
| 2023 | $29,992 | $75,000 | $0 | $104,992 | $104,992 |
| 2022 | $25,010 | $60,000 | $0 | $85,010 | $85,010 |
Deed and Sales History
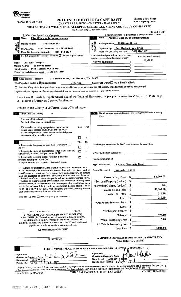
| 1 | 11/01/2017 | SWD | Statutory Warranty Deed | ELISA WELCH | ANTHONY VAUGHN | | | $56,000.00 | 128930 | |
| 2 | 10/07/2016 | LOP | Lack of Probate | PATRICIA L FLOYD | ELISA WELCH | | | | 126395 | |
| 3 | 06/02/1994 | SWD | Statutory Warranty Deed | ARTHUR, JOYCE L | FLOYD, PATRICIA L | 0 | 0 | $32,000.00 | 74284 | 0 |
| 4 | 03/12/1993 | QCD | Quit Claim Deed | FOWLER, JOHN/BRITTANY S | ARTHUR, JOYCE L | 0 | 0 | $0.00 | 70622 | 0 |
Payout Agreement
| No payout information available.. |