Property
Account |
| Property ID: | 30024 | Abbreviated Legal Description: | HARRISBURG BLK 12 LOTS 1 & 2 W/PTN S/VAC MONTGOMERY ST ADJ |
| Parcel # / Geo ID: | 956701201 | Agent Code: | |
| Type: | Real | | |
| Tax Area: | 0211 - 1-49F1E1H2L1 | Land Use Code | 11 |
| Open Space: | N | DFL | N |
| Historic Property: | N | Remodel Property: | N |
| Multi-Family Redevelopment: | N | | |
| Township: | 29N | Section: | 2 |
| Range: | 1W |
Location |
| Address: | 81 N MAPLE ST PORT HADLOCK, WA 98339 | Mapsco: | 030/052 |
| Neighborhood: | CLEARVIEW; CORREIA; GARFIELD; HARRISBURG/HAR. CAL; HILLCREST | Map ID: | |
| Neighborhood CD: | 4211 |
Owner |
| Name: | JONNI GRAYBEAL LIVING TRUST | Owner ID: | 112433 |
| Mailing Address: | JONNI GRABEAL TRUSTEE 81 N MAPLE ST PORT HADLOCK, WA 98339-9615 | % Ownership: | 100.0000000000% |
| | | Exemptions: | |
Pay Tax Due
Select the appropriate checkbox next to the year to be paid. Multiple years may be selected.
*Convenience Fee not included
Taxes and Assessment Details
Property Tax Information as of
03/12/2026
Click on "Statement Details" to expand or collapse a tax statement.
* Please enter a valid date ** Please enter a valid date *
Statement Details |
| 2026 | 19334 | STATE - STATE LEVY (SCHOOL) | $514.10 | $514.08 | $0.00 | $0.00 | $0.00 | $1028.18 |
| 2026 | 19334 | COUNTY - COUNTY LEVIES (CE, DD, VET, MH) | $205.54 | $205.52 | $0.00 | $0.00 | $0.00 | $411.06 |
| 2026 | 19334 | CONSERVE - CONSERVATION FUTURES | $6.17 | $6.16 | $0.00 | $0.00 | $0.00 | $12.33 |
| 2026 | 19334 | COROADS - COUNTY ROADS (ROADS, DIV TO CE) | $165.81 | $165.80 | $0.00 | $0.00 | $0.00 | $331.61 |
| 2026 | 19334 | PORTPT - PORT DISTRICT | $83.01 | $83.01 | $0.00 | $0.00 | $0.00 | $166.02 |
| 2026 | 19334 | PUD1 - PUD #1 | $13.37 | $13.37 | $0.00 | $0.00 | $0.00 | $26.74 |
| 2026 | 19334 | LIB1 - LIBRARY DIST #1 | $64.15 | $64.15 | $0.00 | $0.00 | $0.00 | $128.30 |
| 2026 | 19334 | HD2 - HOSP DIST #2 | $11.99 | $11.98 | $0.00 | $0.00 | $0.00 | $23.97 |
| 2026 | 19334 | SD49 - SCHOOL DIST #49 | $282.99 | $282.98 | $0.00 | $0.00 | $0.00 | $565.97 |
| 2026 | 19334 | FD1 - FIRE DISTRICT #1 | $272.18 | $272.17 | $0.00 | $0.00 | $0.00 | $544.35 |
| 2026 | 19334 | EMS1 - FIRE DIST #1 EMS | $104.65 | $104.64 | $0.00 | $0.00 | $0.00 | $209.29 |
| 2026 | 19334 | JCCD - JC Conservation District | $2.55 | $2.55 | $0.00 | $0.00 | $0.00 | $5.10 |
| 2026 | 19334 | NWA - Noxious Weed Assessment | $2.98 | $2.97 | $0.00 | $0.00 | $0.00 | $5.95 |
| 2026 | 19334 | OSS - On Site Septic | $23.10 | $23.10 | $0.00 | $0.00 | $0.00 | $46.20 |
| 2026 | 19334 | WAT - Clean Water District | $13.00 | $13.00 | $0.00 | $0.00 | $0.00 | $26.00 |
| 2026 | 19334 | TOTAL: | $1765.59 | $1765.48 | $0.00 | $0.00 | $0.00 | $3531.07 |
|
| 2026 | 19334 | $1765.59 | $1765.48 | $0.00 | $0.00 | $0.00 | $3531.07 |
Statement Details |
| 2025 | 19394 | STATE - STATE LEVY (SCHOOL) | $512.68 | $512.68 | $0.00 | $0.00 | $1025.36 | $0.00 |
| 2025 | 19394 | COUNTY - COUNTY LEVIES (CE, DD, VET, MH) | $201.62 | $201.60 | $0.00 | $0.00 | $403.22 | $0.00 |
| 2025 | 19394 | CONSERVE - CONSERVATION FUTURES | $6.05 | $6.04 | $0.00 | $0.00 | $12.09 | $0.00 |
| 2025 | 19394 | COROADS - COUNTY ROADS (ROADS, DIV TO CE) | $161.53 | $161.52 | $0.00 | $0.00 | $323.05 | $0.00 |
| 2025 | 19394 | PORTPT - PORT DISTRICT | $82.28 | $82.26 | $0.00 | $0.00 | $164.54 | $0.00 |
| 2025 | 19394 | PUD1 - PUD #1 | $13.19 | $13.19 | $0.00 | $0.00 | $26.38 | $0.00 |
| 2025 | 19394 | LIB1 - LIBRARY DIST #1 | $62.49 | $62.49 | $0.00 | $0.00 | $124.98 | $0.00 |
| 2025 | 19394 | HD2 - HOSP DIST #2 | $11.76 | $11.76 | $0.00 | $0.00 | $23.52 | $0.00 |
| 2025 | 19394 | SD49 - SCHOOL DIST #49 | $274.77 | $274.76 | $0.00 | $0.00 | $549.53 | $0.00 |
| 2025 | 19394 | FD1 - FIRE DISTRICT #1 | $266.05 | $266.04 | $0.00 | $0.00 | $532.09 | $0.00 |
| 2025 | 19394 | EMS1 - FIRE DIST #1 EMS | $102.33 | $102.33 | $0.00 | $0.00 | $204.66 | $0.00 |
| 2025 | 19394 | JCCD - JC Conservation District | $2.55 | $2.55 | $0.00 | $0.00 | $5.10 | $0.00 |
| 2025 | 19394 | NWA - Noxious Weed Assessment | $2.15 | $2.15 | $0.00 | $0.00 | $4.30 | $0.00 |
| 2025 | 19394 | OSS - On Site Septic | $21.50 | $21.50 | $0.00 | $0.00 | $43.00 | $0.00 |
| 2025 | 19394 | WAT - Clean Water District | $13.00 | $13.00 | $0.00 | $0.00 | $26.00 | $0.00 |
| 2025 | 19394 | TOTAL: | $1733.95 | $1733.87 | $0.00 | $0.00 | $3467.82 | $0.00 |
|
| 2025 | 19394 | $1733.95 | $1733.87 | $0.00 | $0.00 | $3467.82 | $0.00 |
Statement Details |
| 2024 | 19431 | STATE - STATE LEVY (SCHOOL) | $375.52 | $375.50 | $0.00 | $0.00 | $751.02 | $0.00 |
| 2024 | 19431 | COUNTY - COUNTY LEVIES (CE, DD, VET, MH) | $160.69 | $160.67 | $0.00 | $0.00 | $321.36 | $0.00 |
| 2024 | 19431 | CONSERVE - CONSERVATION FUTURES | $4.82 | $4.82 | $0.00 | $0.00 | $9.64 | $0.00 |
| 2024 | 19431 | COROADS - COUNTY ROADS (ROADS, DIV TO CE) | $129.30 | $129.29 | $0.00 | $0.00 | $258.59 | $0.00 |
| 2024 | 19431 | PORTPT - PORT DISTRICT | $66.37 | $66.37 | $0.00 | $0.00 | $132.74 | $0.00 |
| 2024 | 19431 | PUD1 - PUD #1 | $10.56 | $10.55 | $0.00 | $0.00 | $21.11 | $0.00 |
| 2024 | 19431 | LIB1 - LIBRARY DIST #1 | $50.03 | $50.02 | $0.00 | $0.00 | $100.05 | $0.00 |
| 2024 | 19431 | HD2 - HOSP DIST #2 | $9.38 | $9.37 | $0.00 | $0.00 | $18.75 | $0.00 |
| 2024 | 19431 | SD49 - SCHOOL DIST #49 | $167.69 | $167.68 | $0.00 | $0.00 | $335.37 | $0.00 |
| 2024 | 19431 | FD1 - FIRE DISTRICT #1 | $212.46 | $212.46 | $0.00 | $0.00 | $424.92 | $0.00 |
| 2024 | 19431 | EMS1 - FIRE DIST #1 EMS | $81.16 | $81.15 | $0.00 | $0.00 | $162.31 | $0.00 |
| 2024 | 19431 | JCCD - JC Conservation District | $2.55 | $2.55 | $0.00 | $0.00 | $5.10 | $0.00 |
| 2024 | 19431 | NWA - Noxious Weed Assessment | $2.15 | $2.15 | $0.00 | $0.00 | $4.30 | $0.00 |
| 2024 | 19431 | OSS - On Site Septic | $21.00 | $21.00 | $0.00 | $0.00 | $42.00 | $0.00 |
| 2024 | 19431 | WAT - Clean Water District | $12.50 | $12.50 | $0.00 | $0.00 | $25.00 | $0.00 |
| 2024 | 19431 | TOTAL: | $1306.18 | $1306.08 | $0.00 | $0.00 | $2612.26 | $0.00 |
|
| 2024 | 19431 | $1306.18 | $1306.08 | $0.00 | $0.00 | $2612.26 | $0.00 |
Statement Details |
| 2023 | 19468 | STATE - STATE LEVY (SCHOOL) | $331.41 | $331.41 | $0.00 | $0.00 | $662.82 | $0.00 |
| 2023 | 19468 | COUNTY - COUNTY LEVIES (CE, DD, VET, MH) | $144.62 | $144.61 | $0.00 | $0.00 | $289.23 | $0.00 |
| 2023 | 19468 | CONSERVE - CONSERVATION FUTURES | $4.34 | $4.33 | $0.00 | $0.00 | $8.67 | $0.00 |
| 2023 | 19468 | COROADS - COUNTY ROADS (ROADS, DIV TO CE) | $117.01 | $117.00 | $0.00 | $0.00 | $234.01 | $0.00 |
| 2023 | 19468 | PORTPT - PORT DISTRICT | $60.93 | $60.91 | $0.00 | $0.00 | $121.84 | $0.00 |
| 2023 | 19468 | PUD1 - PUD #1 | $9.59 | $9.58 | $0.00 | $0.00 | $19.17 | $0.00 |
| 2023 | 19468 | LIB1 - LIBRARY DIST #1 | $45.27 | $45.27 | $0.00 | $0.00 | $90.54 | $0.00 |
| 2023 | 19468 | HD2 - HOSP DIST #2 | $8.45 | $8.43 | $0.00 | $0.00 | $16.88 | $0.00 |
| 2023 | 19468 | SD49 - SCHOOL DIST #49 | $154.93 | $154.91 | $0.00 | $0.00 | $309.84 | $0.00 |
| 2023 | 19468 | FD1 - FIRE DISTRICT #1 | $119.14 | $119.13 | $0.00 | $0.00 | $238.27 | $0.00 |
| 2023 | 19468 | EMS1 - FIRE DIST #1 EMS | $50.68 | $50.68 | $0.00 | $0.00 | $101.36 | $0.00 |
| 2023 | 19468 | JCCD - JC Conservation District | $2.55 | $2.55 | $0.00 | $0.00 | $5.10 | $0.00 |
| 2023 | 19468 | NWA - Noxious Weed Assessment | $2.15 | $2.15 | $0.00 | $0.00 | $4.30 | $0.00 |
| 2023 | 19468 | OSS - On Site Septic | $20.50 | $20.50 | $0.00 | $0.00 | $41.00 | $0.00 |
| 2023 | 19468 | WAT - Clean Water District | $12.00 | $12.00 | $0.00 | $0.00 | $24.00 | $0.00 |
| 2023 | 19468 | TOTAL: | $1083.57 | $1083.46 | $0.00 | $0.00 | $2167.03 | $0.00 |
|
| 2023 | 19468 | $1083.57 | $1083.46 | $0.00 | $0.00 | $2167.03 | $0.00 |
Values
| (+) Improvement Homesite Value: | + | $0 | |
| (+) Improvement Non-Homesite Value: | + | $355,253 | |
| (+) Land Homesite Value: | + | $0 | |
| (+) Land Non-Homesite Value: | + | $91,960 | |
| (+) Curr Use (HS): | + | $0 | $0 |
| (+) Curr Use (NHS): | + | $0 | $0 |
| | | -------------------------- | |
| (=) Market Value: | = | $447,213 | |
| (–) Productivity Loss: | – | $0 | |
| | | -------------------------- | |
| (=) Subtotal: | = | $447,213 | |
| (+) Senior Appraised Value: | + | $0 | |
| (+) Non-Senior Appraised Value: | + | $447,213 | |
| | | -------------------------- | |
| (=) Total Appraised Value: | = | $447,213 | |
| (–) Senior Exemption Loss: | – | $0 | |
| (–) Exemption Loss: | – | $0 | |
| | | -------------------------- | |
| (=) Taxable Value: | = | $447,213 | |
Taxing Jurisdiction
| Owner: | JONNI GRAYBEAL LIVING TRUST | | |
| % Ownership: | 100.0000000000% | | |
| Total Value: | N/A | | |
| Tax Area: | 0211 - 1-49F1E1H2L1 |
| CE | COUNTY CURRENT EXPENSE | N/A | N/A | N/A | N/A | | |
| CNTYDD | DEVELOPMENTAL DISABILITIES | N/A | N/A | N/A | N/A | | |
| CNTYVET | VETERANS RELIEF | N/A | N/A | N/A | N/A | | |
| MENTAL | MENTAL HEALTH | N/A | N/A | N/A | N/A | | |
| ROADS | COUNTY ROADS | N/A | N/A | N/A | N/A | | |
| HOSP2CASH | HOSP DIST #2 GENERAL | N/A | N/A | N/A | N/A | | |
| SCH49CP | SCHOOL DIST #49 CAP PROJ | N/A | N/A | N/A | N/A | | |
| SCH49MO | SCHOOL DIST #49 EP & O | N/A | N/A | N/A | N/A | | |
| CONSERVE | CONSERVATION FUTURES | N/A | N/A | N/A | N/A | | |
| EMS1 | FIRE DIST #1 EMS | N/A | N/A | N/A | N/A | | |
| FD1 | FIRE DIST #1 GENERAL | N/A | N/A | N/A | N/A | | |
| LIB1 | LIBRARY DIST #1 GENERAL | N/A | N/A | N/A | N/A | | |
| PORTPT | PORT OF PT GENERAL | N/A | N/A | N/A | N/A | | |
| PORTPTIDD | PORT OF PT IDD 2019 | N/A | N/A | N/A | N/A | | |
| PUD1 | PUD #1 GENERAL | N/A | N/A | N/A | N/A | | |
| STATE | STATE SCHOOL PART 1 | N/A | N/A | N/A | N/A | | |
| STATE2 | STATE SCHOOL PART 2 | N/A | N/A | N/A | N/A | | |
| | Total Tax Rate: | N/A | | | | | |
| | | | | Taxes w/Current Exemptions: | N/A | | |
| | | | | Taxes w/o Exemptions: | N/A | | |
Improvement / Building
| Improvement #1: | Residential Bldg | State Code: | 11 | 1480.0 sqft | Value: | $355,253 |
| Bathrooms (#): | 1 (FULL) | Bathrooms (#): | 1 (HALF) | | Bedrooms (#): | 2 | Exterior Wall: | SI/ST | | Fireplace: | SIN 2-AVG | Floor Construction: | FRAME | | Foundation: | PO&BL | Heating/Cooling: | ELBB | | Inside Verify: | YES-FIX | Roof Cover: | COMP |
|
| | Type | Description | Class CD | Sub Class CD | Year Built | Area |
| | MA | Main Area | 4- | 15SF | 1950 | 1020.0 |
| | MA2 | Second Floor Main Area | 4- | 15SF | 1950 | 460.0 |
| | HENCL | House Enclosure | 3 | * | 1950 | 288.0 |
| | GDET | Detached Garage | 3 | 15SF | 1950 | 528.0 |
| | CARPTF | Carport W/Floor | 3 | * | 1950 | 480.0 |
| | GARAG | Garage (Table Not Dep) | 3 | * | 1950 | 192.0 |
Sketch
| No sketches available for this property. |
Property Image
Land
| 1 | 4211-1285S | | 0.0000 | 0.00 | 0.00 | 0.00 | 1.00 | $88,000 | $0 |
| 2 | 4211-1187L | | 0.0000 | 0.00 | 0.00 | 0.00 | 1.00 | $3,960 | $0 |
Roll Value History
| 2026 | N/A | N/A | N/A | N/A | N/A |
| 2025 | $355,253 | $91,960 | $0 | $447,213 | $447,213 |
| 2024 | $339,808 | $87,780 | $0 | $427,588 | $427,588 |
| 2023 | $246,011 | $78,600 | $0 | $324,611 | $324,611 |
| 2022 | $217,954 | $63,600 | $0 | $281,554 | $281,554 |
Deed and Sales History
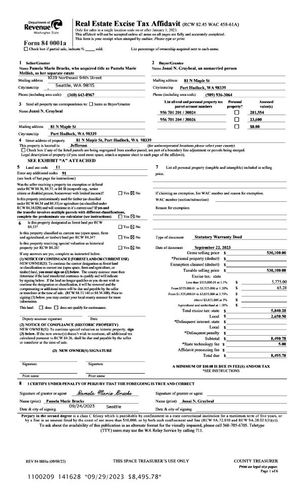
| 1 | 04/16/2025 | QCD | Quit Claim Deed | JONNI GRAYBEAL | JONNI GRAYBEAL LIVING TRUST | | | | 144140 | |
| 2 | 09/22/2023 | SWD | Statutory Warranty Deed | PAMELA MARIE MELLISH | JONNI GRAYBEAL | | | $530,100.00 | 141628 | |
|   | |
| 3 | 05/04/2005 | SWD | Statutory Warranty Deed | DOLTON, J MICHAEL & TERES | MELLISH, PAMELA MARIE | | | $187,000.00 | 103540 | 0 |
| 4 | 12/09/1994 | SWD | Statutory Warranty Deed | POESCHL, HENRY RAYMOND/LO | DOLTON, J MICHAEL/TERESA A | 0 | 0 | $101,250.00 | 75806 | 0 |
Payout Agreement
| No payout information available.. |