Property
Account |
| Property ID: | 30077 | Abbreviated Legal Description: | HASTINGS 1ST ADDITION BLK 78 LOT 5(S70') |
| Parcel # / Geo ID: | 957307805 | Agent Code: | |
| Type: | Real | | |
| Tax Area: | 0110 - C-50F1E1H2 | Land Use Code | 11 |
| Open Space: | N | DFL | N |
| Historic Property: | N | Remodel Property: | N |
| Multi-Family Redevelopment: | N | | |
| Township: | 30N | Section: | 11 |
| Range: | 1W |
Location |
| Address: | 1924 JEFFERSON ST PORT TOWNSEND, WA 98368 | Mapsco: | 058/049 |
| Neighborhood: | HASTINGS 1ST | Map ID: | |
| Neighborhood CD: | 6275 |
Owner |
| Name: | LEE A BUFFINGTON & GORDON T IWATA | Owner ID: | 107075 |
| Mailing Address: | 1924 JEFFERSON ST PORT TOWNSEND, WA 98368-6921 | % Ownership: | 100.0000000000% |
| | | Exemptions: | |
Pay Tax Due
There is currently No Amount Due on this property.
Taxes and Assessment Details
Property Tax Information as of
03/10/2026
Click on "Statement Details" to expand or collapse a tax statement.
* Please enter a valid date ** Please enter a valid date *
Statement Details |
| | TOTAL: | $0.00 | $0.00 | $0.00 | $0.00 | $0.00 | $0.00 |
|
| | $0.00 | $0.00 | $0.00 | $0.00 | $0.00 | $0.00 |
Values
| (+) Improvement Homesite Value: | + | $0 | |
| (+) Improvement Non-Homesite Value: | + | $417,119 | |
| (+) Land Homesite Value: | + | $0 | |
| (+) Land Non-Homesite Value: | + | $230,000 | |
| (+) Curr Use (HS): | + | $0 | $0 |
| (+) Curr Use (NHS): | + | $0 | $0 |
| | | -------------------------- | |
| (=) Market Value: | = | $647,119 | |
| (–) Productivity Loss: | – | $0 | |
| | | -------------------------- | |
| (=) Subtotal: | = | $647,119 | |
| (+) Senior Appraised Value: | + | $0 | |
| (+) Non-Senior Appraised Value: | + | $647,119 | |
| | | -------------------------- | |
| (=) Total Appraised Value: | = | $647,119 | |
| (–) Senior Exemption Loss: | – | $0 | |
| (–) Exemption Loss: | – | $0 | |
| | | -------------------------- | |
| (=) Taxable Value: | = | $647,119 | |
Taxing Jurisdiction
| Owner: | LEE A BUFFINGTON & GORDON T IWATA | | |
| % Ownership: | 100.0000000000% | | |
| Total Value: | $647,119 | | |
| Tax Area: | 0110 - C-50F1E1H2 |
| CE | COUNTY CURRENT EXPENSE | 0.9034619479 | $647,119 | $647,119 | $584.65 | | |
| CNTYDD | DEVELOPMENTAL DISABILITIES | 0.0052121823 | $647,119 | $647,119 | $3.37 | | |
| CNTYVET | VETERANS RELIEF | 0.0052777810 | $647,119 | $647,119 | $3.42 | | |
| MENTAL | MENTAL HEALTH | 0.0052121823 | $647,119 | $647,119 | $3.37 | | |
| PTGEN | CITY OF PT GENERAL | 0.8551967795 | $647,119 | $647,119 | $553.41 | | |
| PTLLL | CITY OF PT - LIBRARY LID LIFT | 0.4010114288 | $647,119 | $647,119 | $259.50 | | |
| PTMVBOND | CITY OF PT MV BOND | 0.0484717981 | $647,119 | $647,119 | $31.37 | | |
| HOSP2CASH | HOSP DIST #2 GENERAL | 0.0536075306 | $647,119 | $647,119 | $34.69 | | |
| SCH50BOND | SCHOOL DIST #50 BOND 2016 | 0.5377451389 | $647,119 | $647,119 | $347.99 | | |
| SCH50CP | SCHOOL DIST #50 CAP PROJ | 0.4573475088 | $647,119 | $647,119 | $295.96 | | |
| SCH50MO | SCHOOL DIST #50 EP & O | 0.8262822886 | $647,119 | $647,119 | $534.70 | | |
| CONSERVE | CONSERVATION FUTURES | 0.0275621078 | $647,119 | $647,119 | $17.84 | | |
| EMS1 | FIRE DIST #1 EMS | 0.4679948282 | $647,119 | $647,119 | $302.85 | | |
| FD1 | FIRE DIST #1 GENERAL | 1.2171942929 | $647,119 | $647,119 | $787.67 | | |
| PORTPT | PORT OF PT GENERAL | 0.1134941229 | $647,119 | $647,119 | $73.44 | | |
| PORTPTIDD | PORT OF PT IDD 2019 | 0.2577346692 | $647,119 | $647,119 | $166.79 | | |
| PUD1 | PUD #1 GENERAL | 0.0597888892 | $647,119 | $647,119 | $38.69 | | |
| STATE | STATE SCHOOL PART 1 | 1.4940692947 | $647,119 | $647,119 | $966.84 | | |
| STATE2 | STATE SCHOOL PART 2 | 0.8050170049 | $647,119 | $647,119 | $520.94 | | |
| | Total Tax Rate: | 8.5416817766 | | | | | |
| | | | | Taxes w/Current Exemptions: | $5,527.49 | | |
| | | | | Taxes w/o Exemptions: | $5,527.49 | | |
Improvement / Building
| Improvement #1: | Residential Bldg | State Code: | 11 | 1092.0 sqft | Value: | $417,119 |
| Bathrooms (#): | 1 (FULL) | Bedrooms (#): | 2 | | Exterior Wall: | SI/ST | Fireplace: | SIN 1-AVG | | Floor Construction: | FRAME | Foundation: | CONPR | | Heating/Cooling: | F/A | Roof Cover: | COMP |
|
| | Type | Description | Class CD | Sub Class CD | Year Built | Area |
| | MA | Main Area | 5 | 1S | 1928 | 1092.0 |
| | HWPOR | House Wood Porch | 5 | * | 1928 | 32.0 |
| | HCPOR | House Concrete Porch | 5 | * | 1928 | 35.0 |
| | HDECK | House Deck | 5 | * | 1928 | 64.0 |
| | BSMTF | House basement finished | 5 | * | 1928 | 400.0 |
| | SHED | Shed (Table Not Dep) | 5 | * | 1928 | 144.0 |
Sketch
Property Image
Land
| 1 | 6275-1165L | Uptown Std Lot (Avg) | 0.0000 | 0.00 | 0.00 | 0.00 | 1.00 | $230,000 | $0 |
Roll Value History
| 2026 | N/A | N/A | N/A | N/A | N/A |
| 2025 | $417,119 | $230,000 | $0 | $647,119 | $647,119 |
| 2024 | $395,971 | $231,000 | $0 | $626,971 | $626,971 |
| 2023 | $378,755 | $215,000 | $0 | $593,755 | $593,755 |
| 2022 | $378,755 | $210,000 | $0 | $588,755 | $588,755 |
Deed and Sales History
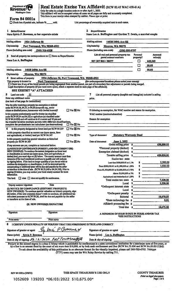
| 1 | 06/01/2022 | SWD | Statutory Warranty Deed | SYLVIA P BOWMAN | LEE A BUFFINGTON & GORDON T IWATA | | | $650,000.00 | 139203 | |
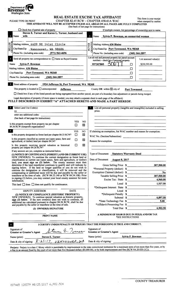
| 2 | 08/08/2017 | SWD | Statutory Warranty Deed | STEVEN E & KAREN L TURNER | SYLVIA P BOWMAN | | | $387,500.00 | 128379 | |
| 3 | 02/26/2015 | SWD | Statutory Warranty Deed | BARBARA J MANCHESTER | STEVEN E & KAREN L TURNER | | | $299,000.00 | 122746 | |
| 4 | 06/20/2000 | SWD | Statutory Warranty Deed | ROBERTSON, DAN A/THEODORA | DORGAN, BARBARA J | 0 | 0 | $147,000.00 | 89964 | 0 |
| 5 | 11/01/1994 | SWD | Statutory Warranty Deed | STANCIK, IRENE J/EST | ROBERTSON, DAN A/THEODORA | 0 | 0 | $82,000.00 | 75534 | 0 |
| 6 | 10/29/1994 | QCD | Quit Claim Deed | STANCIK, IRENE/EST | CHARKOW, ALLEN | 0 | 0 | $0.00 | 76265 | 0 |
| 7 | 10/28/1994 | QCD | Quit Claim Deed | STANCIK, IRENE/EST | CHARKOW, ALLEN | 0 | 0 | $0.00 | 76266 | 0 |
| 8 | 10/28/1994 | QCD | Quit Claim Deed | STANCIK, IRENE/EST | CHARKOW, ALLEN | 0 | 0 | $0.00 | 76267 | 0 |
| 9 | 10/26/1994 | QCD | Quit Claim Deed | STANCIK, IRENE/EST | CHARKOW, ALLEN | 0 | 0 | $0.00 | 76263 | 0 |
| 10 | 10/18/1994 | QCD | Quit Claim Deed | STANCIK, IRENE/EST | CHARKOW, ALLEN | 0 | 0 | $0.00 | 76262 | 0 |
| 11 | 10/17/1994 | QCD | Quit Claim Deed | CHARKOW, MATTHEW | CHARKOW, ALLEN | 0 | 0 | $0.00 | 76260 | 0 |
| 12 | 10/06/1994 | QCD | Quit Claim Deed | STANCIK, IRENE JUNE/EST | CHARKOW, ALLEN | 0 | 0 | $0.00 | 76259 | 0 |
| 13 | 09/16/1994 | QCD | Quit Claim Deed | NEGRO, DANIEL DEL | CHARKOW, ALLEN | 0 | 0 | $0.00 | 76261 | 0 |
| 14 | 07/12/1994 | QCD | Quit Claim Deed | STANCIK, IRENE/EST | CHARKOW, ALLEN | 0 | 0 | $0.00 | 76264 | 0 |
Payout Agreement
| No payout information available.. |