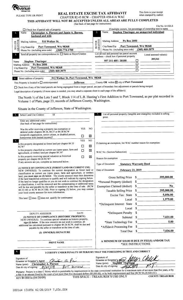
Property
Account |
| Property ID: | 30100 | Abbreviated Legal Description: | HASTINGS 1ST ADDITION BLK 114 LOTS 5 & 7(N1/2 EA) |
| Parcel # / Geo ID: | 957311405 | Agent Code: | |
| Type: | Real | | |
| Tax Area: | 0110 - C-50F1E1H2 | Land Use Code | 11 |
| Open Space: | N | DFL | N |
| Historic Property: | N | Remodel Property: | N |
| Multi-Family Redevelopment: | N | | |
| Township: | 30N | Section: | 11 |
| Range: | 1W |
Location |
| Address: | 512 WALKER ST PORT TOWNSEND, WA 98368 | Mapsco: | 059/012 |
| Neighborhood: | HASTINGS 1ST | Map ID: | |
| Neighborhood CD: | 6275 |
Owner |
| Name: | STEPHEN THARINGER | Owner ID: | 100587 |
| Mailing Address: | PO BOX 2050 PORT TOWNSEND, WA 98368-0239 | % Ownership: | 100.0000000000% |
| | | Exemptions: | |
Pay Tax Due
Select the appropriate checkbox next to the year to be paid. Multiple years may be selected.
*Convenience Fee not included
Taxes and Assessment Details
Property Tax Information as of
03/11/2026
Click on "Statement Details" to expand or collapse a tax statement.
* Please enter a valid date ** Please enter a valid date *
Statement Details |
| 2026 | 19410 | STATE - STATE LEVY (SCHOOL) | $653.32 | $653.31 | $0.00 | $0.00 | $0.00 | $1306.63 |
| 2026 | 19410 | COUNTY - COUNTY LEVIES (CE, DD, VET, MH) | $261.19 | $261.19 | $0.00 | $0.00 | $0.00 | $522.38 |
| 2026 | 19410 | CONSERVE - CONSERVATION FUTURES | $7.83 | $7.83 | $0.00 | $0.00 | $0.00 | $15.66 |
| 2026 | 19410 | CITYPT - CITY OF PT | $370.76 | $370.73 | $0.00 | $0.00 | $0.00 | $741.49 |
| 2026 | 19410 | PORTPT - PORT DISTRICT | $105.49 | $105.49 | $0.00 | $0.00 | $0.00 | $210.98 |
| 2026 | 19410 | PUD1 - PUD #1 | $16.99 | $16.99 | $0.00 | $0.00 | $0.00 | $33.98 |
| 2026 | 19410 | HD2 - HOSP DIST #2 | $15.24 | $15.23 | $0.00 | $0.00 | $0.00 | $30.47 |
| 2026 | 19410 | SD50 - SCHOOL DIST #50 | $517.57 | $517.57 | $0.00 | $0.00 | $0.00 | $1035.14 |
| 2026 | 19410 | FD1 - FIRE DISTRICT #1 | $345.88 | $345.88 | $0.00 | $0.00 | $0.00 | $691.76 |
| 2026 | 19410 | EMS1 - FIRE DIST #1 EMS | $132.99 | $132.98 | $0.00 | $0.00 | $0.00 | $265.97 |
| 2026 | 19410 | JCCD - JC Conservation District | $2.55 | $2.55 | $0.00 | $0.00 | $0.00 | $5.10 |
| 2026 | 19410 | NWA - Noxious Weed Assessment | $2.98 | $2.97 | $0.00 | $0.00 | $0.00 | $5.95 |
| 2026 | 19410 | TOTAL: | $2432.79 | $2432.72 | $0.00 | $0.00 | $0.00 | $4865.51 |
|
| 2026 | 19410 | $2432.79 | $2432.72 | $0.00 | $0.00 | $0.00 | $4865.51 |
Statement Details |
| 2025 | 19470 | STATE - STATE LEVY (SCHOOL) | $680.26 | $680.24 | $0.00 | $0.00 | $1360.50 | $0.00 |
| 2025 | 19470 | COUNTY - COUNTY LEVIES (CE, DD, VET, MH) | $267.52 | $267.49 | $0.00 | $0.00 | $535.01 | $0.00 |
| 2025 | 19470 | CONSERVE - CONSERVATION FUTURES | $8.02 | $8.02 | $0.00 | $0.00 | $16.04 | $0.00 |
| 2025 | 19470 | CITYPT - CITY OF PT | $385.79 | $385.76 | $0.00 | $0.00 | $771.55 | $0.00 |
| 2025 | 19470 | PORTPT - PORT DISTRICT | $109.16 | $109.15 | $0.00 | $0.00 | $218.31 | $0.00 |
| 2025 | 19470 | PUD1 - PUD #1 | $17.51 | $17.50 | $0.00 | $0.00 | $35.01 | $0.00 |
| 2025 | 19470 | HD2 - HOSP DIST #2 | $15.61 | $15.60 | $0.00 | $0.00 | $31.21 | $0.00 |
| 2025 | 19470 | SD50 - SCHOOL DIST #50 | $497.16 | $497.14 | $0.00 | $0.00 | $994.30 | $0.00 |
| 2025 | 19470 | FD1 - FIRE DISTRICT #1 | $353.00 | $353.00 | $0.00 | $0.00 | $706.00 | $0.00 |
| 2025 | 19470 | EMS1 - FIRE DIST #1 EMS | $135.78 | $135.77 | $0.00 | $0.00 | $271.55 | $0.00 |
| 2025 | 19470 | JCCD - JC Conservation District | $2.55 | $2.55 | $0.00 | $0.00 | $5.10 | $0.00 |
| 2025 | 19470 | NWA - Noxious Weed Assessment | $2.15 | $2.15 | $0.00 | $0.00 | $4.30 | $0.00 |
| 2025 | 19470 | TOTAL: | $2474.51 | $2474.37 | $0.00 | $0.00 | $4948.88 | $0.00 |
|
| 2025 | 19470 | $2474.51 | $2474.37 | $0.00 | $0.00 | $4948.88 | $0.00 |
Statement Details |
| 2024 | 19507 | STATE - STATE LEVY (SCHOOL) | $620.87 | $620.87 | $0.00 | $0.00 | $1241.74 | $0.00 |
| 2024 | 19507 | COUNTY - COUNTY LEVIES (CE, DD, VET, MH) | $265.68 | $265.68 | $0.00 | $0.00 | $531.36 | $0.00 |
| 2024 | 19507 | CONSERVE - CONSERVATION FUTURES | $7.97 | $7.96 | $0.00 | $0.00 | $15.93 | $0.00 |
| 2024 | 19507 | CITYPT - CITY OF PT | $379.63 | $379.60 | $0.00 | $0.00 | $759.23 | $0.00 |
| 2024 | 19507 | PORTPT - PORT DISTRICT | $109.74 | $109.73 | $0.00 | $0.00 | $219.47 | $0.00 |
| 2024 | 19507 | PUD1 - PUD #1 | $17.45 | $17.45 | $0.00 | $0.00 | $34.90 | $0.00 |
| 2024 | 19507 | HD2 - HOSP DIST #2 | $15.50 | $15.50 | $0.00 | $0.00 | $31.00 | $0.00 |
| 2024 | 19507 | SD50 - SCHOOL DIST #50 | $502.32 | $502.32 | $0.00 | $0.00 | $1004.64 | $0.00 |
| 2024 | 19507 | FD1 - FIRE DISTRICT #1 | $351.29 | $351.29 | $0.00 | $0.00 | $702.58 | $0.00 |
| 2024 | 19507 | EMS1 - FIRE DIST #1 EMS | $134.18 | $134.18 | $0.00 | $0.00 | $268.36 | $0.00 |
| 2024 | 19507 | JCCD - JC Conservation District | $2.55 | $2.55 | $0.00 | $0.00 | $5.10 | $0.00 |
| 2024 | 19507 | NWA - Noxious Weed Assessment | $2.15 | $2.15 | $0.00 | $0.00 | $4.30 | $0.00 |
| 2024 | 19507 | TOTAL: | $2409.33 | $2409.28 | $0.00 | $0.00 | $4818.61 | $0.00 |
|
| 2024 | 19507 | $2409.33 | $2409.28 | $0.00 | $0.00 | $4818.61 | $0.00 |
Statement Details |
| 2023 | 19544 | STATE - STATE LEVY (SCHOOL) | $625.88 | $625.87 | $0.00 | $0.00 | $1251.75 | $0.00 |
| 2023 | 19544 | COUNTY - COUNTY LEVIES (CE, DD, VET, MH) | $273.11 | $273.11 | $0.00 | $0.00 | $546.22 | $0.00 |
| 2023 | 19544 | CONSERVE - CONSERVATION FUTURES | $8.19 | $8.19 | $0.00 | $0.00 | $16.38 | $0.00 |
| 2023 | 19544 | CITYPT - CITY OF PT | $386.01 | $385.99 | $0.00 | $0.00 | $772.00 | $0.00 |
| 2023 | 19544 | PORTPT - PORT DISTRICT | $115.06 | $115.04 | $0.00 | $0.00 | $230.10 | $0.00 |
| 2023 | 19544 | PUD1 - PUD #1 | $18.11 | $18.10 | $0.00 | $0.00 | $36.21 | $0.00 |
| 2023 | 19544 | HD2 - HOSP DIST #2 | $15.94 | $15.93 | $0.00 | $0.00 | $31.87 | $0.00 |
| 2023 | 19544 | SD50 - SCHOOL DIST #50 | $496.65 | $496.64 | $0.00 | $0.00 | $993.29 | $0.00 |
| 2023 | 19544 | FD1 - FIRE DISTRICT #1 | $224.99 | $224.99 | $0.00 | $0.00 | $449.98 | $0.00 |
| 2023 | 19544 | EMS1 - FIRE DIST #1 EMS | $95.71 | $95.70 | $0.00 | $0.00 | $191.41 | $0.00 |
| 2023 | 19544 | JCCD - JC Conservation District | $2.55 | $2.55 | $0.00 | $0.00 | $5.10 | $0.00 |
| 2023 | 19544 | NWA - Noxious Weed Assessment | $2.15 | $2.15 | $0.00 | $0.00 | $4.30 | $0.00 |
| 2023 | 19544 | TOTAL: | $2264.35 | $2264.26 | $0.00 | $0.00 | $4528.61 | $0.00 |
|
| 2023 | 19544 | $2264.35 | $2264.26 | $0.00 | $0.00 | $4528.61 | $0.00 |
Values
| (+) Improvement Homesite Value: | + | $0 | |
| (+) Improvement Non-Homesite Value: | + | $338,327 | |
| (+) Land Homesite Value: | + | $0 | |
| (+) Land Non-Homesite Value: | + | $230,000 | |
| (+) Curr Use (HS): | + | $0 | $0 |
| (+) Curr Use (NHS): | + | $0 | $0 |
| | | -------------------------- | |
| (=) Market Value: | = | $568,327 | |
| (–) Productivity Loss: | – | $0 | |
| | | -------------------------- | |
| (=) Subtotal: | = | $568,327 | |
| (+) Senior Appraised Value: | + | $0 | |
| (+) Non-Senior Appraised Value: | + | $568,327 | |
| | | -------------------------- | |
| (=) Total Appraised Value: | = | $568,327 | |
| (–) Senior Exemption Loss: | – | $0 | |
| (–) Exemption Loss: | – | $0 | |
| | | -------------------------- | |
| (=) Taxable Value: | = | $568,327 | |
Taxing Jurisdiction
| Owner: | STEPHEN THARINGER | | |
| % Ownership: | 100.0000000000% | | |
| Total Value: | $568,327 | | |
| Tax Area: | 0110 - C-50F1E1H2 |
| CE | COUNTY CURRENT EXPENSE | 0.9034619479 | $568,327 | $568,327 | $513.46 | | |
| CNTYDD | DEVELOPMENTAL DISABILITIES | 0.0052121823 | $568,327 | $568,327 | $2.96 | | |
| CNTYVET | VETERANS RELIEF | 0.0052777810 | $568,327 | $568,327 | $3.00 | | |
| MENTAL | MENTAL HEALTH | 0.0052121823 | $568,327 | $568,327 | $2.96 | | |
| PTGEN | CITY OF PT GENERAL | 0.8551967795 | $568,327 | $568,327 | $486.03 | | |
| PTLLL | CITY OF PT - LIBRARY LID LIFT | 0.4010114288 | $568,327 | $568,327 | $227.91 | | |
| PTMVBOND | CITY OF PT MV BOND | 0.0484717981 | $568,327 | $568,327 | $27.55 | | |
| HOSP2CASH | HOSP DIST #2 GENERAL | 0.0536075306 | $568,327 | $568,327 | $30.47 | | |
| SCH50BOND | SCHOOL DIST #50 BOND 2016 | 0.5377451389 | $568,327 | $568,327 | $305.62 | | |
| SCH50CP | SCHOOL DIST #50 CAP PROJ | 0.4573475088 | $568,327 | $568,327 | $259.92 | | |
| SCH50MO | SCHOOL DIST #50 EP & O | 0.8262822886 | $568,327 | $568,327 | $469.60 | | |
| CONSERVE | CONSERVATION FUTURES | 0.0275621078 | $568,327 | $568,327 | $15.66 | | |
| EMS1 | FIRE DIST #1 EMS | 0.4679948282 | $568,327 | $568,327 | $265.97 | | |
| FD1 | FIRE DIST #1 GENERAL | 1.2171942929 | $568,327 | $568,327 | $691.76 | | |
| PORTPT | PORT OF PT GENERAL | 0.1134941229 | $568,327 | $568,327 | $64.50 | | |
| PORTPTIDD | PORT OF PT IDD 2019 | 0.2577346692 | $568,327 | $568,327 | $146.48 | | |
| PUD1 | PUD #1 GENERAL | 0.0597888892 | $568,327 | $568,327 | $33.98 | | |
| STATE | STATE SCHOOL PART 1 | 1.4940692947 | $568,327 | $568,327 | $849.12 | | |
| STATE2 | STATE SCHOOL PART 2 | 0.8050170049 | $568,327 | $568,327 | $457.51 | | |
| | Total Tax Rate: | 8.5416817766 | | | | | |
| | | | | Taxes w/Current Exemptions: | $4,854.46 | | |
| | | | | Taxes w/o Exemptions: | $4,854.46 | | |
Improvement / Building
| Improvement #1: | Residential Bldg | State Code: | 11 | 1022.0 sqft | Value: | $338,327 |
| Bathrooms (#): | 1 (FULL) | Bedrooms (#): | 2 | | Exterior Wall: | SI/ST | Fireplace: | SIN 1-GOOD | | Floor Construction: | FRAME | Foundation: | CONBL | | Heating/Cooling: | ELBB | Roof Cover: | COMP |
|
| | Type | Description | Class CD | Sub Class CD | Year Built | Area |
| | MA | Main Area | 4+ | 1S | 1930 | 1022.0 |
| | PATIO | House Patio | 4 | * | 1930 | 182.0 |
| | HWPOR | House Wood Porch | 4 | * | 1930 | 98.0 |
| | HCPOR | House Concrete Porch | 4 | * | 1930 | 72.0 |
| | GDET | Detached Garage | 4 | 1S | 1930 | 288.0 |
| | ADDN-D | Addition (Table Depreciated) | 3 | * | 1930 | 336.0 |
Sketch
Property Image
Land
| 1 | 6275-1165L | | 0.0000 | 0.00 | 0.00 | 0.00 | 1.00 | $230,000 | $0 |
Roll Value History
| 2026 | N/A | N/A | N/A | N/A | N/A |
| 2025 | $338,327 | $230,000 | $0 | $568,327 | $568,327 |
| 2024 | $336,342 | $231,000 | $0 | $567,342 | $567,342 |
| 2023 | $321,718 | $215,000 | $0 | $536,718 | $536,718 |
| 2022 | $321,718 | $210,000 | $0 | $531,718 | $531,718 |
Deed and Sales History
| 1 | 02/21/2019 | SWD | Statutory Warranty Deed | CHRISTOPHER PIERSON & JAMIE BARNES | STEPHEN THARINGER | | | $395,000.00 | 131856 | |
| 2 | 05/19/2004 | QCD | Quit Claim Deed | PIERSON, CHRISTOPHER A/JA | PEIRSON, CHRISTOPHER A/JAMIE A | 0 | 0 | $0.00 | 100502 | 0 |
| 3 | 11/15/1999 | QCD | Quit Claim Deed | PIERSON, CHRISTOPHER/BARN | PIERSON BARNES FAMILY REV TRU | 0 | 0 | $0.00 | 88356 | 0 |
| 4 | 07/09/1998 | SWD | Statutory Warranty Deed | MILLER, THEODORE F/SUSAN | PIERSON, C A/BARNES, J A | 0 | 0 | $149,900.00 | 84846 | 0 |
Payout Agreement
| No payout information available.. |