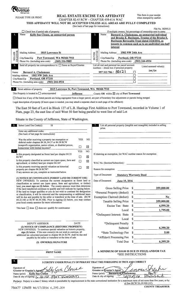
Property
Account |
| Property ID: | 30121 | Abbreviated Legal Description: | HASTINGS 1ST ADDITION BLK 127 LOT 6(LS W5') |
| Parcel # / Geo ID: | 957312706 | Agent Code: | |
| Type: | Real | | |
| Tax Area: | 0110 - C-50F1E1H2 | Land Use Code | 11 |
| Open Space: | N | DFL | N |
| Historic Property: | N | Remodel Property: | N |
| Multi-Family Redevelopment: | N | | |
| Township: | 30N | Section: | 11 |
| Range: | 1W |
Location |
| Address: | 1815 LAWRENCE ST PORT TOWNSEND, WA 98368 | Mapsco: | 059/038 |
| Neighborhood: | HASTINGS 1ST | Map ID: | |
| Neighborhood CD: | 6275 |
Owner |
| Name: | THEODORE FINKIEWICZ | Owner ID: | 113767 |
| Mailing Address: | 322 S WEST ST ROYAL OAK, MI 48067-2516 | % Ownership: | 100.0000000000% |
| | | Exemptions: | |
Pay Tax Due
Select the appropriate checkbox next to the year to be paid. Multiple years may be selected.
*Convenience Fee not included
Taxes and Assessment Details
Property Tax Information as of
03/10/2026
Click on "Statement Details" to expand or collapse a tax statement.
* Please enter a valid date ** Please enter a valid date *
Statement Details |
| 2026 | 19431 | STATE - STATE LEVY (SCHOOL) | $740.29 | $740.29 | $0.00 | $0.00 | $0.00 | $1480.58 |
| 2026 | 19431 | COUNTY - COUNTY LEVIES (CE, DD, VET, MH) | $295.97 | $295.97 | $0.00 | $0.00 | $0.00 | $591.94 |
| 2026 | 19431 | CONSERVE - CONSERVATION FUTURES | $8.88 | $8.87 | $0.00 | $0.00 | $0.00 | $17.75 |
| 2026 | 19431 | CITYPT - CITY OF PT | $420.11 | $420.10 | $0.00 | $0.00 | $0.00 | $840.21 |
| 2026 | 19431 | PORTPT - PORT DISTRICT | $119.54 | $119.53 | $0.00 | $0.00 | $0.00 | $239.07 |
| 2026 | 19431 | PUD1 - PUD #1 | $19.25 | $19.25 | $0.00 | $0.00 | $0.00 | $38.50 |
| 2026 | 19431 | HD2 - HOSP DIST #2 | $17.26 | $17.26 | $0.00 | $0.00 | $0.00 | $34.52 |
| 2026 | 19431 | SD50 - SCHOOL DIST #50 | $586.48 | $586.47 | $0.00 | $0.00 | $0.00 | $1172.95 |
| 2026 | 19431 | FD1 - FIRE DISTRICT #1 | $391.93 | $391.93 | $0.00 | $0.00 | $0.00 | $783.86 |
| 2026 | 19431 | EMS1 - FIRE DIST #1 EMS | $150.69 | $150.69 | $0.00 | $0.00 | $0.00 | $301.38 |
| 2026 | 19431 | JCCD - JC Conservation District | $2.55 | $2.55 | $0.00 | $0.00 | $0.00 | $5.10 |
| 2026 | 19431 | NWA - Noxious Weed Assessment | $2.98 | $2.97 | $0.00 | $0.00 | $0.00 | $5.95 |
| 2026 | 19431 | TOTAL: | $2755.93 | $2755.88 | $0.00 | $0.00 | $0.00 | $5511.81 |
|
| 2026 | 19431 | $2755.93 | $2755.88 | $0.00 | $0.00 | $0.00 | $5511.81 |
Statement Details |
| 2025 | 19491 | STATE - STATE LEVY (SCHOOL) | $764.77 | $764.75 | $0.00 | $0.00 | $1529.52 | $0.00 |
| 2025 | 19491 | COUNTY - COUNTY LEVIES (CE, DD, VET, MH) | $300.74 | $300.73 | $0.00 | $0.00 | $601.47 | $0.00 |
| 2025 | 19491 | CONSERVE - CONSERVATION FUTURES | $9.02 | $9.02 | $0.00 | $0.00 | $18.04 | $0.00 |
| 2025 | 19491 | CITYPT - CITY OF PT | $433.71 | $433.68 | $0.00 | $0.00 | $867.39 | $0.00 |
| 2025 | 19491 | PORTPT - PORT DISTRICT | $122.73 | $122.71 | $0.00 | $0.00 | $245.44 | $0.00 |
| 2025 | 19491 | PUD1 - PUD #1 | $19.68 | $19.68 | $0.00 | $0.00 | $39.36 | $0.00 |
| 2025 | 19491 | HD2 - HOSP DIST #2 | $17.55 | $17.54 | $0.00 | $0.00 | $35.09 | $0.00 |
| 2025 | 19491 | SD50 - SCHOOL DIST #50 | $558.92 | $558.91 | $0.00 | $0.00 | $1117.83 | $0.00 |
| 2025 | 19491 | FD1 - FIRE DISTRICT #1 | $396.86 | $396.85 | $0.00 | $0.00 | $793.71 | $0.00 |
| 2025 | 19491 | EMS1 - FIRE DIST #1 EMS | $152.64 | $152.64 | $0.00 | $0.00 | $305.28 | $0.00 |
| 2025 | 19491 | JCCD - JC Conservation District | $2.55 | $2.55 | $0.00 | $0.00 | $5.10 | $0.00 |
| 2025 | 19491 | NWA - Noxious Weed Assessment | $2.15 | $2.15 | $0.00 | $0.00 | $4.30 | $0.00 |
| 2025 | 19491 | TOTAL: | $2781.32 | $2781.21 | $0.00 | $0.00 | $5562.53 | $0.00 |
|
| 2025 | 19491 | $2781.32 | $2781.21 | $0.00 | $0.00 | $5562.53 | $0.00 |
Statement Details |
| 2024 | 19528 | STATE - STATE LEVY (SCHOOL) | $698.91 | $698.90 | $0.00 | $0.00 | $1397.81 | $0.00 |
| 2024 | 19528 | COUNTY - COUNTY LEVIES (CE, DD, VET, MH) | $299.07 | $299.07 | $0.00 | $0.00 | $598.14 | $0.00 |
| 2024 | 19528 | CONSERVE - CONSERVATION FUTURES | $8.97 | $8.97 | $0.00 | $0.00 | $17.94 | $0.00 |
| 2024 | 19528 | CITYPT - CITY OF PT | $427.34 | $427.31 | $0.00 | $0.00 | $854.65 | $0.00 |
| 2024 | 19528 | PORTPT - PORT DISTRICT | $123.53 | $123.52 | $0.00 | $0.00 | $247.05 | $0.00 |
| 2024 | 19528 | PUD1 - PUD #1 | $19.65 | $19.64 | $0.00 | $0.00 | $39.29 | $0.00 |
| 2024 | 19528 | HD2 - HOSP DIST #2 | $17.45 | $17.45 | $0.00 | $0.00 | $34.90 | $0.00 |
| 2024 | 19528 | SD50 - SCHOOL DIST #50 | $565.46 | $565.43 | $0.00 | $0.00 | $1130.89 | $0.00 |
| 2024 | 19528 | FD1 - FIRE DISTRICT #1 | $395.44 | $395.44 | $0.00 | $0.00 | $790.88 | $0.00 |
| 2024 | 19528 | EMS1 - FIRE DIST #1 EMS | $151.05 | $151.04 | $0.00 | $0.00 | $302.09 | $0.00 |
| 2024 | 19528 | JCCD - JC Conservation District | $2.55 | $2.55 | $0.00 | $0.00 | $5.10 | $0.00 |
| 2024 | 19528 | NWA - Noxious Weed Assessment | $2.15 | $2.15 | $0.00 | $0.00 | $4.30 | $0.00 |
| 2024 | 19528 | TOTAL: | $2711.57 | $2711.47 | $0.00 | $0.00 | $5423.04 | $0.00 |
|
| 2024 | 19528 | $2711.57 | $2711.47 | $0.00 | $0.00 | $5423.04 | $0.00 |
Statement Details |
| 2023 | 19565 | STATE - STATE LEVY (SCHOOL) | $705.28 | $705.26 | $0.00 | $0.00 | $1410.54 | $0.00 |
| 2023 | 19565 | COUNTY - COUNTY LEVIES (CE, DD, VET, MH) | $307.77 | $307.74 | $0.00 | $0.00 | $615.51 | $0.00 |
| 2023 | 19565 | CONSERVE - CONSERVATION FUTURES | $9.23 | $9.23 | $0.00 | $0.00 | $18.46 | $0.00 |
| 2023 | 19565 | CITYPT - CITY OF PT | $434.97 | $434.97 | $0.00 | $0.00 | $869.94 | $0.00 |
| 2023 | 19565 | PORTPT - PORT DISTRICT | $129.65 | $129.64 | $0.00 | $0.00 | $259.29 | $0.00 |
| 2023 | 19565 | PUD1 - PUD #1 | $20.40 | $20.40 | $0.00 | $0.00 | $40.80 | $0.00 |
| 2023 | 19565 | HD2 - HOSP DIST #2 | $17.96 | $17.96 | $0.00 | $0.00 | $35.92 | $0.00 |
| 2023 | 19565 | SD50 - SCHOOL DIST #50 | $559.66 | $559.64 | $0.00 | $0.00 | $1119.30 | $0.00 |
| 2023 | 19565 | FD1 - FIRE DISTRICT #1 | $253.53 | $253.53 | $0.00 | $0.00 | $507.06 | $0.00 |
| 2023 | 19565 | EMS1 - FIRE DIST #1 EMS | $107.85 | $107.85 | $0.00 | $0.00 | $215.70 | $0.00 |
| 2023 | 19565 | JCCD - JC Conservation District | $2.55 | $2.55 | $0.00 | $0.00 | $5.10 | $0.00 |
| 2023 | 19565 | NWA - Noxious Weed Assessment | $2.15 | $2.15 | $0.00 | $0.00 | $4.30 | $0.00 |
| 2023 | 19565 | TOTAL: | $2551.00 | $2550.92 | $0.00 | $0.00 | $5101.92 | $0.00 |
|
| 2023 | 19565 | $2551.00 | $2550.92 | $0.00 | $0.00 | $5101.92 | $0.00 |
Values
| (+) Improvement Homesite Value: | + | $421,987 | |
| (+) Improvement Non-Homesite Value: | + | $0 | |
| (+) Land Homesite Value: | + | $222,000 | |
| (+) Land Non-Homesite Value: | + | $0 | |
| (+) Curr Use (HS): | + | $0 | $0 |
| (+) Curr Use (NHS): | + | $0 | $0 |
| | | -------------------------- | |
| (=) Market Value: | = | $643,987 | |
| (–) Productivity Loss: | – | $0 | |
| | | -------------------------- | |
| (=) Subtotal: | = | $643,987 | |
| (+) Senior Appraised Value: | + | $0 | |
| (+) Non-Senior Appraised Value: | + | $643,987 | |
| | | -------------------------- | |
| (=) Total Appraised Value: | = | $643,987 | |
| (–) Senior Exemption Loss: | – | $0 | |
| (–) Exemption Loss: | – | $0 | |
| | | -------------------------- | |
| (=) Taxable Value: | = | $643,987 | |
Taxing Jurisdiction
| Owner: | THEODORE FINKIEWICZ | | |
| % Ownership: | 100.0000000000% | | |
| Total Value: | $643,987 | | |
| Tax Area: | 0110 - C-50F1E1H2 |
| CE | COUNTY CURRENT EXPENSE | 0.9034619479 | $643,987 | $643,987 | $581.82 | | |
| CNTYDD | DEVELOPMENTAL DISABILITIES | 0.0052121823 | $643,987 | $643,987 | $3.36 | | |
| CNTYVET | VETERANS RELIEF | 0.0052777810 | $643,987 | $643,987 | $3.40 | | |
| MENTAL | MENTAL HEALTH | 0.0052121823 | $643,987 | $643,987 | $3.36 | | |
| PTGEN | CITY OF PT GENERAL | 0.8551967795 | $643,987 | $643,987 | $550.74 | | |
| PTLLL | CITY OF PT - LIBRARY LID LIFT | 0.4010114288 | $643,987 | $643,987 | $258.25 | | |
| PTMVBOND | CITY OF PT MV BOND | 0.0484717981 | $643,987 | $643,987 | $31.22 | | |
| HOSP2CASH | HOSP DIST #2 GENERAL | 0.0536075306 | $643,987 | $643,987 | $34.52 | | |
| SCH50BOND | SCHOOL DIST #50 BOND 2016 | 0.5377451389 | $643,987 | $643,987 | $346.30 | | |
| SCH50CP | SCHOOL DIST #50 CAP PROJ | 0.4573475088 | $643,987 | $643,987 | $294.53 | | |
| SCH50MO | SCHOOL DIST #50 EP & O | 0.8262822886 | $643,987 | $643,987 | $532.12 | | |
| CONSERVE | CONSERVATION FUTURES | 0.0275621078 | $643,987 | $643,987 | $17.75 | | |
| EMS1 | FIRE DIST #1 EMS | 0.4679948282 | $643,987 | $643,987 | $301.38 | | |
| FD1 | FIRE DIST #1 GENERAL | 1.2171942929 | $643,987 | $643,987 | $783.86 | | |
| PORTPT | PORT OF PT GENERAL | 0.1134941229 | $643,987 | $643,987 | $73.09 | | |
| PORTPTIDD | PORT OF PT IDD 2019 | 0.2577346692 | $643,987 | $643,987 | $165.98 | | |
| PUD1 | PUD #1 GENERAL | 0.0597888892 | $643,987 | $643,987 | $38.50 | | |
| STATE | STATE SCHOOL PART 1 | 1.4940692947 | $643,987 | $643,987 | $962.16 | | |
| STATE2 | STATE SCHOOL PART 2 | 0.8050170049 | $643,987 | $643,987 | $518.42 | | |
| | Total Tax Rate: | 8.5416817766 | | | | | |
| | | | | Taxes w/Current Exemptions: | $5,500.76 | | |
| | | | | Taxes w/o Exemptions: | $5,500.76 | | |
Improvement / Building
| Improvement #1: | Residential Bldg | State Code: | 11 | 1367.0 sqft | Value: | $421,987 |
| Bathrooms (#): | 1 (FULL) | Bedrooms (#): | 3 | | Exterior Wall: | PL/T1 | Fireplace: | SIN 1-GOOD | | Floor Construction: | FRAME | Foundation: | CONPR | | Heating/Cooling: | HPUMP | Roof Cover: | COMP |
|
| | Type | Description | Class CD | Sub Class CD | Year Built | Area |
| | MA | Main Area | 5- | 1S | 1972 | 1367.0 |
| | HDECK | House Deck | 4 | * | 1972 | 120.0 |
| | GATT | House Attached Garage | 4 | 1S | 1972 | 288.0 |
| | PATIO | House Patio | 4 | * | 1972 | 280.0 |
Sketch
Property Image
Land
| 1 | 6275-1165L | | 0.0000 | 0.00 | 0.00 | 0.00 | 1.00 | $222,000 | $0 |
Roll Value History
| 2026 | N/A | N/A | N/A | N/A | N/A |
| 2025 | $421,987 | $222,000 | $0 | $643,987 | $643,987 |
| 2024 | $414,805 | $223,020 | $0 | $637,825 | $637,825 |
| 2023 | $396,770 | $207,400 | $0 | $604,170 | $604,170 |
| 2022 | $396,770 | $202,400 | $0 | $599,170 | $599,170 |
Deed and Sales History
| 1 | 12/02/2025 | SWD | Statutory Warranty Deed | MEREDITH A SCHREIBER | THEODORE FINKIEWICZ | | | $730,000.00 | 145341 | |
| 2 | 03/23/2023 | SWD | Statutory Warranty Deed | RICK & DIANE RUPP REV TRUST | MEREDITH A SCHREIBER | | | $675,000.00 | 140687 | |
| 3 | 08/15/2018 | SWD | Statutory Warranty Deed | CHALUMEAU-BUXBAUM JOINT TRUST | RICK & DIANE RUPP REV TRUST | | | $439,000.00 | 130842 | |
| 4 | 09/26/2016 | SWD | Statutory Warranty Deed | BERNARD A CHALUMEAU | CHALUMEAU-BUXBAUM JOINT TRUST | | | | 126381 | |
| 5 | 06/15/2016 | SWD | Statutory Warranty Deed | KELLY S CLOUSE | BERNARD A CHALUMEAU | | | $359,000.00 | 125655 | |
| 6 | 09/28/2010 | QCD | Quit Claim Deed | CLOUSE, KELLY SUE TRUSTEE | CLOUSE, KELLY SUE | 0 | 0 | $0.00 | 114939 | 0 |
| 7 | 11/10/2004 | SWD | Statutory Warranty Deed | ANKENY, C WENDELL/LAUREL | SUE, KELLY & DEBRA/TRUSTEES | 0 | 0 | $252,000.00 | 101999 | 0 |
| 8 | 04/25/2003 | SWD | Statutory Warranty Deed | DOBSON, GENEVA/ESTATE | ANKENY, C WENDELL/LAUREL | 0 | 0 | $155,000.00 | 97183 | 0 |
| 9 | 08/18/1997 | QCD | Quit Claim Deed | CANFIELD, SHARON D | DOBSON, GENEVA M | 0 | 0 | $0.00 | 82541 | 0 |
Payout Agreement
| No payout information available.. |