Property
Account |
| Property ID: | 30135 | Abbreviated Legal Description: | ENARSON SHORT PLAT LOTS 3(ALL) & 2(S'LY 30')BND BY LLA #83033 |
| Parcel # / Geo ID: | 957400103 | Agent Code: | |
| Type: | Real | | |
| Tax Area: | 0110 - C-50F1E1H2 | Land Use Code | 11 |
| Open Space: | N | DFL | N |
| Historic Property: | N | Remodel Property: | N |
| Multi-Family Redevelopment: | N | | |
| Township: | 30N | Section: | 3 |
| Range: | 1W |
Location |
| Address: | 2957 HANCOCK ST PORT TOWNSEND, WA 98368 | Mapsco: | 161/031 |
| Neighborhood: | HASTINGS 3RD | Map ID: | |
| Neighborhood CD: | 6110 |
Owner |
| Name: | KELLY SUE CLOUSE REVOCABLE LIVING TRUST | Owner ID: | 40511 |
| Mailing Address: | KELLY SUE CLOUSE TRUSTEE 2957 HANCOCK ST PORT TOWNSEND, WA 98368-5907 | % Ownership: | 100.0000000000% |
| | | Exemptions: | SNR/DSBL |
Pay Tax Due
Select the appropriate checkbox next to the year to be paid. Multiple years may be selected.
*Convenience Fee not included
Taxes and Assessment Details
Property Tax Information as of
03/10/2026
Click on "Statement Details" to expand or collapse a tax statement.
* Please enter a valid date ** Please enter a valid date *
Statement Details |
| 2026 | 19445 | STATE - STATE LEVY (SCHOOL) | $82.54 | $82.54 | $0.00 | $0.00 | $0.00 | $165.08 |
| 2026 | 19445 | COUNTY - COUNTY LEVIES (CE, DD, VET, MH) | $50.79 | $50.78 | $0.00 | $0.00 | $0.00 | $101.57 |
| 2026 | 19445 | CONSERVE - CONSERVATION FUTURES | $1.53 | $1.52 | $0.00 | $0.00 | $0.00 | $3.05 |
| 2026 | 19445 | CITYPT - CITY OF PT | $69.41 | $69.39 | $0.00 | $0.00 | $0.00 | $138.80 |
| 2026 | 19445 | PORTPT - PORT DISTRICT | $20.51 | $20.51 | $0.00 | $0.00 | $0.00 | $41.02 |
| 2026 | 19445 | PUD1 - PUD #1 | $3.31 | $3.30 | $0.00 | $0.00 | $0.00 | $6.61 |
| 2026 | 19445 | HD2 - HOSP DIST #2 | $2.96 | $2.96 | $0.00 | $0.00 | $0.00 | $5.92 |
| 2026 | 19445 | SD50 - SCHOOL DIST #50 | $0.00 | $0.00 | $0.00 | $0.00 | $0.00 | $0.00 |
| 2026 | 19445 | FD1 - FIRE DISTRICT #1 | $67.25 | $67.24 | $0.00 | $0.00 | $0.00 | $134.49 |
| 2026 | 19445 | EMS1 - FIRE DIST #1 EMS | $25.86 | $25.85 | $0.00 | $0.00 | $0.00 | $51.71 |
| 2026 | 19445 | TOTAL: | $324.16 | $324.09 | $0.00 | $0.00 | $0.00 | $648.25 |
|
| 2026 | 19445 | $324.16 | $324.09 | $0.00 | $0.00 | $0.00 | $648.25 |
Statement Details |
| 2025 | 19505 | STATE - STATE LEVY (SCHOOL) | $86.13 | $86.12 | $0.00 | $0.00 | $172.25 | $0.00 |
| 2025 | 19505 | COUNTY - COUNTY LEVIES (CE, DD, VET, MH) | $52.11 | $52.09 | $0.00 | $0.00 | $104.20 | $0.00 |
| 2025 | 19505 | CONSERVE - CONSERVATION FUTURES | $1.56 | $1.56 | $0.00 | $0.00 | $3.12 | $0.00 |
| 2025 | 19505 | CITYPT - CITY OF PT | $72.31 | $72.30 | $0.00 | $0.00 | $144.61 | $0.00 |
| 2025 | 19505 | PORTPT - PORT DISTRICT | $21.27 | $21.25 | $0.00 | $0.00 | $42.52 | $0.00 |
| 2025 | 19505 | PUD1 - PUD #1 | $3.41 | $3.41 | $0.00 | $0.00 | $6.82 | $0.00 |
| 2025 | 19505 | HD2 - HOSP DIST #2 | $3.04 | $3.04 | $0.00 | $0.00 | $6.08 | $0.00 |
| 2025 | 19505 | SD50 - SCHOOL DIST #50 | $0.00 | $0.00 | $0.00 | $0.00 | $0.00 | $0.00 |
| 2025 | 19505 | FD1 - FIRE DISTRICT #1 | $68.75 | $68.75 | $0.00 | $0.00 | $137.50 | $0.00 |
| 2025 | 19505 | EMS1 - FIRE DIST #1 EMS | $26.45 | $26.44 | $0.00 | $0.00 | $52.89 | $0.00 |
| 2025 | 19505 | TOTAL: | $335.03 | $334.96 | $0.00 | $0.00 | $669.99 | $0.00 |
|
| 2025 | 19505 | $335.03 | $334.96 | $0.00 | $0.00 | $669.99 | $0.00 |
Statement Details |
| 2024 | 19542 | STATE - STATE LEVY (SCHOOL) | $83.19 | $83.19 | $0.00 | $0.00 | $166.38 | $0.00 |
| 2024 | 19542 | COUNTY - COUNTY LEVIES (CE, DD, VET, MH) | $54.71 | $54.69 | $0.00 | $0.00 | $109.40 | $0.00 |
| 2024 | 19542 | CONSERVE - CONSERVATION FUTURES | $1.64 | $1.64 | $0.00 | $0.00 | $3.28 | $0.00 |
| 2024 | 19542 | CITYPT - CITY OF PT | $75.16 | $75.14 | $0.00 | $0.00 | $150.30 | $0.00 |
| 2024 | 19542 | PORTPT - PORT DISTRICT | $22.60 | $22.59 | $0.00 | $0.00 | $45.19 | $0.00 |
| 2024 | 19542 | PUD1 - PUD #1 | $3.60 | $3.59 | $0.00 | $0.00 | $7.19 | $0.00 |
| 2024 | 19542 | HD2 - HOSP DIST #2 | $3.19 | $3.19 | $0.00 | $0.00 | $6.38 | $0.00 |
| 2024 | 19542 | SD50 - SCHOOL DIST #50 | $0.00 | $0.00 | $0.00 | $0.00 | $0.00 | $0.00 |
| 2024 | 19542 | FD1 - FIRE DISTRICT #1 | $72.32 | $72.32 | $0.00 | $0.00 | $144.64 | $0.00 |
| 2024 | 19542 | EMS1 - FIRE DIST #1 EMS | $27.63 | $27.62 | $0.00 | $0.00 | $55.25 | $0.00 |
| 2024 | 19542 | TOTAL: | $344.04 | $343.97 | $0.00 | $0.00 | $688.01 | $0.00 |
|
| 2024 | 19542 | $344.04 | $343.97 | $0.00 | $0.00 | $688.01 | $0.00 |
Statement Details |
| 2023 | 19579 | STATE - STATE LEVY (SCHOOL) | $84.74 | $84.73 | $0.00 | $0.00 | $169.47 | $0.00 |
| 2023 | 19579 | COUNTY - COUNTY LEVIES (CE, DD, VET, MH) | $56.76 | $56.74 | $0.00 | $0.00 | $113.50 | $0.00 |
| 2023 | 19579 | CONSERVE - CONSERVATION FUTURES | $1.70 | $1.70 | $0.00 | $0.00 | $3.40 | $0.00 |
| 2023 | 19579 | CITYPT - CITY OF PT | $77.05 | $77.04 | $0.00 | $0.00 | $154.09 | $0.00 |
| 2023 | 19579 | PORTPT - PORT DISTRICT | $23.91 | $23.91 | $0.00 | $0.00 | $47.82 | $0.00 |
| 2023 | 19579 | PUD1 - PUD #1 | $3.76 | $3.76 | $0.00 | $0.00 | $7.52 | $0.00 |
| 2023 | 19579 | HD2 - HOSP DIST #2 | $3.31 | $3.31 | $0.00 | $0.00 | $6.62 | $0.00 |
| 2023 | 19579 | SD50 - SCHOOL DIST #50 | $0.00 | $0.00 | $0.00 | $0.00 | $0.00 | $0.00 |
| 2023 | 19579 | FD1 - FIRE DISTRICT #1 | $46.76 | $46.75 | $0.00 | $0.00 | $93.51 | $0.00 |
| 2023 | 19579 | EMS1 - FIRE DIST #1 EMS | $19.89 | $19.89 | $0.00 | $0.00 | $39.78 | $0.00 |
| 2023 | 19579 | TOTAL: | $317.88 | $317.83 | $0.00 | $0.00 | $635.71 | $0.00 |
|
| 2023 | 19579 | $317.88 | $317.83 | $0.00 | $0.00 | $635.71 | $0.00 |
Values
| (+) Improvement Homesite Value: | + | $496,981 | |
| (+) Improvement Non-Homesite Value: | + | $0 | |
| (+) Land Homesite Value: | + | $134,800 | |
| (+) Land Non-Homesite Value: | + | $0 | |
| (+) Curr Use (HS): | + | $0 | $0 |
| (+) Curr Use (NHS): | + | $0 | $0 |
| | | -------------------------- | |
| (=) Market Value: | = | $631,781 | |
| (–) Productivity Loss: | – | $0 | |
| | | -------------------------- | |
| (=) Subtotal: | = | $631,781 | |
| (+) Senior Appraised Value: | + | $276,233 | |
| (+) Non-Senior Appraised Value: | + | $0 | |
| | | -------------------------- | |
| (=) Total Appraised Value: | = | $276,233 | |
| (–) Senior Exemption Loss: | – | $165,740 | |
| (–) Exemption Loss: | – | $0 | |
| | | -------------------------- | |
| (=) Taxable Value: | = | $110,493 | |
Taxing Jurisdiction
| Owner: | KELLY SUE CLOUSE REVOCABLE LIVING TRUST | | |
| % Ownership: | 100.0000000000% | | |
| Total Value: | $631,781 | | |
| Tax Area: | 0110 - C-50F1E1H2 |
| CE | COUNTY CURRENT EXPENSE | 0.9034619479 | $631,781 | $110,493 | $99.83 | | |
| CNTYDD | DEVELOPMENTAL DISABILITIES | 0.0052121823 | $631,781 | $110,493 | $0.58 | | |
| CNTYVET | VETERANS RELIEF | 0.0052777810 | $631,781 | $110,493 | $0.58 | | |
| MENTAL | MENTAL HEALTH | 0.0052121823 | $631,781 | $110,493 | $0.58 | | |
| PTGEN | CITY OF PT GENERAL | 0.8551967795 | $631,781 | $110,493 | $94.49 | | |
| PTLLL | CITY OF PT - LIBRARY LID LIFT | 0.4010114288 | $631,781 | $110,493 | $44.31 | | |
| PTMVBOND | CITY OF PT MV BOND | 0.0000000000 | $631,781 | $0 | $0.00 | | |
| HOSP2CASH | HOSP DIST #2 GENERAL | 0.0536075306 | $631,781 | $110,493 | $5.92 | | |
| SCH50BOND | SCHOOL DIST #50 BOND 2016 | 0.0000000000 | $631,781 | $0 | $0.00 | | |
| SCH50CP | SCHOOL DIST #50 CAP PROJ | 0.0000000000 | $631,781 | $0 | $0.00 | | |
| SCH50MO | SCHOOL DIST #50 EP & O | 0.0000000000 | $631,781 | $0 | $0.00 | | |
| CONSERVE | CONSERVATION FUTURES | 0.0275621078 | $631,781 | $110,493 | $3.05 | | |
| EMS1 | FIRE DIST #1 EMS | 0.4679948282 | $631,781 | $110,493 | $51.71 | | |
| FD1 | FIRE DIST #1 GENERAL | 1.2171942929 | $631,781 | $110,493 | $134.49 | | |
| PORTPT | PORT OF PT GENERAL | 0.1134941229 | $631,781 | $110,493 | $12.54 | | |
| PORTPTIDD | PORT OF PT IDD 2019 | 0.2577346692 | $631,781 | $110,493 | $28.48 | | |
| PUD1 | PUD #1 GENERAL | 0.0597888892 | $631,781 | $110,493 | $6.61 | | |
| STATE | STATE SCHOOL PART 1 | 1.4940692947 | $631,781 | $110,493 | $165.08 | | |
| STATE2 | STATE SCHOOL PART 2 | 0.0000000000 | $631,781 | $0 | $0.00 | | |
| | Total Tax Rate: | 5.8668180373 | | | | | |
| | | | | Taxes w/Current Exemptions: | $648.25 | | |
| | | | | Taxes w/o Exemptions: | $5,396.44 | | |
Improvement / Building
| Improvement #1: | Residential Bldg | State Code: | 11 | 1736.0 sqft | Value: | $496,981 |
| Bathrooms (#): | 2 (FULL) | Bedrooms (#): | 3 | | Exterior Wall: | SI/ST | Floor Construction: | CONCR | | Foundation: | CONPR | Heating/Cooling: | HTWTR | | Roof Cover: | METAL |   |   |
|
| | Type | Description | Class CD | Sub Class CD | Year Built | Area |
| | MA | Main Area | 4+ | 1S | 2000 | 1736.0 |
| | PATIO | House Patio | 4 | * | 2000 | 564.0 |
| | GDET | Detached Garage | 4 | 1S | 2000 | 672.0 |
| | HDECK | House Deck | 4 | * | 2000 | 64.0 |
Sketch
Property Image
Land
| 1 | 6110-1178L | | 0.0000 | 0.00 | 0.00 | 0.00 | 2.00 | $130,000 | $0 |
| 2 | 6110-1179L | | 0.0000 | 0.00 | 0.00 | 0.00 | 1.00 | $4,800 | $0 |
Roll Value History
| 2026 | N/A | N/A | N/A | N/A | N/A |
| 2025 | $496,981 | $134,800 | $0 | $631,781 | $110,493 |
| 2024 | $466,474 | $130,704 | $0 | $597,178 | $110,493 |
| 2023 | $466,474 | $125,454 | $0 | $591,928 | $110,493 |
| 2022 | $427,601 | $114,480 | $0 | $542,081 | $110,493 |
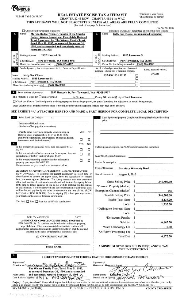
Deed and Sales History
| 1 | 05/09/2019 | SWD | Statutory Warranty Deed | KELLY S CLOUSE | KELLY SUE CLOUSE REVOCABLE LIVING TRUST | | | | 132315 | |
| 2 | 06/24/2016 | EASE | Assignment of Easement | | | | | | 125856 | |
| 3 | 08/01/2016 | SWD | Statutory Warranty Deed | SOL WIENER | KELLY S CLOUSE | | | $346,500.00 | 125996 | |
| 4 | 03/28/2003 | SWD | Statutory Warranty Deed | KRAXBERGER, RANDY/ENARSON | WIENER FAMILY TRUST | 0 | 0 | $0.00 | 96977 | 0 |
| 5 | 10/24/1997 | BLA | Boundary Line Adjustment | ENARSON, L/KRAXBERGER, R | ENARSON, L/KRAXBERGER, R | 0 | 0 | $0.00 | 83033 | 0 |
Payout Agreement
| No payout information available.. |