Property
Account |
| Property ID: | 30176 | Abbreviated Legal Description: | HASTINGS 2ND ADDITION BLK 72 LOTS 2 & 4 |
| Parcel # / Geo ID: | 957607207 | Agent Code: | |
| Type: | Real | | |
| Tax Area: | 0110 - C-50F1E1H2 | Land Use Code | 63 |
| Open Space: | N | DFL | N |
| Historic Property: | N | Remodel Property: | N |
| Multi-Family Redevelopment: | N | | |
| Township: | 30N | Section: | 11 |
| Range: | 1W |
Location |
| Address: | 2409 JEFFERSON ST PORT TOWNSEND, WA 98368 | Mapsco: | 060/060 |
| Neighborhood: | SIMS WAY / WASHINGTON ST / PORT COMMERCIAL AREA | Map ID: | |
| Neighborhood CD: | 6240C |
Owner |
| Name: | WILLIAM WHITE STORAGE LLC | Owner ID: | 96767 |
| Mailing Address: | WILLIAM WHITE MANAGING MEMBER PO BOX 1747 PORT TOWNSEND, WA 98368 | % Ownership: | 100.0000000000% |
| | | Exemptions: | |
Pay Tax Due
Select the appropriate checkbox next to the year to be paid. Multiple years may be selected.
*Convenience Fee not included
Taxes and Assessment Details
Property Tax Information as of
03/11/2026
Click on "Statement Details" to expand or collapse a tax statement.
* Please enter a valid date ** Please enter a valid date *
Statement Details |
| 2026 | 19486 | STATE - STATE LEVY (SCHOOL) | $999.09 | $999.07 | $0.00 | $0.00 | $0.00 | $1998.16 |
| 2026 | 19486 | COUNTY - COUNTY LEVIES (CE, DD, VET, MH) | $399.45 | $399.41 | $0.00 | $0.00 | $0.00 | $798.86 |
| 2026 | 19486 | CONSERVE - CONSERVATION FUTURES | $11.98 | $11.97 | $0.00 | $0.00 | $0.00 | $23.95 |
| 2026 | 19486 | CITYPT - CITY OF PT | $566.96 | $566.95 | $0.00 | $0.00 | $0.00 | $1133.91 |
| 2026 | 19486 | PORTPT - PORT DISTRICT | $161.32 | $161.32 | $0.00 | $0.00 | $0.00 | $322.64 |
| 2026 | 19486 | PUD1 - PUD #1 | $25.98 | $25.98 | $0.00 | $0.00 | $0.00 | $51.96 |
| 2026 | 19486 | HD2 - HOSP DIST #2 | $23.30 | $23.29 | $0.00 | $0.00 | $0.00 | $46.59 |
| 2026 | 19486 | SD50 - SCHOOL DIST #50 | $791.49 | $791.48 | $0.00 | $0.00 | $0.00 | $1582.97 |
| 2026 | 19486 | FD1 - FIRE DISTRICT #1 | $528.94 | $528.93 | $0.00 | $0.00 | $0.00 | $1057.87 |
| 2026 | 19486 | EMS1 - FIRE DIST #1 EMS | $203.37 | $203.37 | $0.00 | $0.00 | $0.00 | $406.74 |
| 2026 | 19486 | JCCD - JC Conservation District | $2.53 | $2.53 | $0.00 | $0.00 | $0.00 | $5.06 |
| 2026 | 19486 | NWA - Noxious Weed Assessment | $2.98 | $2.97 | $0.00 | $0.00 | $0.00 | $5.95 |
| 2026 | 19486 | TOTAL: | $3717.39 | $3717.27 | $0.00 | $0.00 | $0.00 | $7434.66 |
|
| 2026 | 19486 | $3717.39 | $3717.27 | $0.00 | $0.00 | $0.00 | $7434.66 |
Statement Details |
| 2025 | 19546 | STATE - STATE LEVY (SCHOOL) | $1028.73 | $1028.71 | $0.00 | $0.00 | $2057.44 | $0.00 |
| 2025 | 19546 | COUNTY - COUNTY LEVIES (CE, DD, VET, MH) | $404.55 | $404.54 | $0.00 | $0.00 | $809.09 | $0.00 |
| 2025 | 19546 | CONSERVE - CONSERVATION FUTURES | $12.13 | $12.13 | $0.00 | $0.00 | $24.26 | $0.00 |
| 2025 | 19546 | CITYPT - CITY OF PT | $583.40 | $583.38 | $0.00 | $0.00 | $1166.78 | $0.00 |
| 2025 | 19546 | PORTPT - PORT DISTRICT | $165.08 | $165.07 | $0.00 | $0.00 | $330.15 | $0.00 |
| 2025 | 19546 | PUD1 - PUD #1 | $26.47 | $26.47 | $0.00 | $0.00 | $52.94 | $0.00 |
| 2025 | 19546 | HD2 - HOSP DIST #2 | $23.60 | $23.60 | $0.00 | $0.00 | $47.20 | $0.00 |
| 2025 | 19546 | SD50 - SCHOOL DIST #50 | $751.83 | $751.81 | $0.00 | $0.00 | $1503.64 | $0.00 |
| 2025 | 19546 | FD1 - FIRE DISTRICT #1 | $533.83 | $533.83 | $0.00 | $0.00 | $1067.66 | $0.00 |
| 2025 | 19546 | EMS1 - FIRE DIST #1 EMS | $205.33 | $205.32 | $0.00 | $0.00 | $410.65 | $0.00 |
| 2025 | 19546 | JCCD - JC Conservation District | $2.53 | $2.53 | $0.00 | $0.00 | $5.06 | $0.00 |
| 2025 | 19546 | NWA - Noxious Weed Assessment | $2.15 | $2.15 | $0.00 | $0.00 | $4.30 | $0.00 |
| 2025 | 19546 | TOTAL: | $3739.63 | $3739.54 | $0.00 | $0.00 | $7479.17 | $0.00 |
|
| 2025 | 19546 | $3739.63 | $3739.54 | $0.00 | $0.00 | $7479.17 | $0.00 |
Statement Details |
| 2024 | 19583 | STATE - STATE LEVY (SCHOOL) | $986.73 | $986.71 | $0.00 | $0.00 | $1973.44 | $0.00 |
| 2024 | 19583 | COUNTY - COUNTY LEVIES (CE, DD, VET, MH) | $422.25 | $422.21 | $0.00 | $0.00 | $844.46 | $0.00 |
| 2024 | 19583 | CONSERVE - CONSERVATION FUTURES | $12.66 | $12.66 | $0.00 | $0.00 | $25.32 | $0.00 |
| 2024 | 19583 | CITYPT - CITY OF PT | $603.31 | $603.28 | $0.00 | $0.00 | $1206.59 | $0.00 |
| 2024 | 19583 | PORTPT - PORT DISTRICT | $174.41 | $174.39 | $0.00 | $0.00 | $348.80 | $0.00 |
| 2024 | 19583 | PUD1 - PUD #1 | $27.74 | $27.73 | $0.00 | $0.00 | $55.47 | $0.00 |
| 2024 | 19583 | HD2 - HOSP DIST #2 | $24.64 | $24.63 | $0.00 | $0.00 | $49.27 | $0.00 |
| 2024 | 19583 | SD50 - SCHOOL DIST #50 | $798.30 | $798.30 | $0.00 | $0.00 | $1596.60 | $0.00 |
| 2024 | 19583 | FD1 - FIRE DISTRICT #1 | $558.29 | $558.28 | $0.00 | $0.00 | $1116.57 | $0.00 |
| 2024 | 19583 | EMS1 - FIRE DIST #1 EMS | $213.25 | $213.24 | $0.00 | $0.00 | $426.49 | $0.00 |
| 2024 | 19583 | JCCD - JC Conservation District | $2.53 | $2.53 | $0.00 | $0.00 | $5.06 | $0.00 |
| 2024 | 19583 | NWA - Noxious Weed Assessment | $2.15 | $2.15 | $0.00 | $0.00 | $4.30 | $0.00 |
| 2024 | 19583 | TOTAL: | $3826.26 | $3826.11 | $0.00 | $0.00 | $7652.37 | $0.00 |
|
| 2024 | 19583 | $3826.26 | $3826.11 | $0.00 | $0.00 | $7652.37 | $0.00 |
Statement Details |
| 2023 | 19620 | STATE - STATE LEVY (SCHOOL) | $940.08 | $940.07 | $0.00 | $0.00 | $1880.15 | $0.00 |
| 2023 | 19620 | COUNTY - COUNTY LEVIES (CE, DD, VET, MH) | $410.23 | $410.22 | $0.00 | $0.00 | $820.45 | $0.00 |
| 2023 | 19620 | CONSERVE - CONSERVATION FUTURES | $12.30 | $12.30 | $0.00 | $0.00 | $24.60 | $0.00 |
| 2023 | 19620 | CITYPT - CITY OF PT | $579.79 | $579.77 | $0.00 | $0.00 | $1159.56 | $0.00 |
| 2023 | 19620 | PORTPT - PORT DISTRICT | $172.81 | $172.80 | $0.00 | $0.00 | $345.61 | $0.00 |
| 2023 | 19620 | PUD1 - PUD #1 | $27.19 | $27.19 | $0.00 | $0.00 | $54.38 | $0.00 |
| 2023 | 19620 | HD2 - HOSP DIST #2 | $23.95 | $23.93 | $0.00 | $0.00 | $47.88 | $0.00 |
| 2023 | 19620 | SD50 - SCHOOL DIST #50 | $745.97 | $745.96 | $0.00 | $0.00 | $1491.93 | $0.00 |
| 2023 | 19620 | FD1 - FIRE DISTRICT #1 | $337.94 | $337.94 | $0.00 | $0.00 | $675.88 | $0.00 |
| 2023 | 19620 | EMS1 - FIRE DIST #1 EMS | $143.76 | $143.75 | $0.00 | $0.00 | $287.51 | $0.00 |
| 2023 | 19620 | JCCD - JC Conservation District | $2.53 | $2.53 | $0.00 | $0.00 | $5.06 | $0.00 |
| 2023 | 19620 | NWA - Noxious Weed Assessment | $2.15 | $2.15 | $0.00 | $0.00 | $4.30 | $0.00 |
| 2023 | 19620 | TOTAL: | $3398.70 | $3398.61 | $0.00 | $0.00 | $6797.31 | $0.00 |
|
| 2023 | 19620 | $3398.70 | $3398.61 | $0.00 | $0.00 | $6797.31 | $0.00 |
Values
| (+) Improvement Homesite Value: | + | $0 | |
| (+) Improvement Non-Homesite Value: | + | $538,733 | |
| (+) Land Homesite Value: | + | $0 | |
| (+) Land Non-Homesite Value: | + | $330,376 | |
| (+) Curr Use (HS): | + | $0 | $0 |
| (+) Curr Use (NHS): | + | $0 | $0 |
| | | -------------------------- | |
| (=) Market Value: | = | $869,109 | |
| (–) Productivity Loss: | – | $0 | |
| | | -------------------------- | |
| (=) Subtotal: | = | $869,109 | |
| (+) Senior Appraised Value: | + | $0 | |
| (+) Non-Senior Appraised Value: | + | $869,109 | |
| | | -------------------------- | |
| (=) Total Appraised Value: | = | $869,109 | |
| (–) Senior Exemption Loss: | – | $0 | |
| (–) Exemption Loss: | – | $0 | |
| | | -------------------------- | |
| (=) Taxable Value: | = | $869,109 | |
Taxing Jurisdiction
| Owner: | WILLIAM WHITE STORAGE LLC | | |
| % Ownership: | 100.0000000000% | | |
| Total Value: | $869,109 | | |
| Tax Area: | 0110 - C-50F1E1H2 |
| CE | COUNTY CURRENT EXPENSE | 0.9034619479 | $869,109 | $869,109 | $785.21 | | |
| CNTYDD | DEVELOPMENTAL DISABILITIES | 0.0052121823 | $869,109 | $869,109 | $4.53 | | |
| CNTYVET | VETERANS RELIEF | 0.0052777810 | $869,109 | $869,109 | $4.59 | | |
| MENTAL | MENTAL HEALTH | 0.0052121823 | $869,109 | $869,109 | $4.53 | | |
| PTGEN | CITY OF PT GENERAL | 0.8551967795 | $869,109 | $869,109 | $743.26 | | |
| PTLLL | CITY OF PT - LIBRARY LID LIFT | 0.4010114288 | $869,109 | $869,109 | $348.52 | | |
| PTMVBOND | CITY OF PT MV BOND | 0.0484717981 | $869,109 | $869,109 | $42.13 | | |
| HOSP2CASH | HOSP DIST #2 GENERAL | 0.0536075306 | $869,109 | $869,109 | $46.59 | | |
| SCH50BOND | SCHOOL DIST #50 BOND 2016 | 0.5377451389 | $869,109 | $869,109 | $467.36 | | |
| SCH50CP | SCHOOL DIST #50 CAP PROJ | 0.4573475088 | $869,109 | $869,109 | $397.48 | | |
| SCH50MO | SCHOOL DIST #50 EP & O | 0.8262822886 | $869,109 | $869,109 | $718.13 | | |
| CONSERVE | CONSERVATION FUTURES | 0.0275621078 | $869,109 | $869,109 | $23.95 | | |
| EMS1 | FIRE DIST #1 EMS | 0.4679948282 | $869,109 | $869,109 | $406.74 | | |
| FD1 | FIRE DIST #1 GENERAL | 1.2171942929 | $869,109 | $869,109 | $1,057.87 | | |
| PORTPT | PORT OF PT GENERAL | 0.1134941229 | $869,109 | $869,109 | $98.64 | | |
| PORTPTIDD | PORT OF PT IDD 2019 | 0.2577346692 | $869,109 | $869,109 | $224.00 | | |
| PUD1 | PUD #1 GENERAL | 0.0597888892 | $869,109 | $869,109 | $51.96 | | |
| STATE | STATE SCHOOL PART 1 | 1.4940692947 | $869,109 | $869,109 | $1,298.51 | | |
| STATE2 | STATE SCHOOL PART 2 | 0.8050170049 | $869,109 | $869,109 | $699.65 | | |
| | Total Tax Rate: | 8.5416817766 | | | | | |
| | | | | Taxes w/Current Exemptions: | $7,423.65 | | |
| | | | | Taxes w/o Exemptions: | $7,423.65 | | |
Improvement / Building
| Improvement #1: | Commercial/Industrial/Government Bldg | State Code: | 63 | 6844.0 sqft | Value: | $538,733 |
| Exterior Wall: | BL/VE | Floor Construction: | CONCR | | Foundation: | CONPR | Interior Finish: | FIN | | Roof Cover: | BLTUP |   |   |
|
| | Type | Description | Class CD | Sub Class CD | Year Built | Area |
| | M&S | Commercial (M&S) | 3 | * | 1975 | 3500.0 |
| | M&S | Commercial (M&S) | 3 | * | 1975 | 3344.0 |
Sketch
Property Image
Land
| 1 | 6240-6263Q | | 0.2778 | 12099.00 | 0.00 | 0.00 | 0.00 | $330,376 | $0 |
Roll Value History
| 2026 | N/A | N/A | N/A | N/A | N/A |
| 2025 | $538,733 | $330,376 | $0 | $869,109 | $869,109 |
| 2024 | $527,597 | $330,376 | $0 | $857,973 | $857,973 |
| 2023 | $527,597 | $325,376 | $0 | $852,973 | $852,973 |
| 2022 | $502,473 | $296,178 | $0 | $798,651 | $798,651 |
Deed and Sales History
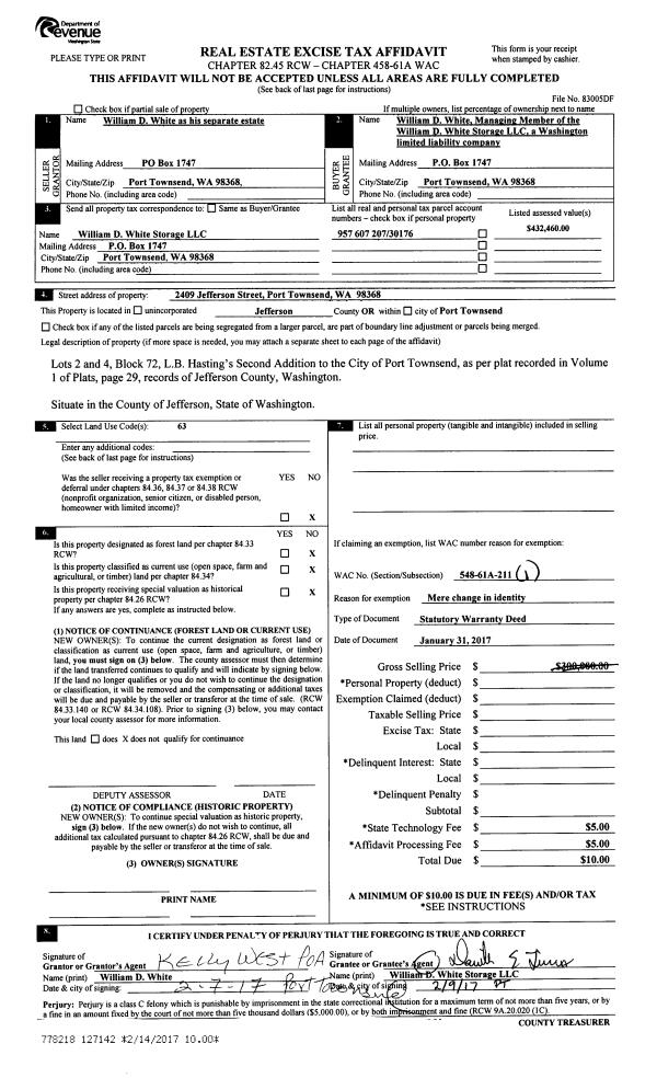
| 1 | 01/31/2017 | SWD | Statutory Warranty Deed | WILLIAM D WHITE | WILLIAM WHITE STORAGE LLC | | | | 127142 | |
| 2 | 01/31/2017 | QCD | Quit Claim Deed | WILLIAM D WHITE | WILLIAM D WHITE | | | $300,000.00 | 127141 | |
| 3 | 12/31/2005 | QCD | Quit Claim Deed | WHITE, WILLIAM D | CARTER, HK TESTAMENTARY TRUST | 0 | 0 | $0.00 | 105866 | 0 |
Payout Agreement
| No payout information available.. |