Property
Account |
| Property ID: | 30197 | Abbreviated Legal Description: | HASTINGS 3RD ADDITION BLK 2 LOTS 8(ALL), 9(W1/2) |
| Parcel # / Geo ID: | 957900205 | Agent Code: | |
| Type: | Real | | |
| Tax Area: | 0110 - C-50F1E1H2 | Land Use Code | 18 |
| Open Space: | N | DFL | N |
| Historic Property: | N | Remodel Property: | N |
| Multi-Family Redevelopment: | N | | |
| Township: | 30N | Section: | 3 |
| Range: | 1W |
Location |
| Address: | | Mapsco: | 061/008 |
| Neighborhood: | HASTINGS 3RD | Map ID: | |
| Neighborhood CD: | 6110 |
Owner |
| Name: | KATHERINE LITCHFIELD-TERRAN | Owner ID: | 110688 |
| Mailing Address: | DEREK HOLLINSWORTH-TERRAN 2705 LANDES ST PORT TOWNSEND, WA 98368-7119 | % Ownership: | 100.0000000000% |
| | | Exemptions: | |
Pay Tax Due
Select the appropriate checkbox next to the year to be paid. Multiple years may be selected.
*Convenience Fee not included
Taxes and Assessment Details
Property Tax Information as of
03/11/2026
Click on "Statement Details" to expand or collapse a tax statement.
* Please enter a valid date ** Please enter a valid date *
Statement Details |
| 2026 | 19506 | STATE - STATE LEVY (SCHOOL) | $118.90 | $118.89 | $0.00 | $0.00 | $0.00 | $237.79 |
| 2026 | 19506 | COUNTY - COUNTY LEVIES (CE, DD, VET, MH) | $47.54 | $47.53 | $0.00 | $0.00 | $0.00 | $95.07 |
| 2026 | 19506 | CONSERVE - CONSERVATION FUTURES | $1.43 | $1.42 | $0.00 | $0.00 | $0.00 | $2.85 |
| 2026 | 19506 | CITYPT - CITY OF PT | $67.48 | $67.46 | $0.00 | $0.00 | $0.00 | $134.94 |
| 2026 | 19506 | PORTPT - PORT DISTRICT | $19.20 | $19.20 | $0.00 | $0.00 | $0.00 | $38.40 |
| 2026 | 19506 | PUD1 - PUD #1 | $3.09 | $3.09 | $0.00 | $0.00 | $0.00 | $6.18 |
| 2026 | 19506 | HD2 - HOSP DIST #2 | $2.77 | $2.77 | $0.00 | $0.00 | $0.00 | $5.54 |
| 2026 | 19506 | SD50 - SCHOOL DIST #50 | $94.19 | $94.19 | $0.00 | $0.00 | $0.00 | $188.38 |
| 2026 | 19506 | FD1 - FIRE DISTRICT #1 | $62.95 | $62.94 | $0.00 | $0.00 | $0.00 | $125.89 |
| 2026 | 19506 | EMS1 - FIRE DIST #1 EMS | $24.20 | $24.20 | $0.00 | $0.00 | $0.00 | $48.40 |
| 2026 | 19506 | JCCD - JC Conservation District | $2.53 | $2.53 | $0.00 | $0.00 | $0.00 | $5.06 |
| 2026 | 19506 | NWA - Noxious Weed Assessment | $2.98 | $2.97 | $0.00 | $0.00 | $0.00 | $5.95 |
| 2026 | 19506 | WAT - Clean Water District | $13.00 | $13.00 | $0.00 | $0.00 | $0.00 | $26.00 |
| 2026 | 19506 | TOTAL: | $460.26 | $460.19 | $0.00 | $0.00 | $0.00 | $920.45 |
|
| 2026 | 19506 | $460.26 | $460.19 | $0.00 | $0.00 | $0.00 | $920.45 |
Statement Details |
| 2025 | 19566 | STATE - STATE LEVY (SCHOOL) | $123.92 | $123.92 | $0.00 | $0.00 | $247.84 | $0.00 |
| 2025 | 19566 | COUNTY - COUNTY LEVIES (CE, DD, VET, MH) | $48.74 | $48.72 | $0.00 | $0.00 | $97.46 | $0.00 |
| 2025 | 19566 | CONSERVE - CONSERVATION FUTURES | $1.46 | $1.46 | $0.00 | $0.00 | $2.92 | $0.00 |
| 2025 | 19566 | CITYPT - CITY OF PT | $70.28 | $70.27 | $0.00 | $0.00 | $140.55 | $0.00 |
| 2025 | 19566 | PORTPT - PORT DISTRICT | $19.89 | $19.88 | $0.00 | $0.00 | $39.77 | $0.00 |
| 2025 | 19566 | PUD1 - PUD #1 | $3.19 | $3.19 | $0.00 | $0.00 | $6.38 | $0.00 |
| 2025 | 19566 | HD2 - HOSP DIST #2 | $2.85 | $2.84 | $0.00 | $0.00 | $5.69 | $0.00 |
| 2025 | 19566 | SD50 - SCHOOL DIST #50 | $90.57 | $90.56 | $0.00 | $0.00 | $181.13 | $0.00 |
| 2025 | 19566 | FD1 - FIRE DISTRICT #1 | $64.31 | $64.30 | $0.00 | $0.00 | $128.61 | $0.00 |
| 2025 | 19566 | EMS1 - FIRE DIST #1 EMS | $24.74 | $24.73 | $0.00 | $0.00 | $49.47 | $0.00 |
| 2025 | 19566 | JCCD - JC Conservation District | $2.55 | $2.55 | $0.00 | $0.00 | $5.10 | $0.00 |
| 2025 | 19566 | NWA - Noxious Weed Assessment | $2.15 | $2.15 | $0.00 | $0.00 | $4.30 | $0.00 |
| 2025 | 19566 | WAT - Clean Water District | $13.00 | $13.00 | $0.00 | $0.00 | $26.00 | $0.00 |
| 2025 | 19566 | TOTAL: | $467.65 | $467.57 | $0.00 | $0.00 | $935.22 | $0.00 |
|
| 2025 | 19566 | $467.65 | $467.57 | $0.00 | $0.00 | $935.22 | $0.00 |
Statement Details |
| 2024 | 19603 | STATE - STATE LEVY (SCHOOL) | $119.56 | $119.55 | $0.00 | $0.00 | $239.11 | $0.00 |
| 2024 | 19603 | COUNTY - COUNTY LEVIES (CE, DD, VET, MH) | $51.16 | $51.16 | $0.00 | $0.00 | $102.32 | $0.00 |
| 2024 | 19603 | CONSERVE - CONSERVATION FUTURES | $1.54 | $1.53 | $0.00 | $0.00 | $3.07 | $0.00 |
| 2024 | 19603 | CITYPT - CITY OF PT | $73.11 | $73.09 | $0.00 | $0.00 | $146.20 | $0.00 |
| 2024 | 19603 | PORTPT - PORT DISTRICT | $21.14 | $21.12 | $0.00 | $0.00 | $42.26 | $0.00 |
| 2024 | 19603 | PUD1 - PUD #1 | $3.36 | $3.36 | $0.00 | $0.00 | $6.72 | $0.00 |
| 2024 | 19603 | HD2 - HOSP DIST #2 | $2.99 | $2.98 | $0.00 | $0.00 | $5.97 | $0.00 |
| 2024 | 19603 | SD50 - SCHOOL DIST #50 | $96.73 | $96.72 | $0.00 | $0.00 | $193.45 | $0.00 |
| 2024 | 19603 | FD1 - FIRE DISTRICT #1 | $67.65 | $67.64 | $0.00 | $0.00 | $135.29 | $0.00 |
| 2024 | 19603 | EMS1 - FIRE DIST #1 EMS | $25.84 | $25.84 | $0.00 | $0.00 | $51.68 | $0.00 |
| 2024 | 19603 | JCCD - JC Conservation District | $2.55 | $2.55 | $0.00 | $0.00 | $5.10 | $0.00 |
| 2024 | 19603 | NWA - Noxious Weed Assessment | $2.15 | $2.15 | $0.00 | $0.00 | $4.30 | $0.00 |
| 2024 | 19603 | WAT - Clean Water District | $12.50 | $12.50 | $0.00 | $0.00 | $25.00 | $0.00 |
| 2024 | 19603 | TOTAL: | $480.28 | $480.19 | $0.00 | $0.00 | $960.47 | $0.00 |
|
| 2024 | 19603 | $480.28 | $480.19 | $0.00 | $0.00 | $960.47 | $0.00 |
Statement Details |
| 2023 | 19640 | STATE - STATE LEVY (SCHOOL) | $114.92 | $114.90 | $0.00 | $0.00 | $229.82 | $0.00 |
| 2023 | 19640 | COUNTY - COUNTY LEVIES (CE, DD, VET, MH) | $50.16 | $50.13 | $0.00 | $0.00 | $100.29 | $0.00 |
| 2023 | 19640 | CONSERVE - CONSERVATION FUTURES | $1.51 | $1.50 | $0.00 | $0.00 | $3.01 | $0.00 |
| 2023 | 19640 | CITYPT - CITY OF PT | $70.88 | $70.85 | $0.00 | $0.00 | $141.73 | $0.00 |
| 2023 | 19640 | PORTPT - PORT DISTRICT | $21.12 | $21.12 | $0.00 | $0.00 | $42.24 | $0.00 |
| 2023 | 19640 | PUD1 - PUD #1 | $3.33 | $3.32 | $0.00 | $0.00 | $6.65 | $0.00 |
| 2023 | 19640 | HD2 - HOSP DIST #2 | $2.93 | $2.92 | $0.00 | $0.00 | $5.85 | $0.00 |
| 2023 | 19640 | SD50 - SCHOOL DIST #50 | $91.19 | $91.18 | $0.00 | $0.00 | $182.37 | $0.00 |
| 2023 | 19640 | FD1 - FIRE DISTRICT #1 | $41.31 | $41.31 | $0.00 | $0.00 | $82.62 | $0.00 |
| 2023 | 19640 | EMS1 - FIRE DIST #1 EMS | $17.57 | $17.57 | $0.00 | $0.00 | $35.14 | $0.00 |
| 2023 | 19640 | JCCD - JC Conservation District | $2.55 | $2.55 | $0.00 | $0.00 | $5.10 | $0.00 |
| 2023 | 19640 | NWA - Noxious Weed Assessment | $2.15 | $2.15 | $0.00 | $0.00 | $4.30 | $0.00 |
| 2023 | 19640 | WAT - Clean Water District | $12.00 | $12.00 | $0.00 | $0.00 | $24.00 | $0.00 |
| 2023 | 19640 | TOTAL: | $431.62 | $431.50 | $0.00 | $0.00 | $863.12 | $0.00 |
|
| 2023 | 19640 | $431.62 | $431.50 | $0.00 | $0.00 | $863.12 | $0.00 |
Values
| (+) Improvement Homesite Value: | + | $0 | |
| (+) Improvement Non-Homesite Value: | + | $20,926 | |
| (+) Land Homesite Value: | + | $0 | |
| (+) Land Non-Homesite Value: | + | $82,500 | |
| (+) Curr Use (HS): | + | $0 | $0 |
| (+) Curr Use (NHS): | + | $0 | $0 |
| | | -------------------------- | |
| (=) Market Value: | = | $103,426 | |
| (–) Productivity Loss: | – | $0 | |
| | | -------------------------- | |
| (=) Subtotal: | = | $103,426 | |
| (+) Senior Appraised Value: | + | $0 | |
| (+) Non-Senior Appraised Value: | + | $103,426 | |
| | | -------------------------- | |
| (=) Total Appraised Value: | = | $103,426 | |
| (–) Senior Exemption Loss: | – | $0 | |
| (–) Exemption Loss: | – | $0 | |
| | | -------------------------- | |
| (=) Taxable Value: | = | $103,426 | |
Taxing Jurisdiction
| Owner: | KATHERINE LITCHFIELD-TERRAN | | |
| % Ownership: | 100.0000000000% | | |
| Total Value: | N/A | | |
| Tax Area: | 0110 - C-50F1E1H2 |
| CE | COUNTY CURRENT EXPENSE | N/A | N/A | N/A | N/A | | |
| CNTYDD | DEVELOPMENTAL DISABILITIES | N/A | N/A | N/A | N/A | | |
| CNTYVET | VETERANS RELIEF | N/A | N/A | N/A | N/A | | |
| MENTAL | MENTAL HEALTH | N/A | N/A | N/A | N/A | | |
| PTGEN | CITY OF PT GENERAL | N/A | N/A | N/A | N/A | | |
| PTLLL | CITY OF PT - LIBRARY LID LIFT | N/A | N/A | N/A | N/A | | |
| PTMVBOND | CITY OF PT MV BOND | N/A | N/A | N/A | N/A | | |
| HOSP2CASH | HOSP DIST #2 GENERAL | N/A | N/A | N/A | N/A | | |
| SCH50BOND | SCHOOL DIST #50 BOND 2016 | N/A | N/A | N/A | N/A | | |
| SCH50CP | SCHOOL DIST #50 CAP PROJ | N/A | N/A | N/A | N/A | | |
| SCH50MO | SCHOOL DIST #50 EP & O | N/A | N/A | N/A | N/A | | |
| CONSERVE | CONSERVATION FUTURES | N/A | N/A | N/A | N/A | | |
| EMS1 | FIRE DIST #1 EMS | N/A | N/A | N/A | N/A | | |
| FD1 | FIRE DIST #1 GENERAL | N/A | N/A | N/A | N/A | | |
| PORTPT | PORT OF PT GENERAL | N/A | N/A | N/A | N/A | | |
| PORTPTIDD | PORT OF PT IDD 2019 | N/A | N/A | N/A | N/A | | |
| PUD1 | PUD #1 GENERAL | N/A | N/A | N/A | N/A | | |
| STATE | STATE SCHOOL PART 1 | N/A | N/A | N/A | N/A | | |
| STATE2 | STATE SCHOOL PART 2 | N/A | N/A | N/A | N/A | | |
| | Total Tax Rate: | N/A | | | | | |
| | | | | Taxes w/Current Exemptions: | N/A | | |
| | | | | Taxes w/o Exemptions: | N/A | | |
Improvement / Building
| Improvement #1: | Residential Bldg | State Code: | 18 | 0.0 sqft | Value: | $20,926 |
Sketch
Property Image
Land
| 1 | 6110-1176L | | 0.0000 | 0.00 | 0.00 | 0.00 | 1.00 | $75,000 | $0 |
| 2 | 6110-1179L | | 0.0000 | 0.00 | 0.00 | 0.00 | 1.00 | $7,500 | $0 |
Roll Value History
| 2026 | N/A | N/A | N/A | N/A | N/A |
| 2025 | $20,926 | $82,500 | $0 | $103,426 | $103,426 |
| 2024 | $22,500 | $80,850 | $0 | $103,350 | $103,350 |
| 2023 | $22,500 | $80,850 | $0 | $103,350 | $103,350 |
| 2022 | $20,625 | $77,000 | $0 | $97,625 | $97,625 |
Deed and Sales History
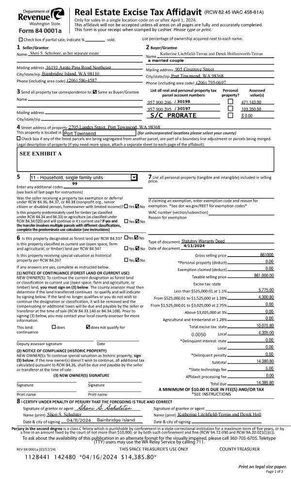
| 1 | 04/11/2024 | SWD | Statutory Warranty Deed | SHERI S SEHULSTER | KATHERINE LITCHFIELD-TERRAN | | | $861,000.00 | 142480 | |
|   | |
| 2 | 02/10/1998 | SWD | Statutory Warranty Deed | MCKINNEY, ELBERT W/SUSAN | SEHULSTER, THOMAS/SHERI S | 0 | 0 | $0.00 | 83782 | 0 |
Payout Agreement
| No payout information available.. |