Property
Account |
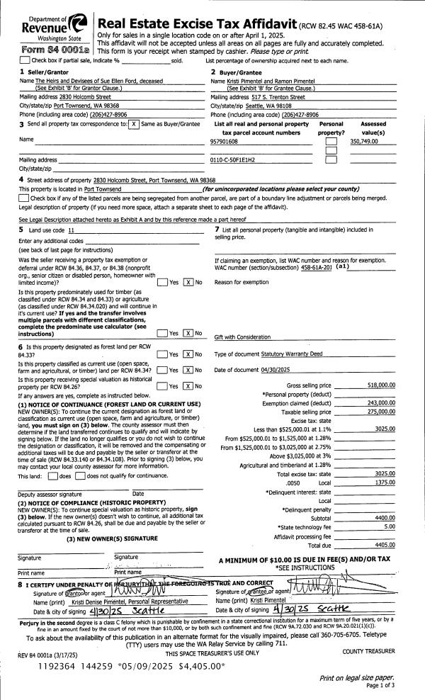
| Property ID: | 30287 | Abbreviated Legal Description: | HASTINGS 3RD ADDITION BLK 16 LOT 3 TO 5(ENLG BY TX67) |
| Parcel # / Geo ID: | 957901608 | Agent Code: | |
| Type: | Real | | |
| Tax Area: | 0110 - C-50F1E1H2 | Land Use Code | 11 |
| Open Space: | N | DFL | N |
| Historic Property: | N | Remodel Property: | N |
| Multi-Family Redevelopment: | N | | |
| Township: | 30N | Section: | 3 |
| Range: | 1W |
Location |
| Address: | 2830 HOLCOMB ST PORT TOWNSEND, WA 98368 | Mapsco: | 062/042 |
| Neighborhood: | HASTINGS 3RD | Map ID: | |
| Neighborhood CD: | 6110 |
Owner |
| Name: | KRISTI & RAMON PIMENTEL | Owner ID: | 112580 |
| Mailing Address: | 517 S TRENTON ST SEATTLE, WA 98108-4542 | % Ownership: | 100.0000000000% |
| | | Exemptions: | |
Pay Tax Due
Select the appropriate checkbox next to the year to be paid. Multiple years may be selected.
*Convenience Fee not included
Taxes and Assessment Details
Property Tax Information as of
03/10/2026
Click on "Statement Details" to expand or collapse a tax statement.
* Please enter a valid date ** Please enter a valid date *
Statement Details |
| 2026 | 19592 | STATE - STATE LEVY (SCHOOL) | $555.91 | $555.91 | $0.00 | $0.00 | $0.00 | $1111.82 |
| 2026 | 19592 | COUNTY - COUNTY LEVIES (CE, DD, VET, MH) | $222.26 | $222.24 | $0.00 | $0.00 | $0.00 | $444.50 |
| 2026 | 19592 | CONSERVE - CONSERVATION FUTURES | $6.67 | $6.66 | $0.00 | $0.00 | $0.00 | $13.33 |
| 2026 | 19592 | CITYPT - CITY OF PT | $315.48 | $315.46 | $0.00 | $0.00 | $0.00 | $630.94 |
| 2026 | 19592 | PORTPT - PORT DISTRICT | $89.76 | $89.76 | $0.00 | $0.00 | $0.00 | $179.52 |
| 2026 | 19592 | PUD1 - PUD #1 | $14.46 | $14.45 | $0.00 | $0.00 | $0.00 | $28.91 |
| 2026 | 19592 | HD2 - HOSP DIST #2 | $12.96 | $12.96 | $0.00 | $0.00 | $0.00 | $25.92 |
| 2026 | 19592 | SD50 - SCHOOL DIST #50 | $440.41 | $440.39 | $0.00 | $0.00 | $0.00 | $880.80 |
| 2026 | 19592 | FD1 - FIRE DISTRICT #1 | $294.32 | $294.31 | $0.00 | $0.00 | $0.00 | $588.63 |
| 2026 | 19592 | EMS1 - FIRE DIST #1 EMS | $113.16 | $113.16 | $0.00 | $0.00 | $0.00 | $226.32 |
| 2026 | 19592 | JCCD - JC Conservation District | $2.55 | $2.55 | $0.00 | $0.00 | $0.00 | $5.10 |
| 2026 | 19592 | NWA - Noxious Weed Assessment | $2.98 | $2.97 | $0.00 | $0.00 | $0.00 | $5.95 |
| 2026 | 19592 | TOTAL: | $2070.92 | $2070.82 | $0.00 | $0.00 | $0.00 | $4141.74 |
|
| 2026 | 19592 | $2070.92 | $2070.82 | $0.00 | $0.00 | $0.00 | $4141.74 |
Statement Details |
| 2025 | 19653 | STATE - STATE LEVY (SCHOOL) | $420.56 | $420.55 | $0.00 | $0.00 | $841.11 | $0.00 |
| 2025 | 19653 | COUNTY - COUNTY LEVIES (CE, DD, VET, MH) | $165.39 | $165.36 | $0.00 | $0.00 | $330.75 | $0.00 |
| 2025 | 19653 | CONSERVE - CONSERVATION FUTURES | $4.96 | $4.96 | $0.00 | $0.00 | $9.92 | $0.00 |
| 2025 | 19653 | CITYPT - CITY OF PT | $238.50 | $238.49 | $0.00 | $0.00 | $476.99 | $0.00 |
| 2025 | 19653 | PORTPT - PORT DISTRICT | $67.49 | $67.48 | $0.00 | $0.00 | $134.97 | $0.00 |
| 2025 | 19653 | PUD1 - PUD #1 | $10.82 | $10.82 | $0.00 | $0.00 | $21.64 | $0.00 |
| 2025 | 19653 | HD2 - HOSP DIST #2 | $9.65 | $9.65 | $0.00 | $0.00 | $19.30 | $0.00 |
| 2025 | 19653 | SD50 - SCHOOL DIST #50 | $307.36 | $307.35 | $0.00 | $0.00 | $614.71 | $0.00 |
| 2025 | 19653 | FD1 - FIRE DISTRICT #1 | $218.24 | $218.23 | $0.00 | $0.00 | $436.47 | $0.00 |
| 2025 | 19653 | EMS1 - FIRE DIST #1 EMS | $83.94 | $83.94 | $0.00 | $0.00 | $167.88 | $0.00 |
| 2025 | 19653 | JCCD - JC Conservation District | $2.55 | $2.55 | $0.00 | $0.00 | $5.10 | $0.00 |
| 2025 | 19653 | NWA - Noxious Weed Assessment | $2.15 | $2.15 | $0.00 | $0.00 | $4.30 | $0.00 |
| 2025 | 19653 | TOTAL: | $1531.61 | $1531.53 | $0.00 | $0.00 | $3063.14 | $0.00 |
|
| 2025 | 19653 | $1531.61 | $1531.53 | $0.00 | $0.00 | $3063.14 | $0.00 |
Statement Details |
| 2024 | 19691 | STATE - STATE LEVY (SCHOOL) | $393.30 | $393.28 | $0.00 | $0.00 | $786.58 | $0.00 |
| 2024 | 19691 | COUNTY - COUNTY LEVIES (CE, DD, VET, MH) | $168.33 | $168.33 | $0.00 | $0.00 | $336.66 | $0.00 |
| 2024 | 19691 | CONSERVE - CONSERVATION FUTURES | $5.05 | $5.05 | $0.00 | $0.00 | $10.10 | $0.00 |
| 2024 | 19691 | CITYPT - CITY OF PT | $240.52 | $240.51 | $0.00 | $0.00 | $481.03 | $0.00 |
| 2024 | 19691 | PORTPT - PORT DISTRICT | $69.54 | $69.52 | $0.00 | $0.00 | $139.06 | $0.00 |
| 2024 | 19691 | PUD1 - PUD #1 | $11.06 | $11.05 | $0.00 | $0.00 | $22.11 | $0.00 |
| 2024 | 19691 | HD2 - HOSP DIST #2 | $9.82 | $9.82 | $0.00 | $0.00 | $19.64 | $0.00 |
| 2024 | 19691 | SD50 - SCHOOL DIST #50 | $318.06 | $318.04 | $0.00 | $0.00 | $636.10 | $0.00 |
| 2024 | 19691 | FD1 - FIRE DISTRICT #1 | $222.58 | $222.57 | $0.00 | $0.00 | $445.15 | $0.00 |
| 2024 | 19691 | EMS1 - FIRE DIST #1 EMS | $85.02 | $85.01 | $0.00 | $0.00 | $170.03 | $0.00 |
| 2024 | 19691 | TOTAL: | $1523.28 | $1523.18 | $0.00 | $0.00 | $3046.46 | $0.00 |
|
| 2024 | 19691 | $1523.28 | $1523.18 | $0.00 | $0.00 | $3046.46 | $0.00 |
Statement Details |
| 2023 | 19728 | STATE - STATE LEVY (SCHOOL) | $10.47 | $10.46 | $0.00 | $0.00 | $20.93 | $0.00 |
| 2023 | 19728 | COUNTY - COUNTY LEVIES (CE, DD, VET, MH) | $7.01 | $7.01 | $0.00 | $0.00 | $14.02 | $0.00 |
| 2023 | 19728 | CONSERVE - CONSERVATION FUTURES | $0.21 | $0.21 | $0.00 | $0.00 | $0.42 | $0.00 |
| 2023 | 19728 | CITYPT - CITY OF PT | $9.52 | $9.51 | $0.00 | $0.00 | $19.03 | $0.00 |
| 2023 | 19728 | PORTPT - PORT DISTRICT | $2.96 | $2.94 | $0.00 | $0.00 | $5.90 | $0.00 |
| 2023 | 19728 | PUD1 - PUD #1 | $0.47 | $0.46 | $0.00 | $0.00 | $0.93 | $0.00 |
| 2023 | 19728 | HD2 - HOSP DIST #2 | $0.41 | $0.40 | $0.00 | $0.00 | $0.81 | $0.00 |
| 2023 | 19728 | SD50 - SCHOOL DIST #50 | $0.00 | $0.00 | $0.00 | $0.00 | $0.00 | $0.00 |
| 2023 | 19728 | FD1 - FIRE DISTRICT #1 | $5.78 | $5.77 | $0.00 | $0.00 | $11.55 | $0.00 |
| 2023 | 19728 | EMS1 - FIRE DIST #1 EMS | $2.46 | $2.45 | $0.00 | $0.00 | $4.91 | $0.00 |
| 2023 | 19728 | TOTAL: | $39.29 | $39.21 | $0.00 | $0.00 | $78.50 | $0.00 |
|
| 2023 | 19728 | $39.29 | $39.21 | $0.00 | $0.00 | $78.50 | $0.00 |
Values
| (+) Improvement Homesite Value: | + | $309,592 | |
| (+) Improvement Non-Homesite Value: | + | $0 | |
| (+) Land Homesite Value: | + | $174,000 | |
| (+) Land Non-Homesite Value: | + | $0 | |
| (+) Curr Use (HS): | + | $0 | $0 |
| (+) Curr Use (NHS): | + | $0 | $0 |
| | | -------------------------- | |
| (=) Market Value: | = | $483,592 | |
| (–) Productivity Loss: | – | $0 | |
| | | -------------------------- | |
| (=) Subtotal: | = | $483,592 | |
| (+) Senior Appraised Value: | + | $0 | |
| (+) Non-Senior Appraised Value: | + | $483,592 | |
| | | -------------------------- | |
| (=) Total Appraised Value: | = | $483,592 | |
| (–) Senior Exemption Loss: | – | $0 | |
| (–) Exemption Loss: | – | $0 | |
| | | -------------------------- | |
| (=) Taxable Value: | = | $483,592 | |
Taxing Jurisdiction
| Owner: | KRISTI & RAMON PIMENTEL | | |
| % Ownership: | 100.0000000000% | | |
| Total Value: | $483,592 | | |
| Tax Area: | 0110 - C-50F1E1H2 |
| CE | COUNTY CURRENT EXPENSE | 0.9034619479 | $483,592 | $483,592 | $436.91 | | |
| CNTYDD | DEVELOPMENTAL DISABILITIES | 0.0052121823 | $483,592 | $483,592 | $2.52 | | |
| CNTYVET | VETERANS RELIEF | 0.0052777810 | $483,592 | $483,592 | $2.55 | | |
| MENTAL | MENTAL HEALTH | 0.0052121823 | $483,592 | $483,592 | $2.52 | | |
| PTGEN | CITY OF PT GENERAL | 0.8551967795 | $483,592 | $483,592 | $413.57 | | |
| PTLLL | CITY OF PT - LIBRARY LID LIFT | 0.4010114288 | $483,592 | $483,592 | $193.93 | | |
| PTMVBOND | CITY OF PT MV BOND | 0.0484717981 | $483,592 | $483,592 | $23.44 | | |
| HOSP2CASH | HOSP DIST #2 GENERAL | 0.0536075306 | $483,592 | $483,592 | $25.92 | | |
| SCH50BOND | SCHOOL DIST #50 BOND 2016 | 0.5377451389 | $483,592 | $483,592 | $260.05 | | |
| SCH50CP | SCHOOL DIST #50 CAP PROJ | 0.4573475088 | $483,592 | $483,592 | $221.17 | | |
| SCH50MO | SCHOOL DIST #50 EP & O | 0.8262822886 | $483,592 | $483,592 | $399.58 | | |
| CONSERVE | CONSERVATION FUTURES | 0.0275621078 | $483,592 | $483,592 | $13.33 | | |
| EMS1 | FIRE DIST #1 EMS | 0.4679948282 | $483,592 | $483,592 | $226.32 | | |
| FD1 | FIRE DIST #1 GENERAL | 1.2171942929 | $483,592 | $483,592 | $588.63 | | |
| PORTPT | PORT OF PT GENERAL | 0.1134941229 | $483,592 | $483,592 | $54.88 | | |
| PORTPTIDD | PORT OF PT IDD 2019 | 0.2577346692 | $483,592 | $483,592 | $124.64 | | |
| PUD1 | PUD #1 GENERAL | 0.0597888892 | $483,592 | $483,592 | $28.91 | | |
| STATE | STATE SCHOOL PART 1 | 1.4940692947 | $483,592 | $483,592 | $722.52 | | |
| STATE2 | STATE SCHOOL PART 2 | 0.8050170049 | $483,592 | $483,592 | $389.30 | | |
| | Total Tax Rate: | 8.5416817766 | | | | | |
| | | | | Taxes w/Current Exemptions: | $4,130.69 | | |
| | | | | Taxes w/o Exemptions: | $4,130.69 | | |
Improvement / Building
| Improvement #1: | Residential Bldg | State Code: | 11 | 862.0 sqft | Value: | $309,592 |
| Bathrooms (#): | 2 (FULL) | Bedrooms (#): | 3 | | Exterior Wall: | PL/T1 | Fireplace: | WD ST-GOOD | | Floor Construction: | FRAME | Foundation: | CONPR | | Heating/Cooling: | ELBB | Roof Cover: | COMP |
|
| | Type | Description | Class CD | Sub Class CD | Year Built | Area |
| | MA | Main Area | 4 | 1S | 1978 | 862.0 |
| | HDECK | House Deck | 3 | * | 1978 | 260.0 |
| | GATT | House Attached Garage | 3 | 1S | 1978 | 602.0 |
| | BSMTF | House basement finished | 3 | * | 1978 | 862.0 |
| | CONCD | Concrete Drive | 3 | * | 1978 | 360.0 |
Sketch
Property Image
Land
| 1 | 6110-1173L | | 0.0000 | 0.00 | 0.00 | 0.00 | 1.00 | $174,000 | $0 |
Roll Value History
| 2026 | N/A | N/A | N/A | N/A | N/A |
| 2025 | $309,592 | $174,000 | $0 | $483,592 | $483,592 |
| 2024 | $215,299 | $135,450 | $0 | $350,749 | $350,749 |
| 2023 | $215,299 | $130,200 | $0 | $345,499 | $13,645 |
| 2022 | $197,358 | $119,000 | $0 | $316,358 | $13,645 |
Deed and Sales History
| 1 | 04/30/2025 | SWD | Statutory Warranty Deed | KRISTI PIMENTEL PERSONAL REPRESENTATIVE | KRISTI & RAMON PIMENTEL | | | $518,000.00 | 144259 | |
Payout Agreement
| No payout information available.. |