| 1 | 10/14/2024 | QCD | Quit Claim Deed | JOHN N MORITSUGU & JANE H JACOBS | HARMON JACOBS MORITSUGU FAM REV TRUST | | | | 145241 | |
| 2 | 03/04/2020 | SWD | Statutory Warranty Deed | ERICA BAUERMEISTER AND BENJAMIN BAUERMEISTER | JOHN N MORITSUGU & JANE H JACOBS | | | $135,000.00 | 134087 | |
| 3 | 03/28/2019 | BLA | Boundary Line Adjustment | ERICA BAUERMEISTER AND BENJAMIN BAUERMEISTER | ERICA BAUERMEISTER AND BENJAMIN BAUERMEISTER | | | | 132008 | 623113 |
| 4 | 03/08/2019 | MISC | MISC | CITY OF PORT TOWNSEND | ERICA BAUERMEISTER AND BENJAMIN BAUERMEISTER | | | | 0 | 623111 |
| 5 | 03/19/2019 | MISC | MISC | ERICA BAUERMEISTER AND BENJAMIN BAUERMEISTER | CITY OF PORT TOWNSEND | | | | 0 | 623112 |
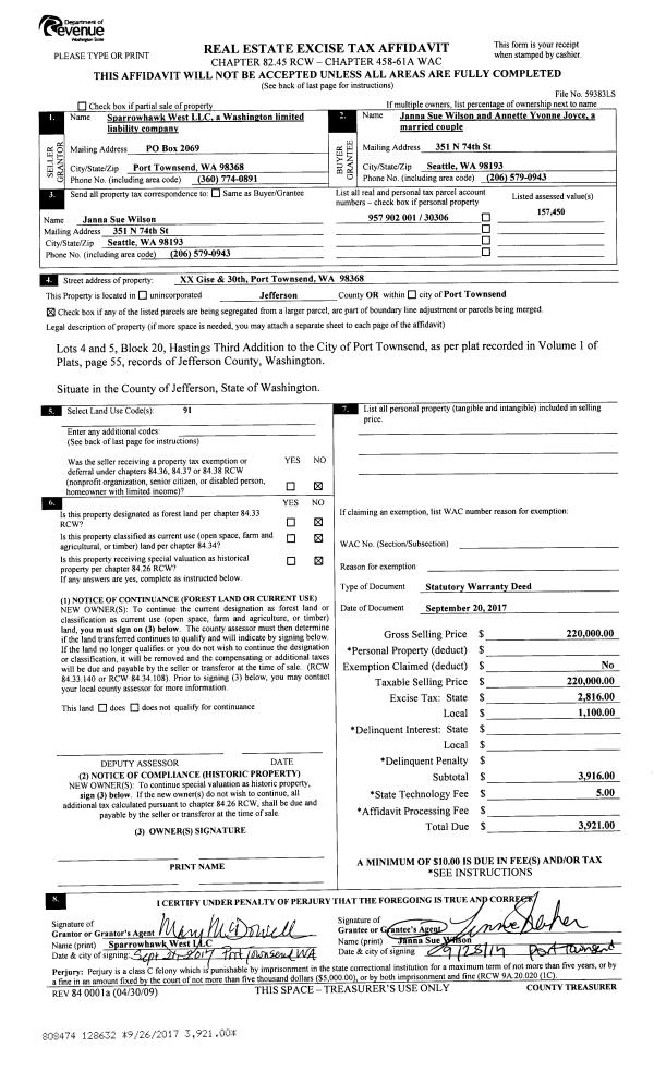
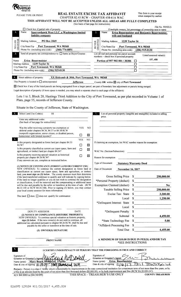
| 6 | 11/16/2017 | SWD | Statutory Warranty Deed | SPARROWHAWK WEST LLC | ERICA BAUERMEISTER AND BENJAMIN BAUERMEISTER | | | $250,000.00 | 129104 | |
|   | |
| 7 | 11/03/2015 | SWD | Statutory Warranty Deed | JEANETTE M SIBURG | SPARROWHAWK WEST LLC | | | $335,000.00 | 124368 | |
| 8 | 06/13/2008 | QCD | Quit Claim Deed | CHOATE, LARRY ELWOOD | CHOATE, LARRY & JEANNETTE MARI | | | $0.00 | 111427 | 0 |