Property
Account |
| Property ID: | 30330 | Abbreviated Legal Description: | HASTINGS 3RD ADDITION BLK 25 LOTS 8 TO 10 (ENLG BY TX 81) |
| Parcel # / Geo ID: | 957902505 | Agent Code: | |
| Type: | Real | | |
| Tax Area: | 0110 - C-50F1E1H2 | Land Use Code | 11 |
| Open Space: | N | DFL | N |
| Historic Property: | N | Remodel Property: | N |
| Multi-Family Redevelopment: | N | | |
| Township: | 30N | Section: | 3 |
| Range: | 1W |
Location |
| Address: | 2911 SHERMAN ST PORT TOWNSEND, WA 98368 | Mapsco: | 063/041 |
| Neighborhood: | HASTINGS 3RD | Map ID: | |
| Neighborhood CD: | 6110 |
Owner |
| Name: | DAVIS HUGHES LLC | Owner ID: | 90312 |
| Mailing Address: | 2681 SHERMAN ST PORT TOWNSEND, WA 98368-7025 | % Ownership: | 100.0000000000% |
| | | Exemptions: | |
Pay Tax Due
Select the appropriate checkbox next to the year to be paid. Multiple years may be selected.
*Convenience Fee not included
Taxes and Assessment Details
Property Tax Information as of
03/13/2026
Click on "Statement Details" to expand or collapse a tax statement.
* Please enter a valid date ** Please enter a valid date *
Statement Details |
| 2026 | 19635 | STATE - STATE LEVY (SCHOOL) | $1368.94 | $1368.94 | $0.00 | $0.00 | $0.00 | $2737.88 |
| 2026 | 19635 | COUNTY - COUNTY LEVIES (CE, DD, VET, MH) | $547.32 | $547.28 | $0.00 | $0.00 | $0.00 | $1094.60 |
| 2026 | 19635 | CONSERVE - CONSERVATION FUTURES | $16.41 | $16.41 | $0.00 | $0.00 | $0.00 | $32.82 |
| 2026 | 19635 | CITYPT - CITY OF PT | $776.85 | $776.83 | $0.00 | $0.00 | $0.00 | $1553.68 |
| 2026 | 19635 | PORTPT - PORT DISTRICT | $221.04 | $221.03 | $0.00 | $0.00 | $0.00 | $442.07 |
| 2026 | 19635 | PUD1 - PUD #1 | $35.60 | $35.60 | $0.00 | $0.00 | $0.00 | $71.20 |
| 2026 | 19635 | HD2 - HOSP DIST #2 | $31.92 | $31.92 | $0.00 | $0.00 | $0.00 | $63.84 |
| 2026 | 19635 | SD50 - SCHOOL DIST #50 | $1084.50 | $1084.48 | $0.00 | $0.00 | $0.00 | $2168.98 |
| 2026 | 19635 | FD1 - FIRE DISTRICT #1 | $724.75 | $724.75 | $0.00 | $0.00 | $0.00 | $1449.50 |
| 2026 | 19635 | EMS1 - FIRE DIST #1 EMS | $278.66 | $278.65 | $0.00 | $0.00 | $0.00 | $557.31 |
| 2026 | 19635 | FP - DNR Forest Fire Protection Assmt | $8.50 | $8.50 | $0.00 | $0.00 | $0.00 | $17.00 |
| 2026 | 19635 | FPLCA - DNR Landowner Contingency Assmt | $3.00 | $3.00 | $0.00 | $0.00 | $0.00 | $6.00 |
| 2026 | 19635 | JCCD - JC Conservation District | $2.55 | $2.55 | $0.00 | $0.00 | $0.00 | $5.10 |
| 2026 | 19635 | NWA - Noxious Weed Assessment | $2.98 | $2.97 | $0.00 | $0.00 | $0.00 | $5.95 |
| 2026 | 19635 | FP ADMIN - FP ADMIN | $0.50 | $0.00 | $0.00 | $0.00 | $0.00 | $0.50 |
| 2026 | 19635 | TOTAL: | $5103.52 | $5102.91 | $0.00 | $0.00 | $0.00 | $10206.43 |
|
| 2026 | 19635 | $5103.52 | $5102.91 | $0.00 | $0.00 | $0.00 | $10206.43 |
Statement Details |
| 2025 | 19696 | STATE - STATE LEVY (SCHOOL) | $1382.80 | $1382.79 | $0.00 | $0.00 | $2765.59 | $0.00 |
| 2025 | 19696 | COUNTY - COUNTY LEVIES (CE, DD, VET, MH) | $543.79 | $543.75 | $0.00 | $0.00 | $1087.54 | $0.00 |
| 2025 | 19696 | CONSERVE - CONSERVATION FUTURES | $16.31 | $16.30 | $0.00 | $0.00 | $32.61 | $0.00 |
| 2025 | 19696 | CITYPT - CITY OF PT | $784.18 | $784.18 | $0.00 | $0.00 | $1568.36 | $0.00 |
| 2025 | 19696 | PORTPT - PORT DISTRICT | $221.90 | $221.89 | $0.00 | $0.00 | $443.79 | $0.00 |
| 2025 | 19696 | PUD1 - PUD #1 | $35.58 | $35.58 | $0.00 | $0.00 | $71.16 | $0.00 |
| 2025 | 19696 | HD2 - HOSP DIST #2 | $31.73 | $31.72 | $0.00 | $0.00 | $63.45 | $0.00 |
| 2025 | 19696 | SD50 - SCHOOL DIST #50 | $1010.60 | $1010.59 | $0.00 | $0.00 | $2021.19 | $0.00 |
| 2025 | 19696 | FD1 - FIRE DISTRICT #1 | $717.57 | $717.57 | $0.00 | $0.00 | $1435.14 | $0.00 |
| 2025 | 19696 | EMS1 - FIRE DIST #1 EMS | $276.00 | $276.00 | $0.00 | $0.00 | $552.00 | $0.00 |
| 2025 | 19696 | FP - DNR Forest Fire Protection Assmt | $8.50 | $8.50 | $0.00 | $0.00 | $17.00 | $0.00 |
| 2025 | 19696 | FPLCA - DNR Landowner Contingency Assmt | $3.00 | $3.00 | $0.00 | $0.00 | $6.00 | $0.00 |
| 2025 | 19696 | JCCD - JC Conservation District | $2.55 | $2.55 | $0.00 | $0.00 | $5.10 | $0.00 |
| 2025 | 19696 | NWA - Noxious Weed Assessment | $2.15 | $2.15 | $0.00 | $0.00 | $4.30 | $0.00 |
| 2025 | 19696 | FP ADMIN - FP ADMIN | $0.50 | $0.00 | $0.00 | $0.00 | $0.50 | $0.00 |
| 2025 | 19696 | TOTAL: | $5037.16 | $5036.57 | $0.00 | $0.00 | $10073.73 | $0.00 |
|
| 2025 | 19696 | $5037.16 | $5036.57 | $0.00 | $0.00 | $10073.73 | $0.00 |
Statement Details |
| 2024 | 19734 | STATE - STATE LEVY (SCHOOL) | $1127.25 | $1127.25 | $0.00 | $0.00 | $2254.50 | $0.00 |
| 2024 | 19734 | COUNTY - COUNTY LEVIES (CE, DD, VET, MH) | $482.38 | $482.35 | $0.00 | $0.00 | $964.73 | $0.00 |
| 2024 | 19734 | CONSERVE - CONSERVATION FUTURES | $14.47 | $14.46 | $0.00 | $0.00 | $28.93 | $0.00 |
| 2024 | 19734 | CITYPT - CITY OF PT | $689.24 | $689.22 | $0.00 | $0.00 | $1378.46 | $0.00 |
| 2024 | 19734 | PORTPT - PORT DISTRICT | $199.24 | $199.23 | $0.00 | $0.00 | $398.47 | $0.00 |
| 2024 | 19734 | PUD1 - PUD #1 | $31.69 | $31.68 | $0.00 | $0.00 | $63.37 | $0.00 |
| 2024 | 19734 | HD2 - HOSP DIST #2 | $28.15 | $28.14 | $0.00 | $0.00 | $56.29 | $0.00 |
| 2024 | 19734 | SD50 - SCHOOL DIST #50 | $912.01 | $911.99 | $0.00 | $0.00 | $1824.00 | $0.00 |
| 2024 | 19734 | FD1 - FIRE DISTRICT #1 | $637.80 | $637.79 | $0.00 | $0.00 | $1275.59 | $0.00 |
| 2024 | 19734 | EMS1 - FIRE DIST #1 EMS | $243.62 | $243.61 | $0.00 | $0.00 | $487.23 | $0.00 |
| 2024 | 19734 | JCCD - JC Conservation District | $2.55 | $2.55 | $0.00 | $0.00 | $5.10 | $0.00 |
| 2024 | 19734 | NWA - Noxious Weed Assessment | $2.15 | $2.15 | $0.00 | $0.00 | $4.30 | $0.00 |
| 2024 | 19734 | TOTAL: | $4370.55 | $4370.42 | $0.00 | $0.00 | $8740.97 | $0.00 |
|
| 2024 | 19734 | $4370.55 | $4370.42 | $0.00 | $0.00 | $8740.97 | $0.00 |
Statement Details |
| 2023 | 19771 | STATE - STATE LEVY (SCHOOL) | $788.41 | $788.40 | $0.00 | $0.00 | $1576.81 | $0.00 |
| 2023 | 19771 | COUNTY - COUNTY LEVIES (CE, DD, VET, MH) | $344.05 | $344.03 | $0.00 | $0.00 | $688.08 | $0.00 |
| 2023 | 19771 | CONSERVE - CONSERVATION FUTURES | $10.32 | $10.31 | $0.00 | $0.00 | $20.63 | $0.00 |
| 2023 | 19771 | CITYPT - CITY OF PT | $486.25 | $486.23 | $0.00 | $0.00 | $972.48 | $0.00 |
| 2023 | 19771 | PORTPT - PORT DISTRICT | $144.93 | $144.92 | $0.00 | $0.00 | $289.85 | $0.00 |
| 2023 | 19771 | PUD1 - PUD #1 | $22.81 | $22.80 | $0.00 | $0.00 | $45.61 | $0.00 |
| 2023 | 19771 | HD2 - HOSP DIST #2 | $20.08 | $20.07 | $0.00 | $0.00 | $40.15 | $0.00 |
| 2023 | 19771 | SD50 - SCHOOL DIST #50 | $625.62 | $625.60 | $0.00 | $0.00 | $1251.22 | $0.00 |
| 2023 | 19771 | FD1 - FIRE DISTRICT #1 | $283.42 | $283.41 | $0.00 | $0.00 | $566.83 | $0.00 |
| 2023 | 19771 | EMS1 - FIRE DIST #1 EMS | $120.56 | $120.56 | $0.00 | $0.00 | $241.12 | $0.00 |
| 2023 | 19771 | JCCD - JC Conservation District | $2.55 | $2.55 | $0.00 | $0.00 | $5.10 | $0.00 |
| 2023 | 19771 | NWA - Noxious Weed Assessment | $2.15 | $2.15 | $0.00 | $0.00 | $4.30 | $0.00 |
| 2023 | 19771 | TOTAL: | $2851.15 | $2851.03 | $0.00 | $0.00 | $5702.18 | $0.00 |
|
| 2023 | 19771 | $2851.15 | $2851.03 | $0.00 | $0.00 | $5702.18 | $0.00 |
Values
| (+) Improvement Homesite Value: | + | $0 | |
| (+) Improvement Non-Homesite Value: | + | $1,041,352 | |
| (+) Land Homesite Value: | + | $0 | |
| (+) Land Non-Homesite Value: | + | $149,500 | |
| (+) Curr Use (HS): | + | $0 | $0 |
| (+) Curr Use (NHS): | + | $0 | $0 |
| | | -------------------------- | |
| (=) Market Value: | = | $1,190,852 | |
| (–) Productivity Loss: | – | $0 | |
| | | -------------------------- | |
| (=) Subtotal: | = | $1,190,852 | |
| (+) Senior Appraised Value: | + | $0 | |
| (+) Non-Senior Appraised Value: | + | $1,190,852 | |
| | | -------------------------- | |
| (=) Total Appraised Value: | = | $1,190,852 | |
| (–) Senior Exemption Loss: | – | $0 | |
| (–) Exemption Loss: | – | $0 | |
| | | -------------------------- | |
| (=) Taxable Value: | = | $1,190,852 | |
Taxing Jurisdiction
| Owner: | DAVIS HUGHES LLC | | |
| % Ownership: | 100.0000000000% | | |
| Total Value: | $1,190,852 | | |
| Tax Area: | 0110 - C-50F1E1H2 |
| CE | COUNTY CURRENT EXPENSE | 0.9034619479 | $1,190,852 | $1,190,852 | $1,075.89 | | |
| CNTYDD | DEVELOPMENTAL DISABILITIES | 0.0052121823 | $1,190,852 | $1,190,852 | $6.21 | | |
| CNTYVET | VETERANS RELIEF | 0.0052777810 | $1,190,852 | $1,190,852 | $6.29 | | |
| MENTAL | MENTAL HEALTH | 0.0052121823 | $1,190,852 | $1,190,852 | $6.21 | | |
| PTGEN | CITY OF PT GENERAL | 0.8551967795 | $1,190,852 | $1,190,852 | $1,018.41 | | |
| PTLLL | CITY OF PT - LIBRARY LID LIFT | 0.4010114288 | $1,190,852 | $1,190,852 | $477.55 | | |
| PTMVBOND | CITY OF PT MV BOND | 0.0484717981 | $1,190,852 | $1,190,852 | $57.72 | | |
| HOSP2CASH | HOSP DIST #2 GENERAL | 0.0536075306 | $1,190,852 | $1,190,852 | $63.84 | | |
| SCH50BOND | SCHOOL DIST #50 BOND 2016 | 0.5377451389 | $1,190,852 | $1,190,852 | $640.37 | | |
| SCH50CP | SCHOOL DIST #50 CAP PROJ | 0.4573475088 | $1,190,852 | $1,190,852 | $544.63 | | |
| SCH50MO | SCHOOL DIST #50 EP & O | 0.8262822886 | $1,190,852 | $1,190,852 | $983.98 | | |
| CONSERVE | CONSERVATION FUTURES | 0.0275621078 | $1,190,852 | $1,190,852 | $32.82 | | |
| EMS1 | FIRE DIST #1 EMS | 0.4679948282 | $1,190,852 | $1,190,852 | $557.31 | | |
| FD1 | FIRE DIST #1 GENERAL | 1.2171942929 | $1,190,852 | $1,190,852 | $1,449.50 | | |
| PORTPT | PORT OF PT GENERAL | 0.1134941229 | $1,190,852 | $1,190,852 | $135.15 | | |
| PORTPTIDD | PORT OF PT IDD 2019 | 0.2577346692 | $1,190,852 | $1,190,852 | $306.92 | | |
| PUD1 | PUD #1 GENERAL | 0.0597888892 | $1,190,852 | $1,190,852 | $71.20 | | |
| STATE | STATE SCHOOL PART 1 | 1.4940692947 | $1,190,852 | $1,190,852 | $1,779.22 | | |
| STATE2 | STATE SCHOOL PART 2 | 0.8050170049 | $1,190,852 | $1,190,852 | $958.66 | | |
| | Total Tax Rate: | 8.5416817766 | | | | | |
| | | | | Taxes w/Current Exemptions: | $10,171.88 | | |
| | | | | Taxes w/o Exemptions: | $10,171.88 | | |
Improvement / Building
| Improvement #1: | Residential Bldg | State Code: | 11 | 2570.0 sqft | Value: | $614,087 |
| Bathrooms (#): | 2 (FULL) | Bathrooms (#): | 1 (FULL) | | Bedrooms (#): | 4 | Exterior Wall: | SI/ST | | Floor Construction: | CONCR | Foundation: | CONPR | | Heating/Cooling: | F/A | Roof Cover: | COMP |
|
| | Type | Description | Class CD | Sub Class CD | Year Built | Area |
| | MA | Main Area | 4 | 2S | 1993 | 1285.0 |
| | MA2 | Second Floor Main Area | 3+ | 2S | 1993 | 1285.0 |
| | HBAL | House Balcony | 3 | * | 1993 | 1321.6 |
| | GATT | House Attached Garage | 4 | * | 1993 | 768.0 |
| | SHED | Shed (Table Not Dep) | 4 | * | 1993 | 100.0 |
| | CONCD | Concrete Drive | 3 | * | 1993 | 500.0 |
| | HWPOR | House Wood Porch | 3 | * | 1993 | 485.6 |
| | HWPOR | House Wood Porch | 4 | * | 1993 | 112.0 |
| | HENCL | House Enclosure | 3 | 2S | 1993 | 180.0 |
| | HDECK | House Deck | 3 | * | 1993 | 72.0 |
| | OTHER | Other | 4 | 2S | 2019 | 0.0 |
| Improvement #2: | Residential Bldg | State Code: | 11 | 1310.0 sqft | Value: | $427,265 |
| Bathrooms (#): | 1 (FULL) | Bedrooms (#): | 2 | | Exterior Wall: | SI/ST | Floor Construction: | FRAME | | Foundation: | CONPR | Heating/Cooling: | HPUMP | | Interior Finish: | FIN | Roof Cover: | COMP |
|
| | Type | Description | Class CD | Sub Class CD | Year Built | Area |
| | MA | Main Area | 5 | ADU | 2023 | 842.0 |
| | MA2 | Second Floor Main Area | 5 | ADU | 2023 | 468.0 |
| | HWPOR | House Wood Porch | 5 | ADU | 2023 | 362.0 |
Sketch
Property Image
Land
| 1 | 6110-1179L | | 0.0000 | 0.00 | 0.00 | 0.00 | 1.00 | $19,500 | $0 |
| 2 | 6110-1178L | | 0.0000 | 0.00 | 0.00 | 0.00 | 2.00 | $130,000 | $0 |
Roll Value History
| 2026 | N/A | N/A | N/A | N/A | N/A |
| 2025 | $1,041,352 | $149,500 | $0 | $1,190,852 | $1,190,852 |
| 2024 | $1,008,169 | $145,110 | $0 | $1,153,279 | $1,153,279 |
| 2023 | $834,598 | $139,860 | $0 | $974,458 | $974,458 |
| 2022 | $541,598 | $128,200 | $0 | $669,798 | $669,798 |
Deed and Sales History
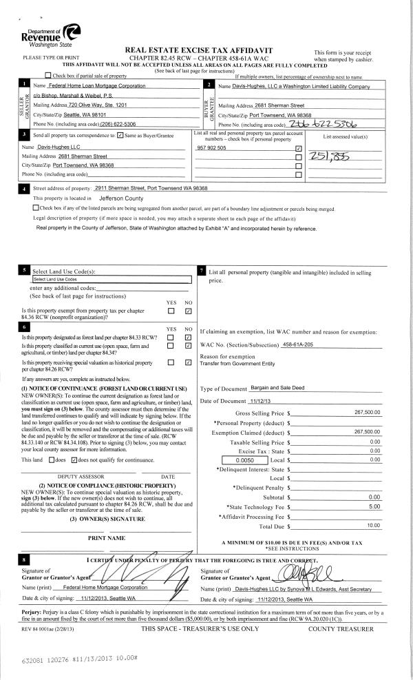
| 1 | 11/12/2013 | BSD | Bargain and Sale Deed | FEDERAL HOME LOAN MTG CORP | DAVIS HUGHES LLC | | | $267,500.00 | 120276 | |
| 2 | 02/08/2013 | TRED | Trustee Deed | BISHOP, WHITE, MARSHALL & WEIBEL, PS | FEDERAL HOME LOAN MTG CORP | | | | 118804 | |
| 3 | 06/15/1992 | SWD | Statutory Warranty Deed | BRAD/LESLIE LOVELACE | JAMES E EADES | | | | 0 | |
Payout Agreement
| No payout information available.. |