Property
Account |
| Property ID: | 30386 | Abbreviated Legal Description: | HASTINGS O.C. ADDITION BLK 26 LOTS 7 & 8(W26 1/2'EA), TAX 57 |
| Parcel # / Geo ID: | 958202604 | Agent Code: | |
| Type: | Real | | |
| Tax Area: | 0110 - C-50F1E1H2 | Land Use Code | 11 |
| Open Space: | N | DFL | N |
| Historic Property: | N | Remodel Property: | N |
| Multi-Family Redevelopment: | N | | |
| Township: | 30N | Section: | 3 |
| Range: | 1W |
Location |
| Address: | 344 24TH ST PORT TOWNSEND, WA 98368 | Mapsco: | 064/061 |
| Neighborhood: | EISENBEIS, OC HASTINGS & SUPP, PINKS LESS VICTORIAN VILLAGE | Map ID: | |
| Neighborhood CD: | 6210 |
Owner |
| Name: | JANICE CAMFIELD | Owner ID: | 111141 |
| Mailing Address: | 538 CALHOUN ST PORT TOWNSEND, WA 98368-8109 | % Ownership: | 100.0000000000% |
| | | Exemptions: | |
Pay Tax Due
Select the appropriate checkbox next to the year to be paid. Multiple years may be selected.
*Convenience Fee not included
Taxes and Assessment Details
Property Tax Information as of
03/11/2026
Click on "Statement Details" to expand or collapse a tax statement.
* Please enter a valid date ** Please enter a valid date *
Statement Details |
| 2026 | 19691 | STATE - STATE LEVY (SCHOOL) | $399.52 | $399.52 | $0.00 | $0.00 | $0.00 | $799.04 |
| 2026 | 19691 | COUNTY - COUNTY LEVIES (CE, DD, VET, MH) | $159.74 | $159.70 | $0.00 | $0.00 | $0.00 | $319.44 |
| 2026 | 19691 | CONSERVE - CONSERVATION FUTURES | $4.79 | $4.79 | $0.00 | $0.00 | $0.00 | $9.58 |
| 2026 | 19691 | CITYPT - CITY OF PT | $226.73 | $226.71 | $0.00 | $0.00 | $0.00 | $453.44 |
| 2026 | 19691 | PORTPT - PORT DISTRICT | $64.51 | $64.50 | $0.00 | $0.00 | $0.00 | $129.01 |
| 2026 | 19691 | PUD1 - PUD #1 | $10.39 | $10.39 | $0.00 | $0.00 | $0.00 | $20.78 |
| 2026 | 19691 | HD2 - HOSP DIST #2 | $9.32 | $9.31 | $0.00 | $0.00 | $0.00 | $18.63 |
| 2026 | 19691 | SD50 - SCHOOL DIST #50 | $316.52 | $316.49 | $0.00 | $0.00 | $0.00 | $633.01 |
| 2026 | 19691 | FD1 - FIRE DISTRICT #1 | $211.52 | $211.51 | $0.00 | $0.00 | $0.00 | $423.03 |
| 2026 | 19691 | EMS1 - FIRE DIST #1 EMS | $81.33 | $81.32 | $0.00 | $0.00 | $0.00 | $162.65 |
| 2026 | 19691 | JCCD - JC Conservation District | $2.55 | $2.55 | $0.00 | $0.00 | $0.00 | $5.10 |
| 2026 | 19691 | NWA - Noxious Weed Assessment | $2.98 | $2.97 | $0.00 | $0.00 | $0.00 | $5.95 |
| 2026 | 19691 | TOTAL: | $1489.90 | $1489.76 | $0.00 | $0.00 | $0.00 | $2979.66 |
|
| 2026 | 19691 | $1489.90 | $1489.76 | $0.00 | $0.00 | $0.00 | $2979.66 |
Statement Details |
| 2025 | 19752 | STATE - STATE LEVY (SCHOOL) | $310.66 | $310.65 | $0.00 | $0.00 | $621.31 | $0.00 |
| 2025 | 19752 | COUNTY - COUNTY LEVIES (CE, DD, VET, MH) | $122.16 | $122.16 | $0.00 | $0.00 | $244.32 | $0.00 |
| 2025 | 19752 | CONSERVE - CONSERVATION FUTURES | $3.67 | $3.66 | $0.00 | $0.00 | $7.33 | $0.00 |
| 2025 | 19752 | CITYPT - CITY OF PT | $176.18 | $176.17 | $0.00 | $0.00 | $352.35 | $0.00 |
| 2025 | 19752 | PORTPT - PORT DISTRICT | $49.86 | $49.84 | $0.00 | $0.00 | $99.70 | $0.00 |
| 2025 | 19752 | PUD1 - PUD #1 | $8.00 | $7.99 | $0.00 | $0.00 | $15.99 | $0.00 |
| 2025 | 19752 | HD2 - HOSP DIST #2 | $7.13 | $7.12 | $0.00 | $0.00 | $14.25 | $0.00 |
| 2025 | 19752 | SD50 - SCHOOL DIST #50 | $227.05 | $227.03 | $0.00 | $0.00 | $454.08 | $0.00 |
| 2025 | 19752 | FD1 - FIRE DISTRICT #1 | $161.21 | $161.21 | $0.00 | $0.00 | $322.42 | $0.00 |
| 2025 | 19752 | EMS1 - FIRE DIST #1 EMS | $62.01 | $62.00 | $0.00 | $0.00 | $124.01 | $0.00 |
| 2025 | 19752 | JCCD - JC Conservation District | $2.55 | $2.55 | $0.00 | $0.00 | $5.10 | $0.00 |
| 2025 | 19752 | NWA - Noxious Weed Assessment | $2.15 | $2.15 | $0.00 | $0.00 | $4.30 | $0.00 |
| 2025 | 19752 | TOTAL: | $1132.63 | $1132.53 | $0.00 | $0.00 | $2265.16 | $0.00 |
|
| 2025 | 19752 | $1132.63 | $1132.53 | $0.00 | $0.00 | $2265.16 | $0.00 |
Statement Details |
| 2024 | 19790 | STATE - STATE LEVY (SCHOOL) | $197.40 | $197.40 | $0.00 | $0.00 | $394.80 | $0.00 |
| 2024 | 19790 | COUNTY - COUNTY LEVIES (CE, DD, VET, MH) | $84.49 | $84.45 | $0.00 | $0.00 | $168.94 | $0.00 |
| 2024 | 19790 | CONSERVE - CONSERVATION FUTURES | $2.54 | $2.53 | $0.00 | $0.00 | $5.07 | $0.00 |
| 2024 | 19790 | CITYPT - CITY OF PT | $120.70 | $120.69 | $0.00 | $0.00 | $241.39 | $0.00 |
| 2024 | 19790 | PORTPT - PORT DISTRICT | $34.89 | $34.89 | $0.00 | $0.00 | $69.78 | $0.00 |
| 2024 | 19790 | PUD1 - PUD #1 | $5.55 | $5.55 | $0.00 | $0.00 | $11.10 | $0.00 |
| 2024 | 19790 | HD2 - HOSP DIST #2 | $4.93 | $4.93 | $0.00 | $0.00 | $9.86 | $0.00 |
| 2024 | 19790 | SD50 - SCHOOL DIST #50 | $159.72 | $159.69 | $0.00 | $0.00 | $319.41 | $0.00 |
| 2024 | 19790 | FD1 - FIRE DISTRICT #1 | $111.69 | $111.69 | $0.00 | $0.00 | $223.38 | $0.00 |
| 2024 | 19790 | EMS1 - FIRE DIST #1 EMS | $42.66 | $42.66 | $0.00 | $0.00 | $85.32 | $0.00 |
| 2024 | 19790 | JCCD - JC Conservation District | $2.55 | $2.55 | $0.00 | $0.00 | $5.10 | $0.00 |
| 2024 | 19790 | NWA - Noxious Weed Assessment | $2.15 | $2.15 | $0.00 | $0.00 | $4.30 | $0.00 |
| 2024 | 19790 | TOTAL: | $769.27 | $769.18 | $0.00 | $0.00 | $1538.45 | $0.00 |
|
| 2024 | 19790 | $769.27 | $769.18 | $0.00 | $0.00 | $1538.45 | $0.00 |
Statement Details |
| 2023 | 19827 | STATE - STATE LEVY (SCHOOL) | $184.39 | $184.38 | $0.00 | $0.00 | $368.77 | $0.00 |
| 2023 | 19827 | COUNTY - COUNTY LEVIES (CE, DD, VET, MH) | $80.47 | $80.44 | $0.00 | $0.00 | $160.91 | $0.00 |
| 2023 | 19827 | CONSERVE - CONSERVATION FUTURES | $2.42 | $2.41 | $0.00 | $0.00 | $4.83 | $0.00 |
| 2023 | 19827 | CITYPT - CITY OF PT | $113.72 | $113.72 | $0.00 | $0.00 | $227.44 | $0.00 |
| 2023 | 19827 | PORTPT - PORT DISTRICT | $33.90 | $33.89 | $0.00 | $0.00 | $67.79 | $0.00 |
| 2023 | 19827 | PUD1 - PUD #1 | $5.34 | $5.33 | $0.00 | $0.00 | $10.67 | $0.00 |
| 2023 | 19827 | HD2 - HOSP DIST #2 | $4.70 | $4.69 | $0.00 | $0.00 | $9.39 | $0.00 |
| 2023 | 19827 | SD50 - SCHOOL DIST #50 | $146.32 | $146.30 | $0.00 | $0.00 | $292.62 | $0.00 |
| 2023 | 19827 | FD1 - FIRE DISTRICT #1 | $66.28 | $66.28 | $0.00 | $0.00 | $132.56 | $0.00 |
| 2023 | 19827 | EMS1 - FIRE DIST #1 EMS | $28.20 | $28.19 | $0.00 | $0.00 | $56.39 | $0.00 |
| 2023 | 19827 | JCCD - JC Conservation District | $2.55 | $2.55 | $0.00 | $0.00 | $5.10 | $0.00 |
| 2023 | 19827 | NWA - Noxious Weed Assessment | $2.15 | $2.15 | $0.00 | $0.00 | $4.30 | $0.00 |
| 2023 | 19827 | TOTAL: | $670.44 | $670.33 | $0.00 | $0.00 | $1340.77 | $0.00 |
|
| 2023 | 19827 | $670.44 | $670.33 | $0.00 | $0.00 | $1340.77 | $0.00 |
Values
| (+) Improvement Homesite Value: | + | $0 | |
| (+) Improvement Non-Homesite Value: | + | $194,695 | |
| (+) Land Homesite Value: | + | $0 | |
| (+) Land Non-Homesite Value: | + | $152,850 | |
| (+) Curr Use (HS): | + | $0 | $0 |
| (+) Curr Use (NHS): | + | $0 | $0 |
| | | -------------------------- | |
| (=) Market Value: | = | $347,545 | |
| (–) Productivity Loss: | – | $0 | |
| | | -------------------------- | |
| (=) Subtotal: | = | $347,545 | |
| (+) Senior Appraised Value: | + | $0 | |
| (+) Non-Senior Appraised Value: | + | $347,545 | |
| | | -------------------------- | |
| (=) Total Appraised Value: | = | $347,545 | |
| (–) Senior Exemption Loss: | – | $0 | |
| (–) Exemption Loss: | – | $0 | |
| | | -------------------------- | |
| (=) Taxable Value: | = | $347,545 | |
Taxing Jurisdiction
| Owner: | JANICE CAMFIELD | | |
| % Ownership: | 100.0000000000% | | |
| Total Value: | $347,545 | | |
| Tax Area: | 0110 - C-50F1E1H2 |
| CE | COUNTY CURRENT EXPENSE | 0.9034619479 | $347,545 | $347,545 | $313.99 | | |
| CNTYDD | DEVELOPMENTAL DISABILITIES | 0.0052121823 | $347,545 | $347,545 | $1.81 | | |
| CNTYVET | VETERANS RELIEF | 0.0052777810 | $347,545 | $347,545 | $1.83 | | |
| MENTAL | MENTAL HEALTH | 0.0052121823 | $347,545 | $347,545 | $1.81 | | |
| PTGEN | CITY OF PT GENERAL | 0.8551967795 | $347,545 | $347,545 | $297.22 | | |
| PTLLL | CITY OF PT - LIBRARY LID LIFT | 0.4010114288 | $347,545 | $347,545 | $139.37 | | |
| PTMVBOND | CITY OF PT MV BOND | 0.0484717981 | $347,545 | $347,545 | $16.85 | | |
| HOSP2CASH | HOSP DIST #2 GENERAL | 0.0536075306 | $347,545 | $347,545 | $18.63 | | |
| SCH50BOND | SCHOOL DIST #50 BOND 2016 | 0.5377451389 | $347,545 | $347,545 | $186.89 | | |
| SCH50CP | SCHOOL DIST #50 CAP PROJ | 0.4573475088 | $347,545 | $347,545 | $158.95 | | |
| SCH50MO | SCHOOL DIST #50 EP & O | 0.8262822886 | $347,545 | $347,545 | $287.17 | | |
| CONSERVE | CONSERVATION FUTURES | 0.0275621078 | $347,545 | $347,545 | $9.58 | | |
| EMS1 | FIRE DIST #1 EMS | 0.4679948282 | $347,545 | $347,545 | $162.65 | | |
| FD1 | FIRE DIST #1 GENERAL | 1.2171942929 | $347,545 | $347,545 | $423.03 | | |
| PORTPT | PORT OF PT GENERAL | 0.1134941229 | $347,545 | $347,545 | $39.44 | | |
| PORTPTIDD | PORT OF PT IDD 2019 | 0.2577346692 | $347,545 | $347,545 | $89.57 | | |
| PUD1 | PUD #1 GENERAL | 0.0597888892 | $347,545 | $347,545 | $20.78 | | |
| STATE | STATE SCHOOL PART 1 | 1.4940692947 | $347,545 | $347,545 | $519.26 | | |
| STATE2 | STATE SCHOOL PART 2 | 0.8050170049 | $347,545 | $347,545 | $279.78 | | |
| | Total Tax Rate: | 8.5416817766 | | | | | |
| | | | | Taxes w/Current Exemptions: | $2,968.61 | | |
| | | | | Taxes w/o Exemptions: | $2,968.61 | | |
Improvement / Building
| Improvement #1: | Residential Bldg | State Code: | 11 | 750.0 sqft | Value: | $194,695 |
| Bathrooms (#): | 1 (FULL) | Bedrooms (#): | 1 | | Exterior Wall: | SI/ST | Floor Construction: | FRAME | | Foundation: | CONPR | Heating/Cooling: | ELBB | | Inside Verify: | YES-FIX | Roof Cover: | ROLL |
|
| | Type | Description | Class CD | Sub Class CD | Year Built | Area |
| | MA | Main Area | 4 | 1S | 1935 | 750.0 |
| | HCPOR | House Concrete Porch | 4 | 1S | 1935 | 28.0 |
| | SHED | Shed (Table Not Dep) | 3 | 1S | 1935 | 192.0 |
Sketch
Property Image
Land
| 1 | 6210-1175L | | 0.0000 | 0.00 | 0.00 | 0.00 | 1.00 | $152,850 | $0 |
Roll Value History
| 2026 | N/A | N/A | N/A | N/A | N/A |
| 2025 | $194,695 | $152,850 | $0 | $347,545 | $347,545 |
| 2024 | $95,294 | $163,800 | $0 | $259,094 | $259,094 |
| 2023 | $64,644 | $106,000 | $0 | $170,644 | $170,644 |
| 2022 | $64,644 | $92,000 | $0 | $156,644 | $156,644 |
Deed and Sales History
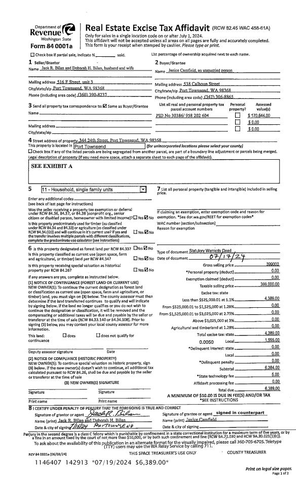
| 1 | 07/17/2024 | SWD | Statutory Warranty Deed | JACK R BILAN | JANICE CAMFIELD | | | $399,000.00 | 142913 | |
| 2 | 12/30/2004 | QCD | Quit Claim Deed | BILAN, JACK R | BILAN, JACK R/DEBORAH | 0 | 0 | $0.00 | 102403 | 0 |
Payout Agreement
| No payout information available.. |