Property
Account |
| Property ID: | 30406 | Abbreviated Legal Description: | HASTINGS O.C. SUPP BLK 11 LOT 5(ALL), 6(LS S30') |
| Parcel # / Geo ID: | 958501105 | Agent Code: | |
| Type: | Real | | |
| Tax Area: | 0110 - C-50F1E1H2 | Land Use Code | 11 |
| Open Space: | N | DFL | N |
| Historic Property: | N | Remodel Property: | N |
| Multi-Family Redevelopment: | N | | |
| Township: | 30N | Section: | 3 |
| Range: | 1W |
Location |
| Address: | 231 22ND ST PORT TOWNSEND, WA 98368 | Mapsco: | 065/011 |
| Neighborhood: | EISENBEIS, OC HASTINGS & SUPP, PINKS LESS VICTORIAN VILLAGE | Map ID: | |
| Neighborhood CD: | 6210 |
Owner |
| Name: | ARABELLA DAUBENBERGER | Owner ID: | 103877 |
| Mailing Address: | JOE DAUBENBERGER JULIE A DAUBENBERGER 231 22ND ST PORT TOWNSEND, WA 98368-7803 | % Ownership: | 100.0000000000% |
| | | Exemptions: | |
Pay Tax Due
Select the appropriate checkbox next to the year to be paid. Multiple years may be selected.
*Convenience Fee not included
Taxes and Assessment Details
Property Tax Information as of
03/11/2026
Click on "Statement Details" to expand or collapse a tax statement.
* Please enter a valid date ** Please enter a valid date *
Statement Details |
| 2026 | 19710 | STATE - STATE LEVY (SCHOOL) | $591.26 | $591.24 | $0.00 | $0.00 | $0.00 | $1182.50 |
| 2026 | 19710 | COUNTY - COUNTY LEVIES (CE, DD, VET, MH) | $236.38 | $236.37 | $0.00 | $0.00 | $0.00 | $472.75 |
| 2026 | 19710 | CONSERVE - CONSERVATION FUTURES | $7.09 | $7.09 | $0.00 | $0.00 | $0.00 | $14.18 |
| 2026 | 19710 | CITYPT - CITY OF PT | $335.53 | $335.50 | $0.00 | $0.00 | $0.00 | $671.03 |
| 2026 | 19710 | PORTPT - PORT DISTRICT | $95.47 | $95.46 | $0.00 | $0.00 | $0.00 | $190.93 |
| 2026 | 19710 | PUD1 - PUD #1 | $15.38 | $15.37 | $0.00 | $0.00 | $0.00 | $30.75 |
| 2026 | 19710 | HD2 - HOSP DIST #2 | $13.79 | $13.78 | $0.00 | $0.00 | $0.00 | $27.57 |
| 2026 | 19710 | SD50 - SCHOOL DIST #50 | $468.40 | $468.39 | $0.00 | $0.00 | $0.00 | $936.79 |
| 2026 | 19710 | FD1 - FIRE DISTRICT #1 | $313.02 | $313.02 | $0.00 | $0.00 | $0.00 | $626.04 |
| 2026 | 19710 | EMS1 - FIRE DIST #1 EMS | $120.35 | $120.35 | $0.00 | $0.00 | $0.00 | $240.70 |
| 2026 | 19710 | JCCD - JC Conservation District | $2.55 | $2.55 | $0.00 | $0.00 | $0.00 | $5.10 |
| 2026 | 19710 | NWA - Noxious Weed Assessment | $2.98 | $2.97 | $0.00 | $0.00 | $0.00 | $5.95 |
| 2026 | 19710 | TOTAL: | $2202.20 | $2202.09 | $0.00 | $0.00 | $0.00 | $4404.29 |
|
| 2026 | 19710 | $2202.20 | $2202.09 | $0.00 | $0.00 | $0.00 | $4404.29 |
Statement Details |
| 2025 | 19771 | STATE - STATE LEVY (SCHOOL) | $602.97 | $602.96 | $0.00 | $0.00 | $1205.93 | $0.00 |
| 2025 | 19771 | COUNTY - COUNTY LEVIES (CE, DD, VET, MH) | $237.11 | $237.11 | $0.00 | $0.00 | $474.22 | $0.00 |
| 2025 | 19771 | CONSERVE - CONSERVATION FUTURES | $7.11 | $7.11 | $0.00 | $0.00 | $14.22 | $0.00 |
| 2025 | 19771 | CITYPT - CITY OF PT | $341.95 | $341.93 | $0.00 | $0.00 | $683.88 | $0.00 |
| 2025 | 19771 | PORTPT - PORT DISTRICT | $96.76 | $96.76 | $0.00 | $0.00 | $193.52 | $0.00 |
| 2025 | 19771 | PUD1 - PUD #1 | $15.52 | $15.51 | $0.00 | $0.00 | $31.03 | $0.00 |
| 2025 | 19771 | HD2 - HOSP DIST #2 | $13.84 | $13.83 | $0.00 | $0.00 | $27.67 | $0.00 |
| 2025 | 19771 | SD50 - SCHOOL DIST #50 | $440.68 | $440.66 | $0.00 | $0.00 | $881.34 | $0.00 |
| 2025 | 19771 | FD1 - FIRE DISTRICT #1 | $312.90 | $312.89 | $0.00 | $0.00 | $625.79 | $0.00 |
| 2025 | 19771 | EMS1 - FIRE DIST #1 EMS | $120.35 | $120.35 | $0.00 | $0.00 | $240.70 | $0.00 |
| 2025 | 19771 | JCCD - JC Conservation District | $2.55 | $2.55 | $0.00 | $0.00 | $5.10 | $0.00 |
| 2025 | 19771 | NWA - Noxious Weed Assessment | $2.15 | $2.15 | $0.00 | $0.00 | $4.30 | $0.00 |
| 2025 | 19771 | TOTAL: | $2193.89 | $2193.81 | $0.00 | $0.00 | $4387.70 | $0.00 |
|
| 2025 | 19771 | $2193.89 | $2193.81 | $0.00 | $0.00 | $4387.70 | $0.00 |
Statement Details |
| 2024 | 19809 | STATE - STATE LEVY (SCHOOL) | $549.97 | $549.96 | $0.00 | $0.00 | $1099.93 | $0.00 |
| 2024 | 19809 | COUNTY - COUNTY LEVIES (CE, DD, VET, MH) | $235.35 | $235.33 | $0.00 | $0.00 | $470.68 | $0.00 |
| 2024 | 19809 | CONSERVE - CONSERVATION FUTURES | $7.06 | $7.05 | $0.00 | $0.00 | $14.11 | $0.00 |
| 2024 | 19809 | CITYPT - CITY OF PT | $336.27 | $336.25 | $0.00 | $0.00 | $672.52 | $0.00 |
| 2024 | 19809 | PORTPT - PORT DISTRICT | $97.21 | $97.20 | $0.00 | $0.00 | $194.41 | $0.00 |
| 2024 | 19809 | PUD1 - PUD #1 | $15.46 | $15.46 | $0.00 | $0.00 | $30.92 | $0.00 |
| 2024 | 19809 | HD2 - HOSP DIST #2 | $13.73 | $13.73 | $0.00 | $0.00 | $27.46 | $0.00 |
| 2024 | 19809 | SD50 - SCHOOL DIST #50 | $444.95 | $444.94 | $0.00 | $0.00 | $889.89 | $0.00 |
| 2024 | 19809 | FD1 - FIRE DISTRICT #1 | $311.17 | $311.17 | $0.00 | $0.00 | $622.34 | $0.00 |
| 2024 | 19809 | EMS1 - FIRE DIST #1 EMS | $118.86 | $118.85 | $0.00 | $0.00 | $237.71 | $0.00 |
| 2024 | 19809 | JCCD - JC Conservation District | $2.55 | $2.55 | $0.00 | $0.00 | $5.10 | $0.00 |
| 2024 | 19809 | NWA - Noxious Weed Assessment | $2.15 | $2.15 | $0.00 | $0.00 | $4.30 | $0.00 |
| 2024 | 19809 | TOTAL: | $2134.73 | $2134.64 | $0.00 | $0.00 | $4269.37 | $0.00 |
|
| 2024 | 19809 | $2134.73 | $2134.64 | $0.00 | $0.00 | $4269.37 | $0.00 |
Statement Details |
| 2023 | 19846 | STATE - STATE LEVY (SCHOOL) | $539.60 | $539.59 | $0.00 | $0.00 | $1079.19 | $0.00 |
| 2023 | 19846 | COUNTY - COUNTY LEVIES (CE, DD, VET, MH) | $235.48 | $235.44 | $0.00 | $0.00 | $470.92 | $0.00 |
| 2023 | 19846 | CONSERVE - CONSERVATION FUTURES | $7.06 | $7.06 | $0.00 | $0.00 | $14.12 | $0.00 |
| 2023 | 19846 | CITYPT - CITY OF PT | $332.80 | $332.78 | $0.00 | $0.00 | $665.58 | $0.00 |
| 2023 | 19846 | PORTPT - PORT DISTRICT | $99.20 | $99.18 | $0.00 | $0.00 | $198.38 | $0.00 |
| 2023 | 19846 | PUD1 - PUD #1 | $15.61 | $15.61 | $0.00 | $0.00 | $31.22 | $0.00 |
| 2023 | 19846 | HD2 - HOSP DIST #2 | $13.75 | $13.73 | $0.00 | $0.00 | $27.48 | $0.00 |
| 2023 | 19846 | SD50 - SCHOOL DIST #50 | $428.19 | $428.17 | $0.00 | $0.00 | $856.36 | $0.00 |
| 2023 | 19846 | FD1 - FIRE DISTRICT #1 | $193.98 | $193.97 | $0.00 | $0.00 | $387.95 | $0.00 |
| 2023 | 19846 | EMS1 - FIRE DIST #1 EMS | $82.52 | $82.51 | $0.00 | $0.00 | $165.03 | $0.00 |
| 2023 | 19846 | JCCD - JC Conservation District | $2.55 | $2.55 | $0.00 | $0.00 | $5.10 | $0.00 |
| 2023 | 19846 | NWA - Noxious Weed Assessment | $2.15 | $2.15 | $0.00 | $0.00 | $4.30 | $0.00 |
| 2023 | 19846 | TOTAL: | $1952.89 | $1952.74 | $0.00 | $0.00 | $3905.63 | $0.00 |
|
| 2023 | 19846 | $1952.89 | $1952.74 | $0.00 | $0.00 | $3905.63 | $0.00 |
Values
| (+) Improvement Homesite Value: | + | $0 | |
| (+) Improvement Non-Homesite Value: | + | $363,581 | |
| (+) Land Homesite Value: | + | $0 | |
| (+) Land Non-Homesite Value: | + | $150,750 | |
| (+) Curr Use (HS): | + | $0 | $0 |
| (+) Curr Use (NHS): | + | $0 | $0 |
| | | -------------------------- | |
| (=) Market Value: | = | $514,331 | |
| (–) Productivity Loss: | – | $0 | |
| | | -------------------------- | |
| (=) Subtotal: | = | $514,331 | |
| (+) Senior Appraised Value: | + | $0 | |
| (+) Non-Senior Appraised Value: | + | $514,331 | |
| | | -------------------------- | |
| (=) Total Appraised Value: | = | $514,331 | |
| (–) Senior Exemption Loss: | – | $0 | |
| (–) Exemption Loss: | – | $0 | |
| | | -------------------------- | |
| (=) Taxable Value: | = | $514,331 | |
Taxing Jurisdiction
| Owner: | ARABELLA DAUBENBERGER | | |
| % Ownership: | 100.0000000000% | | |
| Total Value: | $514,331 | | |
| Tax Area: | 0110 - C-50F1E1H2 |
| CE | COUNTY CURRENT EXPENSE | 0.9034619479 | $514,331 | $514,331 | $464.68 | | |
| CNTYDD | DEVELOPMENTAL DISABILITIES | 0.0052121823 | $514,331 | $514,331 | $2.68 | | |
| CNTYVET | VETERANS RELIEF | 0.0052777810 | $514,331 | $514,331 | $2.71 | | |
| MENTAL | MENTAL HEALTH | 0.0052121823 | $514,331 | $514,331 | $2.68 | | |
| PTGEN | CITY OF PT GENERAL | 0.8551967795 | $514,331 | $514,331 | $439.85 | | |
| PTLLL | CITY OF PT - LIBRARY LID LIFT | 0.4010114288 | $514,331 | $514,331 | $206.25 | | |
| PTMVBOND | CITY OF PT MV BOND | 0.0484717981 | $514,331 | $514,331 | $24.93 | | |
| HOSP2CASH | HOSP DIST #2 GENERAL | 0.0536075306 | $514,331 | $514,331 | $27.57 | | |
| SCH50BOND | SCHOOL DIST #50 BOND 2016 | 0.5377451389 | $514,331 | $514,331 | $276.58 | | |
| SCH50CP | SCHOOL DIST #50 CAP PROJ | 0.4573475088 | $514,331 | $514,331 | $235.23 | | |
| SCH50MO | SCHOOL DIST #50 EP & O | 0.8262822886 | $514,331 | $514,331 | $424.98 | | |
| CONSERVE | CONSERVATION FUTURES | 0.0275621078 | $514,331 | $514,331 | $14.18 | | |
| EMS1 | FIRE DIST #1 EMS | 0.4679948282 | $514,331 | $514,331 | $240.70 | | |
| FD1 | FIRE DIST #1 GENERAL | 1.2171942929 | $514,331 | $514,331 | $626.04 | | |
| PORTPT | PORT OF PT GENERAL | 0.1134941229 | $514,331 | $514,331 | $58.37 | | |
| PORTPTIDD | PORT OF PT IDD 2019 | 0.2577346692 | $514,331 | $514,331 | $132.56 | | |
| PUD1 | PUD #1 GENERAL | 0.0597888892 | $514,331 | $514,331 | $30.75 | | |
| STATE | STATE SCHOOL PART 1 | 1.4940692947 | $514,331 | $514,331 | $768.45 | | |
| STATE2 | STATE SCHOOL PART 2 | 0.8050170049 | $514,331 | $514,331 | $414.05 | | |
| | Total Tax Rate: | 8.5416817766 | | | | | |
| | | | | Taxes w/Current Exemptions: | $4,393.24 | | |
| | | | | Taxes w/o Exemptions: | $4,393.24 | | |
Improvement / Building
| Improvement #1: | Residential Bldg | State Code: | 11 | 1200.0 sqft | Value: | $363,581 |
| Bathrooms (#): | 1 (FULL) | Bathrooms (#): | 1 (HALF) | | Bedrooms (#): | 3 | Exterior Wall: | SI/ST | | Fireplace: | WD ST-GOOD | Floor Construction: | FRAME | | Foundation: | CONPR | Heating/Cooling: | ELBB | | Roof Cover: | COMP |   |   |
|
| | Type | Description | Class CD | Sub Class CD | Year Built | Area |
| | MA | Main Area | 5- | 2S | 1983 | 600.0 |
| | MA2 | Second Floor Main Area | 5- | 2S | 1983 | 600.0 |
| | HWPOR | House Wood Porch | 4 | 2S | 1983 | 172.0 |
| | GATT | House Attached Garage | 4 | 2S | 1983 | 264.0 |
| | HDECK | House Deck | 4 | 2S | 1983 | 96.0 |
| | HRPO | House Roof Patio | 4 | 2S | 1983 | 140.0 |
Sketch
Property Image
Land
| 1 | 6210-1185L | | 0.0000 | 0.00 | 0.00 | 0.00 | 1.00 | $150,750 | $0 |
Roll Value History
| 2026 | N/A | N/A | N/A | N/A | N/A |
| 2025 | $363,581 | $150,750 | $0 | $514,331 | $514,331 |
| 2024 | $357,986 | $144,900 | $0 | $502,886 | $502,886 |
| 2023 | $342,421 | $133,000 | $0 | $475,421 | $475,421 |
| 2022 | $342,421 | $116,000 | $0 | $458,421 | $458,421 |
Deed and Sales History
| 1 | 12/16/2020 | SWD | Statutory Warranty Deed | HEATHER J LITTLEFIELD | ARABELLA DAUBENBERGER | | | $360,000.00 | 135805 | |
| 2 | 07/18/2018 | SWD | Statutory Warranty Deed | REBECCA B KIMBALL | HEATHER J LITTLEFIELD | | | $320,000.00 | 130635 | |
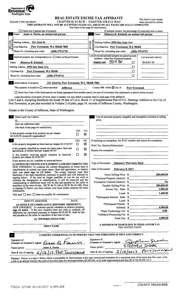
| 3 | 02/08/2017 | SWD | Statutory Warranty Deed | ANNE A FARISS | REBECCA B KIMBALL | | | $280,000.00 | 127140 | |
| 4 | 12/28/2004 | SWD | Statutory Warranty Deed | CARDINAL, BRANDON | FARISS, ROBERT H & ANNE A | 0 | 0 | $231,000.00 | 102441 | 0 |
| 5 | 06/26/2001 | SWD | Statutory Warranty Deed | VERNON-COLE, M.A./E.S. | CARDINAL, BRANDON | 0 | 0 | $100,000.00 | 92520 | 0 |
| 6 | 06/28/1999 | QCD | Quit Claim Deed | VERNON-COLE, M A/E S | VERNON-COLE, M A/E S | 0 | 0 | $0.00 | 87623 | 0 |
Payout Agreement
| No payout information available.. |