Property
Account |
| Property ID: | 30515 | Abbreviated Legal Description: | HERON POND RANCH TRACT 13 SUBJ/CONSRV RES & EASE |
| Parcel # / Geo ID: | 959000013 | Agent Code: | |
| Type: | Real | | |
| Tax Area: | 0111 - 1-50F1E1H2L1 | Land Use Code | 83 |
| Open Space: | Y | DFL | N |
| Historic Property: | N | Remodel Property: | N |
| Multi-Family Redevelopment: | N | | |
| Township: | 30N | Section: | 29 |
| Range: | 1W |
Location |
| Address: | 152 DOUGLAS WAY PORT TOWNSEND, WA 98368 | Mapsco: | 033/044 |
| Neighborhood: | S29 T30 R1W DEER RIDGE, DOE RUN, SNAGSTEAD WAY | Map ID: | |
| Neighborhood CD: | 5370 |
Owner |
| Name: | SARA L PERKINS | Owner ID: | 109971 |
| Mailing Address: | 152 DOUGLAS WAY PORT TOWNSEND, WA 98368-9102 | % Ownership: | 100.0000000000% |
| | | Exemptions: | |
Pay Tax Due
There is currently No Amount Due on this property.
Taxes and Assessment Details
Property Tax Information as of
03/10/2026
Click on "Statement Details" to expand or collapse a tax statement.
* Please enter a valid date ** Please enter a valid date *
Statement Details |
| 2026 | 19818 | STATE - STATE LEVY (SCHOOL) | $913.85 | $913.85 | $0.00 | $0.00 | $1827.70 | $0.00 |
| 2026 | 19818 | COUNTY - COUNTY LEVIES (CE, DD, VET, MH) | $365.35 | $365.35 | $0.00 | $0.00 | $730.70 | $0.00 |
| 2026 | 19818 | CONSERVE - CONSERVATION FUTURES | $10.96 | $10.95 | $0.00 | $0.00 | $21.91 | $0.00 |
| 2026 | 19818 | COROADS - COUNTY ROADS (ROADS, DIV TO CE) | $294.74 | $294.73 | $0.00 | $0.00 | $589.47 | $0.00 |
| 2026 | 19818 | PORTPT - PORT DISTRICT | $147.56 | $147.55 | $0.00 | $0.00 | $295.11 | $0.00 |
| 2026 | 19818 | PUD1 - PUD #1 | $23.77 | $23.76 | $0.00 | $0.00 | $47.53 | $0.00 |
| 2026 | 19818 | LIB1 - LIBRARY DIST #1 | $114.03 | $114.03 | $0.00 | $0.00 | $228.06 | $0.00 |
| 2026 | 19818 | HD2 - HOSP DIST #2 | $21.31 | $21.31 | $0.00 | $0.00 | $42.62 | $0.00 |
| 2026 | 19818 | SD50 - SCHOOL DIST #50 | $723.98 | $723.96 | $0.00 | $0.00 | $1447.94 | $0.00 |
| 2026 | 19818 | FD1 - FIRE DISTRICT #1 | $483.82 | $483.81 | $0.00 | $0.00 | $967.63 | $0.00 |
| 2026 | 19818 | EMS1 - FIRE DIST #1 EMS | $186.02 | $186.02 | $0.00 | $0.00 | $372.04 | $0.00 |
| 2026 | 19818 | FP - DNR Forest Fire Protection Assmt | $8.50 | $8.50 | $0.00 | $0.00 | $17.00 | $0.00 |
| 2026 | 19818 | FPLCA - DNR Landowner Contingency Assmt | $3.00 | $3.00 | $0.00 | $0.00 | $6.00 | $0.00 |
| 2026 | 19818 | JCCD - JC Conservation District | $3.00 | $2.99 | $0.00 | $0.00 | $5.99 | $0.00 |
| 2026 | 19818 | NWA - Noxious Weed Assessment | $5.00 | $5.00 | $0.00 | $0.00 | $10.00 | $0.00 |
| 2026 | 19818 | OSS - On Site Septic | $23.10 | $23.10 | $0.00 | $0.00 | $46.20 | $0.00 |
| 2026 | 19818 | WAT - Clean Water District | $13.00 | $13.00 | $0.00 | $0.00 | $26.00 | $0.00 |
| 2026 | 19818 | FP ADMIN - FP ADMIN | $0.50 | $0.00 | $0.00 | $0.00 | $0.50 | $0.00 |
| 2026 | 19818 | TOTAL: | $3341.49 | $3340.91 | $0.00 | $0.00 | $6682.40 | $0.00 |
|
| 2026 | 19818 | $3341.49 | $3340.91 | $0.00 | $0.00 | $6682.40 | $0.00 |
Statement Details |
| 2025 | 19879 | STATE - STATE LEVY (SCHOOL) | $911.23 | $911.22 | $0.00 | $0.00 | $1822.45 | $0.00 |
| 2025 | 19879 | COUNTY - COUNTY LEVIES (CE, DD, VET, MH) | $358.35 | $358.31 | $0.00 | $0.00 | $716.66 | $0.00 |
| 2025 | 19879 | CONSERVE - CONSERVATION FUTURES | $10.75 | $10.74 | $0.00 | $0.00 | $21.49 | $0.00 |
| 2025 | 19879 | COROADS - COUNTY ROADS (ROADS, DIV TO CE) | $287.08 | $287.08 | $0.00 | $0.00 | $574.16 | $0.00 |
| 2025 | 19879 | PORTPT - PORT DISTRICT | $146.23 | $146.21 | $0.00 | $0.00 | $292.44 | $0.00 |
| 2025 | 19879 | PUD1 - PUD #1 | $23.45 | $23.44 | $0.00 | $0.00 | $46.89 | $0.00 |
| 2025 | 19879 | LIB1 - LIBRARY DIST #1 | $111.07 | $111.07 | $0.00 | $0.00 | $222.14 | $0.00 |
| 2025 | 19879 | HD2 - HOSP DIST #2 | $20.91 | $20.90 | $0.00 | $0.00 | $41.81 | $0.00 |
| 2025 | 19879 | SD50 - SCHOOL DIST #50 | $665.96 | $665.94 | $0.00 | $0.00 | $1331.90 | $0.00 |
| 2025 | 19879 | FD1 - FIRE DISTRICT #1 | $472.86 | $472.86 | $0.00 | $0.00 | $945.72 | $0.00 |
| 2025 | 19879 | EMS1 - FIRE DIST #1 EMS | $181.88 | $181.87 | $0.00 | $0.00 | $363.75 | $0.00 |
| 2025 | 19879 | FP - DNR Forest Fire Protection Assmt | $8.50 | $8.50 | $0.00 | $0.00 | $17.00 | $0.00 |
| 2025 | 19879 | FPLCA - DNR Landowner Contingency Assmt | $3.00 | $3.00 | $0.00 | $0.00 | $6.00 | $0.00 |
| 2025 | 19879 | JCCD - JC Conservation District | $3.00 | $2.99 | $0.00 | $0.00 | $5.99 | $0.00 |
| 2025 | 19879 | NWA - Noxious Weed Assessment | $3.50 | $3.50 | $0.00 | $0.00 | $7.00 | $0.00 |
| 2025 | 19879 | OSS - On Site Septic | $21.50 | $21.50 | $0.00 | $0.00 | $43.00 | $0.00 |
| 2025 | 19879 | WAT - Clean Water District | $13.00 | $13.00 | $0.00 | $0.00 | $26.00 | $0.00 |
| 2025 | 19879 | FP ADMIN - FP ADMIN | $0.50 | $0.00 | $0.00 | $0.00 | $0.50 | $0.00 |
| 2025 | 19879 | TOTAL: | $3242.77 | $3242.13 | $0.00 | $0.00 | $6484.90 | $0.00 |
|
| 2025 | 19879 | $3242.77 | $3242.13 | $0.00 | $0.00 | $6484.90 | $0.00 |
Statement Details |
| 2024 | 19918 | STATE - STATE LEVY (SCHOOL) | $630.88 | $630.87 | $0.00 | $0.00 | $1261.75 | $0.00 |
| 2024 | 19918 | COUNTY - COUNTY LEVIES (CE, DD, VET, MH) | $269.98 | $269.94 | $0.00 | $0.00 | $539.92 | $0.00 |
| 2024 | 19918 | CONSERVE - CONSERVATION FUTURES | $8.10 | $8.09 | $0.00 | $0.00 | $16.19 | $0.00 |
| 2024 | 19918 | COROADS - COUNTY ROADS (ROADS, DIV TO CE) | $217.23 | $217.23 | $0.00 | $0.00 | $434.46 | $0.00 |
| 2024 | 19918 | PORTPT - PORT DISTRICT | $111.51 | $111.50 | $0.00 | $0.00 | $223.01 | $0.00 |
| 2024 | 19918 | PUD1 - PUD #1 | $17.73 | $17.73 | $0.00 | $0.00 | $35.46 | $0.00 |
| 2024 | 19918 | LIB1 - LIBRARY DIST #1 | $84.05 | $84.04 | $0.00 | $0.00 | $168.09 | $0.00 |
| 2024 | 19918 | HD2 - HOSP DIST #2 | $15.75 | $15.75 | $0.00 | $0.00 | $31.50 | $0.00 |
| 2024 | 19918 | SD50 - SCHOOL DIST #50 | $510.42 | $510.40 | $0.00 | $0.00 | $1020.82 | $0.00 |
| 2024 | 19918 | FD1 - FIRE DISTRICT #1 | $356.95 | $356.95 | $0.00 | $0.00 | $713.90 | $0.00 |
| 2024 | 19918 | EMS1 - FIRE DIST #1 EMS | $136.34 | $136.34 | $0.00 | $0.00 | $272.68 | $0.00 |
| 2024 | 19918 | FP - DNR Forest Fire Protection Assmt | $8.50 | $8.50 | $0.00 | $0.00 | $17.00 | $0.00 |
| 2024 | 19918 | FPLCA - DNR Landowner Contingency Assmt | $3.00 | $3.00 | $0.00 | $0.00 | $6.00 | $0.00 |
| 2024 | 19918 | JCCD - JC Conservation District | $3.00 | $2.99 | $0.00 | $0.00 | $5.99 | $0.00 |
| 2024 | 19918 | NWA - Noxious Weed Assessment | $3.50 | $3.50 | $0.00 | $0.00 | $7.00 | $0.00 |
| 2024 | 19918 | OSS - On Site Septic | $21.00 | $21.00 | $0.00 | $0.00 | $42.00 | $0.00 |
| 2024 | 19918 | WAT - Clean Water District | $12.50 | $12.50 | $0.00 | $0.00 | $25.00 | $0.00 |
| 2024 | 19918 | FP ADMIN - FP ADMIN | $0.50 | $0.00 | $0.00 | $0.00 | $0.50 | $0.00 |
| 2024 | 19918 | TOTAL: | $2410.94 | $2410.33 | $0.00 | $0.00 | $4821.27 | $0.00 |
|
| 2024 | 19918 | $2410.94 | $2410.33 | $0.00 | $0.00 | $4821.27 | $0.00 |
Statement Details |
| 2023 | 19955 | STATE - STATE LEVY (SCHOOL) | $628.70 | $628.69 | $0.00 | $0.00 | $1257.39 | $0.00 |
| 2023 | 19955 | COUNTY - COUNTY LEVIES (CE, DD, VET, MH) | $274.35 | $274.32 | $0.00 | $0.00 | $548.67 | $0.00 |
| 2023 | 19955 | CONSERVE - CONSERVATION FUTURES | $8.23 | $8.22 | $0.00 | $0.00 | $16.45 | $0.00 |
| 2023 | 19955 | COROADS - COUNTY ROADS (ROADS, DIV TO CE) | $221.97 | $221.96 | $0.00 | $0.00 | $443.93 | $0.00 |
| 2023 | 19955 | PORTPT - PORT DISTRICT | $115.58 | $115.56 | $0.00 | $0.00 | $231.14 | $0.00 |
| 2023 | 19955 | PUD1 - PUD #1 | $18.19 | $18.18 | $0.00 | $0.00 | $36.37 | $0.00 |
| 2023 | 19955 | LIB1 - LIBRARY DIST #1 | $85.88 | $85.87 | $0.00 | $0.00 | $171.75 | $0.00 |
| 2023 | 19955 | HD2 - HOSP DIST #2 | $16.02 | $16.00 | $0.00 | $0.00 | $32.02 | $0.00 |
| 2023 | 19955 | SD50 - SCHOOL DIST #50 | $498.88 | $498.88 | $0.00 | $0.00 | $997.76 | $0.00 |
| 2023 | 19955 | FD1 - FIRE DISTRICT #1 | $226.01 | $226.00 | $0.00 | $0.00 | $452.01 | $0.00 |
| 2023 | 19955 | EMS1 - FIRE DIST #1 EMS | $96.14 | $96.14 | $0.00 | $0.00 | $192.28 | $0.00 |
| 2023 | 19955 | FP - DNR Forest Fire Protection Assmt | $8.50 | $8.50 | $0.00 | $0.00 | $17.00 | $0.00 |
| 2023 | 19955 | FPLCA - DNR Landowner Contingency Assmt | $3.00 | $3.00 | $0.00 | $0.00 | $6.00 | $0.00 |
| 2023 | 19955 | JCCD - JC Conservation District | $3.00 | $2.99 | $0.00 | $0.00 | $5.99 | $0.00 |
| 2023 | 19955 | NWA - Noxious Weed Assessment | $3.50 | $3.50 | $0.00 | $0.00 | $7.00 | $0.00 |
| 2023 | 19955 | OSS - On Site Septic | $20.50 | $20.50 | $0.00 | $0.00 | $41.00 | $0.00 |
| 2023 | 19955 | WAT - Clean Water District | $12.00 | $12.00 | $0.00 | $0.00 | $24.00 | $0.00 |
| 2023 | 19955 | FP ADMIN - FP ADMIN | $0.50 | $0.00 | $0.00 | $0.00 | $0.50 | $0.00 |
| 2023 | 19955 | TOTAL: | $2240.95 | $2240.31 | $0.00 | $0.00 | $4481.26 | $0.00 |
|
| 2023 | 19955 | $2240.95 | $2240.31 | $0.00 | $0.00 | $4481.26 | $0.00 |
Values
| (+) Improvement Homesite Value: | + | $0 | |
| (+) Improvement Non-Homesite Value: | + | $562,541 | |
| (+) Land Homesite Value: | + | $0 | |
| (+) Land Non-Homesite Value: | + | $214,500 | |
| (+) Curr Use (HS): | + | $0 | $0 |
| (+) Curr Use (NHS): | + | $56,994 | $17,928 |
| | | -------------------------- | |
| (=) Market Value: | = | $834,035 | |
| (–) Productivity Loss: | – | $39,066 | |
| | | -------------------------- | |
| (=) Subtotal: | = | $794,969 | |
| (+) Senior Appraised Value: | + | $0 | |
| (+) Non-Senior Appraised Value: | + | $794,969 | |
| | | -------------------------- | |
| (=) Total Appraised Value: | = | $794,969 | |
| (–) Senior Exemption Loss: | – | $0 | |
| (–) Exemption Loss: | – | $0 | |
| | | -------------------------- | |
| (=) Taxable Value: | = | $794,969 | |
Taxing Jurisdiction
| Owner: | SARA L PERKINS | | |
| % Ownership: | 100.0000000000% | | |
| Total Value: | $834,035 | | |
| Tax Area: | 0111 - 1-50F1E1H2L1 |
| CE | COUNTY CURRENT EXPENSE | 0.9034619479 | $794,969 | $794,969 | $718.22 | | |
| CNTYDD | DEVELOPMENTAL DISABILITIES | 0.0052121823 | $794,969 | $794,969 | $4.14 | | |
| CNTYVET | VETERANS RELIEF | 0.0052777810 | $794,969 | $794,969 | $4.20 | | |
| MENTAL | MENTAL HEALTH | 0.0052121823 | $794,969 | $794,969 | $4.14 | | |
| ROADS | COUNTY ROADS | 0.7415066410 | $794,969 | $794,969 | $589.47 | | |
| ROADSCU | COUNTY ROADS TO CUR EXP | 0.0000000000 | $794,969 | $794,969 | $0.00 | | |
| HOSP2CASH | HOSP DIST #2 GENERAL | 0.0536075306 | $794,969 | $794,969 | $42.62 | | |
| SCH50BOND | SCHOOL DIST #50 BOND 2016 | 0.5377451389 | $794,969 | $794,969 | $427.49 | | |
| SCH50CP | SCHOOL DIST #50 CAP PROJ | 0.4573475088 | $794,969 | $794,969 | $363.58 | | |
| SCH50MO | SCHOOL DIST #50 EP & O | 0.8262822886 | $794,969 | $794,969 | $656.87 | | |
| CONSERVE | CONSERVATION FUTURES | 0.0275621078 | $794,969 | $794,969 | $21.91 | | |
| EMS1 | FIRE DIST #1 EMS | 0.4679948282 | $794,969 | $794,969 | $372.04 | | |
| FD1 | FIRE DIST #1 GENERAL | 1.2171942929 | $794,969 | $794,969 | $967.63 | | |
| LIB1 | LIBRARY DIST #1 GENERAL | 0.2868827388 | $794,969 | $794,969 | $228.06 | | |
| PORTPT | PORT OF PT GENERAL | 0.1134941229 | $794,969 | $794,969 | $90.22 | | |
| PORTPTIDD | PORT OF PT IDD 2019 | 0.2577346692 | $794,969 | $794,969 | $204.89 | | |
| PUD1 | PUD #1 GENERAL | 0.0597888892 | $794,969 | $794,969 | $47.53 | | |
| STATE | STATE SCHOOL PART 1 | 1.4940692947 | $794,969 | $794,969 | $1,187.74 | | |
| STATE2 | STATE SCHOOL PART 2 | 0.8050170049 | $794,969 | $794,969 | $639.96 | | |
| | Total Tax Rate: | 8.2653911500 | | | | | |
| | | | | Taxes w/Current Exemptions: | $6,570.71 | | |
| | | | | Taxes w/o Exemptions: | $6,570.71 | | |
Improvement / Building
| Improvement #1: | Residential Bldg | State Code: | 11 | 672.0 sqft | Value: | $226,670 |
| Bathrooms (#): | 1 (FULL) | Bedrooms (#): | 1 | | Exterior Wall: | SI/ST | Floor Construction: | CONCR | | Foundation: | CONPR | Heating/Cooling: | ELBB | | Roof Cover: | METAL |   |   |
|
| | Type | Description | Class CD | Sub Class CD | Year Built | Area |
| | MA | Main Area | 4- | 1S | 2009 | 672.0 |
| | HWPOR | House Wood Porch | 4 | 1S | 2009 | 156.0 |
| | GDET | Detached Garage | 3 | 1S | 2009 | 1296.0 |
| Improvement #2: | Residential Bldg | State Code: | 11 | 676.0 sqft | Value: | $335,871 |
| Bathrooms (#): | 1 (FULL) | Bedrooms (#): | 1 | | Exterior Wall: | PL/T1 | Floor Construction: | FRAME | | Foundation: | CONPR | Heating/Cooling: | ELBB | | Roof Cover: | METAL |   |   |
|
| | Type | Description | Class CD | Sub Class CD | Year Built | Area |
| | MA | Main Area | 4- | 1S | 1995 | 676.0 |
| | CARPTN | Carport W/O Floor | 4 | 1S | 1995 | 672.0 |
| | BARN | Barn (Table Not Dep) | 5 | 1S | 1995 | 1296.0 |
| | BARN | Barn (Table Not Dep) | 5 | 1S | 1995 | 2688.0 |
Sketch
| No sketches available for this property. |
Property Image
Land
| 1 | 5370-1371S | | 1.0000 | 43560.00 | 0.00 | 0.00 | 1.00 | $214,500 | $0 |
| 2 | 1679A | | 5.0000 | 217800.00 | 0.00 | 0.00 | 0.00 | $34,375 | $17,188 |
| 3 | 1679A | | 3.2900 | 143312.40 | 0.00 | 0.00 | 0.00 | $22,619 | $740 |
Roll Value History
| 2026 | N/A | N/A | N/A | N/A | N/A |
| 2025 | $562,541 | $271,494 | $17,928 | $794,969 | $794,969 |
| 2024 | $538,082 | $259,154 | $17,147 | $759,979 | $759,979 |
| 2023 | $344,624 | $234,740 | $15,740 | $545,364 | $545,364 |
| 2022 | $344,624 | $220,595 | $14,490 | $534,114 | $534,114 |
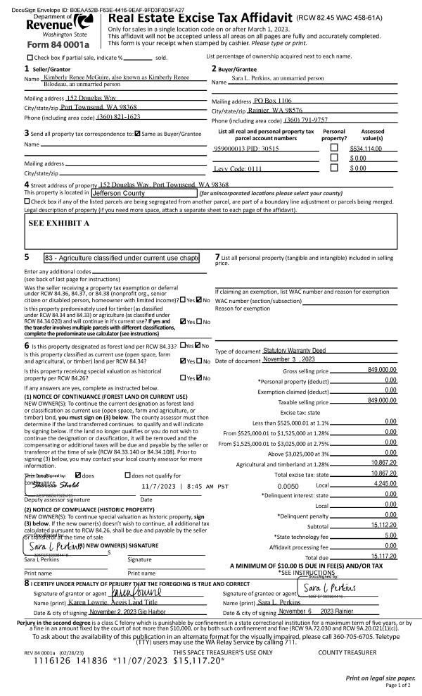
Deed and Sales History
| 1 | 11/03/2023 | SWD | Statutory Warranty Deed | KIMBERLY R MC GUIRE | SARA L PERKINS | | | $849,000.00 | 141836 | |
| 2 | 10/21/2011 | QCD | Quit Claim Deed | MC GUIRE, TIMOTHY JOHN | MC GUIRE, KIMBERLY RENEE | 0 | 0 | $0.00 | 116743 | 0 |
| 3 | 06/18/2002 | SWD | Statutory Warranty Deed | JOSEPH POLLACK | TIMOTHY J/KIMBERLY R MCGUIRE | 0 | 0 | $280,000.00 | 94914 | 0 |
Payout Agreement
| No payout information available.. |