Property
Account |
| Property ID: | 30537 | Abbreviated Legal Description: | HERONS NEST CONDOMINIUM UNIT 103 |
| Parcel # / Geo ID: | 959200103 | Agent Code: | |
| Type: | Real | | |
| Tax Area: | 0110 - C-50F1E1H2 | Land Use Code | 59 |
| Open Space: | N | DFL | N |
| Historic Property: | N | Remodel Property: | N |
| Multi-Family Redevelopment: | N | | |
| Township: | 30N | Section: | 2 |
| Range: | 1W |
Location |
| Address: | 842 WASHINGTON ST #103 PORT TOWNSEND, WA 98368 | Mapsco: | 066/047 |
| Neighborhood: | CYCLE 6 CONDOMINIUMS - PORT TOWNSEND | Map ID: | |
| Neighborhood CD: | 6900 |
Owner |
| Name: | METIS GROUP LLC | Owner ID: | 22446 |
| Mailing Address: | 736 REED ST PORT TOWNSEND, WA 98368-0415 | % Ownership: | 100.0000000000% |
| | | Exemptions: | |
Pay Tax Due
Select the appropriate checkbox next to the year to be paid. Multiple years may be selected.
*Convenience Fee not included
Taxes and Assessment Details
Property Tax Information as of
03/11/2026
Click on "Statement Details" to expand or collapse a tax statement.
* Please enter a valid date ** Please enter a valid date *
Statement Details |
| 2026 | 19840 | STATE - STATE LEVY (SCHOOL) | $224.32 | $224.31 | $0.00 | $0.00 | $0.00 | $448.63 |
| 2026 | 19840 | COUNTY - COUNTY LEVIES (CE, DD, VET, MH) | $89.69 | $89.68 | $0.00 | $0.00 | $0.00 | $179.37 |
| 2026 | 19840 | CONSERVE - CONSERVATION FUTURES | $2.69 | $2.69 | $0.00 | $0.00 | $0.00 | $5.38 |
| 2026 | 19840 | CITYPT - CITY OF PT | $127.30 | $127.29 | $0.00 | $0.00 | $0.00 | $254.59 |
| 2026 | 19840 | PORTPT - PORT DISTRICT | $36.23 | $36.21 | $0.00 | $0.00 | $0.00 | $72.44 |
| 2026 | 19840 | PUD1 - PUD #1 | $5.84 | $5.83 | $0.00 | $0.00 | $0.00 | $11.67 |
| 2026 | 19840 | HD2 - HOSP DIST #2 | $5.23 | $5.23 | $0.00 | $0.00 | $0.00 | $10.46 |
| 2026 | 19840 | SD50 - SCHOOL DIST #50 | $177.71 | $177.69 | $0.00 | $0.00 | $0.00 | $355.40 |
| 2026 | 19840 | FD1 - FIRE DISTRICT #1 | $118.76 | $118.75 | $0.00 | $0.00 | $0.00 | $237.51 |
| 2026 | 19840 | EMS1 - FIRE DIST #1 EMS | $45.66 | $45.66 | $0.00 | $0.00 | $0.00 | $91.32 |
| 2026 | 19840 | JCCD - JC Conservation District | $2.53 | $2.53 | $0.00 | $0.00 | $0.00 | $5.06 |
| 2026 | 19840 | NWA - Noxious Weed Assessment | $2.98 | $2.97 | $0.00 | $0.00 | $0.00 | $5.95 |
| 2026 | 19840 | TOTAL: | $838.94 | $838.84 | $0.00 | $0.00 | $0.00 | $1677.78 |
|
| 2026 | 19840 | $838.94 | $838.84 | $0.00 | $0.00 | $0.00 | $1677.78 |
Statement Details |
| 2025 | 19901 | STATE - STATE LEVY (SCHOOL) | $233.97 | $233.96 | $0.00 | $0.00 | $467.93 | $0.00 |
| 2025 | 19901 | COUNTY - COUNTY LEVIES (CE, DD, VET, MH) | $92.01 | $92.00 | $0.00 | $0.00 | $184.01 | $0.00 |
| 2025 | 19901 | CONSERVE - CONSERVATION FUTURES | $2.76 | $2.76 | $0.00 | $0.00 | $5.52 | $0.00 |
| 2025 | 19901 | CITYPT - CITY OF PT | $132.69 | $132.67 | $0.00 | $0.00 | $265.36 | $0.00 |
| 2025 | 19901 | PORTPT - PORT DISTRICT | $37.55 | $37.54 | $0.00 | $0.00 | $75.09 | $0.00 |
| 2025 | 19901 | PUD1 - PUD #1 | $6.02 | $6.02 | $0.00 | $0.00 | $12.04 | $0.00 |
| 2025 | 19901 | HD2 - HOSP DIST #2 | $5.37 | $5.37 | $0.00 | $0.00 | $10.74 | $0.00 |
| 2025 | 19901 | SD50 - SCHOOL DIST #50 | $171.00 | $170.98 | $0.00 | $0.00 | $341.98 | $0.00 |
| 2025 | 19901 | FD1 - FIRE DISTRICT #1 | $121.41 | $121.41 | $0.00 | $0.00 | $242.82 | $0.00 |
| 2025 | 19901 | EMS1 - FIRE DIST #1 EMS | $46.70 | $46.70 | $0.00 | $0.00 | $93.40 | $0.00 |
| 2025 | 19901 | JCCD - JC Conservation District | $2.53 | $2.53 | $0.00 | $0.00 | $5.06 | $0.00 |
| 2025 | 19901 | NWA - Noxious Weed Assessment | $2.15 | $2.15 | $0.00 | $0.00 | $4.30 | $0.00 |
| 2025 | 19901 | TOTAL: | $854.16 | $854.09 | $0.00 | $0.00 | $1708.25 | $0.00 |
|
| 2025 | 19901 | $854.16 | $854.09 | $0.00 | $0.00 | $1708.25 | $0.00 |
Statement Details |
| 2024 | 19940 | STATE - STATE LEVY (SCHOOL) | $219.57 | $219.56 | $0.00 | $0.00 | $439.13 | $0.00 |
| 2024 | 19940 | COUNTY - COUNTY LEVIES (CE, DD, VET, MH) | $93.96 | $93.94 | $0.00 | $0.00 | $187.90 | $0.00 |
| 2024 | 19940 | CONSERVE - CONSERVATION FUTURES | $2.82 | $2.81 | $0.00 | $0.00 | $5.63 | $0.00 |
| 2024 | 19940 | CITYPT - CITY OF PT | $134.25 | $134.25 | $0.00 | $0.00 | $268.50 | $0.00 |
| 2024 | 19940 | PORTPT - PORT DISTRICT | $38.81 | $38.80 | $0.00 | $0.00 | $77.61 | $0.00 |
| 2024 | 19940 | PUD1 - PUD #1 | $6.17 | $6.17 | $0.00 | $0.00 | $12.34 | $0.00 |
| 2024 | 19940 | HD2 - HOSP DIST #2 | $5.48 | $5.48 | $0.00 | $0.00 | $10.96 | $0.00 |
| 2024 | 19940 | SD50 - SCHOOL DIST #50 | $177.65 | $177.63 | $0.00 | $0.00 | $355.28 | $0.00 |
| 2024 | 19940 | FD1 - FIRE DISTRICT #1 | $124.23 | $124.23 | $0.00 | $0.00 | $248.46 | $0.00 |
| 2024 | 19940 | EMS1 - FIRE DIST #1 EMS | $47.45 | $47.45 | $0.00 | $0.00 | $94.90 | $0.00 |
| 2024 | 19940 | JCCD - JC Conservation District | $2.53 | $2.53 | $0.00 | $0.00 | $5.06 | $0.00 |
| 2024 | 19940 | NWA - Noxious Weed Assessment | $2.15 | $2.15 | $0.00 | $0.00 | $4.30 | $0.00 |
| 2024 | 19940 | TOTAL: | $855.07 | $855.00 | $0.00 | $0.00 | $1710.07 | $0.00 |
|
| 2024 | 19940 | $855.07 | $855.00 | $0.00 | $0.00 | $1710.07 | $0.00 |
Statement Details |
| 2023 | 19977 | STATE - STATE LEVY (SCHOOL) | $222.20 | $222.19 | $0.00 | $0.00 | $444.39 | $0.00 |
| 2023 | 19977 | COUNTY - COUNTY LEVIES (CE, DD, VET, MH) | $96.96 | $96.95 | $0.00 | $0.00 | $193.91 | $0.00 |
| 2023 | 19977 | CONSERVE - CONSERVATION FUTURES | $2.91 | $2.90 | $0.00 | $0.00 | $5.81 | $0.00 |
| 2023 | 19977 | CITYPT - CITY OF PT | $137.04 | $137.03 | $0.00 | $0.00 | $274.07 | $0.00 |
| 2023 | 19977 | PORTPT - PORT DISTRICT | $40.84 | $40.84 | $0.00 | $0.00 | $81.68 | $0.00 |
| 2023 | 19977 | PUD1 - PUD #1 | $6.43 | $6.42 | $0.00 | $0.00 | $12.85 | $0.00 |
| 2023 | 19977 | HD2 - HOSP DIST #2 | $5.67 | $5.65 | $0.00 | $0.00 | $11.32 | $0.00 |
| 2023 | 19977 | SD50 - SCHOOL DIST #50 | $176.32 | $176.32 | $0.00 | $0.00 | $352.64 | $0.00 |
| 2023 | 19977 | FD1 - FIRE DISTRICT #1 | $79.88 | $79.87 | $0.00 | $0.00 | $159.75 | $0.00 |
| 2023 | 19977 | EMS1 - FIRE DIST #1 EMS | $33.98 | $33.97 | $0.00 | $0.00 | $67.95 | $0.00 |
| 2023 | 19977 | JCCD - JC Conservation District | $2.53 | $2.53 | $0.00 | $0.00 | $5.06 | $0.00 |
| 2023 | 19977 | NWA - Noxious Weed Assessment | $2.15 | $2.15 | $0.00 | $0.00 | $4.30 | $0.00 |
| 2023 | 19977 | TOTAL: | $806.91 | $806.82 | $0.00 | $0.00 | $1613.73 | $0.00 |
|
| 2023 | 19977 | $806.91 | $806.82 | $0.00 | $0.00 | $1613.73 | $0.00 |
Values
| (+) Improvement Homesite Value: | + | $0 | |
| (+) Improvement Non-Homesite Value: | + | $122,533 | |
| (+) Land Homesite Value: | + | $0 | |
| (+) Land Non-Homesite Value: | + | $72,600 | |
| (+) Curr Use (HS): | + | $0 | $0 |
| (+) Curr Use (NHS): | + | $0 | $0 |
| | | -------------------------- | |
| (=) Market Value: | = | $195,133 | |
| (–) Productivity Loss: | – | $0 | |
| | | -------------------------- | |
| (=) Subtotal: | = | $195,133 | |
| (+) Senior Appraised Value: | + | $0 | |
| (+) Non-Senior Appraised Value: | + | $195,133 | |
| | | -------------------------- | |
| (=) Total Appraised Value: | = | $195,133 | |
| (–) Senior Exemption Loss: | – | $0 | |
| (–) Exemption Loss: | – | $0 | |
| | | -------------------------- | |
| (=) Taxable Value: | = | $195,133 | |
Taxing Jurisdiction
| Owner: | METIS GROUP LLC | | |
| % Ownership: | 100.0000000000% | | |
| Total Value: | $195,133 | | |
| Tax Area: | 0110 - C-50F1E1H2 |
| CE | COUNTY CURRENT EXPENSE | 0.9034619479 | $195,133 | $195,133 | $176.30 | | |
| CNTYDD | DEVELOPMENTAL DISABILITIES | 0.0052121823 | $195,133 | $195,133 | $1.02 | | |
| CNTYVET | VETERANS RELIEF | 0.0052777810 | $195,133 | $195,133 | $1.03 | | |
| MENTAL | MENTAL HEALTH | 0.0052121823 | $195,133 | $195,133 | $1.02 | | |
| PTGEN | CITY OF PT GENERAL | 0.8551967795 | $195,133 | $195,133 | $166.88 | | |
| PTLLL | CITY OF PT - LIBRARY LID LIFT | 0.4010114288 | $195,133 | $195,133 | $78.25 | | |
| PTMVBOND | CITY OF PT MV BOND | 0.0484717981 | $195,133 | $195,133 | $9.46 | | |
| HOSP2CASH | HOSP DIST #2 GENERAL | 0.0536075306 | $195,133 | $195,133 | $10.46 | | |
| SCH50BOND | SCHOOL DIST #50 BOND 2016 | 0.5377451389 | $195,133 | $195,133 | $104.93 | | |
| SCH50CP | SCHOOL DIST #50 CAP PROJ | 0.4573475088 | $195,133 | $195,133 | $89.24 | | |
| SCH50MO | SCHOOL DIST #50 EP & O | 0.8262822886 | $195,133 | $195,133 | $161.23 | | |
| CONSERVE | CONSERVATION FUTURES | 0.0275621078 | $195,133 | $195,133 | $5.38 | | |
| EMS1 | FIRE DIST #1 EMS | 0.4679948282 | $195,133 | $195,133 | $91.32 | | |
| FD1 | FIRE DIST #1 GENERAL | 1.2171942929 | $195,133 | $195,133 | $237.51 | | |
| PORTPT | PORT OF PT GENERAL | 0.1134941229 | $195,133 | $195,133 | $22.15 | | |
| PORTPTIDD | PORT OF PT IDD 2019 | 0.2577346692 | $195,133 | $195,133 | $50.29 | | |
| PUD1 | PUD #1 GENERAL | 0.0597888892 | $195,133 | $195,133 | $11.67 | | |
| STATE | STATE SCHOOL PART 1 | 1.4940692947 | $195,133 | $195,133 | $291.54 | | |
| STATE2 | STATE SCHOOL PART 2 | 0.8050170049 | $195,133 | $195,133 | $157.09 | | |
| | Total Tax Rate: | 8.5416817766 | | | | | |
| | | | | Taxes w/Current Exemptions: | $1,666.77 | | |
| | | | | Taxes w/o Exemptions: | $1,666.77 | | |
Improvement / Building
| Improvement #1: | Commercial/Industrial/Government Bldg | State Code: | 59 | 647.0 sqft | Value: | $122,533 |
Sketch
| No sketches available for this property. |
Property Image
Land
| 1 | 9592-6165F | | 0.0000 | 0.00 | 0.00 | 0.00 | 0.00 | $72,600 | $0 |
Roll Value History
| 2026 | N/A | N/A | N/A | N/A | N/A |
| 2025 | $122,533 | $72,600 | $0 | $195,133 | $195,133 |
| 2024 | $122,533 | $72,600 | $0 | $195,133 | $195,133 |
| 2023 | $117,205 | $72,600 | $0 | $189,805 | $189,805 |
| 2022 | $117,488 | $71,280 | $0 | $188,768 | $188,768 |
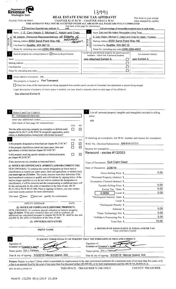
Deed and Sales History
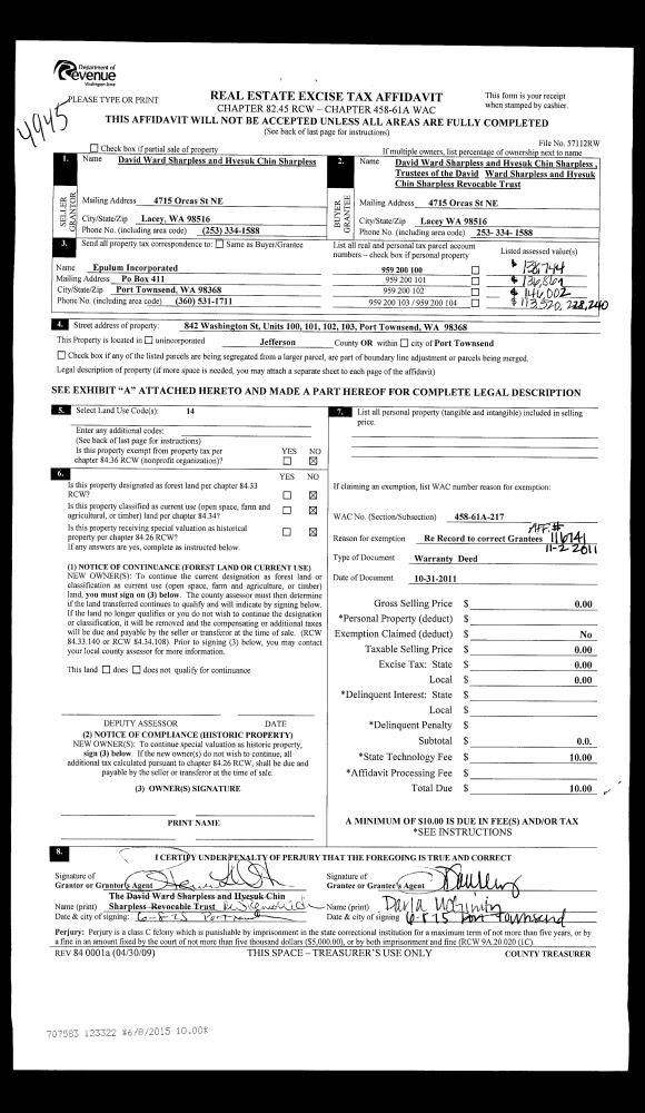
| 1 | 08/22/2017 | QCD | Quit Claim Deed | EPULUM INCORPORATED | METIS GROUP LLC | | | | 128365 | |
| 2 | 06/02/2015 | SWD | Statutory Warranty Deed | DAVID SHARPLESS | EPULUM INCORPORATED | | | $550,000.00 | 123307 | |
|   | |
| 3 | 10/31/2011 | WD | Warranty Deed | | | | | | 0 | |
| 4 | 10/31/2011 | WD | Warranty Deed | SHARPLESS, DAVID/HYESUK | SHARPLESS REV TRUST, DAVID/HYE | 0 | 0 | $0.00 | 116741 | 0 |
| 5 | 04/17/2008 | SWD | Statutory Warranty Deed | HERON'S NEST PROPERTIES L | SHARPLESS, DAVID/HYESUK | | | $810,000.00 | 111159 | 0 |
Payout Agreement
| No payout information available.. |