Property
Account |
| Property ID: | 30552 | Abbreviated Legal Description: | HELLEN'S PLACE CONDOMINIUM UNIT B |
| Parcel # / Geo ID: | 959300002 | Agent Code: | |
| Type: | Real | | |
| Tax Area: | 0110 - C-50F1E1H2 | Land Use Code | 14 |
| Open Space: | N | DFL | N |
| Historic Property: | N | Remodel Property: | N |
| Multi-Family Redevelopment: | N | | |
| Township: | 30N | Section: | 10 |
| Range: | 1W |
Location |
| Address: | 568 14TH ST PORT TOWNSEND, WA 98368 | Mapsco: | 066/011 |
| Neighborhood: | CYCLE 6 CONDOMINIUMS - PORT TOWNSEND | Map ID: | |
| Neighborhood CD: | 6900 |
Owner |
| Name: | GRANT E & DIANE L NEWMAN | Owner ID: | 106250 |
| Mailing Address: | PO BOX 592 SEABECK, WA 98380-0592 | % Ownership: | 100.0000000000% |
| | | Exemptions: | |
Pay Tax Due
Select the appropriate checkbox next to the year to be paid. Multiple years may be selected.
*Convenience Fee not included
Taxes and Assessment Details
Property Tax Information as of
03/11/2026
Click on "Statement Details" to expand or collapse a tax statement.
* Please enter a valid date ** Please enter a valid date *
Statement Details |
| 2026 | 19855 | STATE - STATE LEVY (SCHOOL) | $552.25 | $552.23 | $0.00 | $0.00 | $0.00 | $1104.48 |
| 2026 | 19855 | COUNTY - COUNTY LEVIES (CE, DD, VET, MH) | $220.78 | $220.78 | $0.00 | $0.00 | $0.00 | $441.56 |
| 2026 | 19855 | CONSERVE - CONSERVATION FUTURES | $6.62 | $6.62 | $0.00 | $0.00 | $0.00 | $13.24 |
| 2026 | 19855 | CITYPT - CITY OF PT | $313.40 | $313.38 | $0.00 | $0.00 | $0.00 | $626.78 |
| 2026 | 19855 | PORTPT - PORT DISTRICT | $89.17 | $89.17 | $0.00 | $0.00 | $0.00 | $178.34 |
| 2026 | 19855 | PUD1 - PUD #1 | $14.36 | $14.36 | $0.00 | $0.00 | $0.00 | $28.72 |
| 2026 | 19855 | HD2 - HOSP DIST #2 | $12.88 | $12.87 | $0.00 | $0.00 | $0.00 | $25.75 |
| 2026 | 19855 | SD50 - SCHOOL DIST #50 | $437.51 | $437.48 | $0.00 | $0.00 | $0.00 | $874.99 |
| 2026 | 19855 | FD1 - FIRE DISTRICT #1 | $292.37 | $292.37 | $0.00 | $0.00 | $0.00 | $584.74 |
| 2026 | 19855 | EMS1 - FIRE DIST #1 EMS | $112.42 | $112.41 | $0.00 | $0.00 | $0.00 | $224.83 |
| 2026 | 19855 | JCCD - JC Conservation District | $2.55 | $2.55 | $0.00 | $0.00 | $0.00 | $5.10 |
| 2026 | 19855 | NWA - Noxious Weed Assessment | $2.98 | $2.97 | $0.00 | $0.00 | $0.00 | $5.95 |
| 2026 | 19855 | TOTAL: | $2057.29 | $2057.19 | $0.00 | $0.00 | $0.00 | $4114.48 |
|
| 2026 | 19855 | $2057.29 | $2057.19 | $0.00 | $0.00 | $0.00 | $4114.48 |
Statement Details |
| 2025 | 19916 | STATE - STATE LEVY (SCHOOL) | $557.57 | $557.56 | $0.00 | $0.00 | $1115.13 | $0.00 |
| 2025 | 19916 | COUNTY - COUNTY LEVIES (CE, DD, VET, MH) | $219.26 | $219.25 | $0.00 | $0.00 | $438.51 | $0.00 |
| 2025 | 19916 | CONSERVE - CONSERVATION FUTURES | $6.58 | $6.57 | $0.00 | $0.00 | $13.15 | $0.00 |
| 2025 | 19916 | CITYPT - CITY OF PT | $316.20 | $316.19 | $0.00 | $0.00 | $632.39 | $0.00 |
| 2025 | 19916 | PORTPT - PORT DISTRICT | $89.48 | $89.46 | $0.00 | $0.00 | $178.94 | $0.00 |
| 2025 | 19916 | PUD1 - PUD #1 | $14.35 | $14.34 | $0.00 | $0.00 | $28.69 | $0.00 |
| 2025 | 19916 | HD2 - HOSP DIST #2 | $12.79 | $12.79 | $0.00 | $0.00 | $25.58 | $0.00 |
| 2025 | 19916 | SD50 - SCHOOL DIST #50 | $407.50 | $407.48 | $0.00 | $0.00 | $814.98 | $0.00 |
| 2025 | 19916 | FD1 - FIRE DISTRICT #1 | $289.34 | $289.33 | $0.00 | $0.00 | $578.67 | $0.00 |
| 2025 | 19916 | EMS1 - FIRE DIST #1 EMS | $111.29 | $111.28 | $0.00 | $0.00 | $222.57 | $0.00 |
| 2025 | 19916 | JCCD - JC Conservation District | $2.55 | $2.55 | $0.00 | $0.00 | $5.10 | $0.00 |
| 2025 | 19916 | NWA - Noxious Weed Assessment | $2.15 | $2.15 | $0.00 | $0.00 | $4.30 | $0.00 |
| 2025 | 19916 | TOTAL: | $2029.06 | $2028.95 | $0.00 | $0.00 | $4058.01 | $0.00 |
|
| 2025 | 19916 | $2029.06 | $2028.95 | $0.00 | $0.00 | $4058.01 | $0.00 |
Statement Details |
| 2024 | 19955 | STATE - STATE LEVY (SCHOOL) | $532.16 | $532.14 | $0.00 | $0.00 | $1064.30 | $0.00 |
| 2024 | 19955 | COUNTY - COUNTY LEVIES (CE, DD, VET, MH) | $227.72 | $227.70 | $0.00 | $0.00 | $455.42 | $0.00 |
| 2024 | 19955 | CONSERVE - CONSERVATION FUTURES | $6.83 | $6.83 | $0.00 | $0.00 | $13.66 | $0.00 |
| 2024 | 19955 | CITYPT - CITY OF PT | $325.38 | $325.36 | $0.00 | $0.00 | $650.74 | $0.00 |
| 2024 | 19955 | PORTPT - PORT DISTRICT | $94.06 | $94.05 | $0.00 | $0.00 | $188.11 | $0.00 |
| 2024 | 19955 | PUD1 - PUD #1 | $14.96 | $14.95 | $0.00 | $0.00 | $29.91 | $0.00 |
| 2024 | 19955 | HD2 - HOSP DIST #2 | $13.29 | $13.28 | $0.00 | $0.00 | $26.57 | $0.00 |
| 2024 | 19955 | SD50 - SCHOOL DIST #50 | $430.55 | $430.52 | $0.00 | $0.00 | $861.07 | $0.00 |
| 2024 | 19955 | FD1 - FIRE DISTRICT #1 | $301.09 | $301.09 | $0.00 | $0.00 | $602.18 | $0.00 |
| 2024 | 19955 | EMS1 - FIRE DIST #1 EMS | $115.01 | $115.00 | $0.00 | $0.00 | $230.01 | $0.00 |
| 2024 | 19955 | JCCD - JC Conservation District | $2.55 | $2.55 | $0.00 | $0.00 | $5.10 | $0.00 |
| 2024 | 19955 | NWA - Noxious Weed Assessment | $2.15 | $2.15 | $0.00 | $0.00 | $4.30 | $0.00 |
| 2024 | 19955 | TOTAL: | $2065.75 | $2065.62 | $0.00 | $0.00 | $4131.37 | $0.00 |
|
| 2024 | 19955 | $2065.75 | $2065.62 | $0.00 | $0.00 | $4131.37 | $0.00 |
Statement Details |
| 2023 | 19992 | STATE - STATE LEVY (SCHOOL) | $531.27 | $531.25 | $0.00 | $0.00 | $1062.52 | $0.00 |
| 2023 | 19992 | COUNTY - COUNTY LEVIES (CE, DD, VET, MH) | $231.84 | $231.81 | $0.00 | $0.00 | $463.65 | $0.00 |
| 2023 | 19992 | CONSERVE - CONSERVATION FUTURES | $6.95 | $6.95 | $0.00 | $0.00 | $13.90 | $0.00 |
| 2023 | 19992 | CITYPT - CITY OF PT | $327.66 | $327.64 | $0.00 | $0.00 | $655.30 | $0.00 |
| 2023 | 19992 | PORTPT - PORT DISTRICT | $97.67 | $97.65 | $0.00 | $0.00 | $195.32 | $0.00 |
| 2023 | 19992 | PUD1 - PUD #1 | $15.37 | $15.36 | $0.00 | $0.00 | $30.73 | $0.00 |
| 2023 | 19992 | HD2 - HOSP DIST #2 | $13.54 | $13.52 | $0.00 | $0.00 | $27.06 | $0.00 |
| 2023 | 19992 | SD50 - SCHOOL DIST #50 | $421.56 | $421.56 | $0.00 | $0.00 | $843.12 | $0.00 |
| 2023 | 19992 | FD1 - FIRE DISTRICT #1 | $190.98 | $190.98 | $0.00 | $0.00 | $381.96 | $0.00 |
| 2023 | 19992 | EMS1 - FIRE DIST #1 EMS | $81.24 | $81.24 | $0.00 | $0.00 | $162.48 | $0.00 |
| 2023 | 19992 | JCCD - JC Conservation District | $2.55 | $2.55 | $0.00 | $0.00 | $5.10 | $0.00 |
| 2023 | 19992 | NWA - Noxious Weed Assessment | $2.15 | $2.15 | $0.00 | $0.00 | $4.30 | $0.00 |
| 2023 | 19992 | TOTAL: | $1922.78 | $1922.66 | $0.00 | $0.00 | $3845.44 | $0.00 |
|
| 2023 | 19992 | $1922.78 | $1922.66 | $0.00 | $0.00 | $3845.44 | $0.00 |
Values
| (+) Improvement Homesite Value: | + | $0 | |
| (+) Improvement Non-Homesite Value: | + | $310,402 | |
| (+) Land Homesite Value: | + | $0 | |
| (+) Land Non-Homesite Value: | + | $170,000 | |
| (+) Curr Use (HS): | + | $0 | $0 |
| (+) Curr Use (NHS): | + | $0 | $0 |
| | | -------------------------- | |
| (=) Market Value: | = | $480,402 | |
| (–) Productivity Loss: | – | $0 | |
| | | -------------------------- | |
| (=) Subtotal: | = | $480,402 | |
| (+) Senior Appraised Value: | + | $0 | |
| (+) Non-Senior Appraised Value: | + | $480,402 | |
| | | -------------------------- | |
| (=) Total Appraised Value: | = | $480,402 | |
| (–) Senior Exemption Loss: | – | $0 | |
| (–) Exemption Loss: | – | $0 | |
| | | -------------------------- | |
| (=) Taxable Value: | = | $480,402 | |
Taxing Jurisdiction
| Owner: | GRANT E & DIANE L NEWMAN | | |
| % Ownership: | 100.0000000000% | | |
| Total Value: | $480,402 | | |
| Tax Area: | 0110 - C-50F1E1H2 |
| CE | COUNTY CURRENT EXPENSE | 0.9034619479 | $480,402 | $480,402 | $434.02 | | |
| CNTYDD | DEVELOPMENTAL DISABILITIES | 0.0052121823 | $480,402 | $480,402 | $2.50 | | |
| CNTYVET | VETERANS RELIEF | 0.0052777810 | $480,402 | $480,402 | $2.54 | | |
| MENTAL | MENTAL HEALTH | 0.0052121823 | $480,402 | $480,402 | $2.50 | | |
| PTGEN | CITY OF PT GENERAL | 0.8551967795 | $480,402 | $480,402 | $410.84 | | |
| PTLLL | CITY OF PT - LIBRARY LID LIFT | 0.4010114288 | $480,402 | $480,402 | $192.65 | | |
| PTMVBOND | CITY OF PT MV BOND | 0.0484717981 | $480,402 | $480,402 | $23.29 | | |
| HOSP2CASH | HOSP DIST #2 GENERAL | 0.0536075306 | $480,402 | $480,402 | $25.75 | | |
| SCH50BOND | SCHOOL DIST #50 BOND 2016 | 0.5377451389 | $480,402 | $480,402 | $258.33 | | |
| SCH50CP | SCHOOL DIST #50 CAP PROJ | 0.4573475088 | $480,402 | $480,402 | $219.71 | | |
| SCH50MO | SCHOOL DIST #50 EP & O | 0.8262822886 | $480,402 | $480,402 | $396.95 | | |
| CONSERVE | CONSERVATION FUTURES | 0.0275621078 | $480,402 | $480,402 | $13.24 | | |
| EMS1 | FIRE DIST #1 EMS | 0.4679948282 | $480,402 | $480,402 | $224.83 | | |
| FD1 | FIRE DIST #1 GENERAL | 1.2171942929 | $480,402 | $480,402 | $584.74 | | |
| PORTPT | PORT OF PT GENERAL | 0.1134941229 | $480,402 | $480,402 | $54.52 | | |
| PORTPTIDD | PORT OF PT IDD 2019 | 0.2577346692 | $480,402 | $480,402 | $123.82 | | |
| PUD1 | PUD #1 GENERAL | 0.0597888892 | $480,402 | $480,402 | $28.72 | | |
| STATE | STATE SCHOOL PART 1 | 1.4940692947 | $480,402 | $480,402 | $717.75 | | |
| STATE2 | STATE SCHOOL PART 2 | 0.8050170049 | $480,402 | $480,402 | $386.73 | | |
| | Total Tax Rate: | 8.5416817766 | | | | | |
| | | | | Taxes w/Current Exemptions: | $4,103.43 | | |
| | | | | Taxes w/o Exemptions: | $4,103.43 | | |
Improvement / Building
| Improvement #1: | Residential Bldg | State Code: | 14 | 1204.0 sqft | Value: | $310,402 |
| Bathrooms (#): | 2 (FULL) | Bedrooms (#): | 2 | | Exterior Wall: | SI/ST | Floor Construction: | FRAME | | Foundation: | CONPR | Heating/Cooling: | ELBB | | Inside Verify: | YES-FIX | Roof Cover: | COMP |
|
| | Type | Description | Class CD | Sub Class CD | Year Built | Area |
| | MA | Main Area | 5 | 2S | 2002 | 644.0 |
| | MA2 | Second Floor Main Area | 5 | 2S | 2002 | 560.0 |
| | HDECK | House Deck | 5 | * | 2002 | 200.0 |
| | HRPO | House Roof Patio | 5 | * | 2002 | 8.0 |
Sketch
| No sketches available for this property. |
Property Image
Land
| 1 | 9593-4117S | | 0.0000 | 0.00 | 0.00 | 0.00 | 1.00 | $170,000 | $0 |
Roll Value History
| 2026 | N/A | N/A | N/A | N/A | N/A |
| 2025 | $310,402 | $170,000 | $0 | $480,402 | $480,402 |
| 2024 | $295,019 | $170,000 | $0 | $465,019 | $465,019 |
| 2023 | $295,019 | $165,000 | $0 | $460,019 | $460,019 |
| 2022 | $291,337 | $160,000 | $0 | $451,337 | $451,337 |
Deed and Sales History
| 1 | 12/23/2021 | SWD | Statutory Warranty Deed | JOSEPH A NUBER | GRANT E & DIANE L NEWMAN | | | $480,000.00 | 138317 | |
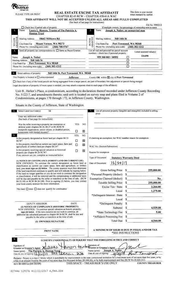
| 2 | 12/20/2017 | SWD | Statutory Warranty Deed | PATRICIA A HANSON TRUST | JOSEPH A NUBER | | | $255,000.00 | 129276 | |
| 3 | 10/12/2017 | QCD | Quit Claim Deed | | | | | | 129275 | |
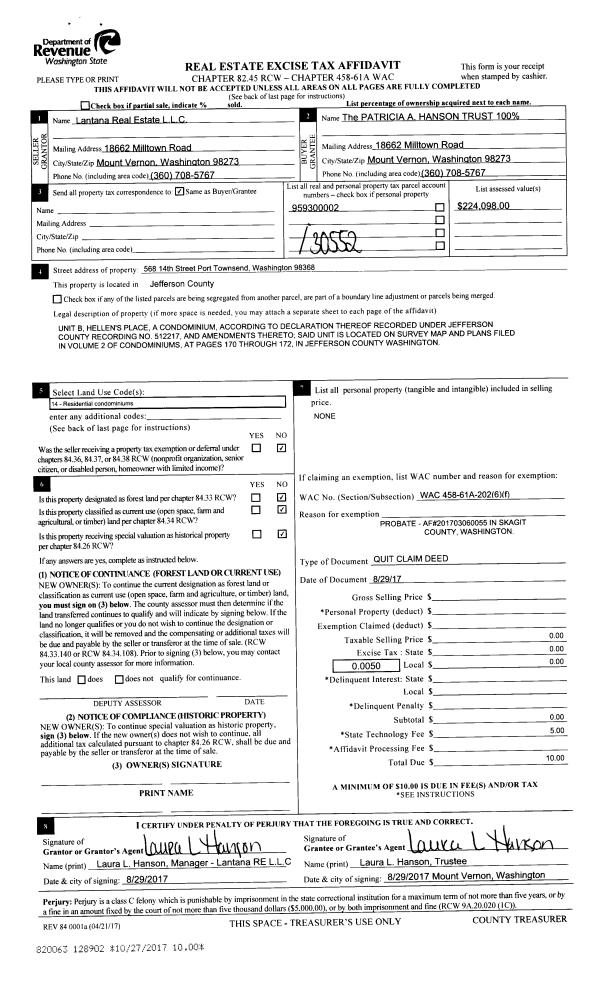
| 4 | 08/29/2017 | QCD | Quit Claim Deed | LANTANA REAL ESTATE LLC | PATRICIA A HANSON TRUST | | | | 128902 | |
Payout Agreement
| No payout information available.. |