Property
Account |
| Property ID: | 30747 | Abbreviated Legal Description: | HUSSEY'S ADDITION BLK 2 LOTS 3(LS S'LY 6'),4-6(ALL) & 1/2 VAC ALLEY ADJ & TGTH W/PTN E1/2 VAC SHERMAN ST ADJ SUBJ/TRAIL EASE PTNS BOUND TGTH BY RES COV527/317 T |
| Parcel # / Geo ID: | 961200209 | Agent Code: | |
| Type: | Real | | |
| Tax Area: | 0110 - C-50F1E1H2 | Land Use Code | 11 |
| Open Space: | N | DFL | N |
| Historic Property: | N | Remodel Property: | N |
| Multi-Family Redevelopment: | N | | |
| Township: | 30N | Section: | 3 |
| Range: | 1W |
Location |
| Address: | 1461 25TH ST PORT TOWNSEND, WA 98368 | Mapsco: | 068/037 |
| Neighborhood: | COLUMBIA//HUSSEY/WEYMOUNT-DYER/WOODLAND LP-ACREAGE; CEMETERY | Map ID: | |
| Neighborhood CD: | 6120 |
Owner |
| Name: | LOGAN C & MARY A P LASTOVICA | Owner ID: | 104050 |
| Mailing Address: | 816 BENTON ST PORT TOWNSEND, WA 98368-8006 | % Ownership: | 100.0000000000% |
| | | Exemptions: | |
Pay Tax Due
Select the appropriate checkbox next to the year to be paid. Multiple years may be selected.
*Convenience Fee not included
Taxes and Assessment Details
Property Tax Information as of
03/11/2026
Click on "Statement Details" to expand or collapse a tax statement.
* Please enter a valid date ** Please enter a valid date *
Statement Details |
| 2026 | 20043 | STATE - STATE LEVY (SCHOOL) | $791.92 | $791.91 | $0.00 | $0.00 | $0.00 | $1583.83 |
| 2026 | 20043 | COUNTY - COUNTY LEVIES (CE, DD, VET, MH) | $316.62 | $316.59 | $0.00 | $0.00 | $0.00 | $633.21 |
| 2026 | 20043 | CONSERVE - CONSERVATION FUTURES | $9.50 | $9.49 | $0.00 | $0.00 | $0.00 | $18.99 |
| 2026 | 20043 | CITYPT - CITY OF PT | $449.40 | $449.38 | $0.00 | $0.00 | $0.00 | $898.78 |
| 2026 | 20043 | PORTPT - PORT DISTRICT | $127.88 | $127.86 | $0.00 | $0.00 | $0.00 | $255.74 |
| 2026 | 20043 | PUD1 - PUD #1 | $20.60 | $20.59 | $0.00 | $0.00 | $0.00 | $41.19 |
| 2026 | 20043 | HD2 - HOSP DIST #2 | $18.47 | $18.46 | $0.00 | $0.00 | $0.00 | $36.93 |
| 2026 | 20043 | SD50 - SCHOOL DIST #50 | $627.37 | $627.36 | $0.00 | $0.00 | $0.00 | $1254.73 |
| 2026 | 20043 | FD1 - FIRE DISTRICT #1 | $419.26 | $419.26 | $0.00 | $0.00 | $0.00 | $838.52 |
| 2026 | 20043 | EMS1 - FIRE DIST #1 EMS | $161.20 | $161.20 | $0.00 | $0.00 | $0.00 | $322.40 |
| 2026 | 20043 | FP - DNR Forest Fire Protection Assmt | $8.50 | $8.50 | $0.00 | $0.00 | $0.00 | $17.00 |
| 2026 | 20043 | FPLCA - DNR Landowner Contingency Assmt | $3.00 | $3.00 | $0.00 | $0.00 | $0.00 | $6.00 |
| 2026 | 20043 | JCCD - JC Conservation District | $2.55 | $2.55 | $0.00 | $0.00 | $0.00 | $5.10 |
| 2026 | 20043 | NWA - Noxious Weed Assessment | $2.98 | $2.97 | $0.00 | $0.00 | $0.00 | $5.95 |
| 2026 | 20043 | FP ADMIN - FP ADMIN | $0.50 | $0.00 | $0.00 | $0.00 | $0.00 | $0.50 |
| 2026 | 20043 | TOTAL: | $2959.75 | $2959.12 | $0.00 | $0.00 | $0.00 | $5918.87 |
|
| 2026 | 20043 | $2959.75 | $2959.12 | $0.00 | $0.00 | $0.00 | $5918.87 |
Statement Details |
| 2025 | 20104 | STATE - STATE LEVY (SCHOOL) | $351.35 | $351.34 | $0.00 | $0.00 | $702.69 | $0.00 |
| 2025 | 20104 | COUNTY - COUNTY LEVIES (CE, DD, VET, MH) | $138.16 | $138.16 | $0.00 | $0.00 | $276.32 | $0.00 |
| 2025 | 20104 | CONSERVE - CONSERVATION FUTURES | $4.15 | $4.14 | $0.00 | $0.00 | $8.29 | $0.00 |
| 2025 | 20104 | CITYPT - CITY OF PT | $199.25 | $199.24 | $0.00 | $0.00 | $398.49 | $0.00 |
| 2025 | 20104 | PORTPT - PORT DISTRICT | $56.38 | $56.38 | $0.00 | $0.00 | $112.76 | $0.00 |
| 2025 | 20104 | PUD1 - PUD #1 | $9.04 | $9.04 | $0.00 | $0.00 | $18.08 | $0.00 |
| 2025 | 20104 | HD2 - HOSP DIST #2 | $8.06 | $8.06 | $0.00 | $0.00 | $16.12 | $0.00 |
| 2025 | 20104 | SD50 - SCHOOL DIST #50 | $256.79 | $256.76 | $0.00 | $0.00 | $513.55 | $0.00 |
| 2025 | 20104 | FD1 - FIRE DISTRICT #1 | $182.32 | $182.32 | $0.00 | $0.00 | $364.64 | $0.00 |
| 2025 | 20104 | EMS1 - FIRE DIST #1 EMS | $70.13 | $70.12 | $0.00 | $0.00 | $140.25 | $0.00 |
| 2025 | 20104 | FP - DNR Forest Fire Protection Assmt | $8.50 | $8.50 | $0.00 | $0.00 | $17.00 | $0.00 |
| 2025 | 20104 | FPLCA - DNR Landowner Contingency Assmt | $3.00 | $3.00 | $0.00 | $0.00 | $6.00 | $0.00 |
| 2025 | 20104 | JCCD - JC Conservation District | $2.55 | $2.55 | $0.00 | $0.00 | $5.10 | $0.00 |
| 2025 | 20104 | NWA - Noxious Weed Assessment | $2.15 | $2.15 | $0.00 | $0.00 | $4.30 | $0.00 |
| 2025 | 20104 | FP ADMIN - FP ADMIN | $0.50 | $0.00 | $0.00 | $0.00 | $0.50 | $0.00 |
| 2025 | 20104 | TOTAL: | $1292.33 | $1291.76 | $0.00 | $0.00 | $2584.09 | $0.00 |
|
| 2025 | 20104 | $1292.33 | $1291.76 | $0.00 | $0.00 | $2584.09 | $0.00 |
Statement Details |
| 2024 | 20143 | STATE - STATE LEVY (SCHOOL) | $190.70 | $190.70 | $0.00 | $0.00 | $381.40 | $0.00 |
| 2024 | 20143 | COUNTY - COUNTY LEVIES (CE, DD, VET, MH) | $81.61 | $81.59 | $0.00 | $0.00 | $163.20 | $0.00 |
| 2024 | 20143 | CONSERVE - CONSERVATION FUTURES | $2.45 | $2.44 | $0.00 | $0.00 | $4.89 | $0.00 |
| 2024 | 20143 | CITYPT - CITY OF PT | $116.61 | $116.59 | $0.00 | $0.00 | $233.20 | $0.00 |
| 2024 | 20143 | PORTPT - PORT DISTRICT | $33.71 | $33.70 | $0.00 | $0.00 | $67.41 | $0.00 |
| 2024 | 20143 | PUD1 - PUD #1 | $5.36 | $5.36 | $0.00 | $0.00 | $10.72 | $0.00 |
| 2024 | 20143 | HD2 - HOSP DIST #2 | $4.76 | $4.76 | $0.00 | $0.00 | $9.52 | $0.00 |
| 2024 | 20143 | SD50 - SCHOOL DIST #50 | $154.28 | $154.28 | $0.00 | $0.00 | $308.56 | $0.00 |
| 2024 | 20143 | FD1 - FIRE DISTRICT #1 | $107.90 | $107.89 | $0.00 | $0.00 | $215.79 | $0.00 |
| 2024 | 20143 | EMS1 - FIRE DIST #1 EMS | $41.22 | $41.21 | $0.00 | $0.00 | $82.43 | $0.00 |
| 2024 | 20143 | JCCD - JC Conservation District | $2.53 | $2.53 | $0.00 | $0.00 | $5.06 | $0.00 |
| 2024 | 20143 | NWA - Noxious Weed Assessment | $2.15 | $2.15 | $0.00 | $0.00 | $4.30 | $0.00 |
| 2024 | 20143 | WAT - Clean Water District | $12.50 | $12.50 | $0.00 | $0.00 | $25.00 | $0.00 |
| 2024 | 20143 | TOTAL: | $755.78 | $755.70 | $0.00 | $0.00 | $1511.48 | $0.00 |
|
| 2024 | 20143 | $755.78 | $755.70 | $0.00 | $0.00 | $1511.48 | $0.00 |
Statement Details |
| 2023 | 20180 | STATE - STATE LEVY (SCHOOL) | $184.80 | $184.80 | $0.00 | $0.00 | $369.60 | $0.00 |
| 2023 | 20180 | COUNTY - COUNTY LEVIES (CE, DD, VET, MH) | $80.65 | $80.64 | $0.00 | $0.00 | $161.29 | $0.00 |
| 2023 | 20180 | CONSERVE - CONSERVATION FUTURES | $2.42 | $2.42 | $0.00 | $0.00 | $4.84 | $0.00 |
| 2023 | 20180 | CITYPT - CITY OF PT | $113.98 | $113.97 | $0.00 | $0.00 | $227.95 | $0.00 |
| 2023 | 20180 | PORTPT - PORT DISTRICT | $33.98 | $33.96 | $0.00 | $0.00 | $67.94 | $0.00 |
| 2023 | 20180 | PUD1 - PUD #1 | $5.35 | $5.34 | $0.00 | $0.00 | $10.69 | $0.00 |
| 2023 | 20180 | HD2 - HOSP DIST #2 | $4.72 | $4.70 | $0.00 | $0.00 | $9.42 | $0.00 |
| 2023 | 20180 | SD50 - SCHOOL DIST #50 | $146.65 | $146.64 | $0.00 | $0.00 | $293.29 | $0.00 |
| 2023 | 20180 | FD1 - FIRE DISTRICT #1 | $66.44 | $66.43 | $0.00 | $0.00 | $132.87 | $0.00 |
| 2023 | 20180 | EMS1 - FIRE DIST #1 EMS | $28.26 | $28.26 | $0.00 | $0.00 | $56.52 | $0.00 |
| 2023 | 20180 | JCCD - JC Conservation District | $2.53 | $2.53 | $0.00 | $0.00 | $5.06 | $0.00 |
| 2023 | 20180 | NWA - Noxious Weed Assessment | $2.15 | $2.15 | $0.00 | $0.00 | $4.30 | $0.00 |
| 2023 | 20180 | WAT - Clean Water District | $12.00 | $12.00 | $0.00 | $0.00 | $24.00 | $0.00 |
| 2023 | 20180 | TOTAL: | $683.93 | $683.84 | $0.00 | $0.00 | $1367.77 | $0.00 |
|
| 2023 | 20180 | $683.93 | $683.84 | $0.00 | $0.00 | $1367.77 | $0.00 |
Values
| (+) Improvement Homesite Value: | + | $0 | |
| (+) Improvement Non-Homesite Value: | + | $490,895 | |
| (+) Land Homesite Value: | + | $0 | |
| (+) Land Non-Homesite Value: | + | $198,000 | |
| (+) Curr Use (HS): | + | $0 | $0 |
| (+) Curr Use (NHS): | + | $0 | $0 |
| | | -------------------------- | |
| (=) Market Value: | = | $688,895 | |
| (–) Productivity Loss: | – | $0 | |
| | | -------------------------- | |
| (=) Subtotal: | = | $688,895 | |
| (+) Senior Appraised Value: | + | $0 | |
| (+) Non-Senior Appraised Value: | + | $688,895 | |
| | | -------------------------- | |
| (=) Total Appraised Value: | = | $688,895 | |
| (–) Senior Exemption Loss: | – | $0 | |
| (–) Exemption Loss: | – | $0 | |
| | | -------------------------- | |
| (=) Taxable Value: | = | $688,895 | |
Taxing Jurisdiction
| Owner: | LOGAN C & MARY A P LASTOVICA | | |
| % Ownership: | 100.0000000000% | | |
| Total Value: | $688,895 | | |
| Tax Area: | 0110 - C-50F1E1H2 |
| CE | COUNTY CURRENT EXPENSE | 0.9034619479 | $688,895 | $688,895 | $622.39 | | |
| CNTYDD | DEVELOPMENTAL DISABILITIES | 0.0052121823 | $688,895 | $688,895 | $3.59 | | |
| CNTYVET | VETERANS RELIEF | 0.0052777810 | $688,895 | $688,895 | $3.64 | | |
| MENTAL | MENTAL HEALTH | 0.0052121823 | $688,895 | $688,895 | $3.59 | | |
| PTGEN | CITY OF PT GENERAL | 0.8551967795 | $688,895 | $688,895 | $589.14 | | |
| PTLLL | CITY OF PT - LIBRARY LID LIFT | 0.4010114288 | $688,895 | $688,895 | $276.25 | | |
| PTMVBOND | CITY OF PT MV BOND | 0.0484717981 | $688,895 | $688,895 | $33.39 | | |
| HOSP2CASH | HOSP DIST #2 GENERAL | 0.0536075306 | $688,895 | $688,895 | $36.93 | | |
| SCH50BOND | SCHOOL DIST #50 BOND 2016 | 0.5377451389 | $688,895 | $688,895 | $370.45 | | |
| SCH50CP | SCHOOL DIST #50 CAP PROJ | 0.4573475088 | $688,895 | $688,895 | $315.06 | | |
| SCH50MO | SCHOOL DIST #50 EP & O | 0.8262822886 | $688,895 | $688,895 | $569.22 | | |
| CONSERVE | CONSERVATION FUTURES | 0.0275621078 | $688,895 | $688,895 | $18.99 | | |
| EMS1 | FIRE DIST #1 EMS | 0.4679948282 | $688,895 | $688,895 | $322.40 | | |
| FD1 | FIRE DIST #1 GENERAL | 1.2171942929 | $688,895 | $688,895 | $838.52 | | |
| PORTPT | PORT OF PT GENERAL | 0.1134941229 | $688,895 | $688,895 | $78.19 | | |
| PORTPTIDD | PORT OF PT IDD 2019 | 0.2577346692 | $688,895 | $688,895 | $177.55 | | |
| PUD1 | PUD #1 GENERAL | 0.0597888892 | $688,895 | $688,895 | $41.19 | | |
| STATE | STATE SCHOOL PART 1 | 1.4940692947 | $688,895 | $688,895 | $1,029.26 | | |
| STATE2 | STATE SCHOOL PART 2 | 0.8050170049 | $688,895 | $688,895 | $554.57 | | |
| | Total Tax Rate: | 8.5416817766 | | | | | |
| | | | | Taxes w/Current Exemptions: | $5,884.32 | | |
| | | | | Taxes w/o Exemptions: | $5,884.32 | | |
Improvement / Building
| Improvement #1: | Residential Bldg | State Code: | 11 | 2170.0 sqft | Value: | $490,895 |
| Bathrooms (#): | 2 (FULL) | Bedrooms (#): | 2 | | Exterior Wall: | PL/T1 | Floor Construction: | FRAME | | Foundation: | CONPR | Heating/Cooling: | HPUMP | | Interior Finish: | FIN | Roof Cover: | COMP |
|
| | Type | Description | Class CD | Sub Class CD | Year Built | Area |
| | MA | Main Area | 4 | 2S | 2024 | 1488.0 |
| | MA2 | Second Floor Main Area | 4 | 2S | 2024 | 682.0 |
Sketch
Property Image
Land
| 1 | 6120-1179L | | 0.0000 | 0.00 | 0.00 | 0.00 | 1.00 | $18,000 | $0 |
| 2 | 6120-1176L | | 0.0000 | 0.00 | 0.00 | 0.00 | 2.00 | $180,000 | $0 |
Roll Value History
| 2026 | N/A | N/A | N/A | N/A | N/A |
| 2025 | $490,895 | $198,000 | $0 | $688,895 | $688,895 |
| 2024 | $96,678 | $196,350 | $0 | $293,028 | $293,028 |
| 2023 | $0 | $164,850 | $0 | $164,850 | $164,850 |
| 2022 | $0 | $157,000 | $0 | $157,000 | $157,000 |
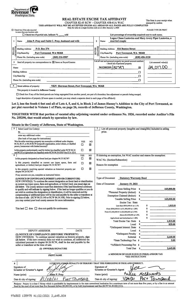
Deed and Sales History
| 1 | 01/19/2021 | SWD | Statutory Warranty Deed | JOHN P & FAITH C PRAY | LOGAN C & MARY A P LASTOVICA | | | $165,000.00 | 135975 | |
| 2 | 08/14/2018 | QCD | Quit Claim Deed | ROBERT M PRAY | JOHN P & FAITH C PRAY | | | | 130789 | |
| 3 | 02/08/1999 | SWD | Statutory Warranty Deed | KIM, IL-IM | PRAY, ROBERT M/CHOM-IM | 0 | 0 | $171,000.00 | 86294 | 0 |
|   | |
| 4 | 05/24/1996 | SWD | Statutory Warranty Deed | WAKEFIELD, DARYL P/KIMBER | KIM, KIL WAN/IL IM | 0 | 0 | $170,000.00 | 79589 | 0 |
|   | |
| 5 | 04/26/1995 | SWD | Statutory Warranty Deed | WAKEFIELD, DARYL P/KIMBER | AUMOCK, THOMAS L/TRACI A | 0 | 0 | $0.00 | 76829 | 0 |
Payout Agreement
| No payout information available.. |