Property
Account |
| Property ID: | 30796 | Abbreviated Legal Description: | INGERSOLL'S ADDITION BLK 2, LOTS 7 & 8 INC 1/2 VAC STS ADJ |
| Parcel # / Geo ID: | 961500202 | Agent Code: | |
| Type: | Real | | |
| Tax Area: | 0111 - 1-50F1E1H2L1 | Land Use Code | 91 |
| Open Space: | N | DFL | N |
| Historic Property: | N | Remodel Property: | N |
| Multi-Family Redevelopment: | N | | |
| Township: | 30N | Section: | 18 |
| Range: | 1W |
Location |
| Address: | | Mapsco: | 033/073 |
| Neighborhood: | CAPE GEORGE VILLAGE DIV 5 & 7 (HIGHLANDS) & INGERSOLL'S ADDN | Map ID: | |
| Neighborhood CD: | 5530 |
Owner |
| Name: | JACQUES THIRY & COLLEEN RANDLE | Owner ID: | 98638 |
| Mailing Address: | 31 MAXWELL AVE PORT TOWNSEND, WA 98368-9487 | % Ownership: | 100.0000000000% |
| | | Exemptions: | |
Pay Tax Due
Select the appropriate checkbox next to the year to be paid. Multiple years may be selected.
*Convenience Fee not included
Taxes and Assessment Details
Property Tax Information as of
03/12/2026
Click on "Statement Details" to expand or collapse a tax statement.
* Please enter a valid date ** Please enter a valid date *
Statement Details |
| 2026 | 20090 | STATE - STATE LEVY (SCHOOL) | $18.97 | $18.96 | $0.00 | $0.00 | $0.00 | $37.93 |
| 2026 | 20090 | COUNTY - COUNTY LEVIES (CE, DD, VET, MH) | $7.61 | $7.57 | $0.00 | $0.00 | $0.00 | $15.18 |
| 2026 | 20090 | CONSERVE - CONSERVATION FUTURES | $0.23 | $0.22 | $0.00 | $0.00 | $0.00 | $0.45 |
| 2026 | 20090 | COROADS - COUNTY ROADS (ROADS, DIV TO CE) | $6.12 | $6.11 | $0.00 | $0.00 | $0.00 | $12.23 |
| 2026 | 20090 | PORTPT - PORT DISTRICT | $3.07 | $3.05 | $0.00 | $0.00 | $0.00 | $6.12 |
| 2026 | 20090 | PUD1 - PUD #1 | $0.50 | $0.49 | $0.00 | $0.00 | $0.00 | $0.99 |
| 2026 | 20090 | LIB1 - LIBRARY DIST #1 | $2.37 | $2.36 | $0.00 | $0.00 | $0.00 | $4.73 |
| 2026 | 20090 | HD2 - HOSP DIST #2 | $0.44 | $0.44 | $0.00 | $0.00 | $0.00 | $0.88 |
| 2026 | 20090 | SD50 - SCHOOL DIST #50 | $15.04 | $15.01 | $0.00 | $0.00 | $0.00 | $30.05 |
| 2026 | 20090 | FD1 - FIRE DISTRICT #1 | $10.04 | $10.04 | $0.00 | $0.00 | $0.00 | $20.08 |
| 2026 | 20090 | EMS1 - FIRE DIST #1 EMS | $3.86 | $3.86 | $0.00 | $0.00 | $0.00 | $7.72 |
| 2026 | 20090 | FP - DNR Forest Fire Protection Assmt | $8.50 | $8.50 | $0.00 | $0.00 | $0.00 | $17.00 |
| 2026 | 20090 | FPLCA - DNR Landowner Contingency Assmt | $3.00 | $3.00 | $0.00 | $0.00 | $0.00 | $6.00 |
| 2026 | 20090 | JCCD - JC Conservation District | $2.53 | $2.53 | $0.00 | $0.00 | $0.00 | $5.06 |
| 2026 | 20090 | NWA - Noxious Weed Assessment | $2.98 | $2.97 | $0.00 | $0.00 | $0.00 | $5.95 |
| 2026 | 20090 | WAT - Clean Water District | $13.00 | $13.00 | $0.00 | $0.00 | $0.00 | $26.00 |
| 2026 | 20090 | FP ADMIN - FP ADMIN | $0.50 | $0.00 | $0.00 | $0.00 | $0.00 | $0.50 |
| 2026 | 20090 | TOTAL: | $98.76 | $98.11 | $0.00 | $0.00 | $0.00 | $196.87 |
|
| 2026 | 20090 | $98.76 | $98.11 | $0.00 | $0.00 | $0.00 | $196.87 |
Statement Details |
| 2025 | 20151 | STATE - STATE LEVY (SCHOOL) | $19.78 | $19.78 | $0.00 | $0.00 | $39.56 | $0.00 |
| 2025 | 20151 | COUNTY - COUNTY LEVIES (CE, DD, VET, MH) | $7.80 | $7.76 | $0.00 | $0.00 | $15.56 | $0.00 |
| 2025 | 20151 | CONSERVE - CONSERVATION FUTURES | $0.24 | $0.23 | $0.00 | $0.00 | $0.47 | $0.00 |
| 2025 | 20151 | COROADS - COUNTY ROADS (ROADS, DIV TO CE) | $6.24 | $6.23 | $0.00 | $0.00 | $12.47 | $0.00 |
| 2025 | 20151 | PORTPT - PORT DISTRICT | $3.18 | $3.17 | $0.00 | $0.00 | $6.35 | $0.00 |
| 2025 | 20151 | PUD1 - PUD #1 | $0.51 | $0.51 | $0.00 | $0.00 | $1.02 | $0.00 |
| 2025 | 20151 | LIB1 - LIBRARY DIST #1 | $2.41 | $2.41 | $0.00 | $0.00 | $4.82 | $0.00 |
| 2025 | 20151 | HD2 - HOSP DIST #2 | $0.46 | $0.45 | $0.00 | $0.00 | $0.91 | $0.00 |
| 2025 | 20151 | SD50 - SCHOOL DIST #50 | $14.47 | $14.45 | $0.00 | $0.00 | $28.92 | $0.00 |
| 2025 | 20151 | FD1 - FIRE DISTRICT #1 | $10.27 | $10.26 | $0.00 | $0.00 | $20.53 | $0.00 |
| 2025 | 20151 | EMS1 - FIRE DIST #1 EMS | $3.95 | $3.95 | $0.00 | $0.00 | $7.90 | $0.00 |
| 2025 | 20151 | FP - DNR Forest Fire Protection Assmt | $8.50 | $8.50 | $0.00 | $0.00 | $17.00 | $0.00 |
| 2025 | 20151 | FPLCA - DNR Landowner Contingency Assmt | $3.00 | $3.00 | $0.00 | $0.00 | $6.00 | $0.00 |
| 2025 | 20151 | JCCD - JC Conservation District | $2.53 | $2.53 | $0.00 | $0.00 | $5.06 | $0.00 |
| 2025 | 20151 | NWA - Noxious Weed Assessment | $2.15 | $2.15 | $0.00 | $0.00 | $4.30 | $0.00 |
| 2025 | 20151 | WAT - Clean Water District | $13.00 | $13.00 | $0.00 | $0.00 | $26.00 | $0.00 |
| 2025 | 20151 | FP ADMIN - FP ADMIN | $0.50 | $0.00 | $0.00 | $0.00 | $0.50 | $0.00 |
| 2025 | 20151 | TOTAL: | $98.99 | $98.38 | $0.00 | $0.00 | $197.37 | $0.00 |
|
| 2025 | 20151 | $98.99 | $98.38 | $0.00 | $0.00 | $197.37 | $0.00 |
Statement Details |
| 2024 | 20190 | STATE - STATE LEVY (SCHOOL) | $17.36 | $17.35 | $0.00 | $0.00 | $34.71 | $0.00 |
| 2024 | 20190 | COUNTY - COUNTY LEVIES (CE, DD, VET, MH) | $7.42 | $7.42 | $0.00 | $0.00 | $14.84 | $0.00 |
| 2024 | 20190 | CONSERVE - CONSERVATION FUTURES | $0.23 | $0.22 | $0.00 | $0.00 | $0.45 | $0.00 |
| 2024 | 20190 | COROADS - COUNTY ROADS (ROADS, DIV TO CE) | $5.98 | $5.97 | $0.00 | $0.00 | $11.95 | $0.00 |
| 2024 | 20190 | PORTPT - PORT DISTRICT | $3.07 | $3.06 | $0.00 | $0.00 | $6.13 | $0.00 |
| 2024 | 20190 | PUD1 - PUD #1 | $0.49 | $0.49 | $0.00 | $0.00 | $0.98 | $0.00 |
| 2024 | 20190 | LIB1 - LIBRARY DIST #1 | $2.31 | $2.31 | $0.00 | $0.00 | $4.62 | $0.00 |
| 2024 | 20190 | HD2 - HOSP DIST #2 | $0.44 | $0.43 | $0.00 | $0.00 | $0.87 | $0.00 |
| 2024 | 20190 | SD50 - SCHOOL DIST #50 | $14.05 | $14.02 | $0.00 | $0.00 | $28.07 | $0.00 |
| 2024 | 20190 | FD1 - FIRE DISTRICT #1 | $9.82 | $9.82 | $0.00 | $0.00 | $19.64 | $0.00 |
| 2024 | 20190 | EMS1 - FIRE DIST #1 EMS | $3.75 | $3.75 | $0.00 | $0.00 | $7.50 | $0.00 |
| 2024 | 20190 | FP - DNR Forest Fire Protection Assmt | $8.50 | $8.50 | $0.00 | $0.00 | $17.00 | $0.00 |
| 2024 | 20190 | FPLCA - DNR Landowner Contingency Assmt | $3.00 | $3.00 | $0.00 | $0.00 | $6.00 | $0.00 |
| 2024 | 20190 | JCCD - JC Conservation District | $2.53 | $2.53 | $0.00 | $0.00 | $5.06 | $0.00 |
| 2024 | 20190 | NWA - Noxious Weed Assessment | $2.15 | $2.15 | $0.00 | $0.00 | $4.30 | $0.00 |
| 2024 | 20190 | WAT - Clean Water District | $12.50 | $12.50 | $0.00 | $0.00 | $25.00 | $0.00 |
| 2024 | 20190 | FP ADMIN - FP ADMIN | $0.50 | $0.00 | $0.00 | $0.00 | $0.50 | $0.00 |
| 2024 | 20190 | TOTAL: | $94.10 | $93.52 | $0.00 | $0.00 | $187.62 | $0.00 |
|
| 2024 | 20190 | $94.10 | $93.52 | $0.00 | $0.00 | $187.62 | $0.00 |
Statement Details |
| 2023 | 20227 | STATE - STATE LEVY (SCHOOL) | $17.67 | $17.65 | $0.00 | $0.00 | $35.32 | $0.00 |
| 2023 | 20227 | COUNTY - COUNTY LEVIES (CE, DD, VET, MH) | $7.73 | $7.69 | $0.00 | $0.00 | $15.42 | $0.00 |
| 2023 | 20227 | CONSERVE - CONSERVATION FUTURES | $0.23 | $0.23 | $0.00 | $0.00 | $0.46 | $0.00 |
| 2023 | 20227 | COROADS - COUNTY ROADS (ROADS, DIV TO CE) | $6.24 | $6.23 | $0.00 | $0.00 | $12.47 | $0.00 |
| 2023 | 20227 | PORTPT - PORT DISTRICT | $3.25 | $3.24 | $0.00 | $0.00 | $6.49 | $0.00 |
| 2023 | 20227 | PUD1 - PUD #1 | $0.51 | $0.51 | $0.00 | $0.00 | $1.02 | $0.00 |
| 2023 | 20227 | LIB1 - LIBRARY DIST #1 | $2.41 | $2.41 | $0.00 | $0.00 | $4.82 | $0.00 |
| 2023 | 20227 | HD2 - HOSP DIST #2 | $0.46 | $0.44 | $0.00 | $0.00 | $0.90 | $0.00 |
| 2023 | 20227 | SD50 - SCHOOL DIST #50 | $14.02 | $14.00 | $0.00 | $0.00 | $28.02 | $0.00 |
| 2023 | 20227 | FD1 - FIRE DISTRICT #1 | $6.35 | $6.34 | $0.00 | $0.00 | $12.69 | $0.00 |
| 2023 | 20227 | EMS1 - FIRE DIST #1 EMS | $2.70 | $2.70 | $0.00 | $0.00 | $5.40 | $0.00 |
| 2023 | 20227 | FP - DNR Forest Fire Protection Assmt | $8.50 | $8.50 | $0.00 | $0.00 | $17.00 | $0.00 |
| 2023 | 20227 | FPLCA - DNR Landowner Contingency Assmt | $3.00 | $3.00 | $0.00 | $0.00 | $6.00 | $0.00 |
| 2023 | 20227 | JCCD - JC Conservation District | $2.53 | $2.53 | $0.00 | $0.00 | $5.06 | $0.00 |
| 2023 | 20227 | NWA - Noxious Weed Assessment | $2.15 | $2.15 | $0.00 | $0.00 | $4.30 | $0.00 |
| 2023 | 20227 | WAT - Clean Water District | $12.00 | $12.00 | $0.00 | $0.00 | $24.00 | $0.00 |
| 2023 | 20227 | FP ADMIN - FP ADMIN | $0.50 | $0.00 | $0.00 | $0.00 | $0.50 | $0.00 |
| 2023 | 20227 | TOTAL: | $90.25 | $89.62 | $0.00 | $0.00 | $179.87 | $0.00 |
|
| 2023 | 20227 | $90.25 | $89.62 | $0.00 | $0.00 | $179.87 | $0.00 |
Values
| (+) Improvement Homesite Value: | + | $0 | |
| (+) Improvement Non-Homesite Value: | + | $0 | |
| (+) Land Homesite Value: | + | $0 | |
| (+) Land Non-Homesite Value: | + | $16,500 | |
| (+) Curr Use (HS): | + | $0 | $0 |
| (+) Curr Use (NHS): | + | $0 | $0 |
| | | -------------------------- | |
| (=) Market Value: | = | $16,500 | |
| (–) Productivity Loss: | – | $0 | |
| | | -------------------------- | |
| (=) Subtotal: | = | $16,500 | |
| (+) Senior Appraised Value: | + | $0 | |
| (+) Non-Senior Appraised Value: | + | $16,500 | |
| | | -------------------------- | |
| (=) Total Appraised Value: | = | $16,500 | |
| (–) Senior Exemption Loss: | – | $0 | |
| (–) Exemption Loss: | – | $0 | |
| | | -------------------------- | |
| (=) Taxable Value: | = | $16,500 | |
Taxing Jurisdiction
| Owner: | JACQUES THIRY & COLLEEN RANDLE | | |
| % Ownership: | 100.0000000000% | | |
| Total Value: | $16,500 | | |
| Tax Area: | 0111 - 1-50F1E1H2L1 |
| CE | COUNTY CURRENT EXPENSE | 0.9034619479 | $16,500 | $16,500 | $14.91 | | |
| CNTYDD | DEVELOPMENTAL DISABILITIES | 0.0052121823 | $16,500 | $16,500 | $0.09 | | |
| CNTYVET | VETERANS RELIEF | 0.0052777810 | $16,500 | $16,500 | $0.09 | | |
| MENTAL | MENTAL HEALTH | 0.0052121823 | $16,500 | $16,500 | $0.09 | | |
| ROADS | COUNTY ROADS | 0.7415066410 | $16,500 | $16,500 | $12.23 | | |
| ROADSCU | COUNTY ROADS TO CUR EXP | 0.0000000000 | $16,500 | $16,500 | $0.00 | | |
| HOSP2CASH | HOSP DIST #2 GENERAL | 0.0536075306 | $16,500 | $16,500 | $0.88 | | |
| SCH50BOND | SCHOOL DIST #50 BOND 2016 | 0.5377451389 | $16,500 | $16,500 | $8.87 | | |
| SCH50CP | SCHOOL DIST #50 CAP PROJ | 0.4573475088 | $16,500 | $16,500 | $7.55 | | |
| SCH50MO | SCHOOL DIST #50 EP & O | 0.8262822886 | $16,500 | $16,500 | $13.63 | | |
| CONSERVE | CONSERVATION FUTURES | 0.0275621078 | $16,500 | $16,500 | $0.45 | | |
| EMS1 | FIRE DIST #1 EMS | 0.4679948282 | $16,500 | $16,500 | $7.72 | | |
| FD1 | FIRE DIST #1 GENERAL | 1.2171942929 | $16,500 | $16,500 | $20.08 | | |
| LIB1 | LIBRARY DIST #1 GENERAL | 0.2868827388 | $16,500 | $16,500 | $4.73 | | |
| PORTPT | PORT OF PT GENERAL | 0.1134941229 | $16,500 | $16,500 | $1.87 | | |
| PORTPTIDD | PORT OF PT IDD 2019 | 0.2577346692 | $16,500 | $16,500 | $4.25 | | |
| PUD1 | PUD #1 GENERAL | 0.0597888892 | $16,500 | $16,500 | $0.99 | | |
| STATE | STATE SCHOOL PART 1 | 1.4940692947 | $16,500 | $16,500 | $24.65 | | |
| STATE2 | STATE SCHOOL PART 2 | 0.8050170049 | $16,500 | $16,500 | $13.28 | | |
| | Total Tax Rate: | 8.2653911500 | | | | | |
| | | | | Taxes w/Current Exemptions: | $136.36 | | |
| | | | | Taxes w/o Exemptions: | $136.36 | | |
Improvement / Building
Sketch
| No sketches available for this property. |
Property Image
Land
| 1 | 5530-1185L | | 0.0000 | 0.00 | 0.00 | 0.00 | 3.00 | $16,500 | $0 |
Roll Value History
| 2026 | N/A | N/A | N/A | N/A | N/A |
| 2025 | $0 | $16,500 | $0 | $16,500 | $16,500 |
| 2024 | $0 | $16,500 | $0 | $16,500 | $16,500 |
| 2023 | $0 | $15,000 | $0 | $15,000 | $15,000 |
| 2022 | $0 | $15,000 | $0 | $15,000 | $15,000 |
Deed and Sales History
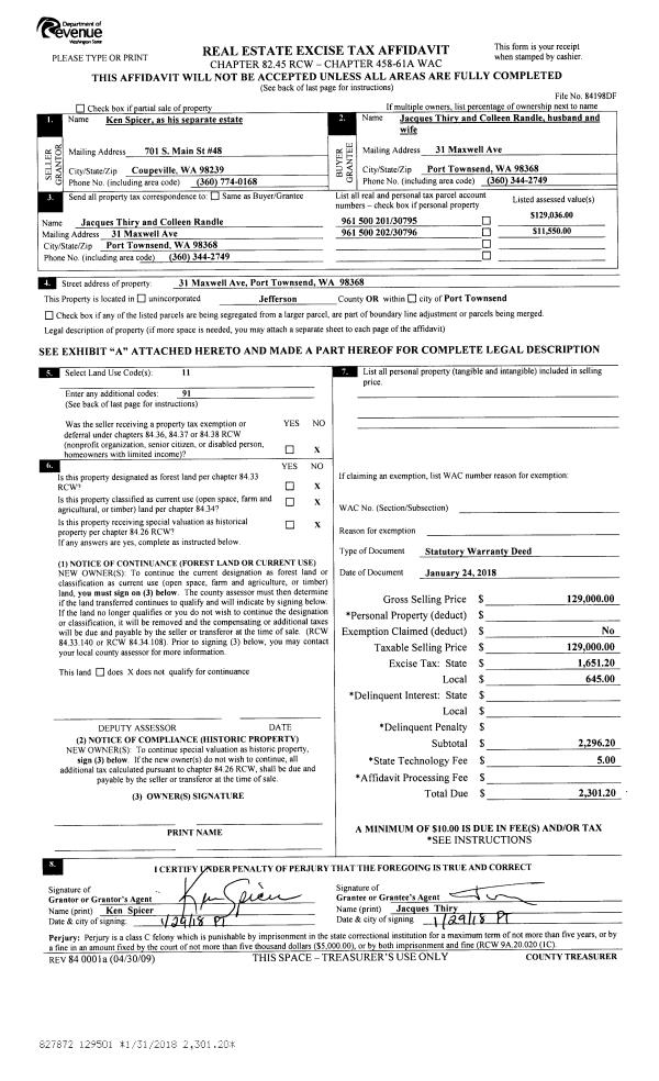
| 1 | 01/24/2018 | SWD | Statutory Warranty Deed | KEN SPICER | JACQUES THIRY & COLLEEN RANDLE | | | $129,000.00 | 129501 | |
|   | |
| 2 | 07/13/2007 | SWD | Statutory Warranty Deed | SUNDBOM, FRANS J | SPICER, KEN | | | $170,000.00 | 109699 | 0 |
Payout Agreement
| No payout information available.. |