Property
Account |
| Property ID: | 30807 | Abbreviated Legal Description: | INNER HARBOR VILLAGE CONDOS BLDG 1, UNIT 1C |
| Parcel # / Geo ID: | 961600103 | Agent Code: | |
| Type: | Real | | |
| Tax Area: | 0213 - 1-49F1E1H2L1 | Land Use Code | 14 |
| Open Space: | N | DFL | N |
| Historic Property: | N | Remodel Property: | N |
| Multi-Family Redevelopment: | N | | |
| Township: | 28N | Section: | 17 |
| Range: | 1E |
Location |
| Address: | 91 N CHANDLER CT C PORT LUDLOW, WA 98365 | Mapsco: | 033/003 |
| Neighborhood: | CYCLE 3 CONDOMINIUMS - PORT LUDLOW | Map ID: | |
| Neighborhood CD: | 3900 |
Owner |
| Name: | ANNELIESE M & ANTHONY G BULLERI | Owner ID: | 108843 |
| Mailing Address: | 4507 34TH AVE CT GIG HARBOR, WA 98335-8248 | % Ownership: | 100.0000000000% |
| | | Exemptions: | |
Pay Tax Due
There is currently No Amount Due on this property.
Taxes and Assessment Details
Property Tax Information as of
03/12/2026
Click on "Statement Details" to expand or collapse a tax statement.
* Please enter a valid date ** Please enter a valid date *
Statement Details |
| | TOTAL: | $0.00 | $0.00 | $0.00 | $0.00 | $0.00 | $0.00 |
|
| | $0.00 | $0.00 | $0.00 | $0.00 | $0.00 | $0.00 |
Values
| (+) Improvement Homesite Value: | + | $0 | |
| (+) Improvement Non-Homesite Value: | + | $276,540 | |
| (+) Land Homesite Value: | + | $0 | |
| (+) Land Non-Homesite Value: | + | $157,500 | |
| (+) Curr Use (HS): | + | $0 | $0 |
| (+) Curr Use (NHS): | + | $0 | $0 |
| | | -------------------------- | |
| (=) Market Value: | = | $434,040 | |
| (–) Productivity Loss: | – | $0 | |
| | | -------------------------- | |
| (=) Subtotal: | = | $434,040 | |
| (+) Senior Appraised Value: | + | $0 | |
| (+) Non-Senior Appraised Value: | + | $434,040 | |
| | | -------------------------- | |
| (=) Total Appraised Value: | = | $434,040 | |
| (–) Senior Exemption Loss: | – | $0 | |
| (–) Exemption Loss: | – | $0 | |
| | | -------------------------- | |
| (=) Taxable Value: | = | $434,040 | |
Taxing Jurisdiction
| Owner: | ANNELIESE M & ANTHONY G BULLERI | | |
| % Ownership: | 100.0000000000% | | |
| Total Value: | $434,040 | | |
| Tax Area: | 0213 - 1-49F1E1H2L1 |
| CE | COUNTY CURRENT EXPENSE | 0.9034619479 | $434,040 | $434,040 | $392.14 | | |
| CNTYDD | DEVELOPMENTAL DISABILITIES | 0.0052121823 | $434,040 | $434,040 | $2.26 | | |
| CNTYVET | VETERANS RELIEF | 0.0052777810 | $434,040 | $434,040 | $2.29 | | |
| MENTAL | MENTAL HEALTH | 0.0052121823 | $434,040 | $434,040 | $2.26 | | |
| ROADS | COUNTY ROADS | 0.7415066410 | $434,040 | $434,040 | $321.84 | | |
| ROADSCU | COUNTY ROADS TO CUR EXP | 0.0000000000 | $434,040 | $434,040 | $0.00 | | |
| HOSP2CASH | HOSP DIST #2 GENERAL | 0.0536075306 | $434,040 | $434,040 | $23.27 | | |
| SCH49CP | SCHOOL DIST #49 CAP PROJ | 0.6279093905 | $434,040 | $434,040 | $272.54 | | |
| SCH49MO | SCHOOL DIST #49 EP & O | 0.6376483602 | $434,040 | $434,040 | $276.76 | | |
| CONSERVE | CONSERVATION FUTURES | 0.0275621078 | $434,040 | $434,040 | $11.96 | | |
| EMS1 | FIRE DIST #1 EMS | 0.4679948282 | $434,040 | $434,040 | $203.13 | | |
| FD1 | FIRE DIST #1 GENERAL | 1.2171942929 | $434,040 | $434,040 | $528.31 | | |
| LIB1 | LIBRARY DIST #1 GENERAL | 0.2868827388 | $434,040 | $434,040 | $124.52 | | |
| PORTPT | PORT OF PT GENERAL | 0.1134941229 | $434,040 | $434,040 | $49.26 | | |
| PORTPTIDD | PORT OF PT IDD 2019 | 0.2577346692 | $434,040 | $434,040 | $111.87 | | |
| PUD1 | PUD #1 GENERAL | 0.0597888892 | $434,040 | $434,040 | $25.95 | | |
| STATE | STATE SCHOOL PART 1 | 1.4940692947 | $434,040 | $434,040 | $648.49 | | |
| STATE2 | STATE SCHOOL PART 2 | 0.8050170049 | $434,040 | $434,040 | $349.41 | | |
| | Total Tax Rate: | 7.7095739644 | | | | | |
| | | | | Taxes w/Current Exemptions: | $3,346.26 | | |
| | | | | Taxes w/o Exemptions: | $3,346.26 | | |
Improvement / Building
| Improvement #1: | Residential Bldg | State Code: | 14 | 1257.0 sqft | Value: | $276,540 |
Sketch
| No sketches available for this property. |
Property Image
Land
| 1 | 9616-4145S | Inner Harbor Condos High Bank Inlet | 0.0000 | 0.00 | 0.00 | 0.00 | 1.00 | $157,500 | $0 |
Roll Value History
| 2026 | N/A | N/A | N/A | N/A | N/A |
| 2025 | $276,540 | $157,500 | $0 | $434,040 | $434,040 |
| 2024 | $276,540 | $157,500 | $0 | $434,040 | $434,040 |
| 2023 | $263,970 | $157,500 | $0 | $421,470 | $421,470 |
| 2022 | $245,115 | $141,750 | $0 | $386,865 | $386,865 |
Deed and Sales History
| 1 | 05/09/2023 | SWD | Statutory Warranty Deed | CHRISTY L & PAUL NETTLETON | ANNELIESE M & ANTHONY G BULLERI | | | $475,000.00 | 140886 | |
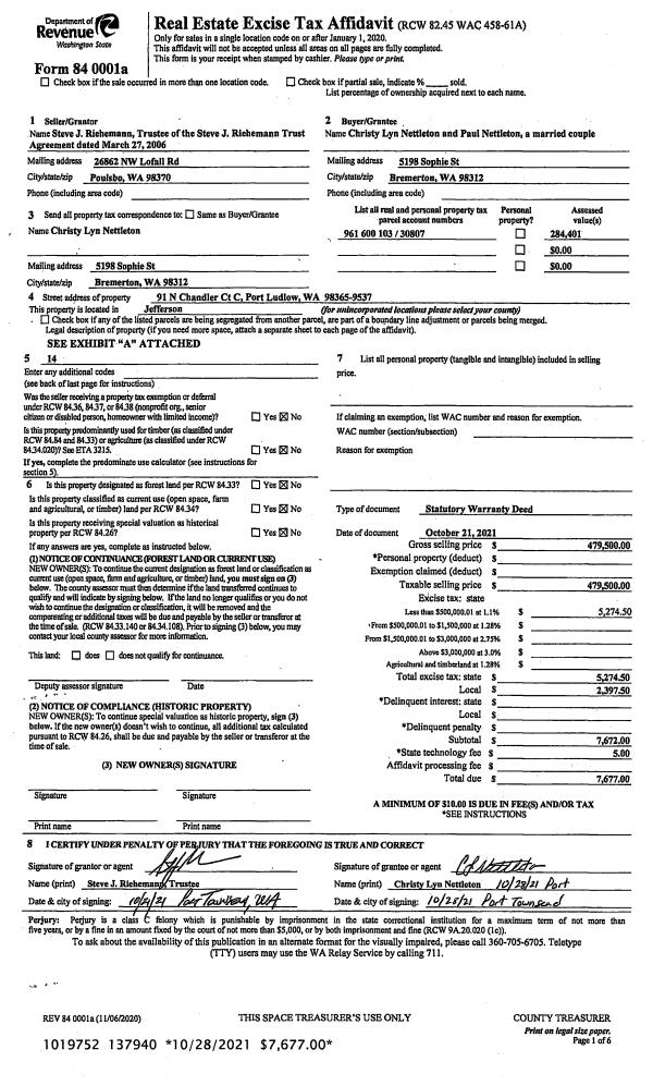
| 2 | 10/21/2021 | SWD | Statutory Warranty Deed | STEVEN J RIEHEMANN TRSTE | CHRISTY L & PAUL NETTLETON | | | $479,500.00 | 137940 | |
| 3 | 03/27/2006 | TRED | Trustee Deed | RIEHEMANN, STEVEN J | RIEHEMANN, STEVE J TRUSTEE OF | | | $0.00 | 106339 | 0 |
| 4 | 11/17/1994 | SWD | Statutory Warranty Deed | POPE RESOURCES | RIEHEMANN, STEVEN J | 0 | 0 | $136,000.00 | 75635 | 0 |
Payout Agreement
| No payout information available.. |