Property
Account |
| Property ID: | 30815 | Abbreviated Legal Description: | INNER HARBOR VILLAGE CONDOS UNIT 3-C |
| Parcel # / Geo ID: | 961600303 | Agent Code: | |
| Type: | Real | | |
| Tax Area: | 0213 - 1-49F1E1H2L1 | Land Use Code | 14 |
| Open Space: | N | DFL | N |
| Historic Property: | N | Remodel Property: | N |
| Multi-Family Redevelopment: | N | | |
| Township: | 28N | Section: | 17 |
| Range: | 1E |
Location |
| Address: | 71 N CHANDLER CT C PORT LUDLOW, WA 98365 | Mapsco: | 033/011 |
| Neighborhood: | CYCLE 3 CONDOMINIUMS - PORT LUDLOW | Map ID: | |
| Neighborhood CD: | 3900 |
Owner |
| Name: | KAREN L & SAMUEL J SCHILLE | Owner ID: | 112431 |
| Mailing Address: | 71 N CHANDLER CT # C PORT LUDLOW, WA 98365-9537 | % Ownership: | 100.0000000000% |
| | | Exemptions: | |
Pay Tax Due
Select the appropriate checkbox next to the year to be paid. Multiple years may be selected.
*Convenience Fee not included
Taxes and Assessment Details
Property Tax Information as of
03/10/2026
Click on "Statement Details" to expand or collapse a tax statement.
* Please enter a valid date ** Please enter a valid date *
Statement Details |
| 2026 | 20109 | STATE - STATE LEVY (SCHOOL) | $612.00 | $611.98 | $0.00 | $0.00 | $0.00 | $1223.98 |
| 2026 | 20109 | COUNTY - COUNTY LEVIES (CE, DD, VET, MH) | $244.69 | $244.65 | $0.00 | $0.00 | $0.00 | $489.34 |
| 2026 | 20109 | CONSERVE - CONSERVATION FUTURES | $7.34 | $7.33 | $0.00 | $0.00 | $0.00 | $14.67 |
| 2026 | 20109 | COROADS - COUNTY ROADS (ROADS, DIV TO CE) | $197.38 | $197.38 | $0.00 | $0.00 | $0.00 | $394.76 |
| 2026 | 20109 | PORTPT - PORT DISTRICT | $98.82 | $98.81 | $0.00 | $0.00 | $0.00 | $197.63 |
| 2026 | 20109 | PUD1 - PUD #1 | $15.92 | $15.91 | $0.00 | $0.00 | $0.00 | $31.83 |
| 2026 | 20109 | LIB1 - LIBRARY DIST #1 | $76.37 | $76.36 | $0.00 | $0.00 | $0.00 | $152.73 |
| 2026 | 20109 | HD2 - HOSP DIST #2 | $14.27 | $14.27 | $0.00 | $0.00 | $0.00 | $28.54 |
| 2026 | 20109 | SD49 - SCHOOL DIST #49 | $336.89 | $336.87 | $0.00 | $0.00 | $0.00 | $673.76 |
| 2026 | 20109 | FD1 - FIRE DISTRICT #1 | $324.01 | $324.00 | $0.00 | $0.00 | $0.00 | $648.01 |
| 2026 | 20109 | EMS1 - FIRE DIST #1 EMS | $124.58 | $124.57 | $0.00 | $0.00 | $0.00 | $249.15 |
| 2026 | 20109 | JCCD - JC Conservation District | $2.55 | $2.55 | $0.00 | $0.00 | $0.00 | $5.10 |
| 2026 | 20109 | NWA - Noxious Weed Assessment | $2.98 | $2.97 | $0.00 | $0.00 | $0.00 | $5.95 |
| 2026 | 20109 | TOTAL: | $2057.80 | $2057.65 | $0.00 | $0.00 | $0.00 | $4115.45 |
|
| 2026 | 20109 | $2057.80 | $2057.65 | $0.00 | $0.00 | $0.00 | $4115.45 |
Statement Details |
| 2025 | 20170 | STATE - STATE LEVY (SCHOOL) | $638.34 | $638.32 | $0.00 | $0.00 | $1276.66 | $0.00 |
| 2025 | 20170 | COUNTY - COUNTY LEVIES (CE, DD, VET, MH) | $251.02 | $251.02 | $0.00 | $0.00 | $502.04 | $0.00 |
| 2025 | 20170 | CONSERVE - CONSERVATION FUTURES | $7.53 | $7.52 | $0.00 | $0.00 | $15.05 | $0.00 |
| 2025 | 20170 | COROADS - COUNTY ROADS (ROADS, DIV TO CE) | $201.11 | $201.10 | $0.00 | $0.00 | $402.21 | $0.00 |
| 2025 | 20170 | PORTPT - PORT DISTRICT | $102.44 | $102.42 | $0.00 | $0.00 | $204.86 | $0.00 |
| 2025 | 20170 | PUD1 - PUD #1 | $16.43 | $16.42 | $0.00 | $0.00 | $32.85 | $0.00 |
| 2025 | 20170 | LIB1 - LIBRARY DIST #1 | $77.81 | $77.80 | $0.00 | $0.00 | $155.61 | $0.00 |
| 2025 | 20170 | HD2 - HOSP DIST #2 | $14.65 | $14.64 | $0.00 | $0.00 | $29.29 | $0.00 |
| 2025 | 20170 | SD49 - SCHOOL DIST #49 | $342.11 | $342.10 | $0.00 | $0.00 | $684.21 | $0.00 |
| 2025 | 20170 | FD1 - FIRE DISTRICT #1 | $331.25 | $331.25 | $0.00 | $0.00 | $662.50 | $0.00 |
| 2025 | 20170 | EMS1 - FIRE DIST #1 EMS | $127.41 | $127.40 | $0.00 | $0.00 | $254.81 | $0.00 |
| 2025 | 20170 | JCCD - JC Conservation District | $2.55 | $2.55 | $0.00 | $0.00 | $5.10 | $0.00 |
| 2025 | 20170 | NWA - Noxious Weed Assessment | $2.15 | $2.15 | $0.00 | $0.00 | $4.30 | $0.00 |
| 2025 | 20170 | TOTAL: | $2114.80 | $2114.69 | $0.00 | $0.00 | $4229.49 | $0.00 |
|
| 2025 | 20170 | $2114.80 | $2114.69 | $0.00 | $0.00 | $4229.49 | $0.00 |
Statement Details |
| 2024 | 20209 | STATE - STATE LEVY (SCHOOL) | $596.15 | $596.14 | $0.00 | $0.00 | $1192.29 | $0.00 |
| 2024 | 20209 | COUNTY - COUNTY LEVIES (CE, DD, VET, MH) | $255.10 | $255.09 | $0.00 | $0.00 | $510.19 | $0.00 |
| 2024 | 20209 | CONSERVE - CONSERVATION FUTURES | $7.65 | $7.65 | $0.00 | $0.00 | $15.30 | $0.00 |
| 2024 | 20209 | COROADS - COUNTY ROADS (ROADS, DIV TO CE) | $205.27 | $205.26 | $0.00 | $0.00 | $410.53 | $0.00 |
| 2024 | 20209 | PORTPT - PORT DISTRICT | $105.37 | $105.36 | $0.00 | $0.00 | $210.73 | $0.00 |
| 2024 | 20209 | PUD1 - PUD #1 | $16.76 | $16.75 | $0.00 | $0.00 | $33.51 | $0.00 |
| 2024 | 20209 | LIB1 - LIBRARY DIST #1 | $79.42 | $79.41 | $0.00 | $0.00 | $158.83 | $0.00 |
| 2024 | 20209 | HD2 - HOSP DIST #2 | $14.89 | $14.88 | $0.00 | $0.00 | $29.77 | $0.00 |
| 2024 | 20209 | SD49 - SCHOOL DIST #49 | $266.21 | $266.21 | $0.00 | $0.00 | $532.42 | $0.00 |
| 2024 | 20209 | FD1 - FIRE DISTRICT #1 | $337.30 | $337.29 | $0.00 | $0.00 | $674.59 | $0.00 |
| 2024 | 20209 | EMS1 - FIRE DIST #1 EMS | $128.84 | $128.83 | $0.00 | $0.00 | $257.67 | $0.00 |
| 2024 | 20209 | JCCD - JC Conservation District | $2.55 | $2.55 | $0.00 | $0.00 | $5.10 | $0.00 |
| 2024 | 20209 | NWA - Noxious Weed Assessment | $2.15 | $2.15 | $0.00 | $0.00 | $4.30 | $0.00 |
| 2024 | 20209 | TOTAL: | $2017.66 | $2017.57 | $0.00 | $0.00 | $4035.23 | $0.00 |
|
| 2024 | 20209 | $2017.66 | $2017.57 | $0.00 | $0.00 | $4035.23 | $0.00 |
Statement Details |
| 2023 | 20246 | STATE - STATE LEVY (SCHOOL) | $557.98 | $557.96 | $0.00 | $0.00 | $1115.94 | $0.00 |
| 2023 | 20246 | COUNTY - COUNTY LEVIES (CE, DD, VET, MH) | $243.48 | $243.47 | $0.00 | $0.00 | $486.95 | $0.00 |
| 2023 | 20246 | CONSERVE - CONSERVATION FUTURES | $7.30 | $7.30 | $0.00 | $0.00 | $14.60 | $0.00 |
| 2023 | 20246 | COROADS - COUNTY ROADS (ROADS, DIV TO CE) | $197.00 | $196.98 | $0.00 | $0.00 | $393.98 | $0.00 |
| 2023 | 20246 | PORTPT - PORT DISTRICT | $102.58 | $102.56 | $0.00 | $0.00 | $205.14 | $0.00 |
| 2023 | 20246 | PUD1 - PUD #1 | $16.14 | $16.14 | $0.00 | $0.00 | $32.28 | $0.00 |
| 2023 | 20246 | LIB1 - LIBRARY DIST #1 | $76.22 | $76.21 | $0.00 | $0.00 | $152.43 | $0.00 |
| 2023 | 20246 | HD2 - HOSP DIST #2 | $14.21 | $14.21 | $0.00 | $0.00 | $28.42 | $0.00 |
| 2023 | 20246 | SD49 - SCHOOL DIST #49 | $260.82 | $260.82 | $0.00 | $0.00 | $521.64 | $0.00 |
| 2023 | 20246 | FD3 - FIRE DISTRICT #3 | $242.23 | $242.23 | $0.00 | $0.00 | $484.46 | $0.00 |
| 2023 | 20246 | EMS3 - FIRE DIST #3 EMS | $86.60 | $86.60 | $0.00 | $0.00 | $173.20 | $0.00 |
| 2023 | 20246 | JCCD - JC Conservation District | $2.55 | $2.55 | $0.00 | $0.00 | $5.10 | $0.00 |
| 2023 | 20246 | NWA - Noxious Weed Assessment | $2.15 | $2.15 | $0.00 | $0.00 | $4.30 | $0.00 |
| 2023 | 20246 | TOTAL: | $1809.26 | $1809.18 | $0.00 | $0.00 | $3618.44 | $0.00 |
|
| 2023 | 20246 | $1809.26 | $1809.18 | $0.00 | $0.00 | $3618.44 | $0.00 |
Values
| (+) Improvement Homesite Value: | + | $0 | |
| (+) Improvement Non-Homesite Value: | + | $374,880 | |
| (+) Land Homesite Value: | + | $0 | |
| (+) Land Non-Homesite Value: | + | $157,500 | |
| (+) Curr Use (HS): | + | $0 | $0 |
| (+) Curr Use (NHS): | + | $0 | $0 |
| | | -------------------------- | |
| (=) Market Value: | = | $532,380 | |
| (–) Productivity Loss: | – | $0 | |
| | | -------------------------- | |
| (=) Subtotal: | = | $532,380 | |
| (+) Senior Appraised Value: | + | $0 | |
| (+) Non-Senior Appraised Value: | + | $532,380 | |
| | | -------------------------- | |
| (=) Total Appraised Value: | = | $532,380 | |
| (–) Senior Exemption Loss: | – | $0 | |
| (–) Exemption Loss: | – | $0 | |
| | | -------------------------- | |
| (=) Taxable Value: | = | $532,380 | |
Taxing Jurisdiction
| Owner: | KAREN L & SAMUEL J SCHILLE | | |
| % Ownership: | 100.0000000000% | | |
| Total Value: | $532,380 | | |
| Tax Area: | 0213 - 1-49F1E1H2L1 |
| CE | COUNTY CURRENT EXPENSE | 0.9034619479 | $532,380 | $532,380 | $480.99 | | |
| CNTYDD | DEVELOPMENTAL DISABILITIES | 0.0052121823 | $532,380 | $532,380 | $2.77 | | |
| CNTYVET | VETERANS RELIEF | 0.0052777810 | $532,380 | $532,380 | $2.81 | | |
| MENTAL | MENTAL HEALTH | 0.0052121823 | $532,380 | $532,380 | $2.77 | | |
| ROADS | COUNTY ROADS | 0.7415066410 | $532,380 | $532,380 | $394.76 | | |
| ROADSCU | COUNTY ROADS TO CUR EXP | 0.0000000000 | $532,380 | $532,380 | $0.00 | | |
| HOSP2CASH | HOSP DIST #2 GENERAL | 0.0536075306 | $532,380 | $532,380 | $28.54 | | |
| SCH49CP | SCHOOL DIST #49 CAP PROJ | 0.6279093905 | $532,380 | $532,380 | $334.29 | | |
| SCH49MO | SCHOOL DIST #49 EP & O | 0.6376483602 | $532,380 | $532,380 | $339.47 | | |
| CONSERVE | CONSERVATION FUTURES | 0.0275621078 | $532,380 | $532,380 | $14.67 | | |
| EMS1 | FIRE DIST #1 EMS | 0.4679948282 | $532,380 | $532,380 | $249.15 | | |
| FD1 | FIRE DIST #1 GENERAL | 1.2171942929 | $532,380 | $532,380 | $648.01 | | |
| LIB1 | LIBRARY DIST #1 GENERAL | 0.2868827388 | $532,380 | $532,380 | $152.73 | | |
| PORTPT | PORT OF PT GENERAL | 0.1134941229 | $532,380 | $532,380 | $60.42 | | |
| PORTPTIDD | PORT OF PT IDD 2019 | 0.2577346692 | $532,380 | $532,380 | $137.21 | | |
| PUD1 | PUD #1 GENERAL | 0.0597888892 | $532,380 | $532,380 | $31.83 | | |
| STATE | STATE SCHOOL PART 1 | 1.4940692947 | $532,380 | $532,380 | $795.41 | | |
| STATE2 | STATE SCHOOL PART 2 | 0.8050170049 | $532,380 | $532,380 | $428.57 | | |
| | Total Tax Rate: | 7.7095739644 | | | | | |
| | | | | Taxes w/Current Exemptions: | $4,104.40 | | |
| | | | | Taxes w/o Exemptions: | $4,104.40 | | |
Improvement / Building
| Improvement #1: | Residential Bldg | State Code: | 14 | 1704.0 sqft | Value: | $374,880 |
Sketch
| No sketches available for this property. |
Property Image
Land
| 1 | 9616-4145S | | 0.0000 | 0.00 | 0.00 | 0.00 | 1.00 | $157,500 | $0 |
Roll Value History
| 2026 | N/A | N/A | N/A | N/A | N/A |
| 2025 | $374,880 | $157,500 | $0 | $532,380 | $532,380 |
| 2024 | $374,880 | $157,500 | $0 | $532,380 | $532,380 |
| 2023 | $357,840 | $157,500 | $0 | $515,340 | $515,340 |
| 2022 | $332,280 | $141,750 | $0 | $474,030 | $474,030 |
Deed and Sales History
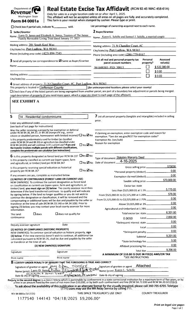
| 1 | 04/16/2025 | SWD | Statutory Warranty Deed | JAMES FAMILY REVOCABLE LIVING TRUST | KAREN L & SAMUEL J SCHILLE | | | $570,000.00 | 144143 | |
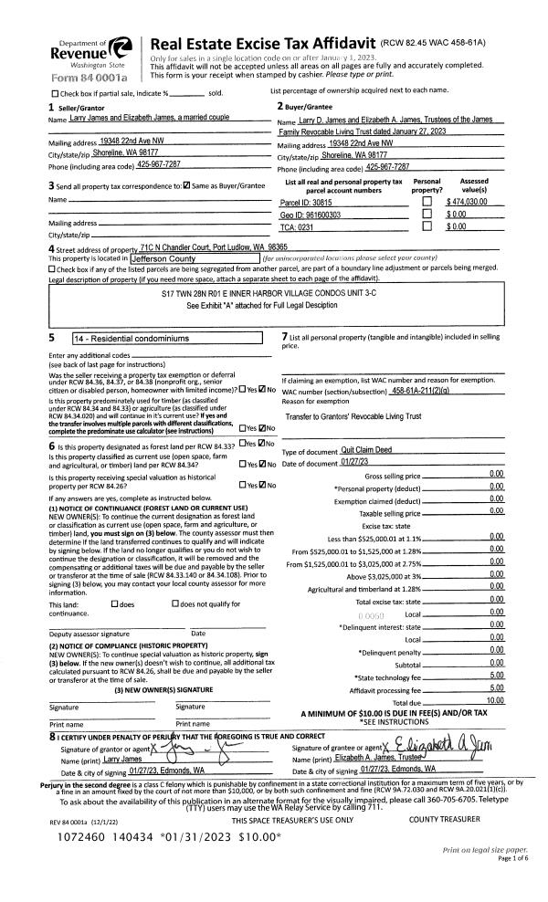
| 2 | 01/27/2023 | QCD | Quit Claim Deed | LARRY & ELIZABETH JAMES | JAMES FAMILY REVOCABLE LIVING TRUST | | | | 140434 | |
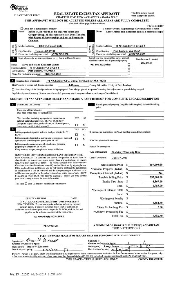
| 3 | 06/17/2019 | SWD | Statutory Warranty Deed | BRUCE W EHRHARDT JTWROS | LARRY & ELIZABETH JAMES | | | $357,000.00 | 132583 | |
| 4 | 06/23/1997 | SWD | Statutory Warranty Deed | GRIFFITH, MARY B REV LIV | EHRHARDT, BRUCE/HUPP, GREGORY | 0 | 0 | $145,000.00 | 82218 | 0 |
| 5 | 04/19/1994 | TRED | Trustee Deed | GRIFFITH, MARY B | GRIFFITH, MARY B/TRUST | 0 | 0 | $0.00 | 73902 | 0 |
Payout Agreement
| No payout information available.. |