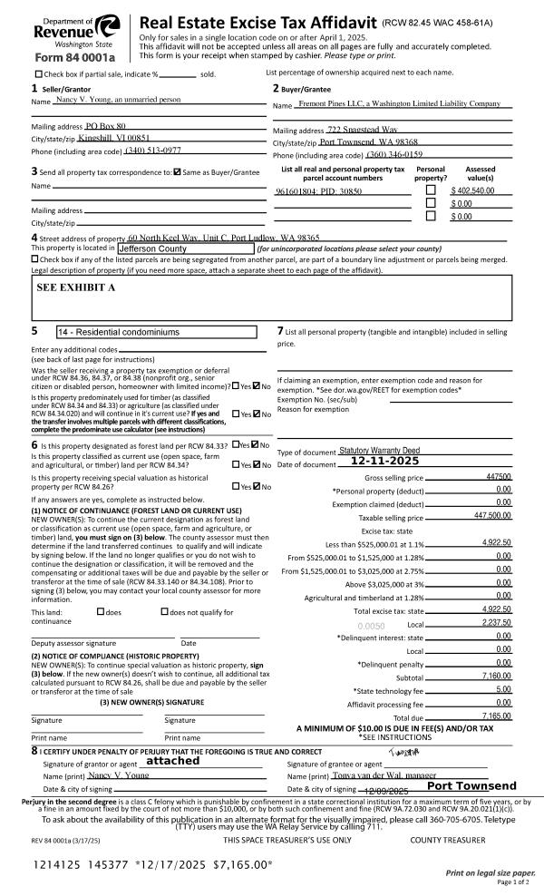
Property
Account |
| Property ID: | 30850 | Abbreviated Legal Description: | INNER HARBOR VILLAGE CONDO UNIT 18-C |
| Parcel # / Geo ID: | 961601804 | Agent Code: | |
| Type: | Real | | |
| Tax Area: | 0213 - 1-49F1E1H2L1 | Land Use Code | 14 |
| Open Space: | N | DFL | N |
| Historic Property: | N | Remodel Property: | N |
| Multi-Family Redevelopment: | N | | |
| Township: | 28N | Section: | 17 |
| Range: | 1E |
Location |
| Address: | 60 N KEEL WAY C PORT LUDLOW, WA 98365 | Mapsco: | 033/057 |
| Neighborhood: | CYCLE 3 CONDOMINIUMS - PORT LUDLOW | Map ID: | |
| Neighborhood CD: | 3900 |
Owner |
| Name: | FREMONT PINES LLC | Owner ID: | 16039 |
| Mailing Address: | C/O TONYA VANDERWAL 722 SNAGSTEAD WAY PORT TOWNSEND, WA 98368-9119 | % Ownership: | 100.0000000000% |
| | | Exemptions: | |
Pay Tax Due
Select the appropriate checkbox next to the year to be paid. Multiple years may be selected.
*Convenience Fee not included
Taxes and Assessment Details
Property Tax Information as of
03/11/2026
Click on "Statement Details" to expand or collapse a tax statement.
* Please enter a valid date ** Please enter a valid date *
Statement Details |
| 2026 | 20144 | STATE - STATE LEVY (SCHOOL) | $462.74 | $462.73 | $0.00 | $0.00 | $0.00 | $925.47 |
| 2026 | 20144 | COUNTY - COUNTY LEVIES (CE, DD, VET, MH) | $185.00 | $185.00 | $0.00 | $0.00 | $0.00 | $370.00 |
| 2026 | 20144 | CONSERVE - CONSERVATION FUTURES | $5.55 | $5.54 | $0.00 | $0.00 | $0.00 | $11.09 |
| 2026 | 20144 | COROADS - COUNTY ROADS (ROADS, DIV TO CE) | $149.25 | $149.24 | $0.00 | $0.00 | $0.00 | $298.49 |
| 2026 | 20144 | PORTPT - PORT DISTRICT | $74.73 | $74.71 | $0.00 | $0.00 | $0.00 | $149.44 |
| 2026 | 20144 | PUD1 - PUD #1 | $12.04 | $12.03 | $0.00 | $0.00 | $0.00 | $24.07 |
| 2026 | 20144 | LIB1 - LIBRARY DIST #1 | $57.74 | $57.74 | $0.00 | $0.00 | $0.00 | $115.48 |
| 2026 | 20144 | HD2 - HOSP DIST #2 | $10.79 | $10.79 | $0.00 | $0.00 | $0.00 | $21.58 |
| 2026 | 20144 | SD49 - SCHOOL DIST #49 | $254.72 | $254.72 | $0.00 | $0.00 | $0.00 | $509.44 |
| 2026 | 20144 | FD1 - FIRE DISTRICT #1 | $244.99 | $244.98 | $0.00 | $0.00 | $0.00 | $489.97 |
| 2026 | 20144 | EMS1 - FIRE DIST #1 EMS | $94.20 | $94.19 | $0.00 | $0.00 | $0.00 | $188.39 |
| 2026 | 20144 | JCCD - JC Conservation District | $2.55 | $2.55 | $0.00 | $0.00 | $0.00 | $5.10 |
| 2026 | 20144 | NWA - Noxious Weed Assessment | $2.98 | $2.97 | $0.00 | $0.00 | $0.00 | $5.95 |
| 2026 | 20144 | TOTAL: | $1557.28 | $1557.19 | $0.00 | $0.00 | $0.00 | $3114.47 |
|
| 2026 | 20144 | $1557.28 | $1557.19 | $0.00 | $0.00 | $0.00 | $3114.47 |
Statement Details |
| 2025 | 20205 | STATE - STATE LEVY (SCHOOL) | $482.66 | $482.65 | $0.00 | $0.00 | $965.31 | $0.00 |
| 2025 | 20205 | COUNTY - COUNTY LEVIES (CE, DD, VET, MH) | $189.82 | $189.78 | $0.00 | $0.00 | $379.60 | $0.00 |
| 2025 | 20205 | CONSERVE - CONSERVATION FUTURES | $5.69 | $5.69 | $0.00 | $0.00 | $11.38 | $0.00 |
| 2025 | 20205 | COROADS - COUNTY ROADS (ROADS, DIV TO CE) | $152.07 | $152.05 | $0.00 | $0.00 | $304.12 | $0.00 |
| 2025 | 20205 | PORTPT - PORT DISTRICT | $77.46 | $77.44 | $0.00 | $0.00 | $154.90 | $0.00 |
| 2025 | 20205 | PUD1 - PUD #1 | $12.42 | $12.42 | $0.00 | $0.00 | $24.84 | $0.00 |
| 2025 | 20205 | LIB1 - LIBRARY DIST #1 | $58.83 | $58.83 | $0.00 | $0.00 | $117.66 | $0.00 |
| 2025 | 20205 | HD2 - HOSP DIST #2 | $11.08 | $11.07 | $0.00 | $0.00 | $22.15 | $0.00 |
| 2025 | 20205 | SD49 - SCHOOL DIST #49 | $258.68 | $258.66 | $0.00 | $0.00 | $517.34 | $0.00 |
| 2025 | 20205 | FD1 - FIRE DISTRICT #1 | $250.46 | $250.46 | $0.00 | $0.00 | $500.92 | $0.00 |
| 2025 | 20205 | EMS1 - FIRE DIST #1 EMS | $96.34 | $96.33 | $0.00 | $0.00 | $192.67 | $0.00 |
| 2025 | 20205 | JCCD - JC Conservation District | $2.55 | $2.55 | $0.00 | $0.00 | $5.10 | $0.00 |
| 2025 | 20205 | NWA - Noxious Weed Assessment | $2.15 | $2.15 | $0.00 | $0.00 | $4.30 | $0.00 |
| 2025 | 20205 | TOTAL: | $1600.21 | $1600.08 | $0.00 | $0.00 | $3200.29 | $0.00 |
|
| 2025 | 20205 | $1600.21 | $1600.08 | $0.00 | $0.00 | $3200.29 | $0.00 |
Statement Details |
| 2024 | 20244 | STATE - STATE LEVY (SCHOOL) | $451.13 | $451.11 | $0.00 | $0.00 | $902.24 | $0.00 |
| 2024 | 20244 | COUNTY - COUNTY LEVIES (CE, DD, VET, MH) | $193.05 | $193.03 | $0.00 | $0.00 | $386.08 | $0.00 |
| 2024 | 20244 | CONSERVE - CONSERVATION FUTURES | $5.79 | $5.79 | $0.00 | $0.00 | $11.58 | $0.00 |
| 2024 | 20244 | COROADS - COUNTY ROADS (ROADS, DIV TO CE) | $155.33 | $155.33 | $0.00 | $0.00 | $310.66 | $0.00 |
| 2024 | 20244 | PORTPT - PORT DISTRICT | $79.74 | $79.72 | $0.00 | $0.00 | $159.46 | $0.00 |
| 2024 | 20244 | PUD1 - PUD #1 | $12.68 | $12.68 | $0.00 | $0.00 | $25.36 | $0.00 |
| 2024 | 20244 | LIB1 - LIBRARY DIST #1 | $60.10 | $60.09 | $0.00 | $0.00 | $120.19 | $0.00 |
| 2024 | 20244 | HD2 - HOSP DIST #2 | $11.27 | $11.26 | $0.00 | $0.00 | $22.53 | $0.00 |
| 2024 | 20244 | SD49 - SCHOOL DIST #49 | $201.45 | $201.44 | $0.00 | $0.00 | $402.89 | $0.00 |
| 2024 | 20244 | FD1 - FIRE DISTRICT #1 | $255.24 | $255.24 | $0.00 | $0.00 | $510.48 | $0.00 |
| 2024 | 20244 | EMS1 - FIRE DIST #1 EMS | $97.50 | $97.49 | $0.00 | $0.00 | $194.99 | $0.00 |
| 2024 | 20244 | JCCD - JC Conservation District | $2.55 | $2.55 | $0.00 | $0.00 | $5.10 | $0.00 |
| 2024 | 20244 | NWA - Noxious Weed Assessment | $2.15 | $2.15 | $0.00 | $0.00 | $4.30 | $0.00 |
| 2024 | 20244 | TOTAL: | $1527.98 | $1527.88 | $0.00 | $0.00 | $3055.86 | $0.00 |
|
| 2024 | 20244 | $1527.98 | $1527.88 | $0.00 | $0.00 | $3055.86 | $0.00 |
Statement Details |
| 2023 | 20281 | STATE - STATE LEVY (SCHOOL) | $436.84 | $436.83 | $0.00 | $0.00 | $873.67 | $0.00 |
| 2023 | 20281 | COUNTY - COUNTY LEVIES (CE, DD, VET, MH) | $190.62 | $190.61 | $0.00 | $0.00 | $381.23 | $0.00 |
| 2023 | 20281 | CONSERVE - CONSERVATION FUTURES | $5.72 | $5.71 | $0.00 | $0.00 | $11.43 | $0.00 |
| 2023 | 20281 | COROADS - COUNTY ROADS (ROADS, DIV TO CE) | $154.23 | $154.22 | $0.00 | $0.00 | $308.45 | $0.00 |
| 2023 | 20281 | PORTPT - PORT DISTRICT | $80.31 | $80.29 | $0.00 | $0.00 | $160.60 | $0.00 |
| 2023 | 20281 | PUD1 - PUD #1 | $12.64 | $12.63 | $0.00 | $0.00 | $25.27 | $0.00 |
| 2023 | 20281 | LIB1 - LIBRARY DIST #1 | $59.67 | $59.67 | $0.00 | $0.00 | $119.34 | $0.00 |
| 2023 | 20281 | HD2 - HOSP DIST #2 | $11.13 | $11.12 | $0.00 | $0.00 | $22.25 | $0.00 |
| 2023 | 20281 | SD49 - SCHOOL DIST #49 | $204.20 | $204.19 | $0.00 | $0.00 | $408.39 | $0.00 |
| 2023 | 20281 | FD3 - FIRE DISTRICT #3 | $189.64 | $189.64 | $0.00 | $0.00 | $379.28 | $0.00 |
| 2023 | 20281 | EMS3 - FIRE DIST #3 EMS | $67.80 | $67.79 | $0.00 | $0.00 | $135.59 | $0.00 |
| 2023 | 20281 | JCCD - JC Conservation District | $2.55 | $2.55 | $0.00 | $0.00 | $5.10 | $0.00 |
| 2023 | 20281 | NWA - Noxious Weed Assessment | $2.15 | $2.15 | $0.00 | $0.00 | $4.30 | $0.00 |
| 2023 | 20281 | TOTAL: | $1417.50 | $1417.40 | $0.00 | $0.00 | $2834.90 | $0.00 |
|
| 2023 | 20281 | $1417.50 | $1417.40 | $0.00 | $0.00 | $2834.90 | $0.00 |
Values
| (+) Improvement Homesite Value: | + | $0 | |
| (+) Improvement Non-Homesite Value: | + | $276,540 | |
| (+) Land Homesite Value: | + | $0 | |
| (+) Land Non-Homesite Value: | + | $126,000 | |
| (+) Curr Use (HS): | + | $0 | $0 |
| (+) Curr Use (NHS): | + | $0 | $0 |
| | | -------------------------- | |
| (=) Market Value: | = | $402,540 | |
| (–) Productivity Loss: | – | $0 | |
| | | -------------------------- | |
| (=) Subtotal: | = | $402,540 | |
| (+) Senior Appraised Value: | + | $0 | |
| (+) Non-Senior Appraised Value: | + | $402,540 | |
| | | -------------------------- | |
| (=) Total Appraised Value: | = | $402,540 | |
| (–) Senior Exemption Loss: | – | $0 | |
| (–) Exemption Loss: | – | $0 | |
| | | -------------------------- | |
| (=) Taxable Value: | = | $402,540 | |
Taxing Jurisdiction
| Owner: | FREMONT PINES LLC | | |
| % Ownership: | 100.0000000000% | | |
| Total Value: | $402,540 | | |
| Tax Area: | 0213 - 1-49F1E1H2L1 |
| CE | COUNTY CURRENT EXPENSE | 0.9034619479 | $402,540 | $402,540 | $363.68 | | |
| CNTYDD | DEVELOPMENTAL DISABILITIES | 0.0052121823 | $402,540 | $402,540 | $2.10 | | |
| CNTYVET | VETERANS RELIEF | 0.0052777810 | $402,540 | $402,540 | $2.12 | | |
| MENTAL | MENTAL HEALTH | 0.0052121823 | $402,540 | $402,540 | $2.10 | | |
| ROADS | COUNTY ROADS | 0.7415066410 | $402,540 | $402,540 | $298.49 | | |
| ROADSCU | COUNTY ROADS TO CUR EXP | 0.0000000000 | $402,540 | $402,540 | $0.00 | | |
| HOSP2CASH | HOSP DIST #2 GENERAL | 0.0536075306 | $402,540 | $402,540 | $21.58 | | |
| SCH49CP | SCHOOL DIST #49 CAP PROJ | 0.6279093905 | $402,540 | $402,540 | $252.76 | | |
| SCH49MO | SCHOOL DIST #49 EP & O | 0.6376483602 | $402,540 | $402,540 | $256.68 | | |
| CONSERVE | CONSERVATION FUTURES | 0.0275621078 | $402,540 | $402,540 | $11.09 | | |
| EMS1 | FIRE DIST #1 EMS | 0.4679948282 | $402,540 | $402,540 | $188.39 | | |
| FD1 | FIRE DIST #1 GENERAL | 1.2171942929 | $402,540 | $402,540 | $489.97 | | |
| LIB1 | LIBRARY DIST #1 GENERAL | 0.2868827388 | $402,540 | $402,540 | $115.48 | | |
| PORTPT | PORT OF PT GENERAL | 0.1134941229 | $402,540 | $402,540 | $45.69 | | |
| PORTPTIDD | PORT OF PT IDD 2019 | 0.2577346692 | $402,540 | $402,540 | $103.75 | | |
| PUD1 | PUD #1 GENERAL | 0.0597888892 | $402,540 | $402,540 | $24.07 | | |
| STATE | STATE SCHOOL PART 1 | 1.4940692947 | $402,540 | $402,540 | $601.42 | | |
| STATE2 | STATE SCHOOL PART 2 | 0.8050170049 | $402,540 | $402,540 | $324.05 | | |
| | Total Tax Rate: | 7.7095739644 | | | | | |
| | | | | Taxes w/Current Exemptions: | $3,103.42 | | |
| | | | | Taxes w/o Exemptions: | $3,103.42 | | |
Improvement / Building
| Improvement #1: | Residential Bldg | State Code: | 14 | 1257.0 sqft | Value: | $276,540 |
Sketch
| No sketches available for this property. |
Property Image
Land
| 1 | 9616-4175S | | 0.0000 | 0.00 | 0.00 | 0.00 | 1.00 | $126,000 | $0 |
Roll Value History
| 2026 | N/A | N/A | N/A | N/A | N/A |
| 2025 | $276,540 | $126,000 | $0 | $402,540 | $402,540 |
| 2024 | $276,540 | $126,000 | $0 | $402,540 | $402,540 |
| 2023 | $263,970 | $126,000 | $0 | $389,970 | $389,970 |
| 2022 | $245,115 | $126,000 | $0 | $371,115 | $371,115 |
Deed and Sales History
| 1 | 12/11/2025 | SWD | Statutory Warranty Deed | NANCY V YOUNG | FREMONT PINES LLC | | | $447,500.00 | 145377 | |
| 2 | 01/21/2014 | SWD | Statutory Warranty Deed | DOROTHY M BRICE | NANCY V YOUNG | | | $140,000.00 | 120672 | |
Payout Agreement
| No payout information available.. |