Property
Account |
| Property ID: | 30974 | Abbreviated Legal Description: | IRONDALE #1 BLK 13 LOTS 11 TO 14 |
| Parcel # / Geo ID: | 961801306 | Agent Code: | |
| Type: | Real | | |
| Tax Area: | 0211 - 1-49F1E1H2L1 | Land Use Code | 11 |
| Open Space: | N | DFL | N |
| Historic Property: | N | Remodel Property: | N |
| Multi-Family Redevelopment: | N | | |
| Township: | 30N | Section: | 35 |
| Range: | 1W |
Location |
| Address: | 170 E MAUDE ST PORT HADLOCK, WA 98339 | Mapsco: | 036/007 |
| Neighborhood: | IRONDALE BLOCKS 1 - 47 | Map ID: | |
| Neighborhood CD: | 4130 |
Owner |
| Name: | ROBERT T WILKINSON | Owner ID: | 98202 |
| Mailing Address: | DAWN K GRACE PO BOX 1312 PORT HADLOCK, WA 98339 | % Ownership: | 100.0000000000% |
| | | Exemptions: | |
Pay Tax Due
Select the appropriate checkbox next to the year to be paid. Multiple years may be selected.
*Convenience Fee not included
Taxes and Assessment Details
Property Tax Information as of
03/12/2026
Click on "Statement Details" to expand or collapse a tax statement.
* Please enter a valid date ** Please enter a valid date *
Statement Details |
| 2026 | 20267 | STATE - STATE LEVY (SCHOOL) | $217.28 | $217.28 | $0.00 | $0.00 | $0.00 | $434.56 |
| 2026 | 20267 | COUNTY - COUNTY LEVIES (CE, DD, VET, MH) | $86.89 | $86.86 | $0.00 | $0.00 | $0.00 | $173.75 |
| 2026 | 20267 | CONSERVE - CONSERVATION FUTURES | $2.61 | $2.60 | $0.00 | $0.00 | $0.00 | $5.21 |
| 2026 | 20267 | COROADS - COUNTY ROADS (ROADS, DIV TO CE) | $70.08 | $70.08 | $0.00 | $0.00 | $0.00 | $140.16 |
| 2026 | 20267 | PORTPT - PORT DISTRICT | $35.09 | $35.08 | $0.00 | $0.00 | $0.00 | $70.17 |
| 2026 | 20267 | PUD1 - PUD #1 | $5.65 | $5.65 | $0.00 | $0.00 | $0.00 | $11.30 |
| 2026 | 20267 | LIB1 - LIBRARY DIST #1 | $27.12 | $27.11 | $0.00 | $0.00 | $0.00 | $54.23 |
| 2026 | 20267 | HD2 - HOSP DIST #2 | $5.07 | $5.06 | $0.00 | $0.00 | $0.00 | $10.13 |
| 2026 | 20267 | SD49 - SCHOOL DIST #49 | $119.62 | $119.60 | $0.00 | $0.00 | $0.00 | $239.22 |
| 2026 | 20267 | FD1 - FIRE DISTRICT #1 | $115.04 | $115.03 | $0.00 | $0.00 | $0.00 | $230.07 |
| 2026 | 20267 | EMS1 - FIRE DIST #1 EMS | $44.23 | $44.23 | $0.00 | $0.00 | $0.00 | $88.46 |
| 2026 | 20267 | JCCD - JC Conservation District | $2.55 | $2.55 | $0.00 | $0.00 | $0.00 | $5.10 |
| 2026 | 20267 | NWA - Noxious Weed Assessment | $2.98 | $2.97 | $0.00 | $0.00 | $0.00 | $5.95 |
| 2026 | 20267 | OSS - On Site Septic | $23.10 | $23.10 | $0.00 | $0.00 | $0.00 | $46.20 |
| 2026 | 20267 | WAT - Clean Water District | $13.00 | $13.00 | $0.00 | $0.00 | $0.00 | $26.00 |
| 2026 | 20267 | TOTAL: | $770.31 | $770.20 | $0.00 | $0.00 | $0.00 | $1540.51 |
|
| 2026 | 20267 | $770.31 | $770.20 | $0.00 | $0.00 | $0.00 | $1540.51 |
Statement Details |
| 2025 | 20328 | STATE - STATE LEVY (SCHOOL) | $136.57 | $136.56 | $0.00 | $0.00 | $273.13 | $0.00 |
| 2025 | 20328 | COUNTY - COUNTY LEVIES (CE, DD, VET, MH) | $53.72 | $53.70 | $0.00 | $0.00 | $107.42 | $0.00 |
| 2025 | 20328 | CONSERVE - CONSERVATION FUTURES | $1.61 | $1.61 | $0.00 | $0.00 | $3.22 | $0.00 |
| 2025 | 20328 | COROADS - COUNTY ROADS (ROADS, DIV TO CE) | $43.03 | $43.02 | $0.00 | $0.00 | $86.05 | $0.00 |
| 2025 | 20328 | PORTPT - PORT DISTRICT | $21.92 | $21.91 | $0.00 | $0.00 | $43.83 | $0.00 |
| 2025 | 20328 | PUD1 - PUD #1 | $3.52 | $3.51 | $0.00 | $0.00 | $7.03 | $0.00 |
| 2025 | 20328 | LIB1 - LIBRARY DIST #1 | $16.65 | $16.64 | $0.00 | $0.00 | $33.29 | $0.00 |
| 2025 | 20328 | HD2 - HOSP DIST #2 | $3.14 | $3.13 | $0.00 | $0.00 | $6.27 | $0.00 |
| 2025 | 20328 | SD49 - SCHOOL DIST #49 | $73.19 | $73.19 | $0.00 | $0.00 | $146.38 | $0.00 |
| 2025 | 20328 | FD1 - FIRE DISTRICT #1 | $70.87 | $70.86 | $0.00 | $0.00 | $141.73 | $0.00 |
| 2025 | 20328 | EMS1 - FIRE DIST #1 EMS | $27.26 | $27.25 | $0.00 | $0.00 | $54.51 | $0.00 |
| 2025 | 20328 | JCCD - JC Conservation District | $2.55 | $2.55 | $0.00 | $0.00 | $5.10 | $0.00 |
| 2025 | 20328 | NWA - Noxious Weed Assessment | $2.15 | $2.15 | $0.00 | $0.00 | $4.30 | $0.00 |
| 2025 | 20328 | OSS - On Site Septic | $21.50 | $21.50 | $0.00 | $0.00 | $43.00 | $0.00 |
| 2025 | 20328 | WAT - Clean Water District | $13.00 | $13.00 | $0.00 | $0.00 | $26.00 | $0.00 |
| 2025 | 20328 | TOTAL: | $490.68 | $490.58 | $0.00 | $0.00 | $981.26 | $0.00 |
|
| 2025 | 20328 | $490.68 | $490.58 | $0.00 | $0.00 | $981.26 | $0.00 |
Statement Details |
| 2024 | 20367 | STATE - STATE LEVY (SCHOOL) | $118.38 | $118.37 | $0.00 | $0.00 | $236.75 | $0.00 |
| 2024 | 20367 | COUNTY - COUNTY LEVIES (CE, DD, VET, MH) | $50.67 | $50.64 | $0.00 | $0.00 | $101.31 | $0.00 |
| 2024 | 20367 | CONSERVE - CONSERVATION FUTURES | $1.52 | $1.52 | $0.00 | $0.00 | $3.04 | $0.00 |
| 2024 | 20367 | COROADS - COUNTY ROADS (ROADS, DIV TO CE) | $40.76 | $40.76 | $0.00 | $0.00 | $81.52 | $0.00 |
| 2024 | 20367 | PORTPT - PORT DISTRICT | $20.93 | $20.92 | $0.00 | $0.00 | $41.85 | $0.00 |
| 2024 | 20367 | PUD1 - PUD #1 | $3.33 | $3.32 | $0.00 | $0.00 | $6.65 | $0.00 |
| 2024 | 20367 | LIB1 - LIBRARY DIST #1 | $15.77 | $15.77 | $0.00 | $0.00 | $31.54 | $0.00 |
| 2024 | 20367 | HD2 - HOSP DIST #2 | $2.96 | $2.95 | $0.00 | $0.00 | $5.91 | $0.00 |
| 2024 | 20367 | SD49 - SCHOOL DIST #49 | $52.87 | $52.85 | $0.00 | $0.00 | $105.72 | $0.00 |
| 2024 | 20367 | FD1 - FIRE DISTRICT #1 | $66.98 | $66.97 | $0.00 | $0.00 | $133.95 | $0.00 |
| 2024 | 20367 | EMS1 - FIRE DIST #1 EMS | $25.59 | $25.58 | $0.00 | $0.00 | $51.17 | $0.00 |
| 2024 | 20367 | JCCD - JC Conservation District | $2.55 | $2.55 | $0.00 | $0.00 | $5.10 | $0.00 |
| 2024 | 20367 | NWA - Noxious Weed Assessment | $2.15 | $2.15 | $0.00 | $0.00 | $4.30 | $0.00 |
| 2024 | 20367 | OSS - On Site Septic | $21.00 | $21.00 | $0.00 | $0.00 | $42.00 | $0.00 |
| 2024 | 20367 | WAT - Clean Water District | $12.50 | $12.50 | $0.00 | $0.00 | $25.00 | $0.00 |
| 2024 | 20367 | TOTAL: | $437.96 | $437.85 | $0.00 | $0.00 | $875.81 | $0.00 |
|
| 2024 | 20367 | $437.96 | $437.85 | $0.00 | $0.00 | $875.81 | $0.00 |
Statement Details |
| 2023 | 20404 | STATE - STATE LEVY (SCHOOL) | $105.88 | $105.86 | $0.00 | $0.00 | $211.74 | $0.00 |
| 2023 | 20404 | COUNTY - COUNTY LEVIES (CE, DD, VET, MH) | $46.20 | $46.19 | $0.00 | $0.00 | $92.39 | $0.00 |
| 2023 | 20404 | CONSERVE - CONSERVATION FUTURES | $1.39 | $1.38 | $0.00 | $0.00 | $2.77 | $0.00 |
| 2023 | 20404 | COROADS - COUNTY ROADS (ROADS, DIV TO CE) | $37.38 | $37.37 | $0.00 | $0.00 | $74.75 | $0.00 |
| 2023 | 20404 | PORTPT - PORT DISTRICT | $19.47 | $19.45 | $0.00 | $0.00 | $38.92 | $0.00 |
| 2023 | 20404 | PUD1 - PUD #1 | $3.06 | $3.06 | $0.00 | $0.00 | $6.12 | $0.00 |
| 2023 | 20404 | LIB1 - LIBRARY DIST #1 | $14.46 | $14.46 | $0.00 | $0.00 | $28.92 | $0.00 |
| 2023 | 20404 | HD2 - HOSP DIST #2 | $2.70 | $2.69 | $0.00 | $0.00 | $5.39 | $0.00 |
| 2023 | 20404 | SD49 - SCHOOL DIST #49 | $49.50 | $49.48 | $0.00 | $0.00 | $98.98 | $0.00 |
| 2023 | 20404 | FD1 - FIRE DISTRICT #1 | $38.06 | $38.06 | $0.00 | $0.00 | $76.12 | $0.00 |
| 2023 | 20404 | EMS1 - FIRE DIST #1 EMS | $16.19 | $16.19 | $0.00 | $0.00 | $32.38 | $0.00 |
| 2023 | 20404 | JCCD - JC Conservation District | $2.55 | $2.55 | $0.00 | $0.00 | $5.10 | $0.00 |
| 2023 | 20404 | NWA - Noxious Weed Assessment | $2.15 | $2.15 | $0.00 | $0.00 | $4.30 | $0.00 |
| 2023 | 20404 | OSS - On Site Septic | $20.50 | $20.50 | $0.00 | $0.00 | $41.00 | $0.00 |
| 2023 | 20404 | WAT - Clean Water District | $12.00 | $12.00 | $0.00 | $0.00 | $24.00 | $0.00 |
| 2023 | 20404 | TOTAL: | $371.49 | $371.39 | $0.00 | $0.00 | $742.88 | $0.00 |
|
| 2023 | 20404 | $371.49 | $371.39 | $0.00 | $0.00 | $742.88 | $0.00 |
Values
| (+) Improvement Homesite Value: | + | $0 | |
| (+) Improvement Non-Homesite Value: | + | $97,667 | |
| (+) Land Homesite Value: | + | $0 | |
| (+) Land Non-Homesite Value: | + | $91,350 | |
| (+) Curr Use (HS): | + | $0 | $0 |
| (+) Curr Use (NHS): | + | $0 | $0 |
| | | -------------------------- | |
| (=) Market Value: | = | $189,017 | |
| (–) Productivity Loss: | – | $0 | |
| | | -------------------------- | |
| (=) Subtotal: | = | $189,017 | |
| (+) Senior Appraised Value: | + | $0 | |
| (+) Non-Senior Appraised Value: | + | $189,017 | |
| | | -------------------------- | |
| (=) Total Appraised Value: | = | $189,017 | |
| (–) Senior Exemption Loss: | – | $0 | |
| (–) Exemption Loss: | – | $0 | |
| | | -------------------------- | |
| (=) Taxable Value: | = | $189,017 | |
Taxing Jurisdiction
| Owner: | ROBERT T WILKINSON | | |
| % Ownership: | 100.0000000000% | | |
| Total Value: | N/A | | |
| Tax Area: | 0211 - 1-49F1E1H2L1 |
| CE | COUNTY CURRENT EXPENSE | N/A | N/A | N/A | N/A | | |
| CNTYDD | DEVELOPMENTAL DISABILITIES | N/A | N/A | N/A | N/A | | |
| CNTYVET | VETERANS RELIEF | N/A | N/A | N/A | N/A | | |
| MENTAL | MENTAL HEALTH | N/A | N/A | N/A | N/A | | |
| ROADS | COUNTY ROADS | N/A | N/A | N/A | N/A | | |
| HOSP2CASH | HOSP DIST #2 GENERAL | N/A | N/A | N/A | N/A | | |
| SCH49CP | SCHOOL DIST #49 CAP PROJ | N/A | N/A | N/A | N/A | | |
| SCH49MO | SCHOOL DIST #49 EP & O | N/A | N/A | N/A | N/A | | |
| CONSERVE | CONSERVATION FUTURES | N/A | N/A | N/A | N/A | | |
| EMS1 | FIRE DIST #1 EMS | N/A | N/A | N/A | N/A | | |
| FD1 | FIRE DIST #1 GENERAL | N/A | N/A | N/A | N/A | | |
| LIB1 | LIBRARY DIST #1 GENERAL | N/A | N/A | N/A | N/A | | |
| PORTPT | PORT OF PT GENERAL | N/A | N/A | N/A | N/A | | |
| PORTPTIDD | PORT OF PT IDD 2019 | N/A | N/A | N/A | N/A | | |
| PUD1 | PUD #1 GENERAL | N/A | N/A | N/A | N/A | | |
| STATE | STATE SCHOOL PART 1 | N/A | N/A | N/A | N/A | | |
| STATE2 | STATE SCHOOL PART 2 | N/A | N/A | N/A | N/A | | |
| | Total Tax Rate: | N/A | | | | | |
| | | | | Taxes w/Current Exemptions: | N/A | | |
| | | | | Taxes w/o Exemptions: | N/A | | |
Improvement / Building
| Improvement #1: | Residential Bldg | State Code: | 11 | 568.0 sqft | Value: | $19,797 |
| Bathrooms (#): | 1 (FULL) | Bedrooms (#): | 1 | | Exterior Wall: | PL/T1 | Fireplace: | WD ST-FAIR | | Floor Construction: | FRAME | Foundation: | PO&BL | | Heating/Cooling: | WD/NO | Interior Finish: | FIN | | Roof Cover: | ROLL |   |   |
|
| Improvement #2: | Residential Bldg | State Code: | 11 | 2560.0 sqft | Value: | $77,870 |
| Bathrooms (#): | 1 (FULL) | Bedrooms (#): | 1 | | Exterior Wall: | SI/ST | Foundation: | CONPR | | Roof Cover: | COMP |   |   |
|
| | Type | Description | Class CD | Sub Class CD | Year Built | Area |
| | MA | Main Area | 3+ | 2S | 2024 | 1040.0 |
| | GATT | House Attached Garage | 3 | 2S | 2024 | 960.0 |
| | MA2 | Second Floor Main Area | 1 | 2S | 2024 | 1520.0 |
Sketch
Property Image
Land
| 1 | 4130-1187L | | 0.0000 | 0.00 | 0.00 | 0.00 | 2.00 | $7,350 | $0 |
| 2 | 4130-1285S | | 0.0000 | 0.00 | 0.00 | 0.00 | 1.00 | $84,000 | $0 |
Roll Value History
| 2026 | N/A | N/A | N/A | N/A | N/A |
| 2025 | $97,667 | $91,350 | $0 | $189,017 | $189,017 |
| 2024 | $22,547 | $91,350 | $0 | $113,897 | $113,897 |
| 2023 | $20,331 | $82,000 | $0 | $102,331 | $102,331 |
| 2022 | $29,743 | $60,200 | $0 | $89,943 | $89,943 |
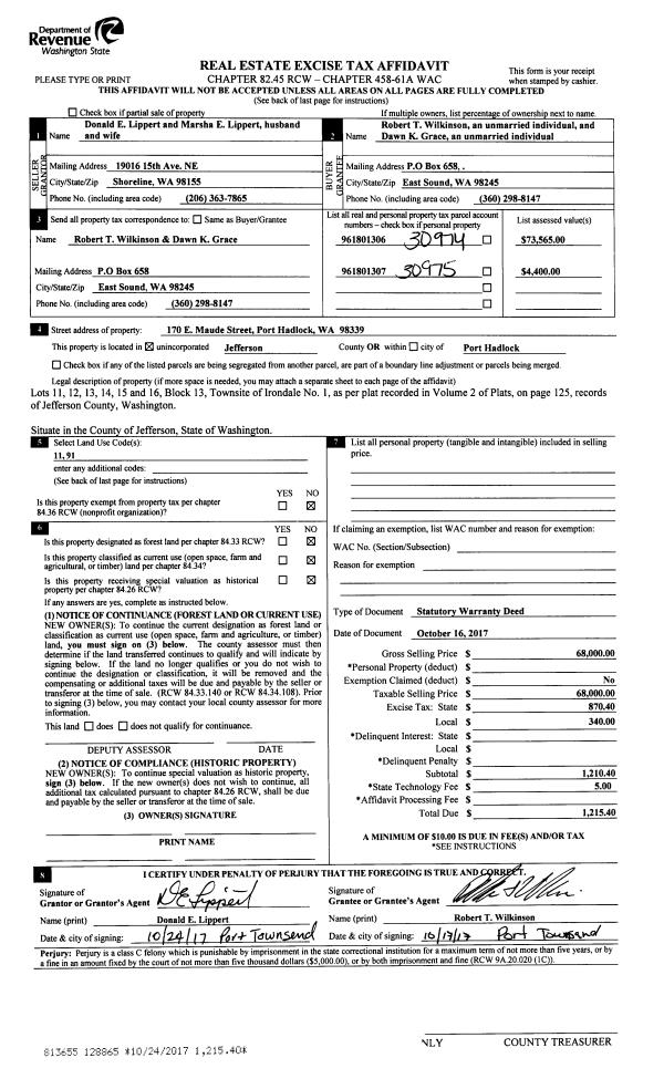
Deed and Sales History
| 1 | 10/16/2017 | SWD | Statutory Warranty Deed | DONALD E LIPPERT | ROBERT T WILKINSON | | | $68,000.00 | 128865 | |
|   | |
Payout Agreement
| No payout information available.. |