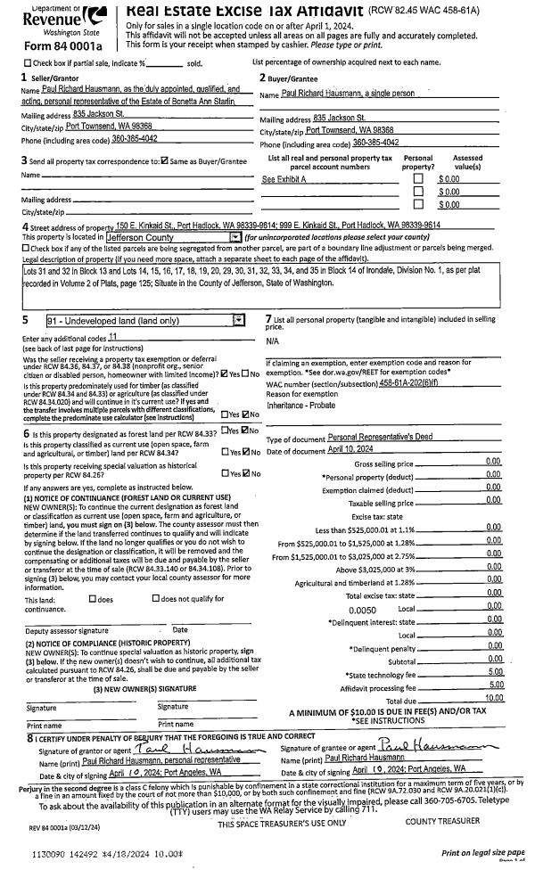
Property
Account |
| Property ID: | 30986 | Abbreviated Legal Description: | IRONDALE #1 BLK 14 LOTS 14 TO 20 |
| Parcel # / Geo ID: | 961801404 | Agent Code: | |
| Type: | Real | | |
| Tax Area: | 0211 - 1-49F1E1H2L1 | Land Use Code | 11 |
| Open Space: | N | DFL | N |
| Historic Property: | N | Remodel Property: | N |
| Multi-Family Redevelopment: | N | | |
| Township: | 30N | Section: | 35 |
| Range: | 1W |
Location |
| Address: | 150 E KINKAID ST PORT HADLOCK, WA 98339 | Mapsco: | 036/023 |
| Neighborhood: | IRONDALE BLOCKS 1 - 47 | Map ID: | |
| Neighborhood CD: | 4130 |
Owner |
| Name: | PAUL R HAUSMANN | Owner ID: | 17724 |
| Mailing Address: | 835 JACKSON ST PORT TOWNSEND, WA 98368-4505 | % Ownership: | 100.0000000000% |
| | | Exemptions: | |
Pay Tax Due
Select the appropriate checkbox next to the year to be paid. Multiple years may be selected.
*Convenience Fee not included
Taxes and Assessment Details
Property Tax Information as of
03/10/2026
Click on "Statement Details" to expand or collapse a tax statement.
* Please enter a valid date ** Please enter a valid date *
Statement Details |
| 2026 | 20279 | STATE - STATE LEVY (SCHOOL) | $192.67 | $192.66 | $0.00 | $0.00 | $0.00 | $385.33 |
| 2026 | 20279 | COUNTY - COUNTY LEVIES (CE, DD, VET, MH) | $77.03 | $77.01 | $0.00 | $0.00 | $0.00 | $154.04 |
| 2026 | 20279 | CONSERVE - CONSERVATION FUTURES | $2.31 | $2.31 | $0.00 | $0.00 | $0.00 | $4.62 |
| 2026 | 20279 | COROADS - COUNTY ROADS (ROADS, DIV TO CE) | $62.14 | $62.14 | $0.00 | $0.00 | $0.00 | $124.28 |
| 2026 | 20279 | PORTPT - PORT DISTRICT | $31.11 | $31.11 | $0.00 | $0.00 | $0.00 | $62.22 |
| 2026 | 20279 | PUD1 - PUD #1 | $5.01 | $5.01 | $0.00 | $0.00 | $0.00 | $10.02 |
| 2026 | 20279 | LIB1 - LIBRARY DIST #1 | $24.04 | $24.04 | $0.00 | $0.00 | $0.00 | $48.08 |
| 2026 | 20279 | HD2 - HOSP DIST #2 | $4.49 | $4.49 | $0.00 | $0.00 | $0.00 | $8.98 |
| 2026 | 20279 | SD49 - SCHOOL DIST #49 | $106.06 | $106.05 | $0.00 | $0.00 | $0.00 | $212.11 |
| 2026 | 20279 | FD1 - FIRE DISTRICT #1 | $102.00 | $102.00 | $0.00 | $0.00 | $0.00 | $204.00 |
| 2026 | 20279 | EMS1 - FIRE DIST #1 EMS | $39.22 | $39.22 | $0.00 | $0.00 | $0.00 | $78.44 |
| 2026 | 20279 | JCCD - JC Conservation District | $2.55 | $2.55 | $0.00 | $0.00 | $0.00 | $5.10 |
| 2026 | 20279 | NWA - Noxious Weed Assessment | $2.98 | $2.97 | $0.00 | $0.00 | $0.00 | $5.95 |
| 2026 | 20279 | OSS - On Site Septic | $23.10 | $23.10 | $0.00 | $0.00 | $0.00 | $46.20 |
| 2026 | 20279 | WAT - Clean Water District | $13.00 | $13.00 | $0.00 | $0.00 | $0.00 | $26.00 |
| 2026 | 20279 | TOTAL: | $687.71 | $687.66 | $0.00 | $0.00 | $0.00 | $1375.37 |
|
| 2026 | 20279 | $687.71 | $687.66 | $0.00 | $0.00 | $0.00 | $1375.37 |
Statement Details |
| 2025 | 20340 | STATE - STATE LEVY (SCHOOL) | $200.96 | $200.95 | $0.00 | $0.00 | $401.91 | $0.00 |
| 2025 | 20340 | COUNTY - COUNTY LEVIES (CE, DD, VET, MH) | $79.04 | $79.00 | $0.00 | $0.00 | $158.04 | $0.00 |
| 2025 | 20340 | CONSERVE - CONSERVATION FUTURES | $2.37 | $2.37 | $0.00 | $0.00 | $4.74 | $0.00 |
| 2025 | 20340 | COROADS - COUNTY ROADS (ROADS, DIV TO CE) | $63.32 | $63.30 | $0.00 | $0.00 | $126.62 | $0.00 |
| 2025 | 20340 | PORTPT - PORT DISTRICT | $32.25 | $32.25 | $0.00 | $0.00 | $64.50 | $0.00 |
| 2025 | 20340 | PUD1 - PUD #1 | $5.17 | $5.17 | $0.00 | $0.00 | $10.34 | $0.00 |
| 2025 | 20340 | LIB1 - LIBRARY DIST #1 | $24.50 | $24.49 | $0.00 | $0.00 | $48.99 | $0.00 |
| 2025 | 20340 | HD2 - HOSP DIST #2 | $4.61 | $4.61 | $0.00 | $0.00 | $9.22 | $0.00 |
| 2025 | 20340 | SD49 - SCHOOL DIST #49 | $107.70 | $107.70 | $0.00 | $0.00 | $215.40 | $0.00 |
| 2025 | 20340 | FD1 - FIRE DISTRICT #1 | $104.28 | $104.28 | $0.00 | $0.00 | $208.56 | $0.00 |
| 2025 | 20340 | EMS1 - FIRE DIST #1 EMS | $40.11 | $40.11 | $0.00 | $0.00 | $80.22 | $0.00 |
| 2025 | 20340 | JCCD - JC Conservation District | $2.55 | $2.55 | $0.00 | $0.00 | $5.10 | $0.00 |
| 2025 | 20340 | NWA - Noxious Weed Assessment | $2.15 | $2.15 | $0.00 | $0.00 | $4.30 | $0.00 |
| 2025 | 20340 | OSS - On Site Septic | $21.50 | $21.50 | $0.00 | $0.00 | $43.00 | $0.00 |
| 2025 | 20340 | WAT - Clean Water District | $13.00 | $13.00 | $0.00 | $0.00 | $26.00 | $0.00 |
| 2025 | 20340 | TOTAL: | $703.51 | $703.43 | $0.00 | $0.00 | $1406.94 | $0.00 |
|
| 2025 | 20340 | $703.51 | $703.43 | $0.00 | $0.00 | $1406.94 | $0.00 |
Statement Details |
| 2024 | 20379 | STATE - STATE LEVY (SCHOOL) | $179.03 | $179.02 | $0.00 | $0.00 | $358.05 | $0.00 |
| 2024 | 20379 | COUNTY - COUNTY LEVIES (CE, DD, VET, MH) | $76.63 | $76.60 | $0.00 | $0.00 | $153.23 | $0.00 |
| 2024 | 20379 | CONSERVE - CONSERVATION FUTURES | $2.30 | $2.29 | $0.00 | $0.00 | $4.59 | $0.00 |
| 2024 | 20379 | COROADS - COUNTY ROADS (ROADS, DIV TO CE) | $61.65 | $61.63 | $0.00 | $0.00 | $123.28 | $0.00 |
| 2024 | 20379 | PORTPT - PORT DISTRICT | $31.65 | $31.64 | $0.00 | $0.00 | $63.29 | $0.00 |
| 2024 | 20379 | PUD1 - PUD #1 | $5.03 | $5.03 | $0.00 | $0.00 | $10.06 | $0.00 |
| 2024 | 20379 | LIB1 - LIBRARY DIST #1 | $23.85 | $23.85 | $0.00 | $0.00 | $47.70 | $0.00 |
| 2024 | 20379 | HD2 - HOSP DIST #2 | $4.47 | $4.47 | $0.00 | $0.00 | $8.94 | $0.00 |
| 2024 | 20379 | SD49 - SCHOOL DIST #49 | $79.94 | $79.94 | $0.00 | $0.00 | $159.88 | $0.00 |
| 2024 | 20379 | FD1 - FIRE DISTRICT #1 | $101.30 | $101.29 | $0.00 | $0.00 | $202.59 | $0.00 |
| 2024 | 20379 | EMS1 - FIRE DIST #1 EMS | $38.69 | $38.69 | $0.00 | $0.00 | $77.38 | $0.00 |
| 2024 | 20379 | OSS - On Site Septic | $21.00 | $21.00 | $0.00 | $0.00 | $42.00 | $0.00 |
| 2024 | 20379 | TOTAL: | $625.54 | $625.45 | $0.00 | $0.00 | $1250.99 | $0.00 |
|
| 2024 | 20379 | $625.54 | $625.45 | $0.00 | $0.00 | $1250.99 | $0.00 |
Statement Details |
| 2023 | 20416 | STATE - STATE LEVY (SCHOOL) | $0.00 | $0.00 | $0.00 | $0.00 | $0.00 | $0.00 |
| 2023 | 20416 | COUNTY - COUNTY LEVIES (CE, DD, VET, MH) | $0.00 | $0.00 | $0.00 | $0.00 | $0.00 | $0.00 |
| 2023 | 20416 | CONSERVE - CONSERVATION FUTURES | $0.00 | $0.00 | $0.00 | $0.00 | $0.00 | $0.00 |
| 2023 | 20416 | COROADS - COUNTY ROADS (ROADS, DIV TO CE) | $0.00 | $0.00 | $0.00 | $0.00 | $0.00 | $0.00 |
| 2023 | 20416 | PORTPT - PORT DISTRICT | $0.00 | $0.00 | $0.00 | $0.00 | $0.00 | $0.00 |
| 2023 | 20416 | PUD1 - PUD #1 | $0.00 | $0.00 | $0.00 | $0.00 | $0.00 | $0.00 |
| 2023 | 20416 | LIB1 - LIBRARY DIST #1 | $0.00 | $0.00 | $0.00 | $0.00 | $0.00 | $0.00 |
| 2023 | 20416 | HD2 - HOSP DIST #2 | $0.00 | $0.00 | $0.00 | $0.00 | $0.00 | $0.00 |
| 2023 | 20416 | SD49 - SCHOOL DIST #49 | $0.00 | $0.00 | $0.00 | $0.00 | $0.00 | $0.00 |
| 2023 | 20416 | FD1 - FIRE DISTRICT #1 | $0.00 | $0.00 | $0.00 | $0.00 | $0.00 | $0.00 |
| 2023 | 20416 | EMS1 - FIRE DIST #1 EMS | $0.00 | $0.00 | $0.00 | $0.00 | $0.00 | $0.00 |
| 2023 | 20416 | OSS - On Site Septic | $41.00 | $0.00 | $0.00 | $0.00 | $41.00 | $0.00 |
| 2023 | 20416 | TOTAL: | $41.00 | $0.00 | $0.00 | $0.00 | $41.00 | $0.00 |
|
| 2023 | 20416 | $41.00 | $0.00 | $0.00 | $0.00 | $41.00 | $0.00 |
Values
| (+) Improvement Homesite Value: | + | $65,225 | |
| (+) Improvement Non-Homesite Value: | + | $0 | |
| (+) Land Homesite Value: | + | $102,375 | |
| (+) Land Non-Homesite Value: | + | $0 | |
| (+) Curr Use (HS): | + | $0 | $0 |
| (+) Curr Use (NHS): | + | $0 | $0 |
| | | -------------------------- | |
| (=) Market Value: | = | $167,600 | |
| (–) Productivity Loss: | – | $0 | |
| | | -------------------------- | |
| (=) Subtotal: | = | $167,600 | |
| (+) Senior Appraised Value: | + | $0 | |
| (+) Non-Senior Appraised Value: | + | $167,600 | |
| | | -------------------------- | |
| (=) Total Appraised Value: | = | $167,600 | |
| (–) Senior Exemption Loss: | – | $0 | |
| (–) Exemption Loss: | – | $0 | |
| | | -------------------------- | |
| (=) Taxable Value: | = | $167,600 | |
Taxing Jurisdiction
| Owner: | PAUL R HAUSMANN | | |
| % Ownership: | 100.0000000000% | | |
| Total Value: | $167,600 | | |
| Tax Area: | 0211 - 1-49F1E1H2L1 |
| CE | COUNTY CURRENT EXPENSE | 0.9034619479 | $167,600 | $167,600 | $151.42 | | |
| CNTYDD | DEVELOPMENTAL DISABILITIES | 0.0052121823 | $167,600 | $167,600 | $0.87 | | |
| CNTYVET | VETERANS RELIEF | 0.0052777810 | $167,600 | $167,600 | $0.88 | | |
| MENTAL | MENTAL HEALTH | 0.0052121823 | $167,600 | $167,600 | $0.87 | | |
| ROADS | COUNTY ROADS | 0.7415066410 | $167,600 | $167,600 | $124.28 | | |
| ROADSCU | COUNTY ROADS TO CUR EXP | 0.0000000000 | $167,600 | $167,600 | $0.00 | | |
| HOSP2CASH | HOSP DIST #2 GENERAL | 0.0536075306 | $167,600 | $167,600 | $8.98 | | |
| SCH49CP | SCHOOL DIST #49 CAP PROJ | 0.6279093905 | $167,600 | $167,600 | $105.24 | | |
| SCH49MO | SCHOOL DIST #49 EP & O | 0.6376483602 | $167,600 | $167,600 | $106.87 | | |
| CONSERVE | CONSERVATION FUTURES | 0.0275621078 | $167,600 | $167,600 | $4.62 | | |
| EMS1 | FIRE DIST #1 EMS | 0.4679948282 | $167,600 | $167,600 | $78.44 | | |
| FD1 | FIRE DIST #1 GENERAL | 1.2171942929 | $167,600 | $167,600 | $204.00 | | |
| LIB1 | LIBRARY DIST #1 GENERAL | 0.2868827388 | $167,600 | $167,600 | $48.08 | | |
| PORTPT | PORT OF PT GENERAL | 0.1134941229 | $167,600 | $167,600 | $19.02 | | |
| PORTPTIDD | PORT OF PT IDD 2019 | 0.2577346692 | $167,600 | $167,600 | $43.20 | | |
| PUD1 | PUD #1 GENERAL | 0.0597888892 | $167,600 | $167,600 | $10.02 | | |
| STATE | STATE SCHOOL PART 1 | 1.4940692947 | $167,600 | $167,600 | $250.41 | | |
| STATE2 | STATE SCHOOL PART 2 | 0.8050170049 | $167,600 | $167,600 | $134.92 | | |
| | Total Tax Rate: | 7.7095739644 | | | | | |
| | | | | Taxes w/Current Exemptions: | $1,292.12 | | |
| | | | | Taxes w/o Exemptions: | $1,292.12 | | |
Improvement / Building
| Improvement #1: | Residential Bldg | State Code: | 11 | 2112.0 sqft | Value: | $65,225 |
| Bathrooms (#): | 1 (FULL) | Bedrooms (#): | 5 | | Exterior Wall: | SI/ST | Fireplace: | WD ST-AVG | | Floor Construction: | FRAME | Foundation: | CONBL | | Heating/Cooling: | WD/NO | Roof Cover: | COMP |
|
| | Type | Description | Class CD | Sub Class CD | Year Built | Area |
| | MA | Main Area | 3- | 2S | 1920 | 1188.0 |
| | MA2 | Second Floor Main Area | 3- | 2S | 1920 | 924.0 |
| | HWPOR | House Wood Porch | 3 | * | 1920 | 64.0 |
| | HDECK | House Deck | 3 | * | 1920 | 32.0 |
| | HENCL | House Enclosure | 3 | * | 1920 | 64.0 |
| | BSMTU | House basement unfinished | 2 | * | 1920 | 1152.0 |
Sketch
Property Image
Land
| 1 | 4130-1187L | | 0.0000 | 0.00 | 0.00 | 0.00 | 5.00 | $18,375 | $0 |
| 2 | 4130-1285S | | 0.0000 | 0.00 | 0.00 | 0.00 | 1.00 | $84,000 | $0 |
Roll Value History
| 2026 | N/A | N/A | N/A | N/A | N/A |
| 2025 | $65,225 | $102,375 | $0 | $167,600 | $167,600 |
| 2024 | $65,225 | $102,375 | $0 | $167,600 | $167,600 |
| 2023 | $62,260 | $92,500 | $0 | $154,760 | $154,760 |
| 2022 | $69,104 | $68,000 | $0 | $137,104 | $0 |
Deed and Sales History
| 1 | 04/10/2024 | PRD | Personal Representatives Deed | BONNETTA A STARLIN | PAUL R HAUSMANN | | | | 142492 | |
Payout Agreement
| No payout information available.. |