Property
Account |
| Property ID: | 30990 | Abbreviated Legal Description: | IRONDALE #1 BLK 14 LOTS 31,32,33,34,35 |
| Parcel # / Geo ID: | 961801410 | Agent Code: | |
| Type: | Real | | |
| Tax Area: | 0211 - 1-49F1E1H2L1 | Land Use Code | 91 |
| Open Space: | N | DFL | N |
| Historic Property: | N | Remodel Property: | N |
| Multi-Family Redevelopment: | N | | |
| Township: | 30N | Section: | 35 |
| Range: | 1W |
Location |
| Address: | | Mapsco: | 036/028 |
| Neighborhood: | IRONDALE BLOCKS 1 - 47 | Map ID: | |
| Neighborhood CD: | 4130 |
Owner |
| Name: | PAUL R HAUSMANN | Owner ID: | 17724 |
| Mailing Address: | 835 JACKSON ST PORT TOWNSEND, WA 98368-4505 | % Ownership: | 100.0000000000% |
| | | Exemptions: | |
Pay Tax Due
Select the appropriate checkbox next to the year to be paid. Multiple years may be selected.
*Convenience Fee not included
Taxes and Assessment Details
Property Tax Information as of
03/10/2026
Click on "Statement Details" to expand or collapse a tax statement.
* Please enter a valid date ** Please enter a valid date *
Statement Details |
| 2026 | 20283 | STATE - STATE LEVY (SCHOOL) | $42.86 | $42.84 | $0.00 | $0.00 | $0.00 | $85.70 |
| 2026 | 20283 | COUNTY - COUNTY LEVIES (CE, DD, VET, MH) | $17.14 | $17.12 | $0.00 | $0.00 | $0.00 | $34.26 |
| 2026 | 20283 | CONSERVE - CONSERVATION FUTURES | $0.52 | $0.51 | $0.00 | $0.00 | $0.00 | $1.03 |
| 2026 | 20283 | COROADS - COUNTY ROADS (ROADS, DIV TO CE) | $13.82 | $13.82 | $0.00 | $0.00 | $0.00 | $27.64 |
| 2026 | 20283 | PORTPT - PORT DISTRICT | $6.93 | $6.91 | $0.00 | $0.00 | $0.00 | $13.84 |
| 2026 | 20283 | PUD1 - PUD #1 | $1.12 | $1.11 | $0.00 | $0.00 | $0.00 | $2.23 |
| 2026 | 20283 | LIB1 - LIBRARY DIST #1 | $5.35 | $5.34 | $0.00 | $0.00 | $0.00 | $10.69 |
| 2026 | 20283 | HD2 - HOSP DIST #2 | $1.00 | $1.00 | $0.00 | $0.00 | $0.00 | $2.00 |
| 2026 | 20283 | SD49 - SCHOOL DIST #49 | $23.60 | $23.58 | $0.00 | $0.00 | $0.00 | $47.18 |
| 2026 | 20283 | FD1 - FIRE DISTRICT #1 | $22.69 | $22.68 | $0.00 | $0.00 | $0.00 | $45.37 |
| 2026 | 20283 | EMS1 - FIRE DIST #1 EMS | $8.72 | $8.72 | $0.00 | $0.00 | $0.00 | $17.44 |
| 2026 | 20283 | FP - DNR Forest Fire Protection Assmt | $8.50 | $8.50 | $0.00 | $0.00 | $0.00 | $17.00 |
| 2026 | 20283 | FPLCA - DNR Landowner Contingency Assmt | $3.00 | $3.00 | $0.00 | $0.00 | $0.00 | $6.00 |
| 2026 | 20283 | JCCD - JC Conservation District | $2.53 | $2.53 | $0.00 | $0.00 | $0.00 | $5.06 |
| 2026 | 20283 | NWA - Noxious Weed Assessment | $2.98 | $2.97 | $0.00 | $0.00 | $0.00 | $5.95 |
| 2026 | 20283 | WAT - Clean Water District | $13.00 | $13.00 | $0.00 | $0.00 | $0.00 | $26.00 |
| 2026 | 20283 | FP ADMIN - FP ADMIN | $0.50 | $0.00 | $0.00 | $0.00 | $0.00 | $0.50 |
| 2026 | 20283 | TOTAL: | $174.26 | $173.63 | $0.00 | $0.00 | $0.00 | $347.89 |
|
| 2026 | 20283 | $174.26 | $173.63 | $0.00 | $0.00 | $0.00 | $347.89 |
Statement Details |
| 2025 | 20344 | STATE - STATE LEVY (SCHOOL) | $44.70 | $44.69 | $0.00 | $0.00 | $89.39 | $0.00 |
| 2025 | 20344 | COUNTY - COUNTY LEVIES (CE, DD, VET, MH) | $17.58 | $17.57 | $0.00 | $0.00 | $35.15 | $0.00 |
| 2025 | 20344 | CONSERVE - CONSERVATION FUTURES | $0.53 | $0.52 | $0.00 | $0.00 | $1.05 | $0.00 |
| 2025 | 20344 | COROADS - COUNTY ROADS (ROADS, DIV TO CE) | $14.08 | $14.08 | $0.00 | $0.00 | $28.16 | $0.00 |
| 2025 | 20344 | PORTPT - PORT DISTRICT | $7.17 | $7.17 | $0.00 | $0.00 | $14.34 | $0.00 |
| 2025 | 20344 | PUD1 - PUD #1 | $1.15 | $1.15 | $0.00 | $0.00 | $2.30 | $0.00 |
| 2025 | 20344 | LIB1 - LIBRARY DIST #1 | $5.45 | $5.45 | $0.00 | $0.00 | $10.90 | $0.00 |
| 2025 | 20344 | HD2 - HOSP DIST #2 | $1.03 | $1.02 | $0.00 | $0.00 | $2.05 | $0.00 |
| 2025 | 20344 | SD49 - SCHOOL DIST #49 | $23.95 | $23.95 | $0.00 | $0.00 | $47.90 | $0.00 |
| 2025 | 20344 | FD1 - FIRE DISTRICT #1 | $23.20 | $23.19 | $0.00 | $0.00 | $46.39 | $0.00 |
| 2025 | 20344 | EMS1 - FIRE DIST #1 EMS | $8.92 | $8.92 | $0.00 | $0.00 | $17.84 | $0.00 |
| 2025 | 20344 | FP - DNR Forest Fire Protection Assmt | $8.50 | $8.50 | $0.00 | $0.00 | $17.00 | $0.00 |
| 2025 | 20344 | FPLCA - DNR Landowner Contingency Assmt | $3.00 | $3.00 | $0.00 | $0.00 | $6.00 | $0.00 |
| 2025 | 20344 | JCCD - JC Conservation District | $2.53 | $2.53 | $0.00 | $0.00 | $5.06 | $0.00 |
| 2025 | 20344 | NWA - Noxious Weed Assessment | $2.15 | $2.15 | $0.00 | $0.00 | $4.30 | $0.00 |
| 2025 | 20344 | WAT - Clean Water District | $13.00 | $13.00 | $0.00 | $0.00 | $26.00 | $0.00 |
| 2025 | 20344 | FP ADMIN - FP ADMIN | $0.50 | $0.00 | $0.00 | $0.00 | $0.50 | $0.00 |
| 2025 | 20344 | TOTAL: | $177.44 | $176.89 | $0.00 | $0.00 | $354.33 | $0.00 |
|
| 2025 | 20344 | $177.44 | $176.89 | $0.00 | $0.00 | $354.33 | $0.00 |
Statement Details |
| 2024 | 20383 | STATE - STATE LEVY (SCHOOL) | $41.07 | $41.07 | $0.00 | $0.00 | $82.14 | $0.00 |
| 2024 | 20383 | COUNTY - COUNTY LEVIES (CE, DD, VET, MH) | $17.58 | $17.57 | $0.00 | $0.00 | $35.15 | $0.00 |
| 2024 | 20383 | CONSERVE - CONSERVATION FUTURES | $0.53 | $0.52 | $0.00 | $0.00 | $1.05 | $0.00 |
| 2024 | 20383 | COROADS - COUNTY ROADS (ROADS, DIV TO CE) | $14.15 | $14.13 | $0.00 | $0.00 | $28.28 | $0.00 |
| 2024 | 20383 | PORTPT - PORT DISTRICT | $7.26 | $7.26 | $0.00 | $0.00 | $14.52 | $0.00 |
| 2024 | 20383 | PUD1 - PUD #1 | $1.16 | $1.15 | $0.00 | $0.00 | $2.31 | $0.00 |
| 2024 | 20383 | LIB1 - LIBRARY DIST #1 | $5.47 | $5.47 | $0.00 | $0.00 | $10.94 | $0.00 |
| 2024 | 20383 | HD2 - HOSP DIST #2 | $1.03 | $1.02 | $0.00 | $0.00 | $2.05 | $0.00 |
| 2024 | 20383 | SD49 - SCHOOL DIST #49 | $18.34 | $18.34 | $0.00 | $0.00 | $36.68 | $0.00 |
| 2024 | 20383 | FD1 - FIRE DISTRICT #1 | $23.24 | $23.23 | $0.00 | $0.00 | $46.47 | $0.00 |
| 2024 | 20383 | EMS1 - FIRE DIST #1 EMS | $8.88 | $8.87 | $0.00 | $0.00 | $17.75 | $0.00 |
| 2024 | 20383 | FP - DNR Forest Fire Protection Assmt | $8.50 | $8.50 | $0.00 | $0.00 | $17.00 | $0.00 |
| 2024 | 20383 | FPLCA - DNR Landowner Contingency Assmt | $3.00 | $3.00 | $0.00 | $0.00 | $6.00 | $0.00 |
| 2024 | 20383 | JCCD - JC Conservation District | $2.53 | $2.53 | $0.00 | $0.00 | $5.06 | $0.00 |
| 2024 | 20383 | NWA - Noxious Weed Assessment | $2.15 | $2.15 | $0.00 | $0.00 | $4.30 | $0.00 |
| 2024 | 20383 | WAT - Clean Water District | $12.50 | $12.50 | $0.00 | $0.00 | $25.00 | $0.00 |
| 2024 | 20383 | FP ADMIN - FP ADMIN | $0.50 | $0.00 | $0.00 | $0.00 | $0.50 | $0.00 |
| 2024 | 20383 | TOTAL: | $167.89 | $167.31 | $0.00 | $0.00 | $335.20 | $0.00 |
|
| 2024 | 20383 | $167.89 | $167.31 | $0.00 | $0.00 | $335.20 | $0.00 |
Statement Details |
| 2023 | 20420 | STATE - STATE LEVY (SCHOOL) | $29.78 | $29.78 | $0.00 | $0.00 | $59.56 | $0.00 |
| 2023 | 20420 | COUNTY - COUNTY LEVIES (CE, DD, VET, MH) | $13.02 | $12.98 | $0.00 | $0.00 | $26.00 | $0.00 |
| 2023 | 20420 | CONSERVE - CONSERVATION FUTURES | $0.39 | $0.39 | $0.00 | $0.00 | $0.78 | $0.00 |
| 2023 | 20420 | COROADS - COUNTY ROADS (ROADS, DIV TO CE) | $10.52 | $10.50 | $0.00 | $0.00 | $21.02 | $0.00 |
| 2023 | 20420 | PORTPT - PORT DISTRICT | $5.48 | $5.47 | $0.00 | $0.00 | $10.95 | $0.00 |
| 2023 | 20420 | PUD1 - PUD #1 | $0.86 | $0.86 | $0.00 | $0.00 | $1.72 | $0.00 |
| 2023 | 20420 | LIB1 - LIBRARY DIST #1 | $4.07 | $4.07 | $0.00 | $0.00 | $8.14 | $0.00 |
| 2023 | 20420 | HD2 - HOSP DIST #2 | $0.76 | $0.76 | $0.00 | $0.00 | $1.52 | $0.00 |
| 2023 | 20420 | SD49 - SCHOOL DIST #49 | $13.92 | $13.92 | $0.00 | $0.00 | $27.84 | $0.00 |
| 2023 | 20420 | FD1 - FIRE DISTRICT #1 | $10.71 | $10.70 | $0.00 | $0.00 | $21.41 | $0.00 |
| 2023 | 20420 | EMS1 - FIRE DIST #1 EMS | $4.56 | $4.55 | $0.00 | $0.00 | $9.11 | $0.00 |
| 2023 | 20420 | FP - DNR Forest Fire Protection Assmt | $8.50 | $8.50 | $0.00 | $0.00 | $17.00 | $0.00 |
| 2023 | 20420 | FPLCA - DNR Landowner Contingency Assmt | $3.00 | $3.00 | $0.00 | $0.00 | $6.00 | $0.00 |
| 2023 | 20420 | JCCD - JC Conservation District | $2.53 | $2.53 | $0.00 | $0.00 | $5.06 | $0.00 |
| 2023 | 20420 | NWA - Noxious Weed Assessment | $2.15 | $2.15 | $0.00 | $0.00 | $4.30 | $0.00 |
| 2023 | 20420 | WAT - Clean Water District | $12.00 | $12.00 | $0.00 | $0.00 | $24.00 | $0.00 |
| 2023 | 20420 | FP ADMIN - FP ADMIN | $0.50 | $0.00 | $0.00 | $0.00 | $0.50 | $0.00 |
| 2023 | 20420 | TOTAL: | $122.75 | $122.16 | $0.00 | $0.00 | $244.91 | $0.00 |
|
| 2023 | 20420 | $122.75 | $122.16 | $0.00 | $0.00 | $244.91 | $0.00 |
Values
| (+) Improvement Homesite Value: | + | $0 | |
| (+) Improvement Non-Homesite Value: | + | $0 | |
| (+) Land Homesite Value: | + | $0 | |
| (+) Land Non-Homesite Value: | + | $37,275 | |
| (+) Curr Use (HS): | + | $0 | $0 |
| (+) Curr Use (NHS): | + | $0 | $0 |
| | | -------------------------- | |
| (=) Market Value: | = | $37,275 | |
| (–) Productivity Loss: | – | $0 | |
| | | -------------------------- | |
| (=) Subtotal: | = | $37,275 | |
| (+) Senior Appraised Value: | + | $0 | |
| (+) Non-Senior Appraised Value: | + | $37,275 | |
| | | -------------------------- | |
| (=) Total Appraised Value: | = | $37,275 | |
| (–) Senior Exemption Loss: | – | $0 | |
| (–) Exemption Loss: | – | $0 | |
| | | -------------------------- | |
| (=) Taxable Value: | = | $37,275 | |
Taxing Jurisdiction
| Owner: | PAUL R HAUSMANN | | |
| % Ownership: | 100.0000000000% | | |
| Total Value: | $37,275 | | |
| Tax Area: | 0211 - 1-49F1E1H2L1 |
| CE | COUNTY CURRENT EXPENSE | 0.9034619479 | $37,275 | $37,275 | $33.68 | | |
| CNTYDD | DEVELOPMENTAL DISABILITIES | 0.0052121823 | $37,275 | $37,275 | $0.19 | | |
| CNTYVET | VETERANS RELIEF | 0.0052777810 | $37,275 | $37,275 | $0.20 | | |
| MENTAL | MENTAL HEALTH | 0.0052121823 | $37,275 | $37,275 | $0.19 | | |
| ROADS | COUNTY ROADS | 0.7415066410 | $37,275 | $37,275 | $27.64 | | |
| ROADSCU | COUNTY ROADS TO CUR EXP | 0.0000000000 | $37,275 | $37,275 | $0.00 | | |
| HOSP2CASH | HOSP DIST #2 GENERAL | 0.0536075306 | $37,275 | $37,275 | $2.00 | | |
| SCH49CP | SCHOOL DIST #49 CAP PROJ | 0.6279093905 | $37,275 | $37,275 | $23.41 | | |
| SCH49MO | SCHOOL DIST #49 EP & O | 0.6376483602 | $37,275 | $37,275 | $23.77 | | |
| CONSERVE | CONSERVATION FUTURES | 0.0275621078 | $37,275 | $37,275 | $1.03 | | |
| EMS1 | FIRE DIST #1 EMS | 0.4679948282 | $37,275 | $37,275 | $17.44 | | |
| FD1 | FIRE DIST #1 GENERAL | 1.2171942929 | $37,275 | $37,275 | $45.37 | | |
| LIB1 | LIBRARY DIST #1 GENERAL | 0.2868827388 | $37,275 | $37,275 | $10.69 | | |
| PORTPT | PORT OF PT GENERAL | 0.1134941229 | $37,275 | $37,275 | $4.23 | | |
| PORTPTIDD | PORT OF PT IDD 2019 | 0.2577346692 | $37,275 | $37,275 | $9.61 | | |
| PUD1 | PUD #1 GENERAL | 0.0597888892 | $37,275 | $37,275 | $2.23 | | |
| STATE | STATE SCHOOL PART 1 | 1.4940692947 | $37,275 | $37,275 | $55.69 | | |
| STATE2 | STATE SCHOOL PART 2 | 0.8050170049 | $37,275 | $37,275 | $30.01 | | |
| | Total Tax Rate: | 7.7095739644 | | | | | |
| | | | | Taxes w/Current Exemptions: | $287.38 | | |
| | | | | Taxes w/o Exemptions: | $287.38 | | |
Improvement / Building
Sketch
| No sketches available for this property. |
Property Image
Land
| 1 | 4130-1187L | | 0.0000 | 0.00 | 0.00 | 0.00 | 3.00 | $11,025 | $0 |
| 2 | 4130-1285S | | 0.0000 | 0.00 | 0.00 | 0.00 | 1.00 | $26,250 | $0 |
Roll Value History
| 2026 | N/A | N/A | N/A | N/A | N/A |
| 2025 | $0 | $37,275 | $0 | $37,275 | $37,275 |
| 2024 | $0 | $37,275 | $0 | $37,275 | $37,275 |
| 2023 | $0 | $35,500 | $0 | $35,500 | $35,500 |
| 2022 | $0 | $25,300 | $0 | $25,300 | $25,300 |
Deed and Sales History
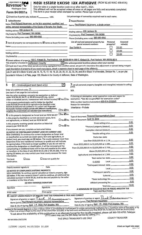
| 1 | 04/10/2024 | PRD | Personal Representatives Deed | BONNETTA A STARLIN | PAUL R HAUSMANN | | | | 142492 | |
Payout Agreement
| No payout information available.. |