Property
Account |
| Property ID: | 30996 | Abbreviated Legal Description: | IRONDALE #1 BLK 15 LOTS 1 & 2 |
| Parcel # / Geo ID: | 961801501 | Agent Code: | |
| Type: | Real | | |
| Tax Area: | 0211 - 1-49F1E1H2L1 | Land Use Code | 11 |
| Open Space: | N | DFL | N |
| Historic Property: | N | Remodel Property: | N |
| Multi-Family Redevelopment: | N | | |
| Township: | 30N | Section: | 35 |
| Range: | 1W |
Location |
| Address: | 238 5TH AVE PORT HADLOCK, WA 98339 | Mapsco: | 036/031 |
| Neighborhood: | IRONDALE BLOCKS 1 - 47 | Map ID: | |
| Neighborhood CD: | 4130 |
Owner |
| Name: | C JEANETTE WAHL | Owner ID: | 106570 |
| Mailing Address: | NICOLA HOPKINS PO BOX 1921 PORT TOWNSEND, WA 98368-0064 | % Ownership: | 100.0000000000% |
| | | Exemptions: | |
Pay Tax Due
Select the appropriate checkbox next to the year to be paid. Multiple years may be selected.
*Convenience Fee not included
Taxes and Assessment Details
Property Tax Information as of
03/10/2026
Click on "Statement Details" to expand or collapse a tax statement.
* Please enter a valid date ** Please enter a valid date *
Statement Details |
| 2026 | 20289 | STATE - STATE LEVY (SCHOOL) | $72.74 | $72.74 | $0.00 | $0.00 | $0.00 | $145.48 |
| 2026 | 20289 | COUNTY - COUNTY LEVIES (CE, DD, VET, MH) | $29.10 | $29.06 | $0.00 | $0.00 | $0.00 | $58.16 |
| 2026 | 20289 | CONSERVE - CONSERVATION FUTURES | $0.87 | $0.87 | $0.00 | $0.00 | $0.00 | $1.74 |
| 2026 | 20289 | COROADS - COUNTY ROADS (ROADS, DIV TO CE) | $23.46 | $23.46 | $0.00 | $0.00 | $0.00 | $46.92 |
| 2026 | 20289 | PORTPT - PORT DISTRICT | $11.75 | $11.74 | $0.00 | $0.00 | $0.00 | $23.49 |
| 2026 | 20289 | PUD1 - PUD #1 | $1.89 | $1.89 | $0.00 | $0.00 | $0.00 | $3.78 |
| 2026 | 20289 | LIB1 - LIBRARY DIST #1 | $9.08 | $9.07 | $0.00 | $0.00 | $0.00 | $18.15 |
| 2026 | 20289 | HD2 - HOSP DIST #2 | $1.70 | $1.69 | $0.00 | $0.00 | $0.00 | $3.39 |
| 2026 | 20289 | SD49 - SCHOOL DIST #49 | $40.05 | $40.03 | $0.00 | $0.00 | $0.00 | $80.08 |
| 2026 | 20289 | FD1 - FIRE DISTRICT #1 | $38.51 | $38.51 | $0.00 | $0.00 | $0.00 | $77.02 |
| 2026 | 20289 | EMS1 - FIRE DIST #1 EMS | $14.81 | $14.80 | $0.00 | $0.00 | $0.00 | $29.61 |
| 2026 | 20289 | JCCD - JC Conservation District | $2.55 | $2.55 | $0.00 | $0.00 | $0.00 | $5.10 |
| 2026 | 20289 | NWA - Noxious Weed Assessment | $2.98 | $2.97 | $0.00 | $0.00 | $0.00 | $5.95 |
| 2026 | 20289 | WAT - Clean Water District | $13.00 | $13.00 | $0.00 | $0.00 | $0.00 | $26.00 |
| 2026 | 20289 | TOTAL: | $262.49 | $262.38 | $0.00 | $0.00 | $0.00 | $524.87 |
|
| 2026 | 20289 | $262.49 | $262.38 | $0.00 | $0.00 | $0.00 | $524.87 |
Statement Details |
| 2025 | 20350 | STATE - STATE LEVY (SCHOOL) | $75.87 | $75.86 | $0.00 | $0.00 | $151.73 | $0.00 |
| 2025 | 20350 | COUNTY - COUNTY LEVIES (CE, DD, VET, MH) | $29.84 | $29.83 | $0.00 | $0.00 | $59.67 | $0.00 |
| 2025 | 20350 | CONSERVE - CONSERVATION FUTURES | $0.90 | $0.89 | $0.00 | $0.00 | $1.79 | $0.00 |
| 2025 | 20350 | COROADS - COUNTY ROADS (ROADS, DIV TO CE) | $23.90 | $23.90 | $0.00 | $0.00 | $47.80 | $0.00 |
| 2025 | 20350 | PORTPT - PORT DISTRICT | $12.18 | $12.17 | $0.00 | $0.00 | $24.35 | $0.00 |
| 2025 | 20350 | PUD1 - PUD #1 | $1.95 | $1.95 | $0.00 | $0.00 | $3.90 | $0.00 |
| 2025 | 20350 | LIB1 - LIBRARY DIST #1 | $9.25 | $9.25 | $0.00 | $0.00 | $18.50 | $0.00 |
| 2025 | 20350 | HD2 - HOSP DIST #2 | $1.74 | $1.74 | $0.00 | $0.00 | $3.48 | $0.00 |
| 2025 | 20350 | SD49 - SCHOOL DIST #49 | $40.66 | $40.66 | $0.00 | $0.00 | $81.32 | $0.00 |
| 2025 | 20350 | FD1 - FIRE DISTRICT #1 | $39.37 | $39.37 | $0.00 | $0.00 | $78.74 | $0.00 |
| 2025 | 20350 | EMS1 - FIRE DIST #1 EMS | $15.15 | $15.14 | $0.00 | $0.00 | $30.29 | $0.00 |
| 2025 | 20350 | JCCD - JC Conservation District | $2.55 | $2.55 | $0.00 | $0.00 | $5.10 | $0.00 |
| 2025 | 20350 | NWA - Noxious Weed Assessment | $2.15 | $2.15 | $0.00 | $0.00 | $4.30 | $0.00 |
| 2025 | 20350 | WAT - Clean Water District | $13.00 | $13.00 | $0.00 | $0.00 | $26.00 | $0.00 |
| 2025 | 20350 | TOTAL: | $268.51 | $268.46 | $0.00 | $0.00 | $536.97 | $0.00 |
|
| 2025 | 20350 | $268.51 | $268.46 | $0.00 | $0.00 | $536.97 | $0.00 |
Statement Details |
| 2024 | 20389 | STATE - STATE LEVY (SCHOOL) | $40.49 | $40.48 | $0.00 | $0.00 | $80.97 | $0.00 |
| 2024 | 20389 | COUNTY - COUNTY LEVIES (CE, DD, VET, MH) | $17.33 | $17.33 | $0.00 | $0.00 | $34.66 | $0.00 |
| 2024 | 20389 | CONSERVE - CONSERVATION FUTURES | $0.52 | $0.52 | $0.00 | $0.00 | $1.04 | $0.00 |
| 2024 | 20389 | COROADS - COUNTY ROADS (ROADS, DIV TO CE) | $13.94 | $13.94 | $0.00 | $0.00 | $27.88 | $0.00 |
| 2024 | 20389 | PORTPT - PORT DISTRICT | $7.16 | $7.15 | $0.00 | $0.00 | $14.31 | $0.00 |
| 2024 | 20389 | PUD1 - PUD #1 | $1.14 | $1.14 | $0.00 | $0.00 | $2.28 | $0.00 |
| 2024 | 20389 | LIB1 - LIBRARY DIST #1 | $5.40 | $5.39 | $0.00 | $0.00 | $10.79 | $0.00 |
| 2024 | 20389 | HD2 - HOSP DIST #2 | $1.01 | $1.01 | $0.00 | $0.00 | $2.02 | $0.00 |
| 2024 | 20389 | SD49 - SCHOOL DIST #49 | $18.08 | $18.08 | $0.00 | $0.00 | $36.16 | $0.00 |
| 2024 | 20389 | FD1 - FIRE DISTRICT #1 | $22.91 | $22.91 | $0.00 | $0.00 | $45.82 | $0.00 |
| 2024 | 20389 | EMS1 - FIRE DIST #1 EMS | $8.75 | $8.75 | $0.00 | $0.00 | $17.50 | $0.00 |
| 2024 | 20389 | JCCD - JC Conservation District | $2.55 | $2.55 | $0.00 | $0.00 | $5.10 | $0.00 |
| 2024 | 20389 | NWA - Noxious Weed Assessment | $2.15 | $2.15 | $0.00 | $0.00 | $4.30 | $0.00 |
| 2024 | 20389 | WAT - Clean Water District | $12.50 | $12.50 | $0.00 | $0.00 | $25.00 | $0.00 |
| 2024 | 20389 | TOTAL: | $153.93 | $153.90 | $0.00 | $0.00 | $307.83 | $0.00 |
|
| 2024 | 20389 | $153.93 | $153.90 | $0.00 | $0.00 | $307.83 | $0.00 |
Statement Details |
| 2023 | 20426 | STATE - STATE LEVY (SCHOOL) | $20.60 | $20.60 | $0.00 | $0.00 | $41.20 | $0.00 |
| 2023 | 20426 | COUNTY - COUNTY LEVIES (CE, DD, VET, MH) | $8.99 | $8.98 | $0.00 | $0.00 | $17.97 | $0.00 |
| 2023 | 20426 | CONSERVE - CONSERVATION FUTURES | $0.27 | $0.27 | $0.00 | $0.00 | $0.54 | $0.00 |
| 2023 | 20426 | COROADS - COUNTY ROADS (ROADS, DIV TO CE) | $7.27 | $7.27 | $0.00 | $0.00 | $14.54 | $0.00 |
| 2023 | 20426 | PORTPT - PORT DISTRICT | $3.79 | $3.78 | $0.00 | $0.00 | $7.57 | $0.00 |
| 2023 | 20426 | PUD1 - PUD #1 | $0.60 | $0.59 | $0.00 | $0.00 | $1.19 | $0.00 |
| 2023 | 20426 | LIB1 - LIBRARY DIST #1 | $2.82 | $2.81 | $0.00 | $0.00 | $5.63 | $0.00 |
| 2023 | 20426 | HD2 - HOSP DIST #2 | $0.53 | $0.52 | $0.00 | $0.00 | $1.05 | $0.00 |
| 2023 | 20426 | SD49 - SCHOOL DIST #49 | $9.64 | $9.62 | $0.00 | $0.00 | $19.26 | $0.00 |
| 2023 | 20426 | FD1 - FIRE DISTRICT #1 | $7.41 | $7.40 | $0.00 | $0.00 | $14.81 | $0.00 |
| 2023 | 20426 | EMS1 - FIRE DIST #1 EMS | $3.15 | $3.15 | $0.00 | $0.00 | $6.30 | $0.00 |
| 2023 | 20426 | JCCD - JC Conservation District | $2.53 | $2.53 | $0.00 | $0.00 | $5.06 | $0.00 |
| 2023 | 20426 | NWA - Noxious Weed Assessment | $2.15 | $2.15 | $0.00 | $0.00 | $4.30 | $0.00 |
| 2023 | 20426 | WAT - Clean Water District | $12.00 | $12.00 | $0.00 | $0.00 | $24.00 | $0.00 |
| 2023 | 20426 | TOTAL: | $81.75 | $81.67 | $0.00 | $0.00 | $163.42 | $0.00 |
|
| 2023 | 20426 | $81.75 | $81.67 | $0.00 | $0.00 | $163.42 | $0.00 |
Values
| (+) Improvement Homesite Value: | + | $0 | |
| (+) Improvement Non-Homesite Value: | + | $23,375 | |
| (+) Land Homesite Value: | + | $0 | |
| (+) Land Non-Homesite Value: | + | $39,900 | |
| (+) Curr Use (HS): | + | $0 | $0 |
| (+) Curr Use (NHS): | + | $0 | $0 |
| | | -------------------------- | |
| (=) Market Value: | = | $63,275 | |
| (–) Productivity Loss: | – | $0 | |
| | | -------------------------- | |
| (=) Subtotal: | = | $63,275 | |
| (+) Senior Appraised Value: | + | $0 | |
| (+) Non-Senior Appraised Value: | + | $63,275 | |
| | | -------------------------- | |
| (=) Total Appraised Value: | = | $63,275 | |
| (–) Senior Exemption Loss: | – | $0 | |
| (–) Exemption Loss: | – | $0 | |
| | | -------------------------- | |
| (=) Taxable Value: | = | $63,275 | |
Taxing Jurisdiction
| Owner: | C JEANETTE WAHL | | |
| % Ownership: | 100.0000000000% | | |
| Total Value: | $63,275 | | |
| Tax Area: | 0211 - 1-49F1E1H2L1 |
| CE | COUNTY CURRENT EXPENSE | 0.9034619479 | $63,275 | $63,275 | $57.17 | | |
| CNTYDD | DEVELOPMENTAL DISABILITIES | 0.0052121823 | $63,275 | $63,275 | $0.33 | | |
| CNTYVET | VETERANS RELIEF | 0.0052777810 | $63,275 | $63,275 | $0.33 | | |
| MENTAL | MENTAL HEALTH | 0.0052121823 | $63,275 | $63,275 | $0.33 | | |
| ROADS | COUNTY ROADS | 0.7415066410 | $63,275 | $63,275 | $46.92 | | |
| ROADSCU | COUNTY ROADS TO CUR EXP | 0.0000000000 | $63,275 | $63,275 | $0.00 | | |
| HOSP2CASH | HOSP DIST #2 GENERAL | 0.0536075306 | $63,275 | $63,275 | $3.39 | | |
| SCH49CP | SCHOOL DIST #49 CAP PROJ | 0.6279093905 | $63,275 | $63,275 | $39.73 | | |
| SCH49MO | SCHOOL DIST #49 EP & O | 0.6376483602 | $63,275 | $63,275 | $40.35 | | |
| CONSERVE | CONSERVATION FUTURES | 0.0275621078 | $63,275 | $63,275 | $1.74 | | |
| EMS1 | FIRE DIST #1 EMS | 0.4679948282 | $63,275 | $63,275 | $29.61 | | |
| FD1 | FIRE DIST #1 GENERAL | 1.2171942929 | $63,275 | $63,275 | $77.02 | | |
| LIB1 | LIBRARY DIST #1 GENERAL | 0.2868827388 | $63,275 | $63,275 | $18.15 | | |
| PORTPT | PORT OF PT GENERAL | 0.1134941229 | $63,275 | $63,275 | $7.18 | | |
| PORTPTIDD | PORT OF PT IDD 2019 | 0.2577346692 | $63,275 | $63,275 | $16.31 | | |
| PUD1 | PUD #1 GENERAL | 0.0597888892 | $63,275 | $63,275 | $3.78 | | |
| STATE | STATE SCHOOL PART 1 | 1.4940692947 | $63,275 | $63,275 | $94.54 | | |
| STATE2 | STATE SCHOOL PART 2 | 0.8050170049 | $63,275 | $63,275 | $50.94 | | |
| | Total Tax Rate: | 7.7095739644 | | | | | |
| | | | | Taxes w/Current Exemptions: | $487.82 | | |
| | | | | Taxes w/o Exemptions: | $487.82 | | |
Improvement / Building
| Improvement #1: | Manufactured Home | State Code: | 11M | 0.0 sqft | Value: | $23,375 |
| | Type | Description | Class CD | Sub Class CD | Year Built | Area |
| | MA | Main Area | 4 | MPARK | 2024 | 0.0 |
| | SHED | Shed (Table Not Dep) | 3 | * | 2024 | 0.0 |
| | MRPO | MH Roof Porch | 3 | * | 2024 | 0.0 |
Sketch
| No sketches available for this property. |
Property Image
Land
| 1 | 4130-1285S | | 0.0000 | 0.00 | 0.00 | 0.00 | 1.00 | $39,900 | $0 |
Roll Value History
| 2026 | N/A | N/A | N/A | N/A | N/A |
| 2025 | $23,375 | $39,900 | $0 | $63,275 | $63,275 |
| 2024 | $23,375 | $39,900 | $0 | $63,275 | $63,275 |
| 2023 | $0 | $35,000 | $0 | $35,000 | $35,000 |
| 2022 | $0 | $17,500 | $0 | $17,500 | $17,500 |
Deed and Sales History
| 1 | 03/08/2022 | SWD | Statutory Warranty Deed | CLARENCE J ROSENBALM | C JEANETTE WAHL | | | $16,500.00 | 138695 | |
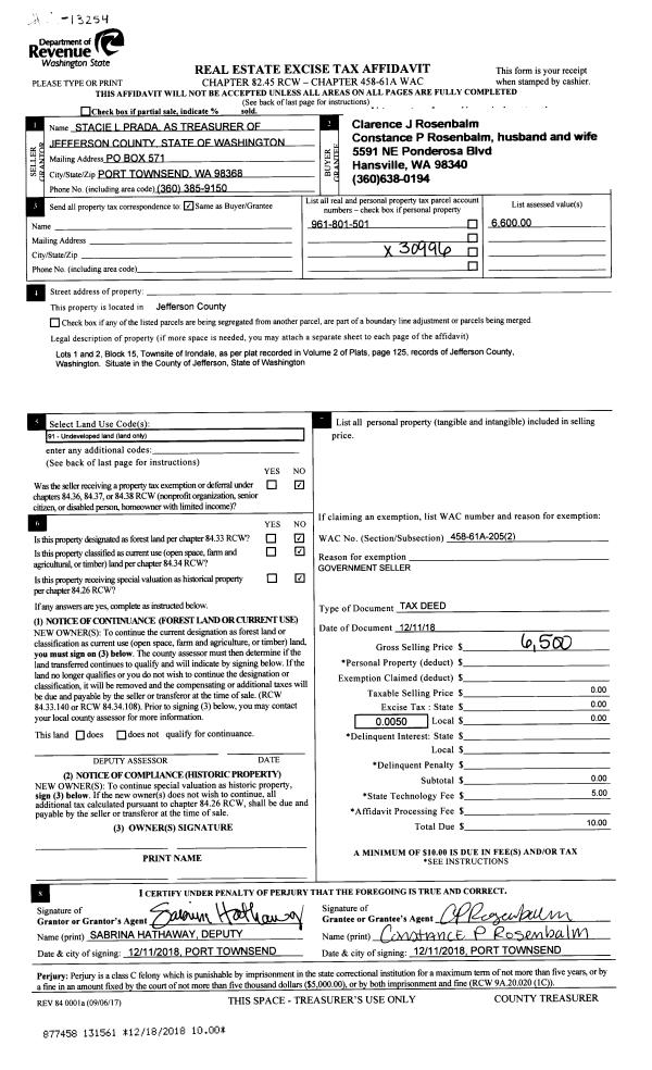
| 2 | 12/11/2018 | TXD | Tax Deed | JEFFERSON COUNTY | CLARENCE J ROSENBALM | | | $6,500.00 | 131561 | |
| 3 | 10/18/2000 | QCD | Quit Claim Deed | MACK, ANNA LOUISE | EVANS, LORRAINE D | 0 | 0 | $0.00 | 90894 | 0 |
| 4 | 08/24/2000 | WD | Warranty Deed | HEDNER, INGRID M/EST | MACK, ANNA LOUISE | 0 | 0 | $0.00 | 90464 | 0 |
Payout Agreement
| No payout information available.. |