Property
Account |
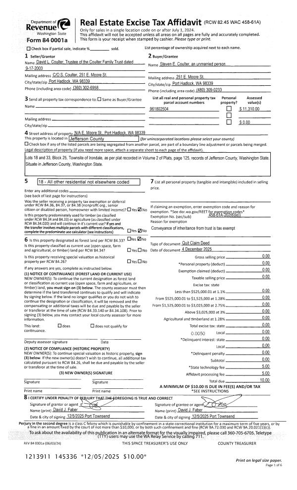
| Property ID: | 31110 | Abbreviated Legal Description: | IRONDALE #1 BLK 25 LOTS 18 & 33 |
| Parcel # / Geo ID: | 961802504 | Agent Code: | |
| Type: | Real | | |
| Tax Area: | 0211 - 1-49F1E1H2L1 | Land Use Code | 18 |
| Open Space: | N | DFL | N |
| Historic Property: | N | Remodel Property: | N |
| Multi-Family Redevelopment: | N | | |
| Township: | 30N | Section: | 35 |
| Range: | 1W |
Location |
| Address: | | Mapsco: | 038/046 |
| Neighborhood: | IRONDALE BLOCKS 1 - 47 | Map ID: | |
| Neighborhood CD: | 4130 |
Owner |
| Name: | STEVEN E COULTER | Owner ID: | 41485 |
| Mailing Address: | 251 E MOORE ST PORT HADLOCK, WA 98339-9621 | % Ownership: | 100.0000000000% |
| | | Exemptions: | |
Pay Tax Due
Select the appropriate checkbox next to the year to be paid. Multiple years may be selected.
*Convenience Fee not included
Taxes and Assessment Details
Property Tax Information as of
03/13/2026
Click on "Statement Details" to expand or collapse a tax statement.
* Please enter a valid date ** Please enter a valid date *
Statement Details |
| 2026 | 20399 | STATE - STATE LEVY (SCHOOL) | $13.00 | $13.00 | $0.00 | $0.00 | $0.00 | $26.00 |
| 2026 | 20399 | COUNTY - COUNTY LEVIES (CE, DD, VET, MH) | $5.20 | $5.20 | $0.00 | $0.00 | $0.00 | $10.40 |
| 2026 | 20399 | CONSERVE - CONSERVATION FUTURES | $0.16 | $0.15 | $0.00 | $0.00 | $0.00 | $0.31 |
| 2026 | 20399 | COROADS - COUNTY ROADS (ROADS, DIV TO CE) | $4.20 | $4.19 | $0.00 | $0.00 | $0.00 | $8.39 |
| 2026 | 20399 | PORTPT - PORT DISTRICT | $2.10 | $2.09 | $0.00 | $0.00 | $0.00 | $4.19 |
| 2026 | 20399 | PUD1 - PUD #1 | $0.34 | $0.34 | $0.00 | $0.00 | $0.00 | $0.68 |
| 2026 | 20399 | LIB1 - LIBRARY DIST #1 | $1.62 | $1.62 | $0.00 | $0.00 | $0.00 | $3.24 |
| 2026 | 20399 | HD2 - HOSP DIST #2 | $0.31 | $0.30 | $0.00 | $0.00 | $0.00 | $0.61 |
| 2026 | 20399 | SD49 - SCHOOL DIST #49 | $7.16 | $7.15 | $0.00 | $0.00 | $0.00 | $14.31 |
| 2026 | 20399 | FD1 - FIRE DISTRICT #1 | $6.89 | $6.88 | $0.00 | $0.00 | $0.00 | $13.77 |
| 2026 | 20399 | EMS1 - FIRE DIST #1 EMS | $2.65 | $2.64 | $0.00 | $0.00 | $0.00 | $5.29 |
| 2026 | 20399 | JCCD - JC Conservation District | $2.53 | $2.53 | $0.00 | $0.00 | $0.00 | $5.06 |
| 2026 | 20399 | NWA - Noxious Weed Assessment | $2.98 | $2.97 | $0.00 | $0.00 | $0.00 | $5.95 |
| 2026 | 20399 | WAT - Clean Water District | $13.00 | $13.00 | $0.00 | $0.00 | $0.00 | $26.00 |
| 2026 | 20399 | TOTAL: | $62.14 | $62.06 | $0.00 | $0.00 | $0.00 | $124.20 |
|
| 2026 | 20399 | $62.14 | $62.06 | $0.00 | $0.00 | $0.00 | $124.20 |
Statement Details |
| 2025 | 20460 | STATE - STATE LEVY (SCHOOL) | $13.57 | $13.55 | $0.00 | $0.00 | $27.12 | $0.00 |
| 2025 | 20460 | COUNTY - COUNTY LEVIES (CE, DD, VET, MH) | $5.33 | $5.33 | $0.00 | $0.00 | $10.66 | $0.00 |
| 2025 | 20460 | CONSERVE - CONSERVATION FUTURES | $0.16 | $0.16 | $0.00 | $0.00 | $0.32 | $0.00 |
| 2025 | 20460 | COROADS - COUNTY ROADS (ROADS, DIV TO CE) | $4.27 | $4.27 | $0.00 | $0.00 | $8.54 | $0.00 |
| 2025 | 20460 | PORTPT - PORT DISTRICT | $2.18 | $2.18 | $0.00 | $0.00 | $4.36 | $0.00 |
| 2025 | 20460 | PUD1 - PUD #1 | $0.35 | $0.35 | $0.00 | $0.00 | $0.70 | $0.00 |
| 2025 | 20460 | LIB1 - LIBRARY DIST #1 | $1.66 | $1.65 | $0.00 | $0.00 | $3.31 | $0.00 |
| 2025 | 20460 | HD2 - HOSP DIST #2 | $0.31 | $0.31 | $0.00 | $0.00 | $0.62 | $0.00 |
| 2025 | 20460 | SD49 - SCHOOL DIST #49 | $7.27 | $7.26 | $0.00 | $0.00 | $14.53 | $0.00 |
| 2025 | 20460 | FD1 - FIRE DISTRICT #1 | $7.04 | $7.03 | $0.00 | $0.00 | $14.07 | $0.00 |
| 2025 | 20460 | EMS1 - FIRE DIST #1 EMS | $2.71 | $2.70 | $0.00 | $0.00 | $5.41 | $0.00 |
| 2025 | 20460 | JCCD - JC Conservation District | $2.55 | $2.55 | $0.00 | $0.00 | $5.10 | $0.00 |
| 2025 | 20460 | NWA - Noxious Weed Assessment | $2.15 | $2.15 | $0.00 | $0.00 | $4.30 | $0.00 |
| 2025 | 20460 | WAT - Clean Water District | $13.00 | $13.00 | $0.00 | $0.00 | $26.00 | $0.00 |
| 2025 | 20460 | TOTAL: | $62.55 | $62.49 | $0.00 | $0.00 | $125.04 | $0.00 |
|
| 2025 | 20460 | $62.55 | $62.49 | $0.00 | $0.00 | $125.04 | $0.00 |
Statement Details |
| 2024 | 20502 | STATE - STATE LEVY (SCHOOL) | $12.48 | $12.46 | $0.00 | $0.00 | $24.94 | $0.00 |
| 2024 | 20502 | COUNTY - COUNTY LEVIES (CE, DD, VET, MH) | $5.34 | $5.33 | $0.00 | $0.00 | $10.67 | $0.00 |
| 2024 | 20502 | CONSERVE - CONSERVATION FUTURES | $0.16 | $0.16 | $0.00 | $0.00 | $0.32 | $0.00 |
| 2024 | 20502 | COROADS - COUNTY ROADS (ROADS, DIV TO CE) | $4.30 | $4.29 | $0.00 | $0.00 | $8.59 | $0.00 |
| 2024 | 20502 | PORTPT - PORT DISTRICT | $2.21 | $2.20 | $0.00 | $0.00 | $4.41 | $0.00 |
| 2024 | 20502 | PUD1 - PUD #1 | $0.35 | $0.35 | $0.00 | $0.00 | $0.70 | $0.00 |
| 2024 | 20502 | LIB1 - LIBRARY DIST #1 | $1.66 | $1.66 | $0.00 | $0.00 | $3.32 | $0.00 |
| 2024 | 20502 | HD2 - HOSP DIST #2 | $0.31 | $0.31 | $0.00 | $0.00 | $0.62 | $0.00 |
| 2024 | 20502 | SD49 - SCHOOL DIST #49 | $5.57 | $5.56 | $0.00 | $0.00 | $11.13 | $0.00 |
| 2024 | 20502 | FD1 - FIRE DISTRICT #1 | $7.06 | $7.05 | $0.00 | $0.00 | $14.11 | $0.00 |
| 2024 | 20502 | EMS1 - FIRE DIST #1 EMS | $2.70 | $2.69 | $0.00 | $0.00 | $5.39 | $0.00 |
| 2024 | 20502 | JCCD - JC Conservation District | $2.55 | $2.55 | $0.00 | $0.00 | $5.10 | $0.00 |
| 2024 | 20502 | NWA - Noxious Weed Assessment | $2.15 | $2.15 | $0.00 | $0.00 | $4.30 | $0.00 |
| 2024 | 20502 | WAT - Clean Water District | $12.50 | $12.50 | $0.00 | $0.00 | $25.00 | $0.00 |
| 2024 | 20502 | TOTAL: | $59.34 | $59.26 | $0.00 | $0.00 | $118.60 | $0.00 |
|
| 2024 | 20502 | $59.34 | $59.26 | $0.00 | $0.00 | $118.60 | $0.00 |
Statement Details |
| 2023 | 20539 | STATE - STATE LEVY (SCHOOL) | $10.36 | $10.36 | $0.00 | $0.00 | $20.72 | $0.00 |
| 2023 | 20539 | COUNTY - COUNTY LEVIES (CE, DD, VET, MH) | $4.54 | $4.50 | $0.00 | $0.00 | $9.04 | $0.00 |
| 2023 | 20539 | CONSERVE - CONSERVATION FUTURES | $0.14 | $0.13 | $0.00 | $0.00 | $0.27 | $0.00 |
| 2023 | 20539 | COROADS - COUNTY ROADS (ROADS, DIV TO CE) | $3.66 | $3.66 | $0.00 | $0.00 | $7.32 | $0.00 |
| 2023 | 20539 | PORTPT - PORT DISTRICT | $1.91 | $1.90 | $0.00 | $0.00 | $3.81 | $0.00 |
| 2023 | 20539 | PUD1 - PUD #1 | $0.30 | $0.30 | $0.00 | $0.00 | $0.60 | $0.00 |
| 2023 | 20539 | LIB1 - LIBRARY DIST #1 | $1.42 | $1.41 | $0.00 | $0.00 | $2.83 | $0.00 |
| 2023 | 20539 | HD2 - HOSP DIST #2 | $0.27 | $0.26 | $0.00 | $0.00 | $0.53 | $0.00 |
| 2023 | 20539 | SD49 - SCHOOL DIST #49 | $4.85 | $4.84 | $0.00 | $0.00 | $9.69 | $0.00 |
| 2023 | 20539 | FD1 - FIRE DISTRICT #1 | $3.73 | $3.72 | $0.00 | $0.00 | $7.45 | $0.00 |
| 2023 | 20539 | EMS1 - FIRE DIST #1 EMS | $1.59 | $1.58 | $0.00 | $0.00 | $3.17 | $0.00 |
| 2023 | 20539 | JCCD - JC Conservation District | $2.55 | $2.55 | $0.00 | $0.00 | $5.10 | $0.00 |
| 2023 | 20539 | NWA - Noxious Weed Assessment | $2.15 | $2.15 | $0.00 | $0.00 | $4.30 | $0.00 |
| 2023 | 20539 | WAT - Clean Water District | $12.00 | $12.00 | $0.00 | $0.00 | $24.00 | $0.00 |
| 2023 | 20539 | TOTAL: | $49.47 | $49.36 | $0.00 | $0.00 | $98.83 | $0.00 |
|
| 2023 | 20539 | $49.47 | $49.36 | $0.00 | $0.00 | $98.83 | $0.00 |
Values
| (+) Improvement Homesite Value: | + | $0 | |
| (+) Improvement Non-Homesite Value: | + | $3,960 | |
| (+) Land Homesite Value: | + | $0 | |
| (+) Land Non-Homesite Value: | + | $7,350 | |
| (+) Curr Use (HS): | + | $0 | $0 |
| (+) Curr Use (NHS): | + | $0 | $0 |
| | | -------------------------- | |
| (=) Market Value: | = | $11,310 | |
| (–) Productivity Loss: | – | $0 | |
| | | -------------------------- | |
| (=) Subtotal: | = | $11,310 | |
| (+) Senior Appraised Value: | + | $0 | |
| (+) Non-Senior Appraised Value: | + | $11,310 | |
| | | -------------------------- | |
| (=) Total Appraised Value: | = | $11,310 | |
| (–) Senior Exemption Loss: | – | $0 | |
| (–) Exemption Loss: | – | $0 | |
| | | -------------------------- | |
| (=) Taxable Value: | = | $11,310 | |
Taxing Jurisdiction
| Owner: | STEVEN E COULTER | | |
| % Ownership: | 100.0000000000% | | |
| Total Value: | $11,310 | | |
| Tax Area: | 0211 - 1-49F1E1H2L1 |
| CE | COUNTY CURRENT EXPENSE | 0.9034619479 | $11,310 | $11,310 | $10.22 | | |
| CNTYDD | DEVELOPMENTAL DISABILITIES | 0.0052121823 | $11,310 | $11,310 | $0.06 | | |
| CNTYVET | VETERANS RELIEF | 0.0052777810 | $11,310 | $11,310 | $0.06 | | |
| MENTAL | MENTAL HEALTH | 0.0052121823 | $11,310 | $11,310 | $0.06 | | |
| ROADS | COUNTY ROADS | 0.7415066410 | $11,310 | $11,310 | $8.39 | | |
| ROADSCU | COUNTY ROADS TO CUR EXP | 0.0000000000 | $11,310 | $11,310 | $0.00 | | |
| HOSP2CASH | HOSP DIST #2 GENERAL | 0.0536075306 | $11,310 | $11,310 | $0.61 | | |
| SCH49CP | SCHOOL DIST #49 CAP PROJ | 0.6279093905 | $11,310 | $11,310 | $7.10 | | |
| SCH49MO | SCHOOL DIST #49 EP & O | 0.6376483602 | $11,310 | $11,310 | $7.21 | | |
| CONSERVE | CONSERVATION FUTURES | 0.0275621078 | $11,310 | $11,310 | $0.31 | | |
| EMS1 | FIRE DIST #1 EMS | 0.4679948282 | $11,310 | $11,310 | $5.29 | | |
| FD1 | FIRE DIST #1 GENERAL | 1.2171942929 | $11,310 | $11,310 | $13.77 | | |
| LIB1 | LIBRARY DIST #1 GENERAL | 0.2868827388 | $11,310 | $11,310 | $3.24 | | |
| PORTPT | PORT OF PT GENERAL | 0.1134941229 | $11,310 | $11,310 | $1.28 | | |
| PORTPTIDD | PORT OF PT IDD 2019 | 0.2577346692 | $11,310 | $11,310 | $2.91 | | |
| PUD1 | PUD #1 GENERAL | 0.0597888892 | $11,310 | $11,310 | $0.68 | | |
| STATE | STATE SCHOOL PART 1 | 1.4940692947 | $11,310 | $11,310 | $16.90 | | |
| STATE2 | STATE SCHOOL PART 2 | 0.8050170049 | $11,310 | $11,310 | $9.10 | | |
| | Total Tax Rate: | 7.7095739644 | | | | | |
| | | | | Taxes w/Current Exemptions: | $87.19 | | |
| | | | | Taxes w/o Exemptions: | $87.19 | | |
Improvement / Building
| Improvement #1: | Residential Bldg | State Code: | 19 | 0.0 sqft | Value: | $3,960 |
Sketch
| No sketches available for this property. |
Property Image
Land
| 1 | 4130-1187L | | 0.0000 | 0.00 | 0.00 | 0.00 | 2.00 | $7,350 | $0 |
Roll Value History
| 2026 | N/A | N/A | N/A | N/A | N/A |
| 2025 | $3,960 | $7,350 | $0 | $11,310 | $11,310 |
| 2024 | $3,960 | $7,350 | $0 | $11,310 | $11,310 |
| 2023 | $3,780 | $7,000 | $0 | $10,780 | $10,780 |
| 2022 | $3,600 | $5,200 | $0 | $8,800 | $8,800 |
Deed and Sales History
| 1 | 12/04/2025 | QCD | Quit Claim Deed | LAWRENCE COULTER TRUSTEE | STEVEN E COULTER | | | | 145336 | |
| 2 | 09/17/2003 | QCD | Quit Claim Deed | COULTER, LAWRENCE BENJAMI | COULTER, LAWRENCE/JACQUELINE | 0 | 0 | $0.00 | 98826 | 0 |
Payout Agreement
| No payout information available.. |