Property
Account |
| Property ID: | 31118 | Abbreviated Legal Description: | IRONDALE #1 BLK 26 LOTS 7 TO 14 |
| Parcel # / Geo ID: | 961802603 | Agent Code: | |
| Type: | Real | | |
| Tax Area: | 0211 - 1-49F1E1H2L1 | Land Use Code | 11 |
| Open Space: | N | DFL | N |
| Historic Property: | N | Remodel Property: | N |
| Multi-Family Redevelopment: | N | | |
| Township: | 30N | Section: | 35 |
| Range: | 1W |
Location |
| Address: | 260 E HORTON ST PORT HADLOCK, WA 98339 | Mapsco: | 039/003 |
| Neighborhood: | IRONDALE BLOCKS 1 - 47 | Map ID: | |
| Neighborhood CD: | 4130 |
Owner |
| Name: | JERRY K ROWE | Owner ID: | 111418 |
| Mailing Address: | WILLIAM & GORDON ROWE TONY CARROLL & ANITA MILLER 291 ARDEN ST PORT HADLOCK, WA 98339-9609 | % Ownership: | 100.0000000000% |
| | | Exemptions: | |
Pay Tax Due
Select the appropriate checkbox next to the year to be paid. Multiple years may be selected.
*Convenience Fee not included
Taxes and Assessment Details
Property Tax Information as of
03/12/2026
Click on "Statement Details" to expand or collapse a tax statement.
* Please enter a valid date ** Please enter a valid date *
Statement Details |
| 2026 | 20407 | STATE - STATE LEVY (SCHOOL) | $362.99 | $362.97 | $0.00 | $0.00 | $0.00 | $725.96 |
| 2026 | 20407 | COUNTY - COUNTY LEVIES (CE, DD, VET, MH) | $145.14 | $145.11 | $0.00 | $0.00 | $0.00 | $290.25 |
| 2026 | 20407 | CONSERVE - CONSERVATION FUTURES | $4.35 | $4.35 | $0.00 | $0.00 | $0.00 | $8.70 |
| 2026 | 20407 | COROADS - COUNTY ROADS (ROADS, DIV TO CE) | $117.07 | $117.07 | $0.00 | $0.00 | $0.00 | $234.14 |
| 2026 | 20407 | PORTPT - PORT DISTRICT | $58.61 | $58.61 | $0.00 | $0.00 | $0.00 | $117.22 |
| 2026 | 20407 | PUD1 - PUD #1 | $9.44 | $9.44 | $0.00 | $0.00 | $0.00 | $18.88 |
| 2026 | 20407 | LIB1 - LIBRARY DIST #1 | $45.30 | $45.29 | $0.00 | $0.00 | $0.00 | $90.59 |
| 2026 | 20407 | HD2 - HOSP DIST #2 | $8.47 | $8.46 | $0.00 | $0.00 | $0.00 | $16.93 |
| 2026 | 20407 | SD49 - SCHOOL DIST #49 | $199.81 | $199.80 | $0.00 | $0.00 | $0.00 | $399.61 |
| 2026 | 20407 | FD1 - FIRE DISTRICT #1 | $192.17 | $192.17 | $0.00 | $0.00 | $0.00 | $384.34 |
| 2026 | 20407 | EMS1 - FIRE DIST #1 EMS | $73.89 | $73.88 | $0.00 | $0.00 | $0.00 | $147.77 |
| 2026 | 20407 | FP - DNR Forest Fire Protection Assmt | $8.50 | $8.50 | $0.00 | $0.00 | $0.00 | $17.00 |
| 2026 | 20407 | FPLCA - DNR Landowner Contingency Assmt | $3.00 | $3.00 | $0.00 | $0.00 | $0.00 | $6.00 |
| 2026 | 20407 | JCCD - JC Conservation District | $2.55 | $2.55 | $0.00 | $0.00 | $0.00 | $5.10 |
| 2026 | 20407 | NWA - Noxious Weed Assessment | $2.98 | $2.97 | $0.00 | $0.00 | $0.00 | $5.95 |
| 2026 | 20407 | OSS - On Site Septic | $23.10 | $23.10 | $0.00 | $0.00 | $0.00 | $46.20 |
| 2026 | 20407 | WAT - Clean Water District | $13.00 | $13.00 | $0.00 | $0.00 | $0.00 | $26.00 |
| 2026 | 20407 | FP ADMIN - FP ADMIN | $0.50 | $0.00 | $0.00 | $0.00 | $0.00 | $0.50 |
| 2026 | 20407 | TOTAL: | $1270.87 | $1270.27 | $0.00 | $0.00 | $0.00 | $2541.14 |
|
| 2026 | 20407 | $1270.87 | $1270.27 | $0.00 | $0.00 | $0.00 | $2541.14 |
Statement Details |
| 2025 | 20468 | STATE - STATE LEVY (SCHOOL) | $378.61 | $378.59 | $0.00 | $0.00 | $757.20 | $0.00 |
| 2025 | 20468 | COUNTY - COUNTY LEVIES (CE, DD, VET, MH) | $148.89 | $148.87 | $0.00 | $0.00 | $297.76 | $0.00 |
| 2025 | 20468 | CONSERVE - CONSERVATION FUTURES | $4.47 | $4.46 | $0.00 | $0.00 | $8.93 | $0.00 |
| 2025 | 20468 | COROADS - COUNTY ROADS (ROADS, DIV TO CE) | $119.28 | $119.28 | $0.00 | $0.00 | $238.56 | $0.00 |
| 2025 | 20468 | PORTPT - PORT DISTRICT | $60.76 | $60.75 | $0.00 | $0.00 | $121.51 | $0.00 |
| 2025 | 20468 | PUD1 - PUD #1 | $9.74 | $9.74 | $0.00 | $0.00 | $19.48 | $0.00 |
| 2025 | 20468 | LIB1 - LIBRARY DIST #1 | $46.15 | $46.15 | $0.00 | $0.00 | $92.30 | $0.00 |
| 2025 | 20468 | HD2 - HOSP DIST #2 | $8.69 | $8.68 | $0.00 | $0.00 | $17.37 | $0.00 |
| 2025 | 20468 | SD49 - SCHOOL DIST #49 | $202.92 | $202.90 | $0.00 | $0.00 | $405.82 | $0.00 |
| 2025 | 20468 | FD1 - FIRE DISTRICT #1 | $196.47 | $196.46 | $0.00 | $0.00 | $392.93 | $0.00 |
| 2025 | 20468 | EMS1 - FIRE DIST #1 EMS | $75.57 | $75.56 | $0.00 | $0.00 | $151.13 | $0.00 |
| 2025 | 20468 | FP - DNR Forest Fire Protection Assmt | $8.50 | $8.50 | $0.00 | $0.00 | $17.00 | $0.00 |
| 2025 | 20468 | FPLCA - DNR Landowner Contingency Assmt | $3.00 | $3.00 | $0.00 | $0.00 | $6.00 | $0.00 |
| 2025 | 20468 | JCCD - JC Conservation District | $2.55 | $2.55 | $0.00 | $0.00 | $5.10 | $0.00 |
| 2025 | 20468 | NWA - Noxious Weed Assessment | $2.15 | $2.15 | $0.00 | $0.00 | $4.30 | $0.00 |
| 2025 | 20468 | OSS - On Site Septic | $21.50 | $21.50 | $0.00 | $0.00 | $43.00 | $0.00 |
| 2025 | 20468 | WAT - Clean Water District | $13.00 | $13.00 | $0.00 | $0.00 | $26.00 | $0.00 |
| 2025 | 20468 | FP ADMIN - FP ADMIN | $0.50 | $0.00 | $0.00 | $0.00 | $0.50 | $0.00 |
| 2025 | 20468 | TOTAL: | $1302.75 | $1302.14 | $0.00 | $0.00 | $2604.89 | $0.00 |
|
| 2025 | 20468 | $1302.75 | $1302.14 | $0.00 | $0.00 | $2604.89 | $0.00 |
Statement Details |
| 2024 | 20510 | STATE - STATE LEVY (SCHOOL) | $342.58 | $342.57 | $0.00 | $0.00 | $685.15 | $0.00 |
| 2024 | 20510 | COUNTY - COUNTY LEVIES (CE, DD, VET, MH) | $146.60 | $146.60 | $0.00 | $0.00 | $293.20 | $0.00 |
| 2024 | 20510 | CONSERVE - CONSERVATION FUTURES | $4.40 | $4.39 | $0.00 | $0.00 | $8.79 | $0.00 |
| 2024 | 20510 | COROADS - COUNTY ROADS (ROADS, DIV TO CE) | $117.97 | $117.95 | $0.00 | $0.00 | $235.92 | $0.00 |
| 2024 | 20510 | PORTPT - PORT DISTRICT | $60.55 | $60.55 | $0.00 | $0.00 | $121.10 | $0.00 |
| 2024 | 20510 | PUD1 - PUD #1 | $9.63 | $9.63 | $0.00 | $0.00 | $19.26 | $0.00 |
| 2024 | 20510 | LIB1 - LIBRARY DIST #1 | $45.64 | $45.63 | $0.00 | $0.00 | $91.27 | $0.00 |
| 2024 | 20510 | HD2 - HOSP DIST #2 | $8.56 | $8.55 | $0.00 | $0.00 | $17.11 | $0.00 |
| 2024 | 20510 | SD49 - SCHOOL DIST #49 | $152.98 | $152.98 | $0.00 | $0.00 | $305.96 | $0.00 |
| 2024 | 20510 | FD1 - FIRE DISTRICT #1 | $193.83 | $193.83 | $0.00 | $0.00 | $387.66 | $0.00 |
| 2024 | 20510 | EMS1 - FIRE DIST #1 EMS | $74.04 | $74.03 | $0.00 | $0.00 | $148.07 | $0.00 |
| 2024 | 20510 | JCCD - JC Conservation District | $2.55 | $2.55 | $0.00 | $0.00 | $5.10 | $0.00 |
| 2024 | 20510 | NWA - Noxious Weed Assessment | $2.15 | $2.15 | $0.00 | $0.00 | $4.30 | $0.00 |
| 2024 | 20510 | OSS - On Site Septic | $21.00 | $21.00 | $0.00 | $0.00 | $42.00 | $0.00 |
| 2024 | 20510 | WAT - Clean Water District | $12.50 | $12.50 | $0.00 | $0.00 | $25.00 | $0.00 |
| 2024 | 20510 | TOTAL: | $1194.98 | $1194.91 | $0.00 | $0.00 | $2389.89 | $0.00 |
|
| 2024 | 20510 | $1194.98 | $1194.91 | $0.00 | $0.00 | $2389.89 | $0.00 |
Statement Details |
| 2023 | 20547 | STATE - STATE LEVY (SCHOOL) | $305.66 | $305.64 | $0.00 | $0.00 | $611.30 | $0.00 |
| 2023 | 20547 | COUNTY - COUNTY LEVIES (CE, DD, VET, MH) | $133.39 | $133.35 | $0.00 | $0.00 | $266.74 | $0.00 |
| 2023 | 20547 | CONSERVE - CONSERVATION FUTURES | $4.00 | $4.00 | $0.00 | $0.00 | $8.00 | $0.00 |
| 2023 | 20547 | COROADS - COUNTY ROADS (ROADS, DIV TO CE) | $107.92 | $107.90 | $0.00 | $0.00 | $215.82 | $0.00 |
| 2023 | 20547 | PORTPT - PORT DISTRICT | $56.19 | $56.18 | $0.00 | $0.00 | $112.37 | $0.00 |
| 2023 | 20547 | PUD1 - PUD #1 | $8.84 | $8.84 | $0.00 | $0.00 | $17.68 | $0.00 |
| 2023 | 20547 | LIB1 - LIBRARY DIST #1 | $41.75 | $41.75 | $0.00 | $0.00 | $83.50 | $0.00 |
| 2023 | 20547 | HD2 - HOSP DIST #2 | $7.79 | $7.78 | $0.00 | $0.00 | $15.57 | $0.00 |
| 2023 | 20547 | SD49 - SCHOOL DIST #49 | $142.88 | $142.87 | $0.00 | $0.00 | $285.75 | $0.00 |
| 2023 | 20547 | FD1 - FIRE DISTRICT #1 | $109.88 | $109.87 | $0.00 | $0.00 | $219.75 | $0.00 |
| 2023 | 20547 | EMS1 - FIRE DIST #1 EMS | $46.74 | $46.74 | $0.00 | $0.00 | $93.48 | $0.00 |
| 2023 | 20547 | JCCD - JC Conservation District | $2.55 | $2.55 | $0.00 | $0.00 | $5.10 | $0.00 |
| 2023 | 20547 | NWA - Noxious Weed Assessment | $2.15 | $2.15 | $0.00 | $0.00 | $4.30 | $0.00 |
| 2023 | 20547 | OSS - On Site Septic | $20.50 | $20.50 | $0.00 | $0.00 | $41.00 | $0.00 |
| 2023 | 20547 | WAT - Clean Water District | $12.00 | $12.00 | $0.00 | $0.00 | $24.00 | $0.00 |
| 2023 | 20547 | TOTAL: | $1002.24 | $1002.12 | $0.00 | $0.00 | $2004.36 | $0.00 |
|
| 2023 | 20547 | $1002.24 | $1002.12 | $0.00 | $0.00 | $2004.36 | $0.00 |
Values
| (+) Improvement Homesite Value: | + | $193,959 | |
| (+) Improvement Non-Homesite Value: | + | $0 | |
| (+) Land Homesite Value: | + | $121,800 | |
| (+) Land Non-Homesite Value: | + | $0 | |
| (+) Curr Use (HS): | + | $0 | $0 |
| (+) Curr Use (NHS): | + | $0 | $0 |
| | | -------------------------- | |
| (=) Market Value: | = | $315,759 | |
| (–) Productivity Loss: | – | $0 | |
| | | -------------------------- | |
| (=) Subtotal: | = | $315,759 | |
| (+) Senior Appraised Value: | + | $0 | |
| (+) Non-Senior Appraised Value: | + | $315,759 | |
| | | -------------------------- | |
| (=) Total Appraised Value: | = | $315,759 | |
| (–) Senior Exemption Loss: | – | $0 | |
| (–) Exemption Loss: | – | $0 | |
| | | -------------------------- | |
| (=) Taxable Value: | = | $315,759 | |
Taxing Jurisdiction
| Owner: | JERRY K ROWE | | |
| % Ownership: | 100.0000000000% | | |
| Total Value: | $315,759 | | |
| Tax Area: | 0211 - 1-49F1E1H2L1 |
| CE | COUNTY CURRENT EXPENSE | 0.9034619479 | $315,759 | $315,759 | $285.28 | | |
| CNTYDD | DEVELOPMENTAL DISABILITIES | 0.0052121823 | $315,759 | $315,759 | $1.65 | | |
| CNTYVET | VETERANS RELIEF | 0.0052777810 | $315,759 | $315,759 | $1.67 | | |
| MENTAL | MENTAL HEALTH | 0.0052121823 | $315,759 | $315,759 | $1.65 | | |
| ROADS | COUNTY ROADS | 0.7415066410 | $315,759 | $315,759 | $234.14 | | |
| ROADSCU | COUNTY ROADS TO CUR EXP | 0.0000000000 | $315,759 | $315,759 | $0.00 | | |
| HOSP2CASH | HOSP DIST #2 GENERAL | 0.0536075306 | $315,759 | $315,759 | $16.93 | | |
| SCH49CP | SCHOOL DIST #49 CAP PROJ | 0.6279093905 | $315,759 | $315,759 | $198.27 | | |
| SCH49MO | SCHOOL DIST #49 EP & O | 0.6376483602 | $315,759 | $315,759 | $201.34 | | |
| CONSERVE | CONSERVATION FUTURES | 0.0275621078 | $315,759 | $315,759 | $8.70 | | |
| EMS1 | FIRE DIST #1 EMS | 0.4679948282 | $315,759 | $315,759 | $147.77 | | |
| FD1 | FIRE DIST #1 GENERAL | 1.2171942929 | $315,759 | $315,759 | $384.34 | | |
| LIB1 | LIBRARY DIST #1 GENERAL | 0.2868827388 | $315,759 | $315,759 | $90.59 | | |
| PORTPT | PORT OF PT GENERAL | 0.1134941229 | $315,759 | $315,759 | $35.84 | | |
| PORTPTIDD | PORT OF PT IDD 2019 | 0.2577346692 | $315,759 | $315,759 | $81.38 | | |
| PUD1 | PUD #1 GENERAL | 0.0597888892 | $315,759 | $315,759 | $18.88 | | |
| STATE | STATE SCHOOL PART 1 | 1.4940692947 | $315,759 | $315,759 | $471.77 | | |
| STATE2 | STATE SCHOOL PART 2 | 0.8050170049 | $315,759 | $315,759 | $254.19 | | |
| | Total Tax Rate: | 7.7095739644 | | | | | |
| | | | | Taxes w/Current Exemptions: | $2,434.39 | | |
| | | | | Taxes w/o Exemptions: | $2,434.39 | | |
Improvement / Building
| Improvement #1: | Residential Bldg | State Code: | 11 | 1422.0 sqft | Value: | $193,959 |
| Bathrooms (#): | 1 (FULL) | Bathrooms (#): | 1 (HALF) | | Bedrooms (#): | 3 | Exterior Wall: | SI/ST | | Fireplace: | SIN 1-AVG | Floor Construction: | FRAME | | Foundation: | CONPR | Heating/Cooling: | ELBB | | Inside Verify: | YES-FIX | Roof Cover: | COMP |
|
| | Type | Description | Class CD | Sub Class CD | Year Built | Area |
| | MA | Main Area | 3+ | 1S | 1953 | 1422.0 |
| | GATT | House Attached Garage | 3 | 1S | 1953 | 520.0 |
| | GARAG | Garage (Table Not Dep) | 3 | * | 1953 | 780.0 |
Sketch
Property Image
Land
| 1 | 4130-1273S | | 0.0000 | 0.00 | 0.00 | 0.00 | 1.00 | $99,750 | $0 |
| 2 | 4130-1187L | | 0.0000 | 0.00 | 0.00 | 0.00 | 6.00 | $22,050 | $0 |
Roll Value History
| 2026 | N/A | N/A | N/A | N/A | N/A |
| 2025 | $193,959 | $121,800 | $0 | $315,759 | $315,759 |
| 2024 | $193,959 | $121,800 | $0 | $315,759 | $315,759 |
| 2023 | $185,142 | $111,000 | $0 | $296,142 | $296,142 |
| 2022 | $164,069 | $95,600 | $0 | $259,669 | $259,669 |
Deed and Sales History
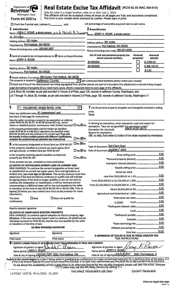
| 1 | 08/28/2024 | QCD | Quit Claim Deed | | JERRY K ROWE | | | | 143176 | |
| 2 | 11/27/2020 | QCD | Quit Claim Deed | | | | | | 135664 | |
| 3 | 11/12/2020 | PRD | Personal Representatives Deed | ANNA A C CARROLL | SHIRLI A SIMMONS | | | | 135554 | |
Payout Agreement
| No payout information available.. |