Property
Account |
| Property ID: | 31128 | Abbreviated Legal Description: | IRONDALE #1 BLK 27 LOTS 6 & 7 |
| Parcel # / Geo ID: | 961802703 | Agent Code: | |
| Type: | Real | | |
| Tax Area: | 0211 - 1-49F1E1H2L1 | Land Use Code | 91 |
| Open Space: | N | DFL | N |
| Historic Property: | N | Remodel Property: | N |
| Multi-Family Redevelopment: | N | | |
| Township: | 30N | Section: | 35 |
| Range: | 1W |
Location |
| Address: | | Mapsco: | 039/014 |
| Neighborhood: | IRONDALE BLOCKS 1 - 47 | Map ID: | |
| Neighborhood CD: | 4130 |
Owner |
| Name: | RANDI A ROWE | Owner ID: | 101167 |
| Mailing Address: | SIMON ROWE 15018 130TH SE RENTON, WA 98058 | % Ownership: | 100.0000000000% |
| | | Exemptions: | |
Pay Tax Due
Select the appropriate checkbox next to the year to be paid. Multiple years may be selected.
*Convenience Fee not included
Taxes and Assessment Details
Property Tax Information as of
03/10/2026
Click on "Statement Details" to expand or collapse a tax statement.
* Please enter a valid date ** Please enter a valid date *
Statement Details |
| 2026 | 20417 | STATE - STATE LEVY (SCHOOL) | $30.18 | $30.17 | $0.00 | $0.00 | $0.00 | $60.35 |
| 2026 | 20417 | COUNTY - COUNTY LEVIES (CE, DD, VET, MH) | $12.07 | $12.07 | $0.00 | $0.00 | $0.00 | $24.14 |
| 2026 | 20417 | CONSERVE - CONSERVATION FUTURES | $0.36 | $0.36 | $0.00 | $0.00 | $0.00 | $0.72 |
| 2026 | 20417 | COROADS - COUNTY ROADS (ROADS, DIV TO CE) | $9.73 | $9.73 | $0.00 | $0.00 | $0.00 | $19.46 |
| 2026 | 20417 | PORTPT - PORT DISTRICT | $4.88 | $4.87 | $0.00 | $0.00 | $0.00 | $9.75 |
| 2026 | 20417 | PUD1 - PUD #1 | $0.79 | $0.78 | $0.00 | $0.00 | $0.00 | $1.57 |
| 2026 | 20417 | LIB1 - LIBRARY DIST #1 | $3.77 | $3.76 | $0.00 | $0.00 | $0.00 | $7.53 |
| 2026 | 20417 | HD2 - HOSP DIST #2 | $0.71 | $0.70 | $0.00 | $0.00 | $0.00 | $1.41 |
| 2026 | 20417 | SD49 - SCHOOL DIST #49 | $16.61 | $16.61 | $0.00 | $0.00 | $0.00 | $33.22 |
| 2026 | 20417 | FD1 - FIRE DISTRICT #1 | $15.98 | $15.97 | $0.00 | $0.00 | $0.00 | $31.95 |
| 2026 | 20417 | EMS1 - FIRE DIST #1 EMS | $6.14 | $6.14 | $0.00 | $0.00 | $0.00 | $12.28 |
| 2026 | 20417 | FPLCA - DNR Landowner Contingency Assmt | $3.00 | $3.00 | $0.00 | $0.00 | $0.00 | $6.00 |
| 2026 | 20417 | JCCD - JC Conservation District | $2.53 | $2.53 | $0.00 | $0.00 | $0.00 | $5.06 |
| 2026 | 20417 | NWA - Noxious Weed Assessment | $2.98 | $2.97 | $0.00 | $0.00 | $0.00 | $5.95 |
| 2026 | 20417 | WAT - Clean Water District | $13.00 | $13.00 | $0.00 | $0.00 | $0.00 | $26.00 |
| 2026 | 20417 | TOTAL: | $122.73 | $122.66 | $0.00 | $0.00 | $0.00 | $245.39 |
|
| 2026 | 20417 | $122.73 | $122.66 | $0.00 | $0.00 | $0.00 | $245.39 |
Statement Details |
| 2025 | 20478 | STATE - STATE LEVY (SCHOOL) | $31.48 | $31.47 | $0.00 | $0.00 | $62.95 | $0.00 |
| 2025 | 20478 | COUNTY - COUNTY LEVIES (CE, DD, VET, MH) | $12.38 | $12.37 | $0.00 | $0.00 | $24.75 | $0.00 |
| 2025 | 20478 | CONSERVE - CONSERVATION FUTURES | $0.37 | $0.37 | $0.00 | $0.00 | $0.74 | $0.00 |
| 2025 | 20478 | COROADS - COUNTY ROADS (ROADS, DIV TO CE) | $9.92 | $9.91 | $0.00 | $0.00 | $19.83 | $0.00 |
| 2025 | 20478 | PORTPT - PORT DISTRICT | $5.05 | $5.05 | $0.00 | $0.00 | $10.10 | $0.00 |
| 2025 | 20478 | PUD1 - PUD #1 | $0.81 | $0.81 | $0.00 | $0.00 | $1.62 | $0.00 |
| 2025 | 20478 | LIB1 - LIBRARY DIST #1 | $3.84 | $3.83 | $0.00 | $0.00 | $7.67 | $0.00 |
| 2025 | 20478 | HD2 - HOSP DIST #2 | $0.72 | $0.72 | $0.00 | $0.00 | $1.44 | $0.00 |
| 2025 | 20478 | SD49 - SCHOOL DIST #49 | $16.87 | $16.87 | $0.00 | $0.00 | $33.74 | $0.00 |
| 2025 | 20478 | FD1 - FIRE DISTRICT #1 | $16.34 | $16.33 | $0.00 | $0.00 | $32.67 | $0.00 |
| 2025 | 20478 | EMS1 - FIRE DIST #1 EMS | $6.28 | $6.28 | $0.00 | $0.00 | $12.56 | $0.00 |
| 2025 | 20478 | FPLCA - DNR Landowner Contingency Assmt | $3.00 | $3.00 | $0.00 | $0.00 | $6.00 | $0.00 |
| 2025 | 20478 | JCCD - JC Conservation District | $2.53 | $2.53 | $0.00 | $0.00 | $5.06 | $0.00 |
| 2025 | 20478 | NWA - Noxious Weed Assessment | $2.15 | $2.15 | $0.00 | $0.00 | $4.30 | $0.00 |
| 2025 | 20478 | WAT - Clean Water District | $13.00 | $13.00 | $0.00 | $0.00 | $26.00 | $0.00 |
| 2025 | 20478 | TOTAL: | $124.74 | $124.69 | $0.00 | $0.00 | $249.43 | $0.00 |
|
| 2025 | 20478 | $124.74 | $124.69 | $0.00 | $0.00 | $249.43 | $0.00 |
Statement Details |
| 2024 | 20520 | STATE - STATE LEVY (SCHOOL) | $28.93 | $28.91 | $0.00 | $0.00 | $57.84 | $0.00 |
| 2024 | 20520 | COUNTY - COUNTY LEVIES (CE, DD, VET, MH) | $12.38 | $12.37 | $0.00 | $0.00 | $24.75 | $0.00 |
| 2024 | 20520 | CONSERVE - CONSERVATION FUTURES | $0.37 | $0.37 | $0.00 | $0.00 | $0.74 | $0.00 |
| 2024 | 20520 | COROADS - COUNTY ROADS (ROADS, DIV TO CE) | $9.97 | $9.95 | $0.00 | $0.00 | $19.92 | $0.00 |
| 2024 | 20520 | PORTPT - PORT DISTRICT | $5.12 | $5.11 | $0.00 | $0.00 | $10.23 | $0.00 |
| 2024 | 20520 | PUD1 - PUD #1 | $0.82 | $0.81 | $0.00 | $0.00 | $1.63 | $0.00 |
| 2024 | 20520 | LIB1 - LIBRARY DIST #1 | $3.86 | $3.85 | $0.00 | $0.00 | $7.71 | $0.00 |
| 2024 | 20520 | HD2 - HOSP DIST #2 | $0.72 | $0.72 | $0.00 | $0.00 | $1.44 | $0.00 |
| 2024 | 20520 | SD49 - SCHOOL DIST #49 | $12.92 | $12.90 | $0.00 | $0.00 | $25.82 | $0.00 |
| 2024 | 20520 | FD1 - FIRE DISTRICT #1 | $16.37 | $16.36 | $0.00 | $0.00 | $32.73 | $0.00 |
| 2024 | 20520 | EMS1 - FIRE DIST #1 EMS | $6.25 | $6.25 | $0.00 | $0.00 | $12.50 | $0.00 |
| 2024 | 20520 | FPLCA - DNR Landowner Contingency Assmt | $3.00 | $3.00 | $0.00 | $0.00 | $6.00 | $0.00 |
| 2024 | 20520 | JCCD - JC Conservation District | $2.53 | $2.53 | $0.00 | $0.00 | $5.06 | $0.00 |
| 2024 | 20520 | NWA - Noxious Weed Assessment | $2.15 | $2.15 | $0.00 | $0.00 | $4.30 | $0.00 |
| 2024 | 20520 | WAT - Clean Water District | $12.50 | $12.50 | $0.00 | $0.00 | $25.00 | $0.00 |
| 2024 | 20520 | TOTAL: | $117.89 | $117.78 | $0.00 | $0.00 | $235.67 | $0.00 |
|
| 2024 | 20520 | $117.89 | $117.78 | $0.00 | $0.00 | $235.67 | $0.00 |
Statement Details |
| 2023 | 20557 | STATE - STATE LEVY (SCHOOL) | $20.60 | $20.60 | $0.00 | $0.00 | $41.20 | $0.00 |
| 2023 | 20557 | COUNTY - COUNTY LEVIES (CE, DD, VET, MH) | $8.99 | $8.98 | $0.00 | $0.00 | $17.97 | $0.00 |
| 2023 | 20557 | CONSERVE - CONSERVATION FUTURES | $0.27 | $0.27 | $0.00 | $0.00 | $0.54 | $0.00 |
| 2023 | 20557 | COROADS - COUNTY ROADS (ROADS, DIV TO CE) | $7.27 | $7.27 | $0.00 | $0.00 | $14.54 | $0.00 |
| 2023 | 20557 | PORTPT - PORT DISTRICT | $3.79 | $3.78 | $0.00 | $0.00 | $7.57 | $0.00 |
| 2023 | 20557 | PUD1 - PUD #1 | $0.60 | $0.59 | $0.00 | $0.00 | $1.19 | $0.00 |
| 2023 | 20557 | LIB1 - LIBRARY DIST #1 | $2.82 | $2.81 | $0.00 | $0.00 | $5.63 | $0.00 |
| 2023 | 20557 | HD2 - HOSP DIST #2 | $0.53 | $0.52 | $0.00 | $0.00 | $1.05 | $0.00 |
| 2023 | 20557 | SD49 - SCHOOL DIST #49 | $9.64 | $9.62 | $0.00 | $0.00 | $19.26 | $0.00 |
| 2023 | 20557 | FD1 - FIRE DISTRICT #1 | $7.41 | $7.40 | $0.00 | $0.00 | $14.81 | $0.00 |
| 2023 | 20557 | EMS1 - FIRE DIST #1 EMS | $3.15 | $3.15 | $0.00 | $0.00 | $6.30 | $0.00 |
| 2023 | 20557 | FPLCA - DNR Landowner Contingency Assmt | $3.00 | $3.00 | $0.00 | $0.00 | $6.00 | $0.00 |
| 2023 | 20557 | JCCD - JC Conservation District | $2.53 | $2.53 | $0.00 | $0.00 | $5.06 | $0.00 |
| 2023 | 20557 | NWA - Noxious Weed Assessment | $2.15 | $2.15 | $0.00 | $0.00 | $4.30 | $0.00 |
| 2023 | 20557 | WAT - Clean Water District | $12.00 | $12.00 | $0.00 | $0.00 | $24.00 | $0.00 |
| 2023 | 20557 | TOTAL: | $84.75 | $84.67 | $0.00 | $0.00 | $169.42 | $0.00 |
|
| 2023 | 20557 | $84.75 | $84.67 | $0.00 | $0.00 | $169.42 | $0.00 |
Values
| (+) Improvement Homesite Value: | + | $0 | |
| (+) Improvement Non-Homesite Value: | + | $0 | |
| (+) Land Homesite Value: | + | $0 | |
| (+) Land Non-Homesite Value: | + | $26,250 | |
| (+) Curr Use (HS): | + | $0 | $0 |
| (+) Curr Use (NHS): | + | $0 | $0 |
| | | -------------------------- | |
| (=) Market Value: | = | $26,250 | |
| (–) Productivity Loss: | – | $0 | |
| | | -------------------------- | |
| (=) Subtotal: | = | $26,250 | |
| (+) Senior Appraised Value: | + | $0 | |
| (+) Non-Senior Appraised Value: | + | $26,250 | |
| | | -------------------------- | |
| (=) Total Appraised Value: | = | $26,250 | |
| (–) Senior Exemption Loss: | – | $0 | |
| (–) Exemption Loss: | – | $0 | |
| | | -------------------------- | |
| (=) Taxable Value: | = | $26,250 | |
Taxing Jurisdiction
| Owner: | RANDI A ROWE | | |
| % Ownership: | 100.0000000000% | | |
| Total Value: | $26,250 | | |
| Tax Area: | 0211 - 1-49F1E1H2L1 |
| CE | COUNTY CURRENT EXPENSE | 0.9034619479 | $26,250 | $26,250 | $23.72 | | |
| CNTYDD | DEVELOPMENTAL DISABILITIES | 0.0052121823 | $26,250 | $26,250 | $0.14 | | |
| CNTYVET | VETERANS RELIEF | 0.0052777810 | $26,250 | $26,250 | $0.14 | | |
| MENTAL | MENTAL HEALTH | 0.0052121823 | $26,250 | $26,250 | $0.14 | | |
| ROADS | COUNTY ROADS | 0.7415066410 | $26,250 | $26,250 | $19.46 | | |
| ROADSCU | COUNTY ROADS TO CUR EXP | 0.0000000000 | $26,250 | $26,250 | $0.00 | | |
| HOSP2CASH | HOSP DIST #2 GENERAL | 0.0536075306 | $26,250 | $26,250 | $1.41 | | |
| SCH49CP | SCHOOL DIST #49 CAP PROJ | 0.6279093905 | $26,250 | $26,250 | $16.48 | | |
| SCH49MO | SCHOOL DIST #49 EP & O | 0.6376483602 | $26,250 | $26,250 | $16.74 | | |
| CONSERVE | CONSERVATION FUTURES | 0.0275621078 | $26,250 | $26,250 | $0.72 | | |
| EMS1 | FIRE DIST #1 EMS | 0.4679948282 | $26,250 | $26,250 | $12.28 | | |
| FD1 | FIRE DIST #1 GENERAL | 1.2171942929 | $26,250 | $26,250 | $31.95 | | |
| LIB1 | LIBRARY DIST #1 GENERAL | 0.2868827388 | $26,250 | $26,250 | $7.53 | | |
| PORTPT | PORT OF PT GENERAL | 0.1134941229 | $26,250 | $26,250 | $2.98 | | |
| PORTPTIDD | PORT OF PT IDD 2019 | 0.2577346692 | $26,250 | $26,250 | $6.77 | | |
| PUD1 | PUD #1 GENERAL | 0.0597888892 | $26,250 | $26,250 | $1.57 | | |
| STATE | STATE SCHOOL PART 1 | 1.4940692947 | $26,250 | $26,250 | $39.22 | | |
| STATE2 | STATE SCHOOL PART 2 | 0.8050170049 | $26,250 | $26,250 | $21.13 | | |
| | Total Tax Rate: | 7.7095739644 | | | | | |
| | | | | Taxes w/Current Exemptions: | $202.38 | | |
| | | | | Taxes w/o Exemptions: | $202.38 | | |
Improvement / Building
Sketch
| No sketches available for this property. |
Property Image
Land
| 1 | 4130-1285S | | 0.0000 | 0.00 | 0.00 | 0.00 | 1.00 | $26,250 | $0 |
Roll Value History
| 2026 | N/A | N/A | N/A | N/A | N/A |
| 2025 | $0 | $26,250 | $0 | $26,250 | $26,250 |
| 2024 | $0 | $26,250 | $0 | $26,250 | $26,250 |
| 2023 | $0 | $25,000 | $0 | $25,000 | $25,000 |
| 2022 | $0 | $17,500 | $0 | $17,500 | $17,500 |
Deed and Sales History
| 1 | 06/11/2022 | SWD | Statutory Warranty Deed | TAMARA SWEREN | RANDI A ROWE | | | $50,000.00 | 139272 | |
|   | |
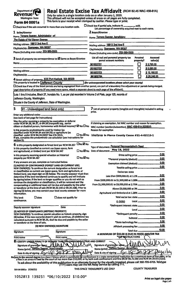
| 2 | 05/18/2022 | PRD | Personal Representatives Deed | HAL S SWEREN | TAMARA SWEREN | | | | 139251 | |
| 3 | 02/16/2022 | QCD | Quit Claim Deed | TAMARA SWEREN PERSONAL REP OF HAL SWEREN | TAMARA SWEREN | | | | 138655 | |
Payout Agreement
| No payout information available.. |