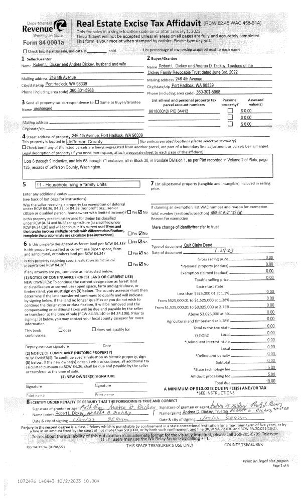
Property
Account |
| Property ID: | 31143 | Abbreviated Legal Description: | IRONDALE #1 BLK 30, LOTS 6 THRU 9, LOTS 68 THRU 71 |
| Parcel # / Geo ID: | 961803012 | Agent Code: | |
| Type: | Real | | |
| Tax Area: | 0211 - 1-49F1E1H2L1 | Land Use Code | 11 |
| Open Space: | N | DFL | N |
| Historic Property: | N | Remodel Property: | N |
| Multi-Family Redevelopment: | N | | |
| Township: | 30N | Section: | 35 |
| Range: | 1W |
Location |
| Address: | 246 4TH AVE PORT HADLOCK, WA 98339 | Mapsco: | 039/021 |
| Neighborhood: | IRONDALE BLOCKS 1 - 47 | Map ID: | |
| Neighborhood CD: | 4130 |
Owner |
| Name: | DICKEY FAMILY REVOCABLE TRUST | Owner ID: | 108252 |
| Mailing Address: | ROBERT L DICKEY TRUSTEE ANDREA D DICKEY TRUSTEE 246 4TH AVE PORT HADLOCK, WA 98339-9603 | % Ownership: | 100.0000000000% |
| | | Exemptions: | |
Pay Tax Due
Select the appropriate checkbox next to the year to be paid. Multiple years may be selected.
*Convenience Fee not included
Taxes and Assessment Details
Property Tax Information as of
03/11/2026
Click on "Statement Details" to expand or collapse a tax statement.
* Please enter a valid date ** Please enter a valid date *
Statement Details |
| 2026 | 20432 | STATE - STATE LEVY (SCHOOL) | $496.50 | $496.49 | $0.00 | $0.00 | $0.00 | $992.99 |
| 2026 | 20432 | COUNTY - COUNTY LEVIES (CE, DD, VET, MH) | $198.51 | $198.48 | $0.00 | $0.00 | $0.00 | $396.99 |
| 2026 | 20432 | CONSERVE - CONSERVATION FUTURES | $5.95 | $5.95 | $0.00 | $0.00 | $0.00 | $11.90 |
| 2026 | 20432 | COROADS - COUNTY ROADS (ROADS, DIV TO CE) | $160.13 | $160.13 | $0.00 | $0.00 | $0.00 | $320.26 |
| 2026 | 20432 | PORTPT - PORT DISTRICT | $80.17 | $80.17 | $0.00 | $0.00 | $0.00 | $160.34 |
| 2026 | 20432 | PUD1 - PUD #1 | $12.91 | $12.91 | $0.00 | $0.00 | $0.00 | $25.82 |
| 2026 | 20432 | LIB1 - LIBRARY DIST #1 | $61.96 | $61.95 | $0.00 | $0.00 | $0.00 | $123.91 |
| 2026 | 20432 | HD2 - HOSP DIST #2 | $11.58 | $11.57 | $0.00 | $0.00 | $0.00 | $23.15 |
| 2026 | 20432 | SD49 - SCHOOL DIST #49 | $273.31 | $273.30 | $0.00 | $0.00 | $0.00 | $546.61 |
| 2026 | 20432 | FD1 - FIRE DISTRICT #1 | $262.86 | $262.86 | $0.00 | $0.00 | $0.00 | $525.72 |
| 2026 | 20432 | EMS1 - FIRE DIST #1 EMS | $101.07 | $101.06 | $0.00 | $0.00 | $0.00 | $202.13 |
| 2026 | 20432 | FP - DNR Forest Fire Protection Assmt | $8.50 | $8.50 | $0.00 | $0.00 | $0.00 | $17.00 |
| 2026 | 20432 | FPLCA - DNR Landowner Contingency Assmt | $3.00 | $3.00 | $0.00 | $0.00 | $0.00 | $6.00 |
| 2026 | 20432 | JCCD - JC Conservation District | $2.55 | $2.55 | $0.00 | $0.00 | $0.00 | $5.10 |
| 2026 | 20432 | NWA - Noxious Weed Assessment | $2.98 | $2.97 | $0.00 | $0.00 | $0.00 | $5.95 |
| 2026 | 20432 | OSS - On Site Septic | $23.10 | $23.10 | $0.00 | $0.00 | $0.00 | $46.20 |
| 2026 | 20432 | WAT - Clean Water District | $13.00 | $13.00 | $0.00 | $0.00 | $0.00 | $26.00 |
| 2026 | 20432 | FP ADMIN - FP ADMIN | $0.50 | $0.00 | $0.00 | $0.00 | $0.00 | $0.50 |
| 2026 | 20432 | TOTAL: | $1718.58 | $1717.99 | $0.00 | $0.00 | $0.00 | $3436.57 |
|
| 2026 | 20432 | $1718.58 | $1717.99 | $0.00 | $0.00 | $0.00 | $3436.57 |
Statement Details |
| 2025 | 20493 | STATE - STATE LEVY (SCHOOL) | $517.87 | $517.86 | $0.00 | $0.00 | $1035.73 | $0.00 |
| 2025 | 20493 | COUNTY - COUNTY LEVIES (CE, DD, VET, MH) | $203.65 | $203.63 | $0.00 | $0.00 | $407.28 | $0.00 |
| 2025 | 20493 | CONSERVE - CONSERVATION FUTURES | $6.11 | $6.10 | $0.00 | $0.00 | $12.21 | $0.00 |
| 2025 | 20493 | COROADS - COUNTY ROADS (ROADS, DIV TO CE) | $163.16 | $163.15 | $0.00 | $0.00 | $326.31 | $0.00 |
| 2025 | 20493 | PORTPT - PORT DISTRICT | $83.11 | $83.09 | $0.00 | $0.00 | $166.20 | $0.00 |
| 2025 | 20493 | PUD1 - PUD #1 | $13.33 | $13.32 | $0.00 | $0.00 | $26.65 | $0.00 |
| 2025 | 20493 | LIB1 - LIBRARY DIST #1 | $63.13 | $63.12 | $0.00 | $0.00 | $126.25 | $0.00 |
| 2025 | 20493 | HD2 - HOSP DIST #2 | $11.88 | $11.88 | $0.00 | $0.00 | $23.76 | $0.00 |
| 2025 | 20493 | SD49 - SCHOOL DIST #49 | $277.55 | $277.54 | $0.00 | $0.00 | $555.09 | $0.00 |
| 2025 | 20493 | FD1 - FIRE DISTRICT #1 | $268.74 | $268.73 | $0.00 | $0.00 | $537.47 | $0.00 |
| 2025 | 20493 | EMS1 - FIRE DIST #1 EMS | $103.36 | $103.36 | $0.00 | $0.00 | $206.72 | $0.00 |
| 2025 | 20493 | FP - DNR Forest Fire Protection Assmt | $8.50 | $8.50 | $0.00 | $0.00 | $17.00 | $0.00 |
| 2025 | 20493 | FPLCA - DNR Landowner Contingency Assmt | $3.00 | $3.00 | $0.00 | $0.00 | $6.00 | $0.00 |
| 2025 | 20493 | JCCD - JC Conservation District | $2.55 | $2.55 | $0.00 | $0.00 | $5.10 | $0.00 |
| 2025 | 20493 | NWA - Noxious Weed Assessment | $2.15 | $2.15 | $0.00 | $0.00 | $4.30 | $0.00 |
| 2025 | 20493 | OSS - On Site Septic | $21.50 | $21.50 | $0.00 | $0.00 | $43.00 | $0.00 |
| 2025 | 20493 | WAT - Clean Water District | $13.00 | $13.00 | $0.00 | $0.00 | $26.00 | $0.00 |
| 2025 | 20493 | FP ADMIN - FP ADMIN | $0.50 | $0.00 | $0.00 | $0.00 | $0.50 | $0.00 |
| 2025 | 20493 | TOTAL: | $1763.09 | $1762.48 | $0.00 | $0.00 | $3525.57 | $0.00 |
|
| 2025 | 20493 | $1763.09 | $1762.48 | $0.00 | $0.00 | $3525.57 | $0.00 |
Statement Details |
| 2024 | 20535 | STATE - STATE LEVY (SCHOOL) | $470.78 | $470.76 | $0.00 | $0.00 | $941.54 | $0.00 |
| 2024 | 20535 | COUNTY - COUNTY LEVIES (CE, DD, VET, MH) | $201.45 | $201.43 | $0.00 | $0.00 | $402.88 | $0.00 |
| 2024 | 20535 | CONSERVE - CONSERVATION FUTURES | $6.04 | $6.04 | $0.00 | $0.00 | $12.08 | $0.00 |
| 2024 | 20535 | COROADS - COUNTY ROADS (ROADS, DIV TO CE) | $162.10 | $162.09 | $0.00 | $0.00 | $324.19 | $0.00 |
| 2024 | 20535 | PORTPT - PORT DISTRICT | $83.21 | $83.20 | $0.00 | $0.00 | $166.41 | $0.00 |
| 2024 | 20535 | PUD1 - PUD #1 | $13.23 | $13.23 | $0.00 | $0.00 | $26.46 | $0.00 |
| 2024 | 20535 | LIB1 - LIBRARY DIST #1 | $62.72 | $62.71 | $0.00 | $0.00 | $125.43 | $0.00 |
| 2024 | 20535 | HD2 - HOSP DIST #2 | $11.76 | $11.75 | $0.00 | $0.00 | $23.51 | $0.00 |
| 2024 | 20535 | SD49 - SCHOOL DIST #49 | $210.22 | $210.22 | $0.00 | $0.00 | $420.44 | $0.00 |
| 2024 | 20535 | FD1 - FIRE DISTRICT #1 | $266.36 | $266.36 | $0.00 | $0.00 | $532.72 | $0.00 |
| 2024 | 20535 | EMS1 - FIRE DIST #1 EMS | $101.74 | $101.74 | $0.00 | $0.00 | $203.48 | $0.00 |
| 2024 | 20535 | JCCD - JC Conservation District | $2.55 | $2.55 | $0.00 | $0.00 | $5.10 | $0.00 |
| 2024 | 20535 | NWA - Noxious Weed Assessment | $2.15 | $2.15 | $0.00 | $0.00 | $4.30 | $0.00 |
| 2024 | 20535 | OSS - On Site Septic | $21.00 | $21.00 | $0.00 | $0.00 | $42.00 | $0.00 |
| 2024 | 20535 | WAT - Clean Water District | $12.50 | $12.50 | $0.00 | $0.00 | $25.00 | $0.00 |
| 2024 | 20535 | TOTAL: | $1627.81 | $1627.73 | $0.00 | $0.00 | $3255.54 | $0.00 |
|
| 2024 | 20535 | $1627.81 | $1627.73 | $0.00 | $0.00 | $3255.54 | $0.00 |
Statement Details |
| 2023 | 20572 | STATE - STATE LEVY (SCHOOL) | $416.24 | $416.23 | $0.00 | $0.00 | $832.47 | $0.00 |
| 2023 | 20572 | COUNTY - COUNTY LEVIES (CE, DD, VET, MH) | $181.64 | $181.62 | $0.00 | $0.00 | $363.26 | $0.00 |
| 2023 | 20572 | CONSERVE - CONSERVATION FUTURES | $5.45 | $5.44 | $0.00 | $0.00 | $10.89 | $0.00 |
| 2023 | 20572 | COROADS - COUNTY ROADS (ROADS, DIV TO CE) | $146.96 | $146.95 | $0.00 | $0.00 | $293.91 | $0.00 |
| 2023 | 20572 | PORTPT - PORT DISTRICT | $76.52 | $76.50 | $0.00 | $0.00 | $153.02 | $0.00 |
| 2023 | 20572 | PUD1 - PUD #1 | $12.04 | $12.04 | $0.00 | $0.00 | $24.08 | $0.00 |
| 2023 | 20572 | LIB1 - LIBRARY DIST #1 | $56.86 | $56.85 | $0.00 | $0.00 | $113.71 | $0.00 |
| 2023 | 20572 | HD2 - HOSP DIST #2 | $10.60 | $10.60 | $0.00 | $0.00 | $21.20 | $0.00 |
| 2023 | 20572 | SD49 - SCHOOL DIST #49 | $194.58 | $194.56 | $0.00 | $0.00 | $389.14 | $0.00 |
| 2023 | 20572 | FD1 - FIRE DISTRICT #1 | $149.63 | $149.63 | $0.00 | $0.00 | $299.26 | $0.00 |
| 2023 | 20572 | EMS1 - FIRE DIST #1 EMS | $63.65 | $63.65 | $0.00 | $0.00 | $127.30 | $0.00 |
| 2023 | 20572 | JCCD - JC Conservation District | $2.55 | $2.55 | $0.00 | $0.00 | $5.10 | $0.00 |
| 2023 | 20572 | NWA - Noxious Weed Assessment | $2.15 | $2.15 | $0.00 | $0.00 | $4.30 | $0.00 |
| 2023 | 20572 | OSS - On Site Septic | $20.50 | $20.50 | $0.00 | $0.00 | $41.00 | $0.00 |
| 2023 | 20572 | WAT - Clean Water District | $12.00 | $12.00 | $0.00 | $0.00 | $24.00 | $0.00 |
| 2023 | 20572 | TOTAL: | $1351.37 | $1351.27 | $0.00 | $0.00 | $2702.64 | $0.00 |
|
| 2023 | 20572 | $1351.37 | $1351.27 | $0.00 | $0.00 | $2702.64 | $0.00 |
Values
| (+) Improvement Homesite Value: | + | $0 | |
| (+) Improvement Non-Homesite Value: | + | $283,858 | |
| (+) Land Homesite Value: | + | $0 | |
| (+) Land Non-Homesite Value: | + | $148,050 | |
| (+) Curr Use (HS): | + | $0 | $0 |
| (+) Curr Use (NHS): | + | $0 | $0 |
| | | -------------------------- | |
| (=) Market Value: | = | $431,908 | |
| (–) Productivity Loss: | – | $0 | |
| | | -------------------------- | |
| (=) Subtotal: | = | $431,908 | |
| (+) Senior Appraised Value: | + | $0 | |
| (+) Non-Senior Appraised Value: | + | $431,908 | |
| | | -------------------------- | |
| (=) Total Appraised Value: | = | $431,908 | |
| (–) Senior Exemption Loss: | – | $0 | |
| (–) Exemption Loss: | – | $0 | |
| | | -------------------------- | |
| (=) Taxable Value: | = | $431,908 | |
Taxing Jurisdiction
| Owner: | DICKEY FAMILY REVOCABLE TRUST | | |
| % Ownership: | 100.0000000000% | | |
| Total Value: | $431,908 | | |
| Tax Area: | 0211 - 1-49F1E1H2L1 |
| CE | COUNTY CURRENT EXPENSE | 0.9034619479 | $431,908 | $431,908 | $390.21 | | |
| CNTYDD | DEVELOPMENTAL DISABILITIES | 0.0052121823 | $431,908 | $431,908 | $2.25 | | |
| CNTYVET | VETERANS RELIEF | 0.0052777810 | $431,908 | $431,908 | $2.28 | | |
| MENTAL | MENTAL HEALTH | 0.0052121823 | $431,908 | $431,908 | $2.25 | | |
| ROADS | COUNTY ROADS | 0.7415066410 | $431,908 | $431,908 | $320.26 | | |
| ROADSCU | COUNTY ROADS TO CUR EXP | 0.0000000000 | $431,908 | $431,908 | $0.00 | | |
| HOSP2CASH | HOSP DIST #2 GENERAL | 0.0536075306 | $431,908 | $431,908 | $23.15 | | |
| SCH49CP | SCHOOL DIST #49 CAP PROJ | 0.6279093905 | $431,908 | $431,908 | $271.20 | | |
| SCH49MO | SCHOOL DIST #49 EP & O | 0.6376483602 | $431,908 | $431,908 | $275.41 | | |
| CONSERVE | CONSERVATION FUTURES | 0.0275621078 | $431,908 | $431,908 | $11.90 | | |
| EMS1 | FIRE DIST #1 EMS | 0.4679948282 | $431,908 | $431,908 | $202.13 | | |
| FD1 | FIRE DIST #1 GENERAL | 1.2171942929 | $431,908 | $431,908 | $525.72 | | |
| LIB1 | LIBRARY DIST #1 GENERAL | 0.2868827388 | $431,908 | $431,908 | $123.91 | | |
| PORTPT | PORT OF PT GENERAL | 0.1134941229 | $431,908 | $431,908 | $49.02 | | |
| PORTPTIDD | PORT OF PT IDD 2019 | 0.2577346692 | $431,908 | $431,908 | $111.32 | | |
| PUD1 | PUD #1 GENERAL | 0.0597888892 | $431,908 | $431,908 | $25.82 | | |
| STATE | STATE SCHOOL PART 1 | 1.4940692947 | $431,908 | $431,908 | $645.30 | | |
| STATE2 | STATE SCHOOL PART 2 | 0.8050170049 | $431,908 | $431,908 | $347.69 | | |
| | Total Tax Rate: | 7.7095739644 | | | | | |
| | | | | Taxes w/Current Exemptions: | $3,329.82 | | |
| | | | | Taxes w/o Exemptions: | $3,329.82 | | |
Improvement / Building
| Improvement #1: | Residential Bldg | State Code: | 11 | 1071.0 sqft | Value: | $283,858 |
| Bathrooms (#): | 2 (FULL) | Bedrooms (#): | 3 | | Exterior Wall: | SI/ST | Floor Construction: | FRAME | | Foundation: | CONPR | Heating/Cooling: | OTHER | | Inside Verify: | YES-FIX | Roof Cover: | COMP |
|
| | Type | Description | Class CD | Sub Class CD | Year Built | Area |
| | MA | Main Area | 4+ | 15SF | 1994 | 1071.0 |
| | HENCL | House Enclosure | 3 | * | 1994 | 120.0 |
| | HRPO | House Roof Patio | 3 | * | 1994 | 90.0 |
| | HLOFT | House Loft | 3 | * | 1994 | 513.0 |
| | GDET | Detached Garage | 3 | * | 2020 | 784.0 |
| | ADDN-D | Addition (Table Depreciated) | 2 | * | 1994 | 736.0 |
Sketch
Property Image
Land
| 1 | 4130-1187L | | 0.0000 | 0.00 | 0.00 | 0.00 | 6.00 | $22,050 | $0 |
| 2 | 4130-1245S | | 0.0000 | 0.00 | 0.00 | 0.00 | 1.00 | $126,000 | $0 |
Roll Value History
| 2026 | N/A | N/A | N/A | N/A | N/A |
| 2025 | $283,858 | $148,050 | $0 | $431,908 | $431,908 |
| 2024 | $283,858 | $148,050 | $0 | $431,908 | $431,908 |
| 2023 | $270,956 | $136,000 | $0 | $406,956 | $406,956 |
| 2022 | $238,018 | $115,600 | $0 | $353,618 | $353,618 |
Deed and Sales History
| 1 | 01/29/2023 | QCD | Quit Claim Deed | ANDREA DICKEY | DICKEY FAMILY REVOCABLE TRUST | | | | 140443 | |
| 2 | 03/30/1999 | QCD | Quit Claim Deed | DICKEY, ANDREA | DICKEY, ROBERT L/ANDREA | 0 | 0 | $0.00 | 86626 | 0 |
| 3 | 11/01/1994 | QCD | Quit Claim Deed | SASS, HILDEGARD | DICKEY, ANDREA | 0 | 0 | $0.00 | 75469 | 0 |
| 4 | 05/24/1993 | SWD | Statutory Warranty Deed | ABERCROMBIE, DAVID R/DEBO | SAAS, HILDEGARD | 0 | 0 | $21,500.00 | 71273 | 0 |
Payout Agreement
| No payout information available.. |