Property
Account |
| Property ID: | 31164 | Abbreviated Legal Description: | IRONDALE #1 BLK 33 LOTS 1 TO 4 |
| Parcel # / Geo ID: | 961803301 | Agent Code: | |
| Type: | Real | | |
| Tax Area: | 0211 - 1-49F1E1H2L1 | Land Use Code | 91 |
| Open Space: | N | DFL | N |
| Historic Property: | N | Remodel Property: | N |
| Multi-Family Redevelopment: | N | | |
| Township: | 30N | Section: | 35 |
| Range: | 1W |
Location |
| Address: | | Mapsco: | 039/053 |
| Neighborhood: | IRONDALE BLOCKS 1 - 47 | Map ID: | |
| Neighborhood CD: | 4130 |
Owner |
| Name: | BRENT & KATHY SCHEIWE | Owner ID: | 110161 |
| Mailing Address: | 5920 BIXBY VILLAGE DR APT 120 LONG BEACH, CA 90803-6318 | % Ownership: | 100.0000000000% |
| | | Exemptions: | |
Pay Tax Due
There is currently No Amount Due on this property.
Taxes and Assessment Details
Property Tax Information as of
03/10/2026
Click on "Statement Details" to expand or collapse a tax statement.
* Please enter a valid date ** Please enter a valid date *
Statement Details |
| 2026 | 20453 | STATE - STATE LEVY (SCHOOL) | $8.16 | $8.14 | $0.00 | $0.00 | $16.30 | $0.00 |
| 2026 | 20453 | COUNTY - COUNTY LEVIES (CE, DD, VET, MH) | $3.26 | $3.26 | $0.00 | $0.00 | $6.52 | $0.00 |
| 2026 | 20453 | CONSERVE - CONSERVATION FUTURES | $0.10 | $0.10 | $0.00 | $0.00 | $0.20 | $0.00 |
| 2026 | 20453 | COROADS - COUNTY ROADS (ROADS, DIV TO CE) | $2.63 | $2.63 | $0.00 | $0.00 | $5.26 | $0.00 |
| 2026 | 20453 | PORTPT - PORT DISTRICT | $1.32 | $1.31 | $0.00 | $0.00 | $2.63 | $0.00 |
| 2026 | 20453 | PUD1 - PUD #1 | $0.21 | $0.21 | $0.00 | $0.00 | $0.42 | $0.00 |
| 2026 | 20453 | LIB1 - LIBRARY DIST #1 | $1.02 | $1.01 | $0.00 | $0.00 | $2.03 | $0.00 |
| 2026 | 20453 | HD2 - HOSP DIST #2 | $0.19 | $0.19 | $0.00 | $0.00 | $0.38 | $0.00 |
| 2026 | 20453 | SD49 - SCHOOL DIST #49 | $4.49 | $4.48 | $0.00 | $0.00 | $8.97 | $0.00 |
| 2026 | 20453 | FD1 - FIRE DISTRICT #1 | $4.32 | $4.31 | $0.00 | $0.00 | $8.63 | $0.00 |
| 2026 | 20453 | EMS1 - FIRE DIST #1 EMS | $1.66 | $1.66 | $0.00 | $0.00 | $3.32 | $0.00 |
| 2026 | 20453 | FPLCA - DNR Landowner Contingency Assmt | $3.00 | $3.00 | $0.00 | $0.00 | $6.00 | $0.00 |
| 2026 | 20453 | JCCD - JC Conservation District | $2.53 | $2.53 | $0.00 | $0.00 | $5.06 | $0.00 |
| 2026 | 20453 | NWA - Noxious Weed Assessment | $2.98 | $2.97 | $0.00 | $0.00 | $5.95 | $0.00 |
| 2026 | 20453 | WAT - Clean Water District | $13.00 | $13.00 | $0.00 | $0.00 | $26.00 | $0.00 |
| 2026 | 20453 | TOTAL: | $48.87 | $48.80 | $0.00 | $0.00 | $97.67 | $0.00 |
|
| 2026 | 20453 | $48.87 | $48.80 | $0.00 | $0.00 | $97.67 | $0.00 |
Statement Details |
| 2025 | 20514 | STATE - STATE LEVY (SCHOOL) | $7.56 | $7.55 | $0.00 | $0.00 | $15.11 | $0.00 |
| 2025 | 20514 | COUNTY - COUNTY LEVIES (CE, DD, VET, MH) | $2.98 | $2.95 | $0.00 | $0.00 | $5.93 | $0.00 |
| 2025 | 20514 | CONSERVE - CONSERVATION FUTURES | $0.09 | $0.09 | $0.00 | $0.00 | $0.18 | $0.00 |
| 2025 | 20514 | COROADS - COUNTY ROADS (ROADS, DIV TO CE) | $2.38 | $2.38 | $0.00 | $0.00 | $4.76 | $0.00 |
| 2025 | 20514 | PORTPT - PORT DISTRICT | $1.22 | $1.20 | $0.00 | $0.00 | $2.42 | $0.00 |
| 2025 | 20514 | PUD1 - PUD #1 | $0.20 | $0.19 | $0.00 | $0.00 | $0.39 | $0.00 |
| 2025 | 20514 | LIB1 - LIBRARY DIST #1 | $0.92 | $0.92 | $0.00 | $0.00 | $1.84 | $0.00 |
| 2025 | 20514 | HD2 - HOSP DIST #2 | $0.18 | $0.17 | $0.00 | $0.00 | $0.35 | $0.00 |
| 2025 | 20514 | SD49 - SCHOOL DIST #49 | $4.06 | $4.04 | $0.00 | $0.00 | $8.10 | $0.00 |
| 2025 | 20514 | FD1 - FIRE DISTRICT #1 | $3.92 | $3.92 | $0.00 | $0.00 | $7.84 | $0.00 |
| 2025 | 20514 | EMS1 - FIRE DIST #1 EMS | $1.51 | $1.51 | $0.00 | $0.00 | $3.02 | $0.00 |
| 2025 | 20514 | FPLCA - DNR Landowner Contingency Assmt | $3.00 | $3.00 | $0.00 | $0.00 | $6.00 | $0.00 |
| 2025 | 20514 | JCCD - JC Conservation District | $2.53 | $2.53 | $0.00 | $0.00 | $5.06 | $0.00 |
| 2025 | 20514 | NWA - Noxious Weed Assessment | $2.15 | $2.15 | $0.00 | $0.00 | $4.30 | $0.00 |
| 2025 | 20514 | WAT - Clean Water District | $13.00 | $13.00 | $0.00 | $0.00 | $26.00 | $0.00 |
| 2025 | 20514 | TOTAL: | $45.70 | $45.60 | $0.00 | $0.00 | $91.30 | $0.00 |
|
| 2025 | 20514 | $45.70 | $45.60 | $0.00 | $0.00 | $91.30 | $0.00 |
Statement Details |
| 2024 | 0 | FORE2 - FORECLOSURE PHASE 2 | $0.00 | $0.00 | $0.00 | $0.00 | $0.00 | $0.00 |
| 2024 | 0 | TOTAL: | $0.00 | $0.00 | $0.00 | $0.00 | $0.00 | $0.00 |
|
| 2024 | 0 | $0.00 | $0.00 | $0.00 | $0.00 | $0.00 | $0.00 |
Statement Details |
| 2024 | 20556 | STATE - STATE LEVY (SCHOOL) | $6.95 | $6.93 | $0.00 | $0.00 | $13.88 | $0.00 |
| 2024 | 20556 | COUNTY - COUNTY LEVIES (CE, DD, VET, MH) | $2.98 | $2.95 | $0.00 | $0.00 | $5.93 | $0.00 |
| 2024 | 20556 | CONSERVE - CONSERVATION FUTURES | $0.09 | $0.09 | $0.00 | $0.00 | $0.18 | $0.00 |
| 2024 | 20556 | COROADS - COUNTY ROADS (ROADS, DIV TO CE) | $2.39 | $2.39 | $0.00 | $0.00 | $4.78 | $0.00 |
| 2024 | 20556 | PORTPT - PORT DISTRICT | $1.23 | $1.22 | $0.00 | $0.00 | $2.45 | $0.00 |
| 2024 | 20556 | PUD1 - PUD #1 | $0.20 | $0.19 | $0.00 | $0.00 | $0.39 | $0.00 |
| 2024 | 20556 | LIB1 - LIBRARY DIST #1 | $0.93 | $0.92 | $0.00 | $0.00 | $1.85 | $0.00 |
| 2024 | 20556 | HD2 - HOSP DIST #2 | $0.18 | $0.17 | $0.00 | $0.00 | $0.35 | $0.00 |
| 2024 | 20556 | SD49 - SCHOOL DIST #49 | $3.11 | $3.09 | $0.00 | $0.00 | $6.20 | $0.00 |
| 2024 | 20556 | FD1 - FIRE DISTRICT #1 | $3.93 | $3.92 | $0.00 | $0.00 | $7.85 | $0.00 |
| 2024 | 20556 | EMS1 - FIRE DIST #1 EMS | $1.50 | $1.50 | $0.00 | $0.00 | $3.00 | $0.00 |
| 2024 | 20556 | FP - DNR Forest Fire Protection Assmt | $8.50 | $8.50 | $0.00 | $0.00 | $17.00 | $0.00 |
| 2024 | 20556 | FPLCA - DNR Landowner Contingency Assmt | $3.00 | $3.00 | $0.00 | $0.00 | $6.00 | $0.00 |
| 2024 | 20556 | JCCD - JC Conservation District | $2.53 | $2.53 | $0.00 | $0.00 | $5.06 | $0.00 |
| 2024 | 20556 | NWA - Noxious Weed Assessment | $2.15 | $2.15 | $0.00 | $0.00 | $4.30 | $0.00 |
| 2024 | 20556 | WAT - Clean Water District | $12.50 | $12.50 | $0.00 | $0.00 | $25.00 | $0.00 |
| 2024 | 20556 | FP ADMIN - FP ADMIN | $0.50 | $0.00 | $0.00 | $0.00 | $0.50 | $0.00 |
| 2024 | 20556 | TOTAL: | $52.67 | $52.05 | $0.00 | $0.00 | $104.72 | $0.00 |
|
| 2024 | 20556 | $52.67 | $52.05 | $0.00 | $0.00 | $104.72 | $0.00 |
Statement Details |
| 2023 | 20593 | STATE - STATE LEVY (SCHOOL) | $6.63 | $6.61 | $0.00 | $0.00 | $13.24 | $0.00 |
| 2023 | 20593 | COUNTY - COUNTY LEVIES (CE, DD, VET, MH) | $2.90 | $2.87 | $0.00 | $0.00 | $5.77 | $0.00 |
| 2023 | 20593 | CONSERVE - CONSERVATION FUTURES | $0.09 | $0.08 | $0.00 | $0.00 | $0.17 | $0.00 |
| 2023 | 20593 | COROADS - COUNTY ROADS (ROADS, DIV TO CE) | $2.35 | $2.33 | $0.00 | $0.00 | $4.68 | $0.00 |
| 2023 | 20593 | PORTPT - PORT DISTRICT | $1.22 | $1.21 | $0.00 | $0.00 | $2.43 | $0.00 |
| 2023 | 20593 | PUD1 - PUD #1 | $0.19 | $0.19 | $0.00 | $0.00 | $0.38 | $0.00 |
| 2023 | 20593 | LIB1 - LIBRARY DIST #1 | $0.91 | $0.90 | $0.00 | $0.00 | $1.81 | $0.00 |
| 2023 | 20593 | HD2 - HOSP DIST #2 | $0.18 | $0.16 | $0.00 | $0.00 | $0.34 | $0.00 |
| 2023 | 20593 | SD49 - SCHOOL DIST #49 | $3.10 | $3.09 | $0.00 | $0.00 | $6.19 | $0.00 |
| 2023 | 20593 | FD1 - FIRE DISTRICT #1 | $2.38 | $2.38 | $0.00 | $0.00 | $4.76 | $0.00 |
| 2023 | 20593 | EMS1 - FIRE DIST #1 EMS | $1.01 | $1.01 | $0.00 | $0.00 | $2.02 | $0.00 |
| 2023 | 20593 | FPLCA - DNR Landowner Contingency Assmt | $3.00 | $3.00 | $0.00 | $0.00 | $6.00 | $0.00 |
| 2023 | 20593 | JCCD - JC Conservation District | $2.53 | $2.53 | $0.00 | $0.00 | $5.06 | $0.00 |
| 2023 | 20593 | NWA - Noxious Weed Assessment | $2.15 | $2.15 | $0.00 | $0.00 | $4.30 | $0.00 |
| 2023 | 20593 | WAT - Clean Water District | $12.00 | $12.00 | $0.00 | $0.00 | $24.00 | $0.00 |
| 2023 | 20593 | TOTAL: | $40.64 | $40.51 | $0.00 | $0.00 | $81.15 | $0.00 |
|
| 2023 | 20593 | $40.64 | $40.51 | $0.00 | $0.00 | $81.15 | $0.00 |
Values
| (+) Improvement Homesite Value: | + | $0 | |
| (+) Improvement Non-Homesite Value: | + | $0 | |
| (+) Land Homesite Value: | + | $0 | |
| (+) Land Non-Homesite Value: | + | $7,088 | |
| (+) Curr Use (HS): | + | $0 | $0 |
| (+) Curr Use (NHS): | + | $0 | $0 |
| | | -------------------------- | |
| (=) Market Value: | = | $7,088 | |
| (–) Productivity Loss: | – | $0 | |
| | | -------------------------- | |
| (=) Subtotal: | = | $7,088 | |
| (+) Senior Appraised Value: | + | $0 | |
| (+) Non-Senior Appraised Value: | + | $7,088 | |
| | | -------------------------- | |
| (=) Total Appraised Value: | = | $7,088 | |
| (–) Senior Exemption Loss: | – | $0 | |
| (–) Exemption Loss: | – | $0 | |
| | | -------------------------- | |
| (=) Taxable Value: | = | $7,088 | |
Taxing Jurisdiction
| Owner: | BRENT & KATHY SCHEIWE | | |
| % Ownership: | 100.0000000000% | | |
| Total Value: | $7,088 | | |
| Tax Area: | 0211 - 1-49F1E1H2L1 |
| CE | COUNTY CURRENT EXPENSE | 0.9034619479 | $7,088 | $7,088 | $6.40 | | |
| CNTYDD | DEVELOPMENTAL DISABILITIES | 0.0052121823 | $7,088 | $7,088 | $0.04 | | |
| CNTYVET | VETERANS RELIEF | 0.0052777810 | $7,088 | $7,088 | $0.04 | | |
| MENTAL | MENTAL HEALTH | 0.0052121823 | $7,088 | $7,088 | $0.04 | | |
| ROADS | COUNTY ROADS | 0.7415066410 | $7,088 | $7,088 | $5.26 | | |
| ROADSCU | COUNTY ROADS TO CUR EXP | 0.0000000000 | $7,088 | $7,088 | $0.00 | | |
| HOSP2CASH | HOSP DIST #2 GENERAL | 0.0536075306 | $7,088 | $7,088 | $0.38 | | |
| SCH49CP | SCHOOL DIST #49 CAP PROJ | 0.6279093905 | $7,088 | $7,088 | $4.45 | | |
| SCH49MO | SCHOOL DIST #49 EP & O | 0.6376483602 | $7,088 | $7,088 | $4.52 | | |
| CONSERVE | CONSERVATION FUTURES | 0.0275621078 | $7,088 | $7,088 | $0.20 | | |
| EMS1 | FIRE DIST #1 EMS | 0.4679948282 | $7,088 | $7,088 | $3.32 | | |
| FD1 | FIRE DIST #1 GENERAL | 1.2171942929 | $7,088 | $7,088 | $8.63 | | |
| LIB1 | LIBRARY DIST #1 GENERAL | 0.2868827388 | $7,088 | $7,088 | $2.03 | | |
| PORTPT | PORT OF PT GENERAL | 0.1134941229 | $7,088 | $7,088 | $0.80 | | |
| PORTPTIDD | PORT OF PT IDD 2019 | 0.2577346692 | $7,088 | $7,088 | $1.83 | | |
| PUD1 | PUD #1 GENERAL | 0.0597888892 | $7,088 | $7,088 | $0.42 | | |
| STATE | STATE SCHOOL PART 1 | 1.4940692947 | $7,088 | $7,088 | $10.59 | | |
| STATE2 | STATE SCHOOL PART 2 | 0.8050170049 | $7,088 | $7,088 | $5.71 | | |
| | Total Tax Rate: | 7.7095739644 | | | | | |
| | | | | Taxes w/Current Exemptions: | $54.66 | | |
| | | | | Taxes w/o Exemptions: | $54.66 | | |
Improvement / Building
Sketch
| No sketches available for this property. |
Property Image
Land
| 1 | 4130-1167L | | 0.0000 | 0.00 | 0.00 | 0.00 | 2.00 | $7,088 | $0 |
Roll Value History
| 2026 | N/A | N/A | N/A | N/A | N/A |
| 2025 | $0 | $7,088 | $0 | $7,088 | $7,088 |
| 2024 | $0 | $6,300 | $0 | $6,300 | $6,300 |
| 2023 | $0 | $6,000 | $0 | $6,000 | $6,000 |
| 2022 | $0 | $5,625 | $0 | $5,625 | $5,625 |
Deed and Sales History
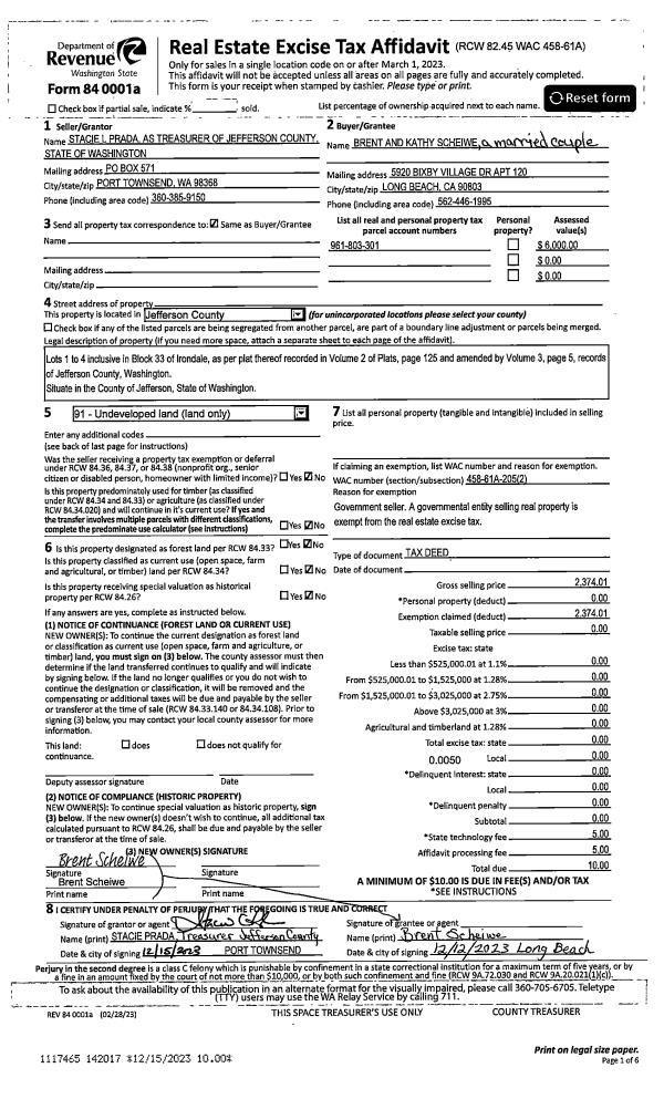
| 1 | 12/15/2023 | TXD | Tax Deed | JEFFERSON COUNTY TREASURER | BRENT & KATHY SCHEIWE | | | $2,374.00 | 142017 | |
Payout Agreement
| No payout information available.. |