Property
Account |
| Property ID: | 31232 | Abbreviated Legal Description: | IRONDALE #1 BLK 42 LOTS 35 & 36 |
| Parcel # / Geo ID: | 961804208 | Agent Code: | |
| Type: | Real | | |
| Tax Area: | 0211 - 1-49F1E1H2L1 | Land Use Code | 91 |
| Open Space: | N | DFL | N |
| Historic Property: | N | Remodel Property: | N |
| Multi-Family Redevelopment: | N | | |
| Township: | 30N | Section: | 35 |
| Range: | 1W |
Location |
| Address: | | Mapsco: | 040/074 |
| Neighborhood: | IRONDALE BLOCKS 1 - 47 | Map ID: | |
| Neighborhood CD: | 4130 |
Owner |
| Name: | MELVIN D & HELEN G WILLIAMS | Owner ID: | 87271 |
| Mailing Address: | 992 N LITTLEJOHN WAY SEQUIM, WA 98382-5054 | % Ownership: | 100.0000000000% |
| | | Exemptions: | |
Pay Tax Due
Select the appropriate checkbox next to the year to be paid. Multiple years may be selected.
*Convenience Fee not included
Taxes and Assessment Details
Property Tax Information as of
03/10/2026
Click on "Statement Details" to expand or collapse a tax statement.
* Please enter a valid date ** Please enter a valid date *
Statement Details |
| 2026 | 20518 | STATE - STATE LEVY (SCHOOL) | $3.70 | $3.69 | $0.00 | $0.00 | $0.00 | $7.39 |
| 2026 | 20518 | COUNTY - COUNTY LEVIES (CE, DD, VET, MH) | $1.48 | $1.48 | $0.00 | $0.00 | $0.00 | $2.96 |
| 2026 | 20518 | CONSERVE - CONSERVATION FUTURES | $0.05 | $0.04 | $0.00 | $0.00 | $0.00 | $0.09 |
| 2026 | 20518 | COROADS - COUNTY ROADS (ROADS, DIV TO CE) | $1.19 | $1.19 | $0.00 | $0.00 | $0.00 | $2.38 |
| 2026 | 20518 | PORTPT - PORT DISTRICT | $0.60 | $0.59 | $0.00 | $0.00 | $0.00 | $1.19 |
| 2026 | 20518 | PUD1 - PUD #1 | $0.10 | $0.09 | $0.00 | $0.00 | $0.00 | $0.19 |
| 2026 | 20518 | LIB1 - LIBRARY DIST #1 | $0.46 | $0.46 | $0.00 | $0.00 | $0.00 | $0.92 |
| 2026 | 20518 | HD2 - HOSP DIST #2 | $0.09 | $0.08 | $0.00 | $0.00 | $0.00 | $0.17 |
| 2026 | 20518 | SD49 - SCHOOL DIST #49 | $2.04 | $2.03 | $0.00 | $0.00 | $0.00 | $4.07 |
| 2026 | 20518 | FD1 - FIRE DISTRICT #1 | $1.96 | $1.95 | $0.00 | $0.00 | $0.00 | $3.91 |
| 2026 | 20518 | EMS1 - FIRE DIST #1 EMS | $0.75 | $0.75 | $0.00 | $0.00 | $0.00 | $1.50 |
| 2026 | 20518 | FPLCA - DNR Landowner Contingency Assmt | $3.00 | $3.00 | $0.00 | $0.00 | $0.00 | $6.00 |
| 2026 | 20518 | JCCD - JC Conservation District | $2.53 | $2.53 | $0.00 | $0.00 | $0.00 | $5.06 |
| 2026 | 20518 | NWA - Noxious Weed Assessment | $2.98 | $2.97 | $0.00 | $0.00 | $0.00 | $5.95 |
| 2026 | 20518 | WAT - Clean Water District | $13.00 | $13.00 | $0.00 | $0.00 | $0.00 | $26.00 |
| 2026 | 20518 | TOTAL: | $33.93 | $33.85 | $0.00 | $0.00 | $0.00 | $67.78 |
|
| 2026 | 20518 | $33.93 | $33.85 | $0.00 | $0.00 | $0.00 | $67.78 |
Statement Details |
| 2025 | 20579 | STATE - STATE LEVY (SCHOOL) | $3.86 | $3.85 | $0.00 | $0.00 | $7.71 | $0.00 |
| 2025 | 20579 | COUNTY - COUNTY LEVIES (CE, DD, VET, MH) | $1.52 | $1.52 | $0.00 | $0.00 | $3.04 | $0.00 |
| 2025 | 20579 | CONSERVE - CONSERVATION FUTURES | $0.05 | $0.04 | $0.00 | $0.00 | $0.09 | $0.00 |
| 2025 | 20579 | COROADS - COUNTY ROADS (ROADS, DIV TO CE) | $1.21 | $1.21 | $0.00 | $0.00 | $2.42 | $0.00 |
| 2025 | 20579 | PORTPT - PORT DISTRICT | $0.62 | $0.61 | $0.00 | $0.00 | $1.23 | $0.00 |
| 2025 | 20579 | PUD1 - PUD #1 | $0.10 | $0.10 | $0.00 | $0.00 | $0.20 | $0.00 |
| 2025 | 20579 | LIB1 - LIBRARY DIST #1 | $0.47 | $0.47 | $0.00 | $0.00 | $0.94 | $0.00 |
| 2025 | 20579 | HD2 - HOSP DIST #2 | $0.09 | $0.09 | $0.00 | $0.00 | $0.18 | $0.00 |
| 2025 | 20579 | SD49 - SCHOOL DIST #49 | $2.07 | $2.05 | $0.00 | $0.00 | $4.12 | $0.00 |
| 2025 | 20579 | FD1 - FIRE DISTRICT #1 | $2.00 | $2.00 | $0.00 | $0.00 | $4.00 | $0.00 |
| 2025 | 20579 | EMS1 - FIRE DIST #1 EMS | $0.77 | $0.77 | $0.00 | $0.00 | $1.54 | $0.00 |
| 2025 | 20579 | FPLCA - DNR Landowner Contingency Assmt | $3.00 | $3.00 | $0.00 | $0.00 | $6.00 | $0.00 |
| 2025 | 20579 | JCCD - JC Conservation District | $2.53 | $2.53 | $0.00 | $0.00 | $5.06 | $0.00 |
| 2025 | 20579 | NWA - Noxious Weed Assessment | $2.15 | $2.15 | $0.00 | $0.00 | $4.30 | $0.00 |
| 2025 | 20579 | WAT - Clean Water District | $13.00 | $13.00 | $0.00 | $0.00 | $26.00 | $0.00 |
| 2025 | 20579 | TOTAL: | $33.44 | $33.39 | $0.00 | $0.00 | $66.83 | $0.00 |
|
| 2025 | 20579 | $33.44 | $33.39 | $0.00 | $0.00 | $66.83 | $0.00 |
Statement Details |
| 2024 | 20621 | STATE - STATE LEVY (SCHOOL) | $3.55 | $3.53 | $0.00 | $0.00 | $7.08 | $0.00 |
| 2024 | 20621 | COUNTY - COUNTY LEVIES (CE, DD, VET, MH) | $1.52 | $1.52 | $0.00 | $0.00 | $3.04 | $0.00 |
| 2024 | 20621 | CONSERVE - CONSERVATION FUTURES | $0.05 | $0.04 | $0.00 | $0.00 | $0.09 | $0.00 |
| 2024 | 20621 | COROADS - COUNTY ROADS (ROADS, DIV TO CE) | $1.22 | $1.22 | $0.00 | $0.00 | $2.44 | $0.00 |
| 2024 | 20621 | PORTPT - PORT DISTRICT | $0.63 | $0.62 | $0.00 | $0.00 | $1.25 | $0.00 |
| 2024 | 20621 | PUD1 - PUD #1 | $0.10 | $0.10 | $0.00 | $0.00 | $0.20 | $0.00 |
| 2024 | 20621 | LIB1 - LIBRARY DIST #1 | $0.47 | $0.47 | $0.00 | $0.00 | $0.94 | $0.00 |
| 2024 | 20621 | HD2 - HOSP DIST #2 | $0.09 | $0.09 | $0.00 | $0.00 | $0.18 | $0.00 |
| 2024 | 20621 | SD49 - SCHOOL DIST #49 | $1.59 | $1.58 | $0.00 | $0.00 | $3.17 | $0.00 |
| 2024 | 20621 | FD1 - FIRE DISTRICT #1 | $2.01 | $2.00 | $0.00 | $0.00 | $4.01 | $0.00 |
| 2024 | 20621 | EMS1 - FIRE DIST #1 EMS | $0.77 | $0.76 | $0.00 | $0.00 | $1.53 | $0.00 |
| 2024 | 20621 | FPLCA - DNR Landowner Contingency Assmt | $3.00 | $3.00 | $0.00 | $0.00 | $6.00 | $0.00 |
| 2024 | 20621 | JCCD - JC Conservation District | $2.53 | $2.53 | $0.00 | $0.00 | $5.06 | $0.00 |
| 2024 | 20621 | NWA - Noxious Weed Assessment | $2.15 | $2.15 | $0.00 | $0.00 | $4.30 | $0.00 |
| 2024 | 20621 | WAT - Clean Water District | $12.50 | $12.50 | $0.00 | $0.00 | $25.00 | $0.00 |
| 2024 | 20621 | TOTAL: | $32.18 | $32.11 | $0.00 | $0.00 | $64.29 | $0.00 |
|
| 2024 | 20621 | $32.18 | $32.11 | $0.00 | $0.00 | $64.29 | $0.00 |
Statement Details |
| 2023 | 20658 | STATE - STATE LEVY (SCHOOL) | $2.87 | $2.85 | $0.00 | $0.00 | $5.72 | $0.00 |
| 2023 | 20658 | COUNTY - COUNTY LEVIES (CE, DD, VET, MH) | $1.26 | $1.22 | $0.00 | $0.00 | $2.48 | $0.00 |
| 2023 | 20658 | CONSERVE - CONSERVATION FUTURES | $0.04 | $0.03 | $0.00 | $0.00 | $0.07 | $0.00 |
| 2023 | 20658 | COROADS - COUNTY ROADS (ROADS, DIV TO CE) | $1.02 | $1.00 | $0.00 | $0.00 | $2.02 | $0.00 |
| 2023 | 20658 | PORTPT - PORT DISTRICT | $0.53 | $0.52 | $0.00 | $0.00 | $1.05 | $0.00 |
| 2023 | 20658 | PUD1 - PUD #1 | $0.09 | $0.08 | $0.00 | $0.00 | $0.17 | $0.00 |
| 2023 | 20658 | LIB1 - LIBRARY DIST #1 | $0.39 | $0.39 | $0.00 | $0.00 | $0.78 | $0.00 |
| 2023 | 20658 | HD2 - HOSP DIST #2 | $0.07 | $0.07 | $0.00 | $0.00 | $0.14 | $0.00 |
| 2023 | 20658 | SD49 - SCHOOL DIST #49 | $1.34 | $1.34 | $0.00 | $0.00 | $2.68 | $0.00 |
| 2023 | 20658 | FD1 - FIRE DISTRICT #1 | $1.03 | $1.03 | $0.00 | $0.00 | $2.06 | $0.00 |
| 2023 | 20658 | EMS1 - FIRE DIST #1 EMS | $0.44 | $0.43 | $0.00 | $0.00 | $0.87 | $0.00 |
| 2023 | 20658 | FPLCA - DNR Landowner Contingency Assmt | $3.00 | $3.00 | $0.00 | $0.00 | $6.00 | $0.00 |
| 2023 | 20658 | JCCD - JC Conservation District | $2.53 | $2.53 | $0.00 | $0.00 | $5.06 | $0.00 |
| 2023 | 20658 | NWA - Noxious Weed Assessment | $2.15 | $2.15 | $0.00 | $0.00 | $4.30 | $0.00 |
| 2023 | 20658 | WAT - Clean Water District | $12.00 | $12.00 | $0.00 | $0.00 | $24.00 | $0.00 |
| 2023 | 20658 | TOTAL: | $28.76 | $28.64 | $0.00 | $0.00 | $57.40 | $0.00 |
|
| 2023 | 20658 | $28.76 | $28.64 | $0.00 | $0.00 | $57.40 | $0.00 |
Values
| (+) Improvement Homesite Value: | + | $0 | |
| (+) Improvement Non-Homesite Value: | + | $0 | |
| (+) Land Homesite Value: | + | $0 | |
| (+) Land Non-Homesite Value: | + | $3,213 | |
| (+) Curr Use (HS): | + | $0 | $0 |
| (+) Curr Use (NHS): | + | $0 | $0 |
| | | -------------------------- | |
| (=) Market Value: | = | $3,213 | |
| (–) Productivity Loss: | – | $0 | |
| | | -------------------------- | |
| (=) Subtotal: | = | $3,213 | |
| (+) Senior Appraised Value: | + | $0 | |
| (+) Non-Senior Appraised Value: | + | $3,213 | |
| | | -------------------------- | |
| (=) Total Appraised Value: | = | $3,213 | |
| (–) Senior Exemption Loss: | – | $0 | |
| (–) Exemption Loss: | – | $0 | |
| | | -------------------------- | |
| (=) Taxable Value: | = | $3,213 | |
Taxing Jurisdiction
| Owner: | MELVIN D & HELEN G WILLIAMS | | |
| % Ownership: | 100.0000000000% | | |
| Total Value: | $3,213 | | |
| Tax Area: | 0211 - 1-49F1E1H2L1 |
| CE | COUNTY CURRENT EXPENSE | 0.9034619479 | $3,213 | $3,213 | $2.90 | | |
| CNTYDD | DEVELOPMENTAL DISABILITIES | 0.0052121823 | $3,213 | $3,213 | $0.02 | | |
| CNTYVET | VETERANS RELIEF | 0.0052777810 | $3,213 | $3,213 | $0.02 | | |
| MENTAL | MENTAL HEALTH | 0.0052121823 | $3,213 | $3,213 | $0.02 | | |
| ROADS | COUNTY ROADS | 0.7415066410 | $3,213 | $3,213 | $2.38 | | |
| ROADSCU | COUNTY ROADS TO CUR EXP | 0.0000000000 | $3,213 | $3,213 | $0.00 | | |
| HOSP2CASH | HOSP DIST #2 GENERAL | 0.0536075306 | $3,213 | $3,213 | $0.17 | | |
| SCH49CP | SCHOOL DIST #49 CAP PROJ | 0.6279093905 | $3,213 | $3,213 | $2.02 | | |
| SCH49MO | SCHOOL DIST #49 EP & O | 0.6376483602 | $3,213 | $3,213 | $2.05 | | |
| CONSERVE | CONSERVATION FUTURES | 0.0275621078 | $3,213 | $3,213 | $0.09 | | |
| EMS1 | FIRE DIST #1 EMS | 0.4679948282 | $3,213 | $3,213 | $1.50 | | |
| FD1 | FIRE DIST #1 GENERAL | 1.2171942929 | $3,213 | $3,213 | $3.91 | | |
| LIB1 | LIBRARY DIST #1 GENERAL | 0.2868827388 | $3,213 | $3,213 | $0.92 | | |
| PORTPT | PORT OF PT GENERAL | 0.1134941229 | $3,213 | $3,213 | $0.36 | | |
| PORTPTIDD | PORT OF PT IDD 2019 | 0.2577346692 | $3,213 | $3,213 | $0.83 | | |
| PUD1 | PUD #1 GENERAL | 0.0597888892 | $3,213 | $3,213 | $0.19 | | |
| STATE | STATE SCHOOL PART 1 | 1.4940692947 | $3,213 | $3,213 | $4.80 | | |
| STATE2 | STATE SCHOOL PART 2 | 0.8050170049 | $3,213 | $3,213 | $2.59 | | |
| | Total Tax Rate: | 7.7095739644 | | | | | |
| | | | | Taxes w/Current Exemptions: | $24.77 | | |
| | | | | Taxes w/o Exemptions: | $24.77 | | |
Improvement / Building
Sketch
| No sketches available for this property. |
Property Image
Land
| 1 | 4130-1188L | | 0.0000 | 0.00 | 0.00 | 0.00 | 2.00 | $3,213 | $0 |
Roll Value History
| 2026 | N/A | N/A | N/A | N/A | N/A |
| 2025 | $0 | $3,213 | $0 | $3,213 | $3,213 |
| 2024 | $0 | $3,213 | $0 | $3,213 | $3,213 |
| 2023 | $0 | $3,060 | $0 | $3,060 | $3,060 |
| 2022 | $0 | $2,430 | $0 | $2,430 | $2,430 |
Deed and Sales History
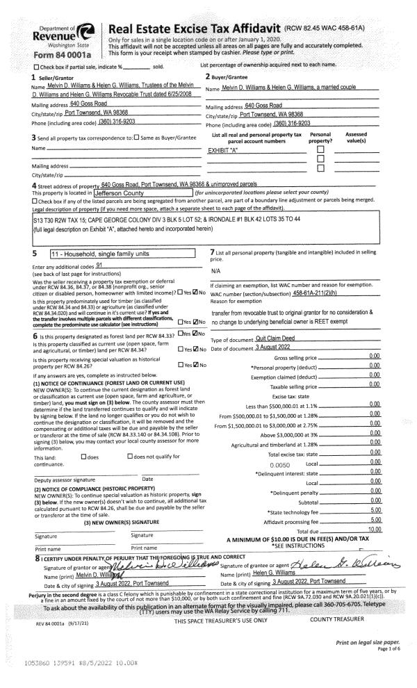
| 1 | 08/03/2022 | QCD | Quit Claim Deed | MELVIN D WILLIAMS TRSTEE | MELVIN D & HELEN G WILLIAMS | | | | 139591 | |
| 2 | 06/25/2008 | QCD | Quit Claim Deed | WILLIAMS, MELVING/HELEN G | WILLIAMS LIVING TRUST | | | $0.00 | 111577 | 0 |
Payout Agreement
| No payout information available.. |