Property
Account |
| Property ID: | 31255 | Abbreviated Legal Description: | IRONDALE #2 BLK 49 LOTS 1 & 2 REST COVE AF#618246 |
| Parcel # / Geo ID: | 961804901 | Agent Code: | |
| Type: | Real | | |
| Tax Area: | 0211 - 1-49F1E1H2L1 | Land Use Code | 18 |
| Open Space: | N | DFL | N |
| Historic Property: | N | Remodel Property: | N |
| Multi-Family Redevelopment: | N | | |
| Township: | 30N | Section: | 34 |
| Range: | 1W |
Location |
| Address: | 40 W SWANEY ST PORT HADLOCK, WA 98339 | Mapsco: | 041/038 |
| Neighborhood: | IRONDALE BLOCKS 48 - 92 | Map ID: | |
| Neighborhood CD: | 4125 |
Owner |
| Name: | SAMUEL BAIN | Owner ID: | 10828 |
| Mailing Address: | 60 W SWANEY ST PORT HADLOCK, WA 98339-9630 | % Ownership: | 100.0000000000% |
| | | Exemptions: | |
Pay Tax Due
Select the appropriate checkbox next to the year to be paid. Multiple years may be selected.
*Convenience Fee not included
Taxes and Assessment Details
Property Tax Information as of
03/11/2026
Click on "Statement Details" to expand or collapse a tax statement.
* Please enter a valid date ** Please enter a valid date *
Statement Details |
| 2026 | 20541 | STATE - STATE LEVY (SCHOOL) | $32.71 | $32.70 | $0.00 | $0.00 | $0.00 | $65.41 |
| 2026 | 20541 | COUNTY - COUNTY LEVIES (CE, DD, VET, MH) | $13.09 | $13.06 | $0.00 | $0.00 | $0.00 | $26.15 |
| 2026 | 20541 | CONSERVE - CONSERVATION FUTURES | $0.39 | $0.39 | $0.00 | $0.00 | $0.00 | $0.78 |
| 2026 | 20541 | COROADS - COUNTY ROADS (ROADS, DIV TO CE) | $10.55 | $10.55 | $0.00 | $0.00 | $0.00 | $21.10 |
| 2026 | 20541 | PORTPT - PORT DISTRICT | $5.29 | $5.27 | $0.00 | $0.00 | $0.00 | $10.56 |
| 2026 | 20541 | PUD1 - PUD #1 | $0.85 | $0.85 | $0.00 | $0.00 | $0.00 | $1.70 |
| 2026 | 20541 | LIB1 - LIBRARY DIST #1 | $4.08 | $4.08 | $0.00 | $0.00 | $0.00 | $8.16 |
| 2026 | 20541 | HD2 - HOSP DIST #2 | $0.77 | $0.76 | $0.00 | $0.00 | $0.00 | $1.53 |
| 2026 | 20541 | SD49 - SCHOOL DIST #49 | $18.00 | $18.00 | $0.00 | $0.00 | $0.00 | $36.00 |
| 2026 | 20541 | FD1 - FIRE DISTRICT #1 | $17.32 | $17.31 | $0.00 | $0.00 | $0.00 | $34.63 |
| 2026 | 20541 | EMS1 - FIRE DIST #1 EMS | $6.66 | $6.65 | $0.00 | $0.00 | $0.00 | $13.31 |
| 2026 | 20541 | JCCD - JC Conservation District | $2.53 | $2.53 | $0.00 | $0.00 | $0.00 | $5.06 |
| 2026 | 20541 | NWA - Noxious Weed Assessment | $2.98 | $2.97 | $0.00 | $0.00 | $0.00 | $5.95 |
| 2026 | 20541 | OSS - On Site Septic | $23.10 | $23.10 | $0.00 | $0.00 | $0.00 | $46.20 |
| 2026 | 20541 | WAT - Clean Water District | $13.00 | $13.00 | $0.00 | $0.00 | $0.00 | $26.00 |
| 2026 | 20541 | TOTAL: | $151.32 | $151.22 | $0.00 | $0.00 | $0.00 | $302.54 |
|
| 2026 | 20541 | $151.32 | $151.22 | $0.00 | $0.00 | $0.00 | $302.54 |
Statement Details |
| 2025 | 20602 | STATE - STATE LEVY (SCHOOL) | $34.12 | $34.10 | $0.00 | $0.00 | $68.22 | $0.00 |
| 2025 | 20602 | COUNTY - COUNTY LEVIES (CE, DD, VET, MH) | $13.43 | $13.39 | $0.00 | $0.00 | $26.82 | $0.00 |
| 2025 | 20602 | CONSERVE - CONSERVATION FUTURES | $0.40 | $0.40 | $0.00 | $0.00 | $0.80 | $0.00 |
| 2025 | 20602 | COROADS - COUNTY ROADS (ROADS, DIV TO CE) | $10.76 | $10.74 | $0.00 | $0.00 | $21.50 | $0.00 |
| 2025 | 20602 | PORTPT - PORT DISTRICT | $5.48 | $5.46 | $0.00 | $0.00 | $10.94 | $0.00 |
| 2025 | 20602 | PUD1 - PUD #1 | $0.88 | $0.88 | $0.00 | $0.00 | $1.76 | $0.00 |
| 2025 | 20602 | LIB1 - LIBRARY DIST #1 | $4.16 | $4.16 | $0.00 | $0.00 | $8.32 | $0.00 |
| 2025 | 20602 | HD2 - HOSP DIST #2 | $0.79 | $0.78 | $0.00 | $0.00 | $1.57 | $0.00 |
| 2025 | 20602 | SD49 - SCHOOL DIST #49 | $18.29 | $18.27 | $0.00 | $0.00 | $36.56 | $0.00 |
| 2025 | 20602 | FD1 - FIRE DISTRICT #1 | $17.70 | $17.70 | $0.00 | $0.00 | $35.40 | $0.00 |
| 2025 | 20602 | EMS1 - FIRE DIST #1 EMS | $6.81 | $6.81 | $0.00 | $0.00 | $13.62 | $0.00 |
| 2025 | 20602 | JCCD - JC Conservation District | $2.55 | $2.55 | $0.00 | $0.00 | $5.10 | $0.00 |
| 2025 | 20602 | NWA - Noxious Weed Assessment | $2.15 | $2.15 | $0.00 | $0.00 | $4.30 | $0.00 |
| 2025 | 20602 | WAT - Clean Water District | $13.00 | $13.00 | $0.00 | $0.00 | $26.00 | $0.00 |
| 2025 | 20602 | TOTAL: | $130.52 | $130.39 | $0.00 | $0.00 | $260.91 | $0.00 |
|
| 2025 | 20602 | $130.52 | $130.39 | $0.00 | $0.00 | $260.91 | $0.00 |
Statement Details |
| 2024 | 20644 | STATE - STATE LEVY (SCHOOL) | $60.27 | $60.26 | $0.00 | $0.00 | $120.53 | $0.00 |
| 2024 | 20644 | COUNTY - COUNTY LEVIES (CE, DD, VET, MH) | $25.80 | $25.77 | $0.00 | $0.00 | $51.57 | $0.00 |
| 2024 | 20644 | CONSERVE - CONSERVATION FUTURES | $0.78 | $0.77 | $0.00 | $0.00 | $1.55 | $0.00 |
| 2024 | 20644 | COROADS - COUNTY ROADS (ROADS, DIV TO CE) | $20.75 | $20.75 | $0.00 | $0.00 | $41.50 | $0.00 |
| 2024 | 20644 | PORTPT - PORT DISTRICT | $10.66 | $10.65 | $0.00 | $0.00 | $21.31 | $0.00 |
| 2024 | 20644 | PUD1 - PUD #1 | $1.70 | $1.69 | $0.00 | $0.00 | $3.39 | $0.00 |
| 2024 | 20644 | LIB1 - LIBRARY DIST #1 | $8.03 | $8.03 | $0.00 | $0.00 | $16.06 | $0.00 |
| 2024 | 20644 | HD2 - HOSP DIST #2 | $1.51 | $1.50 | $0.00 | $0.00 | $3.01 | $0.00 |
| 2024 | 20644 | SD49 - SCHOOL DIST #49 | $26.92 | $26.91 | $0.00 | $0.00 | $53.83 | $0.00 |
| 2024 | 20644 | FD1 - FIRE DISTRICT #1 | $34.10 | $34.10 | $0.00 | $0.00 | $68.20 | $0.00 |
| 2024 | 20644 | EMS1 - FIRE DIST #1 EMS | $13.03 | $13.02 | $0.00 | $0.00 | $26.05 | $0.00 |
| 2024 | 20644 | JCCD - JC Conservation District | $2.55 | $2.55 | $0.00 | $0.00 | $5.10 | $0.00 |
| 2024 | 20644 | NWA - Noxious Weed Assessment | $2.15 | $2.15 | $0.00 | $0.00 | $4.30 | $0.00 |
| 2024 | 20644 | WAT - Clean Water District | $12.50 | $12.50 | $0.00 | $0.00 | $25.00 | $0.00 |
| 2024 | 20644 | TOTAL: | $220.75 | $220.65 | $0.00 | $0.00 | $441.40 | $0.00 |
|
| 2024 | 20644 | $220.75 | $220.65 | $0.00 | $0.00 | $441.40 | $0.00 |
Statement Details |
| 2023 | 20681 | STATE - STATE LEVY (SCHOOL) | $50.78 | $50.77 | $0.00 | $0.00 | $101.55 | $0.00 |
| 2023 | 20681 | COUNTY - COUNTY LEVIES (CE, DD, VET, MH) | $22.17 | $22.13 | $0.00 | $0.00 | $44.30 | $0.00 |
| 2023 | 20681 | CONSERVE - CONSERVATION FUTURES | $0.67 | $0.66 | $0.00 | $0.00 | $1.33 | $0.00 |
| 2023 | 20681 | COROADS - COUNTY ROADS (ROADS, DIV TO CE) | $17.93 | $17.92 | $0.00 | $0.00 | $35.85 | $0.00 |
| 2023 | 20681 | PORTPT - PORT DISTRICT | $9.34 | $9.33 | $0.00 | $0.00 | $18.67 | $0.00 |
| 2023 | 20681 | PUD1 - PUD #1 | $1.47 | $1.47 | $0.00 | $0.00 | $2.94 | $0.00 |
| 2023 | 20681 | LIB1 - LIBRARY DIST #1 | $6.94 | $6.93 | $0.00 | $0.00 | $13.87 | $0.00 |
| 2023 | 20681 | HD2 - HOSP DIST #2 | $1.30 | $1.29 | $0.00 | $0.00 | $2.59 | $0.00 |
| 2023 | 20681 | SD49 - SCHOOL DIST #49 | $23.74 | $23.73 | $0.00 | $0.00 | $47.47 | $0.00 |
| 2023 | 20681 | FD1 - FIRE DISTRICT #1 | $18.25 | $18.25 | $0.00 | $0.00 | $36.50 | $0.00 |
| 2023 | 20681 | EMS1 - FIRE DIST #1 EMS | $7.77 | $7.76 | $0.00 | $0.00 | $15.53 | $0.00 |
| 2023 | 20681 | JCCD - JC Conservation District | $2.55 | $2.55 | $0.00 | $0.00 | $5.10 | $0.00 |
| 2023 | 20681 | NWA - Noxious Weed Assessment | $2.15 | $2.15 | $0.00 | $0.00 | $4.30 | $0.00 |
| 2023 | 20681 | WAT - Clean Water District | $12.00 | $12.00 | $0.00 | $0.00 | $24.00 | $0.00 |
| 2023 | 20681 | TOTAL: | $177.06 | $176.94 | $0.00 | $0.00 | $354.00 | $0.00 |
|
| 2023 | 20681 | $177.06 | $176.94 | $0.00 | $0.00 | $354.00 | $0.00 |
Values
| (+) Improvement Homesite Value: | + | $0 | |
| (+) Improvement Non-Homesite Value: | + | $2,200 | |
| (+) Land Homesite Value: | + | $0 | |
| (+) Land Non-Homesite Value: | + | $26,250 | |
| (+) Curr Use (HS): | + | $0 | $0 |
| (+) Curr Use (NHS): | + | $0 | $0 |
| | | -------------------------- | |
| (=) Market Value: | = | $28,450 | |
| (–) Productivity Loss: | – | $0 | |
| | | -------------------------- | |
| (=) Subtotal: | = | $28,450 | |
| (+) Senior Appraised Value: | + | $0 | |
| (+) Non-Senior Appraised Value: | + | $28,450 | |
| | | -------------------------- | |
| (=) Total Appraised Value: | = | $28,450 | |
| (–) Senior Exemption Loss: | – | $0 | |
| (–) Exemption Loss: | – | $0 | |
| | | -------------------------- | |
| (=) Taxable Value: | = | $28,450 | |
Taxing Jurisdiction
| Owner: | SAMUEL BAIN | | |
| % Ownership: | 100.0000000000% | | |
| Total Value: | $28,450 | | |
| Tax Area: | 0211 - 1-49F1E1H2L1 |
| CE | COUNTY CURRENT EXPENSE | 0.9034619479 | $28,450 | $28,450 | $25.70 | | |
| CNTYDD | DEVELOPMENTAL DISABILITIES | 0.0052121823 | $28,450 | $28,450 | $0.15 | | |
| CNTYVET | VETERANS RELIEF | 0.0052777810 | $28,450 | $28,450 | $0.15 | | |
| MENTAL | MENTAL HEALTH | 0.0052121823 | $28,450 | $28,450 | $0.15 | | |
| ROADS | COUNTY ROADS | 0.7415066410 | $28,450 | $28,450 | $21.10 | | |
| ROADSCU | COUNTY ROADS TO CUR EXP | 0.0000000000 | $28,450 | $28,450 | $0.00 | | |
| HOSP2CASH | HOSP DIST #2 GENERAL | 0.0536075306 | $28,450 | $28,450 | $1.53 | | |
| SCH49CP | SCHOOL DIST #49 CAP PROJ | 0.6279093905 | $28,450 | $28,450 | $17.86 | | |
| SCH49MO | SCHOOL DIST #49 EP & O | 0.6376483602 | $28,450 | $28,450 | $18.14 | | |
| CONSERVE | CONSERVATION FUTURES | 0.0275621078 | $28,450 | $28,450 | $0.78 | | |
| EMS1 | FIRE DIST #1 EMS | 0.4679948282 | $28,450 | $28,450 | $13.31 | | |
| FD1 | FIRE DIST #1 GENERAL | 1.2171942929 | $28,450 | $28,450 | $34.63 | | |
| LIB1 | LIBRARY DIST #1 GENERAL | 0.2868827388 | $28,450 | $28,450 | $8.16 | | |
| PORTPT | PORT OF PT GENERAL | 0.1134941229 | $28,450 | $28,450 | $3.23 | | |
| PORTPTIDD | PORT OF PT IDD 2019 | 0.2577346692 | $28,450 | $28,450 | $7.33 | | |
| PUD1 | PUD #1 GENERAL | 0.0597888892 | $28,450 | $28,450 | $1.70 | | |
| STATE | STATE SCHOOL PART 1 | 1.4940692947 | $28,450 | $28,450 | $42.51 | | |
| STATE2 | STATE SCHOOL PART 2 | 0.8050170049 | $28,450 | $28,450 | $22.90 | | |
| | Total Tax Rate: | 7.7095739644 | | | | | |
| | | | | Taxes w/Current Exemptions: | $219.33 | | |
| | | | | Taxes w/o Exemptions: | $219.33 | | |
Improvement / Building
| Improvement #1: | Site Improvements | State Code: | 18 | 0.0 sqft | Value: | $2,200 |
Sketch
| No sketches available for this property. |
Property Image
Land
| 1 | 4125-1285S | | 0.0000 | 0.00 | 0.00 | 0.00 | 1.00 | $26,250 | $0 |
Roll Value History
| 2026 | N/A | N/A | N/A | N/A | N/A |
| 2025 | $2,200 | $26,250 | $0 | $28,450 | $28,450 |
| 2024 | $2,200 | $26,250 | $0 | $28,450 | $28,450 |
| 2023 | $2,100 | $50,000 | $0 | $52,100 | $52,100 |
| 2022 | $8,136 | $35,000 | $0 | $43,136 | $43,136 |
Deed and Sales History
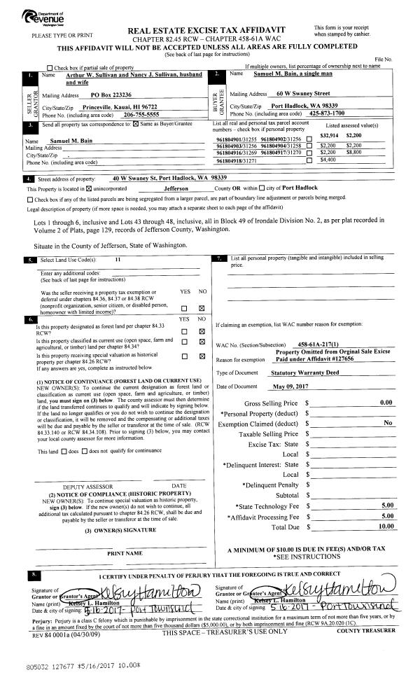
| 1 | 05/09/2017 | SWD | Statutory Warranty Deed | SAMUEL BAIN | | | | | 127677 | |
| 2 | 05/09/2017 | SWD | Statutory Warranty Deed | ARTHUR W SULLIVAN | SAMUEL BAIN | | | $210,000.00 | 127656 | |
|   | |
Payout Agreement
| No payout information available.. |