Property
Account |
| Property ID: | 31256 | Abbreviated Legal Description: | IRONDALE #2 BLK 49 LOT 3 REST COVE AF#618246 |
| Parcel # / Geo ID: | 961804902 | Agent Code: | |
| Type: | Real | | |
| Tax Area: | 0211 - 1-49F1E1H2L1 | Land Use Code | 91 |
| Open Space: | N | DFL | N |
| Historic Property: | N | Remodel Property: | N |
| Multi-Family Redevelopment: | N | | |
| Township: | 30N | Section: | 34 |
| Range: | 1W |
Location |
| Address: | | Mapsco: | 041/039 |
| Neighborhood: | IRONDALE BLOCKS 48 - 92 | Map ID: | |
| Neighborhood CD: | 4125 |
Owner |
| Name: | SAMUEL BAIN | Owner ID: | 10828 |
| Mailing Address: | 60 W SWANEY ST PORT HADLOCK, WA 98339-9630 | % Ownership: | 100.0000000000% |
| | | Exemptions: | |
Pay Tax Due
Select the appropriate checkbox next to the year to be paid. Multiple years may be selected.
*Convenience Fee not included
Taxes and Assessment Details
Property Tax Information as of
03/11/2026
Click on "Statement Details" to expand or collapse a tax statement.
* Please enter a valid date ** Please enter a valid date *
Statement Details |
| 2026 | 20542 | STATE - STATE LEVY (SCHOOL) | $7.25 | $7.23 | $0.00 | $0.00 | $0.00 | $14.48 |
| 2026 | 20542 | COUNTY - COUNTY LEVIES (CE, DD, VET, MH) | $2.91 | $2.87 | $0.00 | $0.00 | $0.00 | $5.78 |
| 2026 | 20542 | CONSERVE - CONSERVATION FUTURES | $0.09 | $0.08 | $0.00 | $0.00 | $0.00 | $0.17 |
| 2026 | 20542 | COROADS - COUNTY ROADS (ROADS, DIV TO CE) | $2.34 | $2.33 | $0.00 | $0.00 | $0.00 | $4.67 |
| 2026 | 20542 | PORTPT - PORT DISTRICT | $1.17 | $1.17 | $0.00 | $0.00 | $0.00 | $2.34 |
| 2026 | 20542 | PUD1 - PUD #1 | $0.19 | $0.19 | $0.00 | $0.00 | $0.00 | $0.38 |
| 2026 | 20542 | LIB1 - LIBRARY DIST #1 | $0.91 | $0.90 | $0.00 | $0.00 | $0.00 | $1.81 |
| 2026 | 20542 | HD2 - HOSP DIST #2 | $0.17 | $0.17 | $0.00 | $0.00 | $0.00 | $0.34 |
| 2026 | 20542 | SD49 - SCHOOL DIST #49 | $3.99 | $3.99 | $0.00 | $0.00 | $0.00 | $7.98 |
| 2026 | 20542 | FD1 - FIRE DISTRICT #1 | $3.84 | $3.83 | $0.00 | $0.00 | $0.00 | $7.67 |
| 2026 | 20542 | EMS1 - FIRE DIST #1 EMS | $1.48 | $1.47 | $0.00 | $0.00 | $0.00 | $2.95 |
| 2026 | 20542 | JCCD - JC Conservation District | $2.53 | $2.53 | $0.00 | $0.00 | $0.00 | $5.06 |
| 2026 | 20542 | NWA - Noxious Weed Assessment | $2.98 | $2.97 | $0.00 | $0.00 | $0.00 | $5.95 |
| 2026 | 20542 | WAT - Clean Water District | $13.00 | $13.00 | $0.00 | $0.00 | $0.00 | $26.00 |
| 2026 | 20542 | TOTAL: | $42.85 | $42.73 | $0.00 | $0.00 | $0.00 | $85.58 |
|
| 2026 | 20542 | $42.85 | $42.73 | $0.00 | $0.00 | $0.00 | $85.58 |
Statement Details |
| 2025 | 20603 | STATE - STATE LEVY (SCHOOL) | $6.30 | $6.29 | $0.00 | $0.00 | $12.59 | $0.00 |
| 2025 | 20603 | COUNTY - COUNTY LEVIES (CE, DD, VET, MH) | $2.50 | $2.46 | $0.00 | $0.00 | $4.96 | $0.00 |
| 2025 | 20603 | CONSERVE - CONSERVATION FUTURES | $0.08 | $0.07 | $0.00 | $0.00 | $0.15 | $0.00 |
| 2025 | 20603 | COROADS - COUNTY ROADS (ROADS, DIV TO CE) | $1.99 | $1.98 | $0.00 | $0.00 | $3.97 | $0.00 |
| 2025 | 20603 | PORTPT - PORT DISTRICT | $1.02 | $1.00 | $0.00 | $0.00 | $2.02 | $0.00 |
| 2025 | 20603 | PUD1 - PUD #1 | $0.16 | $0.16 | $0.00 | $0.00 | $0.32 | $0.00 |
| 2025 | 20603 | LIB1 - LIBRARY DIST #1 | $0.77 | $0.76 | $0.00 | $0.00 | $1.53 | $0.00 |
| 2025 | 20603 | HD2 - HOSP DIST #2 | $0.15 | $0.14 | $0.00 | $0.00 | $0.29 | $0.00 |
| 2025 | 20603 | SD49 - SCHOOL DIST #49 | $3.37 | $3.37 | $0.00 | $0.00 | $6.74 | $0.00 |
| 2025 | 20603 | FD1 - FIRE DISTRICT #1 | $3.27 | $3.26 | $0.00 | $0.00 | $6.53 | $0.00 |
| 2025 | 20603 | EMS1 - FIRE DIST #1 EMS | $1.26 | $1.25 | $0.00 | $0.00 | $2.51 | $0.00 |
| 2025 | 20603 | JCCD - JC Conservation District | $2.53 | $2.53 | $0.00 | $0.00 | $5.06 | $0.00 |
| 2025 | 20603 | NWA - Noxious Weed Assessment | $2.15 | $2.15 | $0.00 | $0.00 | $4.30 | $0.00 |
| 2025 | 20603 | WAT - Clean Water District | $13.00 | $13.00 | $0.00 | $0.00 | $26.00 | $0.00 |
| 2025 | 20603 | TOTAL: | $38.55 | $38.42 | $0.00 | $0.00 | $76.97 | $0.00 |
|
| 2025 | 20603 | $38.55 | $38.42 | $0.00 | $0.00 | $76.97 | $0.00 |
Statement Details |
| 2024 | 20645 | STATE - STATE LEVY (SCHOOL) | $4.06 | $4.04 | $0.00 | $0.00 | $8.10 | $0.00 |
| 2024 | 20645 | COUNTY - COUNTY LEVIES (CE, DD, VET, MH) | $1.74 | $1.73 | $0.00 | $0.00 | $3.47 | $0.00 |
| 2024 | 20645 | CONSERVE - CONSERVATION FUTURES | $0.05 | $0.05 | $0.00 | $0.00 | $0.10 | $0.00 |
| 2024 | 20645 | COROADS - COUNTY ROADS (ROADS, DIV TO CE) | $1.40 | $1.39 | $0.00 | $0.00 | $2.79 | $0.00 |
| 2024 | 20645 | PORTPT - PORT DISTRICT | $0.72 | $0.71 | $0.00 | $0.00 | $1.43 | $0.00 |
| 2024 | 20645 | PUD1 - PUD #1 | $0.12 | $0.11 | $0.00 | $0.00 | $0.23 | $0.00 |
| 2024 | 20645 | LIB1 - LIBRARY DIST #1 | $0.54 | $0.54 | $0.00 | $0.00 | $1.08 | $0.00 |
| 2024 | 20645 | HD2 - HOSP DIST #2 | $0.10 | $0.10 | $0.00 | $0.00 | $0.20 | $0.00 |
| 2024 | 20645 | SD49 - SCHOOL DIST #49 | $1.82 | $1.80 | $0.00 | $0.00 | $3.62 | $0.00 |
| 2024 | 20645 | FD1 - FIRE DISTRICT #1 | $2.29 | $2.29 | $0.00 | $0.00 | $4.58 | $0.00 |
| 2024 | 20645 | EMS1 - FIRE DIST #1 EMS | $0.88 | $0.87 | $0.00 | $0.00 | $1.75 | $0.00 |
| 2024 | 20645 | JCCD - JC Conservation District | $2.53 | $2.53 | $0.00 | $0.00 | $5.06 | $0.00 |
| 2024 | 20645 | NWA - Noxious Weed Assessment | $2.15 | $2.15 | $0.00 | $0.00 | $4.30 | $0.00 |
| 2024 | 20645 | WAT - Clean Water District | $12.50 | $12.50 | $0.00 | $0.00 | $25.00 | $0.00 |
| 2024 | 20645 | TOTAL: | $30.90 | $30.81 | $0.00 | $0.00 | $61.71 | $0.00 |
|
| 2024 | 20645 | $30.90 | $30.81 | $0.00 | $0.00 | $61.71 | $0.00 |
Statement Details |
| 2023 | 20682 | STATE - STATE LEVY (SCHOOL) | $3.07 | $3.05 | $0.00 | $0.00 | $6.12 | $0.00 |
| 2023 | 20682 | COUNTY - COUNTY LEVIES (CE, DD, VET, MH) | $1.35 | $1.34 | $0.00 | $0.00 | $2.69 | $0.00 |
| 2023 | 20682 | CONSERVE - CONSERVATION FUTURES | $0.04 | $0.04 | $0.00 | $0.00 | $0.08 | $0.00 |
| 2023 | 20682 | COROADS - COUNTY ROADS (ROADS, DIV TO CE) | $1.09 | $1.07 | $0.00 | $0.00 | $2.16 | $0.00 |
| 2023 | 20682 | PORTPT - PORT DISTRICT | $0.57 | $0.56 | $0.00 | $0.00 | $1.13 | $0.00 |
| 2023 | 20682 | PUD1 - PUD #1 | $0.09 | $0.09 | $0.00 | $0.00 | $0.18 | $0.00 |
| 2023 | 20682 | LIB1 - LIBRARY DIST #1 | $0.42 | $0.42 | $0.00 | $0.00 | $0.84 | $0.00 |
| 2023 | 20682 | HD2 - HOSP DIST #2 | $0.09 | $0.07 | $0.00 | $0.00 | $0.16 | $0.00 |
| 2023 | 20682 | SD49 - SCHOOL DIST #49 | $1.44 | $1.42 | $0.00 | $0.00 | $2.86 | $0.00 |
| 2023 | 20682 | FD1 - FIRE DISTRICT #1 | $1.10 | $1.10 | $0.00 | $0.00 | $2.20 | $0.00 |
| 2023 | 20682 | EMS1 - FIRE DIST #1 EMS | $0.47 | $0.47 | $0.00 | $0.00 | $0.94 | $0.00 |
| 2023 | 20682 | JCCD - JC Conservation District | $2.53 | $2.53 | $0.00 | $0.00 | $5.06 | $0.00 |
| 2023 | 20682 | NWA - Noxious Weed Assessment | $2.15 | $2.15 | $0.00 | $0.00 | $4.30 | $0.00 |
| 2023 | 20682 | WAT - Clean Water District | $12.00 | $12.00 | $0.00 | $0.00 | $24.00 | $0.00 |
| 2023 | 20682 | TOTAL: | $26.41 | $26.31 | $0.00 | $0.00 | $52.72 | $0.00 |
|
| 2023 | 20682 | $26.41 | $26.31 | $0.00 | $0.00 | $52.72 | $0.00 |
Values
| (+) Improvement Homesite Value: | + | $0 | |
| (+) Improvement Non-Homesite Value: | + | $0 | |
| (+) Land Homesite Value: | + | $0 | |
| (+) Land Non-Homesite Value: | + | $6,300 | |
| (+) Curr Use (HS): | + | $0 | $0 |
| (+) Curr Use (NHS): | + | $0 | $0 |
| | | -------------------------- | |
| (=) Market Value: | = | $6,300 | |
| (–) Productivity Loss: | – | $0 | |
| | | -------------------------- | |
| (=) Subtotal: | = | $6,300 | |
| (+) Senior Appraised Value: | + | $0 | |
| (+) Non-Senior Appraised Value: | + | $6,300 | |
| | | -------------------------- | |
| (=) Total Appraised Value: | = | $6,300 | |
| (–) Senior Exemption Loss: | – | $0 | |
| (–) Exemption Loss: | – | $0 | |
| | | -------------------------- | |
| (=) Taxable Value: | = | $6,300 | |
Taxing Jurisdiction
| Owner: | SAMUEL BAIN | | |
| % Ownership: | 100.0000000000% | | |
| Total Value: | N/A | | |
| Tax Area: | 0211 - 1-49F1E1H2L1 |
| CE | COUNTY CURRENT EXPENSE | N/A | N/A | N/A | N/A | | |
| CNTYDD | DEVELOPMENTAL DISABILITIES | N/A | N/A | N/A | N/A | | |
| CNTYVET | VETERANS RELIEF | N/A | N/A | N/A | N/A | | |
| MENTAL | MENTAL HEALTH | N/A | N/A | N/A | N/A | | |
| ROADS | COUNTY ROADS | N/A | N/A | N/A | N/A | | |
| HOSP2CASH | HOSP DIST #2 GENERAL | N/A | N/A | N/A | N/A | | |
| SCH49CP | SCHOOL DIST #49 CAP PROJ | N/A | N/A | N/A | N/A | | |
| SCH49MO | SCHOOL DIST #49 EP & O | N/A | N/A | N/A | N/A | | |
| CONSERVE | CONSERVATION FUTURES | N/A | N/A | N/A | N/A | | |
| EMS1 | FIRE DIST #1 EMS | N/A | N/A | N/A | N/A | | |
| FD1 | FIRE DIST #1 GENERAL | N/A | N/A | N/A | N/A | | |
| LIB1 | LIBRARY DIST #1 GENERAL | N/A | N/A | N/A | N/A | | |
| PORTPT | PORT OF PT GENERAL | N/A | N/A | N/A | N/A | | |
| PORTPTIDD | PORT OF PT IDD 2019 | N/A | N/A | N/A | N/A | | |
| PUD1 | PUD #1 GENERAL | N/A | N/A | N/A | N/A | | |
| STATE | STATE SCHOOL PART 1 | N/A | N/A | N/A | N/A | | |
| STATE2 | STATE SCHOOL PART 2 | N/A | N/A | N/A | N/A | | |
| | Total Tax Rate: | N/A | | | | | |
| | | | | Taxes w/Current Exemptions: | N/A | | |
| | | | | Taxes w/o Exemptions: | N/A | | |
Improvement / Building
Sketch
| No sketches available for this property. |
Property Image
Land
| 1 | 4120-1185L | | 0.0000 | 0.00 | 0.00 | 0.00 | 1.00 | $6,300 | $0 |
Roll Value History
| 2026 | N/A | N/A | N/A | N/A | N/A |
| 2025 | $0 | $6,300 | $0 | $6,300 | $6,300 |
| 2024 | $0 | $5,250 | $0 | $5,250 | $5,250 |
| 2023 | $0 | $3,500 | $0 | $3,500 | $3,500 |
| 2022 | $0 | $2,600 | $0 | $2,600 | $2,600 |
Deed and Sales History
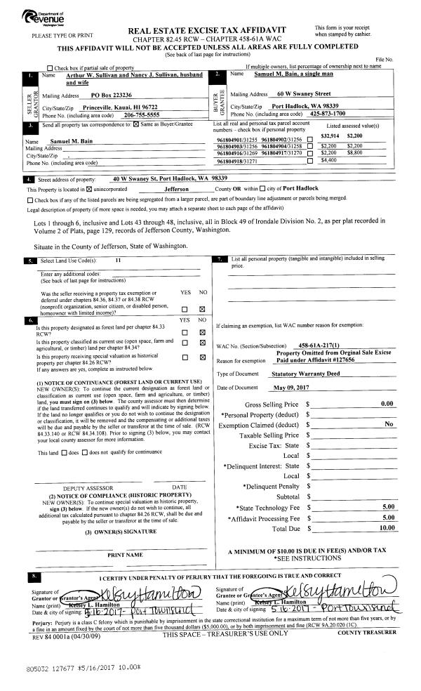
| 1 | 05/09/2017 | SWD | Statutory Warranty Deed | | | | | | 127677 | |
| 2 | 05/09/2017 | SWD | Statutory Warranty Deed | ARTHUR W SULLIVAN | SAMUEL BAIN | | | $210,000.00 | 127656 | |
|   | |
Payout Agreement
| No payout information available.. |