Property
Account |
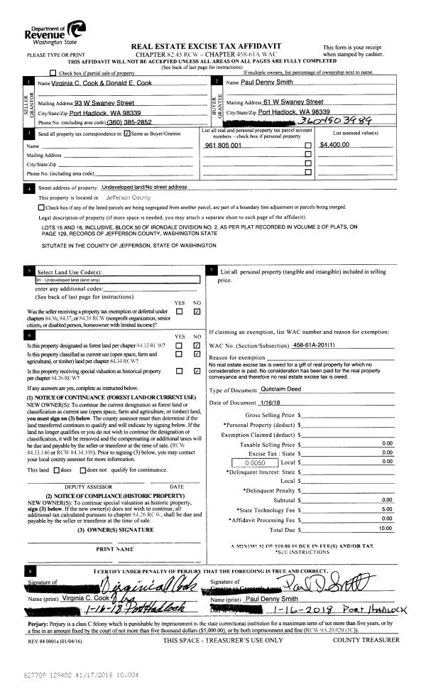
| Property ID: | 31274 | Abbreviated Legal Description: | IRONDALE #2 BLK 50 LOTS 15 & 16 |
| Parcel # / Geo ID: | 961805001 | Agent Code: | |
| Type: | Real | | |
| Tax Area: | 0211 - 1-49F1E1H2L1 | Land Use Code | 91 |
| Open Space: | N | DFL | N |
| Historic Property: | N | Remodel Property: | N |
| Multi-Family Redevelopment: | N | | |
| Township: | 30N | Section: | 34 |
| Range: | 1W |
Location |
| Address: | | Mapsco: | 041/063 |
| Neighborhood: | IRONDALE BLOCKS 48 - 92 | Map ID: | |
| Neighborhood CD: | 4125 |
Owner |
| Name: | PAUL D SMITH | Owner ID: | 27666 |
| Mailing Address: | 61 W SWANEY ST PORT HADLOCK, WA 98339-9630 | % Ownership: | 100.0000000000% |
| | | Exemptions: | |
Pay Tax Due
Select the appropriate checkbox next to the year to be paid. Multiple years may be selected.
*Convenience Fee not included
Taxes and Assessment Details
Property Tax Information as of
03/10/2026
Click on "Statement Details" to expand or collapse a tax statement.
* Please enter a valid date ** Please enter a valid date *
Statement Details |
| 2026 | 20560 | STATE - STATE LEVY (SCHOOL) | $9.66 | $9.65 | $0.00 | $0.00 | $0.00 | $19.31 |
| 2026 | 20560 | COUNTY - COUNTY LEVIES (CE, DD, VET, MH) | $3.86 | $3.85 | $0.00 | $0.00 | $0.00 | $7.71 |
| 2026 | 20560 | CONSERVE - CONSERVATION FUTURES | $0.12 | $0.11 | $0.00 | $0.00 | $0.00 | $0.23 |
| 2026 | 20560 | COROADS - COUNTY ROADS (ROADS, DIV TO CE) | $3.12 | $3.11 | $0.00 | $0.00 | $0.00 | $6.23 |
| 2026 | 20560 | PORTPT - PORT DISTRICT | $1.56 | $1.55 | $0.00 | $0.00 | $0.00 | $3.11 |
| 2026 | 20560 | PUD1 - PUD #1 | $0.25 | $0.25 | $0.00 | $0.00 | $0.00 | $0.50 |
| 2026 | 20560 | LIB1 - LIBRARY DIST #1 | $1.21 | $1.20 | $0.00 | $0.00 | $0.00 | $2.41 |
| 2026 | 20560 | HD2 - HOSP DIST #2 | $0.23 | $0.22 | $0.00 | $0.00 | $0.00 | $0.45 |
| 2026 | 20560 | SD49 - SCHOOL DIST #49 | $5.32 | $5.31 | $0.00 | $0.00 | $0.00 | $10.63 |
| 2026 | 20560 | FD1 - FIRE DISTRICT #1 | $5.11 | $5.11 | $0.00 | $0.00 | $0.00 | $10.22 |
| 2026 | 20560 | EMS1 - FIRE DIST #1 EMS | $1.97 | $1.96 | $0.00 | $0.00 | $0.00 | $3.93 |
| 2026 | 20560 | JCCD - JC Conservation District | $2.53 | $2.53 | $0.00 | $0.00 | $0.00 | $5.06 |
| 2026 | 20560 | NWA - Noxious Weed Assessment | $2.98 | $2.97 | $0.00 | $0.00 | $0.00 | $5.95 |
| 2026 | 20560 | WAT - Clean Water District | $13.00 | $13.00 | $0.00 | $0.00 | $0.00 | $26.00 |
| 2026 | 20560 | TOTAL: | $50.92 | $50.82 | $0.00 | $0.00 | $0.00 | $101.74 |
|
| 2026 | 20560 | $50.92 | $50.82 | $0.00 | $0.00 | $0.00 | $101.74 |
Statement Details |
| 2025 | 20621 | STATE - STATE LEVY (SCHOOL) | $8.82 | $8.81 | $0.00 | $0.00 | $17.63 | $0.00 |
| 2025 | 20621 | COUNTY - COUNTY LEVIES (CE, DD, VET, MH) | $3.47 | $3.46 | $0.00 | $0.00 | $6.93 | $0.00 |
| 2025 | 20621 | CONSERVE - CONSERVATION FUTURES | $0.11 | $0.10 | $0.00 | $0.00 | $0.21 | $0.00 |
| 2025 | 20621 | COROADS - COUNTY ROADS (ROADS, DIV TO CE) | $2.78 | $2.77 | $0.00 | $0.00 | $5.55 | $0.00 |
| 2025 | 20621 | PORTPT - PORT DISTRICT | $1.42 | $1.41 | $0.00 | $0.00 | $2.83 | $0.00 |
| 2025 | 20621 | PUD1 - PUD #1 | $0.23 | $0.22 | $0.00 | $0.00 | $0.45 | $0.00 |
| 2025 | 20621 | LIB1 - LIBRARY DIST #1 | $1.08 | $1.07 | $0.00 | $0.00 | $2.15 | $0.00 |
| 2025 | 20621 | HD2 - HOSP DIST #2 | $0.20 | $0.20 | $0.00 | $0.00 | $0.40 | $0.00 |
| 2025 | 20621 | SD49 - SCHOOL DIST #49 | $4.73 | $4.71 | $0.00 | $0.00 | $9.44 | $0.00 |
| 2025 | 20621 | FD1 - FIRE DISTRICT #1 | $4.58 | $4.57 | $0.00 | $0.00 | $9.15 | $0.00 |
| 2025 | 20621 | EMS1 - FIRE DIST #1 EMS | $1.76 | $1.76 | $0.00 | $0.00 | $3.52 | $0.00 |
| 2025 | 20621 | JCCD - JC Conservation District | $2.53 | $2.53 | $0.00 | $0.00 | $5.06 | $0.00 |
| 2025 | 20621 | NWA - Noxious Weed Assessment | $2.15 | $2.15 | $0.00 | $0.00 | $4.30 | $0.00 |
| 2025 | 20621 | WAT - Clean Water District | $13.00 | $13.00 | $0.00 | $0.00 | $26.00 | $0.00 |
| 2025 | 20621 | TOTAL: | $46.86 | $46.76 | $0.00 | $0.00 | $93.62 | $0.00 |
|
| 2025 | 20621 | $46.86 | $46.76 | $0.00 | $0.00 | $93.62 | $0.00 |
Statement Details |
| 2024 | 20663 | STATE - STATE LEVY (SCHOOL) | $8.10 | $8.09 | $0.00 | $0.00 | $16.19 | $0.00 |
| 2024 | 20663 | COUNTY - COUNTY LEVIES (CE, DD, VET, MH) | $3.47 | $3.46 | $0.00 | $0.00 | $6.93 | $0.00 |
| 2024 | 20663 | CONSERVE - CONSERVATION FUTURES | $0.11 | $0.10 | $0.00 | $0.00 | $0.21 | $0.00 |
| 2024 | 20663 | COROADS - COUNTY ROADS (ROADS, DIV TO CE) | $2.79 | $2.79 | $0.00 | $0.00 | $5.58 | $0.00 |
| 2024 | 20663 | PORTPT - PORT DISTRICT | $1.44 | $1.43 | $0.00 | $0.00 | $2.87 | $0.00 |
| 2024 | 20663 | PUD1 - PUD #1 | $0.23 | $0.23 | $0.00 | $0.00 | $0.46 | $0.00 |
| 2024 | 20663 | LIB1 - LIBRARY DIST #1 | $1.08 | $1.08 | $0.00 | $0.00 | $2.16 | $0.00 |
| 2024 | 20663 | HD2 - HOSP DIST #2 | $0.20 | $0.20 | $0.00 | $0.00 | $0.40 | $0.00 |
| 2024 | 20663 | SD49 - SCHOOL DIST #49 | $3.62 | $3.62 | $0.00 | $0.00 | $7.24 | $0.00 |
| 2024 | 20663 | FD1 - FIRE DISTRICT #1 | $4.58 | $4.58 | $0.00 | $0.00 | $9.16 | $0.00 |
| 2024 | 20663 | EMS1 - FIRE DIST #1 EMS | $1.75 | $1.75 | $0.00 | $0.00 | $3.50 | $0.00 |
| 2024 | 20663 | JCCD - JC Conservation District | $2.53 | $2.53 | $0.00 | $0.00 | $5.06 | $0.00 |
| 2024 | 20663 | NWA - Noxious Weed Assessment | $2.15 | $2.15 | $0.00 | $0.00 | $4.30 | $0.00 |
| 2024 | 20663 | WAT - Clean Water District | $12.50 | $12.50 | $0.00 | $0.00 | $25.00 | $0.00 |
| 2024 | 20663 | TOTAL: | $44.55 | $44.51 | $0.00 | $0.00 | $89.06 | $0.00 |
|
| 2024 | 20663 | $44.55 | $44.51 | $0.00 | $0.00 | $89.06 | $0.00 |
Statement Details |
| 2023 | 20700 | STATE - STATE LEVY (SCHOOL) | $6.13 | $6.12 | $0.00 | $0.00 | $12.25 | $0.00 |
| 2023 | 20700 | COUNTY - COUNTY LEVIES (CE, DD, VET, MH) | $2.69 | $2.65 | $0.00 | $0.00 | $5.34 | $0.00 |
| 2023 | 20700 | CONSERVE - CONSERVATION FUTURES | $0.08 | $0.08 | $0.00 | $0.00 | $0.16 | $0.00 |
| 2023 | 20700 | COROADS - COUNTY ROADS (ROADS, DIV TO CE) | $2.16 | $2.16 | $0.00 | $0.00 | $4.32 | $0.00 |
| 2023 | 20700 | PORTPT - PORT DISTRICT | $1.13 | $1.12 | $0.00 | $0.00 | $2.25 | $0.00 |
| 2023 | 20700 | PUD1 - PUD #1 | $0.18 | $0.17 | $0.00 | $0.00 | $0.35 | $0.00 |
| 2023 | 20700 | LIB1 - LIBRARY DIST #1 | $0.84 | $0.83 | $0.00 | $0.00 | $1.67 | $0.00 |
| 2023 | 20700 | HD2 - HOSP DIST #2 | $0.16 | $0.15 | $0.00 | $0.00 | $0.31 | $0.00 |
| 2023 | 20700 | SD49 - SCHOOL DIST #49 | $2.86 | $2.86 | $0.00 | $0.00 | $5.72 | $0.00 |
| 2023 | 20700 | FD1 - FIRE DISTRICT #1 | $2.20 | $2.20 | $0.00 | $0.00 | $4.40 | $0.00 |
| 2023 | 20700 | EMS1 - FIRE DIST #1 EMS | $0.94 | $0.93 | $0.00 | $0.00 | $1.87 | $0.00 |
| 2023 | 20700 | JCCD - JC Conservation District | $2.53 | $2.53 | $0.00 | $0.00 | $5.06 | $0.00 |
| 2023 | 20700 | NWA - Noxious Weed Assessment | $2.15 | $2.15 | $0.00 | $0.00 | $4.30 | $0.00 |
| 2023 | 20700 | WAT - Clean Water District | $12.00 | $12.00 | $0.00 | $0.00 | $24.00 | $0.00 |
| 2023 | 20700 | TOTAL: | $36.05 | $35.95 | $0.00 | $0.00 | $72.00 | $0.00 |
|
| 2023 | 20700 | $36.05 | $35.95 | $0.00 | $0.00 | $72.00 | $0.00 |
Values
| (+) Improvement Homesite Value: | + | $0 | |
| (+) Improvement Non-Homesite Value: | + | $0 | |
| (+) Land Homesite Value: | + | $0 | |
| (+) Land Non-Homesite Value: | + | $8,400 | |
| (+) Curr Use (HS): | + | $0 | $0 |
| (+) Curr Use (NHS): | + | $0 | $0 |
| | | -------------------------- | |
| (=) Market Value: | = | $8,400 | |
| (–) Productivity Loss: | – | $0 | |
| | | -------------------------- | |
| (=) Subtotal: | = | $8,400 | |
| (+) Senior Appraised Value: | + | $0 | |
| (+) Non-Senior Appraised Value: | + | $8,400 | |
| | | -------------------------- | |
| (=) Total Appraised Value: | = | $8,400 | |
| (–) Senior Exemption Loss: | – | $0 | |
| (–) Exemption Loss: | – | $0 | |
| | | -------------------------- | |
| (=) Taxable Value: | = | $8,400 | |
Taxing Jurisdiction
| Owner: | PAUL D SMITH | | |
| % Ownership: | 100.0000000000% | | |
| Total Value: | $8,400 | | |
| Tax Area: | 0211 - 1-49F1E1H2L1 |
| CE | COUNTY CURRENT EXPENSE | 0.9034619479 | $8,400 | $8,400 | $7.59 | | |
| CNTYDD | DEVELOPMENTAL DISABILITIES | 0.0052121823 | $8,400 | $8,400 | $0.04 | | |
| CNTYVET | VETERANS RELIEF | 0.0052777810 | $8,400 | $8,400 | $0.04 | | |
| MENTAL | MENTAL HEALTH | 0.0052121823 | $8,400 | $8,400 | $0.04 | | |
| ROADS | COUNTY ROADS | 0.7415066410 | $8,400 | $8,400 | $6.23 | | |
| ROADSCU | COUNTY ROADS TO CUR EXP | 0.0000000000 | $8,400 | $8,400 | $0.00 | | |
| HOSP2CASH | HOSP DIST #2 GENERAL | 0.0536075306 | $8,400 | $8,400 | $0.45 | | |
| SCH49CP | SCHOOL DIST #49 CAP PROJ | 0.6279093905 | $8,400 | $8,400 | $5.27 | | |
| SCH49MO | SCHOOL DIST #49 EP & O | 0.6376483602 | $8,400 | $8,400 | $5.36 | | |
| CONSERVE | CONSERVATION FUTURES | 0.0275621078 | $8,400 | $8,400 | $0.23 | | |
| EMS1 | FIRE DIST #1 EMS | 0.4679948282 | $8,400 | $8,400 | $3.93 | | |
| FD1 | FIRE DIST #1 GENERAL | 1.2171942929 | $8,400 | $8,400 | $10.22 | | |
| LIB1 | LIBRARY DIST #1 GENERAL | 0.2868827388 | $8,400 | $8,400 | $2.41 | | |
| PORTPT | PORT OF PT GENERAL | 0.1134941229 | $8,400 | $8,400 | $0.95 | | |
| PORTPTIDD | PORT OF PT IDD 2019 | 0.2577346692 | $8,400 | $8,400 | $2.16 | | |
| PUD1 | PUD #1 GENERAL | 0.0597888892 | $8,400 | $8,400 | $0.50 | | |
| STATE | STATE SCHOOL PART 1 | 1.4940692947 | $8,400 | $8,400 | $12.55 | | |
| STATE2 | STATE SCHOOL PART 2 | 0.8050170049 | $8,400 | $8,400 | $6.76 | | |
| | Total Tax Rate: | 7.7095739644 | | | | | |
| | | | | Taxes w/Current Exemptions: | $64.73 | | |
| | | | | Taxes w/o Exemptions: | $64.73 | | |
Improvement / Building
Sketch
| No sketches available for this property. |
Property Image
Land
| 1 | 4125-1187L | | 0.0000 | 0.00 | 0.00 | 0.00 | 2.00 | $8,400 | $0 |
Roll Value History
| 2026 | N/A | N/A | N/A | N/A | N/A |
| 2025 | $0 | $8,400 | $0 | $8,400 | $8,400 |
| 2024 | $0 | $7,350 | $0 | $7,350 | $7,350 |
| 2023 | $0 | $7,000 | $0 | $7,000 | $7,000 |
| 2022 | $0 | $5,200 | $0 | $5,200 | $5,200 |
Deed and Sales History
| 1 | 01/16/2018 | QCD | Quit Claim Deed | DONALD E COOK | PAUL D SMITH | | | | 129402 | |
| 2 | 11/13/2002 | SWD | Statutory Warranty Deed | ABERCROMBE, DAVID R/DEBOR | COOK, DONALD E/VIRGINIA C | 0 | 0 | $0.00 | 95939 | 0 |
Payout Agreement
| No payout information available.. |