Property
Account |
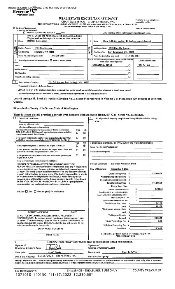
| Property ID: | 31293 | Abbreviated Legal Description: | IRONDALE #2 BLK 51 LOTS 44 THRU 48 |
| Parcel # / Geo ID: | 961805120 | Agent Code: | |
| Type: | Real | | |
| Tax Area: | 0211 - 1-49F1E1H2L1 | Land Use Code | 11 |
| Open Space: | N | DFL | N |
| Historic Property: | N | Remodel Property: | N |
| Multi-Family Redevelopment: | N | | |
| Township: | 30N | Section: | 34 |
| Range: | 1W |
Location |
| Address: | 331 7TH AVE PORT HADLOCK, WA 98339 | Mapsco: | 042/014 |
| Neighborhood: | IRONDALE BLOCKS 48 - 92 | Map ID: | |
| Neighborhood CD: | 4125 |
Owner |
| Name: | JAY SACHS & MARY DEVOE | Owner ID: | 100267 |
| Mailing Address: | 1253 UMATILLA AVE PORT TOWNSEND, WA 98368-4843 | % Ownership: | 100.0000000000% |
| | | Exemptions: | |
Pay Tax Due
There is currently No Amount Due on this property.
Taxes and Assessment Details
Property Tax Information as of
03/11/2026
Click on "Statement Details" to expand or collapse a tax statement.
* Please enter a valid date ** Please enter a valid date *
Statement Details |
| | TOTAL: | $0.00 | $0.00 | $0.00 | $0.00 | $0.00 | $0.00 |
|
| | $0.00 | $0.00 | $0.00 | $0.00 | $0.00 | $0.00 |
Values
| (+) Improvement Homesite Value: | + | $39,107 | |
| (+) Improvement Non-Homesite Value: | + | $0 | |
| (+) Land Homesite Value: | + | $139,125 | |
| (+) Land Non-Homesite Value: | + | $0 | |
| (+) Curr Use (HS): | + | $0 | $0 |
| (+) Curr Use (NHS): | + | $0 | $0 |
| | | -------------------------- | |
| (=) Market Value: | = | $178,232 | |
| (–) Productivity Loss: | – | $0 | |
| | | -------------------------- | |
| (=) Subtotal: | = | $178,232 | |
| (+) Senior Appraised Value: | + | $0 | |
| (+) Non-Senior Appraised Value: | + | $178,232 | |
| | | -------------------------- | |
| (=) Total Appraised Value: | = | $178,232 | |
| (–) Senior Exemption Loss: | – | $0 | |
| (–) Exemption Loss: | – | $0 | |
| | | -------------------------- | |
| (=) Taxable Value: | = | $178,232 | |
Taxing Jurisdiction
| Owner: | JAY SACHS & MARY DEVOE | | |
| % Ownership: | 100.0000000000% | | |
| Total Value: | $178,232 | | |
| Tax Area: | 0211 - 1-49F1E1H2L1 |
| CE | COUNTY CURRENT EXPENSE | 0.9034619479 | $178,232 | $178,232 | $161.03 | | |
| CNTYDD | DEVELOPMENTAL DISABILITIES | 0.0052121823 | $178,232 | $178,232 | $0.93 | | |
| CNTYVET | VETERANS RELIEF | 0.0052777810 | $178,232 | $178,232 | $0.94 | | |
| MENTAL | MENTAL HEALTH | 0.0052121823 | $178,232 | $178,232 | $0.93 | | |
| ROADS | COUNTY ROADS | 0.7415066410 | $178,232 | $178,232 | $132.16 | | |
| ROADSCU | COUNTY ROADS TO CUR EXP | 0.0000000000 | $178,232 | $178,232 | $0.00 | | |
| HOSP2CASH | HOSP DIST #2 GENERAL | 0.0536075306 | $178,232 | $178,232 | $9.55 | | |
| SCH49CP | SCHOOL DIST #49 CAP PROJ | 0.6279093905 | $178,232 | $178,232 | $111.91 | | |
| SCH49MO | SCHOOL DIST #49 EP & O | 0.6376483602 | $178,232 | $178,232 | $113.65 | | |
| CONSERVE | CONSERVATION FUTURES | 0.0275621078 | $178,232 | $178,232 | $4.91 | | |
| EMS1 | FIRE DIST #1 EMS | 0.4679948282 | $178,232 | $178,232 | $83.41 | | |
| FD1 | FIRE DIST #1 GENERAL | 1.2171942929 | $178,232 | $178,232 | $216.94 | | |
| LIB1 | LIBRARY DIST #1 GENERAL | 0.2868827388 | $178,232 | $178,232 | $51.13 | | |
| PORTPT | PORT OF PT GENERAL | 0.1134941229 | $178,232 | $178,232 | $20.23 | | |
| PORTPTIDD | PORT OF PT IDD 2019 | 0.2577346692 | $178,232 | $178,232 | $45.94 | | |
| PUD1 | PUD #1 GENERAL | 0.0597888892 | $178,232 | $178,232 | $10.66 | | |
| STATE | STATE SCHOOL PART 1 | 1.4940692947 | $178,232 | $178,232 | $266.29 | | |
| STATE2 | STATE SCHOOL PART 2 | 0.8050170049 | $178,232 | $178,232 | $143.48 | | |
| | Total Tax Rate: | 7.7095739644 | | | | | |
| | | | | Taxes w/Current Exemptions: | $1,374.09 | | |
| | | | | Taxes w/o Exemptions: | $1,374.09 | | |
Improvement / Building
| Improvement #1: | Manufactured Home | State Code: | 11M | 1120.0 sqft | Value: | $39,107 |
| Bathrooms (#): | 2 (FULL) | Bedrooms (#): | 2 | | Exterior Wall: | PL/T1 | Floor Construction: | FRAME | | Foundation: | PO&BL | Heating/Cooling: | F/A | | Inside Verify: | YES-FIX | Roof Cover: | METAL |
|
| | Type | Description | Class CD | Sub Class CD | Year Built | Area |
| | MA | Main Area | 2 | MFH | 1968 | 1120.0 |
| | MWPOR | MH Wood Porch | 2 | * | 1968 | 130.0 |
| | MDECK | MH Deck | 2 | * | 1968 | 50.0 |
| | CARPTN | Carport W/O Floor | 2 | * | 1968 | 460.0 |
| | SHED | Shed (Table Not Dep) | 2 | * | 1968 | 115.0 |
Sketch
Property Image
Land
| 1 | 4125-1285S | Irondale 2 Lot Sites No/Filtered Views | 0.0000 | 0.00 | 0.00 | 0.00 | 1.00 | $84,000 | $0 |
| 2 | 4125-1285S | Irondale 2 Lot Sites No/Filtered Views | 0.0000 | 0.00 | 0.00 | 0.00 | 3.00 | $55,125 | $0 |
Roll Value History
| 2026 | N/A | N/A | N/A | N/A | N/A |
| 2025 | $39,107 | $139,125 | $0 | $178,232 | $178,232 |
| 2024 | $39,107 | $139,125 | $0 | $178,232 | $178,232 |
| 2023 | $37,330 | $127,500 | $0 | $164,830 | $164,830 |
| 2022 | $25,609 | $62,800 | $0 | $88,409 | $88,409 |
Deed and Sales History
| 1 | 11/09/2022 | SWD | Statutory Warranty Deed | IEVA C OHAKS | JAY SACHS & MARY DEVOE | | | $176,600.00 | 140150 | |
| 2 | 07/09/2016 | QCD | Quit Claim Deed | SONJA ELEND | IEVA C OHAKS | | | | 126120 | |
Payout Agreement
| No payout information available.. |