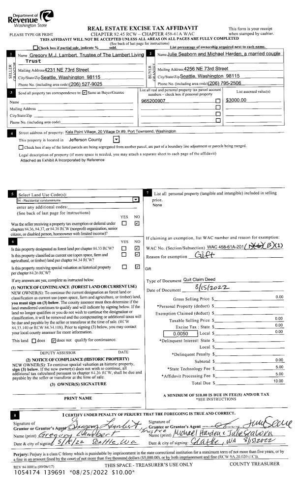
Property
Account |
| Property ID: | 31340 | Abbreviated Legal Description: | IRONDALE #2 BLK 56 LOTS 6,7,8,9 |
| Parcel # / Geo ID: | 961805604 | Agent Code: | |
| Type: | Real | | |
| Tax Area: | 0211 - 1-49F1E1H2L1 | Land Use Code | 11 |
| Open Space: | N | DFL | N |
| Historic Property: | N | Remodel Property: | N |
| Multi-Family Redevelopment: | N | | |
| Township: | 30N | Section: | 34 |
| Range: | 1W |
Location |
| Address: | 31 W PRICE ST PORT HADLOCK, WA 98339 | Mapsco: | 042/062 |
| Neighborhood: | IRONDALE BLOCKS 48 - 92 | Map ID: | |
| Neighborhood CD: | 4125 |
Owner |
| Name: | JENNA A HEIL | Owner ID: | 103012 |
| Mailing Address: | PO BOX 643 PORT HADLOCK, WA 98339-0643 | % Ownership: | 100.0000000000% |
| | | Exemptions: | |
Pay Tax Due
Select the appropriate checkbox next to the year to be paid. Multiple years may be selected.
*Convenience Fee not included
Taxes and Assessment Details
Property Tax Information as of
03/11/2026
Click on "Statement Details" to expand or collapse a tax statement.
* Please enter a valid date ** Please enter a valid date *
Statement Details |
| 2026 | 20623 | STATE - STATE LEVY (SCHOOL) | $320.78 | $320.76 | $0.00 | $0.00 | $0.00 | $641.54 |
| 2026 | 20623 | COUNTY - COUNTY LEVIES (CE, DD, VET, MH) | $128.25 | $128.22 | $0.00 | $0.00 | $0.00 | $256.47 |
| 2026 | 20623 | CONSERVE - CONSERVATION FUTURES | $3.85 | $3.84 | $0.00 | $0.00 | $0.00 | $7.69 |
| 2026 | 20623 | COROADS - COUNTY ROADS (ROADS, DIV TO CE) | $103.46 | $103.45 | $0.00 | $0.00 | $0.00 | $206.91 |
| 2026 | 20623 | PORTPT - PORT DISTRICT | $51.80 | $51.79 | $0.00 | $0.00 | $0.00 | $103.59 |
| 2026 | 20623 | PUD1 - PUD #1 | $8.34 | $8.34 | $0.00 | $0.00 | $0.00 | $16.68 |
| 2026 | 20623 | LIB1 - LIBRARY DIST #1 | $40.03 | $40.02 | $0.00 | $0.00 | $0.00 | $80.05 |
| 2026 | 20623 | HD2 - HOSP DIST #2 | $7.48 | $7.48 | $0.00 | $0.00 | $0.00 | $14.96 |
| 2026 | 20623 | SD49 - SCHOOL DIST #49 | $176.58 | $176.56 | $0.00 | $0.00 | $0.00 | $353.14 |
| 2026 | 20623 | FD1 - FIRE DISTRICT #1 | $169.83 | $169.82 | $0.00 | $0.00 | $0.00 | $339.65 |
| 2026 | 20623 | EMS1 - FIRE DIST #1 EMS | $65.30 | $65.29 | $0.00 | $0.00 | $0.00 | $130.59 |
| 2026 | 20623 | JCCD - JC Conservation District | $2.55 | $2.55 | $0.00 | $0.00 | $0.00 | $5.10 |
| 2026 | 20623 | NWA - Noxious Weed Assessment | $2.98 | $2.97 | $0.00 | $0.00 | $0.00 | $5.95 |
| 2026 | 20623 | OSS - On Site Septic | $23.10 | $23.10 | $0.00 | $0.00 | $0.00 | $46.20 |
| 2026 | 20623 | WAT - Clean Water District | $13.00 | $13.00 | $0.00 | $0.00 | $0.00 | $26.00 |
| 2026 | 20623 | TOTAL: | $1117.33 | $1117.19 | $0.00 | $0.00 | $0.00 | $2234.52 |
|
| 2026 | 20623 | $1117.33 | $1117.19 | $0.00 | $0.00 | $0.00 | $2234.52 |
Statement Details |
| 2025 | 20684 | STATE - STATE LEVY (SCHOOL) | $333.32 | $333.31 | $0.00 | $0.00 | $666.63 | $0.00 |
| 2025 | 20684 | COUNTY - COUNTY LEVIES (CE, DD, VET, MH) | $131.07 | $131.07 | $0.00 | $0.00 | $262.14 | $0.00 |
| 2025 | 20684 | CONSERVE - CONSERVATION FUTURES | $3.93 | $3.93 | $0.00 | $0.00 | $7.86 | $0.00 |
| 2025 | 20684 | COROADS - COUNTY ROADS (ROADS, DIV TO CE) | $105.01 | $105.01 | $0.00 | $0.00 | $210.02 | $0.00 |
| 2025 | 20684 | PORTPT - PORT DISTRICT | $53.49 | $53.48 | $0.00 | $0.00 | $106.97 | $0.00 |
| 2025 | 20684 | PUD1 - PUD #1 | $8.58 | $8.57 | $0.00 | $0.00 | $17.15 | $0.00 |
| 2025 | 20684 | LIB1 - LIBRARY DIST #1 | $40.63 | $40.63 | $0.00 | $0.00 | $81.26 | $0.00 |
| 2025 | 20684 | HD2 - HOSP DIST #2 | $7.65 | $7.64 | $0.00 | $0.00 | $15.29 | $0.00 |
| 2025 | 20684 | SD49 - SCHOOL DIST #49 | $178.64 | $178.63 | $0.00 | $0.00 | $357.27 | $0.00 |
| 2025 | 20684 | FD1 - FIRE DISTRICT #1 | $172.97 | $172.96 | $0.00 | $0.00 | $345.93 | $0.00 |
| 2025 | 20684 | EMS1 - FIRE DIST #1 EMS | $66.53 | $66.52 | $0.00 | $0.00 | $133.05 | $0.00 |
| 2025 | 20684 | JCCD - JC Conservation District | $2.55 | $2.55 | $0.00 | $0.00 | $5.10 | $0.00 |
| 2025 | 20684 | NWA - Noxious Weed Assessment | $2.15 | $2.15 | $0.00 | $0.00 | $4.30 | $0.00 |
| 2025 | 20684 | OSS - On Site Septic | $21.50 | $21.50 | $0.00 | $0.00 | $43.00 | $0.00 |
| 2025 | 20684 | WAT - Clean Water District | $13.00 | $13.00 | $0.00 | $0.00 | $26.00 | $0.00 |
| 2025 | 20684 | TOTAL: | $1141.02 | $1140.95 | $0.00 | $0.00 | $2281.97 | $0.00 |
|
| 2025 | 20684 | $1141.02 | $1140.95 | $0.00 | $0.00 | $2281.97 | $0.00 |
Statement Details |
| 2024 | 20726 | STATE - STATE LEVY (SCHOOL) | $300.97 | $300.97 | $0.00 | $0.00 | $601.94 | $0.00 |
| 2024 | 20726 | COUNTY - COUNTY LEVIES (CE, DD, VET, MH) | $128.80 | $128.77 | $0.00 | $0.00 | $257.57 | $0.00 |
| 2024 | 20726 | CONSERVE - CONSERVATION FUTURES | $3.86 | $3.86 | $0.00 | $0.00 | $7.72 | $0.00 |
| 2024 | 20726 | COROADS - COUNTY ROADS (ROADS, DIV TO CE) | $103.64 | $103.62 | $0.00 | $0.00 | $207.26 | $0.00 |
| 2024 | 20726 | PORTPT - PORT DISTRICT | $53.20 | $53.19 | $0.00 | $0.00 | $106.39 | $0.00 |
| 2024 | 20726 | PUD1 - PUD #1 | $8.46 | $8.46 | $0.00 | $0.00 | $16.92 | $0.00 |
| 2024 | 20726 | LIB1 - LIBRARY DIST #1 | $40.10 | $40.09 | $0.00 | $0.00 | $80.19 | $0.00 |
| 2024 | 20726 | HD2 - HOSP DIST #2 | $7.52 | $7.51 | $0.00 | $0.00 | $15.03 | $0.00 |
| 2024 | 20726 | SD49 - SCHOOL DIST #49 | $134.40 | $134.40 | $0.00 | $0.00 | $268.80 | $0.00 |
| 2024 | 20726 | FD1 - FIRE DISTRICT #1 | $170.29 | $170.29 | $0.00 | $0.00 | $340.58 | $0.00 |
| 2024 | 20726 | EMS1 - FIRE DIST #1 EMS | $65.05 | $65.04 | $0.00 | $0.00 | $130.09 | $0.00 |
| 2024 | 20726 | JCCD - JC Conservation District | $2.55 | $2.55 | $0.00 | $0.00 | $5.10 | $0.00 |
| 2024 | 20726 | NWA - Noxious Weed Assessment | $2.15 | $2.15 | $0.00 | $0.00 | $4.30 | $0.00 |
| 2024 | 20726 | OSS - On Site Septic | $21.00 | $21.00 | $0.00 | $0.00 | $42.00 | $0.00 |
| 2024 | 20726 | WAT - Clean Water District | $12.50 | $12.50 | $0.00 | $0.00 | $25.00 | $0.00 |
| 2024 | 20726 | TOTAL: | $1054.49 | $1054.40 | $0.00 | $0.00 | $2108.89 | $0.00 |
|
| 2024 | 20726 | $1054.49 | $1054.40 | $0.00 | $0.00 | $2108.89 | $0.00 |
Statement Details |
| 2023 | 20763 | STATE - STATE LEVY (SCHOOL) | $251.11 | $251.11 | $0.00 | $0.00 | $502.22 | $0.00 |
| 2023 | 20763 | COUNTY - COUNTY LEVIES (CE, DD, VET, MH) | $109.57 | $109.57 | $0.00 | $0.00 | $219.14 | $0.00 |
| 2023 | 20763 | CONSERVE - CONSERVATION FUTURES | $3.29 | $3.28 | $0.00 | $0.00 | $6.57 | $0.00 |
| 2023 | 20763 | COROADS - COUNTY ROADS (ROADS, DIV TO CE) | $88.66 | $88.65 | $0.00 | $0.00 | $177.31 | $0.00 |
| 2023 | 20763 | PORTPT - PORT DISTRICT | $46.16 | $46.16 | $0.00 | $0.00 | $92.32 | $0.00 |
| 2023 | 20763 | PUD1 - PUD #1 | $7.27 | $7.26 | $0.00 | $0.00 | $14.53 | $0.00 |
| 2023 | 20763 | LIB1 - LIBRARY DIST #1 | $34.30 | $34.30 | $0.00 | $0.00 | $68.60 | $0.00 |
| 2023 | 20763 | HD2 - HOSP DIST #2 | $6.40 | $6.39 | $0.00 | $0.00 | $12.79 | $0.00 |
| 2023 | 20763 | SD49 - SCHOOL DIST #49 | $117.39 | $117.37 | $0.00 | $0.00 | $234.76 | $0.00 |
| 2023 | 20763 | FD1 - FIRE DISTRICT #1 | $90.27 | $90.27 | $0.00 | $0.00 | $180.54 | $0.00 |
| 2023 | 20763 | EMS1 - FIRE DIST #1 EMS | $38.40 | $38.40 | $0.00 | $0.00 | $76.80 | $0.00 |
| 2023 | 20763 | JCCD - JC Conservation District | $2.55 | $2.55 | $0.00 | $0.00 | $5.10 | $0.00 |
| 2023 | 20763 | NWA - Noxious Weed Assessment | $2.15 | $2.15 | $0.00 | $0.00 | $4.30 | $0.00 |
| 2023 | 20763 | OSS - On Site Septic | $20.50 | $20.50 | $0.00 | $0.00 | $41.00 | $0.00 |
| 2023 | 20763 | WAT - Clean Water District | $12.00 | $12.00 | $0.00 | $0.00 | $24.00 | $0.00 |
| 2023 | 20763 | TOTAL: | $830.02 | $829.96 | $0.00 | $0.00 | $1659.98 | $0.00 |
|
| 2023 | 20763 | $830.02 | $829.96 | $0.00 | $0.00 | $1659.98 | $0.00 |
Values
| (+) Improvement Homesite Value: | + | $0 | |
| (+) Improvement Non-Homesite Value: | + | $197,140 | |
| (+) Land Homesite Value: | + | $0 | |
| (+) Land Non-Homesite Value: | + | $81,900 | |
| (+) Curr Use (HS): | + | $0 | $0 |
| (+) Curr Use (NHS): | + | $0 | $0 |
| | | -------------------------- | |
| (=) Market Value: | = | $279,040 | |
| (–) Productivity Loss: | – | $0 | |
| | | -------------------------- | |
| (=) Subtotal: | = | $279,040 | |
| (+) Senior Appraised Value: | + | $0 | |
| (+) Non-Senior Appraised Value: | + | $279,040 | |
| | | -------------------------- | |
| (=) Total Appraised Value: | = | $279,040 | |
| (–) Senior Exemption Loss: | – | $0 | |
| (–) Exemption Loss: | – | $0 | |
| | | -------------------------- | |
| (=) Taxable Value: | = | $279,040 | |
Taxing Jurisdiction
| Owner: | JENNA A HEIL | | |
| % Ownership: | 100.0000000000% | | |
| Total Value: | $279,040 | | |
| Tax Area: | 0211 - 1-49F1E1H2L1 |
| CE | COUNTY CURRENT EXPENSE | 0.9034619479 | $279,040 | $279,040 | $252.10 | | |
| CNTYDD | DEVELOPMENTAL DISABILITIES | 0.0052121823 | $279,040 | $279,040 | $1.45 | | |
| CNTYVET | VETERANS RELIEF | 0.0052777810 | $279,040 | $279,040 | $1.47 | | |
| MENTAL | MENTAL HEALTH | 0.0052121823 | $279,040 | $279,040 | $1.45 | | |
| ROADS | COUNTY ROADS | 0.7415066410 | $279,040 | $279,040 | $206.91 | | |
| ROADSCU | COUNTY ROADS TO CUR EXP | 0.0000000000 | $279,040 | $279,040 | $0.00 | | |
| HOSP2CASH | HOSP DIST #2 GENERAL | 0.0536075306 | $279,040 | $279,040 | $14.96 | | |
| SCH49CP | SCHOOL DIST #49 CAP PROJ | 0.6279093905 | $279,040 | $279,040 | $175.21 | | |
| SCH49MO | SCHOOL DIST #49 EP & O | 0.6376483602 | $279,040 | $279,040 | $177.93 | | |
| CONSERVE | CONSERVATION FUTURES | 0.0275621078 | $279,040 | $279,040 | $7.69 | | |
| EMS1 | FIRE DIST #1 EMS | 0.4679948282 | $279,040 | $279,040 | $130.59 | | |
| FD1 | FIRE DIST #1 GENERAL | 1.2171942929 | $279,040 | $279,040 | $339.65 | | |
| LIB1 | LIBRARY DIST #1 GENERAL | 0.2868827388 | $279,040 | $279,040 | $80.05 | | |
| PORTPT | PORT OF PT GENERAL | 0.1134941229 | $279,040 | $279,040 | $31.67 | | |
| PORTPTIDD | PORT OF PT IDD 2019 | 0.2577346692 | $279,040 | $279,040 | $71.92 | | |
| PUD1 | PUD #1 GENERAL | 0.0597888892 | $279,040 | $279,040 | $16.68 | | |
| STATE | STATE SCHOOL PART 1 | 1.4940692947 | $279,040 | $279,040 | $416.91 | | |
| STATE2 | STATE SCHOOL PART 2 | 0.8050170049 | $279,040 | $279,040 | $224.63 | | |
| | Total Tax Rate: | 7.7095739644 | | | | | |
| | | | | Taxes w/Current Exemptions: | $2,151.27 | | |
| | | | | Taxes w/o Exemptions: | $2,151.27 | | |
Improvement / Building
| Improvement #1: | Manufactured Home | State Code: | 11M | 1335.0 sqft | Value: | $197,140 |
| Bathrooms (#): | 2 (FULL) | Bedrooms (#): | 3 | | Exterior Wall: | PL/T1 | Foundation: | CONBL | | Heating/Cooling: | OTHER | Roof Cover: | COMP |
|
| | Type | Description | Class CD | Sub Class CD | Year Built | Area |
| | MA | Main Area | 5 | MDBL | 2022 | 1335.0 |
| | MWPOR | MH Wood Porch | 4 | MDBL | 2022 | 96.0 |
Sketch
Property Image
Land
| 1 | 4125-1285S | | 0.0000 | 0.00 | 0.00 | 0.00 | 1.00 | $73,500 | $0 |
| 2 | 4125-1187L | | 0.0000 | 0.00 | 0.00 | 0.00 | 2.00 | $8,400 | $0 |
Roll Value History
| 2026 | N/A | N/A | N/A | N/A | N/A |
| 2025 | $197,140 | $81,900 | $0 | $279,040 | $279,040 |
| 2024 | $197,140 | $80,850 | $0 | $277,990 | $277,990 |
| 2023 | $188,179 | $72,000 | $0 | $260,179 | $260,179 |
| 2022 | $160,133 | $53,200 | $0 | $213,333 | $213,333 |
Deed and Sales History
| 1 | 08/26/2022 | QCD | Quit Claim Deed | DONALD HEIL | JENNA A HEIL | | | | 139918 | |
| 2 | 07/27/2020 | QCD | Quit Claim Deed | WILLIAM S MARLOW | JENNA A HEIL | | | | 134734 | |
| 3 | 04/03/2012 | QCD | Quit Claim Deed | JESSICA A MARLOW TRUSTEE | WILLIAM S MARLOW | | | | 117405 | |
| 4 | 04/03/2012 | QCD | Quit Claim Deed | MARLOW, WILLIAM S/JESSICA | MARLOW, WILLIAM S | 0 | 0 | $0.00 | 117404 | 0 |
| 5 | 08/08/2007 | TRED | Trustee Deed | MARLOW, WILLIAM/JESSICA | MARLOW, WILLIAM/JESSICA TRUSTE | 0 | 0 | $0.00 | 109904 | 0 |
| 6 | 10/08/1993 | WD | Warranty Deed | NORBUT, GREGORY P/TRUST | MARLOW, WILLIAM S/JESSICA A | 0 | 0 | $0.00 | 72334 | 0 |
| 7 | 08/19/1993 | QCD | Quit Claim Deed | KILMER, ROGER R | KILMER, MELVA A | 0 | 0 | $0.00 | 71969 | 0 |
Payout Agreement
| No payout information available.. |