Property
Account |
| Property ID: | 31361 | Abbreviated Legal Description: | IRONDALE #7 BLK 59 LOTS 19 THRU 30 LESS R/W |
| Parcel # / Geo ID: | 961805902 | Agent Code: | |
| Type: | Real | | |
| Tax Area: | 0211 - 1-49F1E1H2L1 | Land Use Code | 11 |
| Open Space: | N | DFL | N |
| Historic Property: | N | Remodel Property: | N |
| Multi-Family Redevelopment: | N | | |
| Township: | 30N | Section: | 3 |
| Range: | 1W |
Location |
| Address: | 11 LORETTA LN PORT HADLOCK, WA 98339 | Mapsco: | 043/015 |
| Neighborhood: | IRONDALE BLOCKS 48 - 92 | Map ID: | |
| Neighborhood CD: | 4125 |
Owner |
| Name: | BRIAN RICHARDSON | Owner ID: | 74376 |
| Mailing Address: | HEATHER HANSON 11 LORETTA LN PORT HADLOCK, WA 98339-8007 | % Ownership: | 100.0000000000% |
| | | Exemptions: | |
Pay Tax Due
There is currently No Amount Due on this property.
Taxes and Assessment Details
Property Tax Information as of
03/12/2026
Click on "Statement Details" to expand or collapse a tax statement.
* Please enter a valid date ** Please enter a valid date *
Statement Details |
| | TOTAL: | $0.00 | $0.00 | $0.00 | $0.00 | $0.00 | $0.00 |
|
| | $0.00 | $0.00 | $0.00 | $0.00 | $0.00 | $0.00 |
Values
| (+) Improvement Homesite Value: | + | $0 | |
| (+) Improvement Non-Homesite Value: | + | $284,442 | |
| (+) Land Homesite Value: | + | $0 | |
| (+) Land Non-Homesite Value: | + | $110,880 | |
| (+) Curr Use (HS): | + | $0 | $0 |
| (+) Curr Use (NHS): | + | $0 | $0 |
| | | -------------------------- | |
| (=) Market Value: | = | $395,322 | |
| (–) Productivity Loss: | – | $0 | |
| | | -------------------------- | |
| (=) Subtotal: | = | $395,322 | |
| (+) Senior Appraised Value: | + | $0 | |
| (+) Non-Senior Appraised Value: | + | $395,322 | |
| | | -------------------------- | |
| (=) Total Appraised Value: | = | $395,322 | |
| (–) Senior Exemption Loss: | – | $0 | |
| (–) Exemption Loss: | – | $0 | |
| | | -------------------------- | |
| (=) Taxable Value: | = | $395,322 | |
Taxing Jurisdiction
| Owner: | BRIAN RICHARDSON | | |
| % Ownership: | 100.0000000000% | | |
| Total Value: | N/A | | |
| Tax Area: | 0211 - 1-49F1E1H2L1 |
| CE | COUNTY CURRENT EXPENSE | N/A | N/A | N/A | N/A | | |
| CNTYDD | DEVELOPMENTAL DISABILITIES | N/A | N/A | N/A | N/A | | |
| CNTYVET | VETERANS RELIEF | N/A | N/A | N/A | N/A | | |
| MENTAL | MENTAL HEALTH | N/A | N/A | N/A | N/A | | |
| ROADS | COUNTY ROADS | N/A | N/A | N/A | N/A | | |
| HOSP2CASH | HOSP DIST #2 GENERAL | N/A | N/A | N/A | N/A | | |
| SCH49CP | SCHOOL DIST #49 CAP PROJ | N/A | N/A | N/A | N/A | | |
| SCH49MO | SCHOOL DIST #49 EP & O | N/A | N/A | N/A | N/A | | |
| CONSERVE | CONSERVATION FUTURES | N/A | N/A | N/A | N/A | | |
| EMS1 | FIRE DIST #1 EMS | N/A | N/A | N/A | N/A | | |
| FD1 | FIRE DIST #1 GENERAL | N/A | N/A | N/A | N/A | | |
| LIB1 | LIBRARY DIST #1 GENERAL | N/A | N/A | N/A | N/A | | |
| PORTPT | PORT OF PT GENERAL | N/A | N/A | N/A | N/A | | |
| PORTPTIDD | PORT OF PT IDD 2019 | N/A | N/A | N/A | N/A | | |
| PUD1 | PUD #1 GENERAL | N/A | N/A | N/A | N/A | | |
| STATE | STATE SCHOOL PART 1 | N/A | N/A | N/A | N/A | | |
| STATE2 | STATE SCHOOL PART 2 | N/A | N/A | N/A | N/A | | |
| | Total Tax Rate: | N/A | | | | | |
| | | | | Taxes w/Current Exemptions: | N/A | | |
| | | | | Taxes w/o Exemptions: | N/A | | |
Improvement / Building
| Improvement #1: | Residential Bldg | State Code: | 11 | 1020.0 sqft | Value: | $284,442 |
| Bathrooms (#): | 1 (FULL) | Bedrooms (#): | 2 | | Exterior Wall: | SI/ST | Fireplace: | SIN 1-GOOD | | Floor Construction: | FRAME | Foundation: | PO&BL | | Heating/Cooling: | OTHER | Roof Cover: | COMP |
|
| | Type | Description | Class CD | Sub Class CD | Year Built | Area |
| | MA | Main Area | 4 | 1S | 0 | 1020.0 |
| | PATIO | House Patio | 4 | * | 0 | 30.0 |
| | HWPOR | House Wood Porch | 4 | * | 0 | 117.0 |
| | ADDN | Addition (Table Not Dep) | 4 | * | 0 | 252.0 |
| | GDET | Detached Garage | 3 | * | 0 | 240.0 |
Sketch
Property Image
Land
| 1 | 4125-1187L | Irondale Lots XS Lots to make up Site | 0.0000 | 0.00 | 0.00 | 0.00 | 4.00 | $16,800 | $0 |
| 2 | 4125-1187L | Irondale Lots XS Lots to make up Site | 0.0000 | 0.00 | 0.00 | 0.00 | 6.00 | $10,080 | $0 |
| 3 | 4125-1285S | Irondale 2 Lot Sites No/Filtered Views | 0.0000 | 0.00 | 0.00 | 0.00 | 1.00 | $84,000 | $0 |
Roll Value History
| 2026 | N/A | N/A | N/A | N/A | N/A |
| 2025 | $284,442 | $110,880 | $0 | $395,322 | $395,322 |
| 2024 | $262,521 | $107,520 | $0 | $370,041 | $370,041 |
| 2023 | $244,496 | $97,400 | $0 | $341,896 | $341,896 |
| 2022 | $210,991 | $71,640 | $0 | $282,631 | $282,631 |
Deed and Sales History
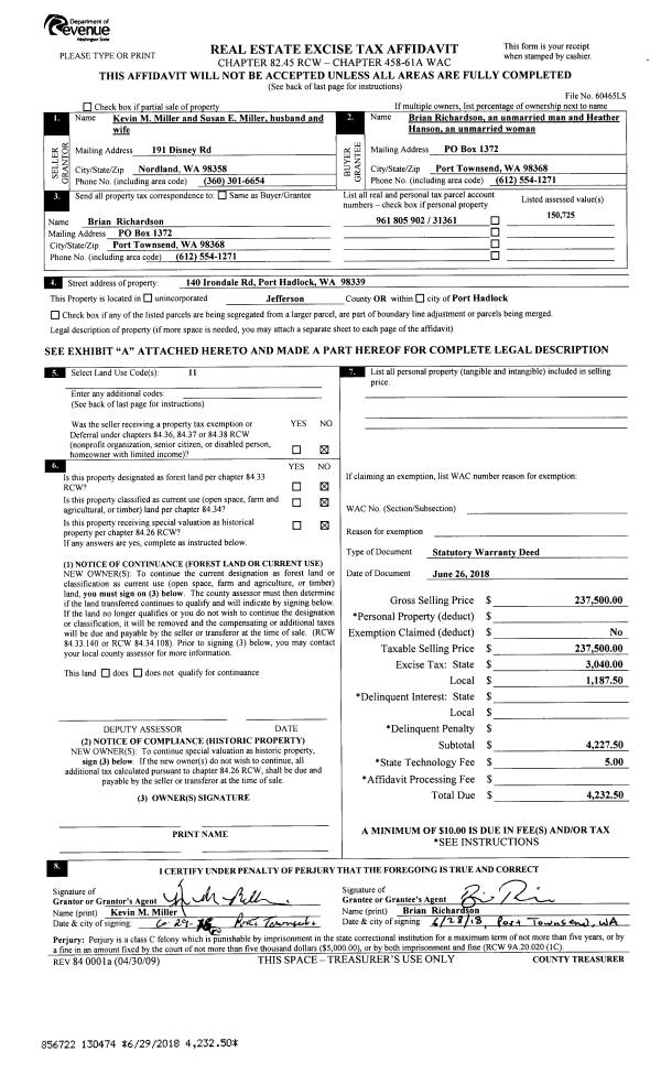
| 1 | 06/26/2018 | SWD | Statutory Warranty Deed | KEVIN M MILLER | BRIAN RICHARDSON | | | $237,500.00 | 130474 | |
| 2 | 04/26/2007 | SWD | Statutory Warranty Deed | MELBUER JR, ARNOLD D/DANA | MILLER, KEVIN M/SUSAN E | | | $185,000.00 | 109192 | 0 |
| 3 | 01/09/2007 | SWD | Statutory Warranty Deed | MELBUER JR, ARNOLD D/DANA | MELBUER,JR ARNOLD & DANA/TRTEE | 0 | 0 | $0.00 | 108476 | 0 |
| 4 | 06/06/2003 | QCD | Quit Claim Deed | HESS, RENEE E PERERIA | MELBUER, DANA L | 0 | 0 | $38,555.00 | 97515 | 0 |
|   | |
| 5 | 06/06/2003 | QCD | Quit Claim Deed | MELBUER, DANA L | MELBUER, ARNOLD/DANA | 0 | 0 | $0.00 | 97516 | 0 |
| 6 | 03/08/2001 | SWD | Statutory Warranty Deed | PEREIRA, RENEE'E NIEMCZY | JEFFERSON COUNTY | 0 | 0 | $0.00 | 91734 | 0 |
| 7 | 01/24/2000 | QCD | Quit Claim Deed | WENE, JAMES L | NIEMCZYK, DANA L | 0 | 0 | $0.00 | 88939 | 0 |
| 8 | 05/05/1997 | QCD | Quit Claim Deed | WATKINS, PATRICIA D/EST | NELSON, DANA L/ET AL | 0 | 0 | $0.00 | 82009 | 0 |
| 9 | 02/02/1996 | QCD | Quit Claim Deed | WATKINS, PATRICIA D/EST | NELSON, DANA L/ET AL | 0 | 0 | $0.00 | 80451 | 0 |
| 10 | 02/02/1996 | QCD | Quit Claim Deed | WATKINS, ROBERT L | PEREIRA, RENEE E/ET AL | 0 | 0 | $0.00 | 79679 | 0 |
Payout Agreement
| No payout information available.. |