Property
Account |
| Property ID: | 31369 | Abbreviated Legal Description: | IRONDALE #7 BLK 60 LTS 20-23(ALL),28(S25'), 32-35(ALL) & TAX 46 VAC EUGENE ST ADJ LS CO RD R/W#91483 |
| Parcel # / Geo ID: | 961806009 | Agent Code: | |
| Type: | Real | | |
| Tax Area: | 0211 - 1-49F1E1H2L1 | Land Use Code | 11 |
| Open Space: | N | DFL | N |
| Historic Property: | N | Remodel Property: | N |
| Multi-Family Redevelopment: | N | | |
| Township: | 30N | Section: | 34 |
| Range: | 1W |
Location |
| Address: | | Mapsco: | 043/020 |
| Neighborhood: | IRONDALE BLOCKS 48 - 92 | Map ID: | |
| Neighborhood CD: | 4125 |
Owner |
| Name: | GERALD & LIANE JENNINGS | Owner ID: | 104683 |
| Mailing Address: | 15 8TH AVE PORT HADLOCK, WA 98339-9607 | % Ownership: | 100.0000000000% |
| | | Exemptions: | |
Pay Tax Due
Select the appropriate checkbox next to the year to be paid. Multiple years may be selected.
*Convenience Fee not included
Taxes and Assessment Details
Property Tax Information as of
03/10/2026
Click on "Statement Details" to expand or collapse a tax statement.
* Please enter a valid date ** Please enter a valid date *
Statement Details |
| 2026 | 20651 | STATE - STATE LEVY (SCHOOL) | $103.81 | $103.79 | $0.00 | $0.00 | $0.00 | $207.60 |
| 2026 | 20651 | COUNTY - COUNTY LEVIES (CE, DD, VET, MH) | $41.51 | $41.49 | $0.00 | $0.00 | $0.00 | $83.00 |
| 2026 | 20651 | CONSERVE - CONSERVATION FUTURES | $1.25 | $1.24 | $0.00 | $0.00 | $0.00 | $2.49 |
| 2026 | 20651 | COROADS - COUNTY ROADS (ROADS, DIV TO CE) | $33.48 | $33.48 | $0.00 | $0.00 | $0.00 | $66.96 |
| 2026 | 20651 | PORTPT - PORT DISTRICT | $16.77 | $16.75 | $0.00 | $0.00 | $0.00 | $33.52 |
| 2026 | 20651 | PUD1 - PUD #1 | $2.70 | $2.70 | $0.00 | $0.00 | $0.00 | $5.40 |
| 2026 | 20651 | LIB1 - LIBRARY DIST #1 | $12.96 | $12.95 | $0.00 | $0.00 | $0.00 | $25.91 |
| 2026 | 20651 | HD2 - HOSP DIST #2 | $2.42 | $2.42 | $0.00 | $0.00 | $0.00 | $4.84 |
| 2026 | 20651 | SD49 - SCHOOL DIST #49 | $57.14 | $57.14 | $0.00 | $0.00 | $0.00 | $114.28 |
| 2026 | 20651 | FD1 - FIRE DISTRICT #1 | $54.96 | $54.95 | $0.00 | $0.00 | $0.00 | $109.91 |
| 2026 | 20651 | EMS1 - FIRE DIST #1 EMS | $21.13 | $21.13 | $0.00 | $0.00 | $0.00 | $42.26 |
| 2026 | 20651 | FP - DNR Forest Fire Protection Assmt | $8.50 | $8.50 | $0.00 | $0.00 | $0.00 | $17.00 |
| 2026 | 20651 | FPLCA - DNR Landowner Contingency Assmt | $3.00 | $3.00 | $0.00 | $0.00 | $0.00 | $6.00 |
| 2026 | 20651 | JCCD - JC Conservation District | $2.55 | $2.55 | $0.00 | $0.00 | $0.00 | $5.10 |
| 2026 | 20651 | NWA - Noxious Weed Assessment | $2.98 | $2.97 | $0.00 | $0.00 | $0.00 | $5.95 |
| 2026 | 20651 | OSS - On Site Septic | $23.10 | $23.10 | $0.00 | $0.00 | $0.00 | $46.20 |
| 2026 | 20651 | WAT - Clean Water District | $13.00 | $13.00 | $0.00 | $0.00 | $0.00 | $26.00 |
| 2026 | 20651 | FP ADMIN - FP ADMIN | $0.50 | $0.00 | $0.00 | $0.00 | $0.00 | $0.50 |
| 2026 | 20651 | TOTAL: | $401.76 | $401.16 | $0.00 | $0.00 | $0.00 | $802.92 |
|
| 2026 | 20651 | $401.76 | $401.16 | $0.00 | $0.00 | $0.00 | $802.92 |
Statement Details |
| 2025 | 20712 | STATE - STATE LEVY (SCHOOL) | $102.61 | $102.60 | $0.00 | $0.00 | $205.21 | $0.00 |
| 2025 | 20712 | COUNTY - COUNTY LEVIES (CE, DD, VET, MH) | $40.35 | $40.35 | $0.00 | $0.00 | $80.70 | $0.00 |
| 2025 | 20712 | CONSERVE - CONSERVATION FUTURES | $1.21 | $1.21 | $0.00 | $0.00 | $2.42 | $0.00 |
| 2025 | 20712 | COROADS - COUNTY ROADS (ROADS, DIV TO CE) | $32.33 | $32.32 | $0.00 | $0.00 | $64.65 | $0.00 |
| 2025 | 20712 | PORTPT - PORT DISTRICT | $16.47 | $16.46 | $0.00 | $0.00 | $32.93 | $0.00 |
| 2025 | 20712 | PUD1 - PUD #1 | $2.64 | $2.64 | $0.00 | $0.00 | $5.28 | $0.00 |
| 2025 | 20712 | LIB1 - LIBRARY DIST #1 | $12.51 | $12.50 | $0.00 | $0.00 | $25.01 | $0.00 |
| 2025 | 20712 | HD2 - HOSP DIST #2 | $2.36 | $2.35 | $0.00 | $0.00 | $4.71 | $0.00 |
| 2025 | 20712 | SD49 - SCHOOL DIST #49 | $54.99 | $54.99 | $0.00 | $0.00 | $109.98 | $0.00 |
| 2025 | 20712 | FD1 - FIRE DISTRICT #1 | $53.25 | $53.24 | $0.00 | $0.00 | $106.49 | $0.00 |
| 2025 | 20712 | EMS1 - FIRE DIST #1 EMS | $20.48 | $20.48 | $0.00 | $0.00 | $40.96 | $0.00 |
| 2025 | 20712 | FP - DNR Forest Fire Protection Assmt | $8.50 | $8.50 | $0.00 | $0.00 | $17.00 | $0.00 |
| 2025 | 20712 | FPLCA - DNR Landowner Contingency Assmt | $3.00 | $3.00 | $0.00 | $0.00 | $6.00 | $0.00 |
| 2025 | 20712 | JCCD - JC Conservation District | $2.55 | $2.55 | $0.00 | $0.00 | $5.10 | $0.00 |
| 2025 | 20712 | NWA - Noxious Weed Assessment | $2.15 | $2.15 | $0.00 | $0.00 | $4.30 | $0.00 |
| 2025 | 20712 | OSS - On Site Septic | $21.50 | $21.50 | $0.00 | $0.00 | $43.00 | $0.00 |
| 2025 | 20712 | WAT - Clean Water District | $13.00 | $13.00 | $0.00 | $0.00 | $26.00 | $0.00 |
| 2025 | 20712 | FP ADMIN - FP ADMIN | $0.50 | $0.00 | $0.00 | $0.00 | $0.50 | $0.00 |
| 2025 | 20712 | TOTAL: | $390.40 | $389.84 | $0.00 | $0.00 | $780.24 | $0.00 |
|
| 2025 | 20712 | $390.40 | $389.84 | $0.00 | $0.00 | $780.24 | $0.00 |
Statement Details |
| 2024 | 20754 | STATE - STATE LEVY (SCHOOL) | $94.28 | $94.27 | $0.00 | $0.00 | $188.55 | $0.00 |
| 2024 | 20754 | COUNTY - COUNTY LEVIES (CE, DD, VET, MH) | $40.35 | $40.34 | $0.00 | $0.00 | $80.69 | $0.00 |
| 2024 | 20754 | CONSERVE - CONSERVATION FUTURES | $1.21 | $1.21 | $0.00 | $0.00 | $2.42 | $0.00 |
| 2024 | 20754 | COROADS - COUNTY ROADS (ROADS, DIV TO CE) | $32.47 | $32.46 | $0.00 | $0.00 | $64.93 | $0.00 |
| 2024 | 20754 | PORTPT - PORT DISTRICT | $16.66 | $16.66 | $0.00 | $0.00 | $33.32 | $0.00 |
| 2024 | 20754 | PUD1 - PUD #1 | $2.65 | $2.65 | $0.00 | $0.00 | $5.30 | $0.00 |
| 2024 | 20754 | LIB1 - LIBRARY DIST #1 | $12.56 | $12.56 | $0.00 | $0.00 | $25.12 | $0.00 |
| 2024 | 20754 | HD2 - HOSP DIST #2 | $2.36 | $2.35 | $0.00 | $0.00 | $4.71 | $0.00 |
| 2024 | 20754 | SD49 - SCHOOL DIST #49 | $42.10 | $42.10 | $0.00 | $0.00 | $84.20 | $0.00 |
| 2024 | 20754 | FD1 - FIRE DISTRICT #1 | $53.35 | $53.34 | $0.00 | $0.00 | $106.69 | $0.00 |
| 2024 | 20754 | EMS1 - FIRE DIST #1 EMS | $20.38 | $20.37 | $0.00 | $0.00 | $40.75 | $0.00 |
| 2024 | 20754 | FP - DNR Forest Fire Protection Assmt | $8.50 | $8.50 | $0.00 | $0.00 | $17.00 | $0.00 |
| 2024 | 20754 | FPLCA - DNR Landowner Contingency Assmt | $3.00 | $3.00 | $0.00 | $0.00 | $6.00 | $0.00 |
| 2024 | 20754 | JCCD - JC Conservation District | $2.55 | $2.55 | $0.00 | $0.00 | $5.10 | $0.00 |
| 2024 | 20754 | NWA - Noxious Weed Assessment | $2.15 | $2.15 | $0.00 | $0.00 | $4.30 | $0.00 |
| 2024 | 20754 | OSS - On Site Septic | $21.00 | $21.00 | $0.00 | $0.00 | $42.00 | $0.00 |
| 2024 | 20754 | WAT - Clean Water District | $12.50 | $12.50 | $0.00 | $0.00 | $25.00 | $0.00 |
| 2024 | 20754 | FP ADMIN - FP ADMIN | $0.50 | $0.00 | $0.00 | $0.00 | $0.50 | $0.00 |
| 2024 | 20754 | TOTAL: | $368.57 | $368.01 | $0.00 | $0.00 | $736.58 | $0.00 |
|
| 2024 | 20754 | $368.57 | $368.01 | $0.00 | $0.00 | $736.58 | $0.00 |
Statement Details |
| 2023 | 20791 | STATE - STATE LEVY (SCHOOL) | $68.75 | $68.73 | $0.00 | $0.00 | $137.48 | $0.00 |
| 2023 | 20791 | COUNTY - COUNTY LEVIES (CE, DD, VET, MH) | $30.00 | $29.99 | $0.00 | $0.00 | $59.99 | $0.00 |
| 2023 | 20791 | CONSERVE - CONSERVATION FUTURES | $0.90 | $0.90 | $0.00 | $0.00 | $1.80 | $0.00 |
| 2023 | 20791 | COROADS - COUNTY ROADS (ROADS, DIV TO CE) | $24.27 | $24.27 | $0.00 | $0.00 | $48.54 | $0.00 |
| 2023 | 20791 | PORTPT - PORT DISTRICT | $12.64 | $12.63 | $0.00 | $0.00 | $25.27 | $0.00 |
| 2023 | 20791 | PUD1 - PUD #1 | $1.99 | $1.99 | $0.00 | $0.00 | $3.98 | $0.00 |
| 2023 | 20791 | LIB1 - LIBRARY DIST #1 | $9.39 | $9.39 | $0.00 | $0.00 | $18.78 | $0.00 |
| 2023 | 20791 | HD2 - HOSP DIST #2 | $1.76 | $1.74 | $0.00 | $0.00 | $3.50 | $0.00 |
| 2023 | 20791 | SD49 - SCHOOL DIST #49 | $32.14 | $32.13 | $0.00 | $0.00 | $64.27 | $0.00 |
| 2023 | 20791 | FD1 - FIRE DISTRICT #1 | $24.71 | $24.71 | $0.00 | $0.00 | $49.42 | $0.00 |
| 2023 | 20791 | EMS1 - FIRE DIST #1 EMS | $10.51 | $10.51 | $0.00 | $0.00 | $21.02 | $0.00 |
| 2023 | 20791 | FP - DNR Forest Fire Protection Assmt | $8.50 | $8.50 | $0.00 | $0.00 | $17.00 | $0.00 |
| 2023 | 20791 | FPLCA - DNR Landowner Contingency Assmt | $3.00 | $3.00 | $0.00 | $0.00 | $6.00 | $0.00 |
| 2023 | 20791 | JCCD - JC Conservation District | $2.55 | $2.55 | $0.00 | $0.00 | $5.10 | $0.00 |
| 2023 | 20791 | NWA - Noxious Weed Assessment | $2.15 | $2.15 | $0.00 | $0.00 | $4.30 | $0.00 |
| 2023 | 20791 | OSS - On Site Septic | $20.50 | $20.50 | $0.00 | $0.00 | $41.00 | $0.00 |
| 2023 | 20791 | WAT - Clean Water District | $12.00 | $12.00 | $0.00 | $0.00 | $24.00 | $0.00 |
| 2023 | 20791 | FP ADMIN - FP ADMIN | $0.50 | $0.00 | $0.00 | $0.00 | $0.50 | $0.00 |
| 2023 | 20791 | TOTAL: | $266.26 | $265.69 | $0.00 | $0.00 | $531.95 | $0.00 |
|
| 2023 | 20791 | $266.26 | $265.69 | $0.00 | $0.00 | $531.95 | $0.00 |
Values
| (+) Improvement Homesite Value: | + | $0 | |
| (+) Improvement Non-Homesite Value: | + | $0 | |
| (+) Land Homesite Value: | + | $0 | |
| (+) Land Non-Homesite Value: | + | $90,300 | |
| (+) Curr Use (HS): | + | $0 | $0 |
| (+) Curr Use (NHS): | + | $0 | $0 |
| | | -------------------------- | |
| (=) Market Value: | = | $90,300 | |
| (–) Productivity Loss: | – | $0 | |
| | | -------------------------- | |
| (=) Subtotal: | = | $90,300 | |
| (+) Senior Appraised Value: | + | $0 | |
| (+) Non-Senior Appraised Value: | + | $90,300 | |
| | | -------------------------- | |
| (=) Total Appraised Value: | = | $90,300 | |
| (–) Senior Exemption Loss: | – | $0 | |
| (–) Exemption Loss: | – | $0 | |
| | | -------------------------- | |
| (=) Taxable Value: | = | $90,300 | |
Taxing Jurisdiction
| Owner: | GERALD & LIANE JENNINGS | | |
| % Ownership: | 100.0000000000% | | |
| Total Value: | $90,300 | | |
| Tax Area: | 0211 - 1-49F1E1H2L1 |
| CE | COUNTY CURRENT EXPENSE | 0.9034619479 | $90,300 | $90,300 | $81.58 | | |
| CNTYDD | DEVELOPMENTAL DISABILITIES | 0.0052121823 | $90,300 | $90,300 | $0.47 | | |
| CNTYVET | VETERANS RELIEF | 0.0052777810 | $90,300 | $90,300 | $0.48 | | |
| MENTAL | MENTAL HEALTH | 0.0052121823 | $90,300 | $90,300 | $0.47 | | |
| ROADS | COUNTY ROADS | 0.7415066410 | $90,300 | $90,300 | $66.96 | | |
| ROADSCU | COUNTY ROADS TO CUR EXP | 0.0000000000 | $90,300 | $90,300 | $0.00 | | |
| HOSP2CASH | HOSP DIST #2 GENERAL | 0.0536075306 | $90,300 | $90,300 | $4.84 | | |
| SCH49CP | SCHOOL DIST #49 CAP PROJ | 0.6279093905 | $90,300 | $90,300 | $56.70 | | |
| SCH49MO | SCHOOL DIST #49 EP & O | 0.6376483602 | $90,300 | $90,300 | $57.58 | | |
| CONSERVE | CONSERVATION FUTURES | 0.0275621078 | $90,300 | $90,300 | $2.49 | | |
| EMS1 | FIRE DIST #1 EMS | 0.4679948282 | $90,300 | $90,300 | $42.26 | | |
| FD1 | FIRE DIST #1 GENERAL | 1.2171942929 | $90,300 | $90,300 | $109.91 | | |
| LIB1 | LIBRARY DIST #1 GENERAL | 0.2868827388 | $90,300 | $90,300 | $25.91 | | |
| PORTPT | PORT OF PT GENERAL | 0.1134941229 | $90,300 | $90,300 | $10.25 | | |
| PORTPTIDD | PORT OF PT IDD 2019 | 0.2577346692 | $90,300 | $90,300 | $23.27 | | |
| PUD1 | PUD #1 GENERAL | 0.0597888892 | $90,300 | $90,300 | $5.40 | | |
| STATE | STATE SCHOOL PART 1 | 1.4940692947 | $90,300 | $90,300 | $134.91 | | |
| STATE2 | STATE SCHOOL PART 2 | 0.8050170049 | $90,300 | $90,300 | $72.69 | | |
| | Total Tax Rate: | 7.7095739644 | | | | | |
| | | | | Taxes w/Current Exemptions: | $696.17 | | |
| | | | | Taxes w/o Exemptions: | $696.17 | | |
Improvement / Building
Sketch
| No sketches available for this property. |
Property Image
Land
| 1 | 4125-1187L | | 0.0000 | 0.00 | 0.00 | 0.00 | 9.00 | $37,800 | $0 |
| 2 | 4125-1285S | | 0.0000 | 0.00 | 0.00 | 0.00 | 1.00 | $52,500 | $0 |
Roll Value History
| 2026 | N/A | N/A | N/A | N/A | N/A |
| 2025 | $0 | $90,300 | $0 | $90,300 | $90,300 |
| 2024 | $0 | $85,575 | $0 | $85,575 | $85,575 |
| 2023 | $0 | $81,500 | $0 | $81,500 | $81,500 |
| 2022 | $0 | $58,400 | $0 | $58,400 | $58,400 |
Deed and Sales History
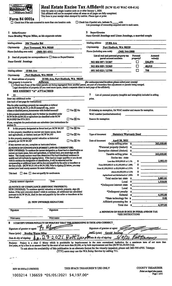
| 1 | 04/28/2021 | SWD | Statutory Warranty Deed | BRADLEY W MILES | GERALD & LIANE JENNINGS | | | $262,000.00 | 136659 | |
|   | |
| 2 | 02/26/2015 | QCD | Quit Claim Deed | LAILA J MILES LIVING TRUST | BRADLEY W MILES | | | | 122734 | |
| 3 | 06/09/2014 | QCD | Quit Claim Deed | | | | | | 121430 | |
| 4 | 01/19/2001 | SWD | Statutory Warranty Deed | MILES, LAILA J | JEFFERSON COUNTY | 0 | 0 | $0.00 | 91483 | 0 |
| 5 | 05/22/1990 | QCD | Quit Claim Deed | GREAT NORTHWEST BANKD | HAAPALA, RAYMOND D/LILLIAN | 0 | 0 | $0.00 | 67649 | 0 |
Payout Agreement
| No payout information available.. |