Property
Account |
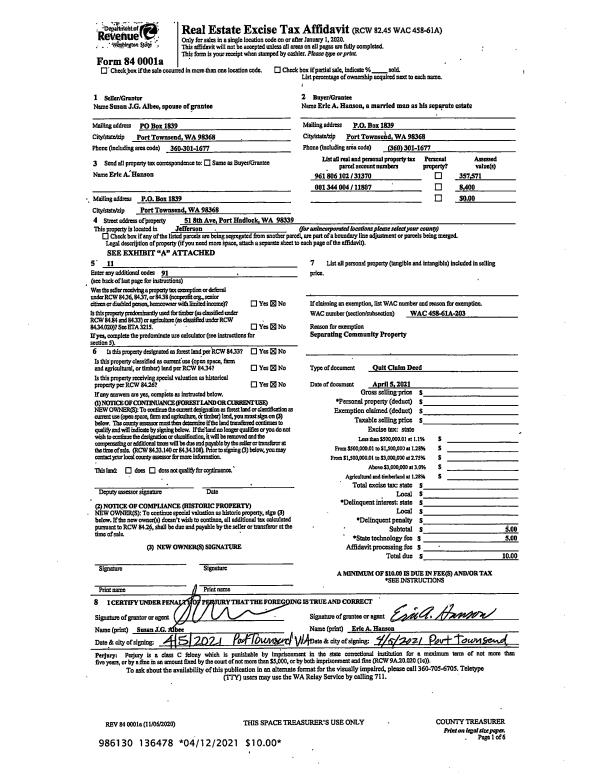
| Property ID: | 31370 | Abbreviated Legal Description: | IRONDALE #2 & #7 BLK 61 LOTS 4,5,6 & 42 THRU 48 W/PTN VAC EUGENE ST ADJ |
| Parcel # / Geo ID: | 961806102 | Agent Code: | |
| Type: | Real | | |
| Tax Area: | 0211 - 1-49F1E1H2L1 | Land Use Code | 11 |
| Open Space: | N | DFL | N |
| Historic Property: | N | Remodel Property: | N |
| Multi-Family Redevelopment: | N | | |
| Township: | 30N | Section: | 34 |
| Range: | 1W |
Location |
| Address: | 51 8TH AVE PORT HADLOCK, WA 98339 | Mapsco: | 043/024 |
| Neighborhood: | IRONDALE BLOCKS 48 - 92 | Map ID: | |
| Neighborhood CD: | 4125 |
Owner |
| Name: | ERIC A HANSON | Owner ID: | 104544 |
| Mailing Address: | 51 8TH AVE PORT HADLOCK, WA 98339-9607 | % Ownership: | 100.0000000000% |
| | | Exemptions: | SNR/DSBL |
Pay Tax Due
Select the appropriate checkbox next to the year to be paid. Multiple years may be selected.
*Convenience Fee not included
Taxes and Assessment Details
Property Tax Information as of
03/12/2026
Click on "Statement Details" to expand or collapse a tax statement.
* Please enter a valid date ** Please enter a valid date *
Statement Details |
| 2026 | 20652 | STATE - STATE LEVY (SCHOOL) | $211.96 | $211.94 | $0.00 | $0.00 | $0.00 | $423.90 |
| 2026 | 20652 | COUNTY - COUNTY LEVIES (CE, DD, VET, MH) | $118.29 | $118.29 | $0.00 | $0.00 | $0.00 | $236.58 |
| 2026 | 20652 | CONSERVE - CONSERVATION FUTURES | $3.55 | $3.54 | $0.00 | $0.00 | $0.00 | $7.09 |
| 2026 | 20652 | COROADS - COUNTY ROADS (ROADS, DIV TO CE) | $95.43 | $95.42 | $0.00 | $0.00 | $0.00 | $190.85 |
| 2026 | 20652 | PORTPT - PORT DISTRICT | $47.78 | $47.77 | $0.00 | $0.00 | $0.00 | $95.55 |
| 2026 | 20652 | PUD1 - PUD #1 | $7.70 | $7.69 | $0.00 | $0.00 | $0.00 | $15.39 |
| 2026 | 20652 | LIB1 - LIBRARY DIST #1 | $36.92 | $36.92 | $0.00 | $0.00 | $0.00 | $73.84 |
| 2026 | 20652 | HD2 - HOSP DIST #2 | $6.90 | $6.90 | $0.00 | $0.00 | $0.00 | $13.80 |
| 2026 | 20652 | SD49 - SCHOOL DIST #49 | $30.94 | $30.92 | $0.00 | $0.00 | $0.00 | $61.86 |
| 2026 | 20652 | FD1 - FIRE DISTRICT #1 | $156.65 | $156.64 | $0.00 | $0.00 | $0.00 | $313.29 |
| 2026 | 20652 | EMS1 - FIRE DIST #1 EMS | $60.23 | $60.23 | $0.00 | $0.00 | $0.00 | $120.46 |
| 2026 | 20652 | FP - DNR Forest Fire Protection Assmt | $8.50 | $8.50 | $0.00 | $0.00 | $0.00 | $17.00 |
| 2026 | 20652 | FPLCA - DNR Landowner Contingency Assmt | $3.00 | $3.00 | $0.00 | $0.00 | $0.00 | $6.00 |
| 2026 | 20652 | JCCD - JC Conservation District | $2.55 | $2.55 | $0.00 | $0.00 | $0.00 | $5.10 |
| 2026 | 20652 | NWA - Noxious Weed Assessment | $2.98 | $2.97 | $0.00 | $0.00 | $0.00 | $5.95 |
| 2026 | 20652 | OSS - On Site Septic | $23.10 | $23.10 | $0.00 | $0.00 | $0.00 | $46.20 |
| 2026 | 20652 | WAT - Clean Water District | $13.00 | $13.00 | $0.00 | $0.00 | $0.00 | $26.00 |
| 2026 | 20652 | FP ADMIN - FP ADMIN | $0.50 | $0.00 | $0.00 | $0.00 | $0.00 | $0.50 |
| 2026 | 20652 | TOTAL: | $829.98 | $829.38 | $0.00 | $0.00 | $0.00 | $1659.36 |
|
| 2026 | 20652 | $829.98 | $829.38 | $0.00 | $0.00 | $0.00 | $1659.36 |
Statement Details |
| 2025 | 20713 | STATE - STATE LEVY (SCHOOL) | $220.82 | $220.81 | $0.00 | $0.00 | $441.63 | $0.00 |
| 2025 | 20713 | COUNTY - COUNTY LEVIES (CE, DD, VET, MH) | $121.25 | $121.22 | $0.00 | $0.00 | $242.47 | $0.00 |
| 2025 | 20713 | CONSERVE - CONSERVATION FUTURES | $3.64 | $3.63 | $0.00 | $0.00 | $7.27 | $0.00 |
| 2025 | 20713 | COROADS - COUNTY ROADS (ROADS, DIV TO CE) | $97.14 | $97.12 | $0.00 | $0.00 | $194.26 | $0.00 |
| 2025 | 20713 | PORTPT - PORT DISTRICT | $49.47 | $49.47 | $0.00 | $0.00 | $98.94 | $0.00 |
| 2025 | 20713 | PUD1 - PUD #1 | $7.94 | $7.93 | $0.00 | $0.00 | $15.87 | $0.00 |
| 2025 | 20713 | LIB1 - LIBRARY DIST #1 | $37.58 | $37.58 | $0.00 | $0.00 | $75.16 | $0.00 |
| 2025 | 20713 | HD2 - HOSP DIST #2 | $7.08 | $7.07 | $0.00 | $0.00 | $14.15 | $0.00 |
| 2025 | 20713 | SD49 - SCHOOL DIST #49 | $31.24 | $31.24 | $0.00 | $0.00 | $62.48 | $0.00 |
| 2025 | 20713 | FD1 - FIRE DISTRICT #1 | $159.99 | $159.98 | $0.00 | $0.00 | $319.97 | $0.00 |
| 2025 | 20713 | EMS1 - FIRE DIST #1 EMS | $61.54 | $61.53 | $0.00 | $0.00 | $123.07 | $0.00 |
| 2025 | 20713 | FPLCA - DNR Landowner Contingency Assmt | $3.00 | $3.00 | $0.00 | $0.00 | $6.00 | $0.00 |
| 2025 | 20713 | JCCD - JC Conservation District | $2.55 | $2.55 | $0.00 | $0.00 | $5.10 | $0.00 |
| 2025 | 20713 | NWA - Noxious Weed Assessment | $2.15 | $2.15 | $0.00 | $0.00 | $4.30 | $0.00 |
| 2025 | 20713 | OSS - On Site Septic | $21.50 | $21.50 | $0.00 | $0.00 | $43.00 | $0.00 |
| 2025 | 20713 | WAT - Clean Water District | $13.00 | $13.00 | $0.00 | $0.00 | $26.00 | $0.00 |
| 2025 | 20713 | TOTAL: | $839.89 | $839.78 | $0.00 | $0.00 | $1679.67 | $0.00 |
|
| 2025 | 20713 | $839.89 | $839.78 | $0.00 | $0.00 | $1679.67 | $0.00 |
Statement Details |
| 2024 | 20755 | STATE - STATE LEVY (SCHOOL) | $544.08 | $544.07 | $0.00 | $0.00 | $1088.15 | $0.00 |
| 2024 | 20755 | COUNTY - COUNTY LEVIES (CE, DD, VET, MH) | $266.39 | $266.35 | $0.00 | $0.00 | $532.74 | $0.00 |
| 2024 | 20755 | CONSERVE - CONSERVATION FUTURES | $7.99 | $7.98 | $0.00 | $0.00 | $15.97 | $0.00 |
| 2024 | 20755 | COROADS - COUNTY ROADS (ROADS, DIV TO CE) | $214.34 | $214.33 | $0.00 | $0.00 | $428.67 | $0.00 |
| 2024 | 20755 | PORTPT - PORT DISTRICT | $110.02 | $110.02 | $0.00 | $0.00 | $220.04 | $0.00 |
| 2024 | 20755 | PUD1 - PUD #1 | $17.50 | $17.49 | $0.00 | $0.00 | $34.99 | $0.00 |
| 2024 | 20755 | LIB1 - LIBRARY DIST #1 | $82.93 | $82.92 | $0.00 | $0.00 | $165.85 | $0.00 |
| 2024 | 20755 | HD2 - HOSP DIST #2 | $15.54 | $15.54 | $0.00 | $0.00 | $31.08 | $0.00 |
| 2024 | 20755 | SD49 - SCHOOL DIST #49 | $177.69 | $177.69 | $0.00 | $0.00 | $355.38 | $0.00 |
| 2024 | 20755 | FD1 - FIRE DISTRICT #1 | $352.20 | $352.19 | $0.00 | $0.00 | $704.39 | $0.00 |
| 2024 | 20755 | EMS1 - FIRE DIST #1 EMS | $134.53 | $134.52 | $0.00 | $0.00 | $269.05 | $0.00 |
| 2024 | 20755 | FPLCA - DNR Landowner Contingency Assmt | $3.00 | $3.00 | $0.00 | $0.00 | $6.00 | $0.00 |
| 2024 | 20755 | JCCD - JC Conservation District | $2.55 | $2.55 | $0.00 | $0.00 | $5.10 | $0.00 |
| 2024 | 20755 | NWA - Noxious Weed Assessment | $2.15 | $2.15 | $0.00 | $0.00 | $4.30 | $0.00 |
| 2024 | 20755 | OSS - On Site Septic | $21.00 | $21.00 | $0.00 | $0.00 | $42.00 | $0.00 |
| 2024 | 20755 | WAT - Clean Water District | $12.50 | $12.50 | $0.00 | $0.00 | $25.00 | $0.00 |
| 2024 | 20755 | TOTAL: | $1964.41 | $1964.30 | $0.00 | $0.00 | $3928.71 | $0.00 |
|
| 2024 | 20755 | $1964.41 | $1964.30 | $0.00 | $0.00 | $3928.71 | $0.00 |
Statement Details |
| 2023 | 20792 | STATE - STATE LEVY (SCHOOL) | $576.52 | $576.52 | $0.00 | $0.00 | $1153.04 | $0.00 |
| 2023 | 20792 | COUNTY - COUNTY LEVIES (CE, DD, VET, MH) | $251.59 | $251.57 | $0.00 | $0.00 | $503.16 | $0.00 |
| 2023 | 20792 | CONSERVE - CONSERVATION FUTURES | $7.55 | $7.54 | $0.00 | $0.00 | $15.09 | $0.00 |
| 2023 | 20792 | COROADS - COUNTY ROADS (ROADS, DIV TO CE) | $203.55 | $203.53 | $0.00 | $0.00 | $407.08 | $0.00 |
| 2023 | 20792 | PORTPT - PORT DISTRICT | $105.99 | $105.97 | $0.00 | $0.00 | $211.96 | $0.00 |
| 2023 | 20792 | PUD1 - PUD #1 | $16.68 | $16.67 | $0.00 | $0.00 | $33.35 | $0.00 |
| 2023 | 20792 | LIB1 - LIBRARY DIST #1 | $78.75 | $78.75 | $0.00 | $0.00 | $157.50 | $0.00 |
| 2023 | 20792 | HD2 - HOSP DIST #2 | $14.69 | $14.68 | $0.00 | $0.00 | $29.37 | $0.00 |
| 2023 | 20792 | SD49 - SCHOOL DIST #49 | $269.49 | $269.49 | $0.00 | $0.00 | $538.98 | $0.00 |
| 2023 | 20792 | FD1 - FIRE DISTRICT #1 | $207.25 | $207.25 | $0.00 | $0.00 | $414.50 | $0.00 |
| 2023 | 20792 | EMS1 - FIRE DIST #1 EMS | $88.16 | $88.16 | $0.00 | $0.00 | $176.32 | $0.00 |
| 2023 | 20792 | FPLCA - DNR Landowner Contingency Assmt | $3.00 | $3.00 | $0.00 | $0.00 | $6.00 | $0.00 |
| 2023 | 20792 | JCCD - JC Conservation District | $2.55 | $2.55 | $0.00 | $0.00 | $5.10 | $0.00 |
| 2023 | 20792 | NWA - Noxious Weed Assessment | $2.15 | $2.15 | $0.00 | $0.00 | $4.30 | $0.00 |
| 2023 | 20792 | OSS - On Site Septic | $20.50 | $20.50 | $0.00 | $0.00 | $41.00 | $0.00 |
| 2023 | 20792 | WAT - Clean Water District | $12.00 | $12.00 | $0.00 | $0.00 | $24.00 | $0.00 |
| 2023 | 20792 | TOTAL: | $1860.42 | $1860.33 | $0.00 | $0.00 | $3720.75 | $0.00 |
|
| 2023 | 20792 | $1860.42 | $1860.33 | $0.00 | $0.00 | $3720.75 | $0.00 |
Values
| (+) Improvement Homesite Value: | + | $429,913 | |
| (+) Improvement Non-Homesite Value: | + | $46,778 | |
| (+) Land Homesite Value: | + | $112,350 | |
| (+) Land Non-Homesite Value: | + | $2,100 | |
| (+) Curr Use (HS): | + | $0 | $0 |
| (+) Curr Use (NHS): | + | $0 | $0 |
| | | -------------------------- | |
| (=) Market Value: | = | $591,141 | |
| (–) Productivity Loss: | – | $0 | |
| | | -------------------------- | |
| (=) Subtotal: | = | $591,141 | |
| (+) Senior Appraised Value: | + | $521,269 | |
| (+) Non-Senior Appraised Value: | + | $48,878 | |
| | | -------------------------- | |
| (=) Total Appraised Value: | = | $570,147 | |
| (–) Senior Exemption Loss: | – | $312,761 | |
| (–) Exemption Loss: | – | $0 | |
| | | -------------------------- | |
| (=) Taxable Value: | = | $257,386 | |
Taxing Jurisdiction
| Owner: | ERIC A HANSON | | |
| % Ownership: | 100.0000000000% | | |
| Total Value: | N/A | | |
| Tax Area: | 0211 - 1-49F1E1H2L1 |
| CE | COUNTY CURRENT EXPENSE | N/A | N/A | N/A | N/A | | |
| CNTYDD | DEVELOPMENTAL DISABILITIES | N/A | N/A | N/A | N/A | | |
| CNTYVET | VETERANS RELIEF | N/A | N/A | N/A | N/A | | |
| MENTAL | MENTAL HEALTH | N/A | N/A | N/A | N/A | | |
| ROADS | COUNTY ROADS | N/A | N/A | N/A | N/A | | |
| HOSP2CASH | HOSP DIST #2 GENERAL | N/A | N/A | N/A | N/A | | |
| SCH49CP | SCHOOL DIST #49 CAP PROJ | N/A | N/A | N/A | N/A | | |
| SCH49MO | SCHOOL DIST #49 EP & O | N/A | N/A | N/A | N/A | | |
| CONSERVE | CONSERVATION FUTURES | N/A | N/A | N/A | N/A | | |
| EMS1 | FIRE DIST #1 EMS | N/A | N/A | N/A | N/A | | |
| FD1 | FIRE DIST #1 GENERAL | N/A | N/A | N/A | N/A | | |
| LIB1 | LIBRARY DIST #1 GENERAL | N/A | N/A | N/A | N/A | | |
| PORTPT | PORT OF PT GENERAL | N/A | N/A | N/A | N/A | | |
| PORTPTIDD | PORT OF PT IDD 2019 | N/A | N/A | N/A | N/A | | |
| PUD1 | PUD #1 GENERAL | N/A | N/A | N/A | N/A | | |
| STATE | STATE SCHOOL PART 1 | N/A | N/A | N/A | N/A | | |
| STATE2 | STATE SCHOOL PART 2 | N/A | N/A | N/A | N/A | | |
| | Total Tax Rate: | N/A | | | | | |
| | | | | Taxes w/Current Exemptions: | N/A | | |
| | | | | Taxes w/o Exemptions: | N/A | | |
Improvement / Building
| Improvement #1: | Residential Bldg | State Code: | 11 | 1134.0 sqft | Value: | $273,988 |
| Bathrooms (#): | 1 (FULL) | Bedrooms (#): | 2 | | Exterior Wall: | SI/ST | Fireplace: | WD ST-AVG | | Floor Construction: | FRAME | Foundation: | CONPR | | Heating/Cooling: | ELBB | Inside Verify: | YES-FIX | | Roof Cover: | METAL |   |   |
|
| | Type | Description | Class CD | Sub Class CD | Year Built | Area |
| | MA | Main Area | 4+ | 15SF | 1977 | 648.0 |
| | MA2 | Second Floor Main Area | 4+ | 15SF | 1977 | 486.0 |
| | HBAL | House Balcony | 4 | * | 1977 | 80.0 |
| | HDECK | House Deck | 4 | * | 1977 | 312.0 |
| | SHED | Shed (Table Not Dep) | 5 | 15SF | 1977 | 300.0 |
| Improvement #2: | Residential Bldg | State Code: | 11 | 0.0 sqft | Value: | $155,925 |
| Improvement #3: | Residential Bldg | State Code: | 11 | 0.0 sqft | Value: | $46,778 |
Sketch
Property Image
Land
| 1 | 4125-1275S | | 0.0000 | 0.00 | 0.00 | 0.00 | 1.00 | $78,750 | $0 |
| 2 | 4125-1187L | | 0.0000 | 0.00 | 0.00 | 0.00 | 8.00 | $33,600 | $0 |
| 3 | 4125-1187L | | 0.0000 | 0.00 | 0.00 | 0.00 | 1.00 | $2,100 | $0 |
Roll Value History
| 2026 | N/A | N/A | N/A | N/A | N/A |
| 2025 | $476,691 | $114,450 | $0 | $591,141 | $257,386 |
| 2024 | $476,691 | $109,988 | $0 | $586,679 | $257,124 |
| 2023 | $433,355 | $104,750 | $0 | $538,105 | $538,105 |
| 2022 | $405,488 | $84,300 | $0 | $489,788 | $489,788 |
Deed and Sales History
| 1 | 04/05/2021 | QCD | Quit Claim Deed | SUSAN J G ALBEE | ERIC A HANSON | | | | 136478 | |
| 2 | 04/05/2021 | SWD | Statutory Warranty Deed | THOMAS O WACKER | ERIC A HANSON | | | $525,000.00 | 136477 | |
|   | |
Payout Agreement
| No payout information available.. |