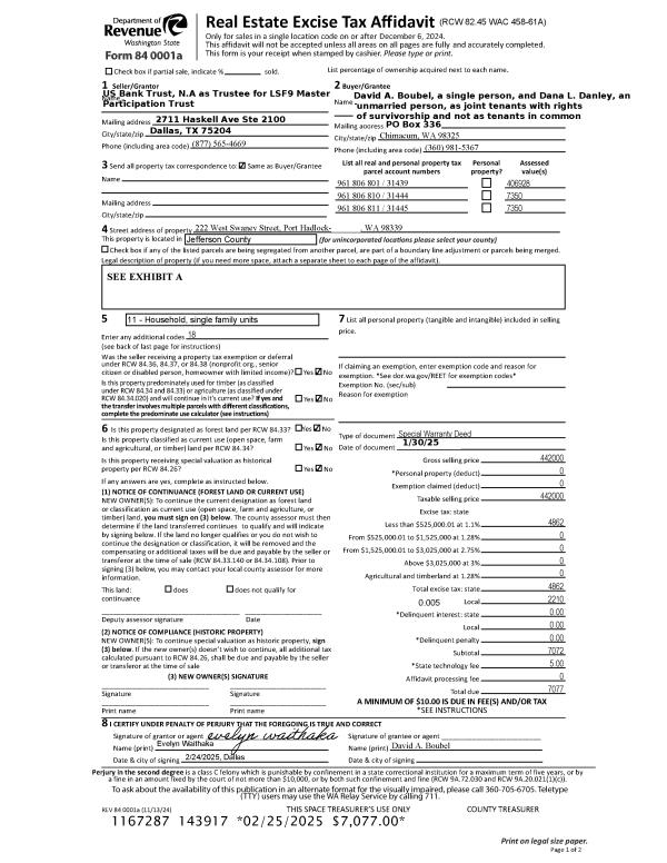
Property
Account |
| Property ID: | 31439 | Abbreviated Legal Description: | IRONDALE #2 BLK 68 LOTS 29 & 30 TGTH/EASE #507761 |
| Parcel # / Geo ID: | 961806801 | Agent Code: | |
| Type: | Real | | |
| Tax Area: | 0211 - 1-49F1E1H2L1 | Land Use Code | 11 |
| Open Space: | N | DFL | N |
| Historic Property: | N | Remodel Property: | N |
| Multi-Family Redevelopment: | N | | |
| Township: | 30N | Section: | 34 |
| Range: | 1W |
Location |
| Address: | 222 W SWANEY ST PORT HADLOCK, WA 98339 | Mapsco: | 044/045 |
| Neighborhood: | IRONDALE BLOCKS 48 - 92 | Map ID: | |
| Neighborhood CD: | 4125 |
Owner |
| Name: | DAVID A BOUBEL | Owner ID: | 112167 |
| Mailing Address: | DANA L DANLEY JTWROS PO BOX 336 CHIMACUM, WA 98325-0336 | % Ownership: | 100.0000000000% |
| | | Exemptions: | |
Pay Tax Due
There is currently No Amount Due on this property.
Taxes and Assessment Details
Property Tax Information as of
03/09/2026
Click on "Statement Details" to expand or collapse a tax statement.
* Please enter a valid date ** Please enter a valid date *
Statement Details |
| | TOTAL: | $0.00 | $0.00 | $0.00 | $0.00 | $0.00 | $0.00 |
|
| | $0.00 | $0.00 | $0.00 | $0.00 | $0.00 | $0.00 |
Values
| (+) Improvement Homesite Value: | + | $0 | |
| (+) Improvement Non-Homesite Value: | + | $322,928 | |
| (+) Land Homesite Value: | + | $0 | |
| (+) Land Non-Homesite Value: | + | $84,000 | |
| (+) Curr Use (HS): | + | $0 | $0 |
| (+) Curr Use (NHS): | + | $0 | $0 |
| | | -------------------------- | |
| (=) Market Value: | = | $406,928 | |
| (–) Productivity Loss: | – | $0 | |
| | | -------------------------- | |
| (=) Subtotal: | = | $406,928 | |
| (+) Senior Appraised Value: | + | $0 | |
| (+) Non-Senior Appraised Value: | + | $406,928 | |
| | | -------------------------- | |
| (=) Total Appraised Value: | = | $406,928 | |
| (–) Senior Exemption Loss: | – | $0 | |
| (–) Exemption Loss: | – | $0 | |
| | | -------------------------- | |
| (=) Taxable Value: | = | $406,928 | |
Taxing Jurisdiction
| Owner: | DAVID A BOUBEL | | |
| % Ownership: | 100.0000000000% | | |
| Total Value: | $406,928 | | |
| Tax Area: | 0211 - 1-49F1E1H2L1 |
| CE | COUNTY CURRENT EXPENSE | 0.9034619479 | $406,928 | $406,928 | $367.64 | | |
| CNTYDD | DEVELOPMENTAL DISABILITIES | 0.0052121823 | $406,928 | $406,928 | $2.12 | | |
| CNTYVET | VETERANS RELIEF | 0.0052777810 | $406,928 | $406,928 | $2.15 | | |
| MENTAL | MENTAL HEALTH | 0.0052121823 | $406,928 | $406,928 | $2.12 | | |
| ROADS | COUNTY ROADS | 0.7415066410 | $406,928 | $406,928 | $301.74 | | |
| ROADSCU | COUNTY ROADS TO CUR EXP | 0.0000000000 | $406,928 | $406,928 | $0.00 | | |
| HOSP2CASH | HOSP DIST #2 GENERAL | 0.0536075306 | $406,928 | $406,928 | $21.81 | | |
| SCH49CP | SCHOOL DIST #49 CAP PROJ | 0.6279093905 | $406,928 | $406,928 | $255.51 | | |
| SCH49MO | SCHOOL DIST #49 EP & O | 0.6376483602 | $406,928 | $406,928 | $259.48 | | |
| CONSERVE | CONSERVATION FUTURES | 0.0275621078 | $406,928 | $406,928 | $11.22 | | |
| EMS1 | FIRE DIST #1 EMS | 0.4679948282 | $406,928 | $406,928 | $190.44 | | |
| FD1 | FIRE DIST #1 GENERAL | 1.2171942929 | $406,928 | $406,928 | $495.31 | | |
| LIB1 | LIBRARY DIST #1 GENERAL | 0.2868827388 | $406,928 | $406,928 | $116.74 | | |
| PORTPT | PORT OF PT GENERAL | 0.1134941229 | $406,928 | $406,928 | $46.18 | | |
| PORTPTIDD | PORT OF PT IDD 2019 | 0.2577346692 | $406,928 | $406,928 | $104.88 | | |
| PUD1 | PUD #1 GENERAL | 0.0597888892 | $406,928 | $406,928 | $24.33 | | |
| STATE | STATE SCHOOL PART 1 | 1.4940692947 | $406,928 | $406,928 | $607.98 | | |
| STATE2 | STATE SCHOOL PART 2 | 0.8050170049 | $406,928 | $406,928 | $327.58 | | |
| | Total Tax Rate: | 7.7095739644 | | | | | |
| | | | | Taxes w/Current Exemptions: | $3,137.23 | | |
| | | | | Taxes w/o Exemptions: | $3,137.23 | | |
Improvement / Building
| Improvement #1: | Residential Bldg | State Code: | 11 | 1792.0 sqft | Value: | $322,928 |
| Bathrooms (#): | 3 (FULL) | Bedrooms (#): | 2 | | Exterior Wall: | PL/T1 | Floor Construction: | FRAME | | Foundation: | CONPR | Heating/Cooling: | F/A | | Roof Cover: | COMP |   |   |
|
| | Type | Description | Class CD | Sub Class CD | Year Built | Area |
| | MA | Main Area | 3+ | 1S | 2006 | 1792.0 |
| | HWPOR | House Wood Porch | 3 | * | 2006 | 72.0 |
| | HDECK | House Deck | 3 | * | 2006 | 209.0 |
| | GDET | Detached Garage | 3 | 1S | 2006 | 200.0 |
Sketch
Property Image
Land
| 1 | 4125-1285S | Irondale 2 Lot Sites No/Filtered Views | 0.0000 | 0.00 | 0.00 | 0.00 | 1.00 | $84,000 | $0 |
Roll Value History
| 2026 | N/A | N/A | N/A | N/A | N/A |
| 2025 | $322,928 | $84,000 | $0 | $406,928 | $406,928 |
| 2024 | $322,928 | $84,000 | $0 | $406,928 | $406,928 |
| 2023 | $308,250 | $75,000 | $0 | $383,250 | $383,250 |
| 2022 | $280,033 | $55,000 | $0 | $335,033 | $335,033 |
Deed and Sales History
| 1 | 01/30/2025 | SPWD | Special Warranty Deed | US BANK TRUST | DAVID A BOUBEL | | | $442,000.00 | 143917 | |
|   | |
| 2 | 08/28/2017 | TRED | Trustee Deed | PATRICK J GUTHRIE | US BANK TRUST | | | $231,146.00 | 128416 | |
|   | |
| 3 | 09/10/2003 | SWD | Statutory Warranty Deed | MARLOW, WILLIAM S | GUTHRIE, PATRICK JOE/TERRI L | 0 | 0 | $0.00 | 98300 | 0 |
Payout Agreement
| No payout information available.. |