Property
Account |
| Property ID: | 31455 | Abbreviated Legal Description: | IRONDALE #2 BLK 69 LOTS 7 & 8 |
| Parcel # / Geo ID: | 961806902 | Agent Code: | |
| Type: | Real | | |
| Tax Area: | 0211 - 1-49F1E1H2L1 | Land Use Code | 11 |
| Open Space: | N | DFL | N |
| Historic Property: | N | Remodel Property: | N |
| Multi-Family Redevelopment: | N | | |
| Township: | 30N | Section: | 34 |
| Range: | 1W |
Location |
| Address: | 162 W MELISSA ST PORT HADLOCK, WA 98339 | Mapsco: | 044/053 |
| Neighborhood: | IRONDALE BLOCKS 48 - 92 | Map ID: | |
| Neighborhood CD: | 4125 |
Owner |
| Name: | KATHRYN & JEFF TILLOTSON | Owner ID: | 101837 |
| Mailing Address: | 17866 ANGELINE AVENUE SOUTH NE SUQUAMISH, WA 98392-9700 | % Ownership: | 100.0000000000% |
| | | Exemptions: | |
Pay Tax Due
Select the appropriate checkbox next to the year to be paid. Multiple years may be selected.
*Convenience Fee not included
Taxes and Assessment Details
Property Tax Information as of
03/11/2026
Click on "Statement Details" to expand or collapse a tax statement.
* Please enter a valid date ** Please enter a valid date *
Statement Details |
| 2026 | 20735 | STATE - STATE LEVY (SCHOOL) | $126.26 | $126.24 | $0.00 | $0.00 | $0.00 | $252.50 |
| 2026 | 20735 | COUNTY - COUNTY LEVIES (CE, DD, VET, MH) | $50.48 | $50.46 | $0.00 | $0.00 | $0.00 | $100.94 |
| 2026 | 20735 | CONSERVE - CONSERVATION FUTURES | $1.52 | $1.51 | $0.00 | $0.00 | $0.00 | $3.03 |
| 2026 | 20735 | COROADS - COUNTY ROADS (ROADS, DIV TO CE) | $40.72 | $40.72 | $0.00 | $0.00 | $0.00 | $81.44 |
| 2026 | 20735 | PORTPT - PORT DISTRICT | $20.39 | $20.38 | $0.00 | $0.00 | $0.00 | $40.77 |
| 2026 | 20735 | PUD1 - PUD #1 | $3.29 | $3.28 | $0.00 | $0.00 | $0.00 | $6.57 |
| 2026 | 20735 | LIB1 - LIBRARY DIST #1 | $15.76 | $15.75 | $0.00 | $0.00 | $0.00 | $31.51 |
| 2026 | 20735 | HD2 - HOSP DIST #2 | $2.95 | $2.94 | $0.00 | $0.00 | $0.00 | $5.89 |
| 2026 | 20735 | SD49 - SCHOOL DIST #49 | $69.50 | $69.49 | $0.00 | $0.00 | $0.00 | $138.99 |
| 2026 | 20735 | FD1 - FIRE DISTRICT #1 | $66.84 | $66.84 | $0.00 | $0.00 | $0.00 | $133.68 |
| 2026 | 20735 | EMS1 - FIRE DIST #1 EMS | $25.70 | $25.70 | $0.00 | $0.00 | $0.00 | $51.40 |
| 2026 | 20735 | JCCD - JC Conservation District | $2.55 | $2.55 | $0.00 | $0.00 | $0.00 | $5.10 |
| 2026 | 20735 | NWA - Noxious Weed Assessment | $2.98 | $2.97 | $0.00 | $0.00 | $0.00 | $5.95 |
| 2026 | 20735 | OSS - On Site Septic | $23.10 | $23.10 | $0.00 | $0.00 | $0.00 | $46.20 |
| 2026 | 20735 | WAT - Clean Water District | $13.00 | $13.00 | $0.00 | $0.00 | $0.00 | $26.00 |
| 2026 | 20735 | TOTAL: | $465.04 | $464.93 | $0.00 | $0.00 | $0.00 | $929.97 |
|
| 2026 | 20735 | $465.04 | $464.93 | $0.00 | $0.00 | $0.00 | $929.97 |
Statement Details |
| 2025 | 20796 | STATE - STATE LEVY (SCHOOL) | $131.69 | $131.67 | $0.00 | $0.00 | $263.36 | $0.00 |
| 2025 | 20796 | COUNTY - COUNTY LEVIES (CE, DD, VET, MH) | $51.80 | $51.77 | $0.00 | $0.00 | $103.57 | $0.00 |
| 2025 | 20796 | CONSERVE - CONSERVATION FUTURES | $1.56 | $1.55 | $0.00 | $0.00 | $3.11 | $0.00 |
| 2025 | 20796 | COROADS - COUNTY ROADS (ROADS, DIV TO CE) | $41.50 | $41.48 | $0.00 | $0.00 | $82.98 | $0.00 |
| 2025 | 20796 | PORTPT - PORT DISTRICT | $21.14 | $21.12 | $0.00 | $0.00 | $42.26 | $0.00 |
| 2025 | 20796 | PUD1 - PUD #1 | $3.39 | $3.39 | $0.00 | $0.00 | $6.78 | $0.00 |
| 2025 | 20796 | LIB1 - LIBRARY DIST #1 | $16.05 | $16.05 | $0.00 | $0.00 | $32.10 | $0.00 |
| 2025 | 20796 | HD2 - HOSP DIST #2 | $3.02 | $3.02 | $0.00 | $0.00 | $6.04 | $0.00 |
| 2025 | 20796 | SD49 - SCHOOL DIST #49 | $70.58 | $70.57 | $0.00 | $0.00 | $141.15 | $0.00 |
| 2025 | 20796 | FD1 - FIRE DISTRICT #1 | $68.34 | $68.33 | $0.00 | $0.00 | $136.67 | $0.00 |
| 2025 | 20796 | EMS1 - FIRE DIST #1 EMS | $26.29 | $26.28 | $0.00 | $0.00 | $52.57 | $0.00 |
| 2025 | 20796 | JCCD - JC Conservation District | $2.55 | $2.55 | $0.00 | $0.00 | $5.10 | $0.00 |
| 2025 | 20796 | NWA - Noxious Weed Assessment | $2.15 | $2.15 | $0.00 | $0.00 | $4.30 | $0.00 |
| 2025 | 20796 | OSS - On Site Septic | $21.50 | $21.50 | $0.00 | $0.00 | $43.00 | $0.00 |
| 2025 | 20796 | WAT - Clean Water District | $13.00 | $13.00 | $0.00 | $0.00 | $26.00 | $0.00 |
| 2025 | 20796 | TOTAL: | $474.56 | $474.43 | $0.00 | $0.00 | $948.99 | $0.00 |
|
| 2025 | 20796 | $474.56 | $474.43 | $0.00 | $0.00 | $948.99 | $0.00 |
Statement Details |
| 2024 | 20838 | STATE - STATE LEVY (SCHOOL) | $115.28 | $115.28 | $0.00 | $0.00 | $230.56 | $0.00 |
| 2024 | 20838 | COUNTY - COUNTY LEVIES (CE, DD, VET, MH) | $49.33 | $49.33 | $0.00 | $0.00 | $98.66 | $0.00 |
| 2024 | 20838 | CONSERVE - CONSERVATION FUTURES | $1.48 | $1.48 | $0.00 | $0.00 | $2.96 | $0.00 |
| 2024 | 20838 | COROADS - COUNTY ROADS (ROADS, DIV TO CE) | $39.70 | $39.69 | $0.00 | $0.00 | $79.39 | $0.00 |
| 2024 | 20838 | PORTPT - PORT DISTRICT | $20.38 | $20.37 | $0.00 | $0.00 | $40.75 | $0.00 |
| 2024 | 20838 | PUD1 - PUD #1 | $3.24 | $3.24 | $0.00 | $0.00 | $6.48 | $0.00 |
| 2024 | 20838 | LIB1 - LIBRARY DIST #1 | $15.36 | $15.35 | $0.00 | $0.00 | $30.71 | $0.00 |
| 2024 | 20838 | HD2 - HOSP DIST #2 | $2.88 | $2.88 | $0.00 | $0.00 | $5.76 | $0.00 |
| 2024 | 20838 | SD49 - SCHOOL DIST #49 | $51.48 | $51.47 | $0.00 | $0.00 | $102.95 | $0.00 |
| 2024 | 20838 | FD1 - FIRE DISTRICT #1 | $65.23 | $65.22 | $0.00 | $0.00 | $130.45 | $0.00 |
| 2024 | 20838 | EMS1 - FIRE DIST #1 EMS | $24.92 | $24.91 | $0.00 | $0.00 | $49.83 | $0.00 |
| 2024 | 20838 | JCCD - JC Conservation District | $2.55 | $2.55 | $0.00 | $0.00 | $5.10 | $0.00 |
| 2024 | 20838 | NWA - Noxious Weed Assessment | $2.15 | $2.15 | $0.00 | $0.00 | $4.30 | $0.00 |
| 2024 | 20838 | OSS - On Site Septic | $21.00 | $21.00 | $0.00 | $0.00 | $42.00 | $0.00 |
| 2024 | 20838 | WAT - Clean Water District | $12.50 | $12.50 | $0.00 | $0.00 | $25.00 | $0.00 |
| 2024 | 20838 | TOTAL: | $427.48 | $427.42 | $0.00 | $0.00 | $854.90 | $0.00 |
|
| 2024 | 20838 | $427.48 | $427.42 | $0.00 | $0.00 | $854.90 | $0.00 |
Statement Details |
| 2023 | 20875 | STATE - STATE LEVY (SCHOOL) | $67.40 | $67.38 | $0.00 | $0.00 | $134.78 | $0.00 |
| 2023 | 20875 | COUNTY - COUNTY LEVIES (CE, DD, VET, MH) | $29.42 | $29.39 | $0.00 | $0.00 | $58.81 | $0.00 |
| 2023 | 20875 | CONSERVE - CONSERVATION FUTURES | $0.88 | $0.88 | $0.00 | $0.00 | $1.76 | $0.00 |
| 2023 | 20875 | COROADS - COUNTY ROADS (ROADS, DIV TO CE) | $23.79 | $23.79 | $0.00 | $0.00 | $47.58 | $0.00 |
| 2023 | 20875 | PORTPT - PORT DISTRICT | $12.39 | $12.38 | $0.00 | $0.00 | $24.77 | $0.00 |
| 2023 | 20875 | PUD1 - PUD #1 | $1.95 | $1.95 | $0.00 | $0.00 | $3.90 | $0.00 |
| 2023 | 20875 | LIB1 - LIBRARY DIST #1 | $9.21 | $9.20 | $0.00 | $0.00 | $18.41 | $0.00 |
| 2023 | 20875 | HD2 - HOSP DIST #2 | $1.72 | $1.71 | $0.00 | $0.00 | $3.43 | $0.00 |
| 2023 | 20875 | SD49 - SCHOOL DIST #49 | $31.50 | $31.50 | $0.00 | $0.00 | $63.00 | $0.00 |
| 2023 | 20875 | FD1 - FIRE DISTRICT #1 | $24.23 | $24.22 | $0.00 | $0.00 | $48.45 | $0.00 |
| 2023 | 20875 | EMS1 - FIRE DIST #1 EMS | $10.31 | $10.30 | $0.00 | $0.00 | $20.61 | $0.00 |
| 2023 | 20875 | JCCD - JC Conservation District | $2.55 | $2.55 | $0.00 | $0.00 | $5.10 | $0.00 |
| 2023 | 20875 | NWA - Noxious Weed Assessment | $2.15 | $2.15 | $0.00 | $0.00 | $4.30 | $0.00 |
| 2023 | 20875 | OSS - On Site Septic | $20.50 | $20.50 | $0.00 | $0.00 | $41.00 | $0.00 |
| 2023 | 20875 | WAT - Clean Water District | $12.00 | $12.00 | $0.00 | $0.00 | $24.00 | $0.00 |
| 2023 | 20875 | TOTAL: | $250.00 | $249.90 | $0.00 | $0.00 | $499.90 | $0.00 |
|
| 2023 | 20875 | $250.00 | $249.90 | $0.00 | $0.00 | $499.90 | $0.00 |
Values
| (+) Improvement Homesite Value: | + | $0 | |
| (+) Improvement Non-Homesite Value: | + | $25,826 | |
| (+) Land Homesite Value: | + | $0 | |
| (+) Land Non-Homesite Value: | + | $84,000 | |
| (+) Curr Use (HS): | + | $0 | $0 |
| (+) Curr Use (NHS): | + | $0 | $0 |
| | | -------------------------- | |
| (=) Market Value: | = | $109,826 | |
| (–) Productivity Loss: | – | $0 | |
| | | -------------------------- | |
| (=) Subtotal: | = | $109,826 | |
| (+) Senior Appraised Value: | + | $0 | |
| (+) Non-Senior Appraised Value: | + | $109,826 | |
| | | -------------------------- | |
| (=) Total Appraised Value: | = | $109,826 | |
| (–) Senior Exemption Loss: | – | $0 | |
| (–) Exemption Loss: | – | $0 | |
| | | -------------------------- | |
| (=) Taxable Value: | = | $109,826 | |
Taxing Jurisdiction
| Owner: | KATHRYN & JEFF TILLOTSON | | |
| % Ownership: | 100.0000000000% | | |
| Total Value: | $109,826 | | |
| Tax Area: | 0211 - 1-49F1E1H2L1 |
| CE | COUNTY CURRENT EXPENSE | 0.9034619479 | $109,826 | $109,826 | $99.22 | | |
| CNTYDD | DEVELOPMENTAL DISABILITIES | 0.0052121823 | $109,826 | $109,826 | $0.57 | | |
| CNTYVET | VETERANS RELIEF | 0.0052777810 | $109,826 | $109,826 | $0.58 | | |
| MENTAL | MENTAL HEALTH | 0.0052121823 | $109,826 | $109,826 | $0.57 | | |
| ROADS | COUNTY ROADS | 0.7415066410 | $109,826 | $109,826 | $81.44 | | |
| ROADSCU | COUNTY ROADS TO CUR EXP | 0.0000000000 | $109,826 | $109,826 | $0.00 | | |
| HOSP2CASH | HOSP DIST #2 GENERAL | 0.0536075306 | $109,826 | $109,826 | $5.89 | | |
| SCH49CP | SCHOOL DIST #49 CAP PROJ | 0.6279093905 | $109,826 | $109,826 | $68.96 | | |
| SCH49MO | SCHOOL DIST #49 EP & O | 0.6376483602 | $109,826 | $109,826 | $70.03 | | |
| CONSERVE | CONSERVATION FUTURES | 0.0275621078 | $109,826 | $109,826 | $3.03 | | |
| EMS1 | FIRE DIST #1 EMS | 0.4679948282 | $109,826 | $109,826 | $51.40 | | |
| FD1 | FIRE DIST #1 GENERAL | 1.2171942929 | $109,826 | $109,826 | $133.68 | | |
| LIB1 | LIBRARY DIST #1 GENERAL | 0.2868827388 | $109,826 | $109,826 | $31.51 | | |
| PORTPT | PORT OF PT GENERAL | 0.1134941229 | $109,826 | $109,826 | $12.46 | | |
| PORTPTIDD | PORT OF PT IDD 2019 | 0.2577346692 | $109,826 | $109,826 | $28.31 | | |
| PUD1 | PUD #1 GENERAL | 0.0597888892 | $109,826 | $109,826 | $6.57 | | |
| STATE | STATE SCHOOL PART 1 | 1.4940692947 | $109,826 | $109,826 | $164.09 | | |
| STATE2 | STATE SCHOOL PART 2 | 0.8050170049 | $109,826 | $109,826 | $88.41 | | |
| | Total Tax Rate: | 7.7095739644 | | | | | |
| | | | | Taxes w/Current Exemptions: | $846.72 | | |
| | | | | Taxes w/o Exemptions: | $846.72 | | |
Improvement / Building
| Improvement #1: | Manufactured Home | State Code: | 11 | 924.0 sqft | Value: | $25,826 |
| Bathrooms (#): | 2 (FULL) | Bedrooms (#): | 2 | | Exterior Wall: | ECONO | Fireplace: | WD ST-AVG | | Foundation: | PO&BL | Heating/Cooling: | F/A | | Inside Verify: | YES-FIX | Roof Cover: | COMP |
|
| | Type | Description | Class CD | Sub Class CD | Year Built | Area |
| | MA | Main Area | 3 | MSG | 1982 | 924.0 |
| | ADDN | Addition (Table Not Dep) | 3 | * | 1982 | 50.0 |
| | OTHER | Other | * | * | 1982 | 0.0 |
Sketch
Property Image
Land
| 1 | 4125-1285S | | 0.0000 | 0.00 | 0.00 | 0.00 | 1.00 | $84,000 | $0 |
Roll Value History
| 2026 | N/A | N/A | N/A | N/A | N/A |
| 2025 | $25,826 | $84,000 | $0 | $109,826 | $109,826 |
| 2024 | $25,826 | $84,000 | $0 | $109,826 | $109,826 |
| 2023 | $24,652 | $75,000 | $0 | $99,652 | $99,652 |
| 2022 | $2,250 | $55,000 | $0 | $57,250 | $57,250 |
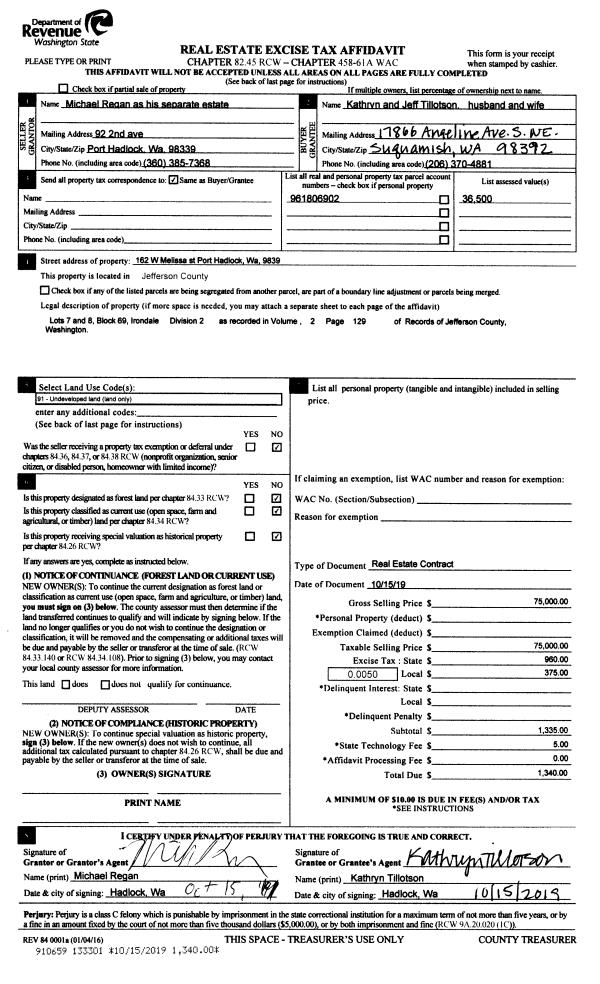
Deed and Sales History
| 1 | 10/15/2019 | REC | Real Estate Contract | MICHAEL P REGAN | KATHRYN & JEFF TILLOTSON | | | $75,000.00 | 133301 | |
| 2 | 08/03/2015 | SWD | Statutory Warranty Deed | LANA LINDSEY-GUTHRIE | MICHAEL P REGAN | | | $32,450.00 | 123696 | |
| 3 | 06/30/2006 | SWD | Statutory Warranty Deed | MARLOW, WILLIAM S | LINDSEY-GUTHRIE, LANA | | | $43,900.00 | 107022 | 0 |
Payout Agreement
| No payout information available.. |