Property
Account |
| Property ID: | 31496 | Abbreviated Legal Description: | IRONDALE #2 BLK 73 LOTS 34 THRU 40 |
| Parcel # / Geo ID: | 961807315 | Agent Code: | |
| Type: | Real | | |
| Tax Area: | 0211 - 1-49F1E1H2L1 | Land Use Code | 11 |
| Open Space: | N | DFL | N |
| Historic Property: | N | Remodel Property: | N |
| Multi-Family Redevelopment: | N | | |
| Township: | 30N | Section: | 34 |
| Range: | 1W |
Location |
| Address: | 280 W KINKAID ST PORT HADLOCK, WA 98339 | Mapsco: | 045/027 |
| Neighborhood: | IRONDALE BLOCKS 48 - 92 | Map ID: | |
| Neighborhood CD: | 4125 |
Owner |
| Name: | JESSE SCHIESS | Owner ID: | 111746 |
| Mailing Address: | 280 W KINKAID ST PORT HADLOCK, WA 98339-9660 | % Ownership: | 100.0000000000% |
| | | Exemptions: | |
Pay Tax Due
Select the appropriate checkbox next to the year to be paid. Multiple years may be selected.
*Convenience Fee not included
Taxes and Assessment Details
Property Tax Information as of
03/11/2026
Click on "Statement Details" to expand or collapse a tax statement.
* Please enter a valid date ** Please enter a valid date *
Statement Details |
| 2026 | 20776 | STATE - STATE LEVY (SCHOOL) | $186.03 | $186.02 | $0.00 | $0.00 | $0.00 | $372.05 |
| 2026 | 20776 | COUNTY - COUNTY LEVIES (CE, DD, VET, MH) | $74.37 | $74.36 | $0.00 | $0.00 | $0.00 | $148.73 |
| 2026 | 20776 | CONSERVE - CONSERVATION FUTURES | $2.23 | $2.23 | $0.00 | $0.00 | $0.00 | $4.46 |
| 2026 | 20776 | COROADS - COUNTY ROADS (ROADS, DIV TO CE) | $60.00 | $59.99 | $0.00 | $0.00 | $0.00 | $119.99 |
| 2026 | 20776 | PORTPT - PORT DISTRICT | $30.05 | $30.03 | $0.00 | $0.00 | $0.00 | $60.08 |
| 2026 | 20776 | PUD1 - PUD #1 | $4.84 | $4.84 | $0.00 | $0.00 | $0.00 | $9.68 |
| 2026 | 20776 | LIB1 - LIBRARY DIST #1 | $23.21 | $23.21 | $0.00 | $0.00 | $0.00 | $46.42 |
| 2026 | 20776 | HD2 - HOSP DIST #2 | $4.34 | $4.34 | $0.00 | $0.00 | $0.00 | $8.68 |
| 2026 | 20776 | SD49 - SCHOOL DIST #49 | $102.41 | $102.39 | $0.00 | $0.00 | $0.00 | $204.80 |
| 2026 | 20776 | FD1 - FIRE DISTRICT #1 | $98.49 | $98.48 | $0.00 | $0.00 | $0.00 | $196.97 |
| 2026 | 20776 | EMS1 - FIRE DIST #1 EMS | $37.87 | $37.86 | $0.00 | $0.00 | $0.00 | $75.73 |
| 2026 | 20776 | JCCD - JC Conservation District | $2.55 | $2.55 | $0.00 | $0.00 | $0.00 | $5.10 |
| 2026 | 20776 | NWA - Noxious Weed Assessment | $2.98 | $2.97 | $0.00 | $0.00 | $0.00 | $5.95 |
| 2026 | 20776 | OSS - On Site Septic | $23.10 | $23.10 | $0.00 | $0.00 | $0.00 | $46.20 |
| 2026 | 20776 | WAT - Clean Water District | $13.00 | $13.00 | $0.00 | $0.00 | $0.00 | $26.00 |
| 2026 | 20776 | TOTAL: | $665.47 | $665.37 | $0.00 | $0.00 | $0.00 | $1330.84 |
|
| 2026 | 20776 | $665.47 | $665.37 | $0.00 | $0.00 | $0.00 | $1330.84 |
Statement Details |
| 2025 | 20837 | STATE - STATE LEVY (SCHOOL) | $192.46 | $192.45 | $0.00 | $0.00 | $384.91 | $0.00 |
| 2025 | 20837 | COUNTY - COUNTY LEVIES (CE, DD, VET, MH) | $75.70 | $75.68 | $0.00 | $0.00 | $151.38 | $0.00 |
| 2025 | 20837 | CONSERVE - CONSERVATION FUTURES | $2.27 | $2.27 | $0.00 | $0.00 | $4.54 | $0.00 |
| 2025 | 20837 | COROADS - COUNTY ROADS (ROADS, DIV TO CE) | $60.64 | $60.63 | $0.00 | $0.00 | $121.27 | $0.00 |
| 2025 | 20837 | PORTPT - PORT DISTRICT | $30.89 | $30.88 | $0.00 | $0.00 | $61.77 | $0.00 |
| 2025 | 20837 | PUD1 - PUD #1 | $4.95 | $4.95 | $0.00 | $0.00 | $9.90 | $0.00 |
| 2025 | 20837 | LIB1 - LIBRARY DIST #1 | $23.46 | $23.46 | $0.00 | $0.00 | $46.92 | $0.00 |
| 2025 | 20837 | HD2 - HOSP DIST #2 | $4.42 | $4.41 | $0.00 | $0.00 | $8.83 | $0.00 |
| 2025 | 20837 | SD49 - SCHOOL DIST #49 | $103.15 | $103.14 | $0.00 | $0.00 | $206.29 | $0.00 |
| 2025 | 20837 | FD1 - FIRE DISTRICT #1 | $99.87 | $99.87 | $0.00 | $0.00 | $199.74 | $0.00 |
| 2025 | 20837 | EMS1 - FIRE DIST #1 EMS | $38.42 | $38.41 | $0.00 | $0.00 | $76.83 | $0.00 |
| 2025 | 20837 | JCCD - JC Conservation District | $2.55 | $2.55 | $0.00 | $0.00 | $5.10 | $0.00 |
| 2025 | 20837 | NWA - Noxious Weed Assessment | $2.15 | $2.15 | $0.00 | $0.00 | $4.30 | $0.00 |
| 2025 | 20837 | OSS - On Site Septic | $21.50 | $21.50 | $0.00 | $0.00 | $43.00 | $0.00 |
| 2025 | 20837 | WAT - Clean Water District | $13.00 | $13.00 | $0.00 | $0.00 | $26.00 | $0.00 |
| 2025 | 20837 | TOTAL: | $675.43 | $675.35 | $0.00 | $0.00 | $1350.78 | $0.00 |
|
| 2025 | 20837 | $675.43 | $675.35 | $0.00 | $0.00 | $1350.78 | $0.00 |
Statement Details |
| 2024 | 20879 | STATE - STATE LEVY (SCHOOL) | $171.22 | $171.22 | $0.00 | $0.00 | $342.44 | $0.00 |
| 2024 | 20879 | COUNTY - COUNTY LEVIES (CE, DD, VET, MH) | $73.28 | $73.26 | $0.00 | $0.00 | $146.54 | $0.00 |
| 2024 | 20879 | CONSERVE - CONSERVATION FUTURES | $2.20 | $2.19 | $0.00 | $0.00 | $4.39 | $0.00 |
| 2024 | 20879 | COROADS - COUNTY ROADS (ROADS, DIV TO CE) | $58.96 | $58.95 | $0.00 | $0.00 | $117.91 | $0.00 |
| 2024 | 20879 | PORTPT - PORT DISTRICT | $30.27 | $30.25 | $0.00 | $0.00 | $60.52 | $0.00 |
| 2024 | 20879 | PUD1 - PUD #1 | $4.82 | $4.81 | $0.00 | $0.00 | $9.63 | $0.00 |
| 2024 | 20879 | LIB1 - LIBRARY DIST #1 | $22.81 | $22.81 | $0.00 | $0.00 | $45.62 | $0.00 |
| 2024 | 20879 | HD2 - HOSP DIST #2 | $4.28 | $4.27 | $0.00 | $0.00 | $8.55 | $0.00 |
| 2024 | 20879 | SD49 - SCHOOL DIST #49 | $76.47 | $76.45 | $0.00 | $0.00 | $152.92 | $0.00 |
| 2024 | 20879 | FD1 - FIRE DISTRICT #1 | $96.88 | $96.87 | $0.00 | $0.00 | $193.75 | $0.00 |
| 2024 | 20879 | EMS1 - FIRE DIST #1 EMS | $37.01 | $37.00 | $0.00 | $0.00 | $74.01 | $0.00 |
| 2024 | 20879 | JCCD - JC Conservation District | $2.55 | $2.55 | $0.00 | $0.00 | $5.10 | $0.00 |
| 2024 | 20879 | NWA - Noxious Weed Assessment | $2.15 | $2.15 | $0.00 | $0.00 | $4.30 | $0.00 |
| 2024 | 20879 | OSS - On Site Septic | $21.00 | $21.00 | $0.00 | $0.00 | $42.00 | $0.00 |
| 2024 | 20879 | WAT - Clean Water District | $12.50 | $12.50 | $0.00 | $0.00 | $25.00 | $0.00 |
| 2024 | 20879 | TOTAL: | $616.40 | $616.28 | $0.00 | $0.00 | $1232.68 | $0.00 |
|
| 2024 | 20879 | $616.40 | $616.28 | $0.00 | $0.00 | $1232.68 | $0.00 |
Statement Details |
| 2023 | 20916 | STATE - STATE LEVY (SCHOOL) | $76.10 | $76.10 | $0.00 | $0.00 | $152.20 | $0.00 |
| 2023 | 20916 | COUNTY - COUNTY LEVIES (CE, DD, VET, MH) | $33.21 | $33.21 | $0.00 | $0.00 | $66.42 | $0.00 |
| 2023 | 20916 | CONSERVE - CONSERVATION FUTURES | $1.00 | $0.99 | $0.00 | $0.00 | $1.99 | $0.00 |
| 2023 | 20916 | COROADS - COUNTY ROADS (ROADS, DIV TO CE) | $26.87 | $26.86 | $0.00 | $0.00 | $53.73 | $0.00 |
| 2023 | 20916 | PORTPT - PORT DISTRICT | $13.99 | $13.99 | $0.00 | $0.00 | $27.98 | $0.00 |
| 2023 | 20916 | PUD1 - PUD #1 | $2.20 | $2.20 | $0.00 | $0.00 | $4.40 | $0.00 |
| 2023 | 20916 | LIB1 - LIBRARY DIST #1 | $10.40 | $10.39 | $0.00 | $0.00 | $20.79 | $0.00 |
| 2023 | 20916 | HD2 - HOSP DIST #2 | $1.94 | $1.93 | $0.00 | $0.00 | $3.87 | $0.00 |
| 2023 | 20916 | SD49 - SCHOOL DIST #49 | $35.58 | $35.57 | $0.00 | $0.00 | $71.15 | $0.00 |
| 2023 | 20916 | FD1 - FIRE DISTRICT #1 | $27.36 | $27.35 | $0.00 | $0.00 | $54.71 | $0.00 |
| 2023 | 20916 | EMS1 - FIRE DIST #1 EMS | $11.64 | $11.63 | $0.00 | $0.00 | $23.27 | $0.00 |
| 2023 | 20916 | JCCD - JC Conservation District | $2.55 | $2.55 | $0.00 | $0.00 | $5.10 | $0.00 |
| 2023 | 20916 | NWA - Noxious Weed Assessment | $2.15 | $2.15 | $0.00 | $0.00 | $4.30 | $0.00 |
| 2023 | 20916 | OSS - On Site Septic | $20.50 | $20.50 | $0.00 | $0.00 | $41.00 | $0.00 |
| 2023 | 20916 | WAT - Clean Water District | $12.00 | $12.00 | $0.00 | $0.00 | $24.00 | $0.00 |
| 2023 | 20916 | TOTAL: | $277.49 | $277.42 | $0.00 | $0.00 | $554.91 | $0.00 |
|
| 2023 | 20916 | $277.49 | $277.42 | $0.00 | $0.00 | $554.91 | $0.00 |
Values
| (+) Improvement Homesite Value: | + | $0 | |
| (+) Improvement Non-Homesite Value: | + | $67,325 | |
| (+) Land Homesite Value: | + | $0 | |
| (+) Land Non-Homesite Value: | + | $94,500 | |
| (+) Curr Use (HS): | + | $0 | $0 |
| (+) Curr Use (NHS): | + | $0 | $0 |
| | | -------------------------- | |
| (=) Market Value: | = | $161,825 | |
| (–) Productivity Loss: | – | $0 | |
| | | -------------------------- | |
| (=) Subtotal: | = | $161,825 | |
| (+) Senior Appraised Value: | + | $0 | |
| (+) Non-Senior Appraised Value: | + | $161,825 | |
| | | -------------------------- | |
| (=) Total Appraised Value: | = | $161,825 | |
| (–) Senior Exemption Loss: | – | $0 | |
| (–) Exemption Loss: | – | $0 | |
| | | -------------------------- | |
| (=) Taxable Value: | = | $161,825 | |
Taxing Jurisdiction
| Owner: | JESSE SCHIESS | | |
| % Ownership: | 100.0000000000% | | |
| Total Value: | $161,825 | | |
| Tax Area: | 0211 - 1-49F1E1H2L1 |
| CE | COUNTY CURRENT EXPENSE | 0.9034619479 | $161,825 | $161,825 | $146.20 | | |
| CNTYDD | DEVELOPMENTAL DISABILITIES | 0.0052121823 | $161,825 | $161,825 | $0.84 | | |
| CNTYVET | VETERANS RELIEF | 0.0052777810 | $161,825 | $161,825 | $0.85 | | |
| MENTAL | MENTAL HEALTH | 0.0052121823 | $161,825 | $161,825 | $0.84 | | |
| ROADS | COUNTY ROADS | 0.7415066410 | $161,825 | $161,825 | $119.99 | | |
| ROADSCU | COUNTY ROADS TO CUR EXP | 0.0000000000 | $161,825 | $161,825 | $0.00 | | |
| HOSP2CASH | HOSP DIST #2 GENERAL | 0.0536075306 | $161,825 | $161,825 | $8.68 | | |
| SCH49CP | SCHOOL DIST #49 CAP PROJ | 0.6279093905 | $161,825 | $161,825 | $101.61 | | |
| SCH49MO | SCHOOL DIST #49 EP & O | 0.6376483602 | $161,825 | $161,825 | $103.19 | | |
| CONSERVE | CONSERVATION FUTURES | 0.0275621078 | $161,825 | $161,825 | $4.46 | | |
| EMS1 | FIRE DIST #1 EMS | 0.4679948282 | $161,825 | $161,825 | $75.73 | | |
| FD1 | FIRE DIST #1 GENERAL | 1.2171942929 | $161,825 | $161,825 | $196.97 | | |
| LIB1 | LIBRARY DIST #1 GENERAL | 0.2868827388 | $161,825 | $161,825 | $46.42 | | |
| PORTPT | PORT OF PT GENERAL | 0.1134941229 | $161,825 | $161,825 | $18.37 | | |
| PORTPTIDD | PORT OF PT IDD 2019 | 0.2577346692 | $161,825 | $161,825 | $41.71 | | |
| PUD1 | PUD #1 GENERAL | 0.0597888892 | $161,825 | $161,825 | $9.68 | | |
| STATE | STATE SCHOOL PART 1 | 1.4940692947 | $161,825 | $161,825 | $241.78 | | |
| STATE2 | STATE SCHOOL PART 2 | 0.8050170049 | $161,825 | $161,825 | $130.27 | | |
| | Total Tax Rate: | 7.7095739644 | | | | | |
| | | | | Taxes w/Current Exemptions: | $1,247.59 | | |
| | | | | Taxes w/o Exemptions: | $1,247.59 | | |
Improvement / Building
| Improvement #1: | Manufactured Home | State Code: | 11M | 1782.0 sqft | Value: | $43,053 |
| Bathrooms (#): | 2 (FULL) | Bedrooms (#): | 4 | | Exterior Wall: | PL/T1 | Floor Construction: | FRAME | | Foundation: | PO&BL | Heating/Cooling: | F/A | | Inside Verify: | YES-FIX | Roof Cover: | COMP |
|
| | Type | Description | Class CD | Sub Class CD | Year Built | Area |
| | MA | Main Area | 2 | MDBL | 1989 | 1782.0 |
| | MDECK | MH Deck | 2 | * | 1989 | 325.0 |
| | MSKIRT_MTL | MH Skirting - Metal/Vinyl | 2 | * | 1989 | 188.0 |
| | GARAG | Garage (Table Not Dep) | 2 | * | 1989 | 680.0 |
| Improvement #2: | Manufactured Home | State Code: | 11M | 864.0 sqft | Value: | $24,272 |
| Bathrooms (#): | 1 (FULL) | Bedrooms (#): | 2 | | Exterior Wall: | METAL | Fireplace: | WD ST-AVG | | Foundation: | PO&BL | Heating/Cooling: | F/A | | Inside Verify: | YES-FIX | Roof Cover: | COMP |
|
Sketch
Property Image
Land
| 1 | 4125-1187L | | 0.0000 | 0.00 | 0.00 | 0.00 | 5.00 | $10,500 | $0 |
| 2 | 4125-1285S | | 0.0000 | 0.00 | 0.00 | 0.00 | 1.00 | $84,000 | $0 |
Roll Value History
| 2026 | N/A | N/A | N/A | N/A | N/A |
| 2025 | $67,325 | $94,500 | $0 | $161,825 | $161,825 |
| 2024 | $67,325 | $93,188 | $0 | $160,513 | $160,513 |
| 2023 | $64,264 | $83,750 | $0 | $148,014 | $148,014 |
| 2022 | $3,152 | $61,500 | $0 | $64,652 | $64,652 |
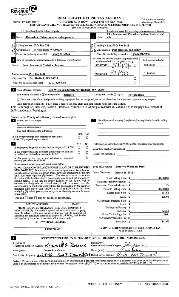
Deed and Sales History
| 1 | 11/08/2024 | SWD | Statutory Warranty Deed | JOHN A JAMISON | JESSE SCHIESS | | | $85,000.00 | 143497 | |
|   | |
| 2 | 03/28/2016 | SWD | Statutory Warranty Deed | KENNETH A GAINER | JOHN A JAMISON | | | $47,000.00 | 125096 | |
|   | |
| 3 | 06/08/2011 | SPWD | Special Warranty Deed | SECRETARY OF VETERANS AFF | GAINER, KENNETH A | | | $0.00 | 116135 | 0 |
| 4 | 02/15/2011 | WD | Warranty Deed | NORTHWEST TRUSTEE SERVICE | WELLS FARGO BANK NA | 0 | 0 | $0.00 | 115592 | 0 |
| 5 | 02/15/2011 | SWD | Statutory Warranty Deed | WELLS FARGO BANK NA | SECRETARY OF VETERANS AFFAIRS | 0 | 0 | $0.00 | 115593 | 0 |
| 6 | 05/27/1994 | SWD | Statutory Warranty Deed | SATHER, MONIKA R | OTHOUDT, JEFFREY ALLEN/TAMMI J | 0 | 0 | $0.00 | 74240 | 0 |
| 7 | 03/25/1994 | MH | Mobile Home | MANSKE, HANS | SATHER, MONIKA R | 0 | 0 | $0.00 | 73642 | 0 |
| 8 | 11/05/1993 | QCD | Quit Claim Deed | MANSKE, HANS/ERIKA | SATHER, MONIKA R | 0 | 0 | $0.00 | 72598 | 0 |
Payout Agreement
| No payout information available.. |