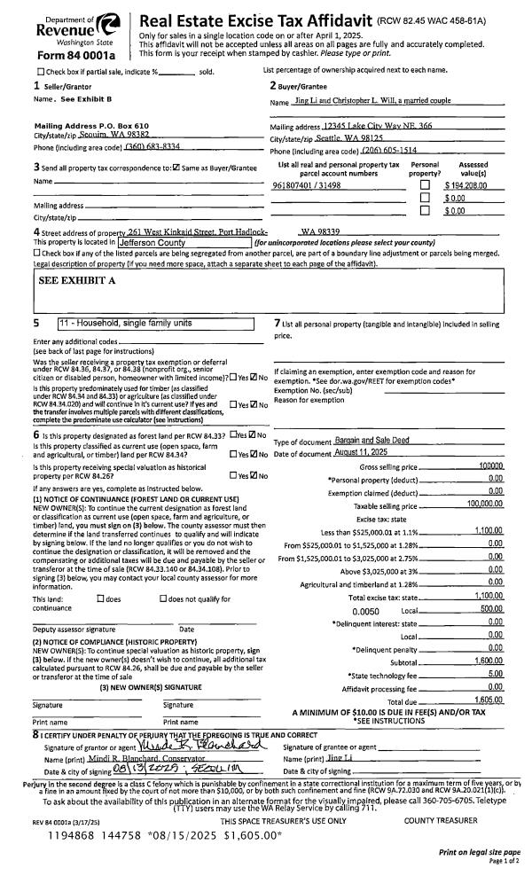
Property
Account |
| Property ID: | 31498 | Abbreviated Legal Description: | IRONDALE #2 BLK 74 LOTS 1 THRU 5 SUBJ/RESTVE COVNT AF#481025 |
| Parcel # / Geo ID: | 961807401 | Agent Code: | |
| Type: | Real | | |
| Tax Area: | 0211 - 1-49F1E1H2L1 | Land Use Code | 11 |
| Open Space: | N | DFL | N |
| Historic Property: | N | Remodel Property: | N |
| Multi-Family Redevelopment: | N | | |
| Township: | 30N | Section: | 34 |
| Range: | 1W |
Location |
| Address: | 261 W KINKAID ST PORT HADLOCK, WA 98339 | Mapsco: | 045/031 |
| Neighborhood: | IRONDALE BLOCKS 48 - 92 | Map ID: | |
| Neighborhood CD: | 4125 |
Owner |
| Name: | JING LI & | Owner ID: | 113130 |
| Mailing Address: | CHRISTOPHER L WILL 12345 LAKE CITY WAY NE #366 SEATTLE, WA 98125-5401 | % Ownership: | 100.0000000000% |
| | | Exemptions: | |
Pay Tax Due
There is currently No Amount Due on this property.
Taxes and Assessment Details
Property Tax Information as of
03/10/2026
Click on "Statement Details" to expand or collapse a tax statement.
* Please enter a valid date ** Please enter a valid date *
Statement Details |
| | TOTAL: | $0.00 | $0.00 | $0.00 | $0.00 | $0.00 | $0.00 |
|
| | $0.00 | $0.00 | $0.00 | $0.00 | $0.00 | $0.00 |
Values
| (+) Improvement Homesite Value: | + | $0 | |
| (+) Improvement Non-Homesite Value: | + | $0 | |
| (+) Land Homesite Value: | + | $0 | |
| (+) Land Non-Homesite Value: | + | $96,600 | |
| (+) Curr Use (HS): | + | $0 | $0 |
| (+) Curr Use (NHS): | + | $0 | $0 |
| | | -------------------------- | |
| (=) Market Value: | = | $96,600 | |
| (–) Productivity Loss: | – | $0 | |
| | | -------------------------- | |
| (=) Subtotal: | = | $96,600 | |
| (+) Senior Appraised Value: | + | $0 | |
| (+) Non-Senior Appraised Value: | + | $96,600 | |
| | | -------------------------- | |
| (=) Total Appraised Value: | = | $96,600 | |
| (–) Senior Exemption Loss: | – | $0 | |
| (–) Exemption Loss: | – | $0 | |
| | | -------------------------- | |
| (=) Taxable Value: | = | $96,600 | |
Taxing Jurisdiction
| Owner: | JING LI & | | |
| % Ownership: | 100.0000000000% | | |
| Total Value: | $96,600 | | |
| Tax Area: | 0211 - 1-49F1E1H2L1 |
| CE | COUNTY CURRENT EXPENSE | 0.9034619479 | $96,600 | $96,600 | $87.27 | | |
| CNTYDD | DEVELOPMENTAL DISABILITIES | 0.0052121823 | $96,600 | $96,600 | $0.50 | | |
| CNTYVET | VETERANS RELIEF | 0.0052777810 | $96,600 | $96,600 | $0.51 | | |
| MENTAL | MENTAL HEALTH | 0.0052121823 | $96,600 | $96,600 | $0.50 | | |
| ROADS | COUNTY ROADS | 0.7415066410 | $96,600 | $96,600 | $71.63 | | |
| ROADSCU | COUNTY ROADS TO CUR EXP | 0.0000000000 | $96,600 | $96,600 | $0.00 | | |
| HOSP2CASH | HOSP DIST #2 GENERAL | 0.0536075306 | $96,600 | $96,600 | $5.18 | | |
| SCH49CP | SCHOOL DIST #49 CAP PROJ | 0.6279093905 | $96,600 | $96,600 | $60.66 | | |
| SCH49MO | SCHOOL DIST #49 EP & O | 0.6376483602 | $96,600 | $96,600 | $61.60 | | |
| CONSERVE | CONSERVATION FUTURES | 0.0275621078 | $96,600 | $96,600 | $2.66 | | |
| EMS1 | FIRE DIST #1 EMS | 0.4679948282 | $96,600 | $96,600 | $45.21 | | |
| FD1 | FIRE DIST #1 GENERAL | 1.2171942929 | $96,600 | $96,600 | $117.58 | | |
| LIB1 | LIBRARY DIST #1 GENERAL | 0.2868827388 | $96,600 | $96,600 | $27.71 | | |
| PORTPT | PORT OF PT GENERAL | 0.1134941229 | $96,600 | $96,600 | $10.96 | | |
| PORTPTIDD | PORT OF PT IDD 2019 | 0.2577346692 | $96,600 | $96,600 | $24.90 | | |
| PUD1 | PUD #1 GENERAL | 0.0597888892 | $96,600 | $96,600 | $5.78 | | |
| STATE | STATE SCHOOL PART 1 | 1.4940692947 | $96,600 | $96,600 | $144.33 | | |
| STATE2 | STATE SCHOOL PART 2 | 0.8050170049 | $96,600 | $96,600 | $77.76 | | |
| | Total Tax Rate: | 7.7095739644 | | | | | |
| | | | | Taxes w/Current Exemptions: | $744.74 | | |
| | | | | Taxes w/o Exemptions: | $744.74 | | |
Improvement / Building
| Improvement #1: | Residential Bldg | State Code: | 11 | 758.0 sqft | Value: | $0 |
| Bathrooms (#): | 1 (FULL) | Bedrooms (#): | 1 | | Exterior Wall: | PL/T1 | Floor Construction: | FRAME | | Foundation: | PO&BL | Heating/Cooling: | ELBB | | Inside Verify: | YES-FIX | Roof Cover: | COMP |
|
| | Type | Description | Class CD | Sub Class CD | Year Built | Area |
| | MA | Main Area | 1 | 1S | 1950 | 758.0 |
| | HDECK | House Deck | 1 | * | 1950 | 76.0 |
| | ADDN-D | Addition (Table Depreciated) | 1 | * | 1950 | 240.0 |
Sketch
Property Image
Land
| 1 | 4125-1285S | Irondale 2 Lot Sites No/Filtered Views | 0.0000 | 0.00 | 0.00 | 0.00 | 1.00 | $84,000 | $0 |
| 2 | 4125-1187L | Irondale Lots XS Lots to make up Site | 0.0000 | 0.00 | 0.00 | 0.00 | 3.00 | $12,600 | $0 |
Roll Value History
| 2026 | N/A | N/A | N/A | N/A | N/A |
| 2025 | $0 | $96,600 | $0 | $96,600 | $96,600 |
| 2024 | $99,183 | $95,025 | $0 | $194,208 | $194,208 |
| 2023 | $94,674 | $85,500 | $0 | $180,174 | $180,174 |
| 2022 | $74,848 | $62,800 | $0 | $137,648 | $137,648 |
Deed and Sales History
| 1 | 08/11/2025 | BSD | Bargain and Sale Deed | HOWARD T BARNHOUSE | JING LI & | | | $100,000.00 | 144758 | |
| 2 | 04/07/2016 | QCD | Quit Claim Deed | | | | | | 125132 | |
| 3 | 11/05/1997 | SWD | Statutory Warranty Deed | BARTANEN, E M/DALRYMPLE, | BARNHOUSE, HOWARD T/FLORA | 0 | 0 | $34,000.00 | 83164 | 0 |
| 4 | 02/02/1995 | QCD | Quit Claim Deed | BARTANEN, EILEEN M | BARTANEN, E M/DALRYMPLE, C L | 0 | 0 | $0.00 | 76162 | 0 |
Payout Agreement
| No payout information available.. |