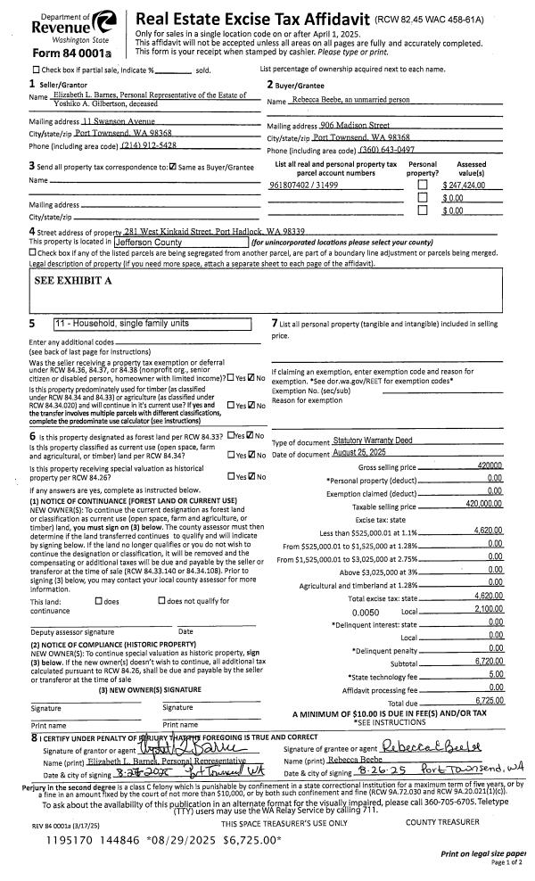
Property
Account |
| Property ID: | 31499 | Abbreviated Legal Description: | IRONDALE #2 BLK 74 LOTS 6 THRU 9, 31 THRU 43 |
| Parcel # / Geo ID: | 961807402 | Agent Code: | |
| Type: | Real | | |
| Tax Area: | 0211 - 1-49F1E1H2L1 | Land Use Code | 11 |
| Open Space: | N | DFL | N |
| Historic Property: | N | Remodel Property: | N |
| Multi-Family Redevelopment: | N | | |
| Township: | 30N | Section: | 34 |
| Range: | 1W |
Location |
| Address: | 281 W KINKAID ST PORT HADLOCK, WA 98339 | Mapsco: | 045/032 |
| Neighborhood: | IRONDALE BLOCKS 48 - 92 | Map ID: | |
| Neighborhood CD: | 4125 |
Owner |
| Name: | REBECCA BEEBE | Owner ID: | 103381 |
| Mailing Address: | 906 MADISON ST PORT TOWNSEND, WA 98368-4418 | % Ownership: | 100.0000000000% |
| | | Exemptions: | |
Pay Tax Due
There is currently No Amount Due on this property.
Taxes and Assessment Details
Property Tax Information as of
03/11/2026
Click on "Statement Details" to expand or collapse a tax statement.
* Please enter a valid date ** Please enter a valid date *
Statement Details |
| | TOTAL: | $0.00 | $0.00 | $0.00 | $0.00 | $0.00 | $0.00 |
|
| | $0.00 | $0.00 | $0.00 | $0.00 | $0.00 | $0.00 |
Values
| (+) Improvement Homesite Value: | + | $218,052 | |
| (+) Improvement Non-Homesite Value: | + | $0 | |
| (+) Land Homesite Value: | + | $138,600 | |
| (+) Land Non-Homesite Value: | + | $0 | |
| (+) Curr Use (HS): | + | $0 | $0 |
| (+) Curr Use (NHS): | + | $0 | $0 |
| | | -------------------------- | |
| (=) Market Value: | = | $356,652 | |
| (–) Productivity Loss: | – | $0 | |
| | | -------------------------- | |
| (=) Subtotal: | = | $356,652 | |
| (+) Senior Appraised Value: | + | $0 | |
| (+) Non-Senior Appraised Value: | + | $356,652 | |
| | | -------------------------- | |
| (=) Total Appraised Value: | = | $356,652 | |
| (–) Senior Exemption Loss: | – | $0 | |
| (–) Exemption Loss: | – | $0 | |
| | | -------------------------- | |
| (=) Taxable Value: | = | $356,652 | |
Taxing Jurisdiction
| Owner: | REBECCA BEEBE | | |
| % Ownership: | 100.0000000000% | | |
| Total Value: | $356,652 | | |
| Tax Area: | 0211 - 1-49F1E1H2L1 |
| CE | COUNTY CURRENT EXPENSE | 0.9034619479 | $356,652 | $356,652 | $322.22 | | |
| CNTYDD | DEVELOPMENTAL DISABILITIES | 0.0052121823 | $356,652 | $356,652 | $1.86 | | |
| CNTYVET | VETERANS RELIEF | 0.0052777810 | $356,652 | $356,652 | $1.88 | | |
| MENTAL | MENTAL HEALTH | 0.0052121823 | $356,652 | $356,652 | $1.86 | | |
| ROADS | COUNTY ROADS | 0.7415066410 | $356,652 | $356,652 | $264.46 | | |
| ROADSCU | COUNTY ROADS TO CUR EXP | 0.0000000000 | $356,652 | $356,652 | $0.00 | | |
| HOSP2CASH | HOSP DIST #2 GENERAL | 0.0536075306 | $356,652 | $356,652 | $19.12 | | |
| SCH49CP | SCHOOL DIST #49 CAP PROJ | 0.6279093905 | $356,652 | $356,652 | $223.95 | | |
| SCH49MO | SCHOOL DIST #49 EP & O | 0.6376483602 | $356,652 | $356,652 | $227.42 | | |
| CONSERVE | CONSERVATION FUTURES | 0.0275621078 | $356,652 | $356,652 | $9.83 | | |
| EMS1 | FIRE DIST #1 EMS | 0.4679948282 | $356,652 | $356,652 | $166.91 | | |
| FD1 | FIRE DIST #1 GENERAL | 1.2171942929 | $356,652 | $356,652 | $434.11 | | |
| LIB1 | LIBRARY DIST #1 GENERAL | 0.2868827388 | $356,652 | $356,652 | $102.32 | | |
| PORTPT | PORT OF PT GENERAL | 0.1134941229 | $356,652 | $356,652 | $40.48 | | |
| PORTPTIDD | PORT OF PT IDD 2019 | 0.2577346692 | $356,652 | $356,652 | $91.92 | | |
| PUD1 | PUD #1 GENERAL | 0.0597888892 | $356,652 | $356,652 | $21.32 | | |
| STATE | STATE SCHOOL PART 1 | 1.4940692947 | $356,652 | $356,652 | $532.86 | | |
| STATE2 | STATE SCHOOL PART 2 | 0.8050170049 | $356,652 | $356,652 | $287.11 | | |
| | Total Tax Rate: | 7.7095739644 | | | | | |
| | | | | Taxes w/Current Exemptions: | $2,749.63 | | |
| | | | | Taxes w/o Exemptions: | $2,749.63 | | |
Improvement / Building
| Improvement #1: | Residential Bldg | State Code: | 11 | 1104.0 sqft | Value: | $218,052 |
| Bedrooms (#): | 2 | Exterior Wall: | SI/ST | | Fireplace: | WD ST-FAIR | Floor Construction: | FRAME | | Foundation: | CONPR | Heating/Cooling: | OTHER | | Interior Finish: | FIN | Roof Cover: | ROLL |
|
| | Type | Description | Class CD | Sub Class CD | Year Built | Area |
| | MA | Main Area | 4 | 15SF | 1983 | 1104.0 |
| | HWPOR | House Wood Porch | 4 | * | 1983 | 192.0 |
| | OTHER | Other | * | * | 1983 | 0.0 |
Sketch
Property Image
Land
| 1 | 4125-1187L | Irondale Lots XS Lots to make up Site | 0.0000 | 0.00 | 0.00 | 0.00 | 13.00 | $54,600 | $0 |
| 2 | 4125-1285S | Irondale 2 Lot Sites No/Filtered Views | 0.0000 | 0.00 | 0.00 | 0.00 | 1.00 | $84,000 | $0 |
Roll Value History
| 2026 | N/A | N/A | N/A | N/A | N/A |
| 2025 | $218,052 | $138,600 | $0 | $356,652 | $356,652 |
| 2024 | $115,649 | $131,775 | $0 | $247,424 | $247,424 |
| 2023 | $110,392 | $120,500 | $0 | $230,892 | $45,850 |
| 2022 | $100,242 | $88,800 | $0 | $189,042 | $45,850 |
Deed and Sales History
| 1 | 08/25/2025 | SWD | Statutory Warranty Deed | YOSHIKO GILBERTSON | REBECCA BEEBE | | | $420,000.00 | 144846 | |
Payout Agreement
| No payout information available.. |