Property
Account |
| Property ID: | 31519 | Abbreviated Legal Description: | IRONDALE #7 BLK 86 LOTS 44 TO 48 |
| Parcel # / Geo ID: | 961808603 | Agent Code: | |
| Type: | Real | | |
| Tax Area: | 0211 - 1-49F1E1H2L1 | Land Use Code | 11 |
| Open Space: | N | DFL | N |
| Historic Property: | N | Remodel Property: | N |
| Multi-Family Redevelopment: | N | | |
| Township: | 30N | Section: | 34 |
| Range: | 1W |
Location |
| Address: | 11 W EUGENE ST PORT HADLOCK, WA 98339 | Mapsco: | 046/006 |
| Neighborhood: | IRONDALE BLOCKS 48 - 92 | Map ID: | |
| Neighborhood CD: | 4125 |
Owner |
| Name: | SHAWN N & DANA B LAMMERS | Owner ID: | 113788 |
| Mailing Address: | 11 W EUGENE ST PORT HADLOCK, WA 98339-9626 | % Ownership: | 100.0000000000% |
| | | Exemptions: | |
Pay Tax Due
Select the appropriate checkbox next to the year to be paid. Multiple years may be selected.
*Convenience Fee not included
Taxes and Assessment Details
Property Tax Information as of
03/10/2026
Click on "Statement Details" to expand or collapse a tax statement.
* Please enter a valid date ** Please enter a valid date *
Statement Details |
| 2026 | 20799 | STATE - STATE LEVY (SCHOOL) | $416.55 | $416.54 | $0.00 | $0.00 | $0.00 | $833.09 |
| 2026 | 20799 | COUNTY - COUNTY LEVIES (CE, DD, VET, MH) | $166.55 | $166.52 | $0.00 | $0.00 | $0.00 | $333.07 |
| 2026 | 20799 | CONSERVE - CONSERVATION FUTURES | $5.00 | $4.99 | $0.00 | $0.00 | $0.00 | $9.99 |
| 2026 | 20799 | COROADS - COUNTY ROADS (ROADS, DIV TO CE) | $134.35 | $134.34 | $0.00 | $0.00 | $0.00 | $268.69 |
| 2026 | 20799 | PORTPT - PORT DISTRICT | $67.27 | $67.25 | $0.00 | $0.00 | $0.00 | $134.52 |
| 2026 | 20799 | PUD1 - PUD #1 | $10.83 | $10.83 | $0.00 | $0.00 | $0.00 | $21.66 |
| 2026 | 20799 | LIB1 - LIBRARY DIST #1 | $51.98 | $51.97 | $0.00 | $0.00 | $0.00 | $103.95 |
| 2026 | 20799 | HD2 - HOSP DIST #2 | $9.72 | $9.71 | $0.00 | $0.00 | $0.00 | $19.43 |
| 2026 | 20799 | SD49 - SCHOOL DIST #49 | $229.30 | $229.29 | $0.00 | $0.00 | $0.00 | $458.59 |
| 2026 | 20799 | FD1 - FIRE DISTRICT #1 | $220.53 | $220.53 | $0.00 | $0.00 | $0.00 | $441.06 |
| 2026 | 20799 | EMS1 - FIRE DIST #1 EMS | $84.79 | $84.79 | $0.00 | $0.00 | $0.00 | $169.58 |
| 2026 | 20799 | JCCD - JC Conservation District | $2.55 | $2.55 | $0.00 | $0.00 | $0.00 | $5.10 |
| 2026 | 20799 | NWA - Noxious Weed Assessment | $2.98 | $2.97 | $0.00 | $0.00 | $0.00 | $5.95 |
| 2026 | 20799 | OSS - On Site Septic | $23.10 | $23.10 | $0.00 | $0.00 | $0.00 | $46.20 |
| 2026 | 20799 | WAT - Clean Water District | $13.00 | $13.00 | $0.00 | $0.00 | $0.00 | $26.00 |
| 2026 | 20799 | TOTAL: | $1438.50 | $1438.38 | $0.00 | $0.00 | $0.00 | $2876.88 |
|
| 2026 | 20799 | $1438.50 | $1438.38 | $0.00 | $0.00 | $0.00 | $2876.88 |
Statement Details |
| 2025 | 20860 | STATE - STATE LEVY (SCHOOL) | $432.59 | $432.58 | $0.00 | $0.00 | $865.17 | $0.00 |
| 2025 | 20860 | COUNTY - COUNTY LEVIES (CE, DD, VET, MH) | $170.11 | $170.10 | $0.00 | $0.00 | $340.21 | $0.00 |
| 2025 | 20860 | CONSERVE - CONSERVATION FUTURES | $5.10 | $5.10 | $0.00 | $0.00 | $10.20 | $0.00 |
| 2025 | 20860 | COROADS - COUNTY ROADS (ROADS, DIV TO CE) | $136.29 | $136.28 | $0.00 | $0.00 | $272.57 | $0.00 |
| 2025 | 20860 | PORTPT - PORT DISTRICT | $69.42 | $69.41 | $0.00 | $0.00 | $138.83 | $0.00 |
| 2025 | 20860 | PUD1 - PUD #1 | $11.13 | $11.13 | $0.00 | $0.00 | $22.26 | $0.00 |
| 2025 | 20860 | LIB1 - LIBRARY DIST #1 | $52.73 | $52.73 | $0.00 | $0.00 | $105.46 | $0.00 |
| 2025 | 20860 | HD2 - HOSP DIST #2 | $9.93 | $9.92 | $0.00 | $0.00 | $19.85 | $0.00 |
| 2025 | 20860 | SD49 - SCHOOL DIST #49 | $231.84 | $231.83 | $0.00 | $0.00 | $463.67 | $0.00 |
| 2025 | 20860 | FD1 - FIRE DISTRICT #1 | $224.48 | $224.48 | $0.00 | $0.00 | $448.96 | $0.00 |
| 2025 | 20860 | EMS1 - FIRE DIST #1 EMS | $86.34 | $86.34 | $0.00 | $0.00 | $172.68 | $0.00 |
| 2025 | 20860 | JCCD - JC Conservation District | $2.55 | $2.55 | $0.00 | $0.00 | $5.10 | $0.00 |
| 2025 | 20860 | NWA - Noxious Weed Assessment | $2.15 | $2.15 | $0.00 | $0.00 | $4.30 | $0.00 |
| 2025 | 20860 | OSS - On Site Septic | $21.50 | $21.50 | $0.00 | $0.00 | $43.00 | $0.00 |
| 2025 | 20860 | WAT - Clean Water District | $13.00 | $13.00 | $0.00 | $0.00 | $26.00 | $0.00 |
| 2025 | 20860 | TOTAL: | $1469.16 | $1469.10 | $0.00 | $0.00 | $2938.26 | $0.00 |
|
| 2025 | 20860 | $1469.16 | $1469.10 | $0.00 | $0.00 | $2938.26 | $0.00 |
Statement Details |
| 2024 | 20902 | STATE - STATE LEVY (SCHOOL) | $392.34 | $392.33 | $0.00 | $0.00 | $784.67 | $0.00 |
| 2024 | 20902 | COUNTY - COUNTY LEVIES (CE, DD, VET, MH) | $167.89 | $167.89 | $0.00 | $0.00 | $335.78 | $0.00 |
| 2024 | 20902 | CONSERVE - CONSERVATION FUTURES | $5.04 | $5.03 | $0.00 | $0.00 | $10.07 | $0.00 |
| 2024 | 20902 | COROADS - COUNTY ROADS (ROADS, DIV TO CE) | $135.10 | $135.08 | $0.00 | $0.00 | $270.18 | $0.00 |
| 2024 | 20902 | PORTPT - PORT DISTRICT | $69.35 | $69.34 | $0.00 | $0.00 | $138.69 | $0.00 |
| 2024 | 20902 | PUD1 - PUD #1 | $11.03 | $11.02 | $0.00 | $0.00 | $22.05 | $0.00 |
| 2024 | 20902 | LIB1 - LIBRARY DIST #1 | $52.27 | $52.26 | $0.00 | $0.00 | $104.53 | $0.00 |
| 2024 | 20902 | HD2 - HOSP DIST #2 | $9.80 | $9.79 | $0.00 | $0.00 | $19.59 | $0.00 |
| 2024 | 20902 | SD49 - SCHOOL DIST #49 | $175.20 | $175.19 | $0.00 | $0.00 | $350.39 | $0.00 |
| 2024 | 20902 | FD1 - FIRE DISTRICT #1 | $221.98 | $221.98 | $0.00 | $0.00 | $443.96 | $0.00 |
| 2024 | 20902 | EMS1 - FIRE DIST #1 EMS | $84.79 | $84.79 | $0.00 | $0.00 | $169.58 | $0.00 |
| 2024 | 20902 | JCCD - JC Conservation District | $2.55 | $2.55 | $0.00 | $0.00 | $5.10 | $0.00 |
| 2024 | 20902 | NWA - Noxious Weed Assessment | $2.15 | $2.15 | $0.00 | $0.00 | $4.30 | $0.00 |
| 2024 | 20902 | OSS - On Site Septic | $21.00 | $21.00 | $0.00 | $0.00 | $42.00 | $0.00 |
| 2024 | 20902 | WAT - Clean Water District | $12.50 | $12.50 | $0.00 | $0.00 | $25.00 | $0.00 |
| 2024 | 20902 | TOTAL: | $1362.99 | $1362.90 | $0.00 | $0.00 | $2725.89 | $0.00 |
|
| 2024 | 20902 | $1362.99 | $1362.90 | $0.00 | $0.00 | $2725.89 | $0.00 |
Statement Details |
| 2023 | 20939 | STATE - STATE LEVY (SCHOOL) | $332.35 | $332.35 | $0.00 | $0.00 | $664.70 | $0.00 |
| 2023 | 20939 | COUNTY - COUNTY LEVIES (CE, DD, VET, MH) | $145.05 | $145.01 | $0.00 | $0.00 | $290.06 | $0.00 |
| 2023 | 20939 | CONSERVE - CONSERVATION FUTURES | $4.35 | $4.35 | $0.00 | $0.00 | $8.70 | $0.00 |
| 2023 | 20939 | COROADS - COUNTY ROADS (ROADS, DIV TO CE) | $117.34 | $117.34 | $0.00 | $0.00 | $234.68 | $0.00 |
| 2023 | 20939 | PORTPT - PORT DISTRICT | $61.10 | $61.08 | $0.00 | $0.00 | $122.18 | $0.00 |
| 2023 | 20939 | PUD1 - PUD #1 | $9.62 | $9.61 | $0.00 | $0.00 | $19.23 | $0.00 |
| 2023 | 20939 | LIB1 - LIBRARY DIST #1 | $45.40 | $45.39 | $0.00 | $0.00 | $90.79 | $0.00 |
| 2023 | 20939 | HD2 - HOSP DIST #2 | $8.47 | $8.45 | $0.00 | $0.00 | $16.92 | $0.00 |
| 2023 | 20939 | SD49 - SCHOOL DIST #49 | $155.36 | $155.35 | $0.00 | $0.00 | $310.71 | $0.00 |
| 2023 | 20939 | FD1 - FIRE DISTRICT #1 | $119.48 | $119.47 | $0.00 | $0.00 | $238.95 | $0.00 |
| 2023 | 20939 | EMS1 - FIRE DIST #1 EMS | $50.82 | $50.82 | $0.00 | $0.00 | $101.64 | $0.00 |
| 2023 | 20939 | JCCD - JC Conservation District | $2.55 | $2.55 | $0.00 | $0.00 | $5.10 | $0.00 |
| 2023 | 20939 | NWA - Noxious Weed Assessment | $2.15 | $2.15 | $0.00 | $0.00 | $4.30 | $0.00 |
| 2023 | 20939 | OSS - On Site Septic | $20.50 | $20.50 | $0.00 | $0.00 | $41.00 | $0.00 |
| 2023 | 20939 | WAT - Clean Water District | $12.00 | $12.00 | $0.00 | $0.00 | $24.00 | $0.00 |
| 2023 | 20939 | TOTAL: | $1086.54 | $1086.42 | $0.00 | $0.00 | $2172.96 | $0.00 |
|
| 2023 | 20939 | $1086.54 | $1086.42 | $0.00 | $0.00 | $2172.96 | $0.00 |
Values
| (+) Improvement Homesite Value: | + | $0 | |
| (+) Improvement Non-Homesite Value: | + | $255,257 | |
| (+) Land Homesite Value: | + | $0 | |
| (+) Land Non-Homesite Value: | + | $107,100 | |
| (+) Curr Use (HS): | + | $0 | $0 |
| (+) Curr Use (NHS): | + | $0 | $0 |
| | | -------------------------- | |
| (=) Market Value: | = | $362,357 | |
| (–) Productivity Loss: | – | $0 | |
| | | -------------------------- | |
| (=) Subtotal: | = | $362,357 | |
| (+) Senior Appraised Value: | + | $0 | |
| (+) Non-Senior Appraised Value: | + | $362,357 | |
| | | -------------------------- | |
| (=) Total Appraised Value: | = | $362,357 | |
| (–) Senior Exemption Loss: | – | $0 | |
| (–) Exemption Loss: | – | $0 | |
| | | -------------------------- | |
| (=) Taxable Value: | = | $362,357 | |
Taxing Jurisdiction
| Owner: | SHAWN N & DANA B LAMMERS | | |
| % Ownership: | 100.0000000000% | | |
| Total Value: | $362,357 | | |
| Tax Area: | 0211 - 1-49F1E1H2L1 |
| CE | COUNTY CURRENT EXPENSE | 0.9034619479 | $362,357 | $362,357 | $327.38 | | |
| CNTYDD | DEVELOPMENTAL DISABILITIES | 0.0052121823 | $362,357 | $362,357 | $1.89 | | |
| CNTYVET | VETERANS RELIEF | 0.0052777810 | $362,357 | $362,357 | $1.91 | | |
| MENTAL | MENTAL HEALTH | 0.0052121823 | $362,357 | $362,357 | $1.89 | | |
| ROADS | COUNTY ROADS | 0.7415066410 | $362,357 | $362,357 | $268.69 | | |
| ROADSCU | COUNTY ROADS TO CUR EXP | 0.0000000000 | $362,357 | $362,357 | $0.00 | | |
| HOSP2CASH | HOSP DIST #2 GENERAL | 0.0536075306 | $362,357 | $362,357 | $19.43 | | |
| SCH49CP | SCHOOL DIST #49 CAP PROJ | 0.6279093905 | $362,357 | $362,357 | $227.53 | | |
| SCH49MO | SCHOOL DIST #49 EP & O | 0.6376483602 | $362,357 | $362,357 | $231.06 | | |
| CONSERVE | CONSERVATION FUTURES | 0.0275621078 | $362,357 | $362,357 | $9.99 | | |
| EMS1 | FIRE DIST #1 EMS | 0.4679948282 | $362,357 | $362,357 | $169.58 | | |
| FD1 | FIRE DIST #1 GENERAL | 1.2171942929 | $362,357 | $362,357 | $441.06 | | |
| LIB1 | LIBRARY DIST #1 GENERAL | 0.2868827388 | $362,357 | $362,357 | $103.95 | | |
| PORTPT | PORT OF PT GENERAL | 0.1134941229 | $362,357 | $362,357 | $41.13 | | |
| PORTPTIDD | PORT OF PT IDD 2019 | 0.2577346692 | $362,357 | $362,357 | $93.39 | | |
| PUD1 | PUD #1 GENERAL | 0.0597888892 | $362,357 | $362,357 | $21.66 | | |
| STATE | STATE SCHOOL PART 1 | 1.4940692947 | $362,357 | $362,357 | $541.39 | | |
| STATE2 | STATE SCHOOL PART 2 | 0.8050170049 | $362,357 | $362,357 | $291.70 | | |
| | Total Tax Rate: | 7.7095739644 | | | | | |
| | | | | Taxes w/Current Exemptions: | $2,793.63 | | |
| | | | | Taxes w/o Exemptions: | $2,793.63 | | |
Improvement / Building
| Improvement #1: | Residential Bldg | State Code: | 11 | 1860.0 sqft | Value: | $255,257 |
| Bathrooms (#): | 2 (FULL) | Bedrooms (#): | 3 | | Exterior Wall: | PL/T1 | Fireplace: | DBL 1-AVG | | Floor Construction: | FRAME | Foundation: | CONPR | | Heating/Cooling: | F/A | Inside Verify: | YES-FIX | | Roof Cover: | COMP |   |   |
|
| | Type | Description | Class CD | Sub Class CD | Year Built | Area |
| | MA | Main Area | 3+ | 15SF | 1977 | 924.0 |
| | MA2 | Second Floor Main Area | 3+ | 15SF | 1977 | 936.0 |
| | HDECK | House Deck | 3 | * | 1977 | 202.0 |
| | GBLTIN | Builtin Garage | 3 | 15SF | 1977 | 418.0 |
Sketch
Property Image
Land
| 1 | 4125-1187L | | 0.0000 | 0.00 | 0.00 | 0.00 | 3.00 | $12,600 | $0 |
| 2 | 4125-1275S | | 0.0000 | 0.00 | 0.00 | 0.00 | 1.00 | $94,500 | $0 |
Roll Value History
| 2026 | N/A | N/A | N/A | N/A | N/A |
| 2025 | $255,257 | $107,100 | $0 | $362,357 | $362,357 |
| 2024 | $255,257 | $105,525 | $0 | $360,782 | $360,782 |
| 2023 | $243,655 | $95,500 | $0 | $339,155 | $339,155 |
| 2022 | $212,551 | $69,800 | $0 | $282,351 | $282,351 |
Deed and Sales History
| 1 | 12/05/2025 | SWD | Statutory Warranty Deed | PHILIP N CLOSE | SHAWN N & DANA B LAMMERS | | | $525,000.00 | 145357 | |
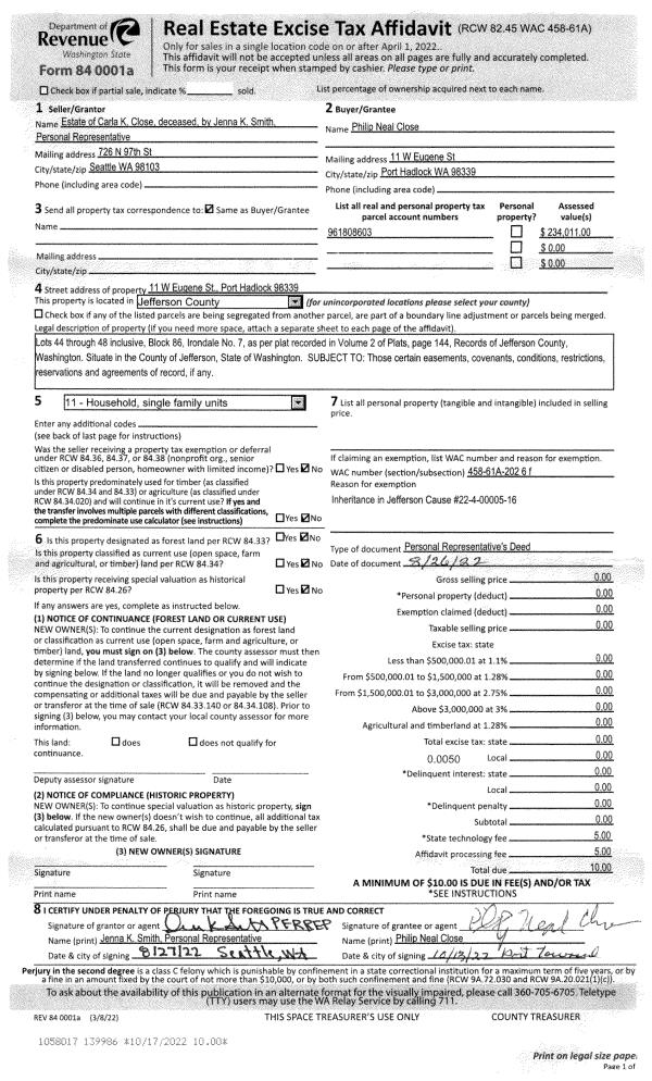
| 2 | 08/26/2022 | PRD | Personal Representatives Deed | PHILIP N CLOSE | PHILIP N CLOSE | | | | 139986 | |
Payout Agreement
| No payout information available.. |