Property
Account |
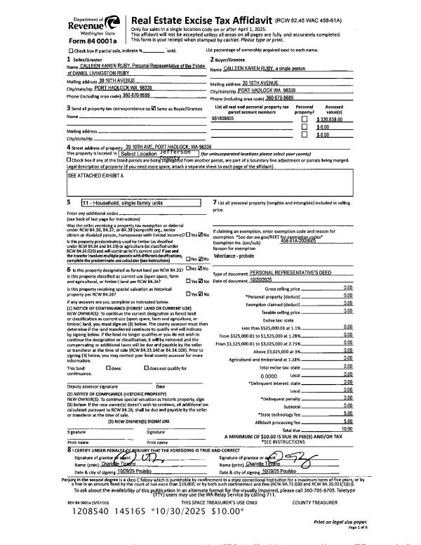
| Property ID: | 31537 | Abbreviated Legal Description: | IRONDALE #7 BLK 88, LOTS 16 THRU 31(ALL), 32(LS N27') LESS R/W |
| Parcel # / Geo ID: | 961808805 | Agent Code: | |
| Type: | Real | | |
| Tax Area: | 0211 - 1-49F1E1H2L1 | Land Use Code | 11 |
| Open Space: | N | DFL | N |
| Historic Property: | N | Remodel Property: | N |
| Multi-Family Redevelopment: | N | | |
| Township: | 30N | Section: | 3 |
| Range: | 1W |
Location |
| Address: | 20 10TH AVE PORT HADLOCK, WA 98339 | Mapsco: | 046/021 |
| Neighborhood: | IRONDALE BLOCKS 48 - 92 | Map ID: | |
| Neighborhood CD: | 4125 |
Owner |
| Name: | CALLEEN K RUBY | Owner ID: | 113576 |
| Mailing Address: | 20 10TH AVE PORT HADLOCK, WA 98339-9601 | % Ownership: | 100.0000000000% |
| | | Exemptions: | |
Pay Tax Due
Select the appropriate checkbox next to the year to be paid. Multiple years may be selected.
*Convenience Fee not included
Taxes and Assessment Details
Property Tax Information as of
03/11/2026
Click on "Statement Details" to expand or collapse a tax statement.
* Please enter a valid date ** Please enter a valid date *
Statement Details |
| 2026 | 20815 | STATE - STATE LEVY (SCHOOL) | $373.42 | $373.41 | $0.00 | $0.00 | $0.00 | $746.83 |
| 2026 | 20815 | COUNTY - COUNTY LEVIES (CE, DD, VET, MH) | $149.30 | $149.27 | $0.00 | $0.00 | $0.00 | $298.57 |
| 2026 | 20815 | CONSERVE - CONSERVATION FUTURES | $4.48 | $4.47 | $0.00 | $0.00 | $0.00 | $8.95 |
| 2026 | 20815 | COROADS - COUNTY ROADS (ROADS, DIV TO CE) | $120.44 | $120.43 | $0.00 | $0.00 | $0.00 | $240.87 |
| 2026 | 20815 | PORTPT - PORT DISTRICT | $60.30 | $60.29 | $0.00 | $0.00 | $0.00 | $120.59 |
| 2026 | 20815 | PUD1 - PUD #1 | $9.71 | $9.71 | $0.00 | $0.00 | $0.00 | $19.42 |
| 2026 | 20815 | LIB1 - LIBRARY DIST #1 | $46.60 | $46.59 | $0.00 | $0.00 | $0.00 | $93.19 |
| 2026 | 20815 | HD2 - HOSP DIST #2 | $8.71 | $8.70 | $0.00 | $0.00 | $0.00 | $17.41 |
| 2026 | 20815 | SD49 - SCHOOL DIST #49 | $205.56 | $205.54 | $0.00 | $0.00 | $0.00 | $411.10 |
| 2026 | 20815 | FD1 - FIRE DISTRICT #1 | $197.70 | $197.69 | $0.00 | $0.00 | $0.00 | $395.39 |
| 2026 | 20815 | EMS1 - FIRE DIST #1 EMS | $76.01 | $76.01 | $0.00 | $0.00 | $0.00 | $152.02 |
| 2026 | 20815 | FP - DNR Forest Fire Protection Assmt | $8.50 | $8.50 | $0.00 | $0.00 | $0.00 | $17.00 |
| 2026 | 20815 | FPLCA - DNR Landowner Contingency Assmt | $3.00 | $3.00 | $0.00 | $0.00 | $0.00 | $6.00 |
| 2026 | 20815 | JCCD - JC Conservation District | $2.55 | $2.55 | $0.00 | $0.00 | $0.00 | $5.10 |
| 2026 | 20815 | NWA - Noxious Weed Assessment | $2.98 | $2.97 | $0.00 | $0.00 | $0.00 | $5.95 |
| 2026 | 20815 | OSS - On Site Septic | $23.10 | $23.10 | $0.00 | $0.00 | $0.00 | $46.20 |
| 2026 | 20815 | WAT - Clean Water District | $13.00 | $13.00 | $0.00 | $0.00 | $0.00 | $26.00 |
| 2026 | 20815 | FP ADMIN - FP ADMIN | $0.50 | $0.00 | $0.00 | $0.00 | $0.00 | $0.50 |
| 2026 | 20815 | TOTAL: | $1305.86 | $1305.23 | $0.00 | $0.00 | $0.00 | $2611.09 |
|
| 2026 | 20815 | $1305.86 | $1305.23 | $0.00 | $0.00 | $0.00 | $2611.09 |
Statement Details |
| 2025 | 20876 | STATE - STATE LEVY (SCHOOL) | $384.45 | $384.45 | $0.00 | $0.00 | $768.90 | $0.00 |
| 2025 | 20876 | COUNTY - COUNTY LEVIES (CE, DD, VET, MH) | $151.20 | $151.16 | $0.00 | $0.00 | $302.36 | $0.00 |
| 2025 | 20876 | CONSERVE - CONSERVATION FUTURES | $4.54 | $4.53 | $0.00 | $0.00 | $9.07 | $0.00 |
| 2025 | 20876 | COROADS - COUNTY ROADS (ROADS, DIV TO CE) | $121.13 | $121.11 | $0.00 | $0.00 | $242.24 | $0.00 |
| 2025 | 20876 | PORTPT - PORT DISTRICT | $61.70 | $61.68 | $0.00 | $0.00 | $123.38 | $0.00 |
| 2025 | 20876 | PUD1 - PUD #1 | $9.89 | $9.89 | $0.00 | $0.00 | $19.78 | $0.00 |
| 2025 | 20876 | LIB1 - LIBRARY DIST #1 | $46.86 | $46.86 | $0.00 | $0.00 | $93.72 | $0.00 |
| 2025 | 20876 | HD2 - HOSP DIST #2 | $8.82 | $8.82 | $0.00 | $0.00 | $17.64 | $0.00 |
| 2025 | 20876 | SD49 - SCHOOL DIST #49 | $206.05 | $206.04 | $0.00 | $0.00 | $412.09 | $0.00 |
| 2025 | 20876 | FD1 - FIRE DISTRICT #1 | $199.50 | $199.50 | $0.00 | $0.00 | $399.00 | $0.00 |
| 2025 | 20876 | EMS1 - FIRE DIST #1 EMS | $76.74 | $76.73 | $0.00 | $0.00 | $153.47 | $0.00 |
| 2025 | 20876 | FP - DNR Forest Fire Protection Assmt | $8.50 | $8.50 | $0.00 | $0.00 | $17.00 | $0.00 |
| 2025 | 20876 | FPLCA - DNR Landowner Contingency Assmt | $3.00 | $3.00 | $0.00 | $0.00 | $6.00 | $0.00 |
| 2025 | 20876 | JCCD - JC Conservation District | $2.55 | $2.55 | $0.00 | $0.00 | $5.10 | $0.00 |
| 2025 | 20876 | NWA - Noxious Weed Assessment | $2.15 | $2.15 | $0.00 | $0.00 | $4.30 | $0.00 |
| 2025 | 20876 | OSS - On Site Septic | $21.50 | $21.50 | $0.00 | $0.00 | $43.00 | $0.00 |
| 2025 | 20876 | WAT - Clean Water District | $13.00 | $13.00 | $0.00 | $0.00 | $26.00 | $0.00 |
| 2025 | 20876 | FP ADMIN - FP ADMIN | $0.50 | $0.00 | $0.00 | $0.00 | $0.50 | $0.00 |
| 2025 | 20876 | TOTAL: | $1322.08 | $1321.47 | $0.00 | $0.00 | $2643.55 | $0.00 |
|
| 2025 | 20876 | $1322.08 | $1321.47 | $0.00 | $0.00 | $2643.55 | $0.00 |
Statement Details |
| 2024 | 20918 | STATE - STATE LEVY (SCHOOL) | $337.45 | $337.45 | $0.00 | $0.00 | $674.90 | $0.00 |
| 2024 | 20918 | COUNTY - COUNTY LEVIES (CE, DD, VET, MH) | $144.61 | $144.58 | $0.00 | $0.00 | $289.19 | $0.00 |
| 2024 | 20918 | CONSERVE - CONSERVATION FUTURES | $4.34 | $4.33 | $0.00 | $0.00 | $8.67 | $0.00 |
| 2024 | 20918 | COROADS - COUNTY ROADS (ROADS, DIV TO CE) | $116.36 | $116.35 | $0.00 | $0.00 | $232.71 | $0.00 |
| 2024 | 20918 | PORTPT - PORT DISTRICT | $59.73 | $59.72 | $0.00 | $0.00 | $119.45 | $0.00 |
| 2024 | 20918 | PUD1 - PUD #1 | $9.50 | $9.50 | $0.00 | $0.00 | $19.00 | $0.00 |
| 2024 | 20918 | LIB1 - LIBRARY DIST #1 | $45.02 | $45.01 | $0.00 | $0.00 | $90.03 | $0.00 |
| 2024 | 20918 | HD2 - HOSP DIST #2 | $8.44 | $8.43 | $0.00 | $0.00 | $16.87 | $0.00 |
| 2024 | 20918 | SD49 - SCHOOL DIST #49 | $150.30 | $150.29 | $0.00 | $0.00 | $300.59 | $0.00 |
| 2024 | 20918 | FD1 - FIRE DISTRICT #1 | $191.20 | $191.19 | $0.00 | $0.00 | $382.39 | $0.00 |
| 2024 | 20918 | EMS1 - FIRE DIST #1 EMS | $73.03 | $73.03 | $0.00 | $0.00 | $146.06 | $0.00 |
| 2024 | 20918 | OSS - On Site Septic | $21.00 | $21.00 | $0.00 | $0.00 | $42.00 | $0.00 |
| 2024 | 20918 | TOTAL: | $1160.98 | $1160.88 | $0.00 | $0.00 | $2321.86 | $0.00 |
|
| 2024 | 20918 | $1160.98 | $1160.88 | $0.00 | $0.00 | $2321.86 | $0.00 |
Statement Details |
| 2023 | 20955 | STATE - STATE LEVY (SCHOOL) | $27.18 | $27.18 | $0.00 | $0.00 | $54.36 | $0.00 |
| 2023 | 20955 | COUNTY - COUNTY LEVIES (CE, DD, VET, MH) | $18.23 | $18.19 | $0.00 | $0.00 | $36.42 | $0.00 |
| 2023 | 20955 | CONSERVE - CONSERVATION FUTURES | $0.55 | $0.54 | $0.00 | $0.00 | $1.09 | $0.00 |
| 2023 | 20955 | COROADS - COUNTY ROADS (ROADS, DIV TO CE) | $14.74 | $14.72 | $0.00 | $0.00 | $29.46 | $0.00 |
| 2023 | 20955 | PORTPT - PORT DISTRICT | $7.67 | $7.67 | $0.00 | $0.00 | $15.34 | $0.00 |
| 2023 | 20955 | PUD1 - PUD #1 | $1.21 | $1.20 | $0.00 | $0.00 | $2.41 | $0.00 |
| 2023 | 20955 | LIB1 - LIBRARY DIST #1 | $5.70 | $5.70 | $0.00 | $0.00 | $11.40 | $0.00 |
| 2023 | 20955 | HD2 - HOSP DIST #2 | $1.07 | $1.06 | $0.00 | $0.00 | $2.13 | $0.00 |
| 2023 | 20955 | SD49 - SCHOOL DIST #49 | $0.00 | $0.00 | $0.00 | $0.00 | $0.00 | $0.00 |
| 2023 | 20955 | FD1 - FIRE DISTRICT #1 | $15.00 | $15.00 | $0.00 | $0.00 | $30.00 | $0.00 |
| 2023 | 20955 | EMS1 - FIRE DIST #1 EMS | $6.38 | $6.38 | $0.00 | $0.00 | $12.76 | $0.00 |
| 2023 | 20955 | OSS - On Site Septic | $20.50 | $20.50 | $0.00 | $0.00 | $41.00 | $0.00 |
| 2023 | 20955 | TOTAL: | $118.23 | $118.14 | $0.00 | $0.00 | $236.37 | $0.00 |
|
| 2023 | 20955 | $118.23 | $118.14 | $0.00 | $0.00 | $236.37 | $0.00 |
Values
| (+) Improvement Homesite Value: | + | $207,238 | |
| (+) Improvement Non-Homesite Value: | + | $0 | |
| (+) Land Homesite Value: | + | $117,600 | |
| (+) Land Non-Homesite Value: | + | $0 | |
| (+) Curr Use (HS): | + | $0 | $0 |
| (+) Curr Use (NHS): | + | $0 | $0 |
| | | -------------------------- | |
| (=) Market Value: | = | $324,838 | |
| (–) Productivity Loss: | – | $0 | |
| | | -------------------------- | |
| (=) Subtotal: | = | $324,838 | |
| (+) Senior Appraised Value: | + | $0 | |
| (+) Non-Senior Appraised Value: | + | $324,838 | |
| | | -------------------------- | |
| (=) Total Appraised Value: | = | $324,838 | |
| (–) Senior Exemption Loss: | – | $0 | |
| (–) Exemption Loss: | – | $0 | |
| | | -------------------------- | |
| (=) Taxable Value: | = | $324,838 | |
Taxing Jurisdiction
| Owner: | CALLEEN K RUBY | | |
| % Ownership: | 100.0000000000% | | |
| Total Value: | $324,838 | | |
| Tax Area: | 0211 - 1-49F1E1H2L1 |
| CE | COUNTY CURRENT EXPENSE | 0.9034619479 | $324,838 | $324,838 | $293.48 | | |
| CNTYDD | DEVELOPMENTAL DISABILITIES | 0.0052121823 | $324,838 | $324,838 | $1.69 | | |
| CNTYVET | VETERANS RELIEF | 0.0052777810 | $324,838 | $324,838 | $1.71 | | |
| MENTAL | MENTAL HEALTH | 0.0052121823 | $324,838 | $324,838 | $1.69 | | |
| ROADS | COUNTY ROADS | 0.7415066410 | $324,838 | $324,838 | $240.87 | | |
| ROADSCU | COUNTY ROADS TO CUR EXP | 0.0000000000 | $324,838 | $324,838 | $0.00 | | |
| HOSP2CASH | HOSP DIST #2 GENERAL | 0.0536075306 | $324,838 | $324,838 | $17.41 | | |
| SCH49CP | SCHOOL DIST #49 CAP PROJ | 0.6279093905 | $324,838 | $324,838 | $203.97 | | |
| SCH49MO | SCHOOL DIST #49 EP & O | 0.6376483602 | $324,838 | $324,838 | $207.13 | | |
| CONSERVE | CONSERVATION FUTURES | 0.0275621078 | $324,838 | $324,838 | $8.95 | | |
| EMS1 | FIRE DIST #1 EMS | 0.4679948282 | $324,838 | $324,838 | $152.02 | | |
| FD1 | FIRE DIST #1 GENERAL | 1.2171942929 | $324,838 | $324,838 | $395.39 | | |
| LIB1 | LIBRARY DIST #1 GENERAL | 0.2868827388 | $324,838 | $324,838 | $93.19 | | |
| PORTPT | PORT OF PT GENERAL | 0.1134941229 | $324,838 | $324,838 | $36.87 | | |
| PORTPTIDD | PORT OF PT IDD 2019 | 0.2577346692 | $324,838 | $324,838 | $83.72 | | |
| PUD1 | PUD #1 GENERAL | 0.0597888892 | $324,838 | $324,838 | $19.42 | | |
| STATE | STATE SCHOOL PART 1 | 1.4940692947 | $324,838 | $324,838 | $485.33 | | |
| STATE2 | STATE SCHOOL PART 2 | 0.8050170049 | $324,838 | $324,838 | $261.50 | | |
| | Total Tax Rate: | 7.7095739644 | | | | | |
| | | | | Taxes w/Current Exemptions: | $2,504.34 | | |
| | | | | Taxes w/o Exemptions: | $2,504.34 | | |
Improvement / Building
| Improvement #1: | Residential Bldg | State Code: | 11 | 2135.0 sqft | Value: | $207,238 |
| Bathrooms (#): | 2 (FULL) | Bathrooms (#): | 1 (HALF) | | Bedrooms (#): | 3 | Exterior Wall: | PL/T1 | | Fireplace: | WD ST-GOOD | Floor Construction: | FRAME | | Foundation: | PO&BL | Heating/Cooling: | ELBB | | Inside Verify: | YES-FIX | Roof Cover: | COMP |
|
| | Type | Description | Class CD | Sub Class CD | Year Built | Area |
| | MA | Main Area | 3 | 15SF | 1951 | 1225.0 |
| | MA2 | Second Floor Main Area | 3 | 15SF | 1951 | 910.0 |
| | HWPOR | House Wood Porch | 3 | * | 1951 | 54.0 |
| | HCPOR | House Concrete Porch | 2 | * | 1951 | 315.0 |
| | CARPTN | Carport W/O Floor | 1 | * | 1951 | 576.0 |
| | HATTIC | House Attic | 3 | * | 1951 | 420.0 |
Sketch
Property Image
Land
| 1 | 4125-1187L | | 0.0000 | 0.00 | 0.00 | 0.00 | 8.00 | $33,600 | $0 |
| 2 | 4125-1285S | | 0.0000 | 0.00 | 0.00 | 0.00 | 1.00 | $84,000 | $0 |
Roll Value History
| 2026 | N/A | N/A | N/A | N/A | N/A |
| 2025 | $207,238 | $117,600 | $0 | $324,838 | $324,838 |
| 2024 | $207,238 | $113,400 | $0 | $320,638 | $320,638 |
| 2023 | $197,818 | $103,000 | $0 | $300,818 | $35,445 |
| 2022 | $174,257 | $75,800 | $0 | $250,057 | $35,445 |
Deed and Sales History
| 1 | 10/20/2025 | PRD | Personal Representatives Deed | DANIEL L RUBY | CALLEEN K RUBY | | | | 145165 | |
| 2 | 07/01/2002 | QCD | Quit Claim Deed | SHEILA R RUBY | DANIEL L RUBY | 0 | 0 | $0.00 | 94995 | 0 |
| 3 | 11/08/1999 | SWD | Statutory Warranty Deed | THOMAS, DAVID M & SPENDER | RUBY, DANIEL L & SHEILA R | 0 | 0 | $136,500.00 | 88306 | 0 |
| 4 | 05/25/1993 | SWD | Statutory Warranty Deed | THOMAS, RICHARD F/ALICE L | THOMAS, DAVID/MESHELLE SPENCER | 0 | 0 | $103,125.00 | 71253 | 0 |
Payout Agreement
| No payout information available.. |